Heidi Huang Design Portfolio

Page 1


Design Portfolio

PROFESSIONAL EXPERIENCE

2007-2008----------------------UPgrade Interior Architecture

Interior Design Assistant

• Provide assistance in the creation of preliminary plans and design concepts

• Assist in analyzing design objectives in accordance to clients’ needs

• Creating space planning, floor finish plans and elevations using AutoCAD

• Provide support in sourcing materials and creating 3d renderings using 3ds Max for various projects

2009-2011 Gnomon 3D Design Studio

2013-2014 Interior and Architectural 3D Visualiser

• Understanding the project requirements and develop high quality 3D models accordingly

• Modeling architectural and interior spaces using 3D Studio Max

• Photorealistic texturing and rendering by 3D Studio Max and Vray

• Creating 3D rendering post production by Adobe Photoshop

2014-2017----------------------PCY Studio

Interior Designer

• Determine the client’s goals and requirements of the project

• Consider how the space will be used and how people will move through the space

• Prepare all the CAD drawings which construction teams needed

• Specify materials and furnishings, such as lighting, furniture, wall finishes, flooring, and plumbing fixtures

• Spatial 3d modeling using 3D Studio Max

• Create a timeline for a project and estimate project costs, and supervise the interior construction sites

2017-2017----------------------Rhema Architecture &Interior Design

Interior Designer

2018-Current-------------------Ho-Mu Interior Design

Freelance Interior Designer and 3D Visualiser

SKILLS

AutoCAD 3ds Max Photoshop Illustrator Microsoft Office

EDUCATION

TAFE QLD, Certificate IV in Residential Drafting(Current)

Fu Jen Catholic University, Bachelor of Fine Arts-Interior Design

Exhibition Design Project

Project name: 2008 Intel Computex

Role: Prepared construction drawings, joineries detailings & 3D renders, assisted with site construction

Concept

The design concept was that the place was a gift to be wrapped by ribbons. The ribbons surrounded in the middle of the place to form a room and there was a reception desk.

Floor Plan

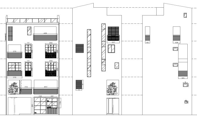
Airbnb Design Project

Project name: 2014 Airbnb Renovation

Role: Prepared construction drawings, joineries detailings, recommendation for material and furniture selections.

This was a renovation project, it is located in a historical area in Tainan. We wanted to bring retro and natural vide into this building, also combined with modern and industrial elements to meet the target customers preferences.

Exterior Elevations
Ground Floor Plan
First Floor Plan
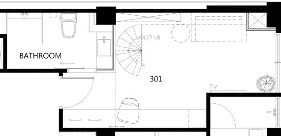
Room 301 Floor Plans

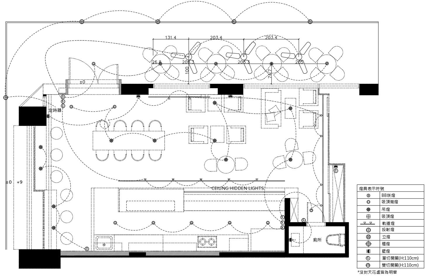
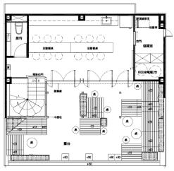
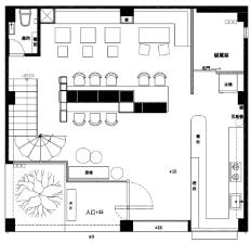
Restaurant Design Project

Project name: 2016 Restaurant Renovation

This was a renovation project. It is on the corner of main roads where is a busy area. We wanted to design a space that was cozy for customers to stop by and enjoy the food and drinks. I was responsible for this project from concept presentation to completion of the project.

Role: Prepared construction drawings, joineries detailings, material and furniture selections, project management and construction site management. Floor Plan

Counter Elevation

Shop Design Project

Project name: 2017 Beyond Select Shop Renovation

Role: Prepared construction drawings, joineries detailings, designed display tables, site and project management.

This shop was located in a department store. The challenges of this project was time and budget. There was only one day to be on the site setting up everything. We made sure all the dimensions were accurate and completed all cabinets in advance. I created 3D renderings to discuss in meetings. We discussed the design and budgets with our clients and stakeholders for many times to make sure meet with their expectations.

Restaurant Design Project

Project name: 2017 Chinese Restaurant in Manila Design

Role: Prepared design presentations, construction drawings, and had meetings with local builders and clients.

This Chinese Restaurant was located in a shopping mall centre in Manila. It was a design project, which we provided construction drawings, design ideas, 3D renderings and contacted with local builders.

Beauty Clinic Design Project

Project name: 2017 Beauty Clinic

Role: Prepared design presentations, and 3D renderings.

This Beauty Clinic contained a front desk, waiting area, an operation room, cosmetic treatments rooms, private consulting rooms, storage room, and a spa room and a lounge area. The separation of mutual and private areas was important consideration to make sure customers privacies were valued. The design brief for this project was clean, modern and welcoming. It also reflected on colour schemes, furniture and material selections.

3D Design Projects

Selected Works- Real-estate Projects

I read 2D drawings from architects then created 3D models. Using V-ray render engine to create photorealistic texturing, lightings and renderings. Creating after-effects images using Photoshop.

Project 2
Project 3

3D Design Projects

Selected Works- Real-estate Projects

3D Design Projects

Selected Works- Real-estate Projects

3D Design Projects

Selected Works- Residential Projects

Thank you

Heidi Huang

Turn static files into dynamic content formats.

Create a flipbook
Issuu converts static files into: digital portfolios, online yearbooks, online catalogs, digital photo albums and more. Sign up and create your flipbook.
Heidi Huang Design Portfolio by 黃千千 - Issuu