Skip to main content

portfolio2024

Page 1

PORTFOLIO
CHIANG HAO YUAN

CONTENT

ABOUT ME / 我

PROJECTS IN CYID

PROJECT00 / SOULSPACE 後村堰

PROJECTS IN 冶鑄設計

PROJECT01 / 誠家興建設汐止案_公設

PROJECT02 / 宏盛建設斯馨段_公設

PROJECTS IN 室冶設計

PROJECT03 / 太子建設 林口太子苑實品屋 A5戶

PROJECT04 / 太子建設 林口太子苑實品屋 A2戶

PROJECT05 / 林口忠孝路劉宅

PROJECT06 / 欣翰士林官邸立正行會館

PROJECT07 / 教 育部校園改造計 畫 建華國中優里 卡教 室

IT’S ME,HI

-meet me at midnight-

台南人, 討厭 曬 太陽, 喜歡宅在家, 興趣是寫書法, 剛入坑攝 影。

江豪元

Chiang Hao Yuan

19 | October | 1996

INFP-T

Tainan,Taiwan

sda331425@gmail.com

@verycirclecircle

+886 981718264

-

EDUCATION

CYCU INTERIOR DESIGN

中原大學室內設計學系

WORK EXPERIENCE

2016

WEIXIANG SPACE| 向空間設計

Intern

2019-2021

ARCADIAN DESIGN|冶鑄設計

Project Designer

-2019-2021 / 誠家興建設汐止案公設

-2019-2021 / 菲律賓建案標準層及梯廳 SD

-2019 / 維多莉亞太子建設私宅 DD

-2020 / 松江接待中心實品屋

- 2020-2021 / 中悅八京桃園CBD案4F公設 SD/DD

-2020-2021 / 宏盛建設斯馨段公設 SD/DD

2021-now

MDI DESIGN|室冶設計

Project Designer

-2021 / 華東台校台北辦公室設計

-2021-2024 / 華東台校上海新校舍_宿舍/公共空間

-2021 / 太子建設林口案實品屋_A2 A5戶

-2022 / 欣翰士林官邸游宅_SD DD

-2022 / 台北101 86樓會議中心競圖

- 2022 / 林口葉公館

-2023-2024 / 桃園機場第二航廈C7候機室工程

-now / Simens Energy新辦公室競圖

SKILLS

Autocad Sketchup

Enscape

Photoshop Illustrator

Word Excel Powerpoint Project and more

LANGUAGES

Mandarin English Taiwanese

後村堰

SOUL SPACE

DESIGNER 江豪元/ INSTRUCTOR 中

後村堰 林 ,在 2004 沖毀 。 上游 為 後村堰 公園, 游 是 大 。

口,我

空間 , 人 堰 ,在 鬆 心, 為 人 ,在 中 找 我, 心 場 。

SITE INFORMATION

後村堰 Houn Cun Yan

新北 林

SITE ANALYSIS

空間 為 及 公園, 找 並 。

空間

空間 , 宅 為 。

游/ , 原 ,內 。

間 林

堰 / 1996 毀損 後, , 後 計畫 , 是 。

閘 / 原 建 ,是 標 。

上游/ 1996 毀 後, 計畫 , 規劃為 公 園,實 。

上游/ 公園

堰 / 毀 游/ 圖

為 原 以及維持 , 上

原 及部 , 建 同時 共 。

我 空間 為 空間,

空間, 游 上游間 500公 ,是我 入設計 , 為 空間 室內 室 。

會影 , 我

麼 法, 空間 夠 入, 空間 氛 。

空間

CONCEPT PROGRAM 空間機

公園 框 , 公 園 , ,

,是 新 呢

Design Program

空間實 及 空間 機 ,

堰 機 - , 我

空間 為 , 鬆 心 機

, 是 飲 是 空 場 機 。 空間 空間 氛 及機

空間

,在實 概 ,我

land under ground 標

EXPERIENCE 實

討 找尋 研究 多

空間實

我 空間 視為 空間,實 口

空間 , 討 500公 空間 。 系 實 ,我 機 產生 學

實 法

向 向 , 法。

向 討

,在實 中 , 是 空間 氛圍 及 人 。

CONCEPT2 立

空間 立 ,

在空間內 放鬆 實 氛圍 。我 空間

我 空間, 及 , 在我 空間中, 是 , 會是 場 台 人 空間 是空 間 氛圍 是 隔絕 空 間 著什麼 多 。

,我 空間 立 內 , 。

是 新 , 立在 上,是 不夠 呢 。

我 原 及 標 , 作 為 場 及入口 空 間 , 已達成 影 原 為目 標 。

空間是 子

圖 空間中 入

機 及 入

在 上 建

機 及 空間

是 為氛圍之 與 場

ENTRACE

原始

維 在原

原 建 新

為 入口

T E A R O O M S Q U A R E M A S S A G E S P A S P A P U B L I C L O B B Y E X P L O S I O N M O D E L
/
人工
設 是人 入 法 損毀
,是我 , 拆 , 是 法, 其新 。
在空間
上, , , 空間 氛圍 在人 上, 強調 空 及 細膩 。

PERSPECTI

Figure01 , 作為 。

Figure02 入, 行為及 , 在空間中 上標 。

Figure03 空間間 , 及 心

Figure04 , 台 設 趣。

Figure05 台, , 。

Figure06 場, 使人放鬆 , 透過壁面 口 暗示 機 。

E 01
02
05 06
03 04
1 入口 台 2 室 3 室 4 台 5 1 6 場 空 7 8 間 9 間 1 層2 2 3 公共 梯 4 場 5 室 6 場 廁 7 設計 及入口 3 2
PLAN

MODEL MAKING

是 設計 之一 ,我 能夠

我 , 入我 設計,

是 , 然而面對一個 大部 ,我 如何更清楚

我 空間 為一個 空間 空間是 子, 我 清楚 空間。

手法

以切片 抽取手法切入,搭配異材質輔助說明。

ABOUT SECTION

Project 01

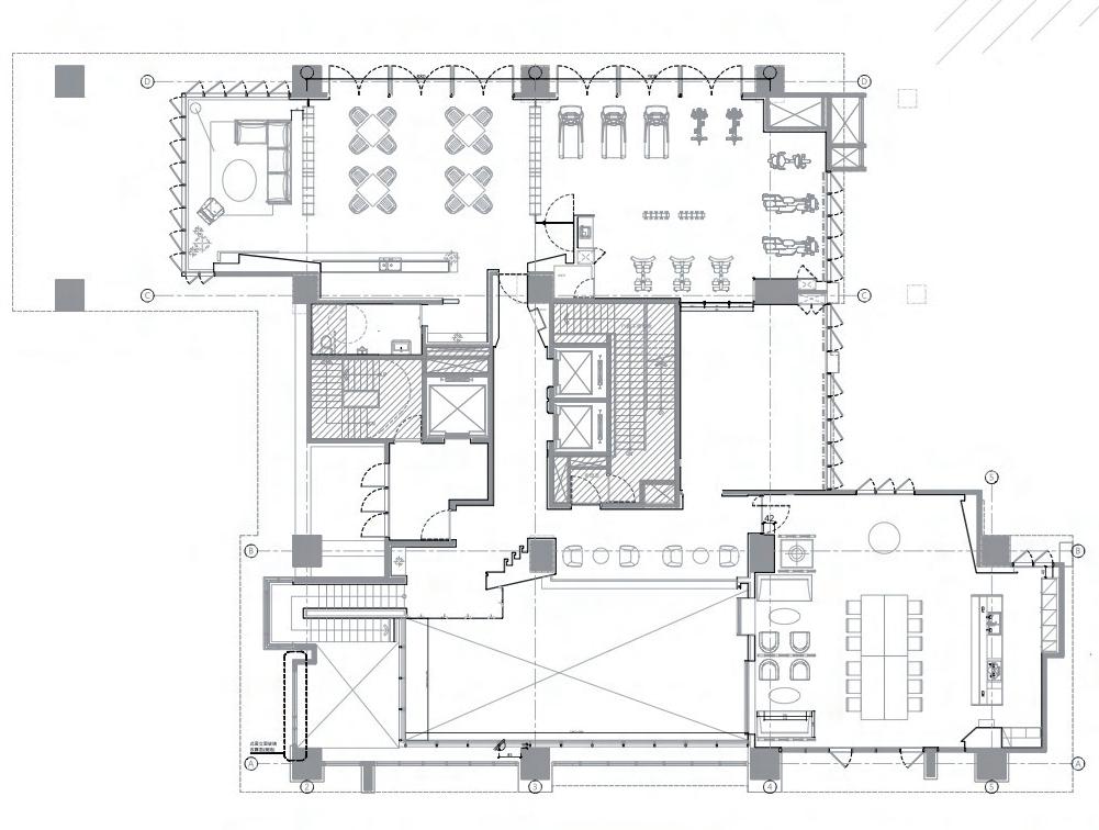
誠家興建設 汐止段公設

設計單位 冶鑄設計

施工單位 方度室內裝修

設計範圍

1F:大廳 梯廳

2F:交誼廳 健身房 梯廳等

標準層:梯廳 廊道

1F 2F及頂樓景觀

Detail

空 屏

基地外

空, 屏。

為 ,

材料

木作刷漆 烤漆玻璃

黑鐵 明鏡

Project 01

誠家興建設 汐止段公設

設計單位 冶鑄設計

施工單位 方度室內裝修

設計範圍

1F:大廳 梯廳

2F:交誼廳 健身房 梯廳等

標準層:梯廳 廊道

1F 2F及頂樓景觀

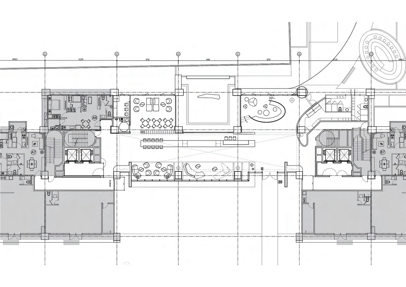
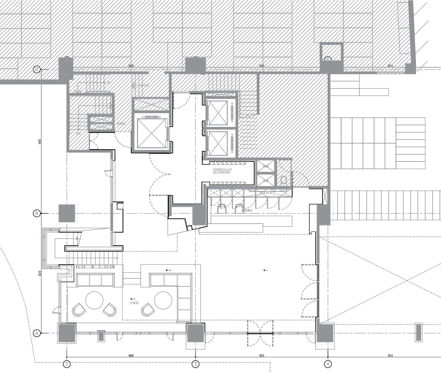
Project 02

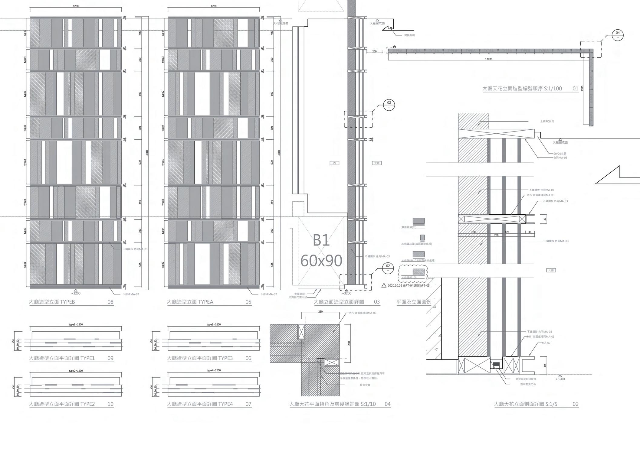
宏盛 建設 斯馨 段公設

設計單位

冶鑄設計

設計範圍

1F:大廳 梯廳

13F:交誼廳 健身房 梯廳等

標準層:梯廳 廊道

Project 03

太子 建設 林口太子苑實品屋 A5戶

設計單位 室冶設計

施工單位 室冶設計

設計規劃範圍

客廳 餐廳 臥室 共16坪

Project 04

太子 建設 林口太子苑實品屋 A2戶

設計規劃範圍

客廳 餐廳 臥室 共25坪

設計單位 室冶設計

施工單位 室冶設計

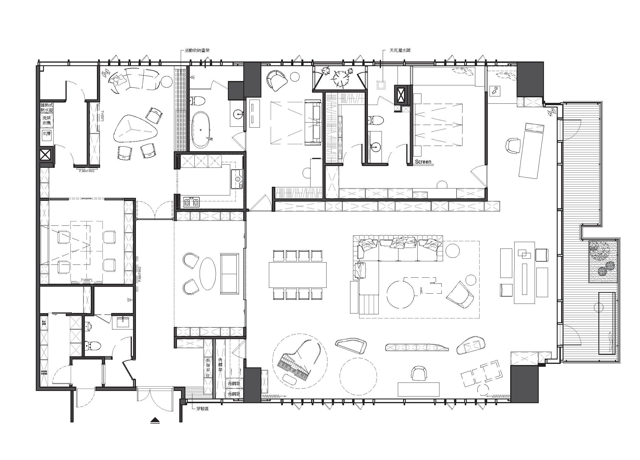
Project 05

林口忠孝路劉宅

設計單位

室冶設計

施工單位

室冶設計

設計規劃範圍

客廳 餐廳 臥室 工作陽台 共40坪

Project 06

欣翰士林官邸立正行會館

設計單位

室冶設計

施工單位 尚未施工

設計規劃範圍

辦公室 客廳 餐廳 臥室 陽台等 共98坪

Project 06

欣翰士林官邸立正行會館

設計單位

室冶設計

施工單位 尚未施工

設計規劃範圍

辦公室 客廳 餐廳 臥室 陽台等 共98坪

Project 07

教育部校園改造計畫 建華國中優里卡教室

設計單位 室冶設計

設計規劃範圍 多功能教室

發展概念 以火柴棒遊戲發想,利用可移動式 道具讓使用者自由發揮空間使用方 式。

使用情境:

分組使用

使用情境:

上課模式

使用情境:

大廣場模式

使用情境:

展覽模式

Turn static files into dynamic content formats.

Create a flipbook