

















CONTENTS


COMMERCIAL 商業空間
-台中信義房屋............27



-丰格109_黃宅 ............03
-東騰靑一_劉宅.............05
ART 裝置藝術
-萬金杜鵑2024-花開落籽..........29
-吉博力台灣旗艦中心開幕 .........31

-厚話日常 .............15
-勤美之森二期 ......23


葉盈汝
YEH YING RU

EDUCATION 學歷
國立台中科技大學 室內設計系 (2018-2022)
桃園市育達高級中學 廣告設計科 (2015-2018)

EXPERIENCE 經歷
優德室內設計 設計助理 (2024.11-2026.3)
靑埕建築整合設計 設計助理 (2022.7-2024.8)
築築空間 工讀生 (2022.5-6)
廖炯昇空間設計工坊 實習生 (2021.7-8)
CERTIFICATE 證照
SOFTWARE
Adobe Illustrator
Adobe Photoshop
Autocad
Sketchup
Rhino 3D
Enscape
Lumion
1999/11/04
Taoyuan,Taiwan
a0975826652@gmail.com
建築物室內裝修工程管理 乙級
TOEIC多益英語 650分
GEPT全民英檢 初級 ENSCAPE LUMION RHINO PS SK CAD AI
PARTICIPATE 參賽
2019 第十二屆夆禾盃 入圍
2020 文創再生 五校室內暨空間設計聯合評圖 第三名
2020 智慧化居住空間創意競賽
2020 THD AWARD兩岸手繪設計獎 佳作
INTRODUCE 介紹
-
以平面設計出發,不同視角觀察與解 讀空間。
-
近年畢業後在業界除了增長設計技巧 ,當中也至案場,增進解決問題的能 力,了解各工種施作技巧,與設計前 期能夠改善與預先準備的地方。
-
SKILL 技能
提案報告
平面配置
施工製圖
報價單修改
現場監工
行銷影片剪輯

平時一直堅持手繪的習慣幫助自身思 考,喜歡欣賞各類空間設計、建築、 展場軟裝等,接觸不同類型的藝術, 培養自身美學。


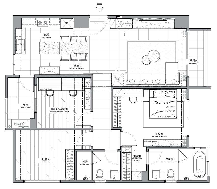
丰格109 黃宅
住宅空間設計
2025.1-2026.2
優德室內設計
基地地址:320桃園市桃園區正光二街 223號
空間成員: 大人2位、狗狗2隻
、貓咪2隻
空間面積: 28.7坪 -
業主為一對年輕夫妻,並有許多毛小 孩,在空間規畫上,主軸以展現空間 特有的開闊視野分劃空間,回字動線 讓業主與毛小孩能夠在家中自由穿梭 奔跑。
並業主有常看電視影音的習慣,因此 也為空間規劃能夠彈性調整的電視旋 轉架。

2.現場照 1 2
6 5 4 3
1.平面配置
3.書桌區 5.餐廳區
4.電視架 6.客廳區







東騰靑一 劉宅
住宅空間設計
2025.1-2025.11
優德室內設計
基地地址:330桃園市桃園區朝陽街 371號
空間成員: 大人4位
空間面積: 24.4坪 -
業主喜愛冷色系,立面風格上也規畫 較為中性簡潔俐落感,空間再利用不 同紋理做出變化。
在空間也利用鋁條燈光線條,前後呼
應銜接,做出引導與點綴。

1.電視牆
2.客餐廳 1 2
4.玄關、臥室A、臥室B_拍攝照 4 3
3.玄關、臥室A、臥室B_渲染圖







宜雄國瑭 古宅
住宅空間提案+監工
2025.9-2026.12
優德室內設計
基地地址:320桃園市中壢區領航北路二段 空間成員: 大人2位、小孩1位 空間面積: 29.1坪
此案為舊屋改造,當中有許多拆除後 才發現並需要解決的狀況,如水電、 空調排水、與原石材修復等。











福鄉致馥 張宅
住宅空間設計+監工
2025.12-2026.02
優德室內設計
基地地址:330桃園市桃園區 吉安一街 128巷38號
空間成員: 大人2位、小孩2位
空間面積: 21.1坪
色調以溫和的冷灰,帶一點特殊漆做 變化。本身天花高度受限,空間中盡 量作天花拉伸的效果,與燈光線條延 伸,增加寬敞感。
業主擁有兩個學齡小孩,當中也為小 朋友注意活動與收納空間的規劃。









仁愛一品 陳公館
設計提案 2022-2023
基地地址: 106台北市大安區仁愛路 三段33號
空間成員 : 大人4位
空間面積 : 371㎡
空間類別 : 住宅空間設計、提案

-
改造父子原先的住宅空間,業主希 望原先同層空間分開成兩間,一間 是新世代的兒子,另一間則給年長 的父親、姑姑與照顧者的傭人。
-當中透過不同對父子,以小說中這 些父子關係不同的處理方式轉換為 設計概念,以傳統方的父親以不同 的處理方式,對應到改變的兒子而 從中產生的關係。

同樣事情不同的觀點與詮釋
東方環形遊園觀景為概念,以外部綠植搭配窗框為畫作藝術品, 上一代VS新一代在同樣遊園的情境概念,父親與兒子不同時代人 有不同空間詮釋與圖形

在對立的同時又有相似之處
以父親傳統對稱的正方形與圓弧,正方形旋轉後便是兒子跳動的 斜空間。



有看法不同的的完全對立
兩方同樣以”完全開啟”公區為目的,父親以傳統擺放的方式操作, 兒子則以可調動性高的簾子為分隔媒介


空間底圖
炫圖軟體 :Enscape

AI軟體 : Stable boos
關鍵字 :簾子 、簡約風、質感、新穎 、圓形、白色家具、現代、時尙

AI軟體 : Stable boost
關鍵字 :簾子 、簡約風、質感、新穎 、高級、明亮、客廳、眞實感、細膩肌 理

遠雄Park
設計提案 2023-2024
One 馮宅
基地地址: 23556新北市中和區 中原二街18號
空間成員 : 大人2位
空間面積 : 249.5㎡
空間類別 : 住宅空間設計、提案 -
業主夫妻長年工作於香港,近年回 台希望各有舒適的個人空間。
-A方案
丈夫職業是設計隧道工程,對空間 機能整潔要求極高,擁有許多畫作 收藏,公區以簡潔的隧道畫廊做區 隔,作為空間特色。
-B方案
已可動性的電視作為區隔,提供彈 性調整,展現穿透的效果。



厚話日常 長靑學苑2.0
2021-2022
葉盈汝、羅浩文
基地地址:台中市長靑服務中心 指導老師:劉易鑫老師 空間類別:公共空間
議題討論
在現今退休後為了維持老年身心理 健康,而參與許多各類型活動與機 構,社區服務、長靑學苑等。
以往老年服務多注重在活動內容, 雖然提供各類型活動與課程,但活 動空間則淪空殼,並且空間多老舊 ,或附加於社區空間中。
-但這些活動或是空間是否眞的有幫 助到老年人?
-而在未來超高齡社會中,這些老年 服務空間又會是怎麼樣幫助老年人 的?



人們從學習到老轉變為工作到老的型態改變,了解到老年者真正需要的 是社會歸屬感與人交流,這顯示未來老年生活不再單單以活動達到交流 為主,而是以維持持續性交流、互動為目的
讓空間不再是空殼,而是促進老年人交流的催化物,在空間中提供不同的學 習、休閒的交流新型態,幫助老年人滿足社會歸屬、自我追求的心理需求, 並模糊「退休」對年齡與心理的分隔,達到銜接老年生活。
過去以一對多的方式在 空間中獨立交流
單一行為共同使用同個空 間,不一定產生交流
我們嘗試以團體與團體、新賞不 同面向等不同形式在空間中
打開空間添加與其他人之 交流的契機
原廊道與空間分隔明確 將教室打開,空間延伸 空間與空間可視化
以學習為中心主要空間, 周圍延伸出休閒空間
在路途中與主空間旁,創造 長者交流機會
利用介面擴張使用,延伸 使用時間 ,間接滲入日常
長青公園
1.戶外舞台
原有交誼廳 整合無障礙動線
以共享廚房為中心 在分享餐點、聚會 活動時向外延伸
3.樹下據點
2.戶外植栽景觀教室
分析廚房空間行為
H:90 H:75
課程結束後共享廚房可延 續作為分享、聚會的地方 高檯面
動線成回字,方便輪 椅者在外圍使用

服務空間
將大廳作為視覺中心, 動線成往兩側機能
變動性介面使展示與
廊道做結合

內外產生重疊區 原有教室 主學習空間設置
原有教室
教學空間
講座空間
交誼區
主學習空間 設置
向廊道延伸利用 廊道空間
教學空間
將空間向廊道 延伸引導動線
手作教室
上課時弱介面呈現 觀看與被觀看關係
無課程時延伸周 圍交誼空間
講座空間
律動空間
原演藝廳
透過變動簾子,依機能變 換攝影教學與討論室
退縮座位區擴充前 方加入無障礙動線
縮短表演者與觀眾距離,並添 加之間變動性,產生多變化

擴充前方使用移動 式舞台給予多變性
由主空間延 伸廊道空間
由集體授課區向周 圍應用學習區延伸
無課程時流通 動線連接 原有教室 主學習空間設置

12:00
午餐吃什麼呢 ? 13:00


14:00
15:00

16:00
TEACH REST
真的嗎 ? 覺得
顏色可以在
剛才美術課我 畫了...


勤美之森 CMP MIDTOWN
二期公設 2023-2024
靑埕建築整合設計團隊
基地地址:403台中市西區英才路 空間類別:住宅公設空間 -
整體空間選用表現不同自然紋理的 材質,帶出勤美樸實人文變化。

1.大廳 2.第二門廳 2 1







台中信義房屋
辦公空間
靑埕建築整合設計團隊
基地地址:408台中市西區英才路530號
空間面積 :約 783.9/層,共3層
空間類別:商業空間
-
空間為信義房屋台中總部,提供顧 客洽談與簽約空間,並提供公司同 仁職業訓練。
基地大樓本身形狀極具特色,空間
以「孕育」的曲線分化出一個個的聚 落空間,提供人的需求。

1.入口意象 2.社區展示區 2 1




萬金杜鵑2024-花開落籽
裝置藝術展
靑埕建築整合設計團隊
基地地址:瑪鋉運動公園、萬里觀光公園 、大安公園
空間類別:裝置藝術

2024以「花開落籽」為題,整合5大 活動主題、攜手13組創作者與花農 ,由職人帶路深入認識萬里金山的 歷史與人文風貌。
我們以溫室中灌溉的水管材做結構 ,鋪排成在萬金延綿的山巒的魚路 古道,沿著山形向上延伸。









吉博力台灣旗艦中心開幕
開幕記者會
靑埕建築整合設計團隊
基地地址:114內湖區新湖三路288號 空間類別: 開幕活動、展場設計
花了好幾個月籌劃開幕記者會,如 何做出符合品牌精神及意義的記者 會?沒辦過記者會的我們,會議討 論N次、預演好幾次,終於記者會 大成功。
夥伴們大家想流程、找廠商、擬定 新聞稿、電子邀請稿、嘉賓名單、 邀請媒體、文宣品印刷、製作禮品 、切水管洗水管、水管包裝封膜(失 敗又嘗試)、製作巧克力翻模、剪輯 影片(重複修改調整)、安裝產品( 也在前一天晚上才完成)、產品解說 文宣製作、桌椅佈置、餐桌插花、 音響場控、現場接待嘉賓、現場介 紹、各個環節…等等。



















