Portfolio2024-PoyuanSu

Page 1


P O RTFOL I O

2022-2023 selected works

Bachelor of Architectural Design

National Cheng Kung University (NCKU)

Tainan, Taiwan

2000/03/25 (+886) 961560325

stu0181800@gmail.com

Mandarin (native)

English (fluent)

Rhinoceros

Adobe Photoshop

Adobe Illustrator

Adobe Indesign

Adobe Premiere

Autocad

Twinmotion

Vray

2021

International workshop “ThE FLOTING PAVILION”

NCKU competition “REDEFINE THE ICONIC”

2022

NCKU competition “METAVERSE”

Work Exchange in green island , Taiwan

2023

INTERN IN JORGE VIDAL BARCELONA

INTERN IN 翁廷楷建築事務所

URBAN SCALE

- URBAN PLAAAZA!

- Fantastic Architect and Where to Find Them

- THE IZUITION // Hotel x Office x Brand

- 哩賀!! Hello // Community Center

COMPETITION

- Rebuild the iconic

- Hign and Low

- Mutiverse+1

OTHER WORKS

- Model making

- Painting

URBAN SCALE URBAN SCALE URBAN SCALE

SCALE URBAN SCALE URBAN SCALE URBAN

URBAN PLAAAZA!

MASTER PLAN-RENOVATION

Project :

Location :

Year :

Highlight : Urban design Tainan, Taiwan ROC 2024

URBAN PLAZA

Introduction

The first part focuses on analyzing Tainan's urban spatial structure and identifying current issues, with the goal of stabilizing the city's structure through post-railway underground planning. Historically, Tainan's urban fabric has evolved from the cross streets formed during the Qing Dynasty by Minquan Road and Xinmei Street, to the city improvement plans during the Japanese colonial period, which included the greenway defining the city's boundaries. Today, the city has expanded beyond the greenway due to the silting of the Taijiang Inner Sea in the west and changes in transportation. Tainan is now encircled by two rings formed by the greenway and waterways. Our primary focus is on the area affected by the railway underground project, aiming to reshape urban spatial nodes to stabilize and make the city structure more flexible. This will help Tainan sustain its vitality and adapt to economic changes while maintaining its urban identity.

The second part involves selecting a specific area for spatial transformation based on the overarching plan. Using the logic from Kevin Lynch’s "The Image of the City," we analyze Tainan’s current urban conditions through landmarks, edges, districts, paths, and nodes. Lynch’s framework emphasizes that urban structures are not only formed by streets and road signs but are also influenced by sensory and scalar events. Applying this logic, we understand and address the issues in Tainan's current urban image, notably how the railway creates multiple road junctions and hidden areas within the city. Historical layering and building identification reveal that distinctive and recognizable buildings are often concealed within blocks or lack corresponding public significance. The city improvement during the Japanese era, with its Baroque roundabouts, disrupted the pre-existing urban fabric, leading to areas with mixed temporal characteristics. Traffic issues also stem from that era, with disjointed north-south alleys and unconnected east-west roads.

台南公園

Renovation

One of the selected nodes for this project involves the renovation of the existing cultural and creative center. By preserving the original framework and inserting new volumes inside that respond to urban activities, we aim to connect Cheng Kung University and the historic district. A landmark steel structure will be added on top to reflect the iconic construction style associated with the node. This plaza is envisioned as a place that encapsulates memories from different eras and resists the encroachment of capitalism. The design will ensure that this area becomes a vibrant public space, celebrating Tainan's historical and cultural heritage while fostering contemporary urban life.

Fantastic Architects and Where to Find Them

urban educational space

Project : Location : Area :

:

: educational space Tainan, Taiwan ROC 7000m2

DIVIDE PROGRAM

INSTITUTE INSTITUTE LECTURE HALL LECTURE HALL

LECTURE HALL -Engineering Structures -Engineering Structures -Design

Concept

The spaces required for architectural education are essential to its core process, which involves participation, discussion, and inspiration. I believe the unique usage pattern for our department building is "indirect sharing and participation." Architectural education fundamentally spans all years, reflecting architecture's inherent characteristic. This trait is evident through "critiques, teaching, and exhibitions," which facilitate cross-year discussions. These public activities create a symbiotic space within the department building.

Upon observing the discussion patterns in the department, beyond discussions within the same year, students rarely directly engage in discussions across different years despite their curiosity about other years' projects. More often, cross-year discussions are sparked indirectly—by students passing by other groups working on site models or during critiques or classes. This indirect participation and co-existence within the department building are what I consider the most distinctive and characteristic discussion method. This form of discussion seems different from foreign examples, where tasks are separated for greater order and efficiency. Delving into why we are accustomed to this discussion method, I suspect it may be influenced by our own culture. It parallels Taiwan's ambiguous public nature of streets and alleys. Later, I will introduce how we can integrate our discussion mode with Taiwanese cultural values to redefine a new architectural teaching model most suited to Taiwan.

PUBLIC HAPPEN IN ALLEY!!!

SITE : Zhongzheng Road, Tainan City

At the end of Zhongzheng Road, the Tainan Canal is not far from the west side, while the east side is today's prosperous Hainan commercial district. Since the Japanese colonial period, Zhongzheng Road, which connects the vital transportation hubs of AnpingthenTainan Canal and the train station, has become an economically significant axis. Moreover, with the construction of the Sping, Tainan Art Museum, Lin's Department Store, and Taiwan Literature Museum, the central-western district has become an important tourist destination in Tainan.

Hayashi!
Tang Te-chang Memorial Park
Tainan Canel
TAINAN TRAIN STATION
Confucian Temple Ximen Shopping District
SPING

THE IZUITION

Mix-ues Urban Development

Project : Location :

Area : Year :

Highlight : Hotel, Office, and Brand Base

Tainan, Taiwan ROC

7602m2

2023

Billboard, Ascent Plaza, Cantiliver

Site Plan

To the north is the newly completed community center, while the Tainan Canal is situated not far away to the west. The future Tainan Canal Star Diamond Project will also begin construction in this area. Moreover, the site is located between the "SPRING" built by MVRDV and the main commercial streets of Tainan, Haian Road, and Guohua Street. This means that the site will bring huge commercial benefits and become an important node connecting the crowds of the central and western districts during holidays, making the whole Haian commercial community more vibrant.

Program

The mixed-use development project comprises a hotel and the Taiwan Design Research Institute (TDRI) co-working space. In addition, the metalworking brand "IZUITION" is incorporated into the hotel. The three functions should achieve varying degrees of sharing and public use in this project, redefining the patterns of hotels and work.

" THE SPRING " - MVRDV

Strategy

The goal is to find ways to connect with people. By elevating most commercial functions to the second floor and click the first and second floors with a large ramp and platform, the architecture will no longer hinder pedestrian flow but provide a shortcut with better views, allowing people to slow down on the platform and appreciate Tainan's cultural lifestyle. provide a new relationship between work and life.

Besides, The building can differentiate into three blocks, with the west side consisting of offices and a lecture hall and the east side consisting of a hotel and shops. The three will interact differently during use. For example, the hotel's fitness center and kitchen will also serve the co-working space, and the thirdfloor library space will be open to the public. In addition, I have also built a sky bridge between the community center and this project, which will stimulate discussions and interactions among different users.

Concept

The design concept is to translate the void space generated by metalworking tools such as hammers hitting metal surfaces into the hole under the squeezed volume of the building. The deformations, such as dents, extensions, and stretches, are translated into the void space below the public layer. The funnel-shaped void volume of glass defines the entrance below and gives users a sense of orientation in the dispersed area, preventing them from getting lost. At the same time, it introduces light and creates an attractive spatial atmosphere. The glass structure from the front façade also provides a unique sign for the hotel

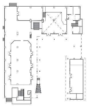
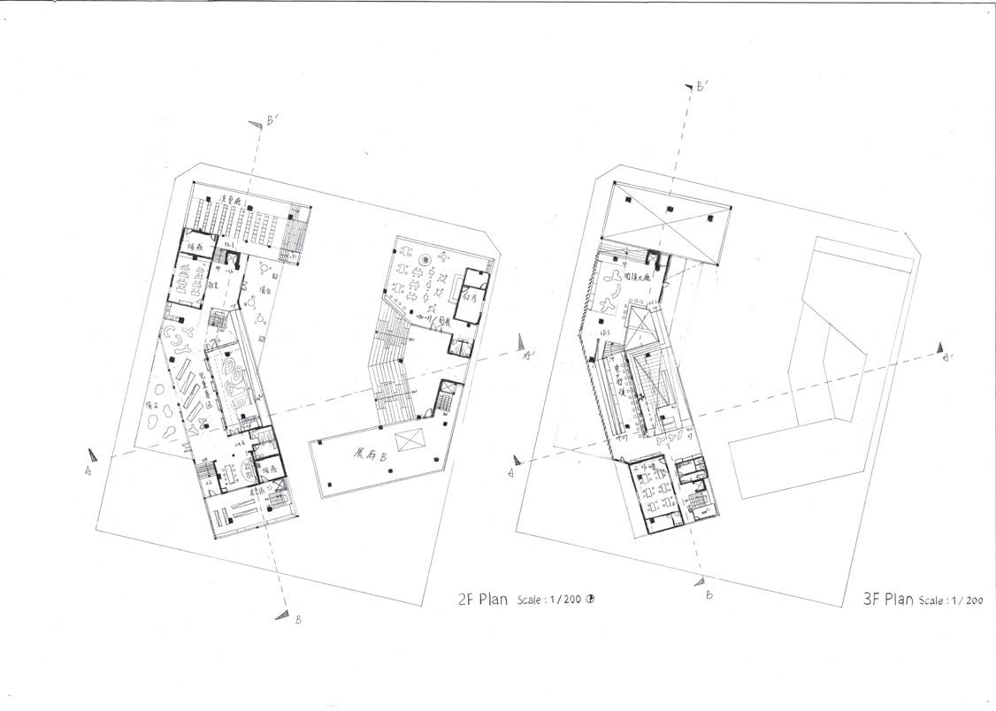
2F / site plan

哩賀!!Hello

Community Center of Six Village

Project :

Location :

Area :

Year :

Highlight : Community Center Tainan, Taiwan ROC 3567m2

2022

Architectural promenade, Slope

THE SPING

HAIAN Rd

Site introduction

As an old and residential block, there is unattractive for the tourist. Although Hainan Road has a considerable flow of people, few people enter the site.

The residents living in the area prefer to gather and chat, and have meals on the road in front of the temple, rather than going to the bustling Hai'an Road. As a result, the Ju Song Temple and Zhengde Hall located next to the site have become the go-to places for the locals to socialize and connect on a daily basis.

Subjective analysis

In the West Central District, where the commercial saturation is high, the signs climb into the view of pedestrain in the middle of the road on narrow roads. The unreasonable outward expansion of the characters obstructs the visual depth, and the vertical climbing enlarges the advertisements on the facades. The atmosphere given by the signs is an object presenting the chaos of commercial activities in the vertical dimension. However, the actual commercial activities and daily

Zhongzheng Rd
Ju Song Temple
Zhengde Hall

life crowds are hidden in the deep recesses of the arcade. The many motorcycles and stalls parked there often obstruct the experiential flow. The forward things create a visible paradox of having only a shell. Only by walking in the arcade can you see and experience the genuinely happening activities.

Besiedes, Tourists in commercial areas such as Guohua Street, Shennong Street, Hainan Road, etc., are continuously pushed forward by the crowd. There is no apparent comfortable and public rest space to stop and enjoy snacks.

Guohua St

Concept

The design concept will overturn the existing façade impression of Tainan, bringing simple daily life to the street face and reversing the commercial activities inward to face the city with a more introverted expression. With more accessible flow and flexible public spaces, people can participate and continue their experiences in the city. A series of experiential flows are created. Allowing the scenes of residents' lives to be displayed in front of their eyes when they shuttle through the arcade.

Using the staggered space of the long ramp to reproduce various activities that residents engage in front of their homes or stores and using the characteristic of the ramp crossing layers to create a different atmosphere from just walking in the arcade, more daily dialogues are created to promote the residents' sense of identity and belonging to the community center. At the same time, the staggered space allows users of different ages to create more exchanges.

Concept model
Mock-up model

ROOF GARDEN

CLASS CLASS GALLERY

PARKING PARKING

Program

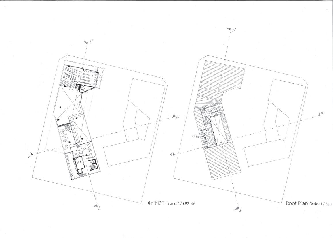
The building is centered around a two-story high indoor children's play area connecting split-level layers. The first to fourth floors are the lobby, children's reading and play area, library, and café. Through the slow rise of the ramp, various resident activities appear one after another. Not only experiencing the vitality on the horizon way but in vertical view.

A-A' section
B-B' section

Program

The architectural mass at the corner of Jusong Temple and Zhengde Hall will be scaled back, not only to preserve the impression of the former temple square, but also to provide shaded seating areas. People will come from Hai'an Road, pass through the passage between the buildings to reach The Spring, and experience various activities on either side of the square.

In summary, this community activity center will not only serve as a passage, but also as an urban square that connects the lives of local residents and tourists.

Workshop
Roof garden
Digital learning
Bathroom
Children Library
Office

URBAN HILL !

Mix-ues Urban Development

Project : Location : Area : Year :

Highlight : Social housing, Commercial, Tainan, Taiwan ROC 21002 2023

URBAN HILL

Site Plan

To the north is Tainan Park, to the east is Tainan Train Station and the Railway Cultural and Creative Park, and to the south is the newly constructed City Architecture Department building. Future development includes a transfer station and light rail, signaling the future prosperity of the area around Tainan Station and its role in transforming into a commercial hub for an international city.

Concept

While meeting future commercial intensity and inclusivity, we differentiate the open spaces of social housing. Using vertical integration, we blend urban life with social housing, allowing everyone to share this area and Tainan Park. We redesign the connection between the train station and Tainan Park with an outdoor pedestrian street along Fu Bei Street, maintaining commercial vibrancy and ensuring social housing entrances. Gradual green rooftops offer better views and extend walkability, while the Fulong Temple archway marks the northern commercial entrance.

22-30y Unmarried Young Adults

COMPETITION COMPETITION COMPETITION

COMPETITION COMPETITION COMPETITION COMPETITION COMPETITION COMPETITION

Rebuild the iconic

2021 NCKU Architecture Competition

葉宗帆、龔柏宇、朱傳捷、張琇雯、徐畹寍、黃子晉、蘇柏元

Taipei 101 has been an impressive icon of Taiwan, but with fewer visitors due to COVID-19, we propose transforming it into an urban park that combines Taiwan culture and multiple ecosystems.

By repurposing unoccupied office spaces into a lab promoting native plants and opening up the building to visitors, Taipei 101 becomes a true public building. Removing some floors ensures sufficient sunlight in the center area for plant growth and provides multiple viewing points from reserved interior space. We also organize exhibition areas that simulate the building's verticality and create vertical gardens using the reduced floor area, with a greenhouse lab to promote native plant rebirth. This transformation will create an interactive and educational experience for visitors while promoting sustainability in the concrete jungle of Taipei.

High and Low

2023 NCKU Architecture Competition

曹詠行 蘇柏元 廖子瑄 馮晨雅 張誠浩 張邑楊 董人瑛

Cheng Kung University used to be a private and closed-off space with high walls between the campus and city. However, the university has transformed into an open park-like space for citizens to enjoy. The parking lot beside Daxue Rd. is an obstacle for pedestrians, and the aim is to make this entrance more visitor-friendly and enhance the visual experience.

The Guangfu court has three different levels, and the design goal is to create a passageway and terrace for the audience while keeping sunlight for the parking space. The solution is to use steel branches that grow like trees, with nets placed between them to create a surface. The nets allow sunlight to pass through and create a light and shadow effect on the ground. The loadbearing nets allow people from different levels to have visual interaction, and the terrace blocks balls from falling out.

The design is full of curves and ups and downs, creating an interesting experience for those passing by. Overall, the design enhances the entrance's visual appeal and improves accessibility, making it a more welcoming space for visitors.

基地配置圖 SITE PLAN scale=1:2000

步道延伸成為階梯座位的一部分。底下的空間也富有豐富的凹凸彎曲變化。

The path expands into part of the seats. The space below is also full of interesting changes of shape.

利用旋轉梯可直達高場,或是踏上網子,以較緩的速度到達高處。

The High Court can be reached directly by the cockle stair; or, people can take a little more time to walk through the net.

觀眾席設置在兩個球場之間,可以同時觀看不同球場所發生的事,逐漸上 升的觀眾席也可以達到阻擋球的功能。

爆炸圖 EXPLODED VIEW

People sitting on the terrace can see what’s going on from both courts. Moreover, the gradually rising terrace is able to block the balls from falling out. 將球場周圍的「樹」移入縫隙之間,利用似樹一般由下往上發散的鋼構枝條建立觀眾席與步道的骨架,骨架間再置入網子或是更細緻的鋼條,模擬陽光 透過樹葉間空隙撒在樹蔭的地面上所形成的亮點。 we take the element of trees from the surrounding, placing it in the gap, using steel

設計說明Diagram

剖面A-A' SECTION A-A' scale=1:150

剖面B-B' SECTION B-B' scale=1:20

假設 地球在承受N次災後的環境下,建築設計變得開始將防禦以及隔絕作為 空間品質的前提下所衍生的建築型式。

策略 1 將火力發電廠作為實驗對象,試著發想其內部如果作為全台灣的指定 避難所,該如何調和人體尺度以及基礎發電設施的龐大單位,同時讓 社區的公共空間能夠與避難的前提下共存。

策略 2 - 將都市內的交通運輸系統設置在發電廠核心,使其在面對 周遭圍繞的有機量體能夠扮演能量以及資源的補給中心。

MUTIVERSE+1

2023 NCKU Architecture Competition

黃子佑 蘇柏元 董人瑛 鍾采樺 卓奕伶 蘇洛

In the face of rapid social change and countless disasters, architecture's role has shifted towards defensive design. Our proposal focuses on power generation equipment in the city, using building mass to protect the power generation core and reduce energy consumption and transmission time. Spatial composition aims for integration with old buildings while retaining dialogue between new and existing facilities.

The final model expresses energy distribution in the refuge city and collages composite materials, hinting at retaining architectural autonomy amidst roughness. The film presentation uses sound and montage to describe human suffering and growth amidst self-inflicted consequences. In summary, architecture plays a crucial role in creating a defensive nature in the city, and our proposal offers a strategic approach to achieving this goal.

In the era of rapid social change, the earth has experienced countless disasters and man-made disasters, from wars to nuclear waste leakage, smog to the post-COVID19 era, The role of architecture in society may no longer be about aesthetics, publicity and privacy, but more about defensive architectural design, especially in the future of human life.

Based on this premise, we hope to come up with a concept of how architecture can act as a community refuge, creating a defensive nature in the city.

Strategically, we focus on the power generation equipment located in the city, which serves as the energy starting point for the operation of the city and distributes important energy to provide daily needs, and between these, requires a physical line to connect. However, these physical mediators are the product of futility until the catastrophe of the apocalypse. Therefore, if it is possible to develop in the construction proposal of the power plant, using the building mass to protect the power generation core can greatly shorten the energy consumption and reduce the time cost of transmission.

However, in the face of the scale of national infrastructure that is completely different from the scale of urban life, the use of architectural space and form has become the most important part of this proposal. We have experienced the exploration and experimentation of different materials, and finally developed a series of design drawings and rich interior space imagination.

In terms of spatial composition, it is hoped to achieve a state

OTHER WORKS OTHER WORKS OTHER WORKS

WORKS WORKS WORKS OTHER OTHER OTHER

MODEL MAKING

Houston fin art museum - Steven holl

PAINTING

Water color

Charcoal pencil Sketch

Turn static files into dynamic content formats.

Create a flipbook
Issuu converts static files into: digital portfolios, online yearbooks, online catalogs, digital photo albums and more. Sign up and create your flipbook.