PORTFOLIO -ARHITECTURE /INTERIORS

Page 1

SELECTED WORKS

POR TFO LIO

FATHIMA SHERIN

PROFILE

FATHIMA SHERIN

ARCHITECTURAL/INTERIOR DESIGNER

Architectural Technologist brings 10 years of experience in planning commercial and residential buildings were developing, analyzing, and testing architectural solutions is a core specialty. Incorporating a creative approach and open to enduring challenges within each project and understanding each project as its own kind. Unique expertise in space planning, façade designing, and interior design. Basic knowledge of Ontario Part 9 building code as an added asset.

WORK EXPERIENCE:

INTERIOR DESIGNER KEA-VAUGHAN

ARCHITECTURAL TECHNOLOGIST Al-HIRA ENGINEERING,DUBAI

2021-2022

ARCHITECTURAL TECHNOLOGIST XY DEISGNS, KERALA, INDIA

EDUCATION: SOFTWARE

Bachelor of technology in Civil Engineering

2017-2020 2015-2017

2007-2011

CERTIFICATIONS:

AUDODESK CERTIFICATION -2012

3DS MAX CERTIFICATION -2012

V-RAY CERTIFICATION -2012 AUTOCAD

SKILLS

SKETCHUP PRO

ADOBE PHOTOSHOP REVIT

ADOBE ILLUSTRATOR LUMION ADOBE INDESIGN MICROSOFT OFFICE

Architecture Portfolio 3
01
HYATH VILLA
CONTENTS 02 PRERANA RESIDENCE 03 FINISHED PROJECTS

HYATH VILLA

HYATH VILLA , is a 3900 SQFT residencial project,which i had a chance to work on the layouts for floor plans and and interior designs and detiling work leading to a great project outcome.The home resides on a hilly area , in kerala located in India. The home focuses on bringing in the natural light and green outside the house naturaly into the house which was able to achive by the well thought planning and taking into account the natuaral conditions on the site.

Architecture Portfolio 4

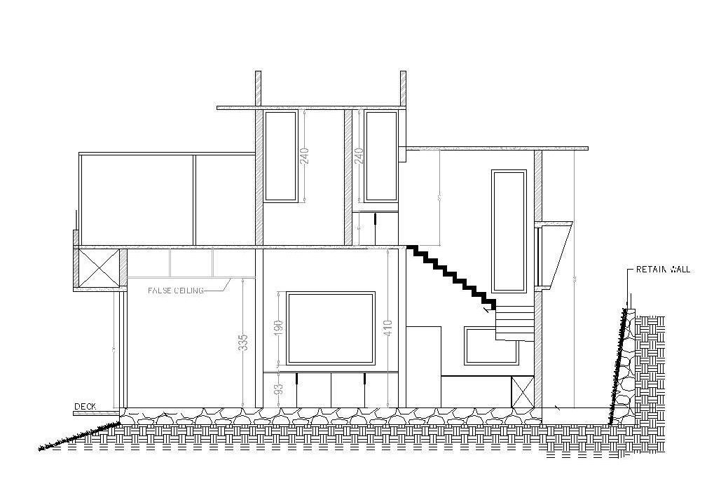
PLAN AND SECTIONS SECTIONS

Architecture Portfolio 5
PHOTOSHOP-AUTOCAD

BEDROOM

INTERIOR DETAILING

SKETCHUP - LUMION

Architecture Portfolio 6

BEDROOM DETAILING

Architecture Portfolio 7

BEDROOM DETAILING

Architecture Portfolio 8

BEDROOM DETAILING

Architecture Portfolio 9

MASTER BED KITCHEN

Architecture Portfolio 10

PREPANA RESIDENCE

Architecture Portfolio 11
PRERANA RESIDENCE is a small family home, planned and excuted solely as per client requirements and strict to budget. A 2300sqft single floor home , where interiors and exteriors where done with a mix of tradiitonal and modern design elementsw

PLAN AND SECTIONS

Architecture Portfolio 12 AUTOCAD-ADOBEPHOTOSHOP

KIDS BEDROOM DESIGN

Architecture Portfolio 13
SKETCHUP-ADOBEPHOTOSHOP

KIDS BEDROOM DETAILING

Architecture Portfolio 14

BED DETAILING

Architecture Portfolio 15

INTERIORS

Architecture Portfolio 16

FINISHED PROJECTS

FEW IKEA LIVING ROOM PROJECTS

Architecture Portfolio 17

MASTER BEDROOM INTERIORS FOR THE PROJECT HYATH VILLA

Architecture Portfolio 18

MASTER BEDROOM INTERIORS FOR THE PROJECT HYATH VILLA MASTER BEDROOM INTERIORS FOR THE PROJECT HYATH VILLA

Architecture Portfolio 19

A DIGITAL ILLUSTRATION

THANK YOU FOR YOUR TIME. INCLUDED A VERY FEW OF MY FAVOURITE PROJECTS

Architecture Portfolio 20

Turn static files into dynamic content formats.

Create a flipbook
Issuu converts static files into: digital portfolios, online yearbooks, online catalogs, digital photo albums and more. Sign up and create your flipbook.