CASA DE LA FAMILIA MORENO

Page 1


S A D

A N Á L I S I S F O R M A L A N Á L I S I S F U N C I O N A L

N Á L I S I S E S P A C I A L

N Á L I S I S C O N S T R T U C T I V O A N Á L I S I S T E C N O L Ó G I C O A N Á L I S I S C O N T E N I D O D E V I S U A L I Z A C I Ó N R E F E R E N C I

A N Á L I S I S E S T R U C T U R A L

R E N D E R S R E C O R R I D O V I R T U A L

R E C O R R I D O I N T E R A C T I V O

C O N C L U S I O N E S

I N T R O D U C C I Ó N

El arquitecto Manuel Ángel Ganoza es una figura emblemática de la arquitectura peruana, especialmente en la ciudad de Trujillo. Su nombre se destaca por los notables aportes arquitectónicos que lo distinguieron de sus contemporáneos. Su legado no es solo un reflejo de su compromiso con la excelencia, sino también de su devoción por crear obras que trascienden la simplicidad, consolidándose como hitos de gran relevancia. Entre sus creaciones se encuentra la Casa Moreno, una edificación que, desde el primer vistazo, cautiva y enamora.

Este análisis tiene como propósito explorar en profundidad la Casa Moreno, para comprender el legado de Ganoza y la importancia de su visión arquitectónica. A través de esta revisión, se apreciarán los aspectos arquitectónicos de la casa y su contribución a la arquitectura peruana.

M A N U E L Á N G E L

G A N O Z A

Fiel a su estilo modernista, el arquitecto Manuel Angel Ganoza Plaza buscó generar que la vivienda tenga una integración armoniosa con su contexto, motivo por el cual, el concepto de diseño se centró en emplear materiales locales y aplicar colores semejantes a los que encontramos en el Centro Histórico de Trujillo para generar una identidad regional en la vivienda.

CASA DE LA FAMILIA MORENO

SIMETRÍA EN FACHADA

La fachada rectangular es asimétrica en los laterales que presentan elementos geométricos lineales horizontales y un elemento vertical.

Figura 1

Fachada Casa de la Familia Moreno

Nota. Elaboración de grupo

Espinola Vega Mariane a del Carmen
Obeso Puga Anthony M ael
Ramos Robles Kelvin Danner
Álamo Damián Joc ney Oswaldo
Alcántara Huaripata Rosa Angelica
Custodio Ve asquez Leonardo Dante

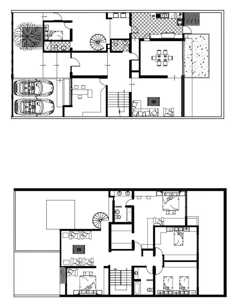
SIMETRÍA EN PLANTA

Las plantas de la vivienda no muestra simetría pero expresan amplios espacios en los ambientes más importantes.

Figura 2

Primera Planta

Nota. Elaboración grupal

Figura 3

Segunda Planta

Nota Elaboración grupal

Espinola Vega Mariane a del Carmen
Obeso Puga Anthony M ael
Ramos Robles Kelvin Danner
Álamo Damián Joc ney Oswaldo Alcántara Huaripata Rosa Angelica Custodio Ve asquez Leonardo Dante

FORMA VOLUMÉTRICA

Forma volumétrica con proceso de dsustracción y finalizada por cinco volúmenes que se unen por contacto.

4

Isometría volumétrica Casa de la Familia Moreno

SUSTRACCIÓN

COMPOSICIÓN

SÓLIDO

Nota Elaboración propia

Espinola Vega Mariane a del Carmen
Obeso Puga Anthony M ael
Ramos Robles Kelvin Danner
Álamo Damián Joc ney Oswaldo Alcántara Huaripata Rosa Angelica Custodio Ve asquez Leonardo Dante
Figura
CASA DE LA FAMILIA MORENO

ANÁLISIS FUNCIONAL

Primera Planta

Nota Elaboración propia

Figura 5

. Elaboración propia

Espinola Vega Mariane
Carmen
Obeso Puga Anthony M ael
Ramos Robles Kelvin Danner
Álamo Damián Joc ney Oswaldo Alcántara Huaripata Rosa Angelica Custodio Ve asquez Leonardo Dante
Nota

Nota. Elaboración propia

Espinola Vega Mariane a del Carmen
Obeso Puga Anthony M ael
Ramos Robles Kelvin Danner
Álamo Damián Joc ney Oswaldo
Alcántara Huaripata Rosa Angelica
Custodio Ve asquez Leonardo Dante
Figura 7
Corte A-A’

Nota Elaboración propia

TECTURA
Espinola Vega Mariane a del Carmen
Obeso Puga Anthony M ael
Ramos Robles Kelvin Danner
Álamo Damián Joc ney Oswaldo
Alcántara Huaripata Rosa Angelica
Custodio Ve asquez Leonardo Dante
Figura 8
Corte B-B’
CASA DE LA FAMILIA MORENO

A - A ′

Espinola Vega Mariane a del Carmen
Obeso Puga Anthony M ael
Ramos Robles Kelvin Danner
Álamo Damián Joc ney Oswaldo
Alcántara Huaripata Rosa Angelica
Custodio Ve asquez Leonardo Dante
Figura 9
Corte
Figura 10
Corte A - A ′
Nota Elaboración propia
Nota. Elaboración propia
Nota Elaboración propia
Espinola Vega Mariane a del Carmen
Obeso Puga Anthony M ael
Ramos Robles Kelvin Danner
Álamo Damián Joc ney Oswaldo
Alcántara Huaripata Rosa Angelica
Custodio Ve asquez Leonardo Dante
Figura 12 Corte B - B ′
Figura 11
Render corte B - B ′
Nota Elaboración propia

Nota. Elaboración propia

Figura 13
Primera Planta

Figura 15

Isometría de Plantas

Nota. Elaboración propia

Circulación Vertical ESCALERAS

Circulación Horizontal PASILLOS

Espinola Vega Mariane a del Carmen
Obeso Puga Anthony M ael
Ramos Robles Kelvin Danner
Álamo Damián Joc ney Oswaldo
Alcántara Huaripata Rosa Angelica
Custodio Ve asquez Leonardo Dante
CASA DE LA FAMILIA MORENO

SISTEMAS CONSTRUCTIVOS

SISTEMA CONSTRUCTIVO

La arquitectura de Ganoza se caracteriza por un sistema constructivo de concreto armado, lo que permitía soportar grande cargas permitiendo grandes superficies acristaladas y fachadas ligeras.

Figura 16

Sistema constructivo de concreto armado

Nota. Extraído de Cemento Inka. (2018) https://www cementosinka com pe/blog/ventajas-ydesventajas-del-concreto-armado/

Figura 17

Grandes ventanales de la Casa de la Familia Moreno

Figura 18

Espacio interior de la Casa de la Familia Moreno.

Figura 19

Espacio interior de la Casa de la Familia Moreno.

Figura 20

Fachada de la Casa de la Familia Moreno.

Nota Elaboración Propia

Espinola Vega Mariane a del Carmen Obeso Puga Anthony M ael Ramos Robles Kelvin Danner
Álamo Damián Joc ney Oswaldo Alcántara Huaripata Rosa Angelica Custodio Ve asquez Leonardo Dante
Nota. Elaboración Propia
Nota. Elaboración Propia
Nota Elaboración Propia

SISTEMAS CONSTRUCTIVOS

EXCAVACIÓN Y APLANADO

CIMIENTOS

Todo el terreno es excavado y aplanado para la instalación de cimientos.

CORRIDOS

Armado de parrilla con Varilla corrugada. Vaciado de concreto para las zapatas corridas de toda la edificación

Figura 21

Sistema constructivo de la Casa de la Familia Moreno.

Colocar las varillas de acero para las columnas en las fundaciones puntuales Verter el concreto en los encofrados para formar las columnas de concreto armado.

VACIADO DE VIGAS

09 LOZA ALIGERADA (SEGUNDO PISO)

05 LEVANTAMIENTO DE MUROS

Colocar las varillas de acero para las vigas que conectarán las columnas.

Verter el concreto en los encofrados para formar las vigas de concreto armado

Construcción de la losa aligerada, según el diseño de plano

06 LOZA ALIGERADA

08 VACIADO DE VIGAS (SEGUNDO PISO)

Construir los muros de mampostería que funcionarán como muros portantes sobre las zapatas corridas. Construcción de los muros de relleno o muros no portantes

Construcción de la losa aligerada, según el diseño de plano

Construir los muros de mampostería que funcionarán como muros portantes sobre las zapatas corridas Construcción de los muros de relleno o muros no portantes

07 VACIADO DE COLUMNAS Y VIGAS

Colocar las varillas de acero para las columnas y vigas

Verter el concreto en los encofrados para formar las columnas de concreto armado y posteriormente las vigas..

Álamo Damián Joc ney Oswaldo Alcántara Huaripata Rosa Angelica Custodio Ve asquez Leonardo Dante
Nota. Mosaico de elaboración propia
CASA DE LA FAMILIA MORENO

SISTEMA ESTRUCTURAL

SISTEMA ESTRUCTURAL

Construido mediante un sistema de muros portantes y pilares unidos al suelo mediante zapatas aisaladas.

Construido mediante un sistema de albañilería confinada se usó ladrillo de cabeza para los muros portantes y ladrillo de soga para tabiquería

Figura 22

Corte transversal frontal

Nota Elaboración Propia

Figura 24

Corte longitudinal general

Cimentaciones corridas conectadas mediante sobrecimientos al muro junto a columnas y vigas de amarre que le otorgan protección sísmica.

Nota. Elaboración Propia

LEYENDA:

Figura 23

Corte transversal trasero

Muros portantes de 25 cm generalmente en primera planta mediante amarre de cabeza.

Muros de 15 cm para tabiques generalmente en segunda planta.

Nota. Elaboración Propia

Espinola Vega Mariane a del Carmen
Obeso Puga Anthony M ael Ramos Robles Kelvin Danner
Álamo Damián Joc ney Oswaldo
Alcántara Huaripata Rosa Angelica Custodio Ve asquez Leonardo Dante
CASA DE LA FAMILIA MORENO

VIENTOS Y ASOLEAMIENTO

La vivienda se encuentra ubicada en la ciudad de Trujillo (Latitud: -8.11599, y Longitud: -79.02998) presentando una inclinación de 40° hacia el noreste, lo cual, le permite tener el ingreso de vientos provenientes del suroeste con velocidades entre los 5 y 10 km/h.

Figura 25

Carta Solar

Figura 26

Rosa de Vientos

Figura 27

Diagrama de asoleamiento y ventilación

Nota. Extraido de Posición del Sol, de SunEarthTools. (s.f.).

https://www.sunearthtools.com/dp/tools/po s sun php

Nota Adaptado de 3D Sun-Path, de Andrew’s Blog. (s f ) https://andrewmarsh com/apps/staging/sunpath3d html

LEYENDA:

Nota Extraido de Datos climáticos y meteorológicos históricos simulados para Trujillo, de Meteoblue (s f )

https://www.meteoblue.com/es/tiempo/historyclimate/climate modelled/trujillo per%c3%ba 3691175

RECORRIDO SOLAR

Álamo Damián Joc ney Oswaldo Alcántara Huaripata Rosa Angelica Custodio Ve asquez Leonardo Dante

R E N D E R S

DESDE TU CELULAR

R E C O R R I D O

I N T E R A C T I V O

DESDE TU CELULAR

CONCLUSIONES

La obra de Manuel Ángel Ganoza se erige como un claro ejemplo de una arquitectura que no solo responde al contexto físico y cultural, sino que también honra el pasado mientras mira hacia el futuro. Su enfoque en diseñar viviendas que armonizan con su entorno, como la Casa Moreno, demuestra su meticuloso análisis del clima, su uso de vegetación autóctona y la selección de materiales locales, como ladrillos y madera, que no solo reducen costos y el impacto ambiental, sino que también logran una integración visual con el paisaje urbano.

Su capacidad para respetar y preservar los elementos históricos de Trujillo, siguiendo los colores y texturas del centro histórico, refleja su sensibilidad hacia la identidad de la ciudad. La consideración de la escala y proporción de las edificaciones circundantes muestra su compromiso con la cohesión urbana. Además, la flexibilidad en el diseño permite que sus obras evolucionen con las necesidades del tiempo, consolidando a Ganoza como un arquitecto cuyo legado trasciende lo temporal y lo funcional, proyectando una visión que equilibra lo tradicional con lo contemporáneo.

REFERENCIAS BIBLIOGRÁFICAS

Turn static files into dynamic content formats.

Create a flipbook
Issuu converts static files into: digital portfolios, online yearbooks, online catalogs, digital photo albums and more. Sign up and create your flipbook.
CASA DE LA FAMILIA MORENO by MARIANELA DEL CARMEN ESPINOLA VEGA - Issuu