Skip to main content

很建筑设计研究室

Page 1

很建筑设计研究室
buildbest@163.com | 很建筑设计研究室 .
BuildBest studio

Hello !

很好,很潮,很有趣,很......我们是很建筑,擅长建筑、景观、室内、装置等多方向设计,同时也 致力于品牌策划与内容创意。

很建筑设计研究室设立于上海,同时兼顾台湾分部。业务包含设计、深化外,并含有施工团队,关 注在实践中研究设计的可行性。

立志

「专筑于室,注与己事
BuildBest . buildbest@163.com | 很建筑设计研究室 .

TEAM PROFILE

团队介绍

我们凝聚曾在大型设计院、明星事务所实践 的优秀设计师。团队皆为90后,热爱设计,喜欢

新潮,同时着重于不同类型、尺度的项目跨界融 合,以多维的项目经验迸发新的灵感,以实现不 同类型的独特需求,与设计伴随成长。

We gather outstanding designers who have practiced in large design institutes and star firms. The team are all post-90s, love design, love fashion, and focus on the cross-border integration of different types and scales of projects, with multi-dimensional project experience to spark new inspiration, in order to achieve different types of unique needs, and grow with design.

洪伟修

Matthew 郑清文 Stuart

台籍设计师,高雄大学建筑硕士毕业后曾于竹工凡木 设计研究室、CROX事务所任职,负责了酒店、民宿、 旗舰店、公寓、茶室等项目的建筑及室内设计,参与 主持了白石洲城中村改造、科勒北京体验馆的设计工 作,具有丰富的全过程管理经验。

从业室内建筑设计6年, 硕士毕业后曾于上海甲级国有设 计院、明星事务所合作,擅长酒店、餐厅、办公、售楼处 住宅、机场贵宾等设计工作,参与主持了海宁酒店室内、 tapatapa西餐厅、上生新所鱼餐厅等项目设计工作。具有 优良的美学设计特质,坚持以“生活与艺术共生”为愿景。

Base上海的室内建筑师,5年设计生涯参与过文旅策 划、公共空间、乡村振兴、民宿、新零售、住宅等 不同业态、体量、类型的项目,通过不同的角色视 角,善于发现日常生活中的闪光点,以此出发创造 出打动人心的空间。

BuildBest . buildbest@163.com | 很建筑设计研究室 .
张雅琦 Nicole

Shop Design

店铺设计篇

buildbest@163.com | 很建筑设计研究室 .
.

项目地址

BuildBest . buildbest@163.com | 很建筑设计研究室 .
Tapa Tapa 西餐厅项目 2023
:上海 项目类型 :餐厅 风格类型 :圣托里尼地中海 项目面积 :350
现场照片
BuildBest . buildbest@163.com | 很建筑设计研究室 . 「上生·新所Pescador项目
:上海 项目类型 :西餐厅
:332㎡ 现场照片
2023
项目地址
项目面积

项目地址 : 上海

项目类型 : 餐厅

风格类型 : 美式混搭

BuildBest . buildbest@163.com | 很建筑设计研究室 . 上海桃花屋小酒馆LCM店项目 2023
20 ㎡
项目面积 : 3

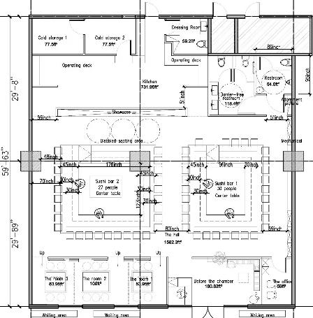
美国加州日料 2023」

项目地址 : 美国加州

项目类型 : 日本料理

风格类型 : 日式

设计面积 : 380㎡

BuildBest . buildbest@163.com | 很建筑设计研究室 .

衡山路汉堡店项目 2023」

项目地址 : 上海市徐汇区

项目类型 : 汉堡店

风格类型 : 现代风

设计面积 : 55㎡

BuildBest . buildbest@163.com | 很建筑设计研究室 .

VFLY雅迪概念店 2022」

项目地址 : 概念方案

项目类型 : 电动车概念店

风格类型 : 现代风

设计面积 : 80㎡

BuildBest . buildbest@163.com | 很建筑设计研究室 .

衡山路茶室项目 2023」

项目地址 : 上海市徐汇区

项目类型 : 茶室

风格类型 : 侘寂风

设计面积 : 250㎡

BuildBest . buildbest@163.com | 很建筑设计研究室 .

同济大学校友馆咖啡馆改造 2020」

项目地址 :上海市杨浦区 项目类型 :校方自营咖啡兼 校友服务馆 风格类型 :复古

项目面积 :70

BuildBest . buildbest@163.com | 很建筑设计研究室 . 「

Human Settlement Design

buildbest@163.com | 很建筑设计研究室 .
人居设计篇 .

项目地址 :深圳市,白石洲

项目类型 :长租公寓片区改造

风格类型 :现代

项目面积 :2150㎡

buildbest@163.com | 「深圳白石洲长租公寓改造
+
:建筑+室内
景观 2019
BuildBest . buildbest@163.com | 很建筑设计研究室 . 「研海晖居 2023」
:海南省海口市 项目类型 :民宿、住宅 风格类型 :现代 项目面积 :174㎡地块/235㎡室内计容
项目地址
BuildBest . buildbest@163.com | 很建筑设计研究室 . 「青岛祥源2021」
风格类型:现代 项目面积:60㎡
项目地址:山东青岛 项目类型:住宅

项目地址:山东青岛 项目类型:住宅 风格类型:现代轻奢 项目面积:70

BuildBest . buildbest@163.com | 很建筑设计研究室 . 「青岛祥源2021」
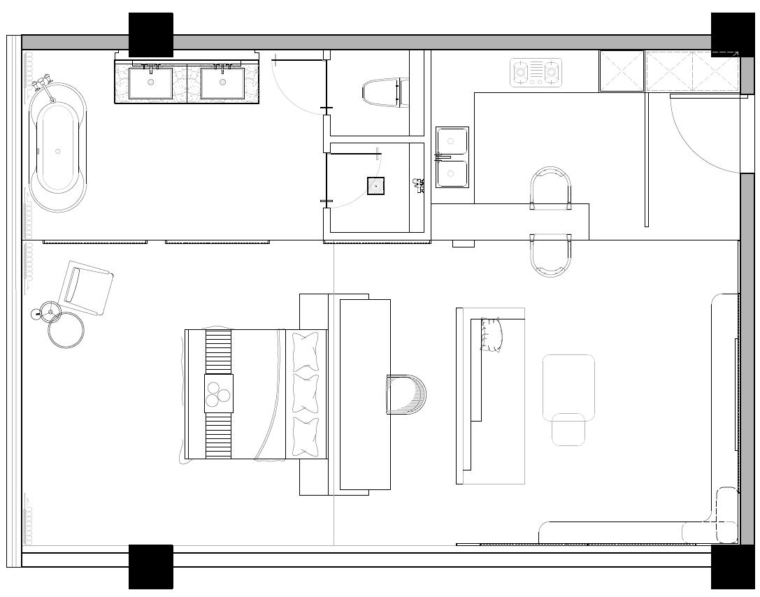
BuildBest . buildbest@163.com | 很建筑设计研究室 . 「宅 2021」 项目地址:江西鹰潭市 项目类型:住宅 风格类型:现代 项目面积:101㎡

项目地址:上海浦东

项目类型:住宅 风格类型:现代

项目面积:49㎡

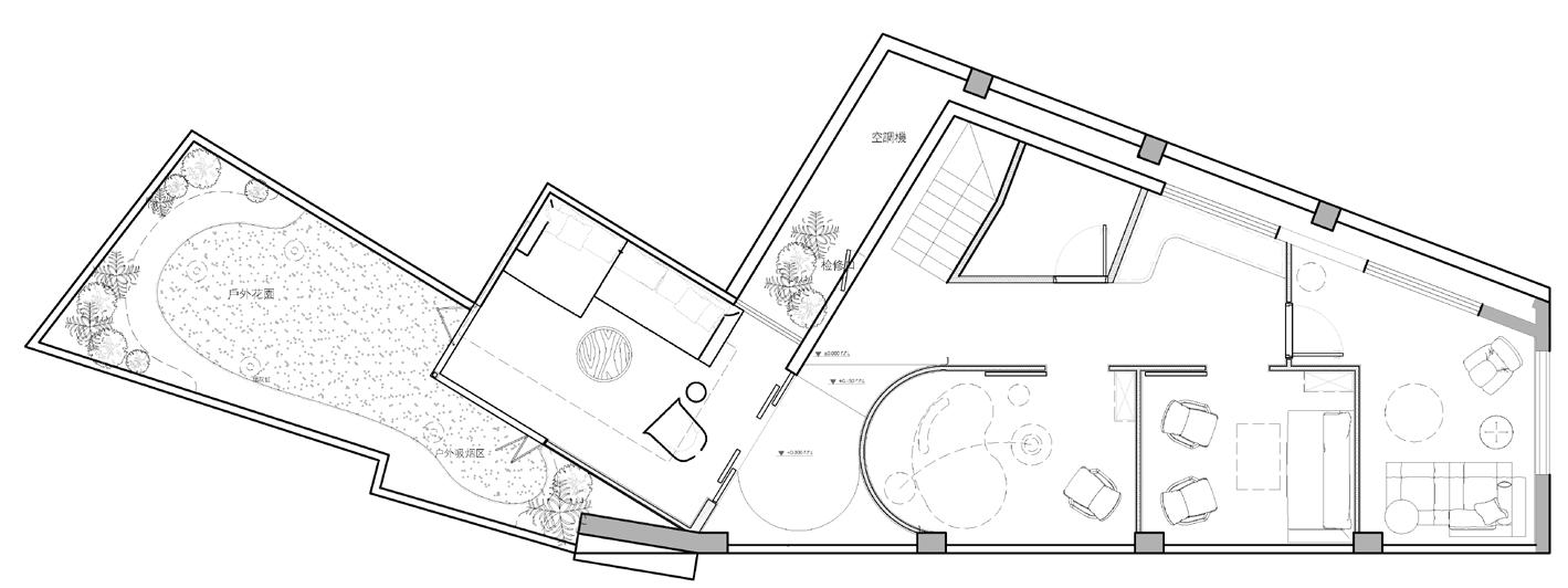
BuildBest . buildbest@163.com | 很建筑设计研究室 . 「
空吟蓝居 2023

项目地址:上海松江 项目类型:住宅 风格类型:现代 项目面积:80㎡

BuildBest . buildbest@163.com | 很建筑设计研究室 . 「
木上结出的家 2021」

项目地址:上海宝山 项目类型:住宅改工作室 风格类型:现代 项目面积:95㎡

BuildBest . buildbest@163.com | 很建筑设计研究室 . 「
幻の工作室 2021」

Exhibitionhall Design

展厅设计篇

buildbest@163.com | 很建筑设计研究室 .
.

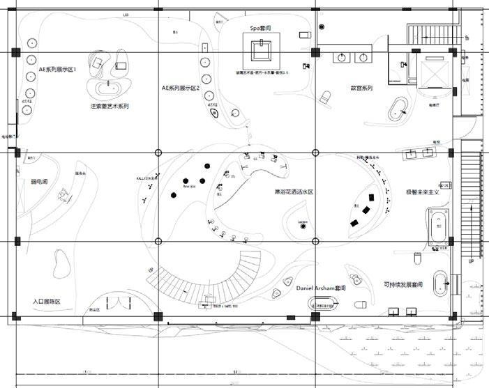
科勒北京体验馆朝阳店 Kohler Experience Cente 2023」

项目地址:北京市朝阳区 项目类型:企业展览馆

风格类型:现代

项目面积:1,750

BuildBest . buildbest@163.com | 很建筑设计研究室 . 「

科勒北京体验馆798店 Kohler Experience Cente 2024

项目地址:北京市798园区

项目类型:企业展览馆

风格类型:现代

项目面积:1,600㎡

BuildBest . buildbest@163.com | 很建筑设计研究室 . 「

项目地址:上海,静安区

项目类型:企业展厅

风格类型:现代

项目面积:800

BuildBest . buildbest@163.com | 很建筑设计研究室 . 「
老板电器上海旗舰店 2018

项目地址:山东省济宁市

风格类型:现代

BuildBest . buildbest@163.com | 很建筑设计研究室 . 「泽信济宁销售中心
2020
项目类型:销售中心
MOMA
All现场照片 ㎡
设计面积:900

项目地址:江苏省淮安市

项目类型:销售中心

风格类型:现代风格

设计面积:450㎡

BuildBest . 「
泽信淮安清江浦区销售中心 2020
BuildBest . buildbest@163.com | 很建筑设计研究室 . 「泽信济宁样板房项目
2020 103户型现场照片 125户型现场照片 103户型效果图 125户型效果图

Public Building

Design

公建设计篇 .

buildbest@163.com | 很建筑设计研究室 .

项目地址:陕西汉中

项目类型:乡村振兴(竞赛点位第一)

风格类型:现代

项目面积:54,000

buildbest@163.com | 很建筑设计研究室 . 「陕西汉中留侯镇闸口村公共空间文旅开发概念设计
2022」

项目地址:陕西汉中 项目类型:乡村振兴(竞赛入围) 风格类型:现代

项目面积:31,920

BuildBest . buildbest@163.com | 很建筑设计研究室 . 「
江口镇河西村红军军部旧址红色研学基地概念设计 2022」

浙江海宁海谷酒店 建筑+室内 2023」

项目地址:浙江省,海宁市 项目类型:酒店民宿

风格类型:民国风 项目面积:4,500㎡

BuildBest . buildbest@163.com | 很建筑设计研究室 . 「
BuildBest . buildbest@163.com | 很建筑设计研究室 .
客房合院房型
「浙江海宁海谷酒店 建筑+室内 2024」
客房标间房型 客房LOFT房型

项目地址:上海市静安区 项目类型:办公空间

风格类型:现代 项目面积:2,000㎡

BuildBest . buildbest@163.com | 很建筑设计研究室 . 「恒通集团办公室 2022」

Payoneer 派安盈上海办公室 2021

现场照片

项目地址:上海市黄浦区 项目类型:办公空间 风格类型:现代 项目面积:750㎡

BuildBest . buildbest@163.com | 很建筑设计研究室 . 「

1#楼概念设计方案 2022

项目地址:上海市 宝山区 项目类型:办公 风格类型:现代

项目面积:1,600

BuildBest . buildbest@163.com | 很建筑设计研究室 . 「福然德运管研发中心

2022」

项目地址:上海 项目类型:学校

风格类型:古典

项目面积:5,000

BuildBest . buildbest@163.com | 很建筑设计研究室 . 「上海外国语大学贤达经济人文学院崇明新校区项目

Scopeofservice

服务范围 .

BuildBest . buildbest@163.com | 很建筑设计研究室 .

室内设计

建筑语绘融入室内空间,物质技术手段 和建筑设计原理,创造功能合理、满足

人们物质和精神生活需要的室内环境.

建筑设计

依循空间脉络,满足特定建筑物的建 造目进行设计,包括环境角色、建筑 功能、视觉感受等具体内容,转换企

业资产,增值品牌价值.

空间规划

如果您有一间店,想好了做什么,但对 消费者的使用行为不清楚,我们擅长这

些。如果您对周遭环境是否合适开店, 我们能透过调查分析替您提出解决方案 和建议...

运营方向

如果您想开一间店,但是不知道做什 么,我们透过提供公司主要的产品和 服务的系统进行设计、运行、改进建 议的管理工作.

BuildBest . buildbest@163.com | 很建筑设计研究室 .
「服务范围」

• 评估场地机会、调研、竞品分析

• 沟通设计需求

• 场地空间规划

• 设计启动费用支付(50%)

场地评估

产品设计

• 设计深化启动费用支付(40%)

• 施工图纸深化、项目施工材料小样准备

• 施工方交底、甲方确认施工材料

• 道具厂家图纸深化、制作

• 甲方需求分析与空间概念沟通

• 确定场地空间规划

产品迭代

产品施工

• 空间建模与沟通

• 空间效果图与沟通

• 确定设计方案

• 项目监造费用支付(10%)

• 施工周期管理、施工方管理

Project completion

• 场地施工配合

• 三方阶段验收(拆除阶段、水 电阶段、木工瓦工油工阶段、 安装阶段道具进场、完工验收

BuildBest . buildbest@163.com | 很建筑设计研究室 . 「项目设计流程及收费阶段

Turn static files into dynamic content formats.

Create a flipbook
很建筑设计研究室 by 洪偉修 - Issuu