Architecture designⅡ
Port
NTUT Master of Architecture and Urban Design 2024 spring - summer
01
P01
02
House T P15

Contact info.
email: phone: instagram : ricky900119@gmail.com 0978183802 www53248
設計是什麼?
對我來說設計就是創造人美好的生活樣貌,這就是我做設計 的初衷,從未改變。每個作品我都用心看待,明白設計對我們的重要性, 因為我相信當有一天我也可以用的設計讓這個世界幸福起來。
Skills.
Education.
室內與空間設計科 國立嘉義高級工業職業學校 2016-2019
建築與景觀學系 南華大學 2019-2023
建築與都市設計研究所 國立台北科技大學 2023-在學中
Certificate.
印前製程-PC (乙級) 印前製程-圖文組版PC (丙級)
視覺傳達設計(丙級)
● 排版/美軒
Adobe Illustrator
Adobe Photoshop
Adobe InDesign
● 製圖
AutoCAD
Revit
● 建模/渲染
SketchUP
Lumion
Escape
● 剪輯
Adobe After Effects
Adobe Premiere Pro

都市森林:光與水之休憩站

身體與光與水的關係總是非常的緊密,而都市當中身體又與空間的會 產生很多化學變化;本次設計以自身觀察基地周遭的感知作為出發點, 將感知到的「迷走」融入空間體驗,並將泡湯的過程與迷走的過程相 互交融,產生再建築裡發生迷走的過程。
基地分析
使用者分析
在使用者分析上我觀察了基地周遭的 活動,並將他們活動的時間記錄下來作 為設計參考。能看到基地周遭最活躍的 時間是落在下午與傍晚之間,並且以附 近運動的跑者居多,但因基地周遭有許 多學校與補教業,所以也有需多的學生 會經過。
個人基地觀察-迷走
透過在基地周遭的觀察,發現附近因高樓與道路交錯複雜,讓人產生分不清方向的迷走之感覺;所 以我將製造出這些感覺的道路系統(分為直線、T字路口、十字路口、死路)與創造出活動空間的 方法(分為四邊不開放、街角開放、直通開放空間)等的要素整理,並將這些要素轉化進設計中。




日照分析
在日照分析上,鄰房有七層樓高,而在隔四公尺寬的道路旁,事異動十三層樓高的住宅,所 以此地的日照較為不足,比較是以頂光居多,側面光次之,並且靠近新生南路二段的部分是 日照較為充足的地方。

E.四邊不開放



G.直通開放空間

設計說明
設計概念


透過個人基地觀察發展出這次的設計概念以「迷走」作為出發點,以垂直空間的串聯,模糊室內外 的空間界線,作為體驗空間中迷走的感知。
垂直空間發展

空間泡泡圖

量體發展

Step1
設計策略

外部樓梯部分採全室外,部分採半室外, 創造出室內外交界模糊的迷走感。
建築物開口許多都採斜角或低窗的 形式,使用間接光,也兼顧隱私。
基地兩側退縮,留出供行人使用的人行道 與提供鄰房間的空間。















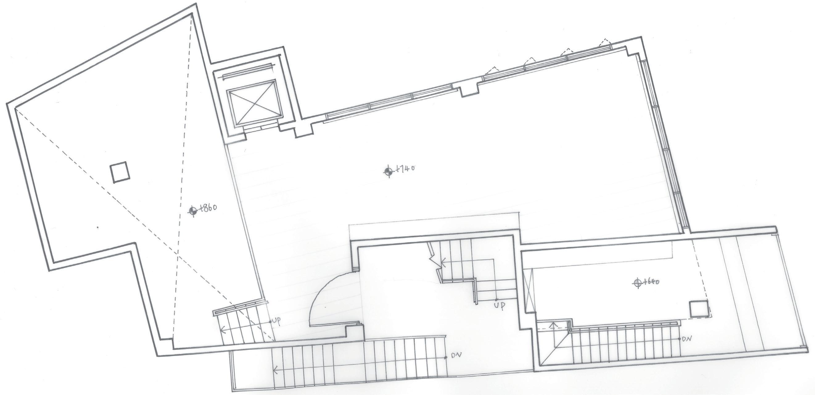
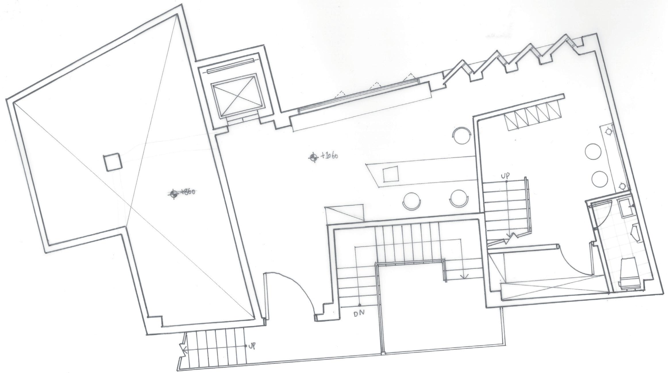
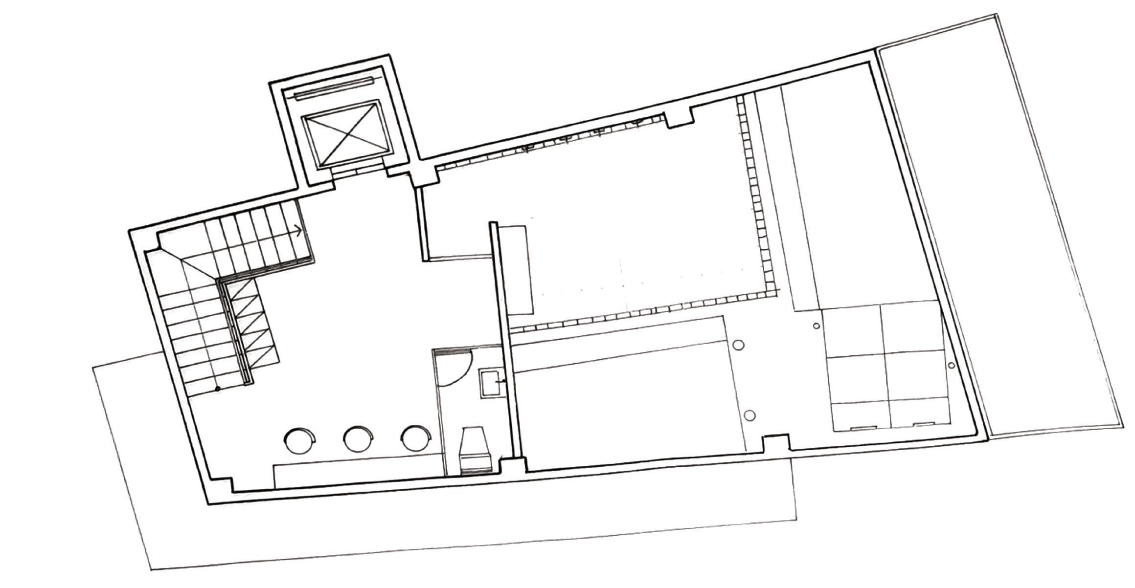
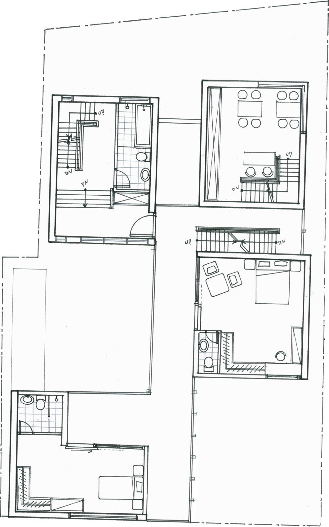
河畔日常 House T 設計理念
居住空間一直以來都是所有人一定會且最容易體驗的空間;本次設計 以自身觀察基地周遭的現況作為出發點,將對於住宅的想像-燈塔, 作為設計的概念,發展設計;創造出屬於家中六人的空間,緊密卻有 各自的空間。

住吉の長屋
設計: 安藤忠雄
座落位置: 大阪府大阪市住吉區
敷地面積: 57.28m 2
建築面積: 33.7m2
自然光分析
總樓地板面積: 64.72m 2
規模: 地上2層(總高5.8m)
主體構造: 鋼筋混凝土牆體結構

立面與平面構成關係
此處天井約莫上午10點~下午3點間 會有直射光進入,其餘時間為折射光。
整體建築尺寸體現了日本傳統文化,以「間」(約為1.818m)為單位計算,例如建 築物總體尺寸長寬比為8:2間的尺寸進行設計。








Villa dall'Ava
Architects: Rem Koolhaa(OMA)
Location: Paris,France
視覺
A.建築與基地邊緣平行-視覺的延伸感
Area: 1350m 2
Program: Residential

B.建築內部空間的視覺-擴大/壓縮

立面材料






基地分析
潮汐
從潮汐資料上來觀察,基地上在夏季 的時候漲潮潮位會達到最高的2m, 在一般時候也有來到近1.7m左右的 高度;而在低潮潮 大約落在-1上下 之高度。
最高高潮位
平均高潮位
平均低潮位
最低低潮位
基地周造遭歷史建物
基地周造的歷史建物紋理眾多,從荷治時期的紅毛城、清領時期的海關馬頭、日治時期 的宿舍、民國時期的宿舍與在淡水河口處的尚未完工的淡江大橋,所以在如此眾多的歷 史紋理交織下產生了這獨特的基地感受。





從自然觀察環境中出發,發現基地周遭地勢多變,像是將建築包裹在地形內,並創造出不同高低的空間對話。




對於家的概念,我提出「燈塔」的想像,就像是出外的游子可以從遠方看到為他直引道路的燈塔,他可以依循著
進入 (顧客)
設計說明
空間泡泡圖
販售空間
手作教室
文創販售空間
儲藏室
員工辦公室
立面材質計畫
公共
公共
販售空間
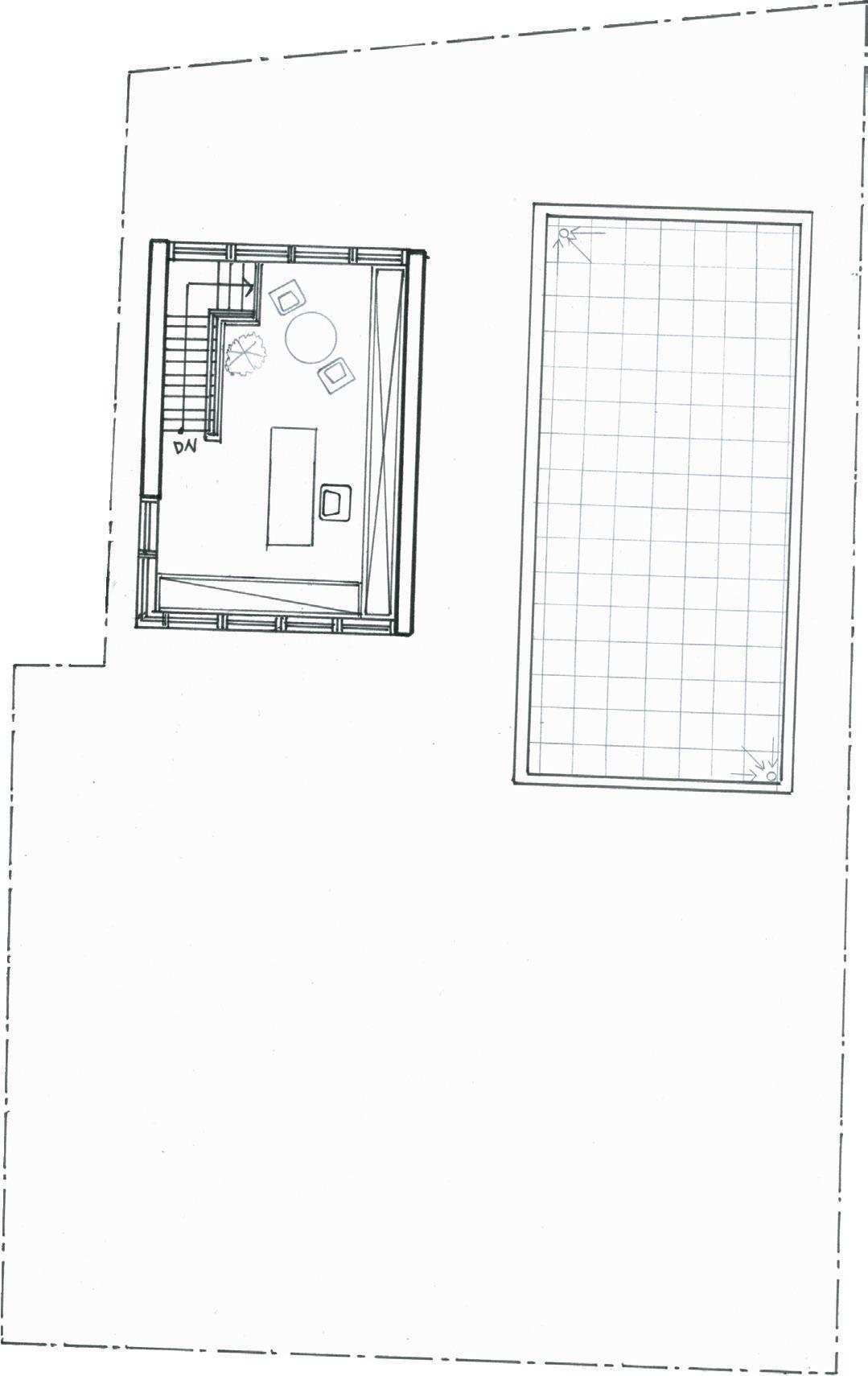
樓梯 簷廊
起居室
書房
餐廳 玄關
臥室(弟)
臥室(姐)
玄關 簷廊
臥室(爸爸、媽媽)
浴廁
書房
材料

金屬板

玻璃

混凝土
工作陽台
廚房/餐廳
臥室(爺爺、奶奶)
起居室
儲藏室
品酒室/親水空間
感受
亮麗
輕巧
通透
穩重
臥室
私人

紅磚
溫暖
量體發展
主要道路
商業空間
父母空間
長輩空間 小孩空間
淡水河

因基地的西側為一棵高12公尺的榕樹, 東側為高3公尺的遺址,所以量體安排 上將最高父母空間放置在靠西側,將較 低的長輩空間放置東側
垂直空間落在基地中段,希 望整合動線與此,也創造家 人間會相遇的空間
因為周遭人流較多,所以將家庭中較私 人的起居室放地下,並在靠近淡水河的 空間設計成會隨著漲潮淹沒或露出的空 間















斐頁
因生活而設計,因設計而美好
Architecture design
Portfolio
2024 spring - summer