P O R T F O L I O
A R Q U I T E C T U R A
Í N D I C E
1
C U R R Í C U L U M V I T A E
2
3 T R A B A J O S I N D E P E N D I E N T E S E S T U D I O C I N C O
4 E S T U D I O A B S
5 P R O Y E C T O S D E D I S E Ñ O
C U R R Í C U L U M
V I T A E
É F A N O

Experiencia Laboral
ROSBACO SERVICIOS
2024 - Actualidad
Arquitecto proyectista y Jefe de obra. Confección de planos para documentación ejecutiva, diseño proyectual, instalaciones, diseño de volumetria en modelado 3d y renders fotorealistas. Dirección de obra, trato con proveedores, organización y seguimiento de obra.
ESTUDIO ABS
2023 - Marzo 2024
Arquitecto Proyectista Elaboración de planos municipales instalaciones y esquemas estructurales, diseño de volumetrías y seguimiento de renders intercamb o con asesores elaboración de replanteos de albañilería plano de terminaciones de estructura y planos de yesería
ESTUDIO GAMBOTTO
Julio-Septiembre 2023
Supervisión de obra de viviendas en barrios privados y confección de documentación proyectual
TRABAJOS INDEPENDIENTES
2021 - Actualidad
Proyectos en los que realicé confección de cómputo y presupuesto,diseño de proyecto y planos técnicos, dirección de obra, trato con cliente
ESTUDIO CINCO
2016 - 2020
Confección de planos técnicos para presentación municipal, visita de obra como sobrestante asistiendo en la dirección y control de la misma, realización de renders y folletos comerciales documentación de obras.
Estudios
ARQUITECTO
2016 - 2023
UNSAM - Universidad Nacional de San Martín
Arquitectura
MAESTRO MAYOR DE OBRAS
2010 - 2015
ECEA - Escuela Cristiana Evangélica Argentina
Secundario Técnico
Programas
Idiomas
- Avanzado
T R A B A J O S
I N D E P E N D I E N T E S
PROYECTO DE REMODELACIÓN DE PATIO INTERNO
VIVIENDA TIPO DUPLEX
DEVOTO, CABA


1 - S I T U A C I Ó N E X I S T E N T E 2 - D E M O L I C I Ó N 3 - C O M I E N Z O D E O B R A




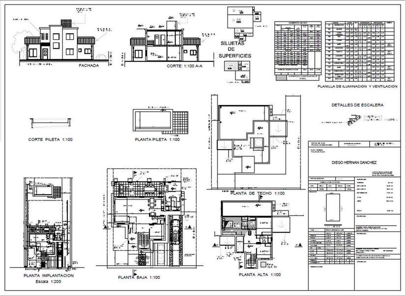
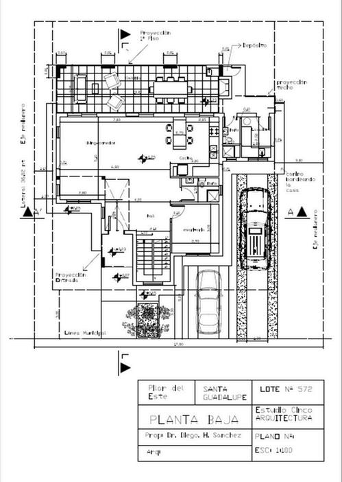
PLANOS ARQUITECTÓNICOS E INSTALACIONES ELÉCTRICAS Y SANITARIAS
R E S U L T A D O S


































