

PORTAFOLIO

EXPRESIÓN ARQUITECTÓNICA VIRTUAL
MUÑOZ MENDOZA MARGARITA MARIANELA
De la Universidad
Cesar Vallejo, de la facultad de arquitectura, en la sede de Trujillo, La Libertad.
Estudiante Habilidades
En Software
Autocad

Archicad 26
Sketchup


932 603 389
mmunozme7@ucvvirtual.edu.pe
Identificación: 70480592
Trujillo - La Libertad - Perú



INDICE
01 02 03 Planos distribución
01.1. Primer Nivel
01.2. Segundo Nivel
01.3. Cubierta
Cortes Elevaciones
02.1. Corte Longitudinal
02.2. Corte Transversal
03.1. Elevación Norte
03.2. Elevación Sur
03.3. Elevación Este
03.4. Elevación Oeste
04 Vistas 3D
02.1. Vista Isométrica
02.2. Vista Aérea 05 Referencias bibliográficas

01 Planos distribución


01.1. Primer Nivel
01 Planos distribución
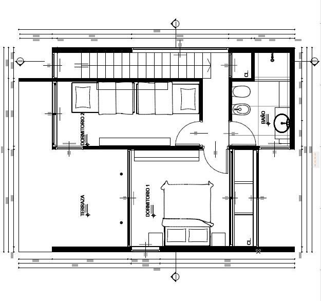
01.2. Segundo Nivel



01 Planos distribución
01.3. Cubierta






02.1. Corte Longitudinal


02.2. Corte Transversal

Elevaciones
03.1. Elevación Norte



03 Elevaciones



03.2. Elevación Sur
03 Elevaciones



03.3. Elevación Este
Elevaciones



03.4. Elevación Oeste
Vistas 3D
02.1. Vista Isométrica



Vistas 3D


02.2. Vista Aérea
Referencias bibliográficas
Alex DM Estudio. (2022, 27 de diciembre). ¡Domina las cámaras en ArchiCAD! Render BIM [Video]. YouTube. https://www.youtube.com/watch?v=yKOBSF1qPKM

Alex DM Estudio. (2022, 28 de octubre). Asoleamiento en ArchiCAD: Hace un estudio de sombras en tus proyectos! [Video]. YouTube. CTRL T. (2022, 24 de julio). BIM en ArchiCAD #60 | Alzados II [Video]. YouTube. https://www.youtube.com/watch?v=_22QKRyWEK4 Lalocura Studio. (2020, 18 de julio). Efecto luces LED en render | ArchiCAD 23 [Video]. YouTube.
CTRL T. (2022, 24 de julio). BIM en ArchiCAD #60 | Alzados II [Video]. YouTube. https://www.youtube.com/watch?v=_22QKRyWEK4
https://www.youtube.com/watch?v=88yxEF_y0G0
