作品集

Page 1

-室內作品徐畯霖 XU·JUN·LIN Gmail:htj5980161@gmail.com +886 906679317

作品重點渲染 A霸台

B座位區

C走道

A B C

商業空間職人複合式設計 2024/02/28

作品名稱 園野茶境

以這次職人複合式空間結合打造出 茶的藝術 空間迴響 學習空間

A 種植 B 日式 C 襯托

樹枝 - 木頭

樹葉 - 茶葉 地板 - 石頭

道 - 寧靜.茶道

設計說明 / Design Notes 靈感 / inspiration 空間意象 spatial imagery 空間需求 / space requirements

A 迴廊 G 彈性座位區 C 製茶區 製茶 品茶 種茶 曬茶 研磨 交流

茶道文化體驗 / Tea ceremony cultural experience

這次設計空間包含了茶道的借飲茶 文化,叙八味人生:境、和、藝、

韵、品、禮、道、修”營造出一處 具有飲茶文化特色空間

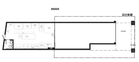
平面圖 / floor plan

A”

製茶空間 交流空間 閒置停留空間

一樓空間圖S:1/150

天花燈具圖 ceiling lamps plan

二樓空間圖S:1/150

一樓區域

A 迴廊

B 接待區

C 製茶區

D 彈性座位區

E 開放包廂座位區

F 培育茶葉室

二樓區域

G 彈性座位區

H 開放包廂座位區

預約手座課程區

J 磨具區

K 戶外座位區

動態分析 Dynamic Analysis

依照空間的動線劃分出 動態區 靜態區 員工區域等 三 項分區色彩

動態區

靜態區

一樓動線分析

預約區域 員工專區

二樓動線分析

從一樓可以看到二樓高挑空間設計 讓空間變大氣 之餘 視覺也會隨著旁邊的帷幕造型風屏所停留 讓

空間有滯留迴盪在長廊中

二樓空間 / Second floor space

二樓劃分三個區域做設計 因為需要手做區 加工製 作茶葉區域還有位子規劃等等的以中間橫切來規 劃這三項區域

二樓劃分三個區域做設計 因為需要手做區 加工製 作茶葉區域還有位子規劃等等的以中間橫切來規 劃這三項區域

材質色彩計畫 / Material Color Plan

B-B”

交流 閒置 文
-
- 學習 講課
二樓天花燈具圖S:1/150
教學手作空間 戶外空間
A-A”
天花板挑高設計 High ceiling design E 開放包廂座位區 I 預約首座課程區
一樓空間 / First floor space
B”
員工區
B
客人動線

作品重點渲染

A製茶空間

B迴廊

C1F座位區

D 2F座位區

A C B D

社會住宅設計 2023/11/13

作品名稱 日日漫居

10 12Y
B書房
A B C
作品重點渲染 A客廳
C主臥

商業空間麵包店設計 2023/11/03

作品名稱 莎士比亞烘培訪

設計 目標

空間 規劃 配 色 設 計 的 元 素 故

解放傳統結帳區域 增加空間放大之於 也不

會有客人跟店員的乾鄧眼的情況發生

前言

黑色大理石

J組 室3C 1101443078 徐畯霖

想表示當初老闆年少時 當流氓的意境生活 打打殺殺 淡淡的白色表示內心的善良

白色砌磚牆

想表示他高中讀餐飲科時 遇到了他影響一生的事情 (麵包)從那開始放下了打打殺殺的生活 努力學習 做麵包

橘色瓦片裝飾牆

慢慢的胸有成竹 得到了很好的榮譽 一個個瓦片代表

結 帳 規 劃 消費者只要在入口處持智慧手機開啟入專屬QRCode完成掃碼即透過人 機綁定的方式,快速入店消費。(參考 7-ELEVEN的X-STORE 7)

著很多個麵包競賽獎項和麵包作品與在道路上幫助他 的貴人 才有今天的麵包店成就 A-A”

莎士比亞創作多元且貼近生活,因此多元且貼近生活將會是烘焙坊所產 品開發的重要理念,烘焙坊中的每一項產品將帶給消費者宛如欣賞與品 味經典文學與戲劇的綜合五感體驗。「文學」為心理精神上的食糧,而 「麵包」為真實生理之食糧,貫穿生理與心理精神之烘焙產品將為本店 之產品創作精神

空 間 行 為 圖 解 說 動 線 規 劃 主要長方形的平面圖上 以小空間人多時會擁擠 所以這次設計做個回字 形的動線設計 左右都可以走的區間 疏通人多帶來的擁擠

中心麵包霸台

燈 光 設 計 重點燈光照明 包廂吊燈照明 座 位 設 計 ㄇ字形包廂座位 面外道座位區 C-C” 展示掛畫區 作品區 冰櫃展示區 自助咖啡霸台 回收區 自助結帳區 麵包櫃區 出入門口 面咖啡外景檯面 外走道 店面門口設計

作品重點渲染 A外看內視角

B座位區

C麵包台

A B C
徐畯霖 XU·JUN·LIN Gmail:htj5980161@gmail.com +886 906679317

Turn static files into dynamic content formats.

Create a flipbook
Issuu converts static files into: digital portfolios, online yearbooks, online catalogs, digital photo albums and more. Sign up and create your flipbook.