Portfolio

Page 1

WORK COLLECTION 19-23 設計作品集 Chung Yuan Christian University Interior Design Department Academic Professional Special Event Portfolio 林 ⾕昕 LIN, KU-HSIN 2023.5.23

基本資料

出⽣於 1997年 7 ⽉ 5 ⽇ 新⽵市

現居 台北市

教育程度

2020年1⽉畢業於中原⼤學

室內設計學系

軟體技能

Autocad

Sketch up

Vray

Lumion 11

Illustrator

Photoshop

Keynote

Power point

Excel

就職履歷

2018.7-2018.8

ONF 光之間 實習助理

2019.7-2019.10

光合空間 實習助理

2019.11-2023.3

⼤型室內設計 設計專案

專業證照及相關證照

室內設計⼄級技術⼠

勞⼯⼀般衛⽣安全教育訓練

Resume

2018

Uinn⼠林青年旅館改造 Partner: 張詠喆

2019

畢業設計-變境城事 Partner: 余彥霖

歷年作品

2019-2020

⼤陸建設- 10F琢⽩實品屋現場⼯程 (助理)

2021-2022

華固建設- 北投華固翡儷標準層地下室及屋凸層公設⼯程

2022

皇翔建設- ⼟城芊樾樣品屋

2022

⼤陸建設- 新店鐫畫⼤廳裝修⼯程

2022-2023

宏璟建設-帝璟苑實品屋

2023

私宅-天⺟林公館

歷年作品
2023.5.23
Academic Professional
Content 2019-2020 ⼤陸建設- 10F琢⽩實品屋現場⼯程 (助理) 2021-2022 華固建設- 北投華固翡儷標準層地下室及屋凸層公設⼯程 2022 皇翔建設- ⼟城芊翠樣品屋 2022 ⼤陸建設- 新店鐫畫⼤廳裝修⼯程 2022-2023 宏璟建設-帝璟苑實品屋 2023 私宅-天⺟林公館 2019 畢業設計-變境城事 Partner: 余彥霖 2018 Uinn⼠林青年旅館改造 Partner: 張詠喆 Academic Professional 歷年作品 歷年作品 01 07 27 33 39 45 51 57 LANGIN Youth Hostel URBAN UB H 變 境 城 事

室內設計始於使⽤及五感感受與環境 的整合,視覺更是最為直接感受且同 樣交互影響著後續其他感官

Interior design is worked on mixing our sensory and environment. In these five senses, vision was most directly and interacting to other senses.

In this portfolio concept is based on Chinese word ”⾒“, which meaning vision in , from different word like”境“, ”視“&“觀” to make the composition.

以表達⼈的視線及位置在各種空間環 境下的感受應被納入考量設計之中

According to this concept, meaning that any visual feeling or object even materials must be included in the design .

概念以中⽂字“⾒”為出發 拆分其⾃各樣⽂字如:境、視、觀 分布在排版之中
2023.5.23
作品集概念論述 Statement

Uinn⼠林悠逸旅館改造 聯今鋼鐵青年旅館

Partner: 張詠喆

模組化

Modular Work 替換

Replaceable

座落於⼠林區的基地位置,主要街道在於承德 路四段與中正路的⼈⾞潮,離捷運站以及⼠林 夜市僅東南⽅600公尺,周圍⾼樓阻擋東西向 城市視野,⼈多⾞多的雜塵也是待處理的問 題。

另⼀⽅⾯,提出⼀樣常被作為後場倉儲,冰冷 倉庫的材料角鋼公司“聯今鋼鐵”與悠逸旅館合 作,產⽣⽕花與碰撞,做出⼀具主題性的旅 館。

LANGIN

Youth Hostel

基地位址 Site

台北市⼠林區承德路四段318號

Academic
01
台灣-台北 台北-⼠林區 台北市⼠林區承德路四段318號 承德路四段 通河東街⼆段 中正路 福港街 福港街18巷 ⼤南路 ⼤南路 Site 基地周圍 7層以上⾼層建築 基地位置 視線範圍 基地位址 2023.5.23 SITE

缺2 Site Analysis

Thinking

舊房林立

Thinking

- 視野設定

Diagram 2 Design Thinking

Thinking

Thinking 交通便利

現況

使用方式 - 固定單一

形式轉換 - 置入前場

解1 尺度突破 - 人為使用

解2

缺1

舊房林立 - 視野設定

交通便利 - 易於到達

缺乏綠意 - 共享公園

缺2

- 固定單一

- 置入前場

尺度突破 - 人為使用

- 置入前場

變動性高 - 易於調整 特性 空間延展 - 創造可能 分析1 疊架模式 - 垂直動線 分析2 積極申請產品專利 Patent C 致力新產品開發 New Tech 定義2 120 / 240 界定公私 定義1 3 people

分析2

特性 分析1 分析2 積極申請產品專利 Patent 致力新產品開發 New Tech 模具生成演繹 堆疊形式2 茶色玻璃 缺乏綠意

疊架模式 - 垂直動線

從⼀單⼈床尺⼨做起始發想膠囊模具⼤⼩, 加入衣櫃置物等空間後創造最⼩單位,後續 開始堆疊交錯等發展⼆三四⼈房機囊單位。

2 people 模具生成演繹 60 (closet) 30 (side table) 人體尺度 機能置入 定義模具 堆疊形式1 堆疊形式2 角鋼 中空百葉 茶色玻璃 白橡實木 A-A' B-B' 缺乏綠意 - 共享公園 使用方式 - 固定單一 現況 形式轉換 - 置入前場 解1 尺度突破 - 人為使用 解2

模具生成演繹

缺乏綠意 - 共享公園 缺2
使用方式 - 固定單一 現況 形式轉換 - 置入前場 解1 尺度突破 - 人為使用 解2 Thinking 交通便利 - 易於到達 優1 舊房林立 - 視野設定 缺1 台北市士林區承德路四段318號 變動性高 - 易於調整 空間延展 - 創造可能 分析1 疊架模式 - 垂直動線 積極申請產品專利 Patent 致力新產品開發 New Tech 模具生成演繹 30 (side table) 機能置入 堆疊形式2
缺2 使用方式 現況 形式轉換
解1 尺度突破
Site Analysis 解2
- 人為使用
優1 舊房林立 - 視野設定 缺1 台北市士林區承德路四段318號 空間延展 - 創造可能 疊架模式 - 垂直動線 模具生成演繹 定義模具 堆疊形式2 缺乏綠意 - 共享公園 缺2 現況 解1 尺度突破 - 人為使用 Thinking 交通便利 - 易於到達 優1 舊房林立 - 視野設定 缺1 疊架模式 - 垂直動線
Thinking
分析2
缺乏綠意 - 共享公園
缺乏綠意 - 共享公園
交通便利 - 易於到達 缺1 台北市士林區承德路四段318號
優1
缺2 使用方式
現況
解1 尺度突破
解2
- 易於到達 優1 舊房林立 - 視野設定 缺1 台北市士林區承德路四段318號 Analysis 變動性高 - 易於調整 特性 空間延展 - 創造可能 分析1 疊架模式 - 垂直動線 分析2 New Tech 2 people 模具生成演繹 定義模具 堆疊形式2 缺乏綠意 - 共享公園 缺2 使用方式 - 固定單一 現況 解1 尺度突破 - 人為使用 解2 Thinking 交通便利 - 易於到達 優1 舊房林立 - 視野設定 缺1 空間延展 - 創造可能 分析1 疊架模式 - 垂直動線 模具生成演繹 堆疊形式1 堆疊形式2 使用方式 - 固定單一 現況 形式轉換 - 置入前場 解1
Analysis
- 共享公園
形式轉換
- 人為使用
台北市士林區承德路四段318號
變動性高 - 易於調整 特性 空間延展 - 創造可能 分析1 有數十年之歷史,為典 型的中小企業,是角鋼 產業中的老字號招牌。 積極申請產品專利 Patent 發展製成&客戶端 B to C 致力新產品開發 New Tech Detail 定義2 120 / 240 青年旅宿 區位 膠囊形式 - 界定公私 定義1 60 (closet) 30 (side table) 人體尺度 機能置入 定義模具 堆疊形式1 角鋼 中空百葉 茶色玻璃 白橡實木 A-A' B-B' 缺乏綠意 - 共享公園 使用方式 - 固定單一 現況 形式轉換 - 置入前場 解1 尺度突破 - 人為使用 解2
Analysis
交通便利 - 易於到達 舊房林立 - 視野設定
台北市士林區承德路四段318號
交通便利 - 易於到達 舊房林立 - 視野設定 台北市士林區承德路四段318號 Analysis 變動性高 - 易於調整 特性 空間延展 - 創造可能 分析1 疊架模式 - 垂直動線 分析2 Patent 致力新產品開發 New Tech 量化使用 定義2 3 people 2 types 3 people 3 types 2 people 1 type 模具生成演繹 60 (closet) 30 (side table) 人體尺度 Unit:cm 機能置入 定義模具 堆疊形式1 堆疊形式2 角鋼 中空百葉 茶色玻璃 白橡實木
Analysis
3 people
Analyze A B C D E F G H I Diagram 1 交通便利,易於到達 A 舊房林⽴,視野設定 B 缺乏綠意,共享公園 C 基地環境分析 Diagram 2 尺度突破,⼈為使⽤ F 使⽤⽅式,固定單⼀ D 形式轉換,置入前場 E 角鋼特性以及轉換思考
3 變動性⾼,易於調整 G 空間延展,創造可能 H 疊架模式,垂直動線 I 角鋼分析 Academic 條件分析 Analyzing 概念發想 Concept 03
Diagram 3 Element
Diagram

Thinking

Thinking

Thinking

模組化房型細節 Modular Room Detail

台北市士林區承德路四段318號

台北市士林區承德路四段318號

台北市士林區承德路四段318號

台北市士林區承德路四段318號

Diagram 5

Modular Room Detail

成立於民國78年,已 有數十年之歷史,為典 型的中小企業,是角鋼 產業中的老字號招牌。

成立於民國78年,已 有數十年之歷史,為典 型的中小企業,是角鋼 產業中的老字號招牌。

成立於民國78年,已 有數十年之歷史,為典 型的中小企業,是角鋼

成立於民國78年,已 有數十年之歷史,為典 型的中小企業,是角鋼 產業中的老字號招牌。

成立於民國78年,已 有數十年之歷史,為典 型的中小企業,是角鋼 產業中的老字號招牌。

BB’ Section Diagram 5

堆疊出⼆次模組(2.3.4⼈房),創造不同的⽅盒開⼜位置,解決分別區 域的隱私性,⽴⾯加入可調式智能中空百⾴窗加強,因此各個模組中會 有些許的內部公共空間,交流閒聊空間。

模具單元 - 量化使用 120 / 240 2 people 1 type S:1/20 , U:cm B-B' 剖面圖 | S:1/20 , U:cm 30 (side table) 人體尺度 Unit:cm 機能置入 定義模具 角鋼 B-B' 變動性高 - 易於調整 特性 空間延展 - 創造可能 分析1 疊架模式 - 垂直動線 分析2 積極申請產品專利 發展製成&客戶端 致力新產品開發 模具單元 - 量化使用 定義2 120 / 240 膠囊形式 - 界定公私 定義1 3 people 3 types 4 people 2 types B-B' 剖面圖 | S:1/20 , U:cm 模具生成演繹 人體尺度 Unit:cm 堆疊形式1 堆疊形式2 白橡實木 A-A' B-B' Room Detail 模具單元 - 量化使用 定義2 120 / 240 環境地段 - 青年旅宿 區位 膠囊形式 - 界定公私 定義1 3 people 2 types 3 people 3 types 4 people 2 types 2 people 1 type A-A' 剖面圖 | S:1/20 U:cm 60 (closet) 30 (side table) 人體尺度 Unit:cm 機能置入 角鋼 中空百葉 茶色玻璃 白橡實木 A-A' B-B' 使用方式 - 固定單一 現況 形式轉換 - 置入前場 解1 尺度突破 - 人為使用 解2
台北市士林區承德路四段318號 Analysis 變動性高 - 易於調整 特性 空間延展 - 創造可能 分析1 疊架模式 - 垂直動線 分析2 積極申請產品專利 Patent 發展製成&客戶端 致力新產品開發 New Tech 模具單元 - 量化使用 定義2 120 / 240 膠囊形式 - 界定公私 定義1 3 people 2 types 3 people 3 types 4 people 2 types 2 people 1 type | S:1/20 U:cm B-B' 剖面圖 | S:1/20 , U:cm 人體尺度 Unit:cm 機能置入 定義模具 堆疊形式1 茶色玻璃
使用方式 固定單一 現況 形式轉換 - 置入前場 解1 尺度突破 - 人為使用 解2 Thinking Analysis 變動性高 - 易於調整 特性 空間延展 - 創造可能 分析1 疊架模式 - 垂直動線 分析2
產業中的老字號招牌。 聯今鋼鐵 積極申請產品專利 Patent 發展製成&客戶端 B to C 致力新產品開發 New Tech Room Detail 模具單元 - 量化使用 定義2 120 / 240 青年旅宿 區位 膠囊形式 - 界定公私 定義1 3 people 2 types 3 people 3 types 4 people 2 types 2 people 1 type A-A' 剖面圖 | S:1/20 , U:cm B-B' 剖面圖 | S:1/20 U:cm 角鋼 中空百葉 茶色玻璃 白橡實木 使用方式 固定單一 現況 形式轉換 - 置入前場 解1 尺度突破 - 人為使用 解2
台北市士林區承德路四段318號 Brand Analysis 變動性高 - 易於調整 特性 空間延展 - 創造可能 分析1 疊架模式 - 垂直動線 分析2
聯今鋼鐵 積極申請產品專利 Patent 發展製成&客戶端 B to C 致力新產品開發 New Tech Room Detail 模具單元 - 量化使用 定義2 120 / 240 環境地段 - 青年旅宿 區位 膠囊形式 - 界定公私 定義1 3 people 2 types 3 people 3 types 4 people 2 types 2 people 1 type A-A' 剖面圖 | S:1/20 , U:cm B-B' 剖面圖 | S:1/20 U:cm 角鋼 中空百葉 茶色玻璃 白橡實木 使用方式 固定單一 現況 形式轉換 - 置入前場 解1 尺度突破 - 人為使用 解2
Thinking
Brand Analysis 變動性高 - 易於調整 特性 空間延展 - 創造可能 分析1 疊架模式 - 垂直動線 分析2
聯今鋼鐵 積極申請產品專利 Patent 發展製成&客戶端 B to C 致力新產品開發 New Tech Room Detail 模具單元 - 量化使用 定義2 120 / 240 環境地段 - 青年旅宿 區位 膠囊形式 - 界定公私 定義1 3 people 2 types 3 people 3 types 4 people 2 types 2 people 1 type A-A' 剖面圖 | S:1/20 , U:cm B-B' 剖面圖 | S:1/20 , U:cm 人體尺度 Unit:cm 機能置入 定義模具 角鋼 中空百葉 茶色玻璃 白橡實木 使用方式 固定單一 現況 形式轉換 - 置入前場 解1 尺度突破 - 人為使用 解2
Analysis 變動性高 - 易於調整 特性 空間延展 - 創造可能 分析1 疊架模式 - 垂直動線 分析2 成立於民國78年,已 有數十年之歷史,為典 型的中小企業,是角鋼 產業中的老字號招牌。 聯今鋼鐵 積極申請產品專利 Patent 發展製成&客戶端 致力新產品開發 New Tech Room Detail 模具單元 - 量化使用 定義2 120 / 240 青年旅宿 區位 膠囊形式 - 界定公私 定義1 3 people 2 types 3 people 3 types 4 people 2 types 2 people 1 type A-A' 剖面圖 | S:1/20 , U:cm B-B' 剖面圖 | S:1/20 U:cm 人體尺度 Unit:cm 機能置入 定義模具 堆疊形式1 中空百葉 茶色玻璃 白橡實木 使用方式 - 固定單一 現況 形式轉換 - 置入前場 解1 尺度突破 - 人為使用 解2 Thinking 台北市士林區承德路四段318號 Brand Analysis 變動性高 - 易於調整 特性 空間延展 - 創造可能 分析1 疊架模式 - 垂直動線 分析2
聯今鋼鐵 積極申請產品專利 Patent 發展製成&客戶端 B to C 致力新產品開發 New Tech Room Detail 模具單元 - 量化使用 定義2 120 / 240 環境地段 - 青年旅宿 區位 膠囊形式 - 界定公私 定義1 3 people 2 types 3 people 3 types 4 people 2 types 2 people 1 type 模具生成演繹 角鋼 中空百葉 茶色玻璃 白橡實木 B-B' 使用方式 - 固定單一 現況 形式轉換 - 置入前場 解1 尺度突破 - 人為使用 解2
Thinking
Brand Analysis 變動性高 - 易於調整 特性 空間延展 - 創造可能 分析1 疊架模式 - 垂直動線 分析2
聯今鋼鐵 積極申請產品專利 Patent 發展製成&客戶端 B to C 致力新產品開發 New Tech Room Detail 模具單元 - 量化使用 定義2 120 / 240 環境地段 - 青年旅宿 區位 膠囊形式 - 界定公私 定義1 3 people 2 types 3 people 3 types 4 people 2 types 2 people 1 type A-A' 剖面圖 | S:1/20 , U:cm B-B' 剖面圖 | S:1/20 , U:cm 模具生成演繹 人體尺度 Unit:cm 機能置入 定義模具 堆疊形式1 堆疊形式2 角鋼 中空百葉 茶色玻璃 白橡實木 B-B' 使用方式 固定單一 現況 形式轉換 - 置入前場 解1 尺度突破 - 人為使用 解2 Thinking
Analysis 變動性高 - 易於調整 特性 空間延展 - 創造可能 分析1 疊架模式 - 垂直動線 分析2 成立於民國78年,已 有數十年之歷史,為典 型的中小企業,是角鋼 產業中的老字號招牌。 聯今鋼鐵 積極申請產品專利 Patent 發展製成&客戶端 B to C 致力新產品開發 New Tech Room Detail 模具單元 - 量化使用 定義2 120 / 240 青年旅宿 區位 膠囊形式 - 界定公私 定義1 3 people 2 types 3 people 3 types 4 people 2 types 2 people 1 type 模具生成演繹 60 (closet) 30 (side table) 堆疊形式1 角鋼 中空百葉 茶色玻璃 白橡實木 A-A' B-B' 使用方式 - 固定單一 現況 形式轉換 - 置入前場 解1 尺度突破 - 人為使用 解2 Thinking
台北市士林區承德路四段318號
Analysis 變動性高 - 易於調整 特性 空間延展 - 創造可能 分析1 疊架模式 - 垂直動線 分析2 成立於民國78年,已 有數十年之歷史,為典 型的中小企業,是角鋼 產業中的老字號招牌。 聯今鋼鐵 積極申請產品專利 Patent 發展製成&客戶端 B to C 致力新產品開發 New Tech Room Detail 模具單元 - 量化使用 定義2 120 / 240 青年旅宿 區位 膠囊形式 - 界定公私 定義1 3 people 2 types 3 people 3 types 4 people 2 types 2 people 1 type A-A' 剖面圖 | S:1/20 , U:cm B-B' 剖面圖 | S:1/20 U:cm 模具生成演繹 60 (closet) 30 (side table) 人體尺度 Unit:cm 機能置入 定義模具 堆疊形式1 堆疊形式2 角鋼 中空百葉 茶色玻璃 白橡實木 A-A' B-B'
Section
AA’
2023.5.23
LANGIN
Hostel
Youth

Plan / Section / Floor Function

樓層配置 Space Program

Space Section

客房 客房 公共 開放 Exhibition

能 分

Space Planning

私人 公共

私人 公共 的模式 為 聯。 為 一單元的方式, 使用 動性 , 間的 動 易體 空間 力。

量體之間的 位 堆疊,房間之間產生 私 性 的公共空間 市 的角

共享性 為青年旅宿的 , 易 年 人的 演 展 空間 為

公共空間 為企業 的 , 一 轉 區 使用的公園, 化 性 為

Academic
05
LANGIN Youth Hostel

畢業製作

Partner: 余彥霖

時空洪流下的港都

機能改善

⼈因⽣活因⾏為創造當地特有的⾏為模 式、建築和街廓等等。⽽在台灣有些城 市及景點,經過不同時代的演變,空間 性質會有所轉變。⽽這些轉變在作為公 共空間中,是否因時代發展⽽⾯臨更 新,淘汰。

此次設計便將以觀光化區域的空間進⾏ 分析,解決機能不⾜,甚至可以在這種 特⾊的城鎮中找回其原本的歷史記憶。

新北市淡⽔區中正路115

基地位址 Site Tourism Impact Function Renew 觀光衝擊
07

各時期淡⽔區域活動範圍

三個時期對於淡⽔在歷史的地位上 的意義,其作為北台灣⾨⼾,可到 達的範圍之寬廣,但也因河淤後被 替代。

巔峰時期的衰弱,乃至今的觀光性 質範圍縮⼩至淡⽔區域⽽已。

1650-1905 1905 2018 荷西與清治時期 ⽇治時期 民國時期 0 2000 4000 6000 8000 4000 2000 2000 4000 0 2000 4000
History Life
2023.5.23

Diagram 1

Time Line

Diagram 1 淡⽔基地架構歷史

三個時期沿岸的居民⽣活使⽤⾏為有階段性差 異。

清治時期建設尚未完備,但信仰宗教建築已興 建ˋ,⼤多傍海⽽區,無市集⼤多席地⽽聚, 進⾏交易及對談溝通。

⽇治時期建設興起,但⽂化衝擊下,⽇⼈未考 慮在地⽂化,原本福佑宮位於該址便是風⽔及 位置良好可與對岸觀⾳山成軸線關係,該建設 阻擋及削弱其關係

民國時期,後續進⾏地下化及整新,重新提起 福佑宮前美食廣場的歷史意義,但現況下建築 仍有許多機能問題需被解決

Time Collage1 Time Collage2 Time Collage3 清治時期 ⽇治時期 民國時期
Academic 09
Fig 1 Fig 2 Fig 3

Diagram 2 Site Analyze

Diagram 2

當⼤量的遊客湧入只能充斥在街屋的縫 隙之間,⽽發⽣⼈擠⼈的空間惡化現 象,造成遊客們旅遊品質的降低。

淡⽔的街屋形式以福祐宮作為核⼼向外 發展,越靠近福祐宮越緊密與紮實,⽽ 福祐宮也因此作為淡⽔⽼街的核⼼,

充斥著⼤量的遊客,空間惡化的現象尤 其顯著。

觀光區

住宅區

⼈潮密集區 衝擊區域

2023.5.23

Site Analyze

北邊地坪⾼度是⼀路下降至基地 河岸位置,對應⽼街海拔為4.8⽶, 環河步道海拔為1.2⽶。

基地雙向開⼜西南以及東北⾯ (朝山),三⾯光源,觀賞性⾃然 光為落⽇傍晚時段。

季節性風向為東北季風佔⼀年中約有 10個⽉份,從淡⽔河⼜灌入,剩餘為西 南季風從東南⽅引入。

交通以及⼈流分析,深藍⾊為汽⾞動 向,中間為管制路段,綠⾊為機⾞動 向,可進入⽼街區,⿈⾊為⼈流動向, 主要的商圈動線區,環河道為徒步區 域。

Landscape & daylight season wind traffic
Diagram 基地環境分析
Academic 11

connection religious function point

環河步道與⽼街串聯⼩徑的位置,尺 度狹⼩,不能作為商街使⽤,互動少, 甚至遊客需透過中間店家穿梭至另⼀街 區。

重要的⼈流匯集處和機能點,深藍⾊ 為觀光碼頭位置,聚集排隊的⼈群影響 環河步道通⾏,粉⾊為⼩型廣場,休憩 點,深綠⾊為基地對⾯的福佑宮。

基地位置為福佑宮前廟埕地,其軸線 正對觀⾳山山頭。需凸顯其地域性。

2023.5.23

Site Analyze

基地現況分析下,導出現況問題,動線 規劃設計不良,導致⼈流不僅沒效率的 串連疏通,也無法吸引⼈群進入空間, 造成空間浪費,平台被商家使⽤宗教性

質意涵減弱

Academic 13
2023.5.23

Space program development

Academic 15
2023.5.23

Section Program

Academic 17
福佑宮側 淡⽔河岸

在創造出量體架構後,進⾏定性定量, 決定對外,資訊取得⽅便,⼈流⼤的開放性機 能,

明亮的處理以及發揮視野優勢,⽤輕的⽅式減 弱量體厚重感,⽽地下為講述具宗教紀念性的 空間,暗且沉

機能的規劃,在地缺乏整理完整的觀光區位 置,分類的介紹,對於多元的⼈來淡⽔,完整 的info center是必須的,優良的視野和基地的 歷史性,值得在此地被講述和利⽤,便⽤於咖 啡廳以及博物館的設⽴。

在理性之餘,深藍⾊為最基礎需要解決的⼈流 問題,保持通暢聯絡兩處的市集。感性之虞在 紅⾊軸線時時刻刻為處於兩處神祇的此地表達 ⾃明性。

透過對於視線的掌控,觀察福佑宮這塊廟埕的 位置重要性外,也對於廣場對於觀光客的空間 趣味性來做提升。

希望能有效率的整合⼈流,最⼤區域給予開 ⽅,特定機能,能⽅便管理掌控空間的進出⼈ 流。

空間調性 空間規劃 空間軸線 視線⽬標 動線
2023.5.23
PLAN 平⾯圖 Roof Plan 2F Plan Academic 19
1F Plan B1 Plan 2023.5.23
A A’ SECTION ⽴⾯圖
Section Academic 21
AA’
B
B’
2023.5.23
BB’ Section
PERSPECTIVE Academic 23
2023.5.23
PERSPECTIVE Academic 25
2023.5.23

⼤陸建設 55Timeless琢⽩

10F實品屋⼯程實績

設計單位

Design Institute

SCDA, Architect , Singapore

基地資訊

Site Info.

291 m2, 10F

⼯程助理

Project Assistant

於此專案中協助⾏政⽂書、現場監 ⼯、⼯程細節處理、廠商聯絡、會議 記錄及圖⾯套繪修正

Professional 27
2023.5.23

設計單位

Design Institute

SCDA, Architect , Singapore

基地資訊

Site Info.

291 m2, 10F

⼯程助理

Project Assistant

於此專案中協助⾏政⽂書、現場監 ⼯、⼯程細節處理、廠商聯絡、會議 記錄及圖⾯套繪修正

Professional 29
Fig.1 Fig.2 10F實品屋⼯程實績
⼤陸建設 55Timeless琢⽩
Fig.2 Fig.1

Design Institute

SCDA, Architect , Singapore

Site Info.

291 m2, 10F

Project Assistant

Professional 31
⼯程助理 設計單位 基地資訊 Fig.1 Fig.2 10F實品屋⼯程實績 ⼤陸建設 55Timeless琢⽩ Fig.1 客廳主牆全景。 Fig.2 主臥室造型床頭板及設備開關細節處理。 Fig.2 Fig.1

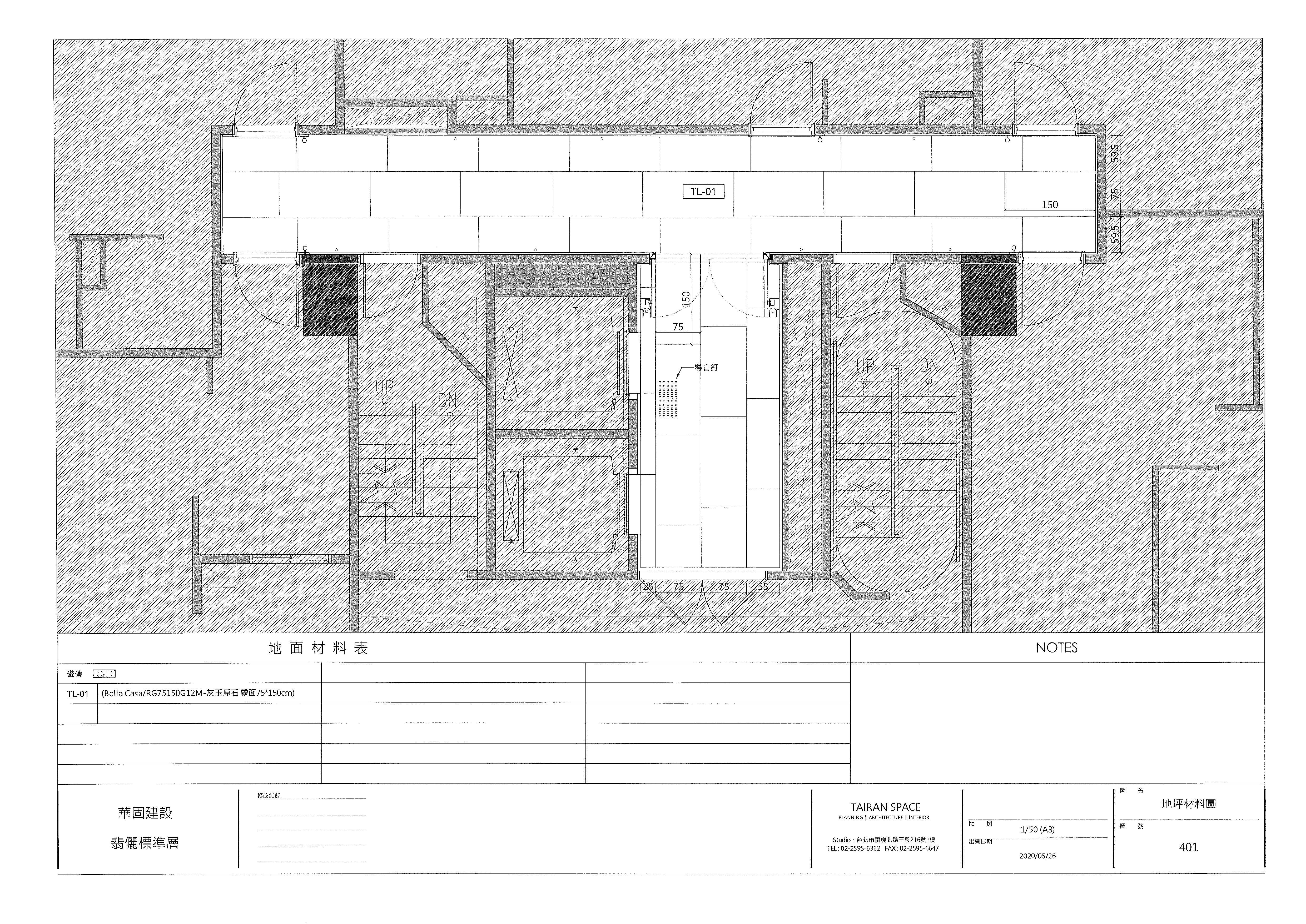
華固建設 北投翡儷

標準層/屋凸層/地下室梯廳 公設⼯程實績

設計單位 Design Institute

太然空間

Tairan Space Design, Taiwan

基地資訊

Site Info.

1380 m2, 1~15F, RF, B1~B4F ⼯程專案

Project Manager

此專案中從⼯程會議、圖⾯檢討、平 ⾏包協商、樣品層施⼯初驗、消防檢 查、報價整理、追加請款乃至最後的 驗收等 較全⾯性負責作業。

Professional 33
2023.5.23
Floor Plan
Standard

標準層/屋凸層/地下室梯廳 公設⼯程實績

設計單位 Design Institute

太然空間

Tairan Space Design, Taiwan

基地資訊

Site Info.

1380 m2, 1~15F, RF, B1~B4F

⼯程專案

Project Manager

Professional 35
Fig.1
華固建設 北投翡儷
Fig.1 梯廳往走道雙開常開防火門一景。 Fig.2 梯廳及走到全景。
Standard Floor Plan
Fig.1 Fig.2 Fig.2

標準層/屋凸層/地下室梯廳 公設⼯程實績

設計單位 Design Institute

太然空間

Tairan Space Design, Taiwan

基地資訊

Site Info.

1380 m2, 1~15F, RF, B1~B4F

⼯程專案

Project Manager

Professional 37
Fig.1
華固建設 北投翡儷
Fig.1 走道往梯廳雙開常開防火門一景。 Fig.2 各戶玄關門設備帶細節。 Fig.2 Fig.1 Fig.2

皇翔建設 ⼟城芊樾樣品屋

樣品屋設計⼯程實績

設計單位 Design Institute

⼤型室內裝修設計

DS Design, Taiwan

基地資訊

Site Info.

60 m2

設計專案

Project Manager

於此專案中負責設計會議、材料挑選 討論、⽂書處理、監⼯及擺飾品採購 擺放等 作業

2023.5.23
150*180 90*180 90*180 80*180 次臥室 廚房 餐廳&書房 客廳 主臥室 主浴室 次臥室 SCALE: A6⼾.樣品屋平⾯配置圖 233 25 169 355 90 356 15 132 165 215 7 303 180 12 298 255 40 10 60 6 210 129 79 259 290 300 100 79 181 76 70 75 76
Floor Plan

皇翔建設 ⼟城芊樾樣品屋

Fig.1

廚房端景以紐約街景做二次創作畫作,隔 間在部分以微反射玻璃做出虛實穿透,放 大空間視野

Fig.2&3

客餐廳及小孩房全景,隔間分割錯落的灰 鏡及半反射灰玻營造秀感及空間分界

Professional 41 樣品屋設計⼯程實績 設計單位
設計專案
Floor Plan 90*180 次臥室 廚房 餐廳&書房 客廳 主臥室 主浴室 次臥室 233 25 169 355 90 356 15 132 165 215 303 180 12 298 255 40 10 60 210 129 79 259 290 300 100 79 181 76 70 75 76
Design Institute DS Design, Taiwan ⼤型室內裝修設計 基地資訊 Site Info. 60 m2
Project Manager
Fig.1 Fig.2 Fig.3 Fig.1 Fig.3 Fig.2

皇翔建設 ⼟城芊樾樣品屋

Fig.1

不浪費走道合併收納做開放式衣櫃,背牆 利用灰鏡放大小宅空間感,營造出現代時 尚感。

Fig.2&3

主臥室同樣以現代人文為主題進行軟裝、 畫作、擺飾的選材。

Professional 43 Floor Plan 90*180 次臥室 廚房 餐廳&書房 客廳 主臥室 主浴室 次臥室 SCALE: 1/50 A6⼾.樣品屋平⾯配置圖 233 25 169 355 90 356 15 132 165 215 303 180 12 298 255 40 10 60 建築規劃原始結構體 設計調整隔間 210 129 79 259 290 300 100 79 181 76 70 75 76
Fig.1 Fig.2 Fig.3 Fig.1 Fig.3 Fig.2

⼤陸建設 新店鐫畫

住宅新建⼯程⼀樓⼤廳|貳樓公設 ⼯程實績

設計單位

Design Institute

LWMA x SHANG HAI YUE JIE 李瑋珉建築師事務所 x上海越界

基地資訊

Site Info.

375 m2, 1F | 184 m2, 2F

⼯程專案

Project Manager

此專案從⼯程會議中,頻繁著重於時 程及造型是否可⾏做出許多討論,結 構計算及施⼯⼯法,焊接點焊渣排除 到最後的形變等問題上做出許多努 ⼒,最終多⽅協助下得以完成,過程 經驗實屬難得。

Professional 45
First Floor Plan Second Floor Plan

⼤陸建設 新店鐫畫

住宅新建⼯程⼀樓⼤廳 貳樓公設 ⼯程實績

設計單位 Design Institute

LWMA x SHANG HAI YUE JIE 李瑋珉建築師事務所 x上海越界

基地資訊

Site Info.

375 m2, 1F | 184 m2, 2F ⼯程專案

Project Manager

此專案從⼯程會議中,頻繁著重於時 程及造型是否可⾏做出許多討論,結 構計算及施⼯⼯法,焊接點焊渣排除 到最後的形變等問題上做出許多努 ⼒,最終多⽅協助下得以完成,過程 經驗實屬難得。

Professional 47
Fig.1

Fig.1

大廳入口鍍鈦金屬屏風往閱讀區一景, 金屬鍍鈦屏風高為6.5米與上下樓板螺栓固 定,通過結構計算設定最低限度各管徑 後,再加工進行外部包飾

Fig.2

閱讀區往大廳入口櫃檯及樹穴一景,大型 金屬沖孔板造型遮罩需排除結構計算及結 構管徑後,在焊接焊渣排除及燈盒處多次 與設計師檢討回饋在空間的量體感比例及 實務面等問題,最後得以成形。

Fig.3

梯廳入口一景

First Floor Plan

Fig.2 Fig.3 Fig.1 Fig.2 Fig.3

⼤陸建設 新店鐫畫

住宅新建⼯程⼀樓⼤廳 貳樓公設 ⼯程實績

住宅新建⼯程⼀樓⼤廳|貳樓公設 ⼯程實績

設計單位 Design Institute

LWMA x SHANG HAI YUE JIE 李瑋珉建築師事務所 x上海越界

基地資訊

Site Info.

375 m2, 1F | 184 m2, 2F

375 m2, 1F | 184 m2, 2F ⼯程專案 Project Manager

Fig.1

瑜伽教室往廊道一景

Fig.2

廊道往二樓公設(瑜伽教室及健身房)一景

49
Fig.2 Fig.1

Fig.3 瑜伽教室往挑空區(1F閱讀區)一景

Fig.4 健身房往大廳挑空區一景

Second Floor Plan

Fig.3 Fig.4 Fig.1 Fig.2 Fig.3 Fig.4

宏璟建設 帝璟苑實品屋

住宅實品屋設計施⼯實績

設計單位 Design Institute

DS Design, Taiwan ⼤型室內裝修設計

基地資訊

Site Info.

132 m2 設計專案

Project Manager

於此專案中獨⽴處理設計、⼯程及 傢俱軟裝擺飾部分,屬於完整的住 宅案經驗。

Professional 51
2023.5.23 SCALE: 1/60 UNIT:CM 建築規劃原始結構體 天花樑線 設計調整隔間(乾區隔間) 設計調整隔間(濕區隔間) 430 552 57 依現場 86 依現場 382 319 396 1118 105 105 67 依現場 96 ( 依現場 121(依現場) 75 依現場 106 依現場 98 依現場 413 351 375 553 88 120 240 88 179 100 105 145 232 1305 71 150 77 88 126(依現場) 826 355 277 108 163 191 194

私宅 天母林宅

⽼屋局部更新裝潢實績

設計單位

Design Institute

林⾕昕 設計師

LIN-KUHSIN designer, Taiwan

基地資訊

Site Info.

49 m2

設計專案

Project Manager

此次設計案中進⾏⽼屋整新,屋齡 四⼗⼆年,在格局不變的條件下, 希望將空間感放⼤外,還需新增許 多的收納空間,在此兩者間取出平 衡是⾸要的課題。

Professional 57
2023.5.23 BH:222cm BH:222cm BH:222cm BH:222cm BH:222cm BH:222cm BH:222cm BH:222cm 83 20 301 0 70 75 64 102 33 48 256 62 5 52 97 15 37 52 8 330 154 484 692 302 69 64 8 140 77 134 57 65 65 8 138 71 17 17 13 147 13 134 147 75 41 100 92 129 161 45 99 90 130 90 50 40 49 45 70 60 R27 R26 R10 R15 R20

Fig.1

玄關鞋櫃角落局部特寫

Fig.2

沙發背牆一景,櫃體中段留下石材自然紋理的 展示臺,上方吊櫃扮演著藏樑還有天花企口造 型的角色。

Fig.3

客廳一景,玻璃茶几的選擇為的是放大客 廳虛化量體,長條的石材矮台成為音響、 展示及空間串連的角色。

Fig.4

電視牆的分割企口使牆面變得活潑,力求展現 出素雅的氣質,線條對齊比例的分割粗細主從 關係皆需納入考量。

Fig.1
BH:222cm 129 40 R27 R26 R10 R15 R20
Fig.2 Fig.1 Fig.2 Fig.3&4
⽼屋局部更新裝潢實績 私宅 天母林宅 設計單位 Design Institute LIN-KUHSIN, Taiwan 林⾕昕 設計師 基地資訊 Site Info. 49 m2 2023.5.23
Fig.3 Fig.4 Fig.1 Fig.2

私宅

⽼屋局部更新裝潢實績

Design Institute

LIN-KUHSIN, Taiwan 林⾕昕 設計師

Site Info.

49 m2

Fig.1 洗牆燈喚起整個空間的氛圍外,更串連了 玄關、餐廳及客廳等區域。

Fig.2 在客廳與餐廳中間的暫留空間,留下一顆 質樸的海葡萄樹作為空間亮點,弧形的石 材矮台則弱化原本此區的畸零空間,再透 過茶鏡反射將空間放大極致。

Fig.3&4

空間局部特寫

天母林宅 設計單位
基地資訊
2023.8.30
Fig.3
BH:222cm 140 129 130 90 R27 R10 R15 R20
Fig.4 Fig.2 Fig.1

私宅 天母林宅

⽼屋局部更新裝潢實績

設計單位 Design Institute

林⾕昕 設計師

LIN-KUHSIN designer, Taiwan

基地資訊

Site Info.

49 m2

設計專案 Project Manager

此次設計案中進⾏⽼屋整新,屋齡 四⼗⼆年,在格局不變的條件下, 希望將空間感放⼤外,還需新增許 多的收納空間,在此兩者間取出平 衡是⾸要的課題。

Professional 63
Fig.1 淋浴間置物壁龕金屬層板特寫
BH:222cm BH:222cm 140 77 17 129 99 90 130 R27 R26 R10 R15 R20
Fig.2
客廁所一景
Fig.1

Turn static files into dynamic content formats.

Create a flipbook
Issuu converts static files into: digital portfolios, online yearbooks, online catalogs, digital photo albums and more. Sign up and create your flipbook.