My first document

Page 1

P O R T F O L I O

2023 INSTALACIONES INTERIORES INSTALACIONES INTERIORES D O C E N T E : A R Q . E S T H E R C H A M B E V E G A A L U M N O : C A M I L A L E L I A P U E R T A S C O D I G O : 2 0 2 1 - 1 2 8 0 1 2
UNIVERSIDAD NACIONAL JORGE BASADRE GROHMANN FACULTAD DE INGENIERÍA CIVIL, ARQUITECTUR Y GEOTECNIA ESCUELA PROFESIONAL DE ARQUITECTURA PORTAFOLIO INSTALACIÓN DE INTERIORES CAMILA LELIA PUERTAS CARLOS CÓDIGO: 2021-128012 ARQ. ESTHER CHAMBE VEGA 01/06/2023 TACNA -PERÚ

SUMILLA

Asignatura del área de formación tecnología profesional; de carácter teórico - práctico; cuyo propósito es comprender el proceso de diseño de las instalaciones eléctricas y sanitarias en las edificaciones Su contenido temático comprende: Unidad 1 simbología y representación gráfica, trazo de redes agua, desagüe, ubicación física de componentes, aparatos sanitarios y equipos eléctricos; nociones Básicas de cálculo hidráulico; Unidad 2 diseño eléctrico y lumínico, redes sistemas circuitos eléctricos, nociones básicas de cálculo, otros sistemas

COMPETENCIAS

COMPETENCIAS GENÉRICAS INSTITUCIONALES: CG-2 DEMUESTRA habilidad en el manejo ético y responsable de las tecnologías de la información y comunicación

COMPETENCIA DEL PERFIL DE EGRESO ESAQ. CE-2 CONSTRUYE obras urbanas y arquitectónicas de calidad, para dotar de espacios seguros a la comunidad con ética y de acuerdo a los estándares normativos.

ORGANIZACIÓNDELOSAPRENDIZAJES

UNIDAD 1

INSTALACIONES SANITARIAS

Competencia Genérica: CG-2 DEMUESTRA habilidad en el manejo ético y responsable de las tecnologías de la información y comunicación.

Competencia específica: CE-2 CONSTRUYE obras urbanas y arquitectónicas de calidad, para dotar de espacios seguros a la comunidad con ética y de acuerdo a los estándares normativos.

Resultado de aprendizaje: El estudiante elabora y lee planos de instalaciones sanitarias optimizando los recursos, para incorporarlos en el proyecto arquitectónico a través de la elaboración expediente de instalaciones sanitarias.

Evidencias: Portafolio de instalaciones sanitarias. Planos, detalles técnicos.

L e s d o y l a B I E N V E N I D A a m i p o r t a f o l i o d e I N S T A L A C I O N E S S A N I T A R I A S d e l a E s c u e l a d e A r q u i t e c t u r a ( E S A Q - F I A G ) d e l a U n i v e r s i d a d N a c i o n a l J o r g e B a s a d r e d e G r o h m a n PRESENTACIÓN E n e s t e f o r m a t o v i r t u a l t e n d r á a c c e s o a m i s p r e s e n t a c i o n e s , t r a b a j o s d e s i g n a d o s p o r u n i d a - t e m a C Ó D I G O : 2 8 0 5 5 3 4 P R E - R E Q U I S I T O : S . C O N S T R U C T I V O S C R É D I T O S : 0 3

PERFILDELALUMNO

M i n o m b r e e s C a m i l a L e l i a P u e r t a s C a r l o s , t e n g o 1 9 a ñ o s , n a c í e n l a c i u d a d d e A r e q u i p a , a c t u a l m e n t e r e s i d o e n l a c i u d a d d e T a c n a R e s p e c t o a l á m b i t o a c a d é m i c o t e r m i n e m i s e s t u d i o s s e c u n d a r i o e s e n e l c o l e g i o S a n t í s i m a N i ñ a M a r í a o c u p a n d o e l t e r c e r p u e s t o d e m i p r o m o c i ó n 2 0 1 9 .

D e s t a c o e n h a b i l i d a d e s d e e x p r e s i ó n o r a l , l o c u a l m e h a l l e v a d o a r e l a c i o n a r m e y t e n e r m u c h o s l o g r o s , p e r o t a m b i é n a p r e c i o v a l o r o e l a r t e d e m a n e r a f í s i c a d o n d e e l d i b u j o a y u d a a i n t e r p r e t a r e m o c i o n e s o d e s e o s , p o r l o c u a l e l d i s e ñ a r a l g o q u e s i r v a d e c o n f o r t y c o m o d i d a d a u n u s u a r i o e s a l g o q u e m e a t r a e d e l a c a r r e r a d e A r q u i t e c t u r a , m e v i i n f l u e n c i a d a d e s d e m u y p e q u e ñ a m i p r o g e n i t o r t u v o i n i c i o s e n e s a c a r r e r a , a c t u a l m e n t e s e e n c a r g a d e c o n s t r u c c i ó n , p o r l o c u a l e l e n t o r n o d e t r a b a j o s e m e h a c e f a m i l i a r .

Espero poder ampliar mis conocimientos en este curso de INSTALACIONES SANITARIAS, un nuevo aprendizaje presencial pude hacer mas aportes en mis trabajos de diseño, para detallar mas mis conocimientos con la arquitecta asignada nuestra docente, de igual manera conocer los diferentes aspectos de mis compañeros de clase.

DEDICATORIA

E n p r i m e r l u g a r , a g r a d e c e r a D i o s , q u i e n n o s b e n d i c e y g u í a e n e l c a m i n o d e l a s a b i d u r í a , e n s e g u n d o l u g a r a m i a m i g o s y h e r m a n o s , p u e s g r a c i a s a e l l o s n o m e h e d e j a d o v e n c e r , y s i g o a d e l a n t e e n m i c a r r e r a y m i v i d a p r o f e s i o n a l c o m o p r i v a d a , m i s h e r m a n o s G a b r i e l a c o n l a c u a l t e n g o u n a c o n e x i ó n e s p e c i a l y

J e a n C a r l o s q u i e n s e h a c o n v e r t i d o e n m i p e r s o n a f a v o r i t a l o s a m o m u c h o .

ÍNDICE ÍNDICE ÍNDICE

ACTIVIDAD 1 :EXPERIMENTO ACTIVIDAD 2 :NORMATIVA IS 0.10 ACTIVIDAD 3:NUMERO DE APARATOS SANITARIOS ACTIVIDAD 4 :VENTAJAS Y DESVENTAJAS DEL TANQUES DE CONCRETO Y POLIETILENO ACTIVIDAD 5 :SIMBOLOS DE AGUA ACTIVIDAD 6 :CALCULO DE MI VIVIENDA ACTIVIDAD 7:CALCULO DE VIVIENDA ACTIVIDAD 8 :SIMBOLOS DE DESAGUE ACTIVIDAD 10 :PLANO DE INSTALACIONES DE AGUA Y DESAGUE 7 8 9 10 11 12 13 14 15 :UNIDAD I
:UNIDAD I :UNIDAD I

ACTIVIDAD 1 ACTIVIDAD 1 ACTIVIDAD 1

X P E R I M E N T O

VALORACION PERSONAL REFLEXION PERSONAL

Como primera actividad, veremos los principios básicos donde se generan efectos, que nos ayudara a comprender mejor las actividades en agua y desague. No fue muy dificil la actividad pues se contaba los implementos necesarios.

E
EXIGENCIA MOTIVACION APORTE EN MI FORMACION AGRADO
DIFICULTAD

ACTIVIDAD 2 ACTIVIDAD 2 ACTIVIDAD 2

NÚMERO DE APARATOS SANITARIOS

Todo núcleo básico de vivienda unifamiliar, estará dotado, por lo menos de: un inodoro, una ducha y un lavadero

En locales con área mayor de 60 m2 se dispondrá de servicios sanitarios separados para hombres y mujeres, dotados como mínimo de los aparatos sanitarios que indica la tabla N°1

EDUCACION

En los locales educacionales, se proveerán servicios sanitarios según lo especificado en la Tabla Nº 5, de conformidad con lo estipulado en la Resolución Jefatural Nº 338INIED-83 (09.12.83).

LOCALES DE COMIDA

Los locales destinados para servicios de alimentación colectiva, deberán estar dotadas de servicios sanitarios independientes para hombres y mujeres, tal como se señala en la Tabla Nº 8

CENTROS COMERCIALES

En los centros comerciales, supermercados y complejos dedicados al comercio, se proveerá para el público, servicios sanitarios separados para hombres y mujeres en la siguiente proporción indicada en la Tabla Nº 2

HOSPEDAJES

HOSPITALES

En hospitales, clínicas y similares, se considerará el tipo y servicios sanitarios, que se señalan a continuación:

LOCALES

Los locales con capacidad de atención simultánea hasta de 15 personas, dispondrán por lo menos de un servicio sanitario dotado de un inodoro y un lavatorio Cuando la capacidad sobrepase de 15 personas, dispondrán de servicios separados para hombres y mujeres de acuerdo con la Tabla Nº 3

Para locales de hospedaje, se proveerá de servicios sanitarios, de conformidad con el Reglamento de Establecimientos de Hospedaje DS Nº 006-73-IC/ DS , según como sigue:

HOSPEDAJES

En todos los locales de hospedaje se instalarán servicios sanitarios en las proximidades a los lugares de reunión, independientes para hombres y mujeres, tal como se señala en la Tabla Nº 7

UnidaddeAdministración UnidaddeConsultaExterna UnidaddeHospitalización VALORACION PERSONAL REFLEXION PERSONAL DIFICULTAD EXIGENCIA MOTIVACION APORTE EN MI FORMACION AGRADO L a n o r m a t i v a , e s p a r t e f u n d a m e n t a l p a r a l a s i n s t a l a c i o n e s s a n i t a r i a s y d e s a g u e , y l o s g a s t o s p r o b a b l e s q u e s e n e c e s i t a n , s e g ú n l o s t i p o s d e a m b i e n t e s .

ACTIVIDAD 3 ACTIVIDAD 3 ACTIVIDAD 3

E l R N E - I S . 0 1 0 l a c a n t i d a d d e A p a r a t o s S a n i t a r i o s s e g ú n t i p o d e e q u i p a m i e n t o d e s i g n a d o p o r e l d o c e n t e .

VALORACION PERSONAL REFLEXION PERSONAL

P a r a l a n e c e s i d a d d e a l g u n o s c o m p l e j o s , c o m o a r q u i t e c t o s d e b e m o s c o n o c e r l a s p r o p u e s t a s m a s g e n e r a l e s c o m o e n e s t e c a s o e s t a c i o n e s d e g a s o l i n a , y v e r l a r e a l i d a d s i s o n o p t i m a s l a s i n s t a l a c i o n e s .

D I F I C U L T A D E X I G E N C I A M O T I V A C I O N A P O R T E E N M I F O R M A C I O N A G R A D O

ACTIVIDAD 3 ACTIVIDAD 3 ACTIVIDAD 3

VALORACION PERSONAL REFLEXION PERSONAL

DIFICULTAD EXIGENCIA

MOTIVACION

APORTE EN MI FORMACION AGRADO

Saber sobre las ventajas y desventajas de ambos tanques es muy importante para saber cual nos resulta mas rentable y duradero ,además de conocer la parte normativa para aplicarlo al momento de proponerlo

ACTIVIDAD 4 ACTIVIDAD 4 ACTIVIDAD 4

VALORACION PERSONAL REFLEXION PERSONAL

DIFICULTAD

EXIGENCIA

MOTIVACION

APORTE EN MI FORMACION AGRADO

Conocer los símbolos de instalaciones sanitarias es muy importante para nuestra formación profesional ya sea para la interpretación del plano o para plantear un plano de instalaciones de agua Pues sirven de referencia y entendimiento claro, al momento de hacer trabajos prácticos

ACTIVIDAD 5 ACTIVIDAD 5 ACTIVIDAD 5

VALORACION PERSONAL REFLEXION PERSONAL

Realizar el trabajo fue muy interesante ya que calculamos la DD para nuestra vivienda además de conocer la capacidad de tanque que se debe considerar y el gasto probable que se realiza en nuestra vivienda Pues muchas veces las casa surgen de la construcción propia del dueño.

D I F I C U L T A D E X I G E N C I A M O T I V A C I O N A P O R T E E N M I F O R M A C I O N A G R A D O

VALORACION PERSONAL REFLEXION PERSONAL

Como trabajo de unidad se nos otorgo una vivienda de 3 niveles, como nuestra profesion, sera lo mas caracteristico, por o cual , el saber organizar es la mejor opcion, calcular sus gastos y saber que implementar

ACTIVIDAD 6 ACTIVIDAD 6 ACTIVIDAD 6
D I F I C U L T A D E X I G E N C I A M O T I V A C I O N A P O R T E E N M I F O R M A C I O N A G R A D O

ACTIVIDAD 7 ACTIVIDAD 7 ACTIVIDAD 7

VALORACION PERSONAL

D I F I C U L T A D

E X I G E N C I A

M O T I V A C I O N

A P O R T E E N M I F O R M A C I O N

A G R A D O

REFLEXION PERSONAL

La explicación de la normativa fue muy productiva para poder conocer el numero de aparatos sanitarios que se necesitan según el equipamiento y así tener un correcto funcionamiento de la edificación.

ACTIVIDAD 8 ACTIVIDAD 8 ACTIVIDAD 8

L a s i n s t a l a c i o n e s s a n i t a r i a s s o n t o d o e l c o n j u n t o d e t u b e r í a s d e a g u a f r í a , a g u a c a l i e n t e , d e s a g ü e s , v e n t i l a c i o n e s , c a j a s d e r e g i s t r o , a p a r a t o s s a n i t a r i o s , e n t r e o t r o s , q u e s i r v e n p a r a a b a s t e c e r n o s d e a g u a p o t a b l e y e l i m i n a r l a a t r a v é s d e l o s d e s a g ü e s .

DIFICULTAD

EXIGENCIA

MOTIVACION

APORTE EN MI FORMACION

AGRADO

VALORACION PERSONAL

ACTIVIDAD 9 ACTIVIDAD 9 ACTIVIDAD 9

ÍNDICE ÍNDICE ÍNDICE

:UNIDAD II :UNIDAD II :UNIDAD II

ACTIVIDAD 1 :INSTALACIONES ELÉCTRICAS Y DOMÓTICAS EN INDICACIONES

ACTIVIDAD 2 :SISTEMAS DE PROTECCIÓN

ACTIVIDAD 3:EXPERIMENTA, OBSERVA E INVESTIGA

ACTIVIDAD 4 :RIESGOS ELÉCTRICOS DE VIVIENDA

ACTIVIDAD 5 :CUESTIONARIO

ACTIVIDAD 6 :SIMBOLOGÍA ELÉCTRICA

ACTIVIDAD 7:UBICACIÓN DE ILUMINACIÓN Y TOMACORRIENTES

ACTIVIDAD 8 :CUADRO DE CARGA

ACTIVIDAD 9 :TUTORÍAS DE PLANOS

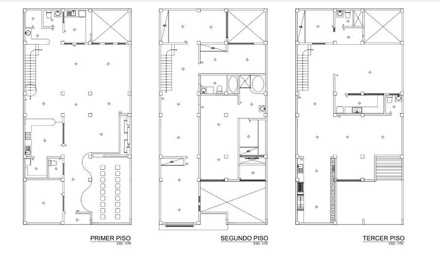
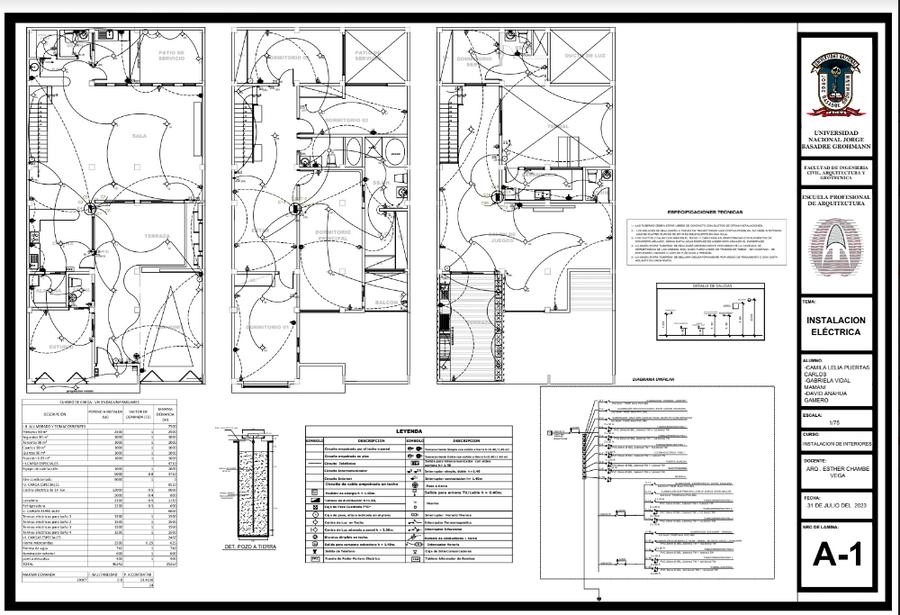
ACTIVIDAD 10 :PLANO FINAL

ACTIVIDAD 1 ACTIVIDAD 1 ACTIVIDAD 1

C o m o p r i m e r a c l a s e s e v i o l a i n t r o d u c c i ó n d e l a i m p o r t a n c i a d e l a e l e c t r i c i d a d , y t o m a c o r r i e n t e s , y a d a p t a c i o n e s , y a q u e e s u n r e c u r s o n e c e s a r i o , d e e s t e m o d o i n d a g a m o s c o m o e s q u e l l e g a a l a s v i v i e n d a s y q u e s e p u e d e v e r l o s b e n e f i c i o s .

VALORACION PERSONAL REFLEXION PERSONAL

DIFICULTAD

Tuvimos a clase teórica que nos sirve para aprender sobre el nuevo tema , en mi parte me genero interés, ya que es parte fundamental que habilita una vivienda o espacio arquitectónico

APORTE EN MI FORMACION AGRADO
EXIGENCIA MOTIVACION

ACTIVIDAD 2 ACTIVIDAD 2 ACTIVIDAD 2

L a s e g u n d a c l a s e s e d i o c o n o c i m i e n t o s o b r e l o s r i e s g o s y p o r l o c u a l e s t o e s n o r m a d o p o r " S e g u r i d a d e l é c t r i c a e n e d i f i c a c i o n e s "

Componentesdeproteccióneléctrica

Al saber las condiciones en cual debe mantener este tipo de instalaciones, y cuales son los aparatos y como es que previenen acontecimientos:

-Interruptor termomagnético

-Interruptor diferencial

-Sistema puesto a tierra

-sistema de pararrayos

DIFICULTAD

Tuvimos a clase teórica que nos sirve para aprender sobre el nuevo tema , en mi parte me genero interés, ya que es parte fundamental que habilita una vivienda o espacio arquitectónico

PERSONAL REFLEXION PERSONAL
VALORACION
FORMACION AGRADO
EXIGENCIA MOTIVACION APORTE EN MI

ACTIVIDAD 3 ACTIVIDAD 3 ACTIVIDAD 3

Como primera actividad de la unidad, experimentamos con el campo electromagnético , para lo cual se emplearía un globo, y diferentes elementos que tengan contacto y observar sus reacciones.

Con este experimento reforzamos acerca de la electrostática, trabajada teóricamente, fue muy curioso, y ayuda a entender de manera las formas de conducir electricidad.

VALORACION PERSONAL REFLEXION PERSONAL
D I F I C U L T A D E X I G E N C I A M O T I V A C I O N A P O R T E E N M I F O R M A C I O N A G R A D O

ACTIVIDAD 4 ACTIVIDAD 4 ACTIVIDAD 4

VALORACION PERSONAL REFLEXION PERSONAL

DIFICULTAD

EXIGENCIA

MOTIVACION

APORTE EN MI FORMACION

AGRADO

Parte de nuestra formación de arquitectos es de observar, analizar y solucionar los ambientes, al ver lo que cuenta nuestro hogar y sus deficiencias, es ver la realidad donde se aplica o no correctamente

ACTIVIDAD 5 ACTIVIDAD 5 ACTIVIDAD 5

Luego de aplicar teoría en los trabajos, podemos ya definir y entender acerca del tema electrico y como esque se relaciona con los peligros, por lo cual se realizó un cuestionario.

Con el conocimiento practico, de lo que va a tener principalmente para obtener energía los cuidados, y principios teóricos, podemos hablar términos correctamente

VALORACION PERSONAL REFLEXION PERSONAL
D I F I C U L T A D E X I G E N C I A M O T I V A C I O N A P O R T E E N M I F O R M A C I O N A G R A D O

VALORACION PERSONAL REFLEXION PERSONAL

Con este trabajo ya somos mas concretos, con lo cual trabajaremos en el futuro al conocer técnicamente los gráficos adecuados en los planos y como estos se ubican

6
6
6
ACTIVIDAD
ACTIVIDAD
ACTIVIDAD
D I F I C U L T A D E X I G E N C I A M O T I V A C I O N A P O R T E E N M I F O R M A C I O N A G R A D O

ACTIVIDAD 7 ACTIVIDAD 7 ACTIVIDAD 7

E l p r i m e r p a s o f u e d e u b i c a r l o s p u n t o s d e l u z , e s t o f u e a c r i t e r i o y s i g u i e n d o l a n o r m a t i v a p o r a m b i e n t e s , o l a d e u n b a ñ o , y v i e n d o q u e e s p a c i o s n e c e s i t a n t o m a c o r r i e n t e s , e n t r e o t r o s , e s d e v i t a l i m p o r t a n c i a s a b e r h a c e r u n a d i s t r i b u c i ó n c o r r e c t a .

PERSONAL
VALORACION
REFLEXION PERSONAL
D I F I C U L T A D E X I G E N C I A M O T I V A C I O N A P O R T E E N M I F O R M A C I O N A G R A D O

ACTIVIDAD 8 ACTIVIDAD 8 ACTIVIDAD 8

VALORACION PERSONAL REFLEXION PERSONAL

DIFICULTAD EXIGENCIA MOTIVACION

APORTE EN MI FORMACION AGRADO

En una vivienda dependiendo de su tamaño, como que es lo que va a necesitar en la residencia, se designará una potencia eléctrica, ademas aprendimos a como hallar correctamente para pedir alguna solicitud, para empezar con las construcciones

ACTIVIDAD 9 ACTIVIDAD 9 ACTIVIDAD 9

Aquí empleamos , marcadamente los tableros,las luces y como es diferenciar de tierra y techo la conducción, para luego poder enumerar correctamente

En la primera entrega se hizo correcciones en jamboard, con las cuales nos guiamos de otros compañeros, donde solo se encontraba la conexión de cables

L .

Una ves tomado en cuenta las tutorías anteriores, podemos concretar el plano, con la numeración, cuadros y ubicación correcta

DIFICULTAD

EXIGENCIA

MOTIVACION

APORTE EN MI FORMACION AGRADO

Luego de las tutorías , pudimos entender mas la teoría al poner en práctica, a la ves que solucionamos problemas que surgen, eso nos sirve para nuestro desenfoque profesional

L REFLEXION PERSONAL
T U T O R Í A 0 1 T U T O R Í A 0 2 T U
T O R Í A F I N A

VALORACION PERSONAL

DIFICULTAD EXIGENCIA MOTIVACION

APORTE EN MI FORMACION AGRADO

ACTIVIDAD 10 ACTIVIDAD 10 ACTIVIDAD 10

Turn static files into dynamic content formats.

Create a flipbook
Issuu converts static files into: digital portfolios, online yearbooks, online catalogs, digital photo albums and more. Sign up and create your flipbook.