Architecture_Portfolio

Page 1

selected works

Run Cao
PORTFOLIO .
2018-2022

教育经历

2018.09-2023.06 华南理工大学建筑学院建筑学专业

2021.09-2022.07 建筑学历史保护方向

学业成绩:GPA3.72/4,排名35/111,必修课百分制绩点85.49,排名35/111, 英语水平:英语四级549,英语六级492,雅思成绩6.5

荣誉奖项

《建筑师》杂志 · 2021「天作奖」国际大学生建筑设计竞赛 佳作奖; 2020年第四届“天华杯”ART&TECH全国大学生建筑设计大赛 二等奖; 2019年粤港澳大湾区·东盟国际高校营造大赛三等奖

2018-2019学年、2019-2020学年、2020-2021学年学校三等奖学金; 2020奥意建筑设计奖学金三等奖;2022普邦建筑奖学金二等奖 2020年获得建筑学院团委、学生会院级优秀学生干部称号

作品集目录

01 [Typology Study] 小屋见大「屋」——基于同构性研究的历史街区改造

项目地点:广东省 广州市 荔湾区 宝源路、宝华路、多宝路地块 团队作品:曹润(概念:70%,建模:60%,绘图:50%) 陈舜杰 朱江 指导老师:冯江

02 [Cinematic Translation] 市井切片——视觉界面的电影化转译

项目地点:广东省 佛山市 顺德区 大良街道 顺德人民礼堂

个人作品 指导老师:徐好好 设计时间:2021

03 [Social Simulation] 循环书市——社交新模式

项目地点:广东省 广州市 越秀区 启明四马路8号 团队作品:曹润(组长) 龚翼 刘雨洋 指导老师:张智敏

设计时间:2021

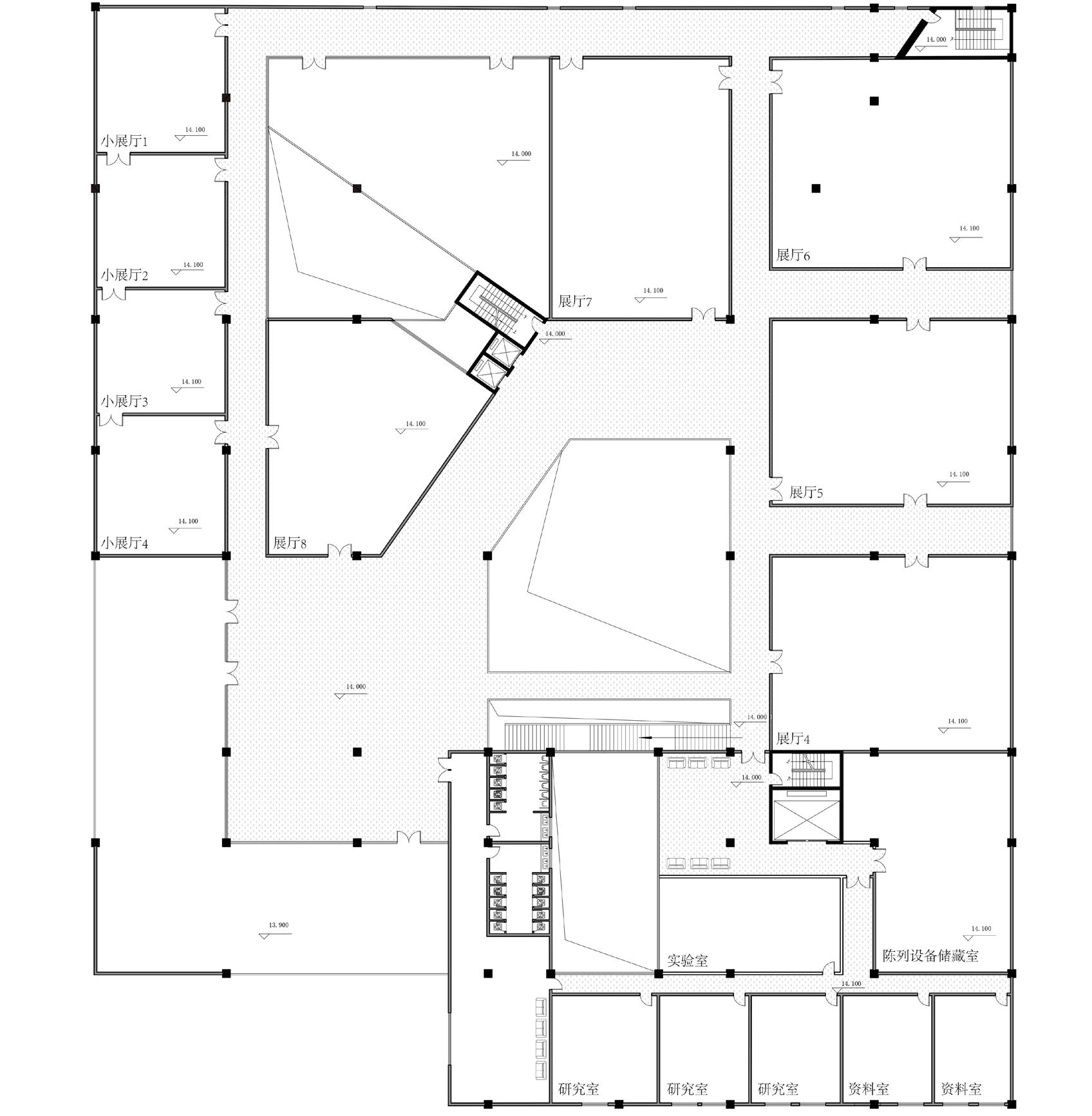
04 [Axis Transformation] 现代设计博物馆

项目地点:广东省 广州市 番禺区 小谷围岛 大学城中心湖文化广场 个人作品 指导老师:姜文艺 设计时间:2021

设计项目 研究论文

05 [Virtual Space Study] 基于句法分析的电影建筑空间组织与人物行为关 联研究——以希区柯克作品为例

论文发表:CEB-ASC 2022第五届环境行为研究国际会议 学术论文:曹润(第一作者) 龚翼 通讯作者:凌晓红 投递时间:2022

[chapter 1 Typology Study]

小屋见大「屋」

——基于同构性研究的历史街区改造

团队作品 组员:曹润(概念:70%,建模:60%,绘图:50%)、陈舜杰、朱江 指导老师:冯江

场地位于广州市荔湾区的三宝历史城区,通过对历史研究 了解到此地区是居住用地,且街区的发展遵循一定的模数 尺度。通过对当地传统民居竹筒屋和传统街道并联的空间 拓扑关系研究,建立起二者的联系。并且通过对街道空间 组织方式的研究,建立组团划分的模式。通过不同尺度的 组团划分,将街区划分为S、M、L、XL的不同尺度的竹 筒屋。通过对竹筒屋与街道的功能关系研究,将各种公共 空间的属性与竹筒屋的不同房间功能相对应。通过对竹筒 屋的垂直属性研究了解到街区公共空间在垂直方向发展的 可能性。通过对街区现状研究了解到此处容积率过高导致 远超过街区可以承载的极限,需要以抽疏的手段来对街区 现状做处理。于是本方案基于并联的街区结构关系将整个 街区沿南北方向拆分成了若干个条状单元,再在条状单元 之中划分组团,在不同的尺度上进行了设计,以改善居民 生活。

荔湾 多宝街区

街区历史研究 拓扑同构性研究 BLOCK HISTORY STUDY TYPOLOGY STUDY

区位概况 建筑拓扑研究 路-街-巷关系

广州位于珠江三角洲的中心,是广府文化的重要 发源地与核心城市之一,建城史悠久,城市文化 发达。

荔湾区位于广州市西部,涵盖了历史上的广州 西关城区,为广州重要的老城区。

宝华路、多宝路与宝源路街区为广州的历史 文化街区,是广州西关城区的核心组成部分。

竹筒屋以前部的厅堂作为家庭生活的起居空间, 以走廊连接各个房间,体现出“并联”的关系。

街区内沿南北向的街道为小进深的商铺,东西向巷道排布主要排布小面宽大进深的单开间竹筒屋, 间有双开间明字屋与三开间西关大屋,间杂90-00年代插入的6-9层筒子楼。建筑之间与建筑之间 三面普遍紧贴,仅有一面朝街开口。

街区与建筑存在同构性 区位定性

街区发展研究

历史上西关地区为 广州重要的手工业 与商业聚集地, “一口通商”时期 在此设置十三行进 行国际贸易。直至 清末,已经形成以 第一津-十八甫、 十三行为主的商业 街区、附属的纺织 业机房区以及商人 的住宅区。

商业活动的繁盛促 使商人在西关建 宅,一定程度远离 十三行的西关涌平 原成为人们的偏爱 之地。以道光年开 辟新十六甫为始, 咸丰年宝华、宝 庆、宝源、宝贤、 耀华等住宅区陆续 建成,直至光绪年 间多宝、逢源区已 经完成建设。

民国时期市政改 良,原限定各居住 街区边界的街闸被 拆除,街区间各街 巷首尾相连整合成 连成一体的新居住 区。新开辟马路成 为街区的边界,形 成路-街-巷的三 级交通体系。马路 沿线商业聚集,形 成“商包住”的格 局。

直至现代,上下九、 第十甫仍为著名的 商业旅游步行街, 西关地区仍存在较 大面积的传统住宅 区。随着旧城改造 的推进,原为居住 功能的永庆坊被置 入新商业业态,商 业向居住区内部延 伸。

部分的明字屋如同两个竹筒屋进行拼合,部分的 明字屋显现出一定的“轴线”次序关系。

住宅区建设时主要 采用正交的街-巷 两级体系,街道 之间按照一定的模 数关系进行规划布 局。南北向的大街 垂直于第十甫等原 有商业街,主要提 供区内的基本商业 与服务,东西向的 巷道主要为住宅。

改革开放后,人们 居住观念的改变以 及对现代生活的追 求促使街区发生转 变,超越街区尺度 的现代小区楼盘进 入街区,部分街巷 与传统住宅被拆除 用以建设新住宅, 肌理被抹平。

西关大屋的中路设门厅--轿厅--正厅,呈现出 较强烈的“轴线”、“串联”关系。

现代住宅的户型格局呈现出以客厅为核心的辐射 关系。

街区的地块划分主要反映的是区位远近关系,是一种并联的关系。城市不是血缘关系的亲疏差序 格局,不是“串联”的关系。走廊并联竹筒屋的房间,巷道并联两侧竹筒屋,大街并联两侧的巷 道组团,三者具有同构性。

商业大街之间存在模数关系,同时南北向的大街形成了三宝街区的主要结构,东西向住宅巷道的 穿越具有同质性。以每条大街为“走廊”并联起每个组团而形成的条状单元,垂直于马路河涌, 同样与竹筒屋具有同构性。因此,街区与竹筒屋具有可类比性,每一个条状的单元可以成为可操 作的更新单元。

更新单元研究

多尺度单元划分

小组团划分:街巷是组织两侧建筑 “纽带”,两侧建筑的居民在同一 条街上产生交流,街道及两侧的建 筑应划分为同一小组团。

UNIT STUDY

更新单元:以南北向大街为轴 划分,包括沿街商铺与若干小 组团。

竹筒屋功能研究 厨房 客厅 房 房 房 房 天 井

基于上述同构性研究,本方案随机选取街区中的一个条状更 新单元进行设计,尝试建立可复制的操作模型。

垂直性研究

主要空间: 客厅、房、天井、走廊、厨房、楼梯 (厕所、储物、书房、阁楼、天台、阳台……)

客厅(偏厅):待客、集体生活、公共活动。

天井:通风透气采光,窄小,少活动。

走廊、楼梯:并联卧室,如有前后的楼梯可 区分公共与私密的流线。

厨房、卫生间:末尾、天井侧或厨房设在门口, 方便采光通风。

天台:提供屋顶晾晒与活动场地。

阳台:提供街景的观赏与晾晒活动场地。

竹筒屋的客厅可以类比为公共 活动空间,天井可以类比为组 团内的绿地。

从南到北公共性逐渐降低,整 体呈现出从“客厅”到“厨房” 到“房间”的空间格局。

VERTICAL STUDY

竹筒屋内不同的空间具有不一样的公共性,公共与私密空间的安排得当。如客厅直接面对街道,天台相互连接。竹筒屋的内部空间存在部分公共化的 可能性。

每个条状单元应承载某种特定 功能,为大街区做出贡献。本 方案设计的条状单元拥有少年 宫、市场与若干公园,为街区 提供公共活动空间与日常购物 空间。 由于城市用地紧张,街区内出现多户共用同一楼梯的多层竹筒屋,从而产生了在垂直方向上“移动”的客厅,满足不同楼层的需求。共用楼梯的现象 与街道的组织具有相似性。

街区现状研究

提出愿景 CURRENT SITUATION STUDY

DEVELOPIING A VISION 功能无法满足日常需求 街区是家的延伸

容积率远超合理数值
街区内可操作部分

易改动的钢混结构建筑

需要延续的立面肌理

三宝街区以居住为主,私 有建筑密集排布。街区内 空地稀少,缺乏居民活动 的广场空间,绿化率低。

街区的可停车空间稀少, 私家车无处可停,电动车 停放混乱。

整个社区几乎没有文化娱 乐设施,商业以生活类为 主。

菜市场在街区中居于重要 地位,大多数商业围绕菜 市场周边布置,活跃性高, 但也导致了街区杂乱的问 题。功能较为单一,缺乏 文化教育设施、观演空间, 以及可供聚集活动的空地。 建筑密度过大,导致人员 密集,街区中的公共空间 无法承载居民日常的生活 需求。

三宝片区的各街区容积率 远高于合理建筑容积率, 居住条件非常拥挤,缺乏 公共空间,居住舒适性差。

一般而言,三宝片区的建 筑层数多为二层到三层。 而二层到三层的建筑合理 容积率在0.4 - 1.2之间, 而三宝片区的容积率都在 2以上,开放空间严重不 足,不足以承载三宝片区 高密度人口的生活需求。

具备公共空间的建筑以及空地位置 广场被拆除肌理需要延续

背巷空间利用效率低下

研究总结:

基于历史研究,可知三宝街区是 以居住为主的街区,在此处的建 设需以提高居住质量为主要目的。 且建设过程中,从建筑到街区都 具备模数划分的关系。

基于竹筒屋研究,发现了竹筒屋、 街区组团、南北向单元、三宝大 街区存在拓扑关系上的同构性, 街区单元的可划分性,功能上的 可类比性。

基于现状研究,可知三宝街区建 筑密度过大,容积率过高,人口密 集,公共空间较少且缺乏联系, 在街区中的生活质量较为低下。

提出愿景——街区是家的延伸

本方案基于并联的街区结构关系 将整个街区沿南北方向拆分成了 若干个条状单元,再在条状单元 之中划分组团。

将公共空间以及各种公共功能布 置在组团之中,以满足在原本竹 筒屋之中无法满足的现代生活需 求,市场成为街区的厨房,广 场成为街区的客厅,绿地成为街 区的天井,图书馆成为街区的书 房…… 同时,本方案在街道之中开辟了 “内巷”连接组团内的公共空间, 供居民行走,以缓解主要街道的庞 大流量。

设立“内巷”的意义

只有主梯,没有后勤梯,交通堵塞,居住与外来客 人共用同一部楼梯,公私不分流。

只有商业街,各巷闭塞不互通, 居住和商业流线不分流。

逢源坊巷门过于狭窄

高楼破坏了转角商业肌理

有后勤梯,疏缓交通,居住和外来客人使用不同楼 梯,公共私密分流。

打通内街,连接各巷,居住和 商业流线分流。

原街区状况 原街区状况

多尺度回应竹筒屋

SPECIFIC OPERATIONS BAMBOO HOUSE IN DIFFERESCE DIMENSION 功能类比 多尺度爆炸图

具体操作

组团内联系

厅与趟栊门

全敞开——开放性最高 家里住人 且对外直接开放

第一道门——开放性较高 白天住人时关闭 用于遮蔽视线

SALOON AND THE TANGLONG DOOR 开放性随形式变化 功能随需求转变

趟栊门与厅相连接,趟栊 门形式发生改变时,厅的 性质也会产生转变。

空间功能随需求变化

趟栊门与厅相结合,且所具备的开放性 随形式转变,功能随形式转变的特性, 回应到空间之中,便成为了广场功能的 多种可能性。不同形式的“厅”,承载 着不同的功能特点;每一种形式的“厅”, 在不同年龄段的不同需求之中,也能转 换自己的功能属性。形式的多样性,空 间的多义性,形成了“厅”与“趟栊门” 相结合的最主要特点。

坐在门前,足不出户就 可以观察到外部景象。

儿童

I II III IV V

文艺汇演

玩耍、野餐

亲子活动中心

幼儿跑道

孩童游乐场

第二道门-防盗门——开放性次之 睡觉时关闭,防止外人进入 且便于采光通风

趟栊门的条状格栅形式 成为儿童的游乐场。

青年

电影放映

街舞、乐队

婚恋交友 派对

展览

第三道门——开放性最低 家里不住人 冬季不需要通风时关闭 趟栊门的形式成为猫的 爬架,同一形式对多种 功能的包容性

粤剧、粤曲演唱

老人 健身、广场舞

跳瘙市场

棋牌麻将 社区公告

总平面图
PLAN GROUP RELATION

[chapter 2 Cinematic Translation]

市井切片

——视觉界面的电影化转译

剧院建筑

个人作品 指导老师:徐好好

场地位于顺德市大良街道,顺德人民礼堂,建筑于大跃进 时期建设起来,其中最重要的成就是其穹顶空间。本设计 采用希区柯克电影中后窗的电影布景手法,欲讨论界面与 界面之间的视线关系。故将整个穹顶空间通过外立面的划 分方式做了切分处理,形成一个个“切片”,并顺应“切 片”的理念,选择对穹顶的加固措施为增设平面桁架,且 桁架的位置暗示下方建筑空间的平面划分方式。加宽“切 片”的体量,并且置入剧场的功能,在有限的穹顶空间中 划分出了一个“广场”和两条“街道”,并且围合出广场 和街道的界面做了丰富且多样的形式讨论,形成了多种有 意思的视线关系,总体说来可以归纳为八个:平视、仰视、 两个界面的互视、有景深的观看、框景式的观看、正对一 个界面的观看、对话式的观看。且观看方式不拘泥于定点 式的看,在整个行进流线上的视线变化也是丰富多样且有 趣的。

顺德 大良

a 通过缝隙,暗示后方界面的连续性与丰富场景

b 室内空间扁平化处理,透过窗户界面室内活动更加清晰可见

c 观察不同界面的唯一位置,单一位置可看界面的丰富性

通过切片将不同类型界面引入建筑

一切空间操作都在切片形成的界面之

中进行,切片位置顺应原本立面秩序 在构造柱的位置即窗间墙的正中间划 分切片,让切片划分的空间顺应原本 建筑的空间。

将原本立面比例尺度引入切片之中, 切片叠加形成空间序列,在建筑内部 形成如同城市尺度一般的建筑内立面, 形成具有进深感的城市广场与巷道的 意像。

顺应横向切片采用平面桁架加固穹顶, 在穹顶收到保护的同时强化原有的开间 尺度。顺应纵向切片形成剧场剖面,在 纵向切片中通过视线分析对剧场剖面做 出合理的升起。

总平面图
电影布景界面分析

原本立面是5:3 和1:1的古典立 面比例生成,采 用了三段式的立 面,且角楼体量 也遵循3:5的古 典比例关系。

南立面玻璃开窗 遵循立面划分, 形成竖向与横向 条窗及大面积落 地窗暗示侧入口 方位,同时室内 外视线可以互通

剧场体量立面为 三段式,具有较 强的中心性,通 过拱的形式变 化,来暗示每个 开间的空间关系 及功能属性。

在立面划分关系 上采用了5:3的 古典比例关系, 且在栏板出采用 外立面的如意纹 样式,将外部立 面关系引入室内

剖透视2:2 剖面图1:1 立面比例分析

室内广场的左侧设置了一个水池以及一个非正式的舞台,可 以在此处进行路演,表演等小型活动。左侧售票厅的建筑体 量做了倒圆角的处理,使建筑刚好与正前方的体量相切。

从主入口正中间的门进入穹顶下空间之后,仰视时映 入眼帘的就是一个壮观的天窗,平视时就能看见远处 充满进深感的美神维纳斯雕塑,暗示了前面观众厅的 空间。一条直线一通到底,富有空间的引导性。

在右侧设置了几个条形座椅,人们可以坐在这里,享用咖啡, 与同伴闲聊。在正前方二层体量的背后,可以看见后方的建筑 立面,暗示后方街道空间,并且前方二层体量与后方三层体量 在入口位置刚好在最高处相切,仿佛立面在此处相互连接起来。

大台阶与城市舞台之间的空间,城市舞台的将室外的光线导向 室内,照亮大台阶的圆拱,大台阶在入口处做了45°的斜角处 理,与墙体相垂直,使流线更加通畅。最远处的实墙体作为市 民创意表达的绘画墙,承载市民的艺术需求

整个空间中进深感最强的空间,两侧的建筑体量可以形成视线上 的互看关系。整个空间的最远处正对着原有建筑的门与窗户的位 置,室外光线从门窗洒向室内,形成富有特色的光影效果。

二层平面图 三层平面图 地下室平面图 四层平面图

从二层休息厅望向城市舞台的角度,大台 阶的圆拱形成了框景的效果,人们在行进 的过程中可以在大台阶的各个景框中观察 到城市舞台的各个窗户内的景象,当舞台 各个窗户上演不同的表演时,将形成丰富 的立面效果。

从城市舞台的窗户看向大台阶时,由于窗 户的承重墙厚度的限制,形成了框景的效 果,站在窗户最远端往大台阶看,只能看 见三个开间的范围,且刚好能完整看完整 个大台阶的高度,在行进的过程中望向大 台阶,立面也随之变化。

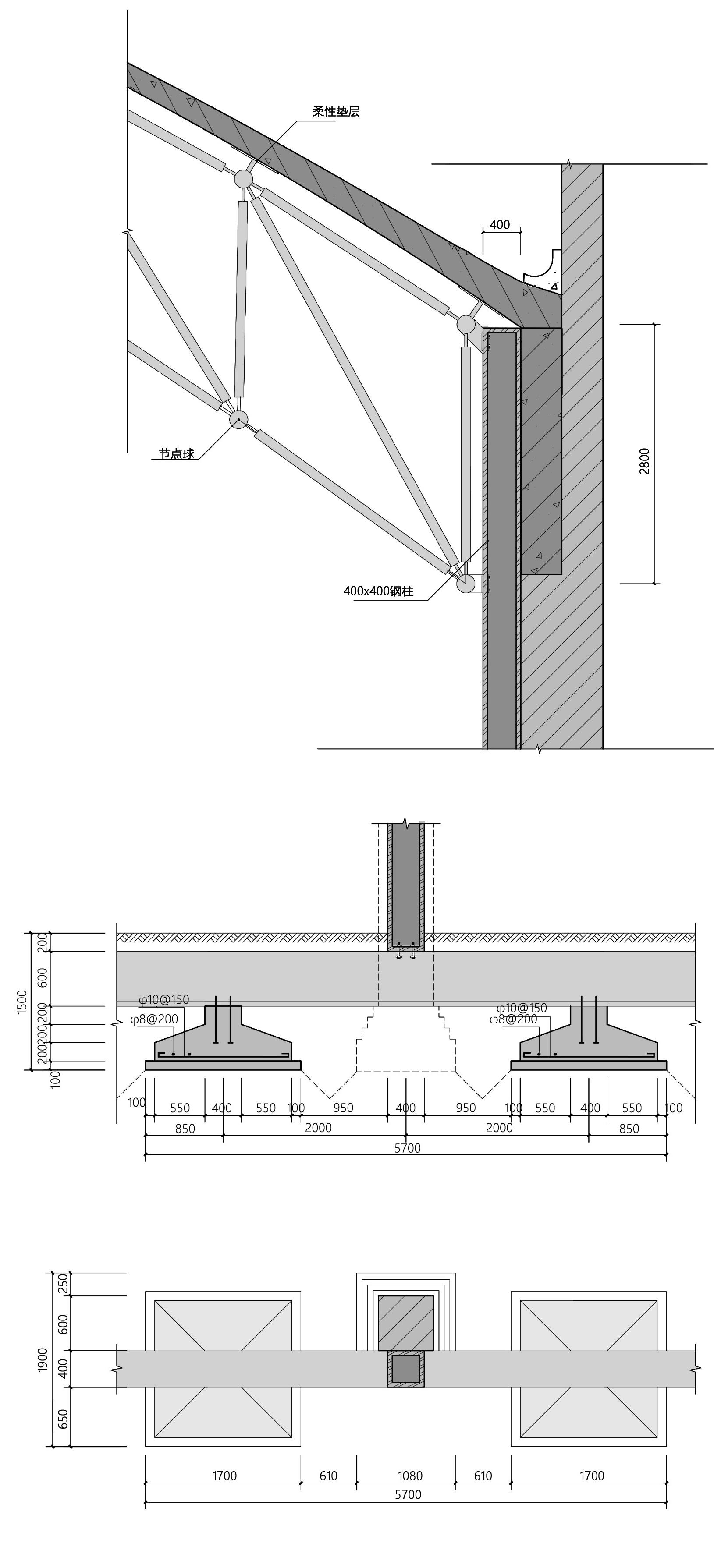
穹顶

环状桁架

平面桁架

钢柱

结构分析图 穹顶交接大样 钢柱基础大样

承重墙 基础

1 为了加固穹顶,在承重墙开窗的间隙附加钢柱,钢柱固定在承重墙和环状 桁架上,钢柱上固定平面桁架,平面桁架再支撑混凝土穹顶,起到对穹顶 的保护作用。

2 钢柱与平面桁架用节点球进行铰接,平面桁架的组装也是通过节点球进行 铰接,且每一根杆件都有一定的伸缩弹性,与穹顶的交界处用柔性垫层交接, 顺应穹顶的形变量,防止形成刚性连接对穹顶造成二次破坏。

3 钢柱的基础采用环状钢圈梁和钢筋混凝土基础简支的形式支撑,错开原有 的基础位置,使得即使钢柱贴合构造柱位置,也不会对原有基础造成破坏。

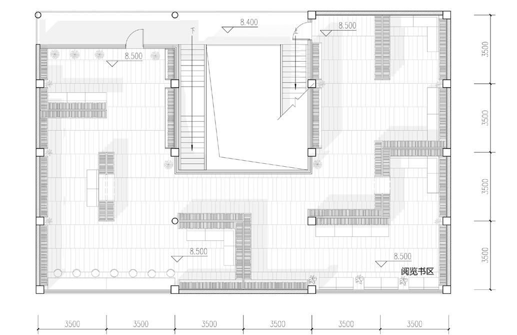
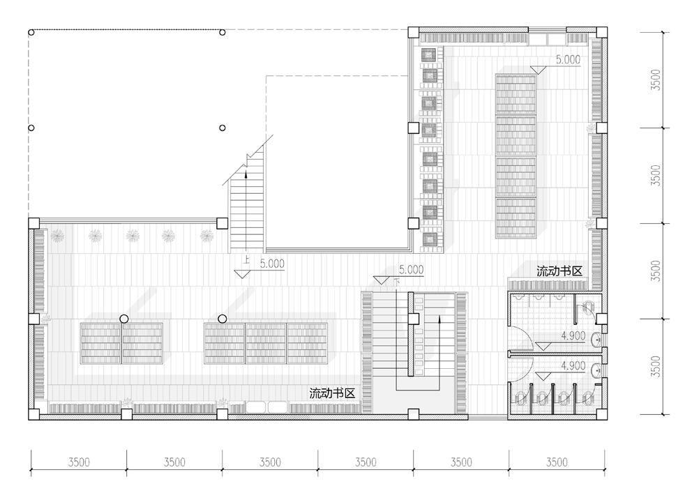
[chapter 3 Social Simulation]

循环书市 ——社交新模式

书店建筑

团队作品 组员:曹润、龚翼、刘雨洋 指导老师:张智敏

关键词:文化社群 文化筛选 二手书市 社群信息枢纽 文化 自循环 触摸实物,和物品主人攀谈几句,是旧物市场里既有实用 意义,又有仪式属性的环节,是实体社交独特而不可取代 的属性。物品吸引人与其接触,人与人也因此发生接触。 东山口是广州著名的历史街区,二手书市对于怀抱文化期 待的东山口访客,传统而又亲切。一个书的市场,扎根于 底层架空的书店空间,成为进入东山口的通路;一个信息 枢纽,东山口的文化信息集中展示,为东山口的文化社群 筛选同好和潜在参与者。原本分散的亚文化人群,在东山 书市以书籍交换、海报宣传等方式聚拢社群,在书店获得 了面对面交流的机会,社群融合扩大或产生新的分支,不 断吸引新人加入社群,同时为东山口催生出更丰富的文化 活动。

东山口
越秀区

将两栋建筑间的通过空间看作东山口的一个“入口”, 我们在东山口放置了一块公告牌,作为社区的信息 枢纽中心。

通过空间为街区带来了新的流线组织,空间内进行 的二手书买卖是十分吸引人的活动,分散的人流将 在此处部分聚集,集中进入东山口。考虑到东山口 的文化建筑分散于社区内,如果我们在此进行东山 口信息的集中展示,以拼贴的形式呈现,就能为进 入错综复杂街道的人们消除一点盲目性,就能稍微 预告东山口内正在举办的活动和可以期待的店铺。

我们希望在访客在通过建筑时,不经意间完成一次 目的地的筛选:人在筛选地点的同时,地点也在筛 选人,最终相近的人总会去往相似的地点。

立面遵循700*1440的模数,进行材质块的拼贴。材质

从东山口社区其他建筑中提取,由传统红砖、拆除建 筑的黄砖、素混凝土、铁丝网组成。材质的拼贴使立 面成为一面东山口社区的展示墙,右侧的铁丝网用于 悬挂、张贴各种海报、标语和活动公告非常方便。

“将二手书市里的买卖看作文人的市集,我们在东山 口做了一个书的菜市场。

露天卖书分为代售和直售两部分,代售的图书交予书 店管理,摆放在中央过道的移动书架上,供所有通过 的行人阅读、挑选和购买;直售二手书的摊主将在右 侧阶梯舞台上摆摊,同样提供可移动的书架和摊位, 在特殊日子也可以用作活动宣传场地。

第二次筛选完成了:文化参与者中的爱书者。爱书者 们可以在流动性强的二层进行短暂地浏览和选购,如 果读者希望长时间阅读,我们在三层提供了半围合式 的卡座和多种类型的空间,读者可在此长时间停留。

第三次筛选完成了:爱书者中的兴趣社群。人们会在 三层发生交往行为吗?留待到达三层的人们自己决 定。四层是专门化的四个单一空间,欢迎沙龙、研讨 会和讲座举办方进行租借。”

1

1.首层的旧书廊道,通过本身活动的趣味性和参与感鼓励人们使用,并与旧书发生互动。

2.在廊道旁设计的高度8m的网墙是最好的社区展示平台,供东山口所有店铺、画廊和个人艺术家 使用,可以在网墙上张贴展览预告、演出通知、活动详情等等,游客在网墙前驻足观看,寻找自 己感兴趣的信息并确定目的地;艺术家在网墙前驻足观看,寻找潜在的合作方和有趣的画廊。交 流也将在此发生。

3.二层的流动空间鼓励读者进行短暂快速的浏览和选购。

4.三层是供读者停留的阅读和交流空间, 接收从二层进入的深度读者,提供专门化的选书和定期 举办的主题书展。

5.四层是纯粹的尽端空间,作为社群活动的场地,举办沙龙、读书会、放映会等。

社群文化自循环 文化交流场景模拟

1、2 旧书通廊:二手书市对于抱 有文化期待的人群而言,就像菜 市场之于普通市民。通过廊道时 驻足翻阅、挑选新上的二手书, 就像去市场买菜一样轻松写意, 这一行为填补了当下文化生活最 缺乏的在地性。

3 中庭观礼:中庭空间为建筑室内 提供了充足的采光,也为旧书通 廊在入口处留下开阔明朗的印象。 从三层空中连廊观看旧书通廊穿 梭、挑挑拣拣的行人,不断提醒 着观者,文化的实体性在此欣欣 向荣。

4 流动空间:二层的流动空间鼓励 读者进行短暂快速的浏览和选购, 如果希望长时间阅读或与他人交 流,读者将被指引前往欢迎停留 行为的三层。

2 3 4 首层平面图 三层平面图 二层平面图 四层平面图
剖透视1
剖透视2

[chapter 4 Axis Transformation]

现代设计博物馆

个人作品 指导老师:姜文艺

通过对广州博物馆的分布以及对大学城博物馆的分布及功 能分区分析,并对博物馆受众人群的分析,推导出设计博 物馆这一主题。并通过对场地轴线的划分分析,采用了双 正交体系的建筑轴线系统。在一个完整的方形建筑体量内, 通过对墙体轴线方向的严格控制,形成丰富的内部空间。 观众在观展过程中的流线连绵形成环线,并有节奏的设置 了休息空间,使观众观展体验更加舒适,并在沿湖面上大 面积开口,将湖面景观纳入建筑之中。

中心湖
小谷围岛

总平面图

受众定位

展品布置

大学城里的大学生, 18-25岁 对网红景点有需求, 喜欢新奇事物。

大学城内部居民, 25-60岁不等 有社交聚会需求, 喜好欣赏优美景观

场地交通与功能分析

广州市的博物馆主要集中在越秀区, 海珠区和天河区以及大学城也有部 分分布。设计场地位于大学城,离 博物馆集中的越秀区距离很大,不 考虑与越秀区博物馆的主题重合。

大学城区博物馆主要为音乐、美术、 历史以及医学等等,缺少科技类以 及设计类的博物馆,且多为高校内 部使用的博物馆,公共性较差。

大学城的建筑分布从中心湖往四周 辐射

沿东北向轴线形成场地内一个正交 坐标体系

场地位于中心湖公园北部,周围被 高校的生活区包围,场地内属于公 园休憩的区域,周边有体育馆等公 共设施。大学生在平时来到场地的 机会大。离大两个地铁口约1km距离, 公共交通方便,便于到达。

沿着体育馆有一条大学城的中轴线

中心湖公园被内环路包围,主干道 不能直接到达场地,必须要从次干 道才能进入。次干道能从两个方向 进入场地,另外两个方向只有步行 可达。

根据体育馆轴线形成场地第二个正 交坐标体系

根据场地第一个坐标体系形成方形 建筑体量 根据第二个坐标体系对体量切割形 成强烈的入口导向 对体量进进行掏挖以及堆叠处理形 成外向型的观景平台 掏挖体量形成中庭空间,提升内部 空间品质

市区游客, 各年龄段 市区内无法看到的展 览,专门到此地游览。

临时展览:

个人设计师展览 学生毕业设计展

常设展览:

装置艺术展览, 工业设计回顾展

常设展览:

包豪斯百年历史 设计回顾展

北立面图
场地轴线分析 体量生成逻辑

结构分析

结构框架

4F屋面层

3F展厅层

-1F 车库 报告厅 结构选型 桁架大样 1F 临时展厅 画廊 咖啡厅 2F 办公 展览
二层平面图 剖面图2-2 三层平面图
主入口场景
东立面图 剖面图1-1
局部透视

[chapter 5 Virtual Space Study]

基于句法分析的电影建筑空间组织 与人物行为关联研究 ——以希区柯克作品为例

学术论文 作者:曹润、龚翼 通讯作者:凌晓红 论文发表:CEB-ASC 2022第五届环境行为研究国际会议

关键词:电影建筑,环境行为学,希区柯克,空间句法 随着建筑空间理论的发展,建筑学及环境行为学研究开始 关注“虚拟空间”,即影像、绘画、文学作品、游戏中出 现的建筑空间以及角色的空间体验和行为模式间的联系。

受Steven Jacobs的电影建筑研究启发,本研究以导演希区 柯克电影中的建筑作为研究对象,对建筑平面图进行还原, 引入行为学和空间句法理论,量化分析电影建筑空间;通 过比对空间分析结果和剧中人的行为类型,认为希区柯克 电影中的人物行为和建筑空间具有紧密关联,并总结出希 区柯克式建筑空间和人物行为的对应关系,从而为建筑学 视角的电影建筑研究提供参考和学术依据。

研究方法

Research Methods

①首先进行建筑平面图还原与情节梳理:本文选取八部电影、Steven Jacobs的希区柯克研究、希区柯克手稿和访谈等资料, 使用建筑学方法绘制九个居住类建筑的平面图,并将人物动线以及行为绘制于建筑平面图上,使地点、人物、行为三个 要素同时呈现。

②空间句法分析法:在方法①的基础上,使用空间句法软件Depthmap,建立凸空间模型和视域分析模型;使用绘图软件 visio,绘制房间与房间之间拓扑结构的关系图解。凸空间模型可以反映空间整体、空间单体的拓扑关系,即空间深度; 视域分析模型可以反映室内空间不同位置的视觉体验,即空间氛围;关系图解可以反映空间单体间的连接关系和拓扑深 度,即房间在建筑中的位置。

③行为分类法:根据行为的目的和行为与行为对象的关系对电影中出现的行为分类,可分为四种类型:攻击行为:对其 它人、物或外部环境展现出攻击性,并试图通过接触/伤害/攻击其他人、物或外部环境来达到目的;回避行为:攻击 行为的反面,由于特定原因,角色不希望被人发现或不希望自己的行为公之于众;互动行为:由二人及以上参与,具有 社会性,不包含攻击和回避行为,区别是没有主动或被动的倾向性,角色具有相同的参与度;个人行为:互动行为的反面, 角色独处并且未与他人产生互动,近似于心理学对内隐行为的描述。

空间建模与分析

Spatial modeling and analysis

研究对九个电影建筑依次进行平面图还原、行为分类、绘制关系图解、凸空间建模、视域建模。篇幅所限,本文选取其 中三个建筑进行说明。图2展示了空间建模与分析的过程。

使用Depthmap软件计算出行为对应空间的凸空间分析结果,包括Integration[HH]、Control、Choice;计算行为对应空间的视 域分析结果,包括Visual Control、Visual integration、Point first moment。表2展示了三个建筑空间分析的结果,图3展示了 根据九个建筑的分析结果绘制的空间-行为模式图。

电影建筑与电影情节介绍

案例一:Bates House是《惊魂记》中Norman Bates的别墅,建筑包括地面两层和地下室,平面和立面均对称;前厅和门廊连接, 并和通往厨房的走廊相连;宽阔的楼梯是前厅的重心,精雕曲线木扶手落在前厅的中轴线上;二层楼梯两侧分别是母亲 的房间和Norman的房间;楼梯下的狭小平台是通往地下室的入口。

案例二:Newton House是《辣手摧花》中Newton一家的住宅,于摄影棚中搭建完成。车库独立于别墅,位于场地的东北角。 建筑有两部独立的楼梯,分别位于前厅和室外室外,室外楼梯连接二楼走廊并通向后院。一层空间包括客厅、餐厅、厨房、 门廊以及院子里的车库,二楼由三间卧室组成,分别为父母房间,姐妹的卧室和Charlie的卧室。

案例三:Vandamm House是《西北偏北》中Vandamm的别墅。建筑继承了赖特将自然材质和现代材质结合的手法,面向悬 崖一侧是轻盈的落地玻璃、混凝土悬挑,靠近山体的一侧则以厚重的石灰岩墙体限定边界;不对称的首层平面,中心化 的壁炉,平屋顶的穿插和重叠等;主人公Thornhill趴在露台偷窥客厅。

空间关系——关系图解分析

关系图解可以直观地表达建筑中不同空间的拓扑关系。在图3中,以行为发生的空间为起点,高亮标注了情节上与该空 间紧密联系的空间,例如客厅、有人的房间、逃生出口等等。发现这些空间在正常路线上以及在特定行为发生场所出发 的路线上(如逃生路线)的拓扑深度不同。

在《惊魂记》中,重要情节发生的空间基本布置在拓扑深度最深的空间,延长了角色进入该空间的距离,增加悬疑感的 同时降低了回避行为发生的可能性。两个攻击行为发生的地点,都离高亮的危险人物所在空间的拓扑距离近,即攻击行 为发生的空间往往离危险人物所在的空间很近。在《辣手摧花》中,由于家庭成员很多,故将人员聚集可能性最高的的 客厅高亮表示,发现两次攻击行为发生位置都离客厅的拓扑距离很远,即攻击行为总是离有人的房间拓扑距离远。在《西 北偏北》中,危险人物一直在客厅,男主角传递纸条的回避行为离危险空间拓扑距离远,而在楼梯被发现的原因是楼梯 与客厅视线互通,无关拓扑距离远近。

在电影建筑空间中,空间关系显著影响着人物行为。攻击行为多发生在靠近危险人物的空间,远离无害人物聚集的空间; 回避行为多发生在远离危险人物的空间,靠近无害人物聚集空间以及逃生空间;互动行为多发生在相同或相邻的拓扑空 间;个人行为多发生在远离其他人物的空间中。

空间深度——凸空间分析

凸空间分析得到的不同参数,均是空间深度的表征,具有不同意义。将电影中建筑可以到达的空间进行凸空间切分,选 择Integration[HH]、Control、Choice三个和室内空间关联性最好,结果最直观的参数作为空间表征。通过将行为类型、行为 发生位置与凸空间模型叠合,量化分析特定行为发生空间的拓扑属性。在所研究的电影中,攻击行为对应着袭击、埋伏、 遭遇等行为,发生的空间为客厅、餐厅、连接多个房间的走廊;回避行为对应着躲藏、逃跑、偷窥、潜入、隐藏物品等行为, 发生的空间为连接两个空间系统的走廊、楼梯;互动行为对应着交谈、评论、打电话、拍照等行为,对应的空间为客厅、 餐厅、连接多个房间的走廊,个人行为对应着思考谋划、自言自语等行为,对应的空间为卧室、卫生间、衣帽间、书房、 地下室、阁楼。

行为与空间对应的凸空间数据样本量较大,适宜做统计量化分析。总体而言,攻击行为和互动行为的空间-行为模式相似, 所对应的空间均为可达性最好,很容易进入周围空间,拥有很强交通潜力的空间。回避行为和个人行为则呈现出十分独 特的模式。回避行为对应着可达性和交通潜力都很高,但从周围空间很难进入的空间;个人行为则完全相反。

空间深度——视域分析

视域分析是建筑空间的视觉体验的表征,与建筑空间的氛围直接相关。选取的电影之中典型角色行为基本发生在室内, 因此不对室外空间进行讨论,此外电影中不可进入的房间不在分析范围内。

本研究选择了Visual Integration[HH]、Visual Control、Point first moment作为视域分析的结果,并将行为发生空间及行为属性, 与视域分析运算结果相结合,量化分析每一特定行为发生的具体视觉属性,图3中展示了分析模型。图4表明了在九个 电影建筑中,人物所处空间和人物行为的关系。互动行为、攻击行为、回避行为、个人行为的行为-空间曲线值依次降低。

从环境行为学来看,当人们处于互动空间中,视觉权力增强,来自他人的监视减少,警惕性减弱,感到放松和舒适,这 样的心理感受为互动提供了氛围,此时人们更愿意和他人产生互动。

身处攻击空间,警惕性提升,对周围的环境变化变得敏感,容易酝酿紧张情绪,使人产生不安全感;对袭击者来说,这 样的空间是袭击的理想空间,尤其在袭击者对空间的熟悉程度高于被袭击者时。

回避空间的视觉吸引力一般,具有较好的观察他人而避免被发现的能力,但已经弱于攻击空间,因此空间中的行动不容 易被他人发现。回避行为的主体不希望被其他人发现,所以警惕性甚至高于攻击空间,气氛更加紧张;而角色对空间的 熟悉程度越高,选取的路线越贴合回避空间。

个人空间在系统中处于偏僻的位置,视觉吸引力低,不容易被监视,当人处于这样的空间时,警惕性降低,感受到稳定 和谐的空间氛围,更容易产生自我行为(和社会行为相对);个人空间的围合程度很高,是一个被包被的空间。

空间和行为的对应关系 The correspondence between space and behavior

电影中攻击行为、回避行为、互动行为、个人行为发生的空间,在用以描述空间特征的空间关系、空间深度、空间氛围 三个层面存在明显差别,体现为计算结果中六个句法参数的差异,以及关系图解中拓扑深度的差别。通过对句法分析结 果进行解读,本研究得出以下结论:

①希区柯克的电影建筑空间和人物行为之间具有相关性。

②空间的空间关系、空间深度、空间氛围不同,发生攻击行为、回避行为、互动行为、个人行为的可能性也不同。 ③具有特定空间关系、空间深度、空间氛围的空间,发生特定类型行为的可能性最大,在表3:空间-行为模式图中, 将希区柯克电影中建筑空间和行为的相关性具体呈现了出来。

④关系图解、凸空间分析和视域分析在对建筑空间进行分析时,其适用场景及合理性:关系图解能够直观地建立房间之 间的拓扑关系,从房间功能的角度说明行为在此处发生的原因,但只能对结果进行定性描述;凸空间分析揭示了空间和 行为之间的对应关系,但空间细分精度较低,无法对房间内的具体方位进行描述。视域分析可以得到精确的空间描述。 视觉经验是感知世界的主要经验,电影也通过影像传达信息,因此从视觉角度的描述更符合经验,也更易理解。

对表3的解读,应将行为发生时的时空状态考虑在内,如在卧室里发生攻击行为时,室内可能较暗;而发生个人行为时 可能较明亮。说明即使在确定的空间中,通过调整光照、门窗开合程度等条件,可以获得不同的空间氛围;改变空间的 开合状态,也可以改变空间关系和空间深度。电影中的不少冲突正是通过使空间属性发生突变,让特定行为得以发生。 如在《电话谋杀案》中,公寓的客厅通透明亮,落地玻璃窗朝向街道,然而在攻击行为发生时,时间已是深夜,窗帘被 拉上,电灯熄灭了,出入口处于关闭状态,空间属性发生了很大变化。这种“空间操作”的手段,以及对空间属性的细 致考量,为现实中的建筑设计提供了新的视角。

Turn static files into dynamic content formats.

Create a flipbook
Issuu converts static files into: digital portfolios, online yearbooks, online catalogs, digital photo albums and more. Sign up and create your flipbook.