DEFINE 50
Community History




What Would You Like to Say About This Community?





In our community,marginalization is a real issue... The community connector is key in bridging gaps and fostering a sense of belonging






























![]()









In our community,marginalization is a real issue... The community connector is key in bridging gaps and fostering a sense of belonging































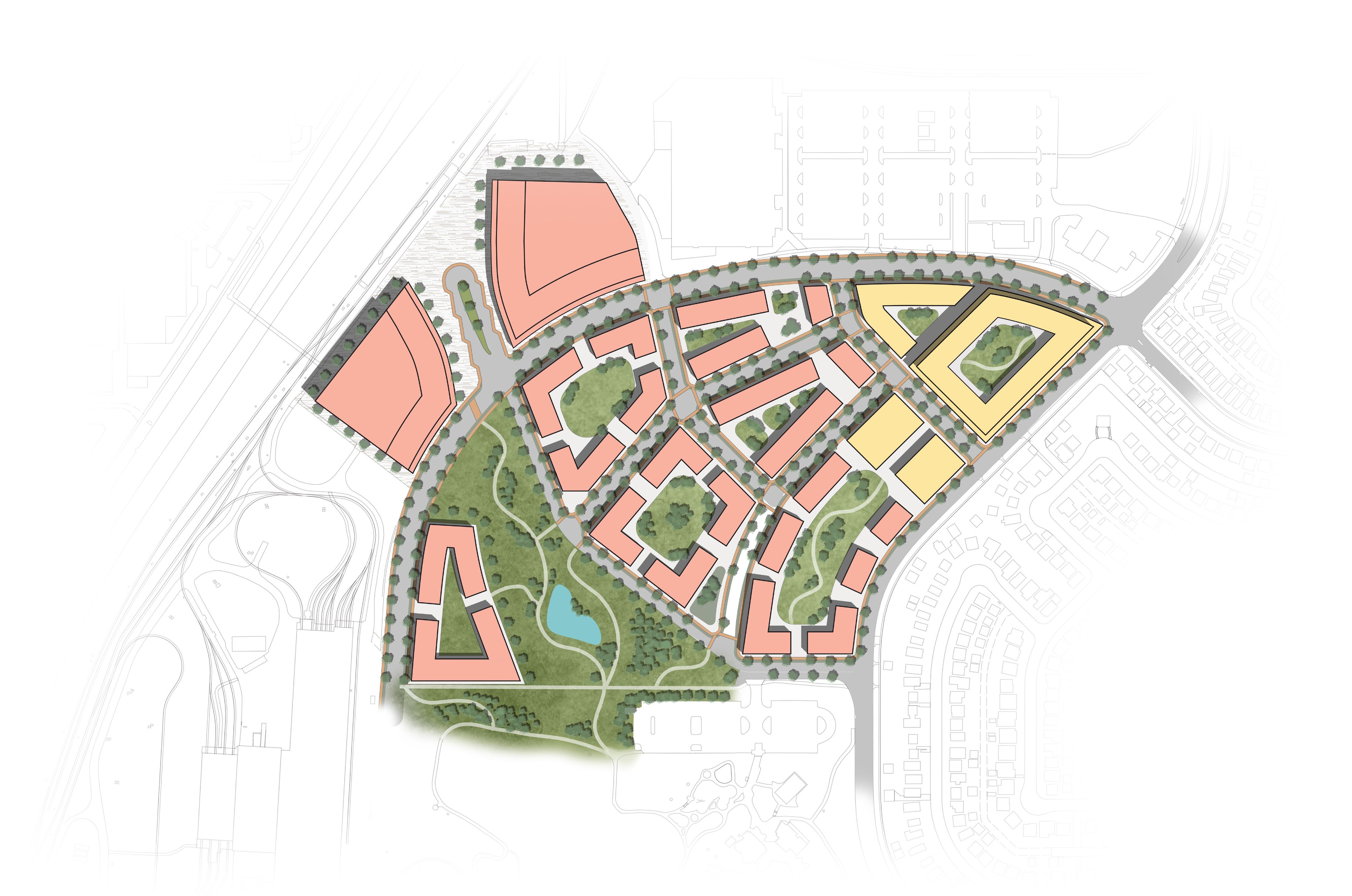
A rejuvenated commercial hub with amenities and a public plaza that brings life to the McKnight-Westwind Station. The heart of this new community is a green corridor linking Westwind Station and Park, creating a naturalized area that awakens your senses.























A vibrant, mixed-use neighbourhood that transforms big-box stores and parking lots into a connected urban fabric of greenways, community gardens, and an active main street. The design fosters social connection while balancing energy and calm.





















This re-imagined street centred around the Falconridge/ Castleridge Community Association aims to bring a high street to the heart of Falconridge. Programmed spaces and upgraded infrastructure create a beacon in the North East for contemporary urban development.
































