General / Part 1 of 2

Page 23

TIMO.TSUI
SELECTED WORK SELECTED WORK SELECTED WORK

Set Completed / Construction On Going

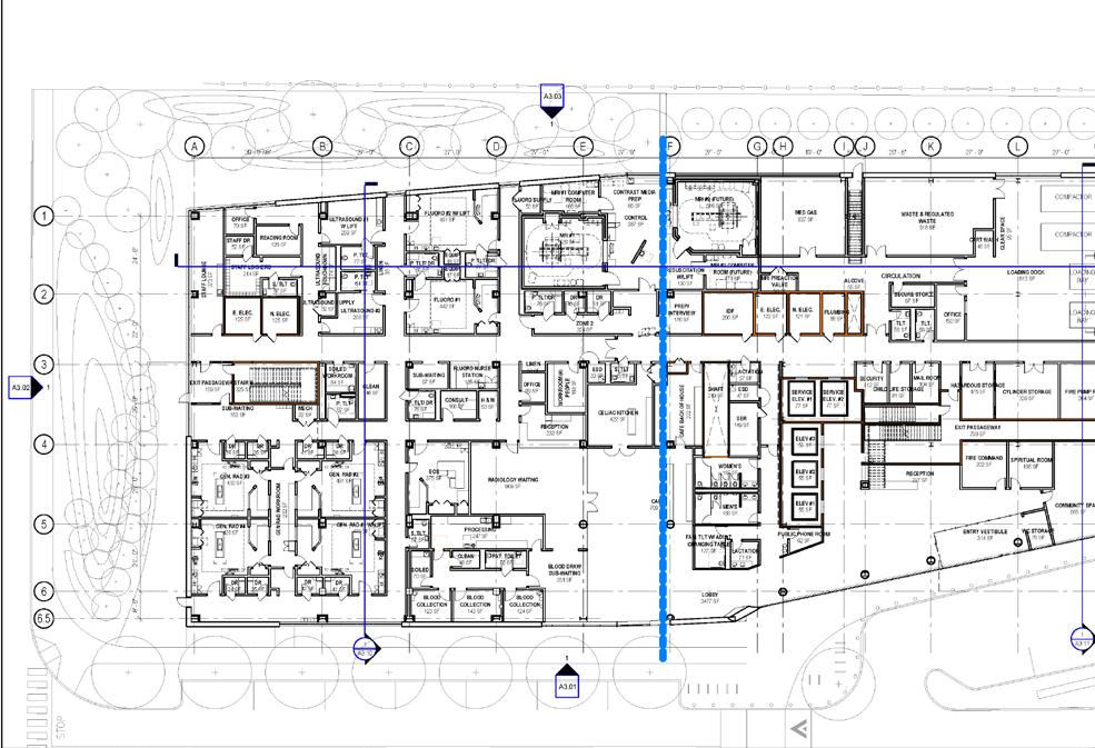
Hengqin Hospitals Zhu Hai, China

Payette Associates Boston, USA

Design/Model/Visualization/Set Drawing

NATURE

The project’s strong emphasis on nature takes advantage of the environment and climate, creating a harmonious environment in which to perform highlevel healthcare.

The building heavily incorporated inside and outside relationships, with landscape elements visible throughout.

Project Architect Shuan Morris, Senior Associate, Payette LDI Hu Nan Design Institute

Hospital

Campus

Subtropical climate

A general hospital flanked by five specialist hospitals. The campus encompasses a central garden bisected by a storm water channel. Nature is included to create a comfortable healthcare experience for patients and staff.

CONGLOMERATE

The main hospital houses both in and out patient facilities while the 5 specialty hospitals around it houses 5 different specialised healthcare modalities owned by different owners. Concept derived from Chinese characters, the elements join together to form a campus. Creating efficiency and harmony for patients and staff alike.

ADVANCE DESIGN

The campus features biomimicry design using computational techniques. Providing a natural experience for the user while enhancing utility with generating and analyzing geometric data

PODIUM AND RIBBONS

The podium’s edges accentuate the dynamic form and extend the curvilinear language found in the plan to the user’s experience, unifying the campus between the General Hospital and surrounding Specialty Hospitals.

COMPUTATION TO PRODUCTION

All geometries are computationally generated in Grasshopper using a periodic function; the periodic character of the function permits the division of repeating modules that can be stacked in offset orders to produce a dynamic form that does not appear repetitive. This decreases construction difficulties and cost without sacrificing aesthetics. The only identifiable components are the corner pieces, which are automatically isolated for tabulation.

FABRICATION PRODUCTION

The ribbons are comprised of GFRC modular components that produce a dynamic geometry with repeating modules, minimising one off elements to maintain production costs.

横琴医院

ARCH-E-GENERAL HOSPITAL - LEVEL 1

行政科研大厅 ADMIN AND RESEARCH LOBBY 421m2 清洁用品 影像科大厅 医护 清洁 患者运输 医护 清洁 患者运输 污物 楼梯 ED LOBBY 急诊大厅 患者电梯 钼靶 STAIR 楼梯 MRI MRI 阅片 辅助用房 厕所 示教室 系统体格测量 疫苗接种 药房 厕所 医护 清洁 楼梯 前室 观察室 医护电梯 WC/ SHOWER厕所 淋浴 厕所 淋浴 医护电梯 体检电梯 货运电梯间 厕所 楼梯 办公室 放疗 核医学 检验科 药房 病理科 教学 示教室 门诊电梯 门诊电梯 走道 护士站 医护换服 SOILED ELEVATOR污物电梯 住院大厅 楼梯 医护电梯 体检大厅 RESUSCITATION抢救 X光 带教诊室 急诊手术 CT扫描 DR 控制室 仪器储藏 药品室 办公室 收银 初诊 抽血 医护厕所 刷手 办公室 工作室 控制室 DR DR 储存 医护更衣 胃镜 DR 仪器储藏 患者运输走道 控制室 CT扫描 CT扫描 CT 仪器储藏 CT扫描 办公室 办公室 住院电梯 候诊 污洗室 住院电梯 ED ELEVATOR急诊电梯 消防控制室 行政电梯厅 OPEN TO ABOVE INJECTION注射室 急诊走道 污物电梯 医护 清洁 办公室 带教诊室 患者 访客走道 实验室 TREATMENT治疗室 INJECTION注射室 仪器储藏 医护走道 前室 注射室 隔离检查室 HEARING SCREENING听力筛查 VISION SCREENING视力筛查 开放式输液 带教诊室 带教诊室 带教诊室 带教诊室 带教诊室 GROWTH AND DEVELOPMENT CLINIC生长发育门诊 儿童心理咨询 NUTRITION CLINIC营养门诊 SPEAKING THERAPY语言治疗 心理智力测定 示教室 其他用房 清洁用品 污物用房 污洗间 候诊 走道 医护走道 走道 STAFF CIRCULATION医护走道 观察室 行政&科研电梯 行政&科研电梯 楼梯 医护工作室 门诊大厅 候诊 STAIR 楼梯 前室 楼梯 前室 WC/ SHOWER厕所 淋浴 楼梯 VESTIBULE 前室 前室 楼梯 厕所 空调水井 水井 排风 弱电 空调水井 排风 排烟 正压送风 医疗气体管道 LOGISTICS 物流系统 水井 正压送风 排风 排烟 AC WATER 空调水井 垃圾暂存弱电井 楼梯 楼梯 楼梯 楼梯 楼梯 楼梯 楼梯 前室 医护更衣 泄爆口 STAIR 楼梯 楼梯 楼梯 楼梯 接待 走道 医护休息 工作室 换服 换服 手术检查 手术检查手术检查 SURGICAL EXAM 手术检查手术检查 楼梯 楼梯 前室 走道 楼梯楼梯 前室 前室 楼梯 前室 楼梯 肺功能室肺功能室 咨询室变态反应检测室变态反应检测室 接待 登记 污物暂存 前室其他用房 呼吸科治疗 呼吸科治疗 清洁用品动脉功能检测室 医护换服 医护换服 带教诊室 带教诊室 带教诊室 带教诊室 带教诊室 带教诊室 咨询室 厕所 厕所 会议室 大厅 医护 清洁 患者运输 正压送风 护士站 工作室 护士长办公室 候诊 TOILET (M) 厕所 等候 功能检查 功能检查 更衣 ULTRASOUND 超声波 超声波 DR DR VESTIBULE 前室 观察室 楼梯 接待 登记 走道 前室 楼梯 SURGICAL EXAM 手术检查 走道 工作室 工作室 MRI 机房 机房 机房 机房 COMPUTERS 机房 COMPUTERS 机房 仪器储藏 走道 PATIENT TOILET 走道 走道 医护厕所STAFF TOILET 医护厕所 走道 前室 厕所厕所 TOILET/ SHOWER厕所 淋浴 药房 治疗室 护士站 抽血 走道 穿刺 隔离检查室 带教诊室 咨询室 咨询室 医护 清洁 住院登记 走道 等候 楼梯 前室 门诊大厅 候诊 急诊 Drawing Scale Date Issued
1 250 01/16/19

COMPUTATIONALLY GENERATED

A custom script in Grasshopper is written to computationally generate the whole canopy, including support columns, connecting bolts, and glass penalization, with only two curves passed as input as its guiding curves.

SHADOW

Utilizing the subtropical environment with a high sun angle, the canopy creates an interactive experience with the user by casting a parallax shadow pattern as the user travels along it.

DATA TO PRODUCTION

The computation of the over 1,500 modules incorporates solar analysis to create a cloud-like effect that reduces the building’s mass and provides shading. This provides the user with optimal sunshine and temperature conditions.

A stepper algorithm rationalizes the variable dimensions to limit the number of distinct production to 12, which we found to be required to generate a dynamic aesthetic.

Health Care Project USA

Payette Associates USA

Design/Model/Facade/Structure

Lead Megan van der Linde, Senior Associate, Payette Associates

Shuan Morris, Associate, Payette Associates

COMPUTATIONAL BRICK FACADE

Computationally generated in GH, more than 100,000 bricks are individually mapped using the two available brick colours to create a gradient blend. Drawings generated to instruct masons.

GROUNDED TERRAFORM

The organic-shaped lobby entrance roots the structure, lending it an earthly feel Penalized to optimize CNC milling process from cubic stock

USA PAYETTE Associates USA
Penn State University Maker Building
Design/Model/Set Drawing

SKYLIGHT

The top floor acts as a large open floor-plan that houses a communal light weight maker space. Tetrahedral skylights pops up from the sloped roof towards the north to collect sunlight while minimizing heat gain

CEILING PATTERN

Dropped Ceiling provides space for MEP and Lighting. Patterned lighting accentuates the overall openness of the space and the geometry of the origami ceiling

Design Tool: Project Data Dashboards and Massing Tools

By conducting 10+ real estate development feasibility analyses and pre-offer due diligence, including development rights, zoning by-law policy research, and massing study, I was able to construct algorithms and scripts using Python, C#, and GH to automate and streamline the initial design process.

This includes continuing the creation of the Data Dashboard using Power BI and Excel form data collected from Rhino3D geometry generated with C#, as well as the construction of a second real-time dashboard that gives design-oriented feedback in Rhino GH.

Mass stacking tools produce and input massing bays with minimal input, hence improving workflow productivity.

In addition, I worked on and refined internal C# scripts that generate building components from massing modules, such as balcony structures.

Overall by streamlining production processes and implementation of computational tools productivity for project acquisition work quadrupled.

Plumbing

Plumbing swiftly iterate It generates when designing loop to the to hours.

https://www.linkedin.com/posts/ic-intelligent-city_digitaltechnologyhousingsolutions-design-activity-6895076859080515584-WZAq

**Actualworkconsistofproprietarymaterial, Allimagesshownherearetakenfrompublicposts
Intelligent City Inc Vancouver, Canada

Plumbing Design Visualization Tool

Plumbing layout tool in Rhino Grasshopper is used to iterate through and visualise plumbing layout design. generates real-time visualisation and collision detection designing layouts, giving an immediate feedback the designer that reduces project times from days hours.

Online VR experience

Created an interactive virtual reality (VR) experience that allows the user to travel and interact with the building using stereoscopic images that provide 3D immersion in the Meta Quest 2 along with a web-based version. The experience was utilised as a primary marketing tool.

https://www.linkedin.com/posts/ic-intelligent-city_digitaltechnologyhousingsolutions-design-activity-6895076859080515584-WZAq

Exhibition Berlin

UNStudio Amsterdam

Design/ Research/ Administration/ Construction

TEAM Ren Yee Head of Innovation Strategy and Forecasting, UNStudio

Yoonjin Kim GSD

Marisa Cortright Business Development Officer, UNStudio

For UNStudio’s award for Architect of the year from A&W Magazine Research on the future of office and living design. When automation take over jobs, the future turn our focus back onto human faculties

REFLECTION

Reflective motifs and all mural lets the user look back at themselves and other people around them, to reflect upon the human faculties

Mirrored motifs are embedded with a screen to display various exhibits

Broken Bridges Hong Kong

First Prize, Awarded To be built

University of Hong Kong Hong Kong

Design/Model/Set Drawing

Team Gao Yan, Assistant Professor, HKU Vagina Goh

Huang Wen-ying

Museum

and public park showcasing remains of excavated ancient bridge footing found in underground dig. Exhibition Hallway hovers over historic relic.

LAAB Architects|Art

Hong Kong

Digital Craft/ Design/ Construction/ Fabrication

Clients include Hermes, Hong Kong Arts centre, Fringe Club

M+ Museum

DIGITAL TO CRAFT PRODUCTION

Computational design is used in the creation and building of art works, storefronts, and interior design. Digital fabrication techniques like CNC milling, laser cutting, and 3D printing are used on a daily basis. By combining digital and manual construction processes with in-house construction trades we are able to create bespoke work for high profile clients. Projects are created with Rhino3D and Grasshopper

processes create

Enter the Boid Academic

Team Jiho Song

Kally Wu

A virtual reality experience built in Unity that puts you in the role of a flocking member of the well-known Boids programme and features surrealistic aesthetics.

Object, 2013

Computational Design, Digital prototyping, digital design to production of the Butterfly Bracelet and Coral Light Pendent for LAAB Architect’s studio showcase.

Hospitality Project

Buro Ole Scheeren Beijing

Design/Model/Facade/Structure

Lead Dan Cheong Partner, Buro Ole Scheeren

NATURAL A high profile Exploration a natural formal Form and programme unconventional Structural model

FORMS

profile hospitality project of design of lobby and architecture shell/ various elements with formal language to create a welcoming and wonderful experience. programme must coordinate with structural strategy due to unconventional shape.

model generated in Grasshopper according to engineers drawings

Rhino Voice Control Program

Program in

To conduct modelling operations in Rhino 3D, the user must be actively engaged with a mouse and able to type commands into the command line box. This forces the user to awkwardly choose between typing efficiently by releasing the mouse or typing with one hand. This also contributes to bad ergonomics.

Therefore, if it were possible to eliminate typing and instead input via speech, the user would be able to model using only one hand.

Specific Rhino instructions, such as “DupSrf”, will not be recognised by existing speechto-text systems meant for conventional, everyday language. Therefore, a bespoke tool is required.

With C# in Visual Studios, the tool uses Microsoft’s native text to System.Speech. Recognition namescape, but common terminology and substitutes it with Rhino Commands. The application also performs Rhino-optimized macros, such as entering “return,” “space,” and numbers at required places.

The user interface is a Windows form; users can turn the application on and off and check the history of recognised instructions. When activated, Always On Top can be enabled for the programme.

Digital C# Speech to text software in C# that lets you model in Rhino3D by speaking Rhino Commands

Revit Import to Rhino

Tool for Rhino made in Python

Clean blocks exported from Revit to Rhino for significant increase of edibility

Projects exported from Revit comes with disorganised block structure and exploding discrete mesh.

This Python-based application will clean up the blocks, combine all mesh, and relocate them to the correct layer based on the object’s characteristics, making them significantly more editable and manageable.

The tool iterates through the Rhino block tables and the geometry table and evaluates the underlying mesh to operate on the blocks accordingly.

Typically, this will be fully skipped due to the impractical amount of time required. Instead, one will reduce the number of modifications and merely clean up the areas where they arise. However, this drastically restricts work since every move will require preperation. With this tool, the model is fully prepared to be used in seconds.

Shrink Wrap My Car

Digital production tool for 3D Print, creates approximate mesh from segregated or dirty models

1.

Model obtained from third party with complex noncontiguous volume. This cannot be 3D printed without labour intensive rebuilding process, taking hours or days

2.

Using custom mesh shrink wrapper tool to ensure topological contagious volume. Mesh points searches for collision until overlaying itself with third-party mesh

3.

Resulting topological contagious volume that can be 3D printed immediately. Reducing rebuilding time by 2 orders of magnitude

This method retains good level of detail enough for scaled model

Orginal model detail overview Coded in Grasshopper and Python

Auto Layer Render

Full Rhino Plugin in Python. Automates render images of multiple scenes, by iterating through selected design options with selected fixed elements

User Interphase

A custom command is added to the Rhino 3D command line once the plugin has been installed in order to invoke the script.

The user install the plugin by Rhino3D’s suggested .rhi package. A new custom command will then be made available to the user.

A very challenging and important aspect is how the user can intuitively pick which elements to iterate and which to stay fixed. I have chosen to use the native layer locking/unlocking system because it should already be familiar to modelers. The state of the Master layer should also be considered when encountering sublayers. Where View(s) will be selected with a popup.

A Repository Folder will be created with the Windows OS API at the same folder as the 3DM file to collect the renders. The files will be titled based on the layer names.

Multiple renders with multiple layer setups and multiple views that previously required hours to manually configure can now be generated in seconds.

Imagine manually adjusting each object one at a time in order to render them individually.

Redevelopment of social housing. Incorporation of Cultural Hub to help local resident move towards better financial standing

New Co-op housing for sustainable affordability for housing

Health /Housing New York

Academic

Distinction

Harvard GSD

Harvard GSD

TEAM Yoonjin Kim

Instructor Ben van Berkel, Founder, UNStudio

Christian Vedeller, Director, UNStudio

INTERACTIVE

App and web-page design so that the community can interact with the progress d developmet

PHASING

Step by step intervention facilitated by technology. From a physically and economically insulated community, towards a network and active participant of the city

01 02
03 04

COMPONENTS

Interventions for the community

Creates a cohesive interventions that allows the resident to procedurally introduce new elements for sustainable improvement

TOWER

Framework Design of co-op tower. Metabolic growth of amenities and communities. Units located on sides for view and health. Large common central core.

from Co-op Tower
View
View from Brooklyn Bridge entrance

Sun Light Pavilion Research

Lead Dr Olivier Ottevaere, Faculty, HKU

Using solar analysis to perform formal folding, this pavilion explores the relationship between geomteric form and solar characteristics. Made using Rhino GH

Turn static files into dynamic content formats.

Create a flipbook
Issuu converts static files into: digital portfolios, online yearbooks, online catalogs, digital photo albums and more. Sign up and create your flipbook.
General / Part 1 of 2 by Timo Tsui - Issuu