








![]()























PAINTED BRICK & TRIM ON THE ROCKS: SW 7671

FRONT DOOR
TRICORN BLACK: SW 6258

GARAGE DOOR
PUSSYWILLOW: SW 7643

WINDOWS






















ORIGAMI WHITE: SW 7636

WALL COLOR 1
DRIFT OF MIST: SW 9166

ACCENT
HOMBURG GRAY: SW 7622

IRON ORE: SW 7069




HAWTHORNE: SW 3518








make a grand entrance





DOUBLE DOORS
FLEX SPACE work headquarters at home


DOORS & DRAWERS

COUNTERTOPS

PERIMETER

COUNTERTOPS ISLAND


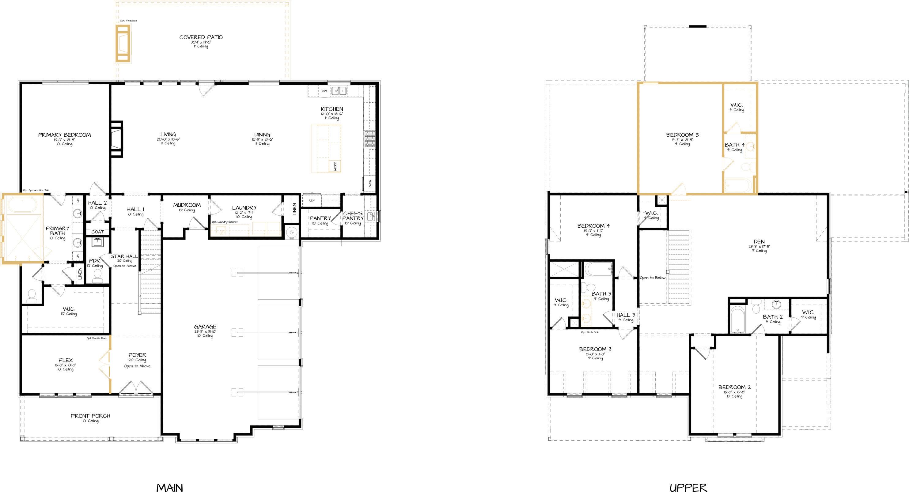
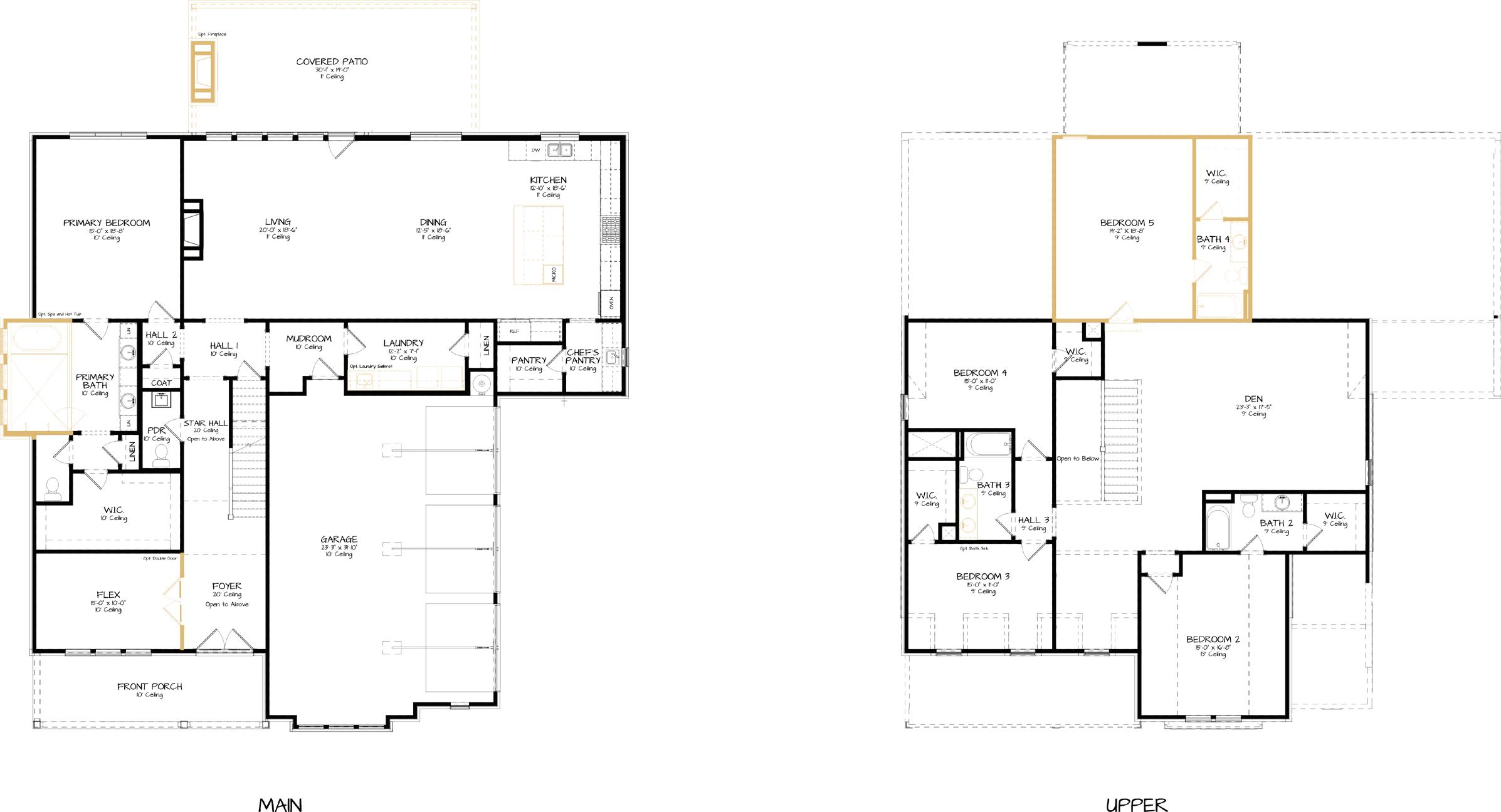
*Actual layout varies. Not to scale. For representation and illustrative purposes only cafe a la home

PERIMETER
KITCHEN FAUCET

FAUCET & SINK



chef approved




























beautiful, fashionable, durable









good food & good times



refresh, relax, repeat



















end your day on the highest note




































refresh, relax, retreat














half the bath, all the style






VANITY PEDESTAL
COLOR HOMBURG GRAY: SW 7622














refresh your look



bedtime story central






BED 2

BED 3 - 5

MUDROOM your place for life’s essentials



ENTRY BENCH



PATTERN