
1 minute read
BIODIVERSITY CENTER- AD SEM6
The term ‘biological diversity’ or ‘biodiversity’ refers to the variety of life on Earth. It denotes to the wide variety of ecosystems and living organisms as animals, plants, their genes and habitats. The earth and evolution processes are very ancient phenomena. Biodiversity centers serve as hubs for the conservation of various plant and animal species. They work towards preserving endangered and threatened species by providing suitable habitats, implementing breeding programs, and conducting research on their biology and ecology.They often offer interactive exhibits, guided tours, and educational programs that raise awareness about the value of diverse ecosystems and the threats they face. By promoting environmental literacy, biodiversity centers inspire individuals to take action and make informed decisions to protect biodiversity.
OBJECTIVES: a) To conserve the existing bio-diverse ecology b) To preserve the existing landscape features by implementing newer methodology c) To design a biodiversity Center
Advertisement
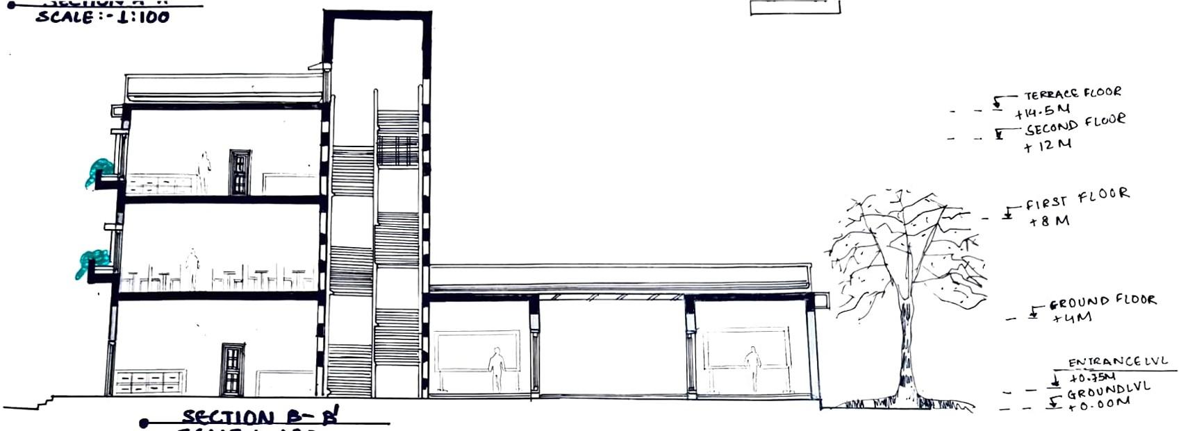
Built Up Area:- 3000 sq.m.
Mulund - Airoli bridge lies on the northern side of the site from where one can visit the forest range office, etc.
Global Significance: The high species diversity of birds in Thane Creek. Flamingo Santuary and presence of many globally important species along with the rich abundance of Flamingos makes the area globally significant and the site has also been categorized as under IBA.
It is an important part of the wetland complex and is a marine protected area declared under Wildfire Protection Act.
Visual connection of the site is dependent on the placement , amount and type of trees that are situated on the site. Most of the spaces of the site is not visible to human eye from outside because of the natural and man made features present.

