
1 minute read
Soulages Museum
Introduction Form
The Soulages Museum in Rodez has been completed to honor the works of the renowned French painter Pierre Soulages. The involvement of RCR Arquitectes, who went on to win the prestigious Pritzker Prize, and architect G Trégouët, speaks to the significance of this project. The museum provides a platform for Soulages’ artworks to be displayed and appreciated by a wider audience, and its design is a testament to the architects’ ability to create a building that is both functional and visually stunning.
Advertisement

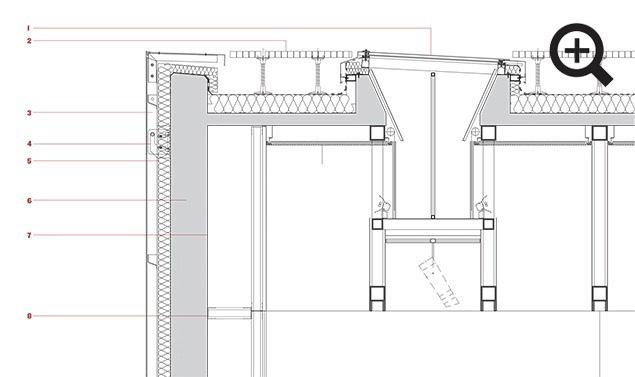
Details
According to this description, the museum is a modern and imaginative setting created to present contemporary art in a unique way. The use of weathering-steel display boxes is an intriguing decision, as this material is recognized for its endurance and resistance to weathering and corrosion. The fact that the boxes cantilever slightly from a slope contributes to the museum’s overall style and produces a dynamic and eye-catching exterior.

The boxes’ various heights, widths, and depths form an irregular shape and lend variety to the building’s facade. The use of transparent corridors and bridges to connect the galleries is an ingenious architectural solution that allows natural light to permeate the area and create a lively atmosphere.




The detail of the museum by RCR are very similar and quite diffrent in their details for example their approach to the glass and it being frameless is similar in both projects. Furthermore, the succession of interiors in both projects is intended to replicate the play of light and shadow that is important in Soulages’ paintings.

Interior and close up images of the Muraba residence











