Portfólio Scarllet Farias (2023)

Page 16

PORTFOLIO

PORTFOLIO
SCARLLET FARIAS |2023|
PORTFOLIO PORTFOLIO
PORTFOLIO PORTFOLIO PORTFOLIO PORTFOLIO PORTFOLIO
PORTFOLIO PORTFOLIO

arquiteta e urbanista

● e-mail: fariasscarllet@gmail.com

● data de nascimento: 08/11/1994

● contato: (85) 99645-1159

Tenho uma personalidade paciente, perseverante, que gosta de desafios, habilidade de trabalhar em grupo, tenho objetivo de trocar conhecimentos e constantemente demonstro me interessar em aprender e aprimorar minhas técnicas e conceitos que me são apresentados. Aplicada em sempre buscar aperfeiçoamento através das experiências no mercado de trabalho a partir de todas as oportunidades que julgo serem relevantes. Tenho grande admiração e habilidade para projetos arquitetônicos, elaboração de orçamentos, tecnologias da construção e representação gráfica e acredito no poder de transformação que a arquitetura possui para uma boa experiência do usuário.

e Urbanismo Centro 80% 80%

Fortaleza

- BR 2014 - 2020

Cláudia Castelo Branco Arquitetura e Interiores | Estagiária Apoio na elaboração de desenhos técnicos e maquetes em 3D.

Superintendência de Obras Públicas do Ceará | Estagiária

Apoio na elaboração de orçamentos, desenhos técnicos, levamentos in loco, maquetes 3D, especificação de materiais.

KG Construções| Auxiliar de Engenharia

Arquitetura 60% 80% 70% 50%

Universitário 7 de Setembro 70% 60%

Elaboração de orçamentos, desenhos técnicos, levamentos in loco, maquetes 3D.

Trio Construções | Técnica de Obras Elaboração de desenhos técnicos, levamentos in loco, maquetes 3D, especificação de materiais, orçamentos, medições e gestão de pequenas obras.

Secretaria de Turismo do Ceará | Arquiteta - Orientadora de Célula

-

(IV Semana de

SCARLLET FARIAS SCARLLET FARIAS
MIM
EDUCAÇÃO ADICIONAL SOBRE MIM EXPERIÊNCIAS SOFTWARES IDIOMAS IDIOMAS AutoCAD SketchUp VRay Photoshop Seobra Inglês Illustrator InDesing Pacote Office Revit EDUCAÇÃO ADICIONAL
SOBRE
EXPERIÊNCIAS SOFTWARES
03.2018 05.2018 05.2018 08.2018 09.2018 09.2019 01.2021 04.2022 04.2022 01.2023
Monitora da Unidade Curricular Desenho Arquitetônico
(BIM
Revit) 2016.1 Assistente do Laboratório de Conforto Ambiental 2016.2 Instrutora
Básico
Arquitetura)
Elaboração de desenhos técnicos, gestão e desenvolvimento de projetos e contratos. Intercâmbio Acadêmico Universidade do Minho Guimarães - PT 2017 75% 75%
3
do Workshop de Revit
2016

1 Terminal Intermodal OCA Serviços Freelancer

2 3

conteúdo conteúdo Complexo Rua dos Tabajaras Plataforma de Esportes Origami
1 2 3 4 4

1 1 Complexo Rua dos Tabajaras Complexo Rua dos Tabajaras

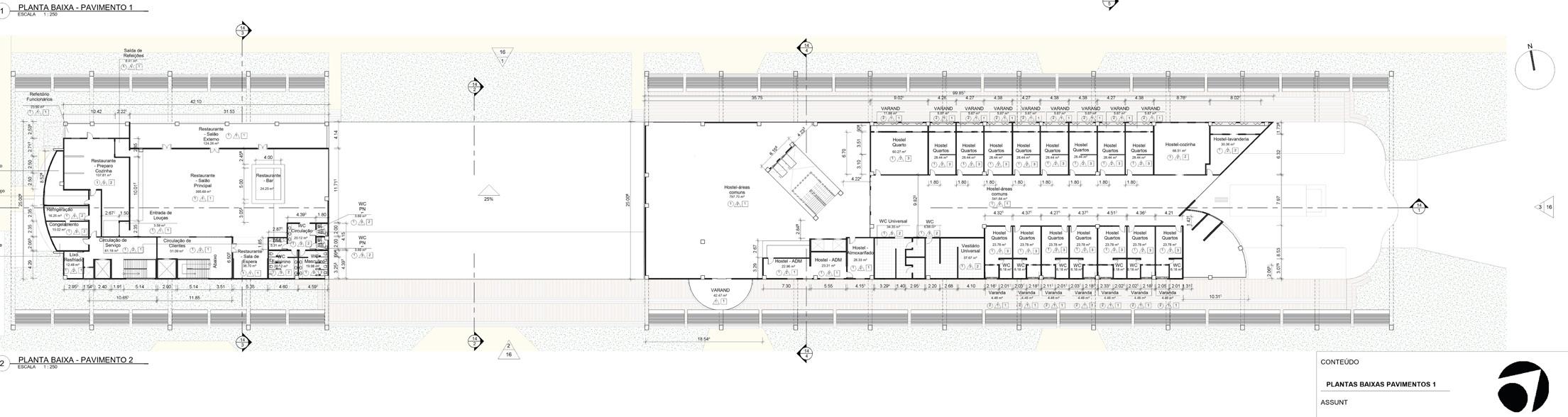
Complexo Rua dos Tabajaras: Novo uso para estrutura do Acquário

Complexo Rua dos Tabajaras: Novo uso para estrutura do Acquário

Fortaleza, Ceará - Praia de Iracema

Este é um trabalho elaborado como projeto final de graduação que propõe novos usos para estrutura inacabada do Acquário do Ceará, localizado no bairro Praia de Iracema em Fortaleza, Ceará, prevendo a implantação de um mercado e centro gastronômico regional, um albergue e espaços culturais. A proposta de um complexo multiuso em um edifício híbrido parte da necessidade de um equipamento que se adapte à realidade local do bairro, assim criando espaços democráticos e aproveitando uma estrutura que se encontra atualmente apenas em degradação e sem uso.

Fundamenta-se na reflexão da necessidade de ocupar e utilizar essa estrutura, a influência que ela possui por estar situada em uma área com grande potencial turístico e como fazer esse uso de

RUA DOS TABAJARAS ESTORIL AVENIDA ALMIRANTE BARROSO
RUA Arv B. CARIRIS 5 C C Arv C C C C C T T T T T T T Arv CENTRO CULTURAL DRAGÃO DO MAR PORTO IRACEMA DAS ARTES N CAIXA CULTURAL PAVILHÃO ATLÂNTICO RUA DOS TABAJARAS RUA DOS TABAJARAS AVENIDA PESSOA ANTA AVENIDA ANTÔNIO JUSTA AVENIDA ALMIRANTE BARROSO AVENIDA ALMIRANTE JACEGUAI RUA DOS TABAJARAS RUA DOS TREMENBÉS PRAÇA ALMIRANTE ESTORIL RUA DOS CARIRIS ESCOLAELVIRAESTADUAL PINTO AVENIDA ALMIRANTE BARROSO COMUNIDADE POÇO DA DRAGA AVENIDA ALMIRANTE TAMANDARÉ PONTE DOS INGLESES PONTE VELHA EDIFÍCIO VILA DE IRACEMA SITUAÇÃO 1 ESCALA 1/1000 LEGENDA PONTOS DE REFERÊNCIA OCEANO AREIA

ESTRUTURA EXISTENTE ESTRUTURA EXISTENTE

Partindo da premissa de menor quantidade de modificações o possível, foi elaborado um levantamento baseado em fotos tiradas no local e desenhos encontrados do projeto Acquário, assim considerando o que já teria sido executado para existência da estrutura. Para então dar continuidade ao projeto que propõe dar a estrutura abandonada um novo uso.

7 N RUA DOS TREMENBÉS

PROJETO PROJETO

8
9
Terminal Intermodal OCA Terminal Intermodal OCA
2 2

Terminal Intermodal OCA Terminal Intermodal OCA

Maracanaú, Ceará - Alto Alegre

O projeto do terminal intermodal, elaborado para disciplina de Projeto IV, fica localizado na região metropolitana, se cria a partir do conceito local, grandes espaços vazios, com algumas industrias, poucas residências e muita vegetação, preferimos fazer composições de tons terrosos e verdes. Pois o intuito foi criar uma edificação que se integrasse ao máximo com a paisagem.

Partido projetual escolhido é o movimento, devido o empreendimento ser um edifício de fluxo constante e intenso, decidimos retratar a dinâmica interna conotativa em suas fachadas circulares, dando a sensação de deslocamento conforme a perspectiva, tivemos como base inicial, atividades folclórica culturais, como as quadrilhas juninas e a sua evolução gradual. Ainda tentamos resgatar a arquitetura de nossos nativos, a estrutura de duas grandes ocas, e em seu meio um grande pátio central, dotado de vegetação, usado como chaminé de ventilação e exaustão. Nossos telhados são consistidos de quatro águas cada lado, que não se agrupam, com espaços de um metro entre cada um.

PROCESSO CRIATIVO PROCESSO CRIATIVO

COBERTA

IMPLANTAÇÃO IMPLANTAÇÃO

ponto de táxi espelhos d’água

praça oca alegre

high line

estação alto alegre/ passarela de acesso

terminal intermodal

ESTRUTURAL

12

PROJETO PROJETO

13 IDOSO TÁXI TÁXI TÁXI TÁXI TÁXI TÁXI TÁXI TÁXI TÁXI TÁXI TÁXI TÁXI N                          0 12,5 37,5 87,5 0 12,5 37,5 87,5   
Plataforma de Esportes Origami Plataforma de Esportes Origami
3 3

Plataforma de Esportes: Origami Plataforma de Esportes: Origami

Foi elaborado durante a disciplina de Projeto VI no intercâmbio acadêmico na Universidade do Minho em Portual, onde já se encontrava o desafio de projetar em um país diferente. Então através de pesquisas e aulas teóricas sobre a cultura e modos de viver no Japão foi desenvolvido o projeto da plataforma de esportes, localizado na cidade de Yokohama no Japão, se cria a partir do conceito do origami é uma arte cultural e milenar japonesa que com o passar do tempo passou a ser praticada por todas as idades. Partindo desse princípio a criação do conceito desse projeto foi inspirado na ‘’desconstrução’’ de um origami, onde se faz uma rebuscagem de uma tradição do país, mas de uma forma moderna.

O principal foco foi desenvolver uma estratégia para que existisse iluminação e ventilação naturais, pois o terreno que fazia parte da proposta, se situava entre edifícios consolidados e de gabaritos acima de 5 pavimentos. Então o edifício se desenvolve a partir de dois átrios que permitam a entrada desses elementos em todos os pavimentos.

SOLUÇÃO ESTRUTURAL

SOLUÇÃO ESTRUTURAL

16
ESTUDO DE LUZ E SOMBRA
ESTUDO DE LUZ E SOMBRA
17 N N 0,00 2,50 1,00 5,00m 0,00 2,50 1,00 5,00m 0,00 2,50 1,00 5,00m 0,00 5,00 2,00 10,00m 0,00 5,00 2,00 10,00m

4 4

Serviços Freelancer Serviços Freelancer

Transformação de Desenhos

Transformação de Desenhos

Os desenhos apresentados a seguir, são parte de um trabalho freelancer feito por alguns meses para a empresa Butlerium GmbH, na Alemanha. Basicamente é requisitado a transformação de plantas baixas em croquis e exigido que as transforme de maneira mais técnica e visualmente mais legível.

Plantas Humanizadas

Plantas Humanizadas

O trabalho apresentado é um exemplo do serviço prestado para um escritório de arquitetura de Fortaleza que me forneceram seus desenhos técnicos, desenvolvidos no AutoCAD e solicitou que eu elaborasse plantas humanizadas como parte do projeto.

12 34 13 21 4 76 13 64 9 8 m 12 34 13 21 4 76 13 64 9 84 m 2 4 76 4 76 14 39 11 14 m 14 39 11 14 m 3 8 EG Wohnen Küche Bad Schlafen F ur Wohnen Küche Bad Sch a en F ur F ur Bad Bad Wohnen Küche S hl f F ur Wohnen Küche S h F ur ARQUIVO ORIGINAL ARQUIVO ENTREGUE 33 09 m 12 12 m2 4 49 m 3 33 m2 12 64 m2 4 43 m2 5 93 m2 13 78 m2 5 81 m 18 73 m2 7 48 m 9 0 3 15 975 Schlafen Bad Wohnen / Essen Küche Diele HWR / HTR Diele WC Abstel Küche Wohnen / Essen

Quarto Amarílio Quarto Amarílio

Em parceria com Luiziane Mendes, desenvolvemos um projeto de quarto para o cliente Amarílio, que desejava um ambiente aconchegante com espaço adequado para armazenamento organizado de pertences, além da inclusão de uma área de trabalho funcional.

21
1 PLANTA BAIXA - MÓVEIS ESCALA 1/30 01 1 02 1 02 2 03 2 03 3 04 3 04 4 06 4 05 1,54 1,45 0,66 1,20 0,60 0,80 1,68 0,50 0,18 0,80 2,00 0,73 GUARDA-ROUPA EM MDF VIENA - FLORAPAC PARTES INTERNAS EM MDF BRANCO TEXTURIZADO GUARDA-ROUPA EM MDF VIENA - FLORAPAC PARTES INTERNAS EM MDF BRANCO TEXTURIZADO ESPELHO PRATA COLADO NO MDF (PORTA DO GUARDA-ROUPAS) PAINEL CABECEIRA CAMA EM BRANCO DIAMANTE LINHA CRISTALLO DURATEX MESA DE CABECEIRA EM MDF EBANO CARBONEFLORAPAC PAINEL RIPADO EM MDF EBANO CARBONE FLORAPAC PAINEL TELEVISÃO BRANCO DIAMANTE LINHA CRISTALLO DURATEX GAVETAS EM MDF EBANO CARBONE - FLORAPAC 5 07 MESA LATERAL (MODELO A DEFINIR) ARANDELA (MODELO A DEFINIR) TAPETE (MODELO A DEFINIR) CORTINA ROLO PORTA ACESSO WC (EXISTENTE) CORTE 2 - MÓVEIS ESCALA 1/20 01 0,20 0,37 2,87 2,45 PARTES INTERNAS GUARDA-ROUPAS MDF BRANCO TEXTURIZADO 0,10 0,34 0,33 1,17 0,21 0,21 0,21 0,21 0,08 PAINEL CABECEIRA CAMA EM BRANCO DIAMANTE LINHA CRISTALLO - DURATEX 0,55 0,73 2,00 0,80 1,15 PAINEL RIPADO EM MDF EBANO CARBONEFLORAPAC MESA DE CABECEIRA EM MDF EBANO CARBONEFLORAPAC 0,03 MESA LATERAL (MODELO A DEFINIR) ARANDELA (MODELO A DEFINIR) CORTINA ROLO GAVETA GAVETA GAVETA GAVETA VISTA INTERNA 1 - GUARDA ROUPA ESCALA 1/20 01 0,33 0,35 0,40 0,40 0,40 0,40 0,40 0,08 0,10 3,02 1,40 0,66 0,49 0,49 0,49 2,18 1,14 0,21 0,21 0,21 0,21 0,18 1,86 0,76 0,22 0,38 0,51 0,49 0,18 0,18 0,18 0,18 0,41 0,41 0,40 0,98 2,08 0,70 GUARDA-ROUPA EM MDF VIENA - FLORAPAC ACESSO A PORTA DE WC (EXISTENTE) ESPAÇO RESERVADO PARA MALAS ESPAÇO RESERVADO PARA MALAS PARTES INTERNAS GUARDA-ROUPAS MDF BRANCO TEXTURIZADO 1,09 0,20 0,16 0,17 0,37 0,15 2,87 CORTE 5 - MÓVEIS ESCALA 1/20 01 MESA DE CABECEIRA EM MDF EBANO CARBONEFLORAPAC PAINEL RIPADO EM MDF EBANO CARBONEFLORAPAC 0,03 0,18 0,53 GAVETA GAVETA
PORTFOLIO PORTFOLIO PORTFOLIO PORTFOLIO PORTFOLIO CONTATO: FARIASSCARLLET@GMAIL.COM |2023|
PORTFOLIO PORTFOLIO PORTFOLIO PORTFOLIO PORTFOLIO

Turn static files into dynamic content formats.

Create a flipbook
Issuu converts static files into: digital portfolios, online yearbooks, online catalogs, digital photo albums and more. Sign up and create your flipbook.