Skip to main content

Interior Design portfolio

Page 7

RESUME EDUCATION SOFTWARESKILLS LANGUAGES SOFTSKILLS/ TRAITS INTERESTS ANDHOBBIES CERTIFICATIONS UNDERGRADUATE Manipal school of architecture and planning, Manipal Batch of 2023 HIGHERSECONDARY National Institute of open schooling 2018-2019 KendriyaVidyalaya,Calicut,Kerala 2017-2018 • Painting • Sketching • Drafting • Creative • Team player • Responsible • Easygoing • Open to ideas and suggestions • Resourceful • Photography • Reading • Water colouring • Traveling • Sketching • Bottle art • Football • Badminton FUNDAMENTALSOF GRAPHICDESIGN California Institute of the Arts (Coursera) GREEK AND ROMAN MYTHOLOGY University of Pennsylvania(Coursera) rizwaf.rahi@gmail.com Kozhikode,Kerala rizwaf _ contact +919847112480 AutoCAD Sketchup Autodesk Revit Twin Motion Photoshop Malayalam English Hindi MS Office Riswaf N I’m a final year interior design student who is aspiring to do a master’s degree in furniture design to improve my field of expertise further. Lumion

HEALTHCARE PROJECT 1

HEALTHCARE PROJECT

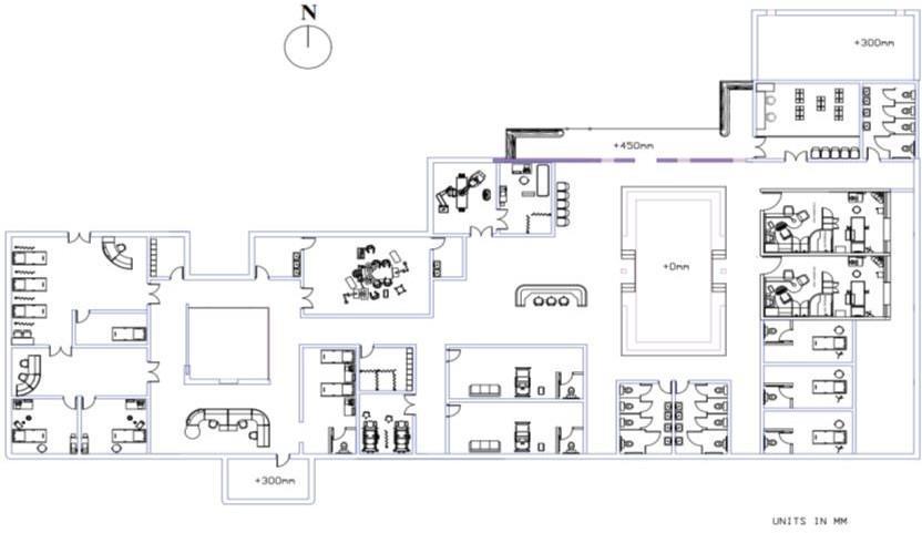
PROJECT BREIF: WOMEN AND HEALTHCARE

SITE BRIEF: LOCATION:FARIDABAD

THE SITE ISLOCATED IN BALLABGARH, FARIDABAD.ITIS 56.7 KM FROM THE NATION’S CAPITALDELHI

AIM:

To design women’s centers that are redefining their delivery model to manage the healthcare needs for entire populations of women in varying stages of life.

CONCEPT:

Minimalism is about avoiding the unnecessary, it’s about simplicity, utility, and elegance. It’s all about “LESS IS MORE” in terms of embracing the most of fewer things.

The minimalist approach uses only the essential elements: light, form, and beautiful materials, usually in an open plan layout,to create a sense of freedom and relaxation. There is no excessive ornamentation and decoration. Instead, the few details that are used are uncomplicated and blend harmoniously into the setting.

SPACES IN HEALTHCARE DESIGN :

1.CONSULTATION ROOM

2. RECEPTION AREA

3. EMERGENCY ROOM

4. OPERATION THEATRE

5. DELIVERY ROOM

6. ICU

7. LABOUR ROOM

8. SCRUB ROOM

9. X-RAY ROOM

10.NURSE STATION

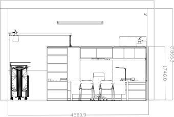
CONSULTATION ROOM

There are 2 consultation rooms in the hospital. The rooms are made in such a way that there are 2 sections to the room.The consultation area and procedure room.The partition is done using long wooden panels of 2 meters and the procedure room has a bed for inspection

Key plan

The material covering the mattress is generally rexine or plastic to ensure waterproofing. The cover material is FRfabric that is Fire Retardant.

Polyester Curtains

Oak Veneer

Vitrified Tiles

ELEVATION

PLAN
Marine plywood

OPERATION THEATER

Key plan

CERAMIC CEILING LIGHT

PLAN

The operation theatre section is a combination of 3 rooms. The theatre has 2 entrances, a double door for the patient and one through the scrub room for the doctor.And a sanitation room is also attached to the main theatre

Gynaecology Surgical

Operation Table Operation

Theatre Bed Operating Bed

Material: Stainless Steel.

Type: Manual Bed.

Folded: Unfolded.

WALL TILE CLADDING

METAL WASHBASIN

ELEVATION

RESIDENTIAL PROJECT 2

LIVING ROOM

Requirements ofa Scandinavian interior

Muted Colours

Natural Lighting

Modern Furniture

Decluttered Space

Wood Accents

Greenery

Less is More Approach

Scandinavian interior design is a minimalistic style using a blend of textures and soft hues to make sleek,modern décor feel warm and inviting. It emphasizes clean lines, utility, and simple furnishings that are functional, beautiful, and cozy. High contrasts are the hallmark of Scandinavian interior design. Ithelps create a dramatic, impactful statement

The living hall is the most spacious room in the whole plan with ample space to keep a big couch a center table and a shelf.

The space has a 6 seater l shaped sofa which is in beige with dark wood handles keeping in mind the Scandinavian theme. They also have a built-in shelf on the wall opposite the entrance with acts as a book stand and as a TV stand. The flooring throughout the house is done using red oak

REXINE NYLON RED OAK FLOORING

BED ROOM 1 & 2

Bedroom 1 contains 1 big window and 1 long horizontal window on adjacent walls. The room is done in a pale beige theme like the rest of the house following a Scandinavian theme. The room contains a walnut bed and marine plywood cupboards opposite to it. The room also contains a study table made with a maple tree. A small bookshelf is provided on the wall which is covered with a wooden laminate

KEY PLAN

Bedroom 2 has 1 window on one side and 2 smaller windows on the other. The walnut bed is placed between the 2 windows facing the inbuilt cupboard. The cupboards are made using marine plywood which is covered using satin finish white paint

BEDROOM 1 BEDROOM 2

REXINE MARINE PLYWOOD COTTON WALLNUT
FIBERBOARD MAPLE

MASTER BEDROOM AND LIBRARY

The master bedroom is designed in such as way that the mahogany bed is facing the window and the cupboard. The personalized cupboard is designed with built-in seating at the level o9f the window allowing the user to sit and enjoy the view outside. This brings openness to the area.The stricture is made as a combination of shelves and drawers to accommodate all needs. Itis made using marine plywood to make it long-lasting.

KEY PLAN

Back support is also important for library bean bags as people will be sitting for extended periods of time

A spotlight is a smaller light compared to other lights. This is because a spotlight illuminates a much smaller area.Spotlights concentrate their light on one particular space to highlight it, and to make that area a focal point in your home.

A mini-library is provided in the hallway next to the dining area.The library contains a self series with different sizes of books combined to allow books of different sizes.The area can be provided with a small couch or a bean bag,making it a comfy and approachable area for relaxation. A set of 4 spotlights are provided for ample reading light.

MARINE PLYWOOD POLYESTER MAHOGANY PLYWOOD GREY OAK LAMINATE

INTERNSHIP WORKS 3

PROJECT NAME: RNW

PROJECT TYPE: RESIDENTIAL

ROOM DETAILS AND REQUIREMENTS:

THE REQUIREMENT OF THE CLIENT FOR THE ROOM WAS TO HAVE A MULTIPURPOSE SPACE WHEN THEY COULD RELAX AND ENJOY A QUIET EVENING. THEY WANTED THE SPACE TO HAVE A HOME THEATER AND ANOTHER SECTION OF THE ROOM THAT CAN BE USED AS A MUSIC AREA BY THEIR SON.

THE MUSIC AREA WOULD BE WHERE THE SON AND HIS TEACHER WOULD LEARN HIS GUITAR. HENCE THE AREA WAS PROVIDED WITH A DIWAN FOR THE TEACHER AND A MATTRESS FOR THE STUDENT. THE WALL WITH THE HOME THEATER IS DONE IN BRICK CLADDING AND THE WALL OPPOSITE IS ADORNED WITH WOODEN RAFTERS IN SPECIFIC PATTERNS.

FURNITURES:

THE FURNITURE THAT WAS USED IN THE DESIGN HAD TO BE TRADITIONAL AND PRACTICAL BASED ON THE CLIENT’S REQUIREMENTS.

ONE OF THE MAIN ELEMENTS WHEN CONSIDERING THE FURNITURES USED IN THE DESIGN IS THE RUSTIC-THEMED APOTHECARY TABLE. IT CAN BE USED AS A STORAGE UNIT AS WELL AS A TEAPOY

ANOTHER REQUIREMENT WAS TO CREATE A SPACE TO PRACTICE MUSIC. THE DIWAN WAS USED AS SEATING FOR THE MASTER AS HE TAUGHT HIS STUDENT. ITS DONE IN A TRADITIONAL THEME USING MAHOGANY.

FIRST FLOOR KIDS BEDROOM PARTITION WALL

PROJECT NAME: RNW

PROJECT TYPE: RESIDENTIAL

FLOOR NO. : GROUND FLOOR

THE RNW PROJECT IS A THREE-FLOOR VILLA OWNED BY RAKESH AND LAKSHMI IN BANGALORE. THE FIRM HAS BEEN GIVEN THE TASK OF RENOVATING THEIR HOME ADHERING TO A TRADITION ARTISTIC THEME. THEY REQUIRE NATURAL EARTHLY MATERIALS IN THEIR INTERIORS. SO A LOT OF WOODEN TONES AND NATURAL MATERIALS HAVE BEEN USED.

SECOND FLOOR BOOK SHELF DESIGN

THE FIRST DESIGN GIVEN TO THE CLIENT WAS A THREAD ART WORK DESIGN WITH CIRCULAR HOOPS STACKED ON EACH OTHER. THE SECOND DESIGN WAS AN ABACUS INSPIRED DESIGN WITH MOVABLE CYLINDRICAL BEADS ON METAL RODS

THE SHELF HAS BEEN DESIGNED BASED ON A TRADITIONAL THEME WITH A MODERN APPROACH. THE DEAVWERS AND THE SHELVES HAVE PATTERNED TEXTILE COVERING. THE BASIC FRAMEWORK OD THE SHELF IS DONE IN SOLID WOOD WITH THE SHELF BEING MADE USING 2 MM PLYWOOD WITH SATIN FINISH PAINT.

THE DRAWERS HAVE BEEN GIVEN BRASS HANDLES

PATTERNED CLOTH COVERING

FRONT ENTRANCE CHARUPADI

APOTHICARY TABLE

WOODEN RAFTERS FREESTANDING SHELF FOR GUITAR BEIGE TRADITIONAL WALLPAPERS

INSPIRATIO

BRASS DETAILING

THE CHARUPADI WAS DESIGNED FOR THR FRONT ENTRANCE AREA. THE DESIGN REQUIREMENT WAS TO MAKE IT A STORAGE UNIT THAT CAN BE USED AS A SHOE RACK. A TRADITIONAL THEME WAS USED IN THE MAKING OF THIS UNIT. FOR THE SHOE RACK AREA, LOUVERS WERE USED TO MAKE THE SHELFS AIRIER AND THUS REDUCING THE RISK OF ODOUR. THE SOLID WOOD PANELS

LOUVERED DOOR

BRICK CLADDING

PROJECT NAME: AJIYO’S RESIDENCE

PROJECT TYPE: RESIDENTIAL

SPACE : LIVING ROOM & FOYER

PROJECT DETAILS AND REQUIREMENTS:

THE CLI9ENT NEEDED A SIMPLE AND PRACTICAL INTERIOR SPACE DESIGN FOLLOWING A COMBINATION OF FARMHOUSE THEMA AND COTTAGE THEME. DUE TO THIS A LOT OF WOODEN ELEMENTS HAVE BEEN USED IN THE DESIGN. THE USE OF LIGHT NEUTRAL COLOURS WITH WOODEN ACCENTS WAS PREFERRED.

WOODEN BEEDING

BAMBOO PENDANT LIGHTS

THE LIVING SPACE IS A DOUBLE-STORY HEIGHT STRUCTURE WITH A SLANTING CEILING. FOR THE PURPOSE OF REDUCING THE HEIGHT, WOODEN RAFTERS WERE USED FROM ONE END TO THE OTHER AND A CHANDELIER IS USED AS THE MAIN SOURCE OF LIGHTING

WOODEN TILE FLOORING

BRICK TILE WALL CLADDING

FOR THE CEILING IN THE FOYER AREA, WOODEN PANELS WERE USED AND ON TOP OF IT, THICK WOODEN RATERS WERE PLACED IN A PERPENDICULAR DIRECTION GIVING A BIT OF TEXTURE TO THE FOYER WHICH ACTS LIKE A BUFFER SPACE BETWEEN THE LIVING SPACE AND THE DINING AREA

BAMBOO EASY CHAIRS WITH BRIGHT COLOURED CUSHIONS

RUSTIC THEME CENTER TABLE TO BE ACQUIRED FROM PEPPERFRY.COM

BAMBOO PENDANT LIGHTS

PROJECT NAME: RNW

PROJECT TYPE: RESIDENTIAL

SOLID WOOD BUILT IN SEATING FOR THE FOYER

FLUTER PANELS

WALL PANELS PAINTED IN DIFFERENT COLOURS

THE DESIGN REQUIREMENT WAS TO CHANGE THE PANELS BEHIND THE HEADREST BASED ON THE CLIENT’S PREFERENCE. INITIALLY, THE DESIGN HAD PANELS WITH CIRCULAR PROJECTIONS ON IT WHICH WERE EXPENSIVE AND TOOK TIME TO MAKE.

THE DESIGN WAS THEN CHANGED TO A MUCH SIMPLER ONE WITH PANELS BETWEEN WHICH WERE WOODEN BEEDINGS. THE PANELS WERE COLOURED IN A RANDOM PATTERN WITH LIVELY COLOURS AS IT WAS FOR THE KID’S BEDROOM

SEATING DESIGN

THE REQUIREMENT WAS TO DESIGN A SEATING WITH STORAGE FOR THE ENTRY FOYER. THE SEATING HAD TO BE SMALL ABD COMPACT FOR THE SPACE AND SHOULD BE ABLE TO STORE THINGS IN IT. THE STRICTURE IS DONE IN PLYWOOD AND WOOD LAMINATE. THE DRAWERS ARE DONE IN A RUSTIC TEXTURED LAMINATE

THE PARTITION WALL WAS DESIGNED FOR THE LIVING SPACE IN RNW PROJECT. THE TASK AT HAND WAS TO CREATE A MOVABLE, LIGHTWEIGHT PARTITION TO BE KEPT IN BETWEEN THE STUDY AND THE LOUNGE AREA. THE PARTITION IS DONE USING WALNUT FRAM WITH DIFFERENT PATTERNS OF CAIN IN BETWEEN THEM. THE CAIN IS ABLE TO CREATE A PARTIALLY ENCLOSED SPACE BETWEEN THE TWO AREAS.

PROJECT
KIDS BEDROOM WORKING DRAWING
NAME: RNW CAIN
WALLNUT FRAME
SPACE PARTITION
LIVING

LIVING SPACE DESIGN AND RENDER

PROJECT NAME: RAM’S RESIDENCE

FURNITURE DESIGNING

PROJECT NAME: HIRANANDANI

THE REQUIREMENT WAS TO DESIGN A CREDENZA WITH A SIMPLE PATTERN FOR THE LIVING SPACE. THE STRUCTURE IS DONE USING PLYWOOD AND THE PATTERN IS DONE USING PAINTED WOODEN PANELS.

PROJECT NAME: ALUVA INTERIORS

THE REQUIREMENT WAS TO DESIGN A SIDE TABLE FOR THE LIVING ROOM WHICH HAS A CIRCULAR TOP. THE TOP IS MADE USING MARBLE AND IT HAS A CONICAL STRUCTURE COVERED WITH BRAZZ

GRANITE TOP

METAL SUPPORT STRUCTURE

BRAZZ SHEET

OTHER WORKS AND SKILLS 4

MISCELLANEOUS WORKS

Project type:- Commercial project

Brand:- Diesel

Type of trade:- Clothing

The project given was to design a front window display for a known brand keeping in mind their past display designs, their ideology, and concepts. The brand taken for the project is DIESEL.

DIESEL usually keeps a rustic or industrial concept for its front display. Taking that into consideration, industrial modern was taken as the concept. The back wall of the display is done with thin concrete slab cladding to bring in an industrial look. A castiron ramp is provided to create a different level of perception for the customers.

Mannequins are placed on the ramp and below it creating an assorted harmony that representsthe brand and its concepts

Monument name:- wings of protection

Location:- Calicut beach, Kerala

Purpose:- to spread awareness about the tsunami, to mourn the dead Material:- stainless steel

Concept:- the wings protect the people sitting, from the wave

The project given was to design a monument based on a disaster that happened in India. The disaster that Ichose was the 2004 Tsunami.

The structure is a huge stainless steel wings installation which is covering the seating area in front of it. The whole monument is submerged partially into the sea. When the waves come in contact with the concrete slab, it splashes towards the seating area only to be protected by the giant wings. The monument is a metaphorical structure representing the struggle against Tsunami.

PHOTOGRAPHY

Turn static files into dynamic content formats.

Create a flipbook