PortfoliO

Page 10


INFORMATION

Omer Khalid Chaudhary is an accomplished architect and urbanist with a strong educational background and extensive experience in the field. He completed his Bachelor of Architecture (B. Arch) degree at Beaconhouse National University in Lahore, followed by a Master of Science in Architecture (MSc) from the prestigious University of Liechtenstein in July 2016.

Omer’s expertise extends beyond traditional architecture, encompassing urban planning and design. As an urbanist, he possesses a comprehensive understanding of the interconnectedness between buildings, infrastructure, and the surrounding environment. This multifaceted approach allows him to develop innovative solutions that promote sustainable and resilient urban development.

His professional journey began at Nayyer Ali Dada & Associates in 2009, where he started as a site architect for the Paragon Housing project. His outstanding performance and dedication led to his promotion to the role of Project Architect, where he played a key role in the successful completion of notable projects such as the NEPRA Office Building in Islamabad (2010) and Fortress Mall in Lahore (2010). In addition to his involvement in large-scale and complex projects, Omer has also contributed to various residential projects, including interior designs and private residences.

Recognized for his expertise and talent, Omer received an offer in 2012 to join Construct Architecture office in Lahore as a Senior Architect and urban planner. Meanwhile, he also shared his knowledge and passion for architecture as a guest tutor for Architecture Studio at Beaconhouse National University.

To further enhance his skills and specialize in Sustainable Design, Omer relocated to Liechtenstein in 2014. During his time there, he collaborated with renowned Professor DI MAAS Peter Droege on real projects initiated by city councils. Notably, he contributed to the redesigning of Barcelona in Spain and the creation of A SufficienCity for Lake Constance: St. Gallen 2050 in Switzerland. His thesis, focused on Healing Lausatia in Germany, emphasized regenerative design strategies to build resilience against both artificial and natural disasters, transforming the region into a haven for climate refugees.

Following the completion of his studies at the University of Liechtenstein, Omer returned to Lahore, where he pursued freelance architecture practice and teaching. In August 2017, his exceptional skills led to an offer from the Special Economic Zone Authority at Duqm (SEZAD), where he joined as an Urban Planner/Designer & Architect. Working independently, Omer successfully executed several urbanscale projects, including the Fisheries Industrial Zone, Duqm City

Master Plan spanning 2200 square kilometers, and the Duqm Industrial Zone. He collaborated with esteemed firms such as SOM, Parsons, Atkins, and Surbana Jurong. Omer’s determination, positive attitude, and versatility made him an invaluable asset at SEZAD, resulting in his promotion to the role of Senior Urban Planner/Architect in 2019. In this capacity, he assumed leadership of the studio in Duqm.

In January 2022, Omer returned to Lahore and accepted the position of GM of Design (Urban Design and Architecture) at Al Jalil Developers. Currently, he is actively involved in five distinct urban-scale projects, spanning from 1000 to 5000 acres. Notably, these projects prioritize resilient development in the face of natural calamities, setting them apart as unique endeavors in Pakistan. Omer’s expertise as an architect and urbanist, combined with his commitment to innovative design, make him an invaluable asset to Al Jalil Developers.

Overall, Omer Khalid Chaudhary’s impressive academic qualifications, diverse project experience, and noteworthy achievements position him as a highly skilled architect and urbanist with a comprehensive understanding of sustainable design, urban planning, and architectural development.

Name Omer Khalid Chaudhary

Date of Birth 20 October 1987

Nationality Pakistani

Address 19 K1, Wapda Town City Lahore Country Pakistan

Phone Number +92 310 3631666

E-mail omerkhalid@hotmail.com

EDUCATION

MASTER OF SCIENCE IN ARCHITECTURE (MSc. Arch)

SEP 2014 / JUL 2016

UNIVERSITY OF LIECHTENSTEIN, Vaduz, Liechtenstein

Achievements

- Specialized in Sustainable Urban Design - API Scholarship from University of Liechtenstein

ERASMUS EXCHANGE (Building Technologies) SEP 2015 / FEB 2016

KU LEUVEN, Ghent, Belgium

WORK EXPERIENCE

AL-JALIL DEVELOPERS

Since | 2022/01 - Present Position - GM Design (Urban Design & Architecture)

Address Faizpur Interchange, Main Sharaqpur Rd, Lahore, Pakistan

Fax: +92 42 111 333 987

Email: info@aljalildevelopers.com

website: www.aljalildevelopers.com

SEZAD (Special Economic Zone Authority at Duqm)

Since | 2017/11 - 2022/01

Position - Senior Urban Planner | Architect

Address P.O. Box: 25, P.C. 103, Bareeq Al Shatti, Sultanate of Oman

Fax: +968 245 874 00

Email: info@duqm.com website: www.duqm.gov.om

TADO / PACKAGES CONSTRUCTION

Since | 2016/08 - 2017/10

Position - Architect | Design Coordination Manager

Address: Shahrah-e-roomi, Lahore, Pakistan Phone: +92 42 35811195 / +92 42 36602833

Email: info@packages.com.pk/info@tado.co.com Website: www.packages.com.pk

LANGUAGES

BACHELOR OF ARCHITECTURE (B.Arch) SEP 2004 / JUL 2009

BEACONHOUSE NATIONAL UNIVERSITY, Lahore, Pakistan

Achievements

- Honors in B.Arch Degree - Dean’s Honors list

CONSTRUCT

Since | 2012/11 - 2014/06 Position - Senior Architect

Address: 41-B, Gulberg II, Lahore, Pakistan

Phone: +92 42 35760420

Email: contact@construct.com.pk

Website: www.construct.com.pk

NAYYER ALI DADA & ASSOCIATES

Since | 2009/09 - 2012/10

Position - Project Architect

Address: 7 F/3 New Muslim Town, Lahore, Pakistan

Phone: +92 4235864191

Email: info@nayyaralidada.net

Website: www.nayyaralidada.net

BEACONHOUSE NATIONAL UNIVERSITY

Since | 2010-2011 | 2013-2014 - 2017

Position - Tutor / Assistant Professor

Address: Raiwind Road, Tarogil, Lahore, Pakistan

Phone: +92 42 38100156

Email: info@bnu.edu.pk

Website: www.bnu.edu.pk

English - Fluent | Urdu - Native | Punjabi - Native | Arabic - Beginner | German - Beginner | Hindi - Fluent

SOFTWARES

AutoCAD*** | Revit** | Google Sketchup*** | Graphisoft ArchiCAD** | Adobe Photoshop*** | Adobe Illustrator*** | Adobe InDesign ***| V-ray rendering*** | SU Podium*** | IDX Renditioner** | MS Office*** Good** - Excillent ***

West Marina Master Plan

2022 - 2023

Al Jalil Developers

Designation GM Urban Planning & Design

Project West Marina Housing Scheme

Client Al Jalil Developers

Consultant Surbana Jurong International

Location Lahore

Program Detailed Master Planning

Area 3000 Acers

In early 2022, Al Jalil Developers Design Wing in collaboration with Surbana Jurong Consultants embarked upon the designing of a master plan for West Marina Development Project on Main Sharaqpur Road near motor way interchange in Lahore. The objective of the task is to develop a structured, comprehensive, integrated and implementable master plan to achieve a holistic, long-term vision that aligns with the New Lahore Master plan of 2050.

The project is strategically located at Al-Noor Orchard Housing Scheme, Main Sharaqpur Road, Lahore, Pakistan. It covers an area of about 3,000 acres. The development will emerge among the new residential schemes in the vicinity of Lahore. Hence, AJD intends to develop the project as a sustainable residential community, with unique selling point.

The conducive geographic condition of Lahore compared to many other major cities in Pakistan has provided solid ground for Lahore to urbanize rapidly. As such, it attracts more internal migration, directly impacting housing demand. However, other significant issues such as air pollution, traffic congestion and flooding came out as top priorities that must be solved urgently in order to provide a liveable environment to at least 12 million urban population in Lahore.

The West Marina development comes as an effort to alleviate some of these concerns by providing a better living township in its attempt to restore the lost poetic historical image of the “City of Gardens” we like to call it a “Garden City In The City Of Gardens’’. West Marina Development is well-positioned to support the growth of New Lahore. It’s unique and differentiating factor - ‘Garden Network’ is providing a platform for people to easily access and bond with the wider community. As drawing people closer to nature, these spaces can be beneficial to the health and wellbeing of residents and users of West Marina.

It is a home for walkable neighbourhoods, car-light community, smart features and new lifestyle choices. This highly liveable township is raising the bar higher for residential developments in Lahore.

CONNECTING THE NEIGHBOURHOODS WITH GARDEN LOOPS

CREATING PRECINCT-LEVEL PUBLIC FACILITIES

CONNECTING THE NEIGHBOURHOODS WITH GARDEN LOOPS

DEVELOPING ICONIC BUSINESS GATEWAY

CREATING CITY LEVEL PUBLIC FACILITIES

CREATING ATTRACTIONS AND TOURISM DESTINATIONS

Typical Graden Loop
Typical Local Graden
Typical Graden Link
Visualization of West Marina

Marina Sports City

03 2023 - On Going

Al Jalil Developers

Designation GM Urban Planning & Design

Project Sports & Residential

Status Under Design phase

Client Al Jalil Developers

Location Jaranwala Rd, Lahore, Pakistan

Program Detailed master planning

Area 2500 Acers

Marina Sports City is a groundbreaking development that goes beyond conventional residential areas by incorporating world-class sports facilities that includes Sports Dictrict. The primary objective of this project is to provide state-of-the-art infrastructure and amenities to support various sports activities while offering a comfortable living environment for residents.

One of the key highlights of Marina Sports City is its focus on promoting a healthy and active lifestyle. The project recognizes the importance of sports and aims to encourage residents to engage in physical activities. By providing top-notch sports facilities, such as stadiums, arenas, training centers, and sports academies, it aspires to nurture local talent and attract international events and competitions.

In addition to the sports facilities, Marina Sports City also incorporates well-planned residential areas. The intention is to create a cohesive community where residents can enjoy an active lifestyle while having convenient access to their homes. The residential areas are designed with modern infrastructure, green spaces, and essential amenities to enhance the quality of life for residents.

To facilitate convenient movement and reduce dependence on cars, the project introduces an innovative concept called garden loops or garden connectors. These loops serve as interconnected pathways, connecting pedestrians and cyclists to various facilities within the township. This pedestrian-friendly infrastructure promotes a greener and healthier mode of transportation, contributing to a sustainable and eco-friendly environment.

Considering the urgent need to address climate change, Marina Sports City takes sustainability seriously. It recognizes Pakistan’s vulnerability to the impacts of climate change and aims to implement environmentally friendly practices in its design and construction. By incorporating sustainable materials, energy-efficient technologies, and green initiatives, the project strives to minimize its ecological footprint and create a model for responsible development.

Overall, Marina Sports City represents a remarkable endeavor to create a holistic community that harmoniously blends internationalstandard sports facilities with residential spaces. It not only seeks to foster sporting excellence but also prioritizes the well-being and sustainable future of its residents and the environment.

“Marina Sports City aims to create a dynamic and integrated urban environment that fosters a thriving sports culture, encourages physical activity, and enhances the overall well-being of its residents. By strategically integrating sports facilities, recreational spaces, and supporting infrastructure, we envision a city that not only hosts world-class sporting events but also

BOTANIC GARDEN
ISLAMIC CENTER & GRAND BAZAR
COMMERCIAL GATEWAY CORRIDOR

The Entertainment City

06 2022 - Present

Al Jalil Developers

Designation GM Urban Planning & Design

Project Residential & Recreational

Status Under Designing phase

Client Al Jalil Developers

Location Mureedke - Lahore, Pakistan

Program Detailed master planning

Area 4800 Acers

In collaboration with Surbana Jurong, Dream Lab Studio, and Haisen (a Chinese manufacturer), Al Jalil Developers have embarked on an ambitious and innovative project known as Entertainment City. Spanning a vast expanse of 4,800 acres, this development aims to transform Lahore into a vibrant hub of entertainment, leisure, and residential living.

Entertainment City is strategically situated on the renowned Grand Trunk Road, a historical route that connects Pakistan with neighboring countries. This prime location not only ensures easy accessibility but also positions the city as a gateway to adventure and entertainment for visitors.

One of the key motivations behind the creation of Entertainment City is to address the existing lack of comprehensive and up-tothe-mark entertainment facilities in Lahore. The city is envisioned as a one-of-a-kind destination where people can not only enjoy a high standard of living but also immerse themselves in a world of excitement and entertainment.

Within the expansive grounds of Entertainment City, a wide range of entertainment and recreational facilities will be offered to cater to the diverse preferences of residents and tourists alike. A grand Theme Park will capture the imagination of visitors, offering thrilling rides, captivating shows, and a magical atmosphere. A Water Park will provide respite from the heat, featuring exhilarating water slides, wave pools, lazy rivers, and other aquatic attractions.

For those seeking the thrill of winter sports, Ski, Ice Skating, and Skating Arenas will offer the opportunity to glide on ice and experience the adrenaline rush of winter activities. Retail and Dining outlets will provide a multitude of options, ensuring visitors can indulge in culinary delights and shop for their favorite brands. State-of-the-art Shopping Malls will further enhance the entertainment experience, offering a wide array of retail and leisure options. In addition to the exhilarating entertainment options, Entertainment City will encompass well-designed residential areas. These residential areas will accommodate a variety of plot sizes, including 5, 10, 20, and 40 marlas, providing residents with a range of options to suit their needs. The integration of residential spaces within Entertainment City creates a harmonious blend of living and entertainment, allowing residents to enjoy a convenient and vibrant lifestyle.

Entertainment City is set to become a landmark destination, attracting tourists from regional and international levels. By offering world-class entertainment facilities and creating an inclusive community, Al Jalil Developers aspire to elevate the entertainment landscape of Lahore and provide a source of joy and excitement for people of all ages.

ROAD HIERARCHY PLAN WITH RESPECT TO THE CONTEXT

CONNECTING THE NEIGHBOURHOODS WITH GARDEN LOOPS

Visualizations

COLLECTOR ROAD WITH RESIDENTIAL DEVELOPMENT

COMMERCIAL & RETAIL COMMERCIAL AMENITIES

CREATING ATTRACTIONS AND TOURISM DESTINATIONS

CREATING

Duqm City Master Plan

11 2017 - 01 2022

SEZAD

Designation Senior Urban Planner

Project Duqm City Master Plan

Status Under Construction phase

Client Oman Government

Consultant Atkins

Location Duqm, Oman

Program Detailed master planning

City Area 2200 km2

WS Atkins International & Co LLC (Atkins) has been appointed by the Special Economic Zone Authority at Duqm (SEZAD) to deliver the Al Duqm City Detailed Master Plan and Development Framework. A comprehensive and multi-disciplinary master planning approach has been adopted, taking on board recent master planning efforts. The overall aim of the Duqm City Detailed Master Plan

and Development Framework is to further develop the existing Al Duqm [Concept] Urban Design Master Plan, developed in 2014, and undertake a comprehensive validation process to ensure the resulting Master Plan presents a realistic, viable, and financially feasible basis for the long-term development of the City. This process has been founded on a number of primary and secondary data collection exercises in collaboration with SEZAD Design Team, as well as discussions with a broader series of external Stakeholders

In parallel with the data collection exercise, a multidisciplinary analysis and assessment of this data has been carried out in order to identify where modifications to - or further development of – the current Concept Plan proposals are required in order to deliver a robust Development Framework and Detailed Master Plan for the City.

The primary purpose of the Duqm City Detailed Master Plan and Development Framework is to further develop and detail the existing 2014 Al Duqm Urban Design Master Plan for the City – whilst undertaking the further supporting studies – to ensure this provides a robust yet flexible framework within which to realise and achieve Duqm City’s original vision and goals for development.

Undertaken in four project stages, the Master Plan and Development Framework, which is now complete, will comprise the development and delivery of a market feasibility study and tourism strategy, pre-concept infrastructure design, environmental, hydrological and traffic assessments and the production of planning and urban design guidelines to manage the long-term growth of the City.

This Report is the Stage 4 Report – the Final Master Plan and Development Framework, Schematic Engineering Design and Planning and Governance Strategy – which forms the final formal deliverable for the Project. This Report documents the updates which have been made to the Draft Master Plan since the conclusion of the Stage 3A Draft Al Duqm City Detailed Master Plan and Development Framework Report, taking on board Stakeholder and Client feedback, as well as further updates and refinement of the Master Plan itself, to ensure that the Master Plan is in line with the overall requirements and vision for the City.

THE FINAL DETAILED MASTERPLAN

The Final Detailed Master Plan has been developed and refined over the course of the previous three stages of work. The starting point for the development of the Master Plan was the identification of key site planning and design informants which would influence the development of the Duqm City Master Plan options and furthermore the Draft and Final Detailed Master Plan. The primary site planning and design informant issues were identified, SEZAD comments and updated allocations and subdivisions, the Final Master Plan was prepared between December 2017 to May 2018 with the help of the consultant Atkins.

Figure below provides an image of the Final Detailed Master Plan. A detailed description of each of the key elements - from land use to community facilities to transport and highways.

COASTAL PRESERVATION AREAS

Topography

TURTLE NESTING SITES

Protect the cliff edges, coastal escarpments and channels of topography which define the wadi systems

Connect the Highland Area with the sea while providing natural cool micro-climates and distinct and unique features to the city.

Ecology

Protect and enhance wildlife habitat areas

Ensure proper development setbacks from sensitive areas such as turtle nesting and bird feeding areas along the coast

Geology

Protect the unique land formations and rock outcroppings which have evolved over time

Respect the internationally significant geological finds in the Rock Garden

Hydrology

Wadi Saay offers a great opportunity of maintaining and maximising the water shed system.

Wadi Saay Tributaries extend throughout the site and can create connective open spaces throughout the urban fabric of the future city.

The image on the right shows the detailed planning of one district within Duqm City Masterplan called Rock Garden

WADI PARKS
CITY PARKS
TOPOGRAPHY
Rock Garden District

Open Space Elements:

It is important that each of the city districts have an integrated hierarchy of connected parks, open space and public realm. This network of connected open space will help to encourage a more active lifestyle, create a more attractive environment to live and work in and encourage the establishment of natural swathes of wildlife that flow through Duqm. They will provide opportunities for active and passive recreation at the heart of the emerging communities within each district. There are different open space typologies and scales meeting the differing needs of the local neighbourhoods, environment and local land use. The Park and Open Space typologies for Duqm are:

Rock Garden Geological Park • Highland Park • Coastal Park • City Park • District Park • Neighbourhood Park Local Parks / Community Gardens • City Plaza • Wadi Parks • Greenways

The parks and open space system will be accessible to all communities, residents and visitors to Duqm. It will be fully integrated with the pedestrian and bicycle networks, which will create safe, shaded and convenient connections to district centres, neighbourhood centres and schools.

A combination of linear parks, greenways and sikkas will establish a fine-grained network of routes that will become part of people’s daily life.

The natural features of the Rock Garden, Highland Park, Coastal areas and wadis have been recognised with their own distinct typologies. Optimising the natural features, views and escarpments of the existing landscape will provide a unique setting for future development.

Typical Layout Plan through City Park
Typical Cross Section Plan through City Park
Typical Layout Plan through City Park
Intensive Landscape Concepts

Fisheries Industrial Zone

11 2017 - 10 2022

SEZAD

Designation PIC - Senior Urban Planner

Project Master Planing

Status Under Construction Phase

Client Oman Government

Consultant Atkins

Location Duqm, Oman

Program Detailed master planning

City Area 4 km2

Initiated by the Ministry of Agriculture and Fisheries (MoAF), this project aims to establish a Fishery Industrial Zone (FIZ) within Duqm on Oman’s eastern coast. As part of this development, the Special Economic Zone (SEZ) for Duqm has been established, and the Special Economic Zone Authority at Duqm (SEZAD) has assumed control over all development within the Duqm SEZ. Consequently, SEZAD has taken over the MoAF’s initiative of developing the FIZ.

The long-term vision for the FIZ involves the inclusion of fishingrelated industries, processing factories, logistics, warehousing, packaging, and export facilities, including free zone areas and administrative offices. The FIZ is situated 18km south of Duqm City, within the Al Wusta Region on Oman’s southeast coast. It is bordered by the Wilayats of Mahawt (North), Haima (West), and Al Jazeer (South), with the administration center of Duqm, known as “Saay,” located in Duqm Town itself.

Historically, Duqm has been recognized as a fishing hub in the Al Wusta Region, with the capture of significant species such as Grouper, Emperor, Bream, and Trevally for markets as far as Dubai, Abu Dhabi, and Saudi Arabia.

The FIZ site is located adjacent to the sea and will feature a fishery harbor dedicated to fishing activities and landings. Initially designed for fish-catchment operations, the harbor’s masterplan was later modified to cater to the increasing demand for tourism, resulting in a hybrid approach to accommodate both activities.

The interdepedency between FIZ and the harbor was analyzed on the baises of:

• Potential destination for tourism area in Duqm.

• Attractive area to investors in FIZ site.

• Being a waterfront development a point of interest.

FLEXIBILITY

For future expansion of the FIZ project site, focus on unobstructed frontages in the south-east and south-west areas.

APPROACH

The 4 access points include 2 directly from the main road, one of which retains the existing locations while the other is from the north westerly edge.

INTERACTION

FIZ project area’s location relates to the Arabian Sea, with visual interaction influencing site development.

INTERDEPENDENCY

The under-construction Fishery Harbour is crucial for the functioning of the FIZ development, necessitating careful consideration of their strong interdependency during the project’s design stages.

INTERFACE

Atkins & SEZAD project team to align the existing master plan with the design, considering modifications based on the Market Assessment.

MODULARITY

The design teams strives for modular design, promoting flexibility, efficiency, and easy navigation in the FIZ master plan.

Al-Noor Square

06 2022 - 11 2022

Al Jalil Developers

Designation GM Urban Planning & Design

Project Mixed Use Development

Status Under Construction

Client Al Jalil Developers

Location Al Noor Orchard, Lahore

Program Detailed Master Planning

Area 10.5 Acers

Design Principals

Al Noor Square, located at the heart of the Al-Noor Orchard housing scheme in Lahore, Pakistan, is poised to bring numerous benefits to the community and individuals. Its design encompasses gathering spaces that will host cultural events and civic activities, providing opportunities for recreation and relaxation.

Al Noor Square aims to promote health and well-being, stimulate local economies, and enhance urban connectivity. This urban development holds cultural significance, fosters social interaction and inclusion, and offers environmental benefits by introducing simple yet effective design solutions. By creating vibrant and inclusive spaces, Al Noor Square will enrich the quality of life, strengthen community bonds, and contribute to the overall well-being of the neighborhoods.

Padesterian

High Street Retail

Padesterian Friendly Infra. Street Side Cafes

Sustainable Transportation

Padesterian Friendly Infra. Efficient Parking Spaces

Street Side Restaurants

IN/Out-side Sitting Areas Interactive Spaces

Sustainable Infrastructure

Efficient Integration of Pedestrian, Cyclists, Cars & Public Transportation

1. Community Gathering Space: A gathering place where people can meet, socialize, and engage with one another.

2. Cultural and Civic Activities: A Place where we can host cultural events, concerts, festivals, and performances, showcasing local talent and promoting community participation. This square can also serve as a venue for civic gatherings, rallies, and public speeches, fostering democracy and civic engagement.

3. Recreation and Relaxation: This includes green spaces, benches, and seating areas, offering opportunities for relaxation, leisure activities, and recreation. People can enjoy picnics, read books, or simply unwind in a peaceful environment.

4. Promoting Health and Well-being: The design of this square encourages physical activity and exercise. People can walk, jog, cycle, or participate in outdoor games, promoting a healthier lifestyle. It also incorporates features like fountains, public art, and landscaped areas, which contribute to the aesthetic and psychological well-being of visitors.

5. Economic Benefits: This square has the potential to attract visitors, tourists, and residents, stimulating local economic activity. Nearby businesses, such as cafes, restaurants, and shops, benefit from increased foot traffic and patronage. These activities can contribute to the revitalization of neighborhoods and serve as catalysts for economic development.

6. Urban Connectivity: This square can act as a connector between different parts of a city or neighborhood, creating a sense of cohesion and promoting pedestrian-friendly environments. This kind of intervention often serves as transit hubs or focal points for transportation, making it easier for people to access various destinations.

7. Promoting Social Interaction and Inclusion: Public squares are inclusive spaces that bring people from different backgrounds together. They provide opportunities for social interaction, exchange of ideas, and the formation of social connections, contributing to a sense of belonging and social cohesion.

8. Environmental Benefits: This is a well-designed public square that incorporates green spaces and trees, contributing to urban biodiversity and ecological balance. This square can help mitigate the urban heat island effect, improve air quality, and provide shade, thereby creating a more sustainable and resilient urban environment.

The Lahore Renaissance

06 2024 - On Going

Al Jalil Developers

Designation GM Urban Planning & Design

Project Mixed Use Development

Status Under Design Phase

Client Al Jalil Developers

Location DHA (Phase 8), Lahore

Program Detailed Master Planning

Area 15.2 Acers

The Lahore Renaissance is set to be a crown jewel of Lahore’s architectural landscape, embodying the city’s future while paying homage to its vibrant past. This groundbreaking mixed-use development will redefine urban living, offering an immersive pedestrian-friendly experience with a modern twist. Here, residents and visitors will enjoy a seamless blend of shopping, entertainment, and relaxation in an environment that breathes life into the lost street culture of Lahore.

At the heart of The Lahore Renaissance lies a vibrant pedestrian piazza, surrounded by high-end retail outlets and world-class restaurants that spill out into landscaped courtyards. Outdoor dining spaces will invite patrons to enjoy a unique connection with nature, transforming every visit into a memorable experience.

Typical Section

The ground level will be entirely dedicated to pedestrian movement, creating a car-free zone where families and individuals can safely stroll, shop, and relax. Elevating the project further, the rooftop spaces are designed to be the ultimate retreat.

The hotel will feature an infinity pool that connects to the adjacent building, creating a stunning skyline vista. The exclusive rooftop for residents will be a sanctuary, offering private club facilities with amenities like net cricket, paddle tennis, swimming pools, and spa facilities.

This rooftop will be a vibrant, multi-functional space where residents can enjoy a modern lifestyle without compromising their privacy. This project will stand as a symbol of Lahore’s resurgence—an icon of urban renewal and a model for future developments across the city, making The Lahore Renaissance a true destination for living, working, and leisure.

Infinity Pool View
Piazza View
Roof Top View
Side Elevation

Lahore Grammar School

05 2023 - On Going

Al Jalil Developers

Designation GM Urban Planning & Design

Project Educational Building

Status Under Construction

Client LGS

Location AJG, Lahore, Pakistan

Program Educational

Area 4104 m2

The Lahore Grammar School project at AJG not only aims to create an interactive learning environment but also recognizes the value of learning from natural elements and how the building will interact with them. By incorporating design features that respond to natural elements such as sunlight, ventilation, and landscaping, the building becomes a living laboratory for students to explore and understand the relationship between architecture and the environment. This hands-on approach allows pupils to learn valuable lessons about sustainability, climate responsiveness, and the importance of harmonizing with nature.

Through the integration of sustainable design principles, the building will demonstrate how architecture can coexist harmoniously with the natural world. Students will have the opportunity to observe and analyze the building’s response to sunlight, airflow, and other natural elements, fostering an

appreciation for the interconnectedness between the built environment and the surrounding ecosystem. By immersing themselves in a learning environment that demonstrates sustainable practices in action, pupils will develop a deeper understanding of the importance of environmental stewardship and the role they can play in creating a more sustainable future.

Design Process

Sectional Studies to understand how the building will interact with the natural elements

Ground Floor Plan
First Floor Plan
Second Floor Plan
Third Floor Plan
Roof Plan

M Bilal Residence

02 2023 - 06 2023

OK-DS

Designation Principal Architect

Project 1 Kanal House

Status Design Completed

Client M. Bilal

Location Lahore, Pakistan

Program - Residential

Area 490 m2

Imagine a visionary house that seamlessly blends with nature, continuously evolving to embrace and enhance green spaces. This extraordinary dwelling has the remarkable ability to revolve, adapting its orientation to optimize sunlight and maximize the surrounding greenery’s beauty. As the seasons change, the house gracefully rotates to capture the warmth of the sun during winter and provides ample shade in the summer, fostering an ideal microclimate for both its inhabitants and the flourishing plant life. Its architecture harmoniously incorporates living walls, vertical gardens, and rooftop green spaces, creating a symbiotic relationship between the built environment and nature. The interior of the house is bathed in natural light, with expansive windows offering breathtaking views of the verdant surroundings. Every room seamlessly connects to outdoor spaces, blurring the boundaries between indoor and outdoor living. With its innovative design and commitment to sustainability, this house not only provides a tranquil and rejuvenating sanctuary for its residents but also serves as a testament to harmonious coexistence with nature.

Design Process
Elevation
Ground Floor
First Floor

Al-Bari Mosque

02 2023 - 06 2023

Al Jalil Developers

Designation GM Design

Project Community Housing

Status Under Construction

Client Al Jalil Developers

Location Lahore, Pakistan

Program Residential

Area 2000 m2

Al Bari Mosque, situated within the Al Bari Residencia township, serves as a prominent landmark and a focal point for the community. The mosque’s architectural design incorporates a towering minaret strategically positioned to be visible from afar, providing a guiding orientation for residents and visitors alike. This distinctive feature not only facilitates navigation but also instills a sense of pride and belonging within the neighborhood.

With meticulous attention to detail, the Mosque showcases Islamic patterns and motifs, contributing to the overall identity of the mosque and exemplifying the essence of Islamic architecture. These intricate patterns, inspired by rich Islamic traditions, are thoughtfully incorporated into the design, adding a touch of cultural significance to the mosque. By embracing Islamic architectural elements, Al Bari Mosque not only fulfills its spiritual purpose but also becomes a symbol of cultural heritage and community identity.

The presence of Al Bari Mosque within the Al Bari Residencia township serves as a unifying force, bringing residents together through shared faith and a sense of community. Beyond its religious significance, the mosque stands as a visual representation of the values and traditions that shape the neighborhood. It acts as a gathering place for prayer, fostering a sense of belonging and providing a space where individuals can connect with their faith, engage in spiritual reflection, and establish meaningful connections with one another.

Front Elevation
First Floor Plan

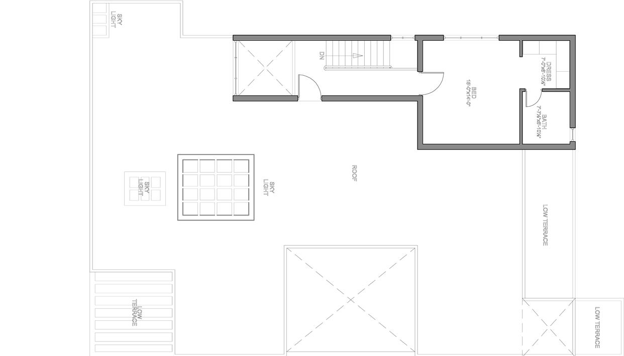
NEPRA office building

01 2013

NAYYAR ALI DADA & ASSOCIATES

Designation Project Architect

Project NEPRA Office building

Status Completed

Client National Electric Power Regolatory Athority

Location Islamabad, Pakistan

Program Commercial/Office Area 13,470 m2

The NEPRA Office Building in Islamabad posed a significant challenge since the capital city is a relatively young development. To extract a connection to the city, the building absorbs the expression of surrounding areas the capital itself. The language is innovative and takes its cues from the spirit of contemporary architecture.

The office building responds to the design brief in providing a layout that addresses security concerns while it enables the staff and visitors to enjoy the breathtaking views of the surrounding hills, which is also viewable from the cafeteria on the roof of the building. Various blocks and zones of the project operate independently such as the office block, rent-able areas, and cafeteria spaces. Despite this separation and multiple levels and terraces of the building, the architectural language manages to provide a sense of unity among all the areas, and the architectural detailing offers for the strong sense of harmony and character.

Fortress Mall

08 2014

NAYYAR ALI DADA & ASSOCIATES

Designation Project Architect

Project Fortress Mall

Status Completed

Client REC

Location Lahore, Pakistan

Program Commercial Area 13,470 m2

The architectural language of the Fortress Mall connects to the historical record of Lahore’s architecture dating back to the Colonial times. Situated in the part of the more massive complex, fortress commercial area which is the cities most significant crowd magnet. One’s eye is gracefully led to enjoy the compositions of hanging columns, flat arches, arcades and various forms that are carefully composed to create an appropriate scale. The atrium is a pleasant enclosure flanked by oval-shaped rotunda and with a glass dome that feeds light to the void. The arcades and hanging columns on the elevation that announce the entrance are a combination of many scales which enables us to create welcoming access into the Mall without being monotonous and enables us to absorb the massive scale of the building gradually.

This composition of the mall offers multiple and impressive views for users and visitors. The ultimate result is a traditional

expression that is not a copy-paste approach but a contemporary one combining generous glazed areas towards the front elevation with stately forms. This approach enables us to create a new language that is giving respect to context and also representing current times and the foreseeable future.

Interior Studies
Atrium View
Elevation - Night View

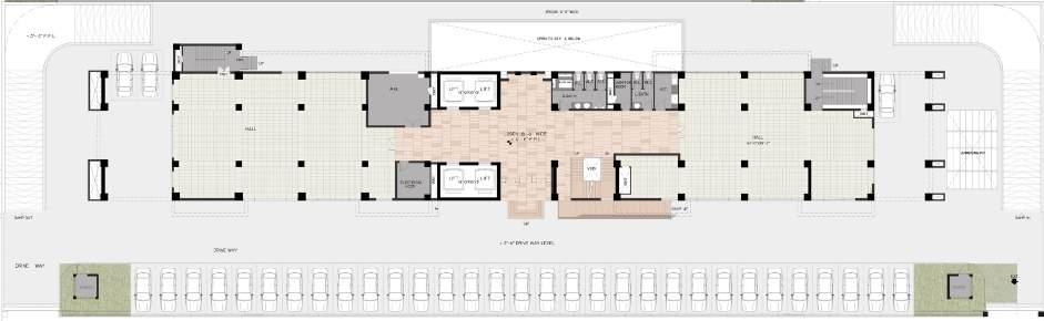
UBL Head Office

2012

Designation Project Architect

Project UBL - Competation Project

Status Completed

Client United Bank Limited

Location Lahore, Pakistan

Program Commercial/Office

Area 16,226 m2

The UBL building concept grows out of its location and its connection to a rich cultural and artistic history of the region. Having studied the dynamics and needs of a corporate building at this particularly visible and significant site, we have arrived at a direction that embraces simplicity and elegance. This direction shall ensure a timeless presence rather than one that pursues trends with a limited life. The building by itself is an expression that shall represent the strength, stronghold and a forward looking competitive approach of the bank and the nature of the corporate environment in the present and future.

The site itself informs the concept of obvious clues such as: There is a road abutting the rear of the plot, which shall be used for services etc; the building front faces North therefore allowing us to use maximum day lighting and enjoying vast views without gaining high temperatures etc. The East and West facades shall eventually be flanked by neighbors, but still have a deep inset for glazing and heat gain issues.

Being on a busy road, the building is set back comfortably and sits on a ‘Podium’. This results in an elegant and ceremonial approach and entry to the building while evoking the experiences similar to some historic monuments in Lahore. The Podium engages the voyeurs and traffic before the building thus presenting the building in a subtle fashion as it sits gracefully on its platform. The Podium is multi functional and while it houses the bank branch underneath, it forms a garden before the building entrance. A garden much needed for environmental and psychological reasons, given the busy and crowded road facing the building. It mitigates noise while creating a view for the building inhabitants. The podium also creates an option for visitors to enter the retail branch below or move up to the corporate center or other UBL offices.

The building exterior is an elegant form that slopes inwards to accept the garden at its base. While it attains a fair amount of height, it provides relief at the top / Executive floor with a terrace wrapped around it providing impressive views of Lahore from the offices and the executive cafeteria. This terrace inherits some landscaping features from the base to reintroduce the experience once again at the top. All sides of the building reflect a purposeful and elegant form that effortlessly relates to its concept. The minimal elements however subtle and quiet eventually create a dynamic entrance court and an overall expression that creates multiple views as one approaches the project from either direction.

Inside the building a similar approach has been taken to introduce scale and purposefulness while providing open office spaces. Lobbies and voids have been composed in a manner to provide spatial and visual stimulus that contributes towards a healthier work environment. A large entrance lobby directs visitors to the upper floors, whereas the Corporate Centre welcomes the visitors into a large double height space surrounded by lounge-like office and seating areas.

The overall impact and expression are befitting for a corporate and financial institution as the design expresses authority in its creativity but in a tastefully subdued fashion. The concept connects to earlier monuments that are time tested and aged gracefully, and takes a step forward to blend today’s technologies, vision, and concerns with solid values present in our history and culture.

19 - K1, Courtyard House

09 2013

FREELANCE WORK

Designation Principal Architect

Project Courtyard House

Status Completed

Location Lahore

Program Residential

Area 700 m2

Situated in the vibrant vicinity of Wapda Town, Lahore, Pakistan, an area brimming with residents and meticulously governed by the stringent bye-laws of the Lahore Development Authority (LDA), the endeavor to conceive a dwelling that seamlessly integrates interior and exterior spaces, harmonizing with the surrounding nature, posed a formidable challenge.

For a family enamored with the notion of utilizing their outdoor realm while cherishing a sense of utmost seclusion from their neighbors, a thoughtfully crafted solution materialized in the form of a courtyard-style residence. This architectural marvel expertly shields the inhabitants from the prying eyes of neighboring properties, while ingeniously orchestrating the abode’s focal point around the family’s most frequently inhabited space. At the core of this design lies the captivating interplay of a courtyard and strategically placed skylights— converging as the heart and soul of the house. These transformative elements invite an abundance of natural light, fresh air, and the serene essence of nature into the areas that would otherwise be ensconced in darkness, forging harmonious connections between spaces and the organic world beyond.

Design Process
Volumetric studies

“The heart of each home is a private courtyard that expands the experience of the home by blurring the line between inside and out.” –

Ground Floor
First Floor
Courtyard
Courtyard view from family lounge

Ayesha Noon’s Residence

05 2014

NAYYAR ALI DADA & ASSOCIATES

Designation Project Architect

Project Residence

Status Completed

Client Ayesha Noon

Location Lahore, Pakistan

Program Residential

Area 1200 m2

Hidden behind the soaring private entrance, is a modern four bedroom home designed for relaxed living and outdoor entertaining. This house brings a sophisticated combination of modern living intertwined with texture, warmth, raw simplicity, and earthy luxuriance.

The use of natural, earth-drawn materials and textures create an impression of harmony between the house and nature itself. Aesthetic appeal is complemented by the durability of the materials, which are designed to withstand the adverse conditions of Lahore.

The arrangement of the living spaces around a large, open courtyard helps bring the natural world into the heart of the domestic realm. Drawing natural light and breezes into the house, the courtyard accentuates the house itself and the infinite connection to the sky that is central to its design; perfect for outdoor entertaining, or simply relaxing beneath the open sky.

Schematic sketches
Family Lounge

Turn static files into dynamic content formats.

Create a flipbook

Articles inside

Return of the Watchman

1min
page 48

Within The Box

1min
pages 46-47

Museum of Archeology

1min
pages 42-45

Redesigning Barcelona

1min
pages 40-41

SufficientCity - Seed for a City

1min
pages 38-39

‘A climate’ for living, a time for working’

1min
pages 34-37

Healing Lusatia

3min
pages 28-33

Ayesha Noon’s Residence

1min
pages 26-27

19 - K1, Courtyard House

1min
pages 22-25

UBL Head Office

2min
pages 18-21

Fortress Mall

1min
pages 16-17

NEPRA office building

1min
pages 12-15

Duqm City Master Plan

2min
pages 8-11

West Marina Master Plan

1min
pages 4-7

Return of the Watchman

1min
page 54

Within The Box

1min
pages 52-53

Museum of Archeology

1min
pages 48-51

EPIGONISM “Aalfs Department Store”

1min
pages 46-47

Redesigning Barcelona

1min
pages 44-45

SufficientCity - Seed for a City

1min
pages 42-43

‘A climate’ for living, a time for working’

1min
pages 38-41

Healing Lusatia

3min
pages 32-37

Ayesha Noon’s Residence

1min
pages 30-31

19 - K1, Courtyard House

1min
pages 26-29

UBL Head Office

2min
pages 22-25

Fortress Mall

1min
pages 18-21

NEPRA office building

1min
pages 14-17

Duqm City Master Plan

2min
pages 10-13

West Marina Master Plan

1min
pages 6-9

Return of the Watchman

1min
page 54

Within The Box

1min
pages 52-53

Museum of Archeology

1min
pages 48-51

EPIGONISM “Aalfs Department Store”

1min
pages 46-47

Redesigning Barcelona

1min
pages 44-45

SufficientCity - Seed for a City

1min
pages 42-43

‘A climate’ for living, a time for working’

1min
pages 38-41

Healing Lusatia

3min
pages 32-37

Ayesha Noon’s Residence

1min
pages 30-31

19 - K1, Courtyard House

1min
pages 26-29

UBL Head Office

2min
pages 22-25

Fortress Mall

1min
pages 18-21

NEPRA office building

1min
pages 14-17

Duqm City Master Plan

2min
pages 10-13

West Marina Master Plan

1min
pages 6-9
Issuu converts static files into: digital portfolios, online yearbooks, online catalogs, digital photo albums and more. Sign up and create your flipbook.
PortfoliO by Omer Khalid Chaudhary - Issuu