Apply for MArch Urban Design, UCL

Page 11

Nanjing University

Portfolio | Selected Works 2019-2022

Applying for MArch Urban Design, UCL

Student Number: 23155201

Email: baosx212@outlook.com

Cell: +86 18852098865

NAN JING BAO SHIXIAN

Why Nanjing?

Nanjing is the beginning of my relationship with architecture, and also witnessed the process of my indepth understanding of architecture. From the urban texture to the human history, from the simple residence in the old city to the device design bearing the memory of the war, the three years' study in the School of Architecture has made me have a deeper and deeper understanding of Nanjing. Therefore, this portfolio is not only a collection of projects I have designed, but also a summary of my study and life in Nanjing. I think of it as a stage summary, a starting point. I hope my architectural career can start from Nanjing and go to more cities.

「PRECEPTION OF BUNKER」 The body is the language of communication across time. As a city devastated by World War II, Nanjing bears great historical sorrow. The body memory is the best carrier to let us in peace feel the destruction of war. The physical oppression suffered by the soldiers in the bunker was replicated in modern people, and people began to rethink the war.

「VESSEL OF CITY」 Open up the pipeline between the city and nature. Nanjing is a city surrounded by mountains, like an organism. When the road between the city and nature is blocked, the city has its drawbacks. By understanding the way people live and reconnecting them with nature, the whole city flows again.

「UNDER THE EAVES」The eaves of Nanjing's ancient houses give public buildings a new appeal. The space under the eaves naturally has the ability to gather people. The eaves characteristics of the historic district are given to the public space, which becomes the core of activities jointly created by the nearby residents.

「SPIRAL HOUSE」 As a new house in an old town, the first housing project was the starting point for my architecture studies. Respecting the layout characteristics of ancient Nanjing courtyards, the courtyard as the spatial core of the ancient courtyard is integrated into the residential scheme, with each house spiraling in series around the atrium.

Contents

01 PRECEPTION OF BUNKER Devices of Body Sensing in War Buildings 01 PEACE BODY WAR 02 VESSEL OF CITY Reconnection of the Inhabitants and the Nature 07 BRIDGE CITY NATURE 04 SPIRAL HOUSE A New Three-family Home in the Old Town 18 CORRIDOR SEPARATE ENTIRETY 03 UNDER THE EAVES A Modern Cultural Center in a Historic District 13 EAVE PRIVATE PUBLIC

PRECEPTION OF BUNKER

Devices of Body Sensing in War Buildings

Individual Academic Work Feb 2022 / Graduation Project

Course ID:29010220

Located in Nanjing, China

Supervisor: LU Andong

Email: alu@nju.edu.cn

Tel: +86 25 8359 3020

Exhibited in The Memorial Hall Of The Victims In Nanjing Massacre By Japanese Invanders (Participated in the whole process of curation)

Video of the Installation in the Exhibtition Hall Youtube: https://youtu.be/vmT9VtQqa5Q

Nanjing, as one of the four cities martyred during World War II, suffered brutal war destruction. As a wartime city, the city still has many ruins of defense fortifications, such as abandoned blockhouses and ruined walls. They are the "witnesses" of the battle of Nanjing, carrying little-known memories of the war. In times of peace, they are scattered among the trees, far from the public life, buried in the grass and soil, and melted into the mountain.

As the most widely deployed war fortifications during the Anti-Japanese War, bunkers played an important role in the defense of Nanjing.

The project is an attempt to bring back memories of the war through the physical experience inside the installation. This leads people to reflect on the oppression of the human body by war.

01
01

As one of the important battlefields during the Battle of Nanjing, a large number of military blockhouses have been preserved on the Purple Mountain.A total of 75 of blockhouses exist and can be divided into six types, each with its own function, character and location

Bunker Ruins on the Zijin Mountain Postures

Distribution of Bunkers

Perceptions in Bunkers

The interaction between the different Spaces in the bunker and the soldiers' bodies produced different perceptual experiences, which were important carriers of war memories. These senses include body posture, hearing, vision, and so on. Through the abstraction of these perceptions, we can better feel the destruction of human body caused by war.

Acoustic Wave

The voice of war is an important embodiment of the oppression war brings to people.

Categories of Bunkers

The categories of bunkers include: semi-underground bunkers, reconnaissance bunkers, bunkers with eaves, bunkers without eaves, round bunkers, and semi-round bunkers.

Shooting Holes

The categories of bunkers include: semi-underground bunkers, reconnaissance bunkers, bunkers with eaves, bunkers without eaves, round bunkers, and semi-round bunkers.

02
Tunnel Entrance&Exit Reconnaissance Hole Shooting Hole Megaphone Vertical Channel Reconnaissance Bunker Reconnaissance Bunker Semi-underground Bunker Semi-underground Bunker Bunkers With Eaves Bunkers With Eaves Bunkers Without Eaves Bunkers Without Eaves Round Bunkers Round Bunkers Semi-round Bunkers Semi-round Bunkers

The Translation

Posture, sound waves, vision and materials are modernized to help people experience rich sensory stimulation in a limited space. Through lightweight, modern translation, body perception can be condensed and combined.

Integrated Perceptions Installation (Constructed)

The Exhibition

The installation is located in the center of the pavilion, where the semi-enclosed space becomes a focal area for gathering and experiencing the entire exhibition.

The device combines a variety of motion states inside the bunker, including stoop marching and climbing upward. Using the scale data inside the bunker, the soldiers' physical experience inside the bunker was reconstructed to a true scale. At the same time, accompanied by the sounds and vibrations of the war and the sounds of the mountains, the process of transition from the oppression of war to the calm of nature is created.

03
Gesture Dimensional Limit
Sight
Gesture of Soldier
Live video
Sound
Sight of Bunker
Sound Vibrating Devices
Material
Sound of War Weather resistant steel Material of Bunker

Shooting Hole Simulator

The device simulates the visual perception of the firing port in the bunker, and the soldiers' visual experience of observing the world from inside the bunker is restored through the height of the window, the proportion of the window, the jagged edge and other elements.

Megaphone Installation

The installation simulates the way soldiers in a bunker transmit information through a loudspeaker. The sound of the loudspeaker changes from gunfire to birdsong. Different heights of the loudspeaker are suitable for people of different ages, and the effect of war on human perception is restored from the perspective of hearing. The different height of the handset provides the possibility of experience for different age groups.

Sound Vibrating Devices

Hidden inside the device are several acoustic vibration devices, which come from the roar of guns and the song of birds in the forest. Through sound conduction and vibration, visitors can experience the installation in multiple dimensions.

Reconnaissance Installation

The installation mimics the posture of soldiers looking up at enemy aircraft from inside a bunker, with a screen mounted on top that loops back images of the sky during battle, allowing viewers to recreate the posture of the body looking up at the scout.

04
Device 1 (5W) Detail 1 (5w) Device 2 (10W) Detail 2 (10W)

Timeline Construction

The device is made of precast channel steel and steel plate, which is easy to disassemble and install. The prefabricated materials and structure greatly shortened the project time, while the steel frame provided sufficient stability for the installation.

STEP 7: Install circuit system and debug equipments.

STEP 2:Confirm the location of the installation and assemble the three prefabricated frames together.

The whole installation process was completed in one week, including frame construction, skin installation, routing perforation, device testing and other processes. Multithreading at the same time, greatly save the cost and time.

STEP 5: Install all panels of the installation.

STEP 3: Install the pool and the floor.

STEP 8: Installed the maintenance lids.

STEP 6:Install the iron ladder.

STEP 9:Tested the water resistance of the installation, cleaned and painted.

Secondary Structure

05
5.10 Arrival 5.17 Completion 5.11 Assembly 5.16 Test & Sweep 5.11 Pool &
5.15 Maintenance Lid 5.12
5.15 Circuit 5.13
5.14
After
Located
Installed
The installation process is highly simplified, complete the prefabrication in the factory, simple and rapid installation on site, not only saves labor costs, but also greatly shortens the construction period. Tested
Floor Finished
Panel
Ladder
pre-processing in the factory, materials were transported to the pavilion.
the device and pieced together the three prefabricated frames.
Completed
the processing and installation of the pool on site, installed the floor .
Welded the secondary structure of the support panel
Installed the panel of the device. Welded the iron ladder. Installed the circuit and debug the equipments. the maintenance lids. the water resistance of the installation, cleaned and painted.
and waited for the exhibition.
STEP 1:Materials and frames were transported to the pavilion after preprocessing in the factory.
STEP 4: Install the secondary structure in preparation for installing the panels.

Sound of the earth...

Feeling peaceful...

06
View from bunker View from bunker

The Cause of the Design: An old woman walking across the fast road.

VESSEL OF CITY

Reconnection of the Inhabitants and the Nature

Individual Academic Work

Nov 2021 / Architecture Design Ⅷ

Course ID:29010100H

Located in Nanjing, China

Supervisor: TANG Lian

Email: tanglian@nju.edu.cn

Tel: +86 13770849401

The project is located at the junction of the city and the forest, and the residential area faces the forest across the street. Busy and fast urban arterial roads block people's routes to urban green Spaces, forcing the separation of nature and city. Residents have to cross the street in order to reach it.

The project takes advantage of the height difference between the mountain and the city, laying new routes on the busy road and opening up the city's otherwise blocked blood vessels. Using the language of the bridge, the new road is endowed with different functions, satisfying the travel needs of local residents and creating a new urban function.

Taking residents' activities as the starting point, this paper explores the contradiction between living demands and environmental restrictions, and introduces local elements to solve the contradiction with environmental characteristics as the starting point.

02
07

RESIDENTS

The Zijin Mountain is a natural resource that Nanjing citizens cannot give up. It carries an important role of landscape, leisure and memorial. However, the city's expressways cut off access for residents at the foot of the mountain for recreation, forcing them to cross the road.

Through the statistics of local residents' activities, it is found that residents' daily activities and routes are hindered by the gray area in the center of the site and the fast road. Local residents hold a series of daily activities around the venue, including playing Musical Instruments, playing tennis and walking their dogs.

Residents on the south side need to cross the road to reach soft lawns on the hills on the north side, historic sites and so on. The inhabitants emerge from the gaps between the buildings like capillaries that need to drain into the aorta on the north side.

08
SITE

RESIDENCE

VESSELS OF CITY Multiple Functions of MIxed Use Programs

The central axis with historical value is cut off and forgetten in the gated community.

Old buildings with historical value are hidden away in the residential areas.

Enclosed residential areas hinder access to nature and lack vitality.

Residents from the south lack space to exercise, but space of the north are unused.

Businesses on the north are empty, and there is no shops for residents nearby.

The old vaudeville was abandoned, residents have no space to enjoy the operas.

Restoring the position of the central axis, providing tourists with a complete tour route.

The site is turned into a tourist attraction and mobile stalls are placed along the road.

The roads in the residential area are open to the outside and the net is formed.

The bridges and buildings provide outdoor and indoor spaces to exercise.

The bridges connects the malls and form a commercial corridor.

The bridges create new air passages for the theatre.

AXIS HERITAGE
SPORTS BUSINESS CULTURE
「BRIDGE」 「UNCHOKE」
09
10 A A B B C C D D E E F F G G PLAN SECTION
11 SPORTS
BUSINESS
THEATER
TOURIST
12
CITY
Reconnection of the Inhabitants and the Nature VESSEL OF

03

UNDER THE EAVES

A Modern Cultural Center in a Historic District

Academic Team Work

Apr 2021 / Architecture Design Ⅵ

Course ID:29010100F

Contributions: Survey; Concept; 3D model; Drawing

Collaborator: LUO Yuhao

Located in Nanjing, China

Supervisor: WANG Kai

Tel: +86 13761881532

The project is located on the east side of the downtown road of Nanjing, close to the historical buildings of the Republic of China, which is the connection between the residential area and the bustling commercial street. In order to meet the social and cultural needs of nearby residents, a cultural building with composite functions was designed here.

The eaves elements of traditional residential buildings are combined with the current predicament to solve the problem of the lack of public space for nearby residents. The space under the eaves is used as a living carrier to attract people to gather and connect, increasing the vitality of the old city.

13

I used to walk in the laneway, but there was no space for me to rest. Because of the lack of space and the lack of community, the neighborhood lacks a bit of energy.

Grandma Li (65)

Live in the laneway nearby. Like going out for shopping.

Most of the people living here are old people and we know each other very well. It is a pity that there is not a collective place for our entertainment and leisure. We like the sun, but it's better not to be out in the open, because then we cangather in the rainy day.

Live in the laneway nearby.

Like playing cards with neighbours after dinner.

SITE CONCEPT
The project is located on the east side of the downtown road of Nanjing, close to the historical buildings of the Republic of China, which is the connection between the residential area and the bustling commercial street. Eave elements are extracted from the historic buildings to create a huge eave for activities and rest for the surrounding residents.Create a common, collective memory activity space under the eaves.
+
The flowing shops carry the complex functions and become the reason for passers-by to stay for a short time. Eave The eave draws people together Arcade fair Canopy along the street Coastal arcade
14
'People' Undulating eaves Grandpa Tang (70)
FLOORS
GALLERY
THEATER 15
FUNCTION HALL
PLAN SECTION 16 6 7 1 Storage 2 Office 3 Dressing Room 4 VIP Room 5 Theater 6 Supermarket 7 Left Baggage 1 2 3 4 5
17

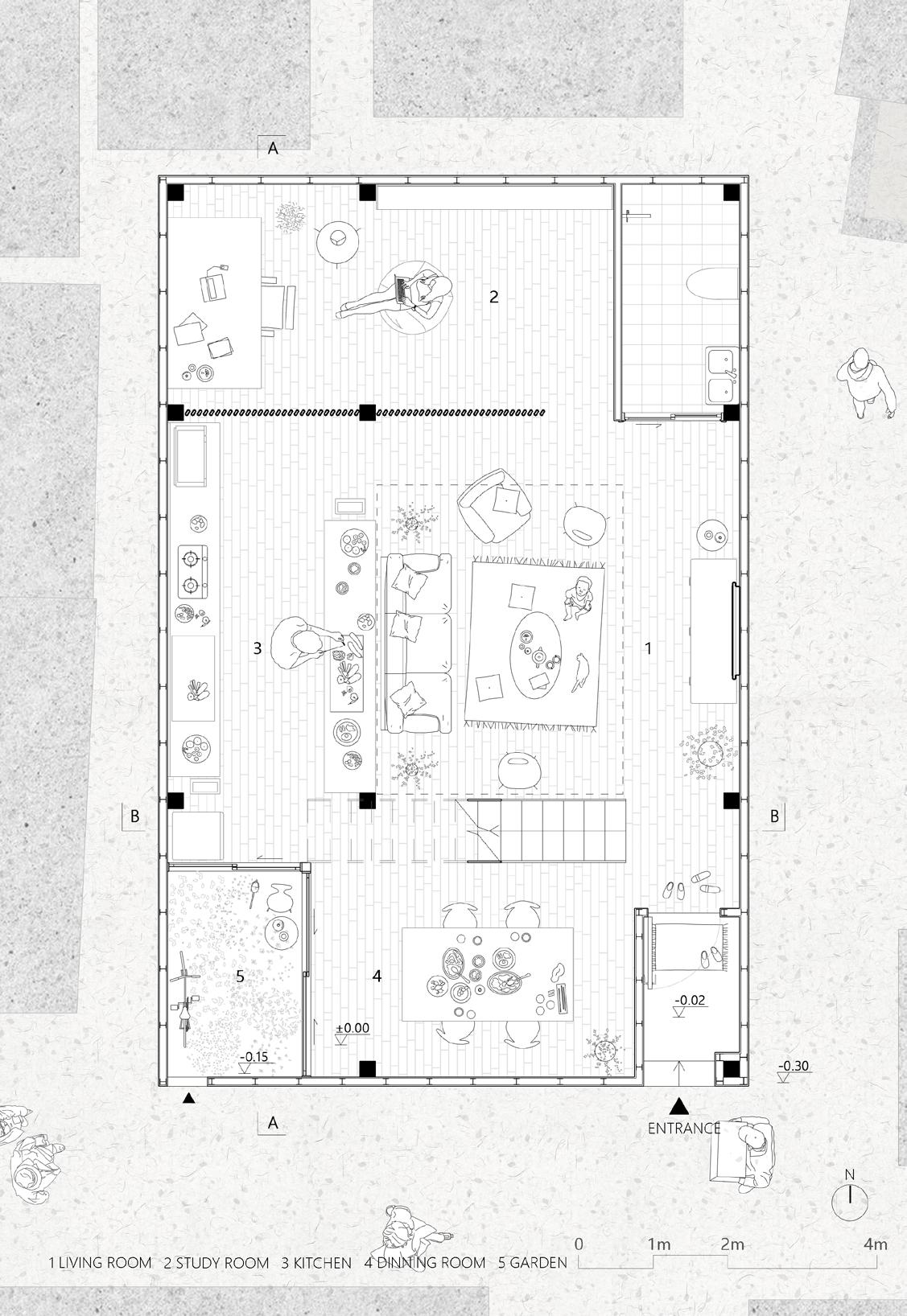
SPIRAL HOUSE

A New Three-family Home in the Old Town

Individual Academic Work

Feb 2020 / Architecture Design 1

Course ID:29011210

Located in Nanjing, China

Supervisor: LIU Quan

Email: liuq@nju.edu.cn

The project is located in the residential area of the old town of Nanjing. The surrounding buildings are closely arranged and generally consist of one or two story residences, which is a residential area with a long history in Nanjing city.

This project was the first architectural design during the undergraduate period, and it was a preliminary attempt on the characteristics of architectural space and materials. The project is an in-depth analysis of the characteristics of the wooden structure and explores the possibility of using microscale gaps to create vibrant spaces. The project uses a series of Spaces to create a tightly connected yet well-spaced living space.

04
18

BACKGROUND

The project is located in the residential area of the old town of Nanjing. The surrounding buildings are closely arranged and generally consist of one or two story residences, which is a residential area with a long history in Nanjing city.

CONCEPT

The project seeks to connect the entire interior of the building through a series of paths, and the climbing floors simultaneously ensure the private progression of each space.

FAMILY

A family of three is the most common family formation among contemporary urban residents. The master of the project is in charge of the daily life of the family, the hostess is a writer, and they have a seven-year-old boy.

Filter of Sight

The diagonal grilles provide a balance between visual communication and privacy within the space. Communication and independence between family members are balanced.

F1 Sight from Kitchen Sight from Living Room F2
Visual Communication
19
FLOORS
VISUAL COMMUNICATION
CHILD ROOM
20
STUDY ROOM Parents' Room Child Room Balcony Study Room Fun Space Living Room
FIRST FLOOR LAYOUT SECOND FLOOR LAYOUT 21
22
KITCHEN SECTION A BALCONY SECTION B
SECTIONAL PERSPECTIVE 23

EDUCATION

09.2017-06.2022 Nanjing University (NJU), Nanjing, China

Bachelor of Engineering in Architecture | GAP: 4.15/5.0

SHIXIAN BAO

Email: baosx212@outlook.com

Cell: +86 18852098865

'Architecture is a long practice. Be patient.' The tutor told me in the interview about changing my major from Administration to Architecture three years ago. And as he said, my understanding of architectural design has been enriching in the past three years’ practice.

I got motivation in 'practice'. The first practice in the construction festival taught me to notice the dimension of human figures and their material characteristics. And I learned that proper construction could maximize the advantage of the material. I perceived the environment in 'practice'. I visited classical Chinese gardens during college because of being obsessed with Chinese culture. The long winding corridor, the deep lake within reach and the mottled shadows of the gardens' trees could take my whole afternoon to feel. The dreamlike tours drove me to focus more on the relationship between the architecture and the site. I reflected in 'practice'. Besides the fitness in the situation, good architecture should become a vehicle for local culture and memory, which could arouse people's spiritual resonance and reflection. It asks the architect to deeply understand the local culture and translate that into the building, which is like baking process: grounding the wheat, adding the water and stirring, fermentation and baking. The bread's shape is far from that of grain, but wheat's aroma emits within each bite.

I hope to join this programme because I know UCL has been pioneering new ways of teaching and learning. It focuses on the combination and cross of different angles and subjects. Through my attempt at urban design during undergraduate study, I realized that urban design has more universality and foresight for people's life. At the same time, most cities in the world, especially developing countries, are facing the challenges and opportunities brought by global urbanization. I wish to contribute my ideas and exploration to the urbanization dilemma of developing countries through the study of urban design in UCL.

The past three years in the School of Architecture inspired me a lot. The success and setbacks shaped who I am today. I take this time as short but precious practice in my long architecture career, just as my tutor told me, 'Architecture is a long practice. Be patient.'

EXPERIENCE

03.2022-05.2022 “Sensing the Peace”Exhibition of Design for the Memory of Nanjing as a City of Peace | Project: “PreceptionofBunker”

Involved in the whole curating phase, includes Design, Exhibiting, Constructing etc.

Organized by Institute for National Memory and International Peace Studies & School of Architecture and Urban Planning, Nanjing University

09.2020-04.2021 Research on Evaluation of Building Ventilation Performance (Group) Indoor Space Optimization Design of Nanjing Enclosed Dormitory Based on Ventilation Efficiency

Involved in the whole research phase, includes Data measurement, Environment simulation,Paperwriting etc.

Organized by College student innovation program, Nanjing University

09.2019-10.2019 “Dreamers” Construction Festival Competition in Hunan Province

First Prize (Group) | Project: “Fold a Dome of Heaven”

Involved in the whole design phase, includes Concept, Design, Constructing etc.

Organized by Changsha Natural Resources & Planning Bureau, Hunan University

HONOR & ACTIVITY

11.2019 Third Prize | The People’s Scholarship awarded by NJU

11.2018 Cultural & Sports Awards | The People’s Scholarship awarded by NJU

10.2021

Ancient Building Survey and Drawing

Involved in the whole phase, includes Surveying, Design, Mapping etc.

Organized by School of Architecture and Urban Planning, Nanjing University

08.2021

Practice of Construction Plant

Involved in the whole phase, includes Surveying, Design, Mapping etc.

Organized by School of Architecture and Urban Planning, Nanjing University

09.2018-06.2019

Deputy Head of Sports Department | School of Government, NJU

In charge of various school sports event and avtivities.

02.2018-06.2018

Member of the Outward-Bound Department | Student Union of NJU

Helped with two university-level events’ preparation and organization.

SKILL

Software Proficient | Rhino, Revit, Photoshop, CAD, SketchUp, InDesign, Illustrator, Premiere, Microsoft Office Suite

Language Mandarin (native), English (fluent)

“Dreamers” Construction Competition-2019
Model of Detail-2020 Evaluation of Building Ventilation Performance-2021
Other Works

Turn static files into dynamic content formats.

Create a flipbook
Issuu converts static files into: digital portfolios, online yearbooks, online catalogs, digital photo albums and more. Sign up and create your flipbook.