NewsNow E-Edition January 5 2023

Page 11

Chilly dip!

Balmy conditions greeted Grimsby Polar Bear dip participants on New Year’s Day, but it was still a chilly experience. Here, making a bee line for the shore are Simon Boucher and Lucy Neves. For details, please turn to Page 4. McDonald - Photo

Thursday, January 5, 2023 Vol. 11 Issue 33 www.wn3.ca 100% Niagara West owned & operated Circ: 29,006 Proudly serving Grimsby, Lincoln, West Lincoln & Winona > Lincoln loses fire department builder, Scott Blake /Pg 2 > New Year baby rings in 2023 Pg 3 > Vineland author empowers women Page 11 > NRP investigates police impersonator Pg 15

Lincoln loses fire department builder, Scott Blake

The foundation of Lincoln’s fire services is a little weaker today with the death of long-time volunteer and former chief Scott Blake on Thursday, Dec. 29

Blake served with Lincoln Fire Rescue for 47 years, rising through the ranks of Firefighter, Captain, and District Chief of Station 4, eventually transitioning to Deputy Chief and his ultimate dream job of Chief.

Three of his sons have followed in his footsteps and now serve Niagara West Fire Services.

“I am deeply saddened by the passing of Scott Blake. His dedication to the service of this community for more than 47 years is remarkable, and perhaps even unimaginable in this

day in age. Following in his father’s footsteps, Scott started as a volunteer firefighter with the Louth Township Fire Department in 1964. Upon regionalization of Niagara in 1970, he continued service with the Town of Lincoln Fire Department until his retirement in 2011,” said Fire Chief Greg Hudson.

“Scott served as Fire Chief from 2005 until 2011. He was a respected leader and had a genuine love for the fire service, and particularly his Lincoln firefighters. Scott hired me as his Deputy Fire Chief and it was a privilege to work under his command. I think we made a great team, and were able to accomplish a great deal.”

Hudson added, that while his tenure and key projects

were important to him, none was more important than his family’s success in carrying on the tradition.

“A feather in his cap was the construction of the new Jordan fire station before his retirement, but I think his greatest pride was seeing his three sons Dave, Bob, and Bill carrying on the family tradition

of serving on the fire department,” said Hudson.

“Scott certainly made an immeasurable contribution to the Lincoln Fire Department, and I will miss him.”

Former long-time mayor Ray Konkle knew Blake well.

“Scott’s dad, Eric, and his brother Jim served on the Louth fire department for years,” said Konkle, in addition to his sons’ growth in the department.

“The building of the new fire station on 19th Street was carefully watched over by Scott. He was just like a mother hen or a dog with a bone for if it wasn’t right he made the contractor correct it. His years of experience in fire situations and what was needed brought this municipality a fire station that all the residents can be proud of.”

Lincoln CAO Mike Kirkopoulos said Blake was at the core of developing what the municipality is today.

“The Blake family have been part of the fire service in Lincoln for generations,” said Kirkopoulos.

“The town mourns Chief Blake’s passing. He was and is part of the DNA of Lincoln’s past and its current leadership. Always a generous man with his time and commitment to community.”

A visitation will be held at Tallman Funeral Homes, 3277 King St., Vineland, on Friday, Jan. 6, 5-8 p.m. A Celebration of Life will be held at Fire Station 4. 3763 19th St., Jordan (public parking in lot to the north of the firehall) on Saturday, Jan. 7, from 1-3 p.m.

Page 2 • NewsNow • Thursday, January 5, 2023
residents to: Levee New Years JAN 7 Fleming Centre | 2 – 4 p.m. 5020 Serena Dr., Beamsville Ring in the New Year with your Mayor & Council • Enjoy free family activities
Chat with neighbours & friends • Enjoy light refreshments For more information, visit lincoln.ca @TownofLincolnON
Mayor Easton & Town of Lincoln Council invite
SCOTT BLAKE

Strategic priorities key for 2023: Grimsby Mayor

To all residents of Grimsby, I want to take this opportunity to personally – and on behalf of Council –wish you a Happy New Year.

Although the holiday season has passed, I sincerely hope that the time brought joy and happiness to you, your family and friends and created many new and fond memories.

Looking back at 2022 from a community perspective, we saw many important events including the ground-breaking of

our new hospital, the election of a new term of Council and most importantly, the return to our daily lives in a post-pandemic world.

The 11th hour of 2022 also brought significant changes from the Province, including Bill 23 and the erosion of the Greenbelt, which present challenges that your new Council will boldly take on.

As we move through 2023, Council will begin implementing its new Strategic Priorities and ensure that we protect Grimsby’s small-town character. We will begin the process of updating our Official Plan, a document that will guide how our Town

develops over the next 10 years, ensuring responsible development and that the protection of our shared heritage is first and foremost.

With Town budget time soon upon us and the current global economic climate, Council will be hard at work evaluating the various aspects of Town operations.

We want to ensure that we as a Town continue to deliver the high level of service residents expect with little or no impact on your valuable tax dollars.

A return to standing committees will allow Councillors to better focus on their areas of

expertise and allow for greater resident participation in the local decision-making process.

I hope to extend this further by implementing “open mic” sessions at our meetings allowing residents easy access to communicate any concerns they may have directly to us. Our new Council is ready, willing and wants to hear your opinions on the matters and decisions we make on your behalf.

In closing and once again on behalf of Council, I would like to wish you and your family a most prosperous, healthy and happy New Year.

WLMH welcomes New Year’s baby

For NewsNow

West Lincoln Memorial Hospital’s first baby of 2023 has arrived.

Max Jacob Jongsma made his debut Jan. 2 at 3:04 p.m., weighing a robust 8 lbs 6 oz.

See BABY, Page 5

4 Tips for a Successful Mortgage Renewal in 2023:

Plan early

Review your payment

This year, it is likely that your renewal interest rate will be significantly higher than prior years, and you may have difficulty with affording the new payment. There may be adjustments you can request, or other steps you can take, to improve affordability.

Go short

You may want to renew for a 1-year or 2-year fixed-rate term, based on the current economic predictions for 2023-2024. The choice of term length is a very personal decision, and consideration should be given to your circumstances.

Consult with a mortgage broker

Don’t assume that your bank is looking after your best interest. Pledge 30 minutes of your time with me, and in that 30 minutes, I can provide you with a complimentary mortgage review. You’ve got nothing to lose, and possibly thousands to gain! I remain committed to providing you with expert mortgage advice in 2023 - Call me today for your complimentary review!

7 Livingston Avenue, Grimsby, ON L3M 1K4 Tel: 905.309.8850 email: margo@mymortgageadvisor.ca www.mymortgageadvisor.ca

News Now • Thursday, January 5, 2023 • Page 3 Federal Programs Legislation and Regulations Immigration and Citizenship Veteran’s Affairs Income Security Programs CPP, OAS, GIS Canada Revenue Agency Commemorative Certificates Contact Dean’s office for inquiries & assistance with: Constituency Office 4994 King Street, Box 880 Beamsville, ON L0R 1B0 905.563.7900 Toll Free 1.877.563.7900 info@deanallison.ca | www.deanallison.ca Margo Wynhofen, B.A.Econ., Principal Broker Verico One Mortgage Corp. FSCO License #10460 Each Verico Broker is an Independent owner operator ™ Trademarket of Vercio Financial Group Inc. Verico One Mortgage Corp.
within
you
mortgage
on June
you can start the renewal process as
Organize your documents; find out
advance what documents to
You can expect to receive a renewal notice
the final 30 days of your mortgage term, but
can start to plan as early as 4 months in advance. For example, if your
matures
1st,
early as February 1st.
in
collect.
(Editor’s Note: Mayors of Niagara West municipalities were invited to offer an annual address) WLMH’s 2023 New Year’s baby Max Jacob Jongsma, born Jan. 2, with parents Sarah and Justin. McDonald – Photo

Polar Bear Dip raises $5,700 for McNally House

More than 160 brave souls took the plunge into Lake Ontario New Year’s Day for the Grimsby Polar Bear Dip.

“It’s the best way to start the new year,” organizer Allison Zaruk said Sunday as the crowd gathered at Bal Harbour Beach.

Zaruk said donations for the fundraising event came in from the community in addition to those who took the icy plunge.

All proceeds from the annual fundraiser go to McNally House Hospice in Grimsby.

This year’s event raised

$5,700.

“It’s so awesome for the community to get together,” Zaruk said.

Last year’s event held under Covid restrictions saw dippers run in groups of 25 and raised $3,500 for McNally House.

Page 4 • NewsNow • Thursday, January 5, 2023 Phone: 905-945-0188 Sold@GolfiTeam.com www.GolfiTeam.com In combined sales and volume, across all brokerages in Hamilton, Halton, Brantford and Niagara (Jan 1 - April 30, 2021). RE/MAX Escarpment Golfi Realty Inc., Brokerage. Independently owned and operated. * Sales Representative Rob Golfi* CALL TODAY FOR A FREE HOME EVALUATION! REAL ESTATE TEAM † #1
More than 160 braved chilly Lake Ontario for the 2023 Grimsby Polar Bear Dip.
Participants make a quick exit.
(Above
& Below)
Story, Photos By Joanne McDonald

BABY

From Page 3

The new little star is a son for parents Sarah and Justin Jongsma and a brother for two-year-old sister Rae.

It was an eventful night for the Dunnville family. Sarah knew it was time to go shortly after midnight. Justin called his mom to watch Rae, then the soon-to-be second time parents were on their way to West Lincoln.

Praising his wife, Justin confessed he has a tendency

to faint. But just for the record, he made it through with flying colours. And there was no question about the delight and joy he felt for his wife. “Sarah was great.”

“We’re so honoured to be part of this,” said Gail Bartlett, President of the West Lincoln Memorial Auxiliary. The last two years the Auxiliary welcomed new parents via zoom calls.

“It’s great to see the OBS reopened and offering full services,” Bartlett said.

Town of Grimsby Planning Department

You are invited to a Public

Open House

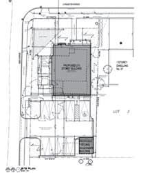
Applications have been received by the Town of Grimsby for an Official Plan Amendment and Zoning By-law Amendment for the lands known as 41 Livingston Avenue.

The proposed development consists of a 3 storey mixed-use building, which would contain ground floors office and recreational space, and 5 residential units above. The residential units would be assisted living units for adults with physical and mental disabilities. The ground floor is to be utilized for accessory education and recreation space with a kitchen for the use of the Community Living Grimsby, West Lincoln and Lincoln. There would be approximately 40 sq. m. of outdoor amenity space provided, and 9 parking spaces (1 accessible parking space) provided on site. A 4.5m tall accessory structure of 23 sq. m. would be located in the parking area.

The purpose and effect of the proposed Zoning By-law Amendment is to carry forward the existing site specific policy permitting Education Resource Centre and to permit a group home use with a maximum of 5 residential units. The application is also requesting modifications to performance standards including minimum interior side yard and minimum ground floor height and parking requirements to permit the proposed development.

• $15 gift certificate courtesy of Teddy’s Food, Fun & Spirits, John Butler

$15 gift certificate courtesy of Cole’s Florist, Sophia Attema • $15 Gift Card courtesy of Canadian Tire Grimsby, Brielle DeGraaf • Large, 3-Item Pizza, Pick-Up Only, courtesy of Gino’s Pizza, Blake Burgoyne • $15 Gift Card courtesy of Tim Hortons Grimsby, Matteo Marrama Winners can stop by the NewsNow office to pick up their

The Town of Grimsby will be hosting a Public Open House to explain the proposed development. An open house meeting is typically held shortly after the Town receives a development application, at the beginning of the review process. Town Staff have not reviewed the application yet, and are still awaiting comments and analysis from other departments and agencies, as well as comments from the public. Therefore, there have been no decisions made about the proposed development yet.

The purpose of the open house meeting is for Town Staff and the applicant to: inform you about the proposed development; inform you about planning process to follow; answer your questions; and hear your comments.

The open house meeting will be held as follows:

Date: January 30, 2023

Time: 6:00 p.m.

Location: Council Chambers (160 Livingston Avenue) and via Zoom

The meeting can be attended in-person or via Zoom. If you wish to appear as a delegation at the meeting via Zoom, please register with planning@grimsby.ca. Note only those individuals that register will be given the Zoom link. If you do not wish to speak, our meetings will be livestreamed at https://www.grimsby.ca/livestream/.

Additional information regarding the applications, including appeal rights, is available on the Town’s website at www.grimsby.ca/currentplanningapplications, at Town Hall during normal business hours (8:30 to 4:30), or you may contact: Town of Grimsby, Planning Department 160 Livingston Avenue, Grimsby, Ontario L3M 0J5

Telephone: (905) 945-9634, Fax: (905) 945-5010, Email: planning@grimsby.ca

News Now • Thursday, January 5, 2023 • Page 5
winnings HAT TRICK HOCKEY 1. Olejarz, Theresa 777 2. Allison, Mike 776 3. Della Valle, Basil 772 4. RawKnee ................... 771 5. Van Roon, Jim ............ 769 6. Grant, Donald .......... 768 7. Heywood, Kevin 768 8. O’Toole, Brandy 768 9. Stuive, Alex 765 10. Havens, Robert 765 11. Minor, Dale 764 12. Lecinski, Gene 762 13. Dunder, M. 759 14. Torkelson, Andy...... 759 15. Smithson, Paul ........ 759 16. Emerson, Kodeeyah.. 756 17. Waltham, Clark 756 18. Dohany, Adam 755 19. Kusy, Laura 754 20. Mous, Brent 754 Sponsored by: Top Standings © NHLPA. Officially Licensed Product of the NHLPA. NHLPA, National Hockey League Players’ Association and the NHLPA logo are trademarks of the NHLPA 36 Main St. West, Grimsby 30 Main St. West, Grimsby FOOD, FUN & SPIRITS 147 Main St. East, Grimsby • 905-945-2219 GRIMSBY 4 Locations to Serve You! 905.945.4161 www.grimsbyford.com Week Nine Be sure to look online at: wn3.ca to see the full standings, but here are some of the leaders and lucky random draw winners: Grimsby Square Plaza 905-945-4478 1 Mountain Road Grimsby 166 Main St. West, Grimsby
Concept plan of subject lands

West Lincoln mayor looks ahead to 2023

(Editor’s Note: Mayors of Niagara West municipalities were invited to offer an annual address)

2022 - What a year of “ups and downs”, so much so, that I am quite content to say “goodbye” to it!

Looking ahead to 2023 in West Lincoln, I am full of optimistic hopefulness on many fronts.

Our Industrial Park is welcoming “additions” to existing businesses plus a new business; we have prospective opportunities for smaller in-fill development in the queue and additionally two large designated areas, currently within our urban boundary, are poised to begin development.

After initial approval in the 2020 budget, a highlight for 2023 in West Lincoln will be the completion of Fire Station #2! We are proud to be able to offer our firefighters in the rural area a modern facility in which to operate and serve the public.

Community support given to our local businesses has been encouraging and must continue! We need to “shop local” in order to maintain our local businesses and also encourage others to locate here.

The upcoming Budget Season will be extremely challenging. There is no doubt that the inflationary pressures that we as individuals face, regarding such things as increased costs of fuel, insurance and utili-

ties, will also put those same inflationary pressures on our municipality as the 2023 budget is struck. Our council will need to very carefully weigh the costs of delivering and maintaining existing services to residents, which is our main responsibility versus the desire for any additional service requests. I am convinced that our current staff and council will do their absolute best to deliver a fair outcome for all.

I am pleased to see the re-introduction of West Lincoln’s Mayor’s Youth Advisory Council and look forward to reengaging our youth in both civic and volunteer capacities. During the past term of Council the great work for “Older Adults” being done by

our Age-Friendly Advisory Committee came to a crashing halt due to Covid. I am encouraged by the interest that has been shown in getting this Committee up and running once again this year, with the additional thought that some intergenerational work could potentially be done by having these two groups occasionally working together!

The wonderful attendance at our various festive events, during the last two months, clearly demonstrated how very much the West Lincoln Community enjoys getting together with neighbours and friends. I look forward to more such opportunities to chat and enjoy each other’s company throughout 2023!

Page 6 • NewsNow • Thursday, January 5, 2023
Make Child Care Your Business Learn more and apply at niagararegion.ca Become a Home Child Care Provider Flexible hours. Work from home. Provide a vital service for Niagara families. YOUNG MCNAMARA Barristers • Solictors • Notaries J. Christopher Young Morgan Paul Young Specializing in Family Law, Real Estate, Corporate and Wills & Estates Main Office 18 Albert St. E., Thorold, ON L2V 1P1 T: 905-227-3777 • F: 905-227-5988 E: youngmcnamara@hotmail.com Grimsby office by appointments Call 905.562.5831 for a FREE Estimate Visit us at: www.louwes.ca or 3435 King Street • Vineland WINDOWS & SIDING SINCE 1966 ROBERT JAMES, Sales Representative Office: 905-945.1234 Email: robertjames@royallepage.ca NRC Realty, Brokerage. Independently Owned and Operated

WILLS CHEVROLET - BUICK - GMC 337 Main Street East Grimsby 905-309-3356 www.willschev.com

NIAGARA WEST FIRE RESCUE & EMERGENCY SERVICES (Previously Grimsby Fire Dept.) 261 Ontario St., Grimsby 905-945-2113

COLE’S Florist & Garden Centre 147 Main Street East Grimsby 905-945-2219 www.colesflorist.ca

MERRITT FUNERAL HOME 267 Station Street, Smithville 905-957-7031 www.merritt-fh.com

1928

ROYAL CANADIAN LEGION

Grimsby Branch 127 233 Elizabeth Street 905-945-8421

WEST LINCOLN MEMORIAL AUXILIARY Grimsby 905-945-2253

NIAGARA WEST FIRE RESCUE & EMERGENCY SERVICES (Previously Beamsville Fire Department)

METCALFE ELECTRIC LTD. Serving the Community For Over 90 Years Gwen, Todd 905-945-2151

1958

1944 winona concrete 489 Main St. w., Grimsby 905-945-8515

News Now • Thursday, January 5, 2023 • Page 7 CHARLIE’S BARBER SHOP 23 Main Street, West Grimsby 905-945-4412 1908 1949 PYETT SPRING & ALIGNMENT SERVICE INC. 938 Silver St., Caistor Centre 905-957-7033 • 905-957-0800 1-800-363-1609 • pyettspring@bellnet.ca Commisso’s Food market Beamsville towne Centre 1962 Grimsby Glass & mirror “Your One Stop Glass Shop” 9 oak street, Grimsby 905-945-5282 www.grimsbyglass.ca 1958 Handling Specialty 219 South Service Rd. W. grimsby 905-945-9661 1963 Lake Foundry 2020 Ltd. 287 South Service Road West Grimsby 905-643-1248 1955 DURWARD JONES bARkWEll & c O. llP 570 Highland Rd. W., Hamilton (905) 525-9520 www.djb.com 1940 STONEHOUSE-WHITCOMB FUNERAL HOME 11 Mountain Street Grimsby 905-945-2755 1928 1963 CLA-VAL CANADA CORP. 4687 Christie Drive, Beamsville 905-563-4963 www.cla-val.ca ST. ANDREW’S ANGLICAN CHURCH 154 Main Street West Grimsby 905-945-8894 1794 ERION INSURANCE
1927 TALLMAN FUNERAL HOME Vineland 905-562-5454 1941
1891
76 Main St. W., Grimsby 905-945-2281 www.erioninsurance.com
hopkinS ida pharmacy 69 Years in Vineland John hopkins pharmacy Ltd. 3387 King Street, Vineland 905-562-4661 1949 West LincoLn chamber of c ommerce 288 station st., smithville 905-957-1606 westlincolnchamber.com 1948
1922
1879
1921
1894
1960
NIAGARA PENINSULA ENERGY 2676 Clifford St. Smithville 1915 2023 presents The Following wish to express thanks for your continued business, friendship and loyality. THEN & NOW

presents The Following wish to express thanks for your continued business, friendship and loyality.

1965

gbf

Community Services

40 Elm Street grimsby 905-309-5664

1968

Beamsville 905-563-7374 St. Catharines 905-646-0199 www.dykstrabros.com

DURHAM

AUTOMOTIVE

5665 King St. Beamsville 905-945-3545 www.durhamautomotive.ca

1973

HOUSE OF HAIR DESIGN

3924 Victoria Ave., Vineland 905-562-7206 www.houseofhairdesign.info

1978

bert vis

flooring and cabinets 214 St. Catharines St., Smithville 905-957-7779 www.bertvis.com

1966

LOUWES

WINDOWS & SIDING

3435 King Street, Vineland 905-562-5831 www.louwes.ca

JERRY’S AUTO BODY COLLISION CENTRE

1970

Charlie Bee-Honey

3591 Mountain Road Beamsville (Lincoln) 905-563-7285

1977

MARLENE SMITH’S DECORATING & GIFTS

19 Main St. West Grimsby 905-945-2675 Marlenesmithdecorating.com

1978

DONNA’S FASHIONS

11 Main Street West, Grimsby 905-309-6549 655 Highway 18, Stoney Creek 905-643-1111 donnasfashions.ca

1967 West LincoLn MeMoriaL HospitaL Foundation 167 Main street e., Grimsby 905-945-WLMH (9564) www.wlmhfoundation.ca 1981 the dutch shop 52 Main St. West Grimsby

Page 8 • NewsNow • Thursday, January 5, 2023
Roofing
Dykstra Brothers
1968
Seniors
1978 EMPLOYMENT HELP CENTRE
1983 SMITHVILLE CHRISTIAN HIGH SCHOOL Belong. Believe. Succeed. Accepting registrations for Sept. 2022 6488 Smithville Townline Rd. 905-957-3255 • www.smithvillechristian.ca 1980 MOUNTAIN GROOMING Dog & Cat Grooming Olga Thompson 52 Elm Tree Road West, Grimsby
1984 mountaineer movers 905-561-8880 • 1-800-263-4561 www.mountaineermovers.com email to: sarah@mountaineermovers.com 1978 VILLAGE INTERIORS Custom Window Fashions 11 Livingston Avenue, Grimsby Call William Bezemer for your Complimentary Consultation 905-945-8008 www.villageinteriorsonline.com 1974 tintern auto Serving the Community for over 30 Years! 3984 Spring Creek Rd. Vineland (Tintern)
1983 1971
Grimsby
18 Livingston Ave., Grimsby 905-309-2075
Grimsby 905-309-9675 Beamsville 905-563-9675 Smithville 905-957-9675 www.employmenthelp.org
905-945-8871
905-563-7961
plumbing & heating
Complete Collision & Restoration Repairs 905-563-7702 www.jerrysautobody.ca 1969 ORIGINAL GREENSCAPES 40 Hunter Road, Grimsby 905-945-5351 www.originalgreenscapes.com originalgreenscapes@sympatico.ca 1977 konkle
905-563-4847 1981 HHHHH
2023
THEN & NOW HUBBARD AIR HeAtIng & AIR conDItIonIng
COMMUNITY CARE OF WEST NIAGARA 4309 Central Avenue Beamsville 905-563-5822 hours •
905-945-3688 www.dutchshop.ca
17 John Street, Grimsby 905-945-3722 Open 24
www.hubbardair.com 1978

presents The Following wish to express thanks for your continued business, friendship and loyality. THEN & NOW

1985

LincoLn chamber of c ommerce

4996 beam St., P.o. box 493 beamsville, L0r 1b0 905-563-5044 info@lincolnchamber.ca

1987

1985

Rose Cottage Visiting VolunteeRs

Community Hospice 4289 Hixon street, P.o. Box 4 Beamsville • 289-566-9588 www.rosecottagevolunteers.com

1987

SOUTH SHORE SEARCH & RESCUE 905-359-8996 www.gamru.ca

1988

JUDY

SWEETING

Sales Representative SWEETING DE DIVITIIS REalTY GRoUp (Re/Max Garden City Realty Inc. brokerage) 905-945-0660

1991

GLEN ELGIN Real Estate Corp., Brokerage David Jarvis, Broker of Record Grimsby Place 76 Main St. W., Grimsby 905-945-7730 • glenelgin.com

1991

“HANDS ON” HEALTHCARE Massage Therapy Clinic Frances Lommen RMT 154 Griffin Street S., Smithville 905-957-4447 franceslommenrmt@gmail.com

1987

SMITHVILLE HOME HARDWARE & BUILDING CENTRE

2646 Industrial Park Rd. Smithville, Village Square Mall 905-957-2544 smithvillehomehardware.ca

1992

GRIMSBY CHRYSLER DODGE JEEP LTD.

421 South Service Rd. Grimsby 905-945-9606 www.grimsbychrysler.com

SHEAR IMAGE SALON BEAUTIQUE

Orchardview Plaza 155 Main Street West, Grimsby 905-945-5541 www.shearimagesalon.ca

News Now • Thursday, January 5, 2023 • Page 9 AG & TURF POWER SERVICE 104 Mud St. West, Grassie 905-945-4848 www.agandturf.ca 1987 MAYNARD’S AUTOMOTIVE 241 South Service Rd. (Just west of Christie) Grimsby 905.945.1700 1992 MOBILE MARINE SERVICES 261 Hunter Rd., Grimsby 905-945-4994 Cell: After Hours & Emergencies 905-730-4722 www.mobilemarineservices.net 1997 WINDMILL APPLIANCE SERVICE Bob Needham 905-945-9688 • Cell 905-971-4681 windmillappliance@hotmail.com God Bless Your Home! 1992 margo wynhofen verico one mortgage group 7 Livingston ave., grimsby 905-309-8850 1998 SURE-SHOT BUSINESS SERVICES INC. 4960 King Street Beamsville 905-563-8635 www.sureshot-taxes.com 1992 GINO’S PIZZA 24 Main Street East Grimsby 905-945-4478 1990 ZOI OUZAS Sales Representative RE/MAX GARDEN CITY REALTY 905-945-0660 • 905-563-8527 zoi@zoiouzas.com www.zoiouzas.com 1989 1998 GUARDIAN INTERNATIONAL PROTECTIVE SERVICES INC. 4460 Ontario Street Beamsville Office:
HENRY SALOMONS CPA PROFESSIONAL CORPORATION Chartered Accountant
1
1985 BEAMSVILLE HOME HARDWARE
King Street
1988 1990 GRIMSBY MUFFLERS & BRAKES Complete Automotive Repairs 299 Mountain Rd.,
905-563-5080
4506 Ontario Street, Unit
Beamsville Phone: 905- 563-7045 1-888-Henry-CA (436-7922) www.henrysca.ca
4992
Beamsville 905-563-8254
Grimsby 905-945-3632
1994 McCARTHY’S WATER SERVICE
Potable Bulk Water Delivery 905-945-1298 Call or TExT Today! 1986 AQUAJET SERVICES Grimsby, Ontario 905-945-0128 26 Year Anniversary! 1996
GEORGE P. KRUSELL B.A., LL.B. Barrister, Solicitor, Notary 155 Main St. East, Unit 201 Grimsby Tel: 905-945-2300 Fax: 905-945-8529 krusell@sympatico.ca 2023
2000 HANDS FOR BETTER HEALTH Massage Therapy & Wellness Clinic 4724 Ontario St., Beamsville 905-563-9300 handsforbetterhealth.com WEST LINCOLN PHARMASAVE 239 St. Catharines Street Smithville 905-957-5700 2012 ROBERTS & SONS AUTOMOTIVE 4943 Union Road, Unit #4 Beamsville 905-327-5783 2018 40 PUBLIC HOUSE 10 Main Street West Grimsby 905-309-4040 2016 CHARROIS HEATING & AIR 51 Red Haven Drive, Grimsby 289-442-6092 www.charroisheating.com 2019 You Had Me at Pizza 24 olive Street, Grimsby, oN 289-235-7757 youhadmeatpizza.com 2015 CASA TOSCANA FiNe FOOdS ANd CuCiNA 22 Main St. W., Grimsby 289-235-8888 www.casatoscana.ca 2009 CLASS EH! ROOFING 289-687-6924 www.classehroofing.ca 2008 SMOKE & MOONSHINE Authentic Barbeque 5205 King Street, Beamsville 289-237-8153 www.smokeandmoonshine.com 2018 DUECK OPTOMETRY 4975 King Street Beamsville 905-563-1618 1999 Sharon Rizzuto, B.COMM, CFP® FDS Financial Advisor Scott Rizzuto, CFP®, CIM Associate Advisor 2006 2011 NIAGARA DANCE FITNESS STUDIO 4961 King St. E. Beamsville Towne Centre 905-327-1439 www.niagaradanceandfitnessstudio.com robins electric cUstoM resiDentiAl l AYoUts coMMerciAl/resiDentiAl/ AGricUltUre 24-Hour Emergency Service cell: 289-969-9425 www.robinselectric.ca 2012 NEWS NOW 1 Mountain St., Grimsby
Sales@wn3.ca www.newsnowniagara.ca 2012 Glenn’s Painting Services 905-928-1750 www.glennspaintingservices.com 2000 FIELDING ESTATE WINERY 4020 Locust Lane Beamsville 905-563-0668 2005 AUGUST RESTAURANT 5208 King Street Beamsville, ON 905-563-0200 www.augustrestaurant.ca 2008 GIANT TIGER 36 Main Street West Grimsby 905-309-4511 2000 DR. DAN DIMTSIS DR. KIM WOODS FAMILY DENTISTRY 146 Main St. E., Grimsby 905-945-2323 2005 CONVERSATIONS CAFE/ CONVOS YOUTH ZONE 4995 King Street Beamsville 905-563-9365 2012 K9 KOUTURE Your K9 Spa 45 Main Street West, Grimsby 905-309-0047 K9KoutureGrooming@cogeco.ca 2017 Grimsby Power inc. 231 roberts road Grimsby 905-945-5437 www.grimsbypower.com 2000 smithville pharmacy 128 st. catharines st. Unit 102 905-957-9000 2017 NIAGARA FOOT CARE ClINIC & ORThOTIC CENTRE 5-270 Main St. E., Grimsby 905-309-6747 2000 2023 presents The Following wish to express thanks for your continued business, friendship and loyality. THEN & NOW Page 10 • NewsNow • Thursday, January 5, 2023
289-235-9500

Forgotten Followers From Broken to Bold

Women were in the minority when Elaine Ricker Kelly began her career as a financial advisor, but it looked like women’s rights were moving forward.

As she wound up her financial career, she found equality had moved backwards and that some of the limitations on women came from the church.

As a Christian who had seen women in leadership roles, she felt betrayed.

It was a realization that would lead Kelly back to the first century, to the Gospels where Jesus in his ministry endorsed equality, equipped women as disciples and empowered them to speak and lead.

After two years of extensive research, Kelly has launched her powerful Christian historical fiction ‘Forgotten Followers from Broken to Bold’ retelling biblical stories from women’s perspectives. It is an empowering book for women and brings a message of healing and affirmation to those who feel devalued.

Imagine ‘Jo’ the perennial female protagonist in the

novel ‘Little Women’ meeting the biblical women in the ‘The Red Tent’ and you will have some idea of the complex characters that Kelly weaves into the tapestry of sisterhood in her book.

Instead of dismissing women of the Gospels as unimportant, she lifts them up as empowered and vibrant characters.

Forgotten Followers tells the stories of Mara, traumatized by abuse, and filled with doubts and insecurities. Research for Mara’s character led Kelly to story after story of survivors of gender-based violence and financial, emotional, and spiritual abuse.

The other main character, Joanna, grapples with racism, feels undeserving of her success and position, and hides who she really is for fear of being ostracized.

Kelly is grateful for the support from readers now sharing their own stories of women who overcame difficulties and used their voices. “We have a responsibility to use our gifts and to speak boldly.”

Kelly is compiling an interactive study guide that

will include work sheets, illustrations, puzzles, songs and historical notes. Go to: www.elainekelly.

ca

Her next book, the continuation of the series, Forgotten Apostles from Broken to Bold will be

out next year. Published by FriesenPress, Forgotten Followers From Broken to Bold is available locally at The Nook, 42 Main St. West, Grimsby; at books.friesenpress.com and all online stores.

5th Annual

Volunteer Pay Subscription Drive

“What a newspaper needs in its news, in its headlines, and on its editorial page is terseness, humour, descriptive power, satire, originality, good literary style, clever condensation, and accuracy, accuracy, accuracy!

Dear Reader, Well, here we are again – another new frontier - circulation via Canada Post. About two months are in the books and processes are still being ironed out but, all in all, it was a strong start and we appreciate the efforts of everyone at each postal outlet in Niagara West!

So far, response from readers and advertisers has been excellent. Quality and consistency are key and that is our main goal. The more support we get, the more content we can publish. If you can support us, and choose to do so, we greatly appreciate it!

Based on the excellent feedback from previous years’ volunteer pay subscription drives, we have launched Year 5!

Is NewsNow’s independent, accurate voice in the community of value to you? Would you like to support NewsNow in its efforts? This is your opportunity.

If

yes, we have refined the infrastructure for our Volunteer Pay System

Simply, this means, rain (or snow) or shine, you will always – each and every week – receive your copy of NewsNow. Whether you live in a single-detached home, apartment, condo or at a business, NewsNow is now everywhere –28,000-plus circulation strong. That will NOT change!!!!

Subscriptions:

One Year - $50 suggested

We will back HST out of each payment to make things as simple as possible. You can pay by cheque (bring into the office or mail), credit card (call Catherine at 289-235-9500) or e-transfer (send to: subscriptions@wn3.ca - make security answer - newsnow )

For more information, please do not hesitate to call, email or drop in. All inquiries are welcome!! Thanks very much for your time and wishes of good health to you all!

1 Mountain Street, L3M 3J6, Grimsby • 289-235-9500

News Now • Thursday, January 5, 2023 • Page 11
Local author Elaine Ricker Kelly launches historical fiction empowering women Vineland author Elaine Ricker Kelly empowers women in her Christian historical fiction ‘Forgotten Followers from Broken to Bold’.
Mike Williscraft Publisher

OBITUARIES

BLAKE, George Scott

OBITUARIES

GEMMILL, Susan Angela

At Hamilton General Hospital, on Monday, December 26, 2022, Susan Angela Gemmill, dob May 15, 1945. Lovingly remembered by her husband Bill, brother Richard (Penny)

Cartwright, sister Jackie (Mel) Iovio, nieces Chris (Ann) Cartwright, Jen (Peter) Grech and families and Julia Iovio and Greg (Stephanie) Iovio and family. Sue was a retired teacher/librarian with the Hamilton-Wentworth District School Board and an avid gardener with many Trillium awards. Sincere thanks to the staff and doctors at the Hamilton General Hospital, the Neurosurgical Step Down Unit and the Stroke Unit. Cremation has taken place. A celebration of her life will be held later. If desired, memorial contributions to the Heart and Stroke Foundation would be sincerely appreciated by the family. Arrangements entrusted to STONEHOUSEWHITCOMB FUNERAL HOME, GRIMSBY, 905-945-2755.

www.smithsfh.com

FOR SALE

Propane BBQ, Hoover Vacuum, Gravitrax starter kit, Beyblades + arena, play pen, ball and bat set, Pokemon cards, RCA radio with speakers, outdoor lawn chairs, VCR & DVD Disney movies, 2 new (in pack) single bed sheet sets, flat screen cord protector, new in box coffee maker. Call 905-9121788 for pricing

SUPPORT GROUP

Struggling with life?

“Celebrate Recovery (CR)” a 12 step Christian recovery program for any Hurts, Habits and Hang-ups.

Wednesdays at 7 pm at Forestview Community Church, 132 Lake St, Grimsby, On. All are welcome! Please call for info. or help - 905-945-9529

HANDYMAN SERVICES

RUBBISH & JUNK REMOVAL. Call Ken 905973-3235

On December 29th, at the age of 76, Scott passed peacefully with his loving family by his side.

Scott had two loves in this world, his family, and the fire department.

Scott is survived by his best friend and wife of 57 years, Dianne(Dee). He was the proud Father, of Dave (Sandy), Bob (Laura), Bill (Tamara), loving Grandpa of Brandon, Austin (Saepom), Justine (Matt), Logan (Patrick), Mackenzie (Gabe) and Kamryn, and Great-Grandpa of Ava, Blake & Mya. Scott is also survived by his older brother Jim Blake (Diana), and brother-in-law Dave Cummings.

Scott will be dearly missed by many other friends, family, and his fire family, who often knew and loved him as “Ugger”, and could always count on his positive attitude, along with his sarcastic whit and a little giggle.

Scott served with Lincoln Fire Rescue for 47 years, rising through the ranks of Firefighter, Captain, and District Chief of Station 4, eventually transitioning to Deputy Chief and his ultimate dream job of Chief. He inspired his 3 sons to follow in his footsteps, and they proudly served their community together as a family. Living his entire life in his hometown of Jordan, Scott spent many years volunteering his time in addition to Lincoln Fire Rescue. He was an active member with the Lions Club, coached his sons with Jordan Lions Minor Hockey Association, and as a coach & convenor with Jordan Lions Softball Association.

The family will host a Visitation at the Vineland Chapel of Tallman Funeral Homes (3277 King St., Vineland) on Friday, January 6th, from 5:00 pm to 8:00 pm. There will be a private family internment.

An open house “Celebration of Life”, with refreshments, will be held at Lincoln Fire Station 4 (3763 19th Street, Jordan, ON) (public parking in lot to the north of the Firehall) on Saturday, January 7th, from 1:00 pm to 3:00 pm. In lieu of flowers, donations may be made in memory of Scott to the Canadian Cancer Society.

Online condolences at tallmanfuneralhomes.ca

Marie Elizabeth MacPherson (nee Callaghan)

October 10, 1930December 31, 2022

Sadly, and yet with deep gratitude for her life, we announce that Marie died at West Lincoln Memorial Hospital on Saturday, December 31, 2022, at the age of 92. Marie was the beloved wife of John (1987); the cherished mother and mother-in-law of Kathleen (1999), Karen and Brian Chesla, Paul and Leslie, Mike and Diana, Marie and Chris Smith, Colleen and Michael Barliak, Dennis, Jim and Anna, Rob, Bill, Ron and Jennifer, and Don. Loving Grandma to Kendra, Gareth (Andrea), Ellen, Michaela (Darren), Michael, Adriana, Paula, John, Connor, Martene, Eddie and Maggie. Proud Great-Grandma to Ben and Lisa. Loved Sister-in-law of Almira MacPherson and many nieces and nephews. She has been reunited with her parents, Michael and Christina; her brothers, Kenny (Marguerite) and Father Michael Callaghan; her sisters, Grace (Lou) Kline and Sister Michaeleen Callaghan; her brother-in-laws, Hughie (Anna), Danny, Andy, Lauchie, Billy (Betty); and sister-in-law Mary. Marie and John arrived in Grimsby in 1956, building a home in the Co-op. Marie spent many years volunteering in the community; schools, sports, St. Joseph Church and she was an original founding member of the Grimsby Benevolent Fund (GBF). The family would like to sincerely thank Dr. Seamus Donaghy for his compassionate care of Mom over the years. Visitation at STONEHOUSEWHITCOMB FUNERAL HOME, 11 Mountain Street, GRIMSBY (905-945-2755) on Monday, January 9, 2023, from 3-5 and 7-9 p.m. Funeral Mass will be celebrated at St. Joseph’s Roman Catholic Church, 135 Livingston Avenue, Grimsby, on Tuesday, January 10, 2023, at 11 a.m. Interment to follow at Queen’s Lawn Cemetery. If desired, memorial contributions to The Grimsby Benevolent Fund would be appreciated by the family. www.smithsfh.com

Page 12 • NewsNow • Thursday, January 5, 2023
Please call to place your Classified Ad
289-235-9500
TREE SERVICE Fully Insured
4 Snow/winter tires for sale 215/70R16 Good condition call 905-945-9111

Did Winona Beach Inn actually start up and operate?

The 1920s to the 1970s were the “big band” days, the era when eager young couples sought out dance halls to enjoy the live music of the big bands.

Among the most popular dance halls were those on the shores of Lake Ontario – the Palace Pier in Toronto, the Brant Inn in Burlington, El Morocco in Winona and the Casino at the foot of Park Road in Grimsby.

There were many local Big Bands, but ev-

A Small Drop of Ink

ery year these dance venues were also visited by such famous names as Tommy Dorsey, Guy Lomardo, Liberace, Mart Kenny, Louis Armstrong, Xavier Cugat.

Browsing through old issues of The Grimsby Independent, I recently found a reference to one I had not heard of before, the Winona Beach Inn. Opening for the 1923

season, the inn was located in a large building by the lake at the end of Station Road, now known as Winona Road.

The inn featured a large dining room and four smaller dining rooms, several “lounging rooms”, and 30 guest rooms for those who chose to stay overnight or longer. The Inn was owned by Messrs. Campbell and Wall.

Researching our Winona Beach Inn proved to be difficult because

there were also Winona Beach Inns in Indiana and Washington State.

These were apparently much larger and more famous. No more references to Winona Beach Inn in sunny Ontario.

Did the Inn actually open and operate?

Perhaps some readers will remember this building and good times there.

If you have memories of Winona Beach Inn, drop me a line at: drturcotte@cogeco.ca

Niagara Region is collecting Christmas trees for composting during the week of Jan. 9-13 for residents in single-family homes and apartments with six units or less.

Residents should know: • Place tree at the curb by 7 a.m. on your regular collection day

• Remove all ornaments and decorations

• Christmas trees wrapped in plastic, or buried in snow, or placed on top of snow banks will not be collected

• No artificial trees, these can be booked separately for large item collection

Special collection weeks such as holiday collection and Christmas tree collection are also included in address-specific schedules in the Region’s web/mobile app.

For more information, visit Niagara Region online or contact the Waste Info-Line at 905-356-4141 or Tollfree 1-800-594-5542, Monday to Friday from 8 a.m.-5 p.m.

News Now • Thursday, January 5, 2023 • Page 13 www.plazek.com We Pay Top $$ For Scrap Vehicles Used Auto & Truck Parts 9530 Silver St., Caistor Centre 905-957-8111 PAUL LEWIS SETTIMI General Law Practice PROUDLY SERVING NIAGARA WEST FOR NEARLY 30 YEARS 36 Main St. E., Suite 4 Grimsby, ON 289-235-7500 paul@settimilaw.com www.settimilaw.com
tree P/U next week Glenn’sServicesPainting Established in 2000 Call Jeff To Book Now! 905-928-1750 Booking for January 2023! www.glennspaintingservices.com Thanks For Voting Us #1 Painter 2022 BEST WEST IN THE PHIL NIEMI OWNER/CRAFTSMAN Call for a Quote! (289) 668-2728 leave.it@inbox.com Leave It 2 Me Roofing & Painting Stan Macievich Blue Ribbon Painting In business locally for over 25 years High Quality Craftsmanship expert residential painting 905-945-1543 SEAN D. HEELEY Barrister & Solicitor SZPIECH, ELLIS, SKIBINSKI, SHIPTON Wills, Family, Real Estate 107 Griffin Street South, Smithville, Ontario L0R 2A0 905-957-7898 414 Main St. East, Hamilton 905-524-2454 sheeley@sesslaw.ca 286 Main Street W. Grimsby, ON L3M 1S4 frankdveldman@gmail.com C: (905) 325-1266 Frank Veldman MERRITT FUNERAL HOME 287 STATION ST., SMITHVILLE “Serving Families Since 1921” Managing Director: M. Andrew Gauthier Funeral Director: Tom C. Merritt 905-957-7031 www.merritt-fh.com JO-DAN WATER SERVICES BULK WATER - POOLSWELLS - CISTERNS 1-1442 OSPREY DR. ANCASTER, ONTARIO 905.648.9899 INFO@jODANWATER COm WWW.jODANWATER COm 289-684-2224 Liam Lyons Carpenter/Builder Liamclyons@hotmail.com Have a great day List of Services • Snow Removal • Setting up/removal of • General Labour holiday lights/decor • Landscaping • Interior Painting • Interior Custom Closets Tina Lacivita • 647-828-7963 4186 Mountain Street, Beamsville • tinashomeescapes@gmail.com Our Business Directory is an economical way to promote your business or service, call 289-235-9500 Business Directory 289-235-9500 HANDYMAN SERVICES Residential. Licensed Gas Technician. HVAC, Plumbing, Handyman Installation, Service. Heating, Cooling, Gas Lines. Clogged Drains. Honest, Reasonably Priced. Free quotes. Call Blake 365-889-7838 VEHICLES WANTED CARS, tRUCkS, old farm machinery for scrap or repair. We pay cash. Flatbed service. 905-386-6181 or 289686-5059. PHIL NIEMI OWNER/CRAFTSMAN Call for a Quote! (289) 668-2728 leave.it@inbox.com Leave It 2 Me Roofing & Painting Stan Macievich Blue Ribbon Painting In business locally for over 25 years High Quality Craftsmanship expert residential painting 905-945-1543 SEAN D. HEELEY Barrister & Solicitor SZPIECH, ELLIS, SKIBINSKI, SHIPTON Wills, Family, Real Estate 107 Griffin Street South, Smithville, Ontario L0R 2A0 905-957-7898 414 Main St. East, Hamilton 905-524-2454 sheeley@sesslaw.ca 286 Main Street W. Grimsby, ON L3M 1S4 frankdveldman@gmail.com C: (905) 325-1266 Frank Veldman MERRITT FUNERAL HOME 287 STATION ST., SMITHVILLE “Serving Families Since 1921” Managing Director: M. Andrew Gauthier Funeral Director: Tom C. Merritt 905-957-7031 www.merritt-fh.com JO-DAN WATER SERVICES BULK WATER - POOLSWELLS - CISTERNS 1-1442 OSPREY DR. ANCASTER, ONTARIO 905.648.9899 INFO@jODANWATER COm WWW.jODANWATER.COm 289-684-2224 Liam Lyons Carpenter/Builder Liamclyons@hotmail.com Have a great day List of Services • Snow Removal • Setting up/removal of • General Labour holiday lights/decor • Landscaping • Interior Painting • Interior Custom Closets Tina Lacivita • 647-828-7963 4186 Mountain Street, Beamsville • tinashomeescapes@gmail.com Our Business Directory is an economical way to promote your business or service, call 289-235-9500 Business Directory 289-235-9500 Advertise in the Classifieds or Business Directory Call 289-235-9500
Christmas

Office Location

Wrap up winner

was the sixth and final

DIA Shop Local Shopping Spree. She submitted her receipt for a dinner out from Judge & Jester to win a $500 shopping spree. She will spend her winnings at Home Sweet Home for some lamps she has had her eye on. WilliscraftPhoto

Lucky Lincoln

Lincoln is a better, stronger municipality thanks to Scott Blake.

The former fire chief died last week at the age of 76. In a time when commitment seems like a foreign entity for many, Scott put in 47 years with Lincoln Fire. He started on the lowest rung and worked his way to the top.

People like Scott stay involved because they are determined to leave a positive mark on their community; to leave it in better shape when they started out.

Scott Blake was successful in achieving that goal. M.W.

Unforgettable night for wrong reasons

I always try to keep the content of these pages hyper local.

If something happens outside the borders of Grimsby, Lincoln or West Lincoln I don’t really care about it. The only slight proviso there would be if a local person did something newsworthy outside of our Niagara West communities and there are major events which local residents would feel a common thread with, of course.

I have other topics to cover, and I will get to them. It’s just that, as I put this week’s edition together on Tuesday, my mind is still stuck on Monday Night Football.

If you didn’t watch, you may not know what went down. Not sure if you are better off for it, but you did miss something remarkably sad and tragic.

A Buffalo Bills player, Damar Hamlin suffered a cardiac arrest after a very normal-looking tackle of a Cincinnati Bengal.

It was late in the first quarter, but early in the game. Everything came to a stop, of course, with Hamlin requiring CPR on the field to the point where he got a pulse going again, but he was not breathing on his own.

The scene and evolution of the night was astounding to take in.

About 10 minutes passed while emergency medical staff worked on Hamlin on the field in front of a full stadium and millions of fans watching the highly anticipated game in the comfort

of their homes.

It sounds odd, but the details of the night are almost irrelevant other than Hamlin was stabilized, redeveloped vital signs in the early hours of Tuesday and remains in critical condition. That is the most important thing - by far.

I’ve watched and attended thousands of sporting events over the years, never seen anything like that. That sentiment was echoed by every broadcaster who chimed in over the threeplus hours of coverage I took in until 1 a.m.

I could not turn away. It was riveting...and not in a ghoulish way. Rather, there was a strange connection to all those who saw what I saw.

It was not unlike great sporting moments such as Joe Carter’s homerun when I happened to be gathered with my old high school buddies back home in Clinton or the Sunday night when I was at Flamboro Downs with a buddy when Gretzky got his 50th goal in his 39th game during the 81-82 season.

On the tragic side, most vivid is Lawrence Taylor snapping Joe Theismann’s leg in 1985 - also on Monday Night Football.

When someone is VSA (vital signs absent) right in front of you, playing a game, tragedy takes on a whole new level.

For me, just as a fan, it was shocking to see the replay and think how innocuous the contact was. Every football game you see has dozens more impactful hits, so it was not about fierce contact.

It was a basic football play.

It seemed to me part of the shock was, clearly, this could happen to anyone, anytime. That would had to have added to the tremors of concern and fear for the man. The right thing was done and the game was called off.

Now social media is taking over and looking for someone to sacrifice while all the world is watching and a huge hubbub about the NFL allegedly suggested a five-minute break after Hamlin was taken to hospital would suffice before play resumed. This has now been denied by the league.

Even if true, so what? The right thing was done. Clearly, there was no precedent and all were just doing their best.

Sports are a form of entertainment. It’s not supposed to be about life and death. Monday night was a stark reminder that every day is a blessing and not something to be taken for granted.

Page 14 • NewsNow • Thursday, January 5, 2023
100%
Sales
MIKE WILLISCRAFT
Niagara owned & operated Our Team: Publisher - Mike Williscraft mike@wn3.ca 289-442-4244 General Manager - Catherine Williscraft
Consultant - Erica Huisman Graphics - Donna Wisnoski
NewsNow is owned & operated by 1602207 Ontario Ltd.
to
Delivered via Canada Post
1 Mountain Street, Grimsby, ON, L3M 3J6 Ph: 289-235-9500 Ph: 289-235-7848 NewsNow is published EVERY Thursday & delivered
all homes & businesses in Niagara West, 29,006
Cheryl Wright of Grimsby winner of Grimsby

NRP investigate woman impersonating police

A woman impersonating a police officer has spurred an investigation into a Dec. 22 incident in Vineland.

The initial investigation determined that on Saturday, Dec. 17, at about 8 p.m., a resident of Heritage Village in Vineland was alerted to a knock at their door.

They were met by an unknown female who stated that she was a member of the Niagara Regional Police. The female was wearing a shirt and jacket labelled “Police” on the front and back. The female did not produce a badge or any other identification.

The female told the resident that she was on a drug initiative and was collecting un-

wanted pharmaceutical drugs and/or prescriptions that were no longer wanted or needed.

The female advised that she would take the drugs and deliver them to a pharmacy for disposal.

A short time later the female left the area in a newer black Ford SUV. The Ford SUV had reflective tape with the word “Police”. No other markings or decals were visible on the SUV. The unknown female did not receive any drugs from the resident.

The unknown female is described as:

• White female, 40 years

• About 160 lbs., medium build

• 5’8” feet tall

•Short blonde hair

The identity of the female is unknown. She is not believed to be a police officer.

Anyone who may have information about this incident, or the identity of the female is asked to contact the 8 District – Grimsby office of the NRPS by calling 905-688-4111, option 3, ext. 1025400.

Members of the public who wish to provide information anonymously can contact Crime Stoppers of Niagara online or by calling 1-800-2228477.

Crime Stoppers offers cash rewards to persons who contact the program with information which leads to an arrest.

Garden

Garden City Realty Inc., Brokerage

Garden City Realty Inc., Brokerage

SHOP LOCAL SINCE 1989

SHOP LOCAL SINCE 1989

SHOP LOCAL SINCE 1989

Home Office

Home Office

Home Office

3915 21st Street, Jordan Bus. 905-563-3330 bilko@rgcmail.com www.bilko.ca

905-562-3000 3915 21st Street, Jordan Bus. 905-563-3330 bilko@rgcmail.com www.bilko.ca

905-562-3000 3915 21st Street, Jordan Bus. 905-563-3330 bilko@rgcmail.com www.bilko.ca

905-562-3000

BILKO

VICTORIA FAMILY DENTISTRY

ALL ASPECTS OF GENERAL DENTISTRY

Dr. Daniel Moldovan

New Patients Are Welcome

905-562-1110 3911 Victoria Avenue, Vineland, ON.

News Now • Thursday, January 5, 2023 • Page 15 NATURALLY GAS LTD. 2021/2022 BEST WEST IN THE DIAMOND AWARD 2017 /2018 BEST WEST IN THE DIAMOND AWARD • Gas Furnaces • Central Air• Service • Ranges • Sales • Dryers • Installation • BBQ’s • Pool Heaters 2015 BEST WEST IN THE DIAMOND AWARD 2015/2016 2019/2020 BEST WEST IN THE DIAMOND AWARD HEATING / AIR CONDITIONING HEATING SPECIALIST TSSA Member naturallygas04@gmail.com NATURALLY GAS LTD. www.naturallygasltd.com •905-945-8493 Get Furnaceyour tunedtoday!up Winter is Here! Upgrade your Heating & Cooling System today and save up to $1200 per year on utilities
• Crown and Bridge • Wisdom Tooth Extractions • Root Canals • Implant Crowns • Routine Check Ups & Cleanings • Partial Dentures • Tooth Whitening
Larry
” Bilkszto Sales Representative
Larry “BILKO” Bilkszto Sales Representative Larry “BILKO” Bilkszto Sales Representative City Realty Inc., Brokerage
Visit us at www.ridgeviewgardencentre.com or call (905) 945-1713 5677 KING STREET LINCOLN TRENDY TROPICALS REDuCE STRESS - FILTER ThE AIR - ImPROVE ThE AmbIENCE Choose from Majesty Palms, Birds of Paradise, Eugenia Topiary, Snake Plant, Dieffenbachia, Chinese Evergreens & so many more. FRESh FROm ThE FARm Honeycrisp Apples FRESh FROm ThE OVEN Apple, Blueberry & Lemon Meringue Pies, Butter Tarts, Oreo Caramel Walnut Bars, Chocolate Chip Cookies & more.
Reopening
am in the Church
Hall Doors Open at 10 am - Delicious Lunch Available Jackpot Resumes at $1,700 in 60 numbers Friday
pm - First Bingo this Year! Progressive Jackpot $2,500 in 55 numbers Pizza Available at 6:00 pm. Free Tea and Coffee ST.
Mountain St.,
ON.
Thursday Morning
January 12th - 11:00
Great
Bingo Jan. 6 - 7:00
HELEN CHURCH 4106
Beamsville
Page 16 • NewsNow • Thursday, January 5, 2023 HIGHLANDS NATURALLY SMOKED KRANSjKA SAUSAGE 12.11 kg. $549lb. FRESH B/A CHICKEN LEGS 4.39 kg. $199lb. CUT FROM CANADA GR AA OR HIGHER BONELESS STEAK ROAST /lb 13.21 KG. Whole or Half HIGHLANDS NATURALLY SMOKED OLD FASHION HAM 10.56 kg. $479lb. & 905-662-8396 MANY MORE IN-STORE SPECIALS www.highlandcountrymarkets.com OLIEBOLLEN AND APPLE FRITTERS FROM 7 TO SELL OUT Specials effective Thursday, January 5th - Wednesday, January 11th, 2023 Store Hours: Monday - Saturday 7 am.-6 pm. Closed Sundays 432 Highland Rd. E., Stoney Creek (Highland & Tapleytown Rd.) BUY LOCAL LOCAL FARMERS!! WESUPPORT BAKERY: STORE BAKED ASS’T SAUSAGE ROLLS Pkg of 6 .......... 8.49ea STORE MADE 12” ASS’T FROZEN PIZZA ...................... 8.49ea STORE MADE 10” ASS’T QUICHE ............................... 11.49ea DELI: HIGHLANDS (WELL DONE OR MEDIUM) ROAST BEEF100 gram 2.64 HIGHLANDS TYROLER 100 gram 1.26 SALERNO BRICK CHEESE 100 gram 2.48 FISH: FROzEN ORGANIC MUSSEL MEAT 340 gram 4.49 ea FROzEN TUNA STEAK 1 lb. 11.99ea CAFE SMOKED KRANSjKA ON A BUN WITH FRIES, POP OR WATER 6.49ea THURSDAY ONLY: VEAL PARMIGIANNI ON A BUN 7.99ea SATURDAY ONLY: PORKETTA ON A BUN APPLE BUTTER, COLESLAW, POP OR WATER 7.99ea LOCALLY GROWN HONEY CRISP APPLES .. 3.99lb LOCALLY GROWN (10 lb. Bag) YUKON GOLD WHITE OR RED POTATOES........... 4.49ea LOCALLY GROWN BROCCOLI........................ 1.25 bunch LOCALLY GROWN RED ONIONS ................................ .99lb LOCALLY GROWN APPLES (3 lb. Bag) ................ 3.99ea FROzEN DICED SQUASH 1 kg ............. 6.99ea FROzEN STIR FRY SUPREME 1 kg ...... 7.49ea FROzEN (3-1/2 lb.) HASH BROWN PATTIES ......... 4.49ea BBQ PIG PARTS AVAILABLE!! $599 Happy Christmas ORTHODOX HIGHLANDS NATURALLY SMOKED P0RK SIDE RIBS 11.00 kg. $499lb.

Turn static files into dynamic content formats.

Create a flipbook
Issuu converts static files into: digital portfolios, online yearbooks, online catalogs, digital photo albums and more. Sign up and create your flipbook.