
1 minute read
PREMISE
Tradition In Juxtaposition With Development
China as a growing country has faced many challenges due to it’s rapid development, the question of how to protect and continue the tradition in the development is a serious issue in this new chinese modern society. This project is thought as part of the modernization plan of Hangzhou announced in 2002, which is a project on going in 9 famous historical and cultural towns. Protection is urgent, development is imperative , this is the core idea that fuels the inspiration for this project.
Advertisement
To understand the factors that influences Changhe’s development is important to make a deep study into the terroir structure of the village. The formation of this “terroir” is composed by two general elements , wind and land; Wind refering to costumes and practices representing the lifestyl of it’s inhabitants, and Land being the region and natural environment in which the settlement is located and gather it’s resources. These factors are the inspiration for the structure’s choice, a traditional chinese wall structure called Matou Wall or ( 马头墙 ) which can be seen along the town in different ways. The one used for this project is a re-interpretation of the structure and the form, creating a more flexible structure that not only looks more contemporary, but at the same time evoques the escence of the past in a subtle way.
This exhibit’s purpose is to influence the way in which progress and urbanization are perceived in China through a more temporal perspective, where both development and preservation can co-exist. Each component of the exhibition allows the viewer to experience an approach to this concept, and to feel the true escence of the water town of Changhe.

SITE PLAN



Traditional Housing Location
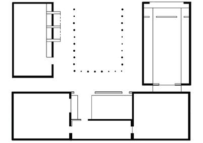
FUNCTIONS DIAGRAM
Functions and Circulations
SITE ORIENTATION
Feng-Shui’s Face Water and Back Mountain
FORM ARRANGEMENT

Traditional Chinese Housing








