
1 minute read
PREMISE
URBAN SCALE AFFECTED BY HUMAN-SIZE PERCEPTION
Shenzhen is a giant growing city in China, plenty of worldwide size projects are outgoing in the surrounding area, so the government has a very ambitious urban developmen plan for the city. This site is almost at the end of one out of he nine different mountain to city belts that connect and facilitates the tourist spots in the area. The approach for this project is how to create an urban landmark that priorities human scale , and the eye perception, without generating big scale problems within the city.
Advertisement
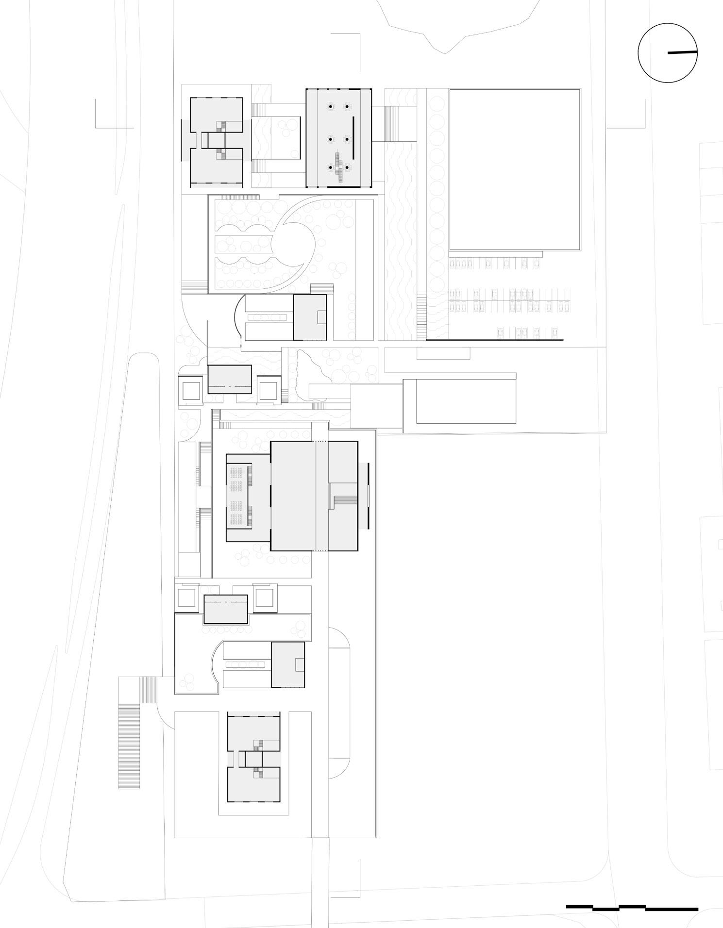
This project has an opposing stream of gardens around the architecture. The overall space is a museum with an open decentralized architectural approach. Fully aware that this may be complicated by weather and rain, we believe the result matches better the “preservation” approach this project has. Separated volumes of different heights and orientations create a very dynamic space that avoids repetition and monotony; each gallery and educational space is different, yet they share the same spatial logic. There are many details inside each space that make it feel special and unique. As a result, the overall landscape of the project is dynamic and open.

Functions
The project is separated into 2 different areas, exhibition and administration. The part to the north was given administrative and storage functions, and south with an ocean view to exhibition and education.


Pocket Gardens
To retain the natural feeling as possible we separate each space from each other and then used the topographic elevation to break up the linear visual points.

Passage
An important feature in this project was to create a corridor for people to complete the mountain and sea corridor experience. chose 3 entrances connecting the main corridors for people and vehicles.
Entrances
The “main” one is in the direction of the mountain to the south, this entrance is to connect the southern road. The second one is a bridge that connects the eastern parcel to the main part. The third and last one is an elevated bridge for vehicles to enter.
At this scale, the first logical step is to create the overall volume idea, this in order to have a clear vision of the necessary construcion area in the project, as well as clearing circulations and desired views.
Sketching
After knowing where the areas will be, the “carving” of the volumes begin, for this particular project I wanted to embrace the feeling of a gateway, literally creating architecture that resemble a passage.
CONCEPTUAL (DIGITAL) MODEL


This project was completed online, so the conceptual model used to clarify my vision for the space was made on Sketchup, the overall space is a trick to the user, not knowing the limits between inside and outdoors.

















