ADONIS

SINCE 1960
PROPERTY INVESTMENT PROPOSAL VILLA 77A
Leptos Estates Leptos Estates
PROJECT OVERVIEW
PROJECT TYPE
State-of-the-Art Villas
![]()

SINCE 1960
Leptos Estates Leptos Estates
PROJECT OVERVIEW
PROJECT TYPE
State-of-the-Art Villas
LOCATION
The "Golden Mile"
Chloraka, Paphos
On the outskirts of Paphos Town
On the sea
Easy access to all ameni es, facili es and services
Close to an interna onal private school
Short drive to Paphos Harbour and Promenade
FACILITIES / EXTRAS
Private swimming pools
Leptos Gold Card Membership

Bespoke elegance designed to offer a luxury lifestyle that is second-to-none.


Explore a world of endless possibili es on an island that serves as your gateway to Europe.
Posi oned at the crossroads of three con nents
Member of the EU and Eurozone
High level of services, including financial, medical, educa on, telecommunica ons etc.
Ability to obtain permanent residency through purchase of real estate
Cyprus' natural gas discovery will be a game changer for the domes c economy
Mild climate and sunshine (340 days a year)
Beau ful scenery and pris ne beaches
English language widely spoken
Safe and secure environment
High standard but low cost of living
New marinas, golf courses and casinos

Cyprus' cosmopolitan resort town, and a centre for culture.

A thriving commercial centre with interna onal business ac vi es
The most luxurious hotels and resorts on the island
Freehold proper es in prime loca ons
Excellent medical centres and educa onal ins tu ons
A UNESCO world heritage centre
Modern airport linking Cyprus to interna onal des na ons
Interna onal 18-hole championship golf courses
Excellent tourist facili es and culinary experiences
Modern, revived and mul -cultural centre


With a mix of public and private ins tu ons, Paphos offers a range of educa onal opportuni es from preschool to higher educa on.
Neapolis University Pafos, a prominent private university in Cyprus and part of the Leptos Group, is commi ed to providing a transforma ve academic journey that empowers individuals to navigate their path to success.
The city's reputa on for delivering quality educa on is upheld by its modern facili es, dedicated educators, and a strong focus on academic excellence.

The healthcare system in Paphos is renowned for its high standards and accessibility to both residents and visitors.
The city boasts a comprehensive healthcare infrastructure comprising public hospitals, private clinics, and pharmacies.
Key healthcare providers such as the Iasis Hospital, affiliated with the Leptos Group, along with the General Hospital, play pivotal roles in delivering essen al medical services to the local community.

Paphos is rich in diverse cultural heritage, with iconic landmarks like the Harbour and Castle imbuing historical significance into its landscape.
The city's UNESCO World Heritage archaeological sites, including the Tombs of the Kings and intricate mosaics, vividly showcase its ancient past.
Preserving tradi onal architecture and customs, the Old Town offers a cap va ng glimpse into the region's historical legacy
Paphos

Paphos


PAFOS INTERNATIONAL AIRPORT

INTERNATIONAL SCHOOL

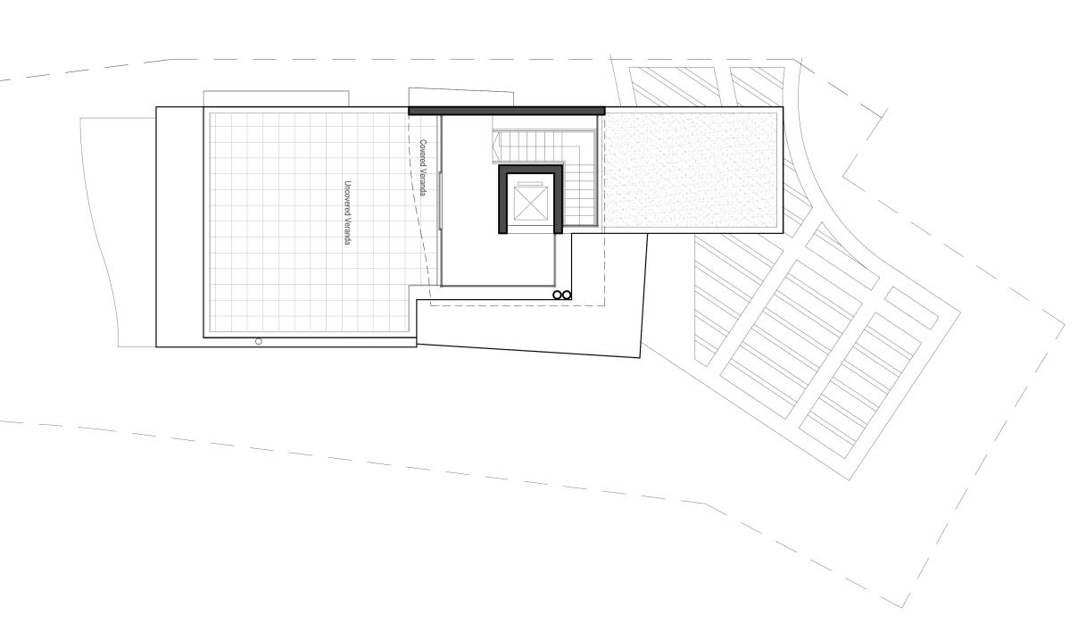
VILLA 77A
FEATURES
BEDROOMS








Adonis Beach Villas have been designed with me culous a en on to detail, crea ng homes with style, sophis ca on and warmth.




SINCE



These contemporary villas have been designed to maximise views of the Mediterranean. VIEWS
Leptos Estates Leptos Estates

SINCE 1960
Leptos Estates Leptos Estates

B E A C H V I L L A S