Resurrection of a Working Textile Mill

Page 15

TheLivingHeritage

Resurrectionof WorkingTextileMillinMumbai

Submittedinpartialfulfillmentoftherequirements ofthedegree of

BachelorofArchitecture

GUIDE: Prof.TriptiBiswas

ADITYACOLLEGEOFARCHITECTURE Mumbai MumbaiUniversity

2017 - 2018

of

Textile Mill in

The Living Heritage Resurrection
Working
Mumbai

Abstract Citiesundergotransitionduetotheevolutionthathappensregularlyandcity’s architecture too responds to this change. Transition brings enormous opportunities of growth, development, expansions, improvement and recast the social and urban fabric. In the 'process' of evolution, sometimes there is a threatoflosingonsomethingthathasbeencrucialingivingidentitytoacity.

One suchphasein the centuryof1850-1950involvedtheindustrial revolution in the city of Mumbai which played a vital role in establishing it as the economic capital of the country. The thesis includes study of the growth and declineofTextilemillsintheheartofislandcityMumbai.Approachisbuiltby identifyingtheliving heritageofWorkingMills thathasremainedaliveinthe city struggling and somehow managing to survive. The aim is to form a sustainable approach of looking towards the working mills in Mumbai by addressing their requirements and planning a cohesive solution to retrieve their losses i.o.t. preserve city’s industrial identity. This will be complimented byaddressingneedsof thecontextandtheneedsofthecity.

HereisacaseofMumbaicitywhereinthecurrentthesisinvestigatesthe'living heritage'value of working millsand their potential role in imparting Mumbai its earliest identity. The old fabric to be preserved and a new layer to be juxtaposed.Buildinganidentitywhilepreservingone.

ii

1

1.1

1.2

1.3

1.3.1 Mumbai–Colonial,Establishmentasatradehub..........................5

1.3.2 Mumbai-Timeline...............................................................................7

iii Contents
Introduction........................................................................................................1
Introduction.................................................................................................1
IdentityandCities.......................................................................................3
Mumbai........................................................................................................5
1.4 Areaofconcern...........................................................................................9 1.5 Researchquestions......................................................................................9 1.6 AimandObjectives...................................................................................10 1.7 Hypothesis.................................................................................................10 1.8 ScopeandLimitations..............................................................................10 1.9 Methodology.............................................................................................12 2 LiteratureReview–Girangaon.....................................................................13 2.1 TheMillPrecincts......................................................................................13 2.1.1 Location................................................................................................13 2.2 Origin..........................................................................................................13 2.2.1 Development.......................................................................................15 2.2.2 Characteristics.....................................................................................15

2.3

2.4

SocialCharacter.........................................................................................16

Housing......................................................................................................17

2.5 Culture........................................................................................................18

2.6

RiseofMumbaiasanEconomicalCapital............................................20

2.7 DeclineofMumbaiTextileMills............................................................21

3 RedevelopmentofMumbaiTextileMills.....................................................23

3.1

PoliciesfortheRedevelopment..............................................................23

3.1.1

3.1.2

3.1.3

3.2

TheFirstPolicy-1991........................................................................23

TheSecondPolicy-2001...................................................................23

TheThirdPolicy–2017......................................................................24

Trendintheredevelopment....................................................................24

3.2.1 Examples..............................................................................................26

3.3

Whathascitylost?Opportunity-Identity............................................28

3.3.1

PublicGardens/cityopenspaces.....................................................29

3.3.2 Millworkers’housing........................................................................29 3.3.3 Conclusion...........................................................................................30

3.4

Whatiftheworkingmillstoogo forredevelopment..........................30

3.4.1

Case1: Sellingthesurplusareasandhelpingthemillfunction.30

3.4.2 Case2:Shuttingmillsoncetheycan’tsustainontheir own........30

3.4.3

4

Conclusion...........................................................................................31

TheLivingHeritage........................................................................................31

4.1

4.2

AbouttheWorkingMillsandcurrentscenario....................................34

Needofasupportivesystemfortheworkingmills............................35

CaseStudies......................................................................................................36

iv
5

5.1 MillTown:Lowell,Massachusetts.........................................................36

Sitemapping..............................................................................................47

TataMills-SiteAreaBifurcation......................................................49

SitePlan................................................................................................51

BuildingUsePlan...............................................................................53

ExistingLandUsePlan......................................................................54

ProposedDevelopmentPlan(dp2034)...........................................54

SiteSections.........................................................................................56

v
5.2 MassachusettsMuseumofContemporaryArt....................................41 6 Site......................................................................................................................44 6.1 ProbableSites.............................................................................................44 6.2 SiteJustification.........................................................................................46 6.3
6.3.1
6.3.2
6.3.3 Figure–GroundMap........................................................................53 6.3.4
6.3.5
6.3.6
6.3.7
7 ProjectFormulation.........................................................................................57 7.1 InferencesfromtheSitesurveys.............................................................57 7.2 ThesisProgram..........................................................................................59 7.3 AreaStatementaspertheLand..............................................................61 7.4 AreaStatementasperthePrograms......................................................62 7.5 RevenueReport.........................................................................................64 7.6 DesignIntent.............................................................................................65 8 SummeryandConclusion..............................................................................66 9 Bibliography.....................................................................................................67 10 Annexures.........................................................................................................70

List of Figures

Figure1.1-Skylinesofcities......................................................................................3

Figure1.2-Amalgamationof7islandsofMumbai..............................................5

Figure1.3-EvolutionofMumbaioveratimeline.................................................6

Figure1.4-TimlineofMumbai.................................................................................7

Figure1.5- TimelineofMumbai..............................................................................8

Figure2.1-EvolutionofMumbai...........................................................................14

Figure 2.2- Formation of Industrial Zone in Central Mumbai, Linear Development.............................................................................................................15

Figure 2.3- Neighbourhood Model

Figure 2.4- Representation of ChawlinMumbai.....................................................................................................17

Figure2.5-ChawlsinGirangaon,PlanSection……………………………..18

Figure2.6-ViewsofChawls...................................................................................18

Figure2.7-Growthofaasocialculture ………...........................19

Figure2.8-FestivalsinGirabgaon ………...........................19

Figure2.9-ThedeadmillinMumbai....................................................................21

Figure3.1-Landdivisionsaccordingtothepoliciesofrespectiveyears….23

Figure3.2-PheonixTowers Figure3.3-PheonixMall......................................26

Figure3.4-AshokTowers........................................................................................27

Figure 3.5- Pie chart of the % distribution of the mill lands as per allocated stakeholders...............................................................................................................28

Figure4.1-TheFunctioningMill............................................................................32

Figure4.2-Chimney.................................................................................................33

Figure4.3-TheheritageBuilding...........................................................................33

Figure4.4-TheBuildingFacade.............................................................................33

Figure4.5-WaterTanksinsidetheMill................................................................34

Figure4.6-ThecurrentfunctioningofMills.........................................................34

Figure5.1-PlanofLowelwiththelocationsoftextilemills..............................37

vi

Figure5.2-TrasformationofMillsinLowel.........................................................40

Figure5.3-TheViewoftheMassMoCA..............................................................41

Figure5.4-InternalViewofMuseum Figure5.5-ExternalViewofMuseum ................................................................41

Figure5.6-GalleryLayoutthroughouttheComplex..........................................42

Figure5.7-MASSMOCACampusDevelopment...............................................42

Figure5.8-PhasesofthemassMoCADevelopment...........................................43

Figure6.1-LocationsofMillsthroughouttheCity.............................................44

Figure6.2-TataMills,Location..............................................................................47

Figure6.3- 1.ParelStation/ElphinstonStation……………………………..….47

Figure6.4-2.GautamNagar……………………………………………….….….47

Figure6.5- 3.TataMillsHousingSociety………..…………………………..….47

Figure6.6-LocationofTataMills,Dadar (East)………………………………..47

Figure6.7-DadarEastStation……………………………………………..…..….47

Figure6.8-GoldMohourMills………………...…………………………..….….47

Figure6.9-WholesaleClothMarket………...………………………….……..….47

Figure6.10-Surplusopen AreainsidetheComplex………………………..…48

Figure6.11-InternalRoads………………………………...………….…….….…48

Figure6.12-SurplusOpenAreainsidethecomplex…...…………..…….….…48

Figure6.13-InternalFacades……………………………...………….……..….…48

Figure6.14-InternalWaterTank……………………….....………….…….….…48

Figure6.15-LocationofTataMillsSiteWalkthrough.....………….…….….…48

Figure6.16-StructuralSurplusareas.................................………….…….…….48

Figure6.17-Workers'Facilities...........................................………….….….……48

Figure6.18-ServiceBlock.....……………………………………...….…….……..48

Figure6.19-Storage.....……………………………………………….…….……..48

Figure6.20-EntranceoftheMill.....…………………………..…….…….…......48

Figure6.21-The3DviewofTataMillsComplex.....………….…….……….....48

Figure6.22-TheareadivisioninTataMills.....………….…….….………..…...49

vii

Figure6.23-FigureGroundMap…………………………..…….….…………...52

Figure6.24-BuildingTypologyMap……….…….….………………..………...52

Figure6.25-ELUnearTataMills…………………………...…….….…………...53

Figure6.26-PrposedDP2034……….…….………………………….…………...53

Figure6.27-AreaComparisonforTataMills………………………………..….54

Figure7.1-IdentificationofStakeholders.............................................................57

List of Tables

Table1-Comparisonofthethreeworkingmills.................................................45

Table2-AreaBifurcationinTataMills..................................................................49

Table3-PlotSelection...............................................................................................50

Table4-DesignPrograms......................................................................................59

Table5-LandAreaDivision..................................................................................61 Table6-Programsfortheworkers........................................................................62 Table7-ProgramsforthePublic...........................................................................62 Table8-ProgramsfortheMarket.........................................................................62 Table9-ProgramsfortheNTC/Owner...............................................................63

Table10-TotalBuildUpArea...............................................................................63

Table11-TotalNumberofVisitors.......................................................................64

Table12-TotalAmountoftheRevenue...............................................................64

viii

1 Introduction

1.1 Introduction

“No other metropolitan city in world, neither new York nor Los Angeles has had the opportunity as you have had in Bombay, to do something historic as a key to development.” -SirBernardFielden,(Britishconservativeexpert) Mumbai,thecityofislandshasitsrootsdeepintothehistorysincethetimeof Mughals to Portuguese to the era of Britishers. Right from the evolution of its own culture with the original residents Kolis to the post-industrial cultural evolution which was followed by the boom in textile industry; Mumbai adopted to each and every phase. One such phase in the century of1850-1950 involved the industrial revolution in the city which played a very big role in establishing Mumbai as the economic capital of the country. The textile was one of the country’s first modern industries and a catalyst for growth in many parts of the country

Mumbai is said to have had about 130 mills, which were very central to its economybythe20thcentury.Girangaon(amillvillage)wasanamecommonly

used to refer to an area now part of centralMumbai,India, which at one time had almost 130 textile mills, with the majority beingcotton mills. The mills of Girangaon contributed significantly to the prosperity and growth of Mumbai duringthelaternineteenthcenturyandforthetransformationofMumbaiinto a major industrial metropolis.These 100orsocottonmillscamewiththe span ofjustalittlemorethanacentury,withCowasjiNanabhaiDavarsettingupits firstmill,namesBombaySpinningMill,in1854.Girangaoncoveredanareaof 600 acres (2.4km2), not including the workers' housing. The mill workers lived in a community, and they fostered a culture which shaped Mumbai in due course of time.

Resurrection of Working Textile Mill 1

TherearemanyreasonsforthedeclineofMillsinMumbai;fromtheemergence of new and more profitable industries to a series of protests by workers demanding better wages, mill culture got wiped out of the city by the end of 20th century. This was followed by the need of redeveloping the dead lands which were in the prime area of the city. Part of these got converted into commercial hubs and majority of the lands got converted into high end residential apartments.This development occurred in two phases in 1991 and post 2001. Now it the third phase where only 8 mills have left undeveloped in the city and 3 mils that are somehow managing to sustain in the current era.

The already revamped buildings are just as relevant to the city today in their new avatars as they were to yesteryear’s Bombay. There are two perspectives tolookatthecurrentcondition.Thedevelopmentpatternofthemillsoverlast decadecanbeobservedandthenewwayofthedevelopmentcanbeaddressed with innovative solutions that would change the stereotypical style of redevelopmentwhichwasalwaysfollowed. NotallofMumbai’smillshavebeengiventheopportunitytoremainpertinent to the city’s contemporary landscape. While the dilapidated mills remain ignored and tucked into the belts of the city. Thus on the other hand; to give back something to the city, and maintaining the living heritage of Mumbai, measures can be taken to revive it. By no means can a new textile base or the oldonerestartinthecity.Andtowhatextenttheremainingundevelopedmills can stand true to the history of the city. Thus the scope lies in the working textile millsof the city. Theseholdahugepotentialtosurviveandcarryahead the legacy that Mumbai had. But these mills face huge losses and they are on thevergeofshiftingtotheotherstates.Measuresarerequiredtostopthis.The proposalwouldbeanextensionthatwillcatertotheSocio-Cultural-Economic heritageofourCity-Mumbai.

Resurrection of Working Textile Mill 2

1.2 Identity and Cities

Figure 1.1- Skylines of cities, Source - Pintrest Qualities or characteristics associated with a particular phenomenon that makes it unique or emphasises as a celebrated existence is an ‘Identity’. The term ‘identity’ hasgrown in popularity in varioussectors, within thepast few decades. Some might suggest that identity is to distinguish ‘self’ and the ‘other’; however it could in fact emphasise the relationship between the self and the otherness. Ranging from historical events to current political affairs; identities have always been associated inseparably playing a requisite role in their everyphase.(Said,2012)

Identityisbasedonhowsomeoneorsomethingcommunicates,howit‘speaks’ to others.Same is the case of cities all over the world. Cities have their own spirits. Cities speak of their past, their present and stand firmly to face their future. Cities and their citizen is one such relation that is imperative in establishing city’s identity. This is more pertinent when it comes to the meaning of identity in an urban environment. As it is described in social sciences, identities are mainly ‘socially constructed’ (Wendt, 1994); but these aresignificantlyinfluencedbytheenvironmentandwhattakesplacewithinit. Therefore, identity in an urban environment is to a greater or lesser degree defined by the environment’s elements and activities or events taking place within that environment

Resurrection of Working Textile Mill 3

Urban identities are meaningful entities to develop the spatial inter-relations andtoendorsearelationshipbetweenthesocio-environmentalvaluesandthe essence of the space. What becomes important, therefore, is the relationship thatidentitybuildsupbetweenhumanbehaviourandtheurbanenvironment. Theidentityofthecitybearsontheidentityofthoselivinginit,andviceversa: the urban environment reflects human needs and values. The city is a concentration of different, changing cultures which are creating new kinds of identity.London, New York, Madrid, Johannesburg and Mumbai are living examples of the “common sense of belonging based on cultural and linguistic diversity” referred to in one of the most challenging documents published by the European Union in recent years- Amin Maalouf’s 2008 report on Intercultural Dialogue. Cities are important in this context for a number of reasons:

They are living examples – laboratories – of what can be and how diverse communitiesmayinterrelate.

They are places where policy discourse can be created more easily. They are placeswheretheconstraintsof nationalpolicies andnationaldiscoursecanbe

modified or overcome. The city is the locus for multilingualism in all its functions – learning and using languages, and in all its sites – institutional, commercial,educational,andgovernmental.

It therefore provides a great opportunity to bring together policymakers and stakeholdersatbothlocalandnationallevels.

Cities also link to other cities, and provide the space where new generations are creating their new realities. Most importantly, cities are NOT national. They can be ‘Beyond the Nation’.(Shalit,2011)

Resurrection of Working Textile Mill 4

1.3 Mumbai

A city that has gained its real character with the passage of time. People have beenabletoalterandadaptit,and,theyhaveevolvedtheirownimagesofthat distinctive place in their minds. Place-identityisdefinedby Lynch as ‘the extent to which a person can recognize or recall a place as beingdistinct from other places’. Mumbai is one such city distinct from other cities having its extents rooted to today’s era where Mumbai is identified as one of the most iconiccitiesoftheworld.

1.3.1 Mumbai – Colonial, Establishment as a trade hub

Figure 1.2 - Amalgamation of 7 islands of Mumbai, Source - Quora

Mumbai initially known as ‘Bombay’ was originally an archipelago of seven islands – Colaba, Malabar Hill, Worli, Mazgaon, Parel, Mahim & Sion. These islandswereinhabitedbyfarmersandfishermanandthelandwasextensively coveredwithforests.Bylate15thcentury,thePortuguesetookovertheislands. In 1661, the islands were handed over to England as part of a dowry. In 1838, undertheBritishrule,Bombayislandswereamalgamatedintoasingularmass.

Since then the city has been constantly transformed by land reclamation projects.Thecityisbuiltonafoundationofcontinuouslyalteredandreclaimed naturalandurbanlandscapes.

Resurrection of Working Textile Mill 5

Colonial Mumbai was developed as a planned segregation promoted by English ideology. The southern tip of the island city was fortified to create an insulated territory for the colonial rulers. The northern part within the fortificationincludedtheeliteIndians,Parsis,BohrasandHinduindustrialists or traders.AtfirsttheurbanizationoftheislandonlyoccurredwithintheFort areauntilamassivefirein1803providedanimpetusfor urbanimprovements andlanddispersalthatledto expansion.

By1850Bombayhad becomethemajor colonialmercantileandindustrialcity and cotton textile mills as foundation of its economy. Subsequently many of the great monuments and public buildings in the island city were built with the wealth generated by the textile industry. Land reclamation continued, closingthe creeks& creating newer destinationstowardsthenorth.Withnew developments in place and increased employment opportunities, Bombay attracted millions of migrants. Soon Mumbai became the fastest growing metropolis with maximum capital accumulation and the most unequal distribution of land. A trading town in its past, Mumbai, today is an aspiring global city where space is a rare commodity created & recreated by land reclamation&rehabilitations.

Figure 1.3 - Evolution of Mumbai over a timeline, Quora
Resurrection of Working Textile Mill 6

1.3.2 Mumbai - Timeline

Figure 1.4- Timline of Mumbai, Author

Resurrection of Working Textile Mill 7

Figure 1.5- Timeline of Mumbai, Author

Resurrection of Working Textile Mill 8

1.4 Area of concern

SeeingthetimelineofMumbai,itisseenthatafeweventsstandvitalinframing Mumbai’s fabric. One of the most important events is Rise of Textile Mills. A brief timeline of Textile Mills explains how tragically they ended followed by formationofover600acresofidlelandinthecoreofMumbai.

Theredevelopmentpatternofthesesickmillscanbeseenasaboominthehigh end high rises that arose rapidly in the beginning of the century. The idea of developing mill lands together is lost. Cityhasalreadylostonitsopenspaces, housingforpooranditsindustrialidentity.Londonreportedlyhasa per capita open space of 50 sq metres, Delhi has about 14-15 sqmetres, compared to less than 2 sq metres in Mumbai.

Nowthecityhasafewdilapidatedmilllandsandafewworkingmills.Bothof thesedon’thave afuture.Alsoissuesof theworkershavenotbeenaddressed.

There is a huge chunk of population (over 2000 families) that still depends on the working mills. Uncertain future of these working mills puts a question on what has the city preserved from its rich history? and whathasitdonetothe peoplewhowereapartofit?Today,theworkingmilllandsstandasahopeto addressthisareaofconcern.Strategiesoflookingatworkingmillscananswer thesequestionsandcanbelookedasanasset.

1.5 Research questions

How to justify that theWorkingMills in Mumbai needto be savedand takenasanassetinthefuture?

Can an extension to the working mill help and reduce the losses that millsfaceeverymonth?Willtheextensionhelptosustainthemills?

What has to be the apt program that can justify both the needs of the millsand millworkers?Alsoithasto complimenttheneedofthetime?

Resurrection of Working Textile Mill 9

1.6 Aim and Objectives

Aim: To derive a sustainable solution that will cater to the current needs of Working Mills/workers in order to preserve the Industrial Identity and; creating a better fabric around by addressing the needs of the context/people andthecityasawhole.

Objectives:

To study the government policies regarding the redevelopment of the mills.Studyafewexamplesto getarealfiledideaandstudythetrend.

To analyse what has the city lost and what can be done i.o.t. make the workingmillsfunction better,andcaterto thecurrentscenariotoo.

To identify the stakeholders who are directly or indirectly in relation withthetextilemills.

To identify the needs of the stakeholders and planning strategies to addresstheneeds.

1.7 Hypothesis

An extension that will build a case for currently working mills; benefit the futuresofpeopleandcityaltogether.Thiswillgeneraterevenuebyestablishing an individual system in itself which can help to address the current requirements. This will complementally revitalize the working mill and mill workers also; provide scope to the textile market and generate new income opportunities.

1.8 Scope and Limitations

Scope:

NTChasinvestedRs.150cr. tomodernisetheworkingmills, employing2,000 workers.Evenasprivatetextilemillownershereshiftfromproducingclothto developing real estate, government-ownedNational Textile

Resurrection of Working Textile Mill 10

Corporation(NTC) has pumped in Rs 150 cr. to modernise three mills in the city. The company’s three units in the city’s mill district —Tata Mills(Parel),PodarMills(Lower Parel)andInduMillsNo5 (near Lalbaug)— aresetto usenewGermanandAmericanequipment. These mills would together produce 10-12 million kg of yarn annually and 14 million tonnes of cloth. Though some NTC properties have been sold, a Mumbai-based analyst said the development is quite significant, that NTC preferred to modernise and run these mills than opt for closure to reap a windfall through the sale of land. Property prices have picked up in recent monthsand in central Mumbai, thegoing rate is inthe region ofRs30,000 per sq. ft. “Three mills are located on almost 60 acres. NTC has ploughed back a portionofproceedsofsaleoflandfromothermillsto revivethese,”anofficial whodidnotwishtobeidentifiedtoBusinessStandard.But,hesaid,giventhe high cost of power, the public sector company would be asking the state government to provide electricity at subsidised rates.

NTCusedto have25millsinMumbai.Apartfromtherevivalofthesethree,it hastakenthejoint venture routetoredevelop India UnitedMillsNo 1,Apollo MillsandGoldMohurMills,insouth-centralMumbai.Thesemillswereclosed after NTC got approval from theBoard for Industrial and Financial Reconstruction. The redeveloped mills will not be composite units but will have a garment unit and other allied businesses Maharashtra minister of state for industry Sachin Ahir said NTC has entered into an agreement with the textile millworkers union, the Rashtriya Mill Mazdoor Sangh, for providing jobstonearly5,000 workersintheto-be-redeveloped India UnitedMillsNo 1, ApolloMillsandGoldMohurMill.ThisroleofNTCwillcertainlybeinfavour oftheExtensionthatwillbeplannedonthesurpluslandsofTataMills,Dadar. Thegovernment’swilltopreservetheworkingmills,thelivingheritageofthe cityisascopeinthiscase.(Jog,2010)

Resurrection of Working Textile Mill 11

Limitations:

Theextensionorthesupport systemthat is planned; onlylimits to Tata Mills,andno otherworkingmillinMumbai.

Thecurrentphysicaldrawbacksinthecontextarenotconsidered.

The surplus areas in mills are not be developed entirely. It will be addressedaspertheneedoftheprogram.

1.9 Methodology

To study about how did originally mills operate and the society used to function. Studying what has the city lost andwhat does it still havein terms f heritage. Studying case studies of places where such heritages are preserved irrespectiveofthemoderndayeraandrequirements.

StudyingthecurrentpatternofhowdothemillsfunctioninMumbai.Toderive conclusions from what is to be revitalised according to its importance and value.Identifyingthestakeholdersassociatedwithmills.Thiswillhelptouplift the current condition of the mill and at the same time it will complement the stakeholderstoo.

If a justifiable job is done in redeveloping such properties, then it will have a great impact on Mumbai’s Urban Design Policy. Policies which Mumbai implement are often adopted by cities across India. This is to be done by the benefitofthevalueofthetextilemillsandtheneedsofthecityboth.

Resurrection of Working Textile Mill 12

2 Literature Review – Girangaon

2.1 The Mill Precincts

The cotton textile industry initiated in the early 19thcentury, in Mumbai played a significant role in the city’s economic progress, urban development and social structure. Today the mill precinct of Mumbai stands defunct and stimulatesMumbai’srealestatemarket.Majorityoftherecentdevelopmentof the mill land is merely commercial complexes. This is the result of political exploration. It is unfortunate that this development does not consider the century long history of cotton industry and its contribution to the city, mill districts social requirement and Mumbai’s environmental health. With the rapid urbanization, population explosion 600 acres of mill land was a critical factorforMumbai’surbanresurrection.Inadditiontothiseconomicbackbone of the city the ‘mill precinct’ deserves a due recognition and identity in the ‘image’ofthecityMumbai.(Venugopal,2014)

2.1.1 Location

“Girangaon” (Marathi word) means “Mill village” or the mill precinct. It is characterized by industrial architecture of more than 50 mills. Girangaon was home to thousands of mill workers and their families. Mumbai’s mill precinct was dominated by the housing settlements by workers, their social networks andcommunities. The precinct stretched from Lalbaug to Parel and Worli to Sewri and it spread across an area of 25sq.km. Millprecinctwasintegratedto Mumbai’smasstransitsystem.Itwaswellconnectedtothemajorstreets.1

2.2 Origin

The first mill was established by Cowasji Davar in the year of 1856. By 1862, four mills were added and this number grew to 21 by 1885. By early 20th centurythere weremore than50textilemillsinMumbaiwhichtransformedit from a trading town to a manufacturing center. Increased employment

Resurrection of Working Textile Mill 13

opportunitiesinmills drewthousandsofmigrantsfromtownsandvillagesall over the state. By 1931 half of the city’s population was economically dependentontextileindustry.

Resurrection of Working Textile Mill 14 Figure 2.1- Evolution of Mumbai, Author

Gauri Mukund Kuvar Aditya College of Architecture

2.2.1 Development

Residential, institutional and infrastructure development had already commenced in the south region of the city and development plans were now being modified and extended towards the north. To encourage the development of textile industry and promote industrial production, acres of lands in Central Mumbai were given to the mill owners at concessional rates by the colonial Bombay Government. Mumbai’s development as an economic hubwasgreatlyenhanced bythese verymills. Areaswheremillswerelocated

grew to become the heart of the city. Eventually central Mumbai witnessed a distinctive skylineoftallchimneysand giganticmillstructures.

DevelopmenttowardsNorth.Thusthe locationofGirangaonasanindustrial zoneinCentralMumbai.

Alreadyestablishedresidential/institutional/ infrastructuraldevelopmentinsouth Mumbai

2.2.2 Characteristics

Over50millsinlessthana 3mile radiusconvertedthisportionofthecityinto an incredibly crowded, lively and dynamic hub. Almost all of the workers employed by mills lived in close proximity of their place of work. Such an aggregation of worker within a smaller region of the city increased the social andculturalinvolvementoftheworkersinthecommunity.Thisledtostronger communitytiesandarichnetwork ofphysicalandsocialinfrastructure.

Figure 2.2- Formation of Industrial Zone Mumbai, Linear Development, Source - Author
Resurrection of Working Textile Mill 15

Resurrection

2.3 Social Character

Intheperiodof1891to1921thepopulationofParel&Byculladoubledwhereas thepopulationofWorli&Sewriincreasedbyfivetimes.Mumbainowreceived migrantsfromnotjusteastandcoastalMaharashtra,butitwasalsopopulated by crowds from Uttar Pradesh and Gujarat (some of the other states of India)

all employed in textile industry. Mill workers included people from all castes and religion. Soon they established their distinctive places of worship such as temples and mosques and started side businesses in meat and vegetable markets.Initially in the migrant population, the men arrived alone in order to find employment. Later as they settled they brought their families along. In 1875 when the textile industry was at its peak the housewives of workers too, started working in the mills for additional income. However the male population among the workers community always dominated the female population. Most of the single men lived in groups. As a result a number of housewivesstartedbuffetservicesandcanteensforlunchanddinner.In1970’s,

the mill precinct had over 500 canteens predominantly serviced by the female group. Along with these, most of the residential buildings incorporated side businessesofworkerssuchasretail,grocery,newspaper,flower,sweetsshops, snack centers, ice-cream parlours, pharmacy, service shops like laundry shop, domesticflourmillsetc.onstreetlevel. (Venugopal,2014)

Mills were a living example of how does a neighbourhood module sustains in itselfcompletely.Foreg.:ClarencePerry’sneighbourhoodUnit

of Working Textile Mill 16

2.4 Housing

Due to housing demands from the mill workers, the Bombay Development District (BDD) and Bombay Improvement Trust (BIT) built rows of low cost houses in Girangaon. These 1-2 stories high, single to double room tenements with a common narrow corridor, and a block of shared toilets situated at the endofthecorridorcameto beknownas“Chawls”. Agroupof3to4Chawlswerebuiltaroundacentralcourtyardthatbecamethe venueforfamilycelebrations,weddings,sports,festivals,communityfairsand meetings. This congested tenement living created a “Chawls Culture” based uponaunique,sharedlifestyleandcollectiveidentity.Sincethedwellingunits inChawlswereverysmallinarea,(Hardly200sq.ft)mostoftheresidentsspent their days in the common corridors and staircases. Small grounds, sidewalks, spaces between the two Chawls, benches under trees, boundary edges, shop frontsandstreetcornersalsoknownas“Chowk”or “Naka”becamethesocial gatheringspaces.

Figure 2.3- Neighbourhood Model, Figure 2.4- Chawl in Mumbai Source- WordPress
Resurrection of Working Textile Mill 17

Mill lands were designed in such a way that they will have sufficient amount of openspacearoundthem,sothat thenuisance tosurroundingcommunity is limited.Hencetheselandsefficientlymergedintothesurroundingurbanfabric as opposed to standing exclusive. In addition to ‘workplace’, mills became a second hometown for mill workers. Theyincludedaplaceof worship,family clinicsandcanteens.(Venugopal,2014)

2.5 Culture

Many of the social groups in a single Chawl shared a common hometown. Sometimes they belonged to the same extended family, had common interests and cultural outlooks.Girangaon wasdense, poor & illiterate. Yet it was filled withtalentintheatre,musicandarts.Themillprecinctgavemanytalentedand versatile artiststo city.People hereenthusiastically celebrated different Indian festivalsthroughouttheyear.DuringthefestiveseasonthestreetsandChawls of Girangaon looked no less majestic than a wealthy south Mumbai

Figure 2.6- Chawls-Views Source-Wikipedia Figure 2.5- Chawls, Plan Section Source Author
Resurrection of Working Textile Mill 18

neighbourhood. In fact the hard work, simplicity, honesty and benevolence of peopleaddedto theattractivenessofthisprecinct.

Even today, the festivals are enjoyed with same exuberance and honor; however the workers’ society is poorer, hurt and unhappy. The mill workers also staged brilliant theatre and sustained folk arts like Lawani, Tamasha, Bhajan,Namaan,andShahiriPowadas.Alltheseartformsnarratedthestories of their life style, their social and political upheavals, the freedom struggle of thecountryandSamyuktMaharashtraAndolan.Girangaonorthemillprecinct of Mumbai has experienced a great amount of upheaval over the past two decades.

Textile industry in Girangaon - the backbone of city’s economy gradually set out to disintegrate under pressures from various other sectors. Hence the declineofMumbaimilllandsisrootedinseveraleconomic,socialandpolitical

issues. Even after their decline in Mumbai, the textile industry remains India’s second largest employer after agriculture. It accounts for a fifth of industrial production and employs 18 million directly. If one adds all those engaged in related industries, like textile machinery, dyes and chemicals, marketing,transport-notcountingthemillionsoffarmersgrowingcotton-the numberdependentonitgoesupsubstantially.Moreover,itcontributesover30

Figure 2 7 Growth of a social culture, Source Author Figure 2 8 Festivals Source Flickr
Resurrection of Working Textile Mill 19

percentofallexportearnings.ExportofIndiantextilescompriseof2.4%ofthe worldtrade.

After led by the textile mills, several other large and medium scale industries wereestablished in the post-independence era and the development plans made provision forthe same through earmarking industrial zones for manufacturing, trade and logistics operations. Mumbai has shown how to buildtheenormouspotentialinindustrialproduction andalmostbecameone ofthecountry’sbackbonesofindustriesandeconomy.(Venugopal,2014)

2.6 Rise of Mumbai as an Economical Capital

Mumbaiwas a leading the centre of the cotton industry in India. Factors that were responsible for growth of cotton textile industriesin Mumbai are as follows:

1. Raw materials:The nearby lava region forming the hinterland of the Mumbaiportproducedrawcotton.Mumbaiwasthecollectingcentreofcotton for export and mills use. For that purpose, Mumbai possessed a well- knit transport system by rail and road. cotton for export and mills use.

2. Port Facilities: Mumbai port had excellent harbour facilities for importing longstaplecottonandmachinerytomeettherequirementsofthemill.

3. Humid Climate:Humidclimateessentialfor spinningandweaving.

4. Water:Abundantsuppliesofsoftwateravailablefordyeingandbleaching.

5. Labour:Suppliesofskilledandskilledworkersinlargenumber.

6. Supply of Electricity:A favourable position to get electricity at affordable rate.

7. Chemicals:ChemicalindustrieswelldevelopedinMumbai-Punebelt.

8. Market:Goodmarketsbothhomeandforeignfortheyarnandfabrics.

Resurrection of Working Textile Mill 20

Resurrection

9. Transport:BothRailandroadtransportsystemwelldeveloped.(Kiran,2015)

BecauseofallthesefactorsMumbaiestablisheditselfasaTradeHubfollowed by an Economical Capital in the future. Role of textile mills in this establishmentcan’tthusbeoverlooked.

2.7 Decline of Mumbai Textile Mills

In mid-nineteenth century, textile industry experienced several technological changes all over the world. The conventional handloom technology faced a severe competition from the advanced power loom techniques. The mill owners did not update the machinery in the Mumbai Mills to keep up with the changing trends and the low skilled workers were also comfortable with this policy. During the same period the fuel prices and costs of raw material increased. Reservation policies and adverse taxation discouraged the mill ownersfrominvestingmoreintheindustry.By1980’sitbecameuneconomical tomaintainlargescaleindustrialunitswithinthecitylimitsonaccountofhigh power and tax costs. Also, the economic and technological change struck

Figure 2.9- The dead mill in Mumbai, Source – Culture Trip
of Working Textile Mill 21

of Working Textile Mill 22 majormilltownslikeManchesterinUKandLowellinAmericaandeventually there was an overall slump in the world textile market and eventually there was an overall slump in the world textile market. By 1990’s the employment rates of service industries increasedbylargenumbers. Anotherreasonfortheultimateshutdownofmillsisthe18monthlong strike by mill workers’ union in1982.Nearly250,000workers&morethan50textile mills went on strike. Rashtriya Mill Majdoor Sangh (RMMS) the largest workers union in the city led by Congress (political party) fought the governmentandmillownersfor theirrights.TheBombayIndustrialRelations Act,1946(BIRAct)soughttoestablishasingleunion,theCongress-ledRMMS as the only approved union. This move was taken primarily to renounce the optionofstrikesandfocusonothermeansofresolution.Thestrikeof1982was called for primarily to strike down the BIR Act along with increase in wages. Thestrikedidnogoodfortheworkersinsteaditopenedanewstrategyformill owners. During the strike, mill owners outsourced the work to workers in Bhiwandi, a distant suburb who were paid almost 50 percent of the wages in spiteoflongertravelling.ThisledtohugelossesandtherunningoftheCotton TextileMillsbecameunviable.Severalmillsweredeclaredsickandafeweven shut down their operations. Only a few managed to survive. There were 58 cottontextile millsinMumbai. Of these, 26were deemed‘sick’ and, therefore, taken over by the Government of India. The remaining 32 mills continued in theprivatesectorfollowedbyshuttingdowntheiroperationsincomingyears. (D'Monte,MILLSFORSALE,TheWayAhead,December2006)

Gauri Mukund Kuvar Aditya College of Architecture

Resurrection

3 Redevelopment of Mumbai Textile Mills

3.1 Policies for the Redevelopment

Huge amount of land within the island city had become available on account of either complete or partial closure of the textile mills. There was a need of forming definite policies which would help and strategically develop the 600 acres of land in the core of the city. The basic requirement for setting these policieshadparametersoffulfillingallstakeholders’requirements.

3.1.1

The First Policy - 1991

The fate of these unused mills land began to be spelt out with the new Development Control Rules (DCR) for the city, framed in 1991. These rules permitted the sale of a portion of the mill land in order to channel funds into the revival of the mills. These funds were to be used for clearing off financial liabilities of the mill owners like workers’ wages, VRS, retiring loans, etc.

AccordingtotheDCR58,inthecaseofredevelopment,entiremillland(either openorafterdemolitionofexistingstructures)hastobedistributedasfollows:

•Onethirdto theBMCfor openspaces;

•OnethirdtotheMHADAforpublichousing;and

•Restto beusedbytheowners/developersforcommercialdevelopment.

3.1.2

The Second Policy - 2001

Most of the private mills found the regulations of the DCR 58(1991) onerous andrefusedtogothatway.ModificationstotheoriginalDCRweresoughtand in2001thegovernmenttabledanamendmenttotheDCR58(1991).According to the new rules, only ‘open land’ on which there was no construction was to bedistributedinthemannerlaiddownintheDCR58(1991).Asaresultofthis policy change, majority of defunct private mill owners made a beeline to the civicauthoritiestohavetheirplansforredevelopmentpassedandapproved.

Resurrection of Working Textile Mill 23

19912017 85-95%

33% 33% 33%

3.1.3

The Third Policy – 2017

2.5%

2001 2.5%

Now majority of the mill lands in the city have already gone for the redevelopment or at a stage where development plan is passed under 2001’s rule. 8 sick mill lands have left undeveloped. The current government has thoughtthattheseeightmilllandsshouldnotbedevelopedinthesamewayas the previous lands and thus proposed an amendment to follow the very first ruleofthemillredevelopmenti.e.the33%ruleproposedbyAr.CharlesCorrea.

Since among the total 58 mills, 50 have already gone under the process of redevelopment.Itcan besaidthatthe scopeleftisverylow.Butlooking atthe city’s environmental health and urban needs, this can also be termed as an importantopportunityto look at.

3.2 Trend in the redevelopment

When textile mills were fully operational, they were excluded from reservations for public amenities. According to an ex-government planner, there was no reason to believe they would shut down and hence these lands were regarded as industrial zones alone. But a few years later, with technological changes and economic restrictions many of the mills were declared ‘sick’ and it was hard for mill owners to pay thousands of workers unless they were allowed to sell their assets. As a result, in 1990, DCR 58 (Development Control Regulation) came into existence. DCR 58 allowed the mill owners to sell part of their land. For the first time Mill owners were

Figure 3.1- Land divisions according to the policies of respective years. Source - Author Resurrection of Working Textile Mill 24 MHADA/HousingforpoorOpenareagivenbacktothecity DevelopmentbytheOwner

Resurrection

Working

allowed “change of user” from Industrial to Residential / commercial on the condition that they use the resultant funds for the revival of the mills. They were allowed selling only 15 per cent of the mill land and using the resourcesto modernizethemills.

In1991,fivetosixmillsweredevelopedonthebasisofDCR58,butnotasingle mill undertook any kind of modernization. The skyline of Girangaon began to change steadily with the arrival of high rise luxury towers.

After the first policy; hardly a few mills went for redevelopment since the But development post thesecond rule happened like a boom. Development of the sprawling mill lands in Central Mumbai provided momentum with BMC officially giving the green signal for the redevelopment plans of more than 15 privatemills.FurtherredevelopmentofmilllandswasalsosoughtbytheNTC who lookedatselling17ofits25millsinMumbaiandaproposalfor thesame wasputforwardto theBMC.

In principle, the state government policy (DCR 58 2001) regarding the mill lands sale seeks to divide the land equally for commercial purposes, lowincomehousingandopenspacessothattwo–thirdsishandedoverforpublic interest. But in reality, this policy failed to achieve its purpose. This became quite clear when NTC put forward its proposal to dispose its mills in Central Mumbai.

When Phoenix converted one of its structures into Bowling alley (the permission for this was obtainedon the pretext of building a recreation center for the workers), Girangaon was really shaken. The issue of mill lands no longer was limited to mill workers alone: it concerned the issue of urban development. The objective of DCR 58 was not supposed to be real estate development,itwasmeanttoprotectthejobsoftheworkers,byallowingonly apartialsale.Ifthedevelopmentofmilllandswasthemainobjective,thenthe

of
Textile Mill 25

Resurrection

government should have worked on comprehensive development plan to include all mill lands, in fact the entire Girangaon. A few examples of the redevelopment can help to arrive at the conclusion and set parameters for the designdevelopment.

3.2.1 Examples

DrivingthroughtheerstwhilemillhubofWorli,LowerParel,ParelandDadar, as one whiz past glitzy, glass-facade office buildings and spiffy residential properties,ridingupanddownastringofflyovers,ifatryisgivenspottingan

open space, or houses built for mill workers, or a transit camp for projectaffectedpeople,notmanywillbenoticed.

City developers and builders have already redeveloped a majority of defunct milllands.Thelandinmostcasesisusedforresidentialhighrisesandinsome cases for commercial, retail and entertainment sectors.

Almost all the existing structures on these mill lands were demolished completely(exceptafewfactory featureslikeChimney)for redevelopment.

Figure 3.2- Pheonix Towers

Source – IndiaMart

Figure 3.3- Pheonix Mall, Source - Rediff

PhoenixMill:Thefirsttoredevelopthetextilemillistoday’sCentralMumbai’s entertainment and shopping hub. A multiplex and hotel are currently being addedherethoughtheBombayMunicipalCorporationleasedeedin2005gives

of Working Textile Mill 26

the mill over 20,000 square yards of land at the annual rent of a rupee for ‘residencesoflabourstaff,andwelfareserviceslikeaschool’.

Morarjee Mill 1: Construction ofthe residential complex ‘Ashok Towers’with three 30-storeyed and 50-storeyed tower, underway for the past six months. Partofthemill’slandisona956-yearleasefor annualrentofRe1.41.

Morarjee Mill 2: Peninsula Corporate Park houses new economy offices like TATAAIGandOrange,aswellasaposhhealthcentre,Wellsprings;partofthe landisona999-yearlease.

Simplex Mill: This mill, co-founded by Mohammed Ali Jinnah in 1913, is bowing out to Planet Godrej, five residential towers of46 storeys each. Part of the land was given on a 99-year lease for an annual rent of Rs 43. The lease expiredin1983.

Shrinivas Mill: South Mumbai’s Millionaire Member ofLegislative Assembly Mangal Prabhat Lodha won the redevelopment rights, plans a residential

Gauri Mukund Kuvar Aditya College of Architecture Figure 3.4- Ashok Towers, Source – Magic Bricks
Resurrection of Working Textile Mill 27

complex. Standard Mill: A giant apartment complex of Beau Monde, with apartments priced at over Rs. 1 cr. each. Residential towers have also been clearedbythe BombayMunicipalCorporation.

DISTRIBUTION

HIGHEND RESIDENTIAL COMMERCIAL MHADAHOUSING OPENSPACES

Figure 3.5- % distribution of the mill lands as per allocated stakeholders, Source- Author 3.3 What has city lost? Opportunity- Identity Civic activists and architects tried to block the proposal as they believed that thecitywasentitledtoahighershareofthemilllands.Millshavebeenseenas a rare and exciting opportunity for planned development in the city and few werereadytoletit go. Buttheclarificationinthepolicygot approved.

This policy reduced open spaces from: 166 acres to 32 acres. And reduced the land for public housing from: 160 acres to 10 acres. i.e. housing for 21,600 families to housing only for 3,375 families. Examine the figures- 33 mills, includingthoseowned privately,havebeendevelopedor are inthe processof being developed. That’s over 250 acres ofland-more than 10 times the size of OvalMaidan.

At a conservative estimate, this offers potential to create 2.1 crore sq feet of commercialandresidentialspaceworthRs42,000crore.Andmakenomistake, thisisa conservative estimate.

Resurrection of Working Textile Mill 28
20%60% 10% 10%

3.3.1

Public Gardens/ city open spaces

As per the draft DP, the total demand for provision of open spaces in 2034 is 5,116hectares,whilethetotalprovisionis3,525hectaresareamarkedaspublic open spacesthat includesexisting and theproposedreservationson the plots. Thismeansthecitycanget2.76-square-metreopenspaceperpersonasagainst the proposed four square metre standards. Currently, the public open space perpersonis1.28squaremetres.

BMChascreatedtwogardensoflanditgotatMatulyaMillsandPiramalMills in Lower Parel. But the gardens can’t be called public spaces. The one at Piramal Mills is surrounded by tall office buildings and is accessible through Marathon NextGen Realty’s gate. One would never guess there is a ‘public’ gardeninsideunlessyouspotlittleboardswitharrowsdirectingyouto it.

At India United Mills 2 and 3, where BMC got a large chunk of land, it wants to develop a textile museum and landscaped gardens. Since the mills have a heritage tag attached, BMC is in the process of sending its proposal to the Heritage Committee. That is it. That’s BMC’s contribution to creation of open spacesonmillland.(MumbaiMirror,2011)

3.3.2 Mill workers’ housing

Asformillworkers’houses,they’realongwayaway.Sofar,MHADAhasbuilt

6,000 houses and have been ready for a year now. Mill workers’ unions say about 2 lakh workers lost their jobs after the 1982 strike and the subsequent gradualclosureofmills.

Worse still,the government wants Rs.12.5 lakh for ahouse from mill workers who have been without jobsfor nearly 30 years. While mill landdevelopment began at the endofthe last millennium,over 11years later, nota single house has been allotted to any mill worker. For the 6,000 houses MHADA has built, thereareover1lakhclaimantsMHADAhouseswerebuiltforthosedisplaced

Resurrection of Working Textile Mill 29

Resurrection of Working Textile

byredevelopmentofmillland.Whileover2.5lakhworkerswereaffected,only 6,000 houses have been built. Over 2,500 apartments have already been built, another 3,000 being constructed. Permissions to build 7,000 more flats are pendingatvariouslevelsintheadministration.(MumbaiMirror,2011)

3.3.3 Conclusion

Theredevelopmentofthemilllandledto overcrowding, haphazard planning and reduction of open space in the city. The possibilities of maintain and nurturingtheoriginalculture ofMumbai that wasformedintheperiod of old time workers; is lost due to superimposition of a complete new lifestyle and eradicating the old layer. This has made the city lose its overall identity that had evolved throughout the preceding century.

3.4 What if the working mills too go for redevelopment

Since the working mills, are playing an active role in the city; predicting their exact future is not possible. Cases can be imagined in terms of prediction and the results can be analysed. This will help to arrive on the conclusion of what willservethebesttothecityafteralltheselossesithasfacedalready.

3.4.1 Case 1: Selling the surplus areas and helping the mill function

This casewill certainly helpto runthemills in comingperiod oftimeandalso help the workers to sustain their lives. But this will limit the mill’s performance for a definite amount of time. And the future of them will still bevague.Sellingthesurpluslandandintheendwhenthemillcannotfunction; the remaining land too will be sold. This case will eradicate the layer of mills

completely and in the end won’t help to maintain the identity of the city or to sustaintheurbanfabric.

3.4.2 Case 2: Shutting mills once they can’t sustain on their own

This caseisverycrucialbecauseitcanbeseenfromthestatisticaldatathatthe working mills cannot sustain for more than 10 years from now.Thiscasewill

Mill 30

Resurrection

at least save on the mill’s total land. But once it cannot sustain on its own; the end condition will be similar to what has happened to the dilapidated mills lands which will follow government’s policy for their development. This case too will eradicate the layer of mills completely and in the end won’t help to maintaintheidentityofthecityortosustainthesocialfabric.

3.4.3 Conclusion

If the mills and the workers need to sustain in coming years in the city where no new industries are allowed and the current losses are too high; then a solution should act as a midway. This requires the understanding of what is the real case of working textile mills and jotting down their requirements and thenaddinganexternallayerasasupportivesystem.

4 The Living Heritage

“Anyrevitalizationofthecityshouldbebasedonitsindustrialandethnicheritage.”

In the due course of time; all the mills got defunct and in the end stopped working. But in 2010, NTC came with a decision to start again 3 of the mills which will help Mill workers for the living. Today these three mills stand

of Working Textile Mill 31
-EducatorPatrickJ.Morgan

firmly as the evidence of the rich past that Mumbai had and the workers in the mills are witnesses of the social culture that was built in Mumbai back in thecenturyof1800-1900.

Figure 4.1- The Functioning Mill, Source -Author VisualSurveyofExistingLandmarks/HeritageConstituents:

Chimney

TheBuiltForm/HeritageBuilding

NorthLightWeavingBuilding

WaterBodiesinsidetheComplex

BuildingFacade

ThefunctioningofMill

Resurrection of Working Textile Mill 32
Gauri Mukund Kuvar Aditya College of Architecture Figure 4.2- Chimney, Source – DNA India Figure 4.3- The heritage Building, Source - Quora Figure 4.4- The Building Façade, Source – India, Essel Group
Resurrection of Working Textile Mill 33

These mills have people working from 500-1000 in the number. Mills are workingsoastobeinfavouroftheworkers.Thebusinessinthecityfortextiles can betermed as a less profit generatingone.But thesestill manage to sustain

Figure 4.5- Water Tanks inside the Mill, Source - Author Figure Source - Autor
Resurrection of Working Textile Mill 34
4.6- The current functioning of Mills,
4.1 About the Working Mills and current scenario Names&locationsoftheseMills:  TataMills,Dadar  IndiaUnitedMillsNo.5,Byculla  PodarMills,LowerParel

Resurrection

withthehelpofNTC’sfunds.Thishelpwillbelimitedtoacertainlevelthough. Newlandshavebeen boughtinothervillagesofMaharashtra and soonerthe working mills will be shifted there. This puts a question again. If the reality of the city and its tertiary grade population is taken into consideration; it can be seen that there is a huge chunk of population is without the jobs. One case is where there is an educational background but no jobs available and the second is where there is a huge population which is less literate to do any deserving jobs. In this scenario mills can be looked at as an asset where both the categories of people can be accommodated. The working mills stand as a hope to address the need of the hour.

4.2 Need of a supportive system for the working mills

“What we need is continuity, historic preservation is not sentimentality but a psychological necessity we must learn to cherish history & to preserve worthy old buildings…Wemustlearnhowtopreservethemnottopatheticmuseumpiecesbutby givingthemnewuses.”

-AdaLouise“inHealing theCityScars”

Nonewindustrialbasecanbeestablishedinthecityandthereisaleastpossible will to maintain the old base too. But, if the case is seen as an asset in city’s futurethenanideaofsustainingthemillscan beprovenofhelp.

1. IfNTCshutstheworkingmills;itwillhaveto paytheworkers adefinite amountasatokenofVRS.NTCcan’taffordthisamount.

2. At the same time if NTC wishes to keep the mills running, It doesn’t have enough funds tomakeitrun.

of Working Textile Mill 35 Thus working mills are unable to function smoothly today due to lack of funding. This is helping neither NTC nor the City.NTCwelcomestheideaof generating an external body as a source of income and maintaining city’s identity.Thusa need of a supportive system ariseswhich canactasahelping handto theworkingmill.

Gauri Mukund Kuvar Aditya College of Architecture

5 Case Studies

5.1 Mill Town: Lowell, Massachusetts.

Introduction:

TextilemanufacturingbecamethedominantindustryinMassachusettsduring the Industrial Revolution. Lowell became the town with maximum mills and mostimportantcentresfor moderntechnologyinproduction.Due to Lowell’s success, many new mills and mill towns just like it began to sprout up along riversacrossMassachusetts.Around45milltownswereestablishedduringthe IndustrialRevolutionjustinMassachusettsalone.

Lowell:

The city of Lowell was started in the 1820s as a money-making venture and social project referred to as "The Lowell Experiment", and quickly became theUnited States' largest textile center. However, within approximately a century, the decline and collapse of that industry inNew Englandplaced the city into a deep recession. Lowell's "Rebirth", has made it a model for other former industrial towns. Lowell is considered the "Cradle of the AmericanIndustrial Revolution", as it was the first large-scaleIndustry towninthecountry.

Growth:

By 1850, Lowell's population was 33,000, making it the second largest city in MassachusettsandAmerica's largest industrialcenter. The5.6mile long canal system produced 10,000 horsepower, being provided to ten corporations with atotaloffortymills.Tenthousandworkersusedanequalnumberofloomsfed by 320,000 spindles. The mills were producing 50,000 miles of cloth annually. Being a booming city with many low-skilled jobs, waves of immigrants came into Lowell to work the mills. By the 1850s, industry competition increased as

Resurrection of Working Textile Mill 36

Resurrection

Working

more manufacturing centers were built elsewhere, Lowell's mills employed increasing numbers of immigrant families, and the early "Lowell System" of Yankeewomenworkerslivingincompanyboarding-houseswastransformed. In its place, large, densely populated ethnicneighbourhoodsgrew around the city, their residents more rooted in their churches, organizations, and communitiesthanthepreviousera'scompanyboarding-housedwellers.

Figure 5.1- Plan of Lowel with the locations of textile mills, Source – nps.gov

Decline:

TheAmerican Civil Warshut down many of the mills temporarily when they sold off their cotton stockpiles, which had become more valuable than the finished cloth after imports from theSouthhad stopped. After the war, mills returnedto life.NewimmigrantgroupsmovedintothecityWorldWarIgave ashort-livedboosttoLowell'stextileandmunitionsindustriesasbothprofited fromlargemilitarycontracts.Asmorejobswerecreated,fewcouldseethatthe end of Lowell's prosperity was near, or that by 1930 the city's once vital

of
Textile Mill 37

Resurrection of Working

economy wouldgrind to a virtual halt. There were early signs, but onehad to lookbeyondtheproductionnumberstoseethem.Forseveraldecadesafterthe Civil War, Lowell's textile production had increased steadily, but after 1890 total employment slipped, declining from 17,000 in 1895 to less than 14,000 in 1918. Technological advances made possible gains in output even while mills trimmed their workforce. Lowell mill owners knew as early as the 1890s that their mills were aging, becoming increasingly non-competitive. Yet mill managementchosenottomodernizetheirLowelloperations.Theyeithertook theiroperationselsewhereorusedtheprofitsfromtheirLowellmillstofinance moderntextileplantsintheSouth.

Consequences:

The Depression came early to Lowell and stayed. By 1936 total textile employment had dropped to 8,000, only slightly more than it had been a century earlier. Many mills stood empty; others housed a number of small manufacturing firms. Entire mill complexes were demolished, or sections loppedoff,toreducetaxes.PartsofLowelllookedlikeawarravagedcity. Whenaunionwasformedin1938tobargainwiththeMerrimackMills,women played a significant role in organizing the workers, as their forerunners had a century earlier. After their demands for better wages and working conditions wererejected,theywentonstrike. Butfar-offeventsshiftedthebalanceintheir favour. War was approaching in Europe and the Federal government was pressuring the mills for cloth. The owners capitulated after seven weeks and the workers returned to the mills. World War II quickened Lowell's economy. The boom proved only temporary for Lowell. When the war ended in 1945, orders for munitions and textiles fell off, and the city lapsed into its old economicdoldrums.ItwasclearthatthetextileindustrywouldnotleadLowell back to prosperity. The city's fortunes were at their lowest in the post-war

Textile Mill 38

Resurrection

years.Theremaining mill buildings seemed to bebleakreminders of anera of hard work and meager reward. For many residents, remembering the past stirredupfeelingsofangerandabandonment.

Revitalization of Lowell:

In the 1960s a group of Lowell citizens devised a strategy to revitalize the community, educational system and the local economy. Working with urban planners and historians, they laid out a plan for redevelopment based on Lowell'sarchitecturalandculturalheritage.Amongtheirproposalswasonefor ahistoricalparkthatwouldpresentthecityasalivingmuseum.Thelate1970s and the early 1980s were years of prosperity in Massachusetts, with a soaring economy built around higher education, high technology, and an attractive culturalambience.InLowellemploymentroseasbusinessexpandedandover 100 old buildings were rehabilitated and put to new uses. Visitors again came to Lowell, a model of historicpreservation andurban revival. Boom andbust, technological innovation and obsolescence-these are old themes in Lowell. Many observers see nothing surprising in the current cycle and believe a new mixoftechnology,improvededucation,andculturalvitalityhaspositionedthe city well for transition into the coming era of internationally interdependent economies.

Thecity'snewpriderecallsthespiritoftheMilltown’sboomdays.Thecitizens of Lowell have made the past a vigorous presence. Historic buildings house new enterprises. Old machinery finds use in new exhibits. Common threads run through the Lowell's earlier generations of immigrants and those still arriving. If there is any place to observe the beginnings and the development ofAmericanindustrialization,itishereinLowell.

Identity:

of Working Textile Mill 39

Resurrection

TwelveyearsagoLowelldecidedthatits identity was important to its people and the Nation. There are hundreds of people who should be credited for discovering this America. Many workers wanted the good and the bad of the past preserved, rather than flattened and denied. The first steps were modest, starting with the renovation of small downtown buildings. The movement quickly gained momentum, benefiting from a new public appreciation for industrial architecture and realization that preservation should embrace working class history and culture.Lowell hasonce againbecomea placethat is visited by planners from other cities/countries who want to follow Lowell’s exampleto bringnewlifeto theircommunities.(NationalParkService,2015)

Figure 5.2- Trasformation of Mills in Lowel, Source - Author
of Working Textile Mill 40

Resurrection

5.2 Massachusetts Museum of Contemporary Art

Working

The Massachusetts Museum of Contemporary Art, (MASS MoCA), is a museum in North Adams, Massachusetts, USA. It is a converted factory building andis thelargest center for contemporary visual art, performing arts in the United States. The development of MASS MoCA began a year after the owner(Sprague)vacatedallthebuildings.

Figure 5.3- The View of the Mass MoCA, Source - dezeen In1986agroupofstafffromthenearbyWilliamsCollegeMuseumofArtwere looking for large mill buildings where they could exhibit large works of modernandcontemporaryart.Theyweren'tabletodisplaytheseintheirmore traditionalmuseum/gallerysettingwhichexistedalready.

Figure 5.4- Internal View of Museum, Figure 5.5- External View of Museum Source - laughingsquid Source - Dezeen

of
Textile Mill 41

Resurrection

TheywerethendirectedtotheMarshallStreetcomplexbythemayorofNorth Adams. When they visited the buildings, they quickly realized that the buildings had much more potential than an off-shoot gallery. The process for MASS MoCA began. Fund-raising and organization to develop MASS MoCA took a number of coming years. The project evolved to create not only new museum or a gallery space but also a performing arts venue. In 1999, MASS MoCA opened its door. A public plaza too is planned for the future in one of thezonesoftheIndustry.(MASSMoCA)

Figure 5.6- Gallery Layout throughout the Complex, Source - Brunercott Figure 5.7- MASS MOCA Campus Development, Source – Times Union
of Working Textile Mill 42

Figure 5.8- Phases of the mass MoCA Development, Source - Pintrest Conclusion:

This entire complex was an Industry initially. Possibilities of fulfilling current requirements could have easily done. But the entire structure has been adaptablyreusedinordertopreservetheHeritageArchitecture.Modifications aredoneaccordingtotheprograms.Alsoanumberofadditionalstructuresare

remade. They follow a similar theme of the original structures. This is thus a wise example of how to maintain the old fabric without losing on the new programneeds.

Resurrection of Working Textile Mill 43

Resurrection

6 Site

6.1 Probable Sites

The three working milsinMumbai weretheprobable sites.

1. TataMills,Dadar

2. Podar Mills,Lower Parel

3. India UnitedMills No.5,Byculla

Surveys of the mills were carried out to arrive on one site among the three. Potential site was then finalised on the basis of its locational value, conservation category, scope of the future program etc.

Figure 6.1- Locations of Mills throughout the City, Source - arprinciple

of Working Textile Mill 44
1 2 3

Categories*: Type A: Should be retained/ should be adaptably reused. Type B: Could

retained for contributing to character of place. Type C: Could be demolished)

TataMills PodarMills IndiaUnited MillsNo.5

Dadar LowerParel Byculla

1926

1.63 2.16

2500 3000

Avg Avg

Resurrection of Working Textile Mill 45
Mukund Kuvar Aditya College of Architecture Table1-Comparisonofthethreeworkingmills (Conservation
be
Sr. No. Categories
1. Location
2. Workingsince 1874
1877 3. TotalArea(inacres) 38.78 6.19 5.56 4. TotalBuiltUp 28.81 4.56 4.42 5. WorkingArea 14.09 4.56 3.42 6. SurplusArea 14.75
7. OriginalWorkers 6000
8. CurrentWorkers 785 500 650 9. OriginalContriobutiontoeconomy High
10. No.ofStorey G,G+1/2 G+3 G+1 11. StructuralStatusof WorkingZone Good Average Average 12. StructuralStatusof Surpluspart Average+ Belowavg Nomajor surplus-avg Nomajor surplus-avg 13. Conservations Category* TypeA,B,C TypeB TypeA/B 14. MarketCondition fortheTextiles Good Average Average 15. CurrentEconomic Condition/Status Poor Poor Poor 16. Yearsitcanself sustainfor Notatall Notatall Notatall

Resurrection

Needofan Extension Yes Yes Yes

6.2 Site Justification

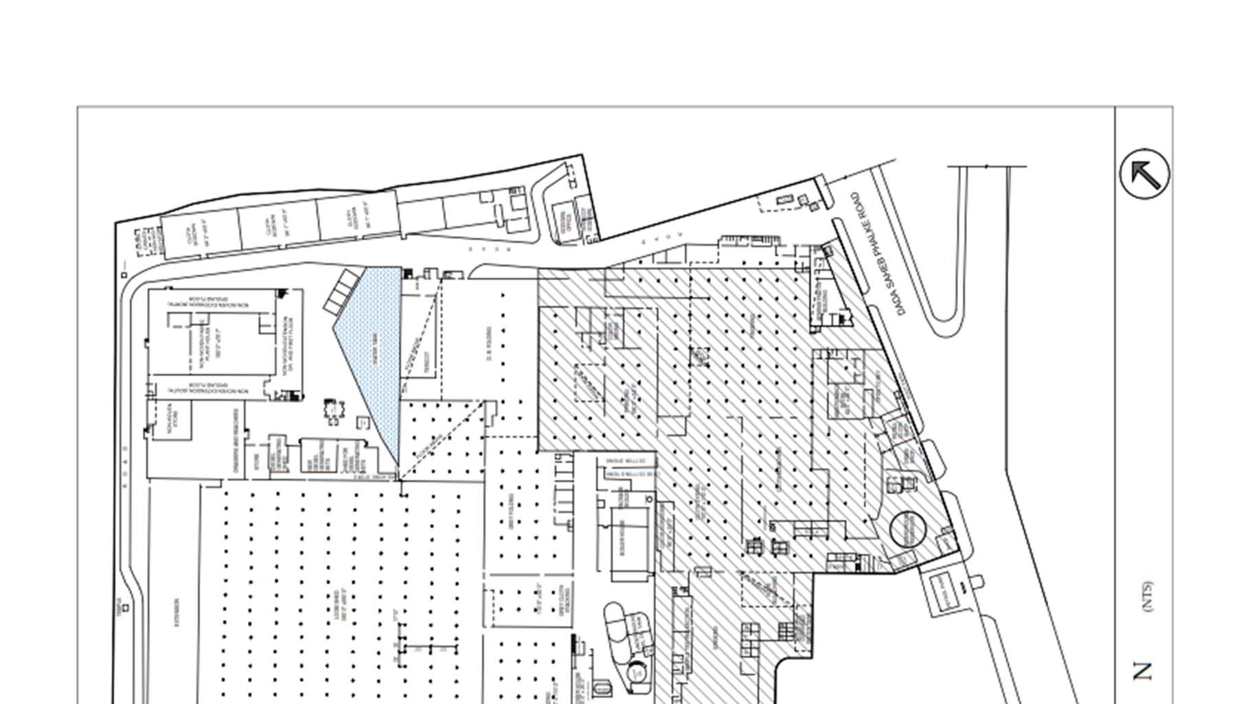
Siteselectedfortheproposal:TataMills,Hindamata,Dadar(East)

Strength: Current status- Among the three working mills, Tata Mills has the maximum surplus area. Tata mills has all the programs concentrated in one part of the complex whereas, the other two mills compounds have activities scatteredalloverthesitethusnothavingsurplusareainchunk.

Locational Value - Dadar: A major growth point generated by only interchangeavailablebetweenthecentralandwesternrailways.

Elphinstone Road and Parel station: Potential growth points generated by a newinterchangeintegratingthetwostationsintoone.

Aacharya Donde Marg: An existing east-west road with the new interchange willconnectthroughSewriacrossNaviMumbaibecomesthenewartery.

Weakness: The entire Hindamata Area is the junction of water logging in heavy rains. The surplus areas in the mill are already occupied with TYPE D conservationstatusstructures.

Opportunity: The activitiesinthe vicinity are in link withthe textile industry. ThenumberofworkingpopulationismoreinTataMillsascomparedtoother workingmillsinthecity.TheNTCcannotstopthefunctioningofthemill(due tolackofVRSamount)norcanitrunthemill(duetoinsufficientfunds).Thus NTCwelcomestheideaofacomplimentarysystemtorunthemill.

Threat: Thecurrentrealestatelobbyhasenormouspressureonnotmarinating themillsforthefuture.Also,thereareprovisionsmadeforshiftingtextilebase toAmravati,Maharashtra.

of Working Textile Mill 46
17.
Resurrection of Working Textile Mill 47 Aditya College of Architecture Planning a supportive system thus will be helpful to keep the mill in Mumbai andmakeitrun.Hencesite chosen isTataMills,Hindamata,Dadar. 6.3 Site mapping Figure 6.2- Tata Mills, Location, Source – Google maps Figure6.3-1.ParelStation/ ElphinstonStation,S.wiki Figure6.53.TataMills Hsngchs,S.-Panaramio Figure6.4-2.GautamNagar Source–99acres Figure6.6-LocationofTataMills,Dadar(East),Source–googlemaps ContextaroundTataMills Figure6.9-WholesaleCloth MarketAuthor Figure6.7-DadarEastStation Source-midday Figure6.8-GoldMohour Mills,Source-wikimapia

Resurrection

Gauri Mukund Kuvar Aditya College of Architecture Figure 6.10- Surplus open Area inside the Complex Figure 6.11- Internal Roads Figure 6.12- Surplus Open Area inside the complex Figure 6.13 Internal Facades Figure 6.14- Internal Water Tank Figure 6.15- Tata Mills, Source - Author Site Walkthrough Figure 6.16- Structural Surplus areas Figure 6.17- Workers' Facilities Figure 6.18- Service Block Figure 6.19 - Storage Figure 6.20 - Entrance of the Mill
of Working Textile Mill 48

Resurrection

SURPLUS AREA

WORKING AREA

SURPLUS AREA-NON

Figure 6.21 - The 3D view of Tata Mills Complex, Source - Author

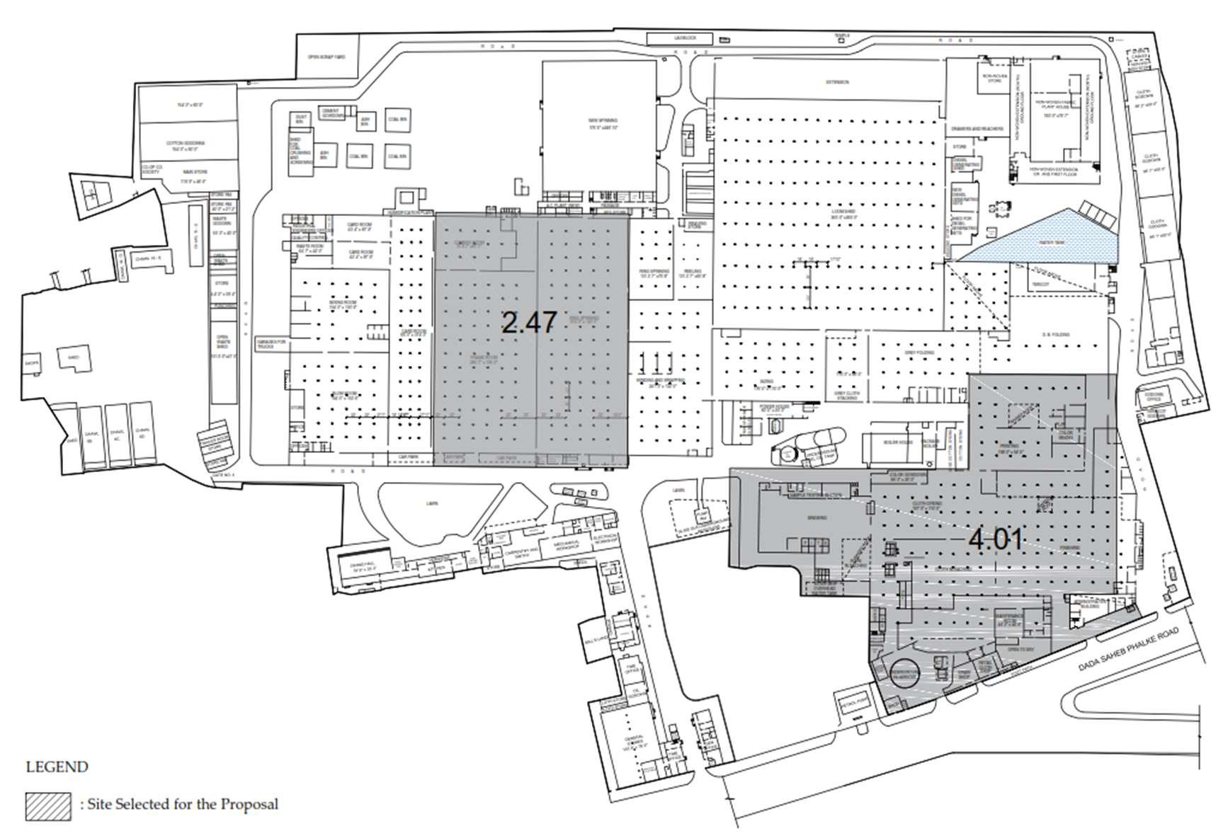
6.3.1 Tata Mills- Site Area Bifurcation

Figure 6.22 - The area division in Tata Mills, Source - Author

Table2-AreaBifurcationin TataMills

of Working Textile Mill 49
WORKING

INDEX

LandleasedtoTATAmills 38.78

AREAOFTHELAND (inacres)

Landsoldbytheowner 6.01 BalanceLand 32.77

ActualBalance 29.3

Housing 2.08 LandinUse 12.38 SurplusLand 14.84

Table3-PlotSelection (Conservation Categories*: Type A: Should be retained/ should be adaptably reused. Type B: Could be retained for contributing to character of place. Type C: Could be demolished)

Category ZoneA ZoneB ZoneC ZoneD ZoneF

Title

Reservation

Working Area Surplus Area-1 Surplus Area-2 Admin Area

Surplus Open Areas

Public Amenity, O.Space

Area 11.38 4.01 8.83 1 3

Plinth%of thetotalzone 75% 80% 75% 90% 05%

Resurrection of Working Textile Mill 50 Landsubleasedto RBI 3.47

Open Space, Public Amenity

Structural Status

Good Below Avg.

Resurrection

Avg., Below Avg. Good -

Adaptabilty Potential - Low Medium -Conservation Category

TypeA TypeC TypeB,C TypeB TypeA

Photograph

High High Medium - High 6.3.2 Site Plan

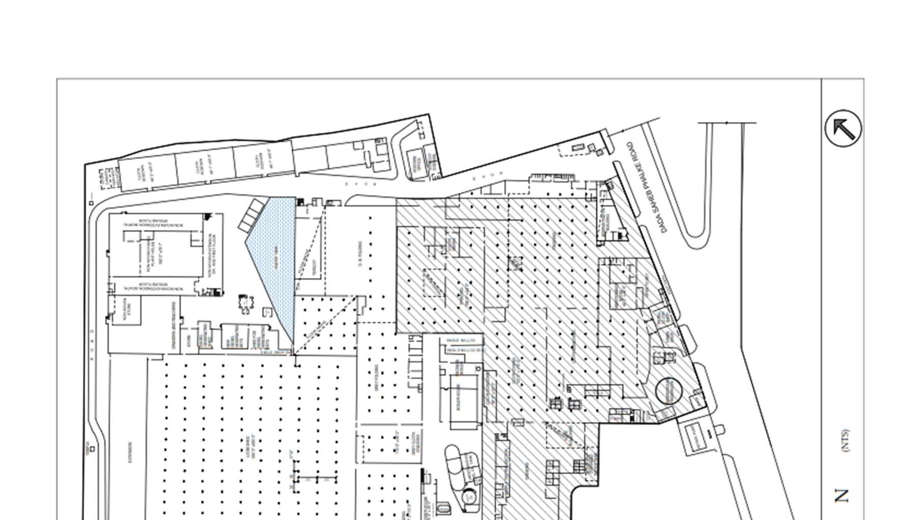
of Working Textile Mill 51 Revenue Generation Potentialof Plot

Resurrection

of Working Textile Mill 52

6.3.3 Figure – Ground Map

Figure 6.23 - Figure Ground Map, Source - Author

6.3.4 Building Use Plan

Figure 6.24 - Building Typology Map, Source - Author

Gauri Mukund Kuvar Aditya College of Architecture
Resurrection of Working Textile Mill 53

6.3.5 Existing Land Use Plan

Figure 6.25- ELU near Tata Mills, Source - Author

6.3.6 Proposed Development Plan (dp 2034)

Figure 6.26- Proposed DP 2034, Source – Mumbai Mahanagarpalika

Resurrection of Working Textile Mill 54

Figure 6.27- Area Comparison for Tata Mills, , Source - Author

Thedevelopmentplanproposedbisectsthe working zone ofthemillandalso allotsopenspacesandamenitiesintheworkingzone;whereasthe nonworking zones seem untouched. It is evident that the working mills are not taken into consideration at all. But a strategic planning of the requirements in the dp can be done. This will fulfil both; 1. The requirements of the DP and 2. Help to run the mills for coming years. Also, the strategic arrangement helps to get a non-workingareainchunkwhichcanbeutilisedtogeneratehugerevenuesby itsreal estatevalue.

Resurrection of Working Textile Mill 55

Site Sections

Resurrection

of Working Textile Mill 56
6.3.7

7 Project Formulation

7.1 Inferences from the Site surveys

“In the city…urban and monumental places, indeed urbanity and monumentality themselves, can occur when something is given over by city to the public.”

—Charles Moore

Stakeholdersforthe Millswere categorised infour groups.

1. The NTC,millowner

2. Mill workers

3. The commerciallayer (holesale market)intheimmediatevicinity

4. The residentsinthevicinity

Surveys were carried out to arrive at the needs and requirements of these stakeholders. 3 working mills, 30 mill workers, 15 shops and 15 households weresurveyed.

InferencesfromWorkers’ surveys:

No specific training centre in Mumbai. Trainings occur in Lonavala at regularintervals.Thusaneedof abetter trainingcentre.

Figure 7.1- Identification of Stakeholders, Source - Author
Resurrection of Working Textile Mill 57

Workers hardly get any free time in working hours, thus recreational activitieswillbequestionable.

Unlike menworkers,womenoftheworkingclassrequireacommunity centre where they can work post shift hours for their individual side businesses/skilldevelopingetc.

InferencesfromResidents’surveys:

Since the area is full of wholesale clothing market; the people staying facealackofgroceryshops/marketsintheimmediatevicinity.

Parking facility is less since the area has 60-80 years old buildings with noprovisionofparking.

Pollutionproblembecauseofthelowheightofthechimneyinthemill.

Manyhousewivesareengagedinsmallscalebusinessactivitiessuchas jewellerymaking,wholesaleclothing,beautyparlour,tailoringetc.

Inferencesfromformal/informalshopkeepers’surveys:

Boththeformalandinformalshopsareintheareasince60-80years.

Formal shops are majorly owned by original residents who do not stay thereanylongerandthustheseshopsaremajorlygivenonrentalbasis.

For informal shops, there is a need of a better market; since over 50-80 years the shop requires more space. But the issue here is of unaffordabilityofabettermarketorabettershop.

None of these shops act as hindrance in government’s development activity.

A lot of more dealers are willing to have their shops and set a business inHindamatabuteitherthereislackofnewspaceformarketorthelittle availableonesaretooexpensivetorentorbuy.

Resurrection of Working Textile Mill 58

7.2 Design Program

Thesupportivesystemshouldactamutual giveandtakeandthusaddressing the needs the all the stakeholders needs to be considered. Briefly the thesis programwillincludefollowingaspects:

The stakeholders will individually be addressed. The aim behind addressing stakeholdersisto

1. Createrevenue.

2. Toupliftthecurrentfunctioningofthemill.

3. Tobenefitthepeopleinthecontextandthecity.

Table 4 - Design Programs

Sr. No. Program ForWorkers Functions

1. Training and Skill DevelopmentCentre

Administration

ClassRooms

Studios

Workshops

Store

Toilets

2. Small scale Businesss Centre

Offices

ConferenceRooms

Studios

Store

Toilets

Sr. No. Program–For Public Functions

1. LiveTextileMuseum

Administration

ReceptionArea

ExhibitionAreas

A/VRooms

Storage

Toilets

2. TextileInstitute

Administration

StaffRooms

Resurrection of Working Textile Mill 59

3. PublicPlaza

4. Publicparking

ClassRooms

Studios

Workshops

SeminarHall

Library

Canteen

Storage

Toilets

OpenSitoutspaces

Amphitheatre

Leisure/Recreationalspaces

4wheeler parking

2wheeler parking

Sr. No. ForMarket Functions

1. InformalMarket

2. FormalMarket

3. Warehouses

Weeklymarketspace

Semibuiltshadesforstalls

Shops

Toilets

Administration

Storagespaces

Sr. No. ForNTC/Owner Functions

1. TextilePromotionCentre

Administration

Reception Area

ExhibitionSpaces

Fashion/ADStudios

FashionDesignerStudios

Researchdevelopment department

Meeting/ConferenceRooms

SeminarHalls

Storage

Toilets

2. CommercialPark

Officesonrent. Eg: banks/ gyms/ IT companies/ Dispensaries/RetailShopsetc

Resurrection of Working Textile Mill 60

Area Statement as per the Land

TotalPlot Area :26,223.63sq.m.(6.48 acres)

Area Givenfor Reservation : 3,205.41sq.m. (0.79 acres)

BalanceLand :23,018.22sq.m.(5.69 acres)

FSIPermittedon IndustrialLand :4

TotalBuilt UpArea Possible :92,072.88 sq.m.

40% 9,207.28sq.m.

4,603.64sq.m.

4,603.64sq.m.

4,603.64sq.m.

of

Resurrection of Working Textile Mill 61
Aditya College
Architecture 7.3
Table 5 - Land Area Division Sr. No Land UseDistribution Percentage Area 1. BuildingFootPrint
2. RoadNetwork 20%
3. Parking 20%
4. GreenSpace 20%

7.4 Area Statement as per the Programs

Table 6 - Programs for the workers

Sr. No. Program–For Workers No.of People Area/pe r person (sq.m)

1. TrainingandSkill Development Centre

Area (sq.m) Circulat ionarea (40%)

500 1.8 900 360 1260

2. SmallScale BusinessCentre 500 1.8 900 360 1260

3. Total 1500 2520

Table 7 - Programs for the Public

Sr. No.

Program ForPublic

No.of People

Area/pe rperson (sq.m)

Circulati onarea (40%)

Total Area (sq.m.)

Total Area (sq.m.)

1. TextileMuseum 1000 1.8 1800 720 2520

2. TextileInstitute 150 1.8 270 108 378

3. Publicplaza 2000 1.8 3600 - 3600

4. Total 3150 6498

Table 8 - Programs for the Market

Sr. No. Program ForMarket No.of People Area/pe rperson (sq.m)

Area (sq.m) Circulati onarea (40%)

Total Area (sq.m.)

Resurrection of Working Textile Mill 62 Area (sq.m)

1. Wholesale Outlets 500 1.8 900 360 1260

2. FormalShops 500 1.8 900 360 1260

3. GroceryMarket 500 1.8 900 360 1260

4. Total 1500 3780

Table 9 - Programs for the NTC/ Owner

Sr. No. Program-For NTC/Owner No.of People Area/pe rperson (sq.m)

Area (sq.m) Circulati onarea (40%)

Total Area (sq.m.)

1. TextilePromotion Centre 1000 1.5 1500 600 2100

2. CommercialPark 2000 1.5 3000 1200 4200

3. PublicParking (4wheelers) 2000 12.5 25000 10000 35000 (open)

4. PublicParking (2wheelers) 2000 1.8 7200 2880 5040 (open)

5. Total 46340

Table 10 - Total Build Up Area Sr. No. Stakeholders Areasallotted(insq.m.)

1. Fortheworkers 2520

2. Forthepublic 6498

3. FortheMarket 3780

5. Total 19098

Resurrection of Working Textile Mill 63 4. Fortheowner 6300

7.5 Revenue Report

Table 11 - Total Number of Visitors Sr. No Category No.ofpeople

1.

ThePopulationofDadar aspercensus2011data 6,00,000

2. Thusroughlythefamiliesstaying (totalno./5) 1,20,000

Onanaverageif 50%ofthispopulationvisitsthecomplexinamonth (Consideringonepersonfromperfamily)

3. Thenumberofpeoplevisiting 60,000

4. Thepeopleoutsidetheneighbourhood 10,000

5. Thetotalfootfallexpectedinonemonth 70,000

Table 12 - Total Amount of the Revenue Sr. No. Onanaverageifoneperson willspendRs.500/Amount

1. TheTotalRevenuegenerated 80,000X500 3,50,000/-

2. TheRevenuethatwillbegenerated fromtherentalspacesinthecomplex 1,50,00,000/-

3. TotalAmount 5,00,00,000/Assuming50%oftherevenueformaintenance,staffandindividualprofits

4. TheRevenueremaining 2,50,00,000/-

5. ThelossofTataMillpermonth 2,00,00,000/

6. TheAmountleftasprofit 50,00,000/-

Conclusion:Thusthisprojectwillbeviabletosustainthemillsfor coming yearsandwillearnatokenofprofitaswell.

Gauri Mukund Kuvar

College of Architecture

Resurrection of Working Textile Mill 64
Aditya

Resurrection

7.6 Design Intent

The aim of planning an extension to the working mill is primarily to generate revenue in favour of NTC and overcome the deficit. This system will develop in such a way that the Mills can sustain on their own for next generations to come.NotonlythemaintenanceoftheBuiltHeritagewillbedonebut;alsothe overallbackgroundoftheTextileswillbeperdured.

Thedesignwillincorporateeverythingthathasarelationwiththetextilesand potentialofhavingarelationwiththecaseofworkingtextilemills.Thedesign

will address a place where not only industrial history but the overall background of the city will be explored. This will be a case challenging the previouslydoneredevelopmentsofmilllandswherethecitysharewashardly ever given back. This ‘in-between’ space of City-Today and City-Then; will haveanessenceofthepastandaprospectforthefuture.

Thedesignapproachisverycrucialsincethereareanumberoflimitationsdue

to the already existing heritage. For instance- the skyline of the heritage structure should not be disturbed by the massing of the proposal; also the selection of the style of architecture that will be incorporated in the design so thatitdoesnotoverpowertheheritagebutatthesametimecreatesanidentity on its own.The design mustlettheuser explore thephasesoftheevolution of Mumbai.Aplacewherepastlayersofthecitywillbeunfolded..

of Working Textile Mill 65

Resurrection

8 Summery and Conclusion

Theoverallprocess ofthe thesis dealt with the understanding an entity which has been witnessing the city since its birth. The entity here is the Textile Mills in the city. The life span of these mills is a crucial journey and important to studyinorderto understandthe current developingpatterninthecityandits impact;bothontheheritageleftbackandonthecityinthepresentscenario. It is understood that this entity is in need of a foreign support to sustain. A systematic approach that will cater to these needs developed on the basis of categorising internal and external agents involved with the situation. Further understood by the behavioural patterns and the requisites that will make Workingmillsrunandsustain.Asolutionisnowplannedwhichanswersthese requisites and also improvises the current condition of the mills. Addressing this issue is vital because the city, Mumbai has hardly had any places that cherishitsownexistenceandcelebratetheHistory.Certainplacesmaybethere butthisoneisnotamerehistory.Thisfortunatelytalkstous..becauseitisstill alive...

of Working Textile Mill 66

9 Bibliography

Mumbai Mirror. (2011, March 21). Retrieved from www.mumbaimirror.indiatimes.com: https://mumbaimirror.indiatimes.com/mumbai/coverstory/mumbai/cover-story/how-we-lost-theplot/amp_articleshow/16111445.cms

Important Inida. (2015, Dec 8). Retrieved from www.importantindia.com: https://www.importantindia.com/21510/factors-responsible-for-thegrowth-of-cotton-textiles-industries-in-mumbai/

National Park Service. (2015, February 26). Retrieved from www.nps.gov: https://www.nps.gov/lowe/learn/photosmultimedia/decline.htm

Times of Inida. (2017, October 01). Retrieved from timesofindia.com: http://epaperbeta.timesofindia.com/index.aspx?EID=31804&dt=2017100 1

D'Monte,D.(2002). RippingtheFabric:TheDeclineofMumbaianditsMills. OUP India.

D'Monte, D. (December 2006). MILLS FOR SALE, The Way Ahead. Mumbai: MargPublications.

Ghoge, K. (2017, July 11). Hindustan Times. Retrieved from http://www.hindustantimes.com: http://www.hindustantimes.com/mumbai-news/maharashtra-govtmoves-to-use-more-of-mumbai-s-mill-land-for-affordablehousing/story-0XqnOyZ3rv5yYyW5VOGKAJ.html

Resurrection of Working Textile Mill 67

Heat,A.C.(June2011). UrbanIdentities:InfluencesonSocio-EnvironmentalValues andSpatialInter-Relations. Nottingham:DepartmentofArchitectureand BuiltEnvironment,UniversityofNottingham.

Jangid, N. (2016, July 28). JUICY SLICE - INTERESTING READS. Retrieved from www.pineappleconsulting.biz: http://www.pineappleconsulting.biz/the-story-of-mumbai-and-itsmills/

Jog, S. (2010, January 18). smartinvestor.in. Retrieved from http://smartinvestor.business-standard.com: http://smartinvestor.business-standard.com/market/Compnews-17581Compnewsdet.htm#.WgV_5WiCzIU

Kamath, N. (2017, July 14). Hindustan Times. Retrieved from www.hindustantimes.com: http://www.hindustantimes.com/bhopal/fadnavis-government-smove-to-amend-dcr-likely-to-generate-130-acres-of-mill-land-forpublic-use/story-lezCpwxO1RHbuomqMCNSLN.html

Kiran. (2015, December 08). Important India. Retrieved from www.importantindia.com: https://www.importantindia.com/21510/factors-responsible-for-thegrowth-of-cotton-textiles-industries-in-mumbai/

(MARCH 2009 ). NATIONAL POLICY ON SOUTH AFRICAN LIVING HERITAGE. DEPARTMENTOFARTSANDCULTURE. MASSMoCA.(n.d.).Retrievedfromhttp://massmoca.org.

Naik, Y. (2017, Jul 11). Mumbai Mirror. Retrieved from https://mumbaimirror.indiatimes.com/mumbai/other/state-govt-tobring-back-old-rule-for-mill-land-use/articleshow/59537569.cms

Resurrection of Working Textile Mill 68

Resurrection

Nallathiga, R. (Jauary-March 2011). Redevelopment of Industrial Land in Urban Areas: A Case Study of Textile Mill Land in Mumbai. Institute of Town Planners,India.

Nimbaikar, S. (2016, November 12). Culture Trip. Retrieved from theculturetrip.com: https://theculturetrip.com/asia/india/articles/abrief-history-of-mumbais-iconic-textile-mills/

Oktay, D. (May 29 - June 3, 2005). How Can Urban Context Maintain Urban Identity and Sustainability?: Evaluations of Taormina (Sicily) and Kyrenia (NorthCyprus). Sweden:EasternMediterranean University.

Said, I. (2012, Dec 12). Retrieved from http://fab.utm.my/ismail/files/2015/02/Urban-Morphology-Identity-ofPlace-and-Place.pdf

Shalit,D.A.(2011). TheSpiritofCities,WhytheIdentityofaCityMattersinaGlobal Age. UnitedStatesofAmerica:PrincetonUniversityPress.

Shanu. (2016, July 05). PropTiger. Retrieved from www.proptiger.com: https://www.proptiger.com/guide/post/why-redeveloping-mumbaismill-lands-is-important

Venugopal, V. (2014, May 20). Architecture Ventures. Retrieved from http://collegeworkventures.blogspot.in: http://collegeworkventures.blogspot.in/2014/05/thesis.html

of Working Textile Mill 69

10 Annexures

TheLiving Heritage

The “living heritage” means the practices, representations, expression, knowledge, skills – as well as the instruments, objects, artefacts and cultural spaces associated therewith – that communities, groups and, in some cases, individualsrecognizeaspartoftheirculturalheritage.Thisintangiblecultural heritage,transmittedfromgenerationto generation,isconstantlyrecreatedby communities and groups in response to their environment, their interaction with nature and their history, and provides them with a sense of identity and continuity.

“Living heritage” refers to intangible cultural heritage as defined above, with more emphasis on dynamism of culture and association of this heritage with both cultural continuity and social meaning. The term “living heritage” thus serves to emphasise the continuity of heritage that was actively discouraged during colonialism. It places emphasis on both continuity of what was suppressedandtheformulationofanewidentity.Livingheritagemustnotbe

seen as merely safeguarding the past, but it must be seen as safeguarding the logic of continuity of what all communities or social groups regard as their valuable heritage, shared. (National Policy on South African Living Heritage, MARCH2009)

Resurrection:Origin-

LATELATIN-Resurgere(riseagain)

LATELATIN-Resurrectio

OLDFRENCH+ENGLISH–Resurgent MIDDLE ENGLISH –Resurrection(riseagain) theactionor actofrestoringsomethingtolife.

Resurrection of Working Textile Mill 70
Resurrection of Working Textile Mill 71
Resurrection of Working Textile Mill 72

Resurrection

of Working Textile Mill 73

Resurrection

of Working Textile Mill 74

Resurrection

of Working Textile Mill 75

Resurrection

of Working Textile Mill 76
Resurrection of Working Textile Mill 77
Resurrection of Working Textile Mill 78
Resurrection of Working Textile Mill 79
Resurrection of Working Textile Mill 80
Resurrection of Working Textile Mill 81
Resurrection of Working Textile Mill 82
Resurrection of Working Textile Mill 83
Resurrection of Working Textile Mill 84
Resurrection of Working Textile Mill 85

Resurrection

of Working Textile Mill 86
Resurrection of Working Textile Mill 87

Resurrection

of Working Textile Mill 88

Resurrection

of Working Textile Mill 89

Resurrection

of Working Textile Mill 90
Resurrection of Working Textile Mill 91

Turn static files into dynamic content formats.

Create a flipbook
Issuu converts static files into: digital portfolios, online yearbooks, online catalogs, digital photo albums and more. Sign up and create your flipbook.