BA/MA Portfolio

Page 1


KAITLYN DOYLE PORTOLIO

MA INTERIOR ARCHITECTURE + DESIGN

MARYMOUNT UNIVERSITY 2024

KAITLYN DOYLE

kaitlynndoyle

(901) 900 - 8834

ARLINGTON, VA

kndoyle24@gmail.com

kndesign.cargo.site

EDUCATION

Marymount University

Bachelor of Arts in Interior Design

Student Athlete, Volleyball

May 2023 / Arlington, VA

Cumulative GPA 3.89, Summa Cum Laude

Marymount University

Master of Arts in Interior Architecture + Design

Student Athlete, Volleyball

May 2024 / Arlington, VA

RECOGNITION

Television Guest -Aging Matters

Appeared on Episode 37: Healthy Home Design to discuss creating optimal home interiors to promote longevity for older adult residents.

EXPERIENCE

Graduate Research Assistant (Summer 2023 - May 2024)

Working alongside Professor Moira Denson in her research project, “Optimal Interior Materials for the Aging Adult.” Designing ADU’s with an emphasis on enhancing the senses to assist the aging adult.

LDD Blueline (May 2023 - August 2023)

Design Intern

Assisted with Architectural drawings of elevations, sections, renderings, construction documents, floor and finish plans using computer aided software in all phases. Aided in final design decisions. Attended design proposals with clients and Lead Designer.

Manlove and Company Interiors (January 2023 - Present)

Design Intern

Supported design team in any way needed to achieve project goals that included researching and sourcing items, prepping accessories and inventory for installations, logging and tracking inventory and organizing the resource library.

SKILLS

Autodesk Revit

Adobe Suite Photoshop - Illustrator - InDesign

3D Software SketchUp - Enscape

Microsoft Word - Excel - Powerpoint

SELECTED WORKS CONTENTS

1

THE SHELL

ADAPTIVE REUSE STUDENT HOUSING

2

SPORTS FACILITY

YOUNG ADULT

3

VIGILANTE COFFEE

SUSTAINABLE POP-UP HOSPITALITY

4

GDB x TER

CO - WORKING OFFICE WORKPLACE

THE SHELL

Thesis Project | 18 weeks | Individual

Fall 23, Spring 24 | University Housing

PROJECT BRIEF

Universities are constantly building new residences and looking for ways to draw in more students. These spaces are often high-amenity, luxury apartments for upper class-men or renovated dormitories that house freshmen students, neither of which address transfer students. In the United States, 1/3 of all college students transfer at least once during their academic pursuit presenting a student body not considered. This design project presents an opportunity to work with the already built environment to revitalize an architectural typology, giving it a second chance just as the transfer students are.

Concept: PROTECTION & CONNECTION

The concept of protection & connection is taken from the function and pattern of the scutes, the external bony or horny plates or large scales, on the terrapin shell. The design offers spaces for protection and connection, respectively and integrated, organically creating a community for transfer students.

All amenities are located in the clubhouse, called The Bale, intentionally named after a group of turtles. Having all the amenity spaces located in this one central building draws residents together out of their private spaces and allows for natural interaction to occur.

Courtyard
Elevation - The Bale Study Cubbies

Working to ensure and maximize the small square footage available in each unit, the custom built - in offers flexibility in each space. One side serves as a desk, counter, or kitchen island with a movable frame that fits snug into the wall when not in use. In the counter top, a cutting board sits flush. A small bench or occasional seating or step stool slides underneath the top drawer. Each drawer opens with push mechanics and varies in size to optimize use. On the other side, opportunity for open shelving surrounds a hidden space for a TV covered by sliding doors. The piece successfully enhances functionality of the space while adding beauty and dimension to an otherwise average wall.

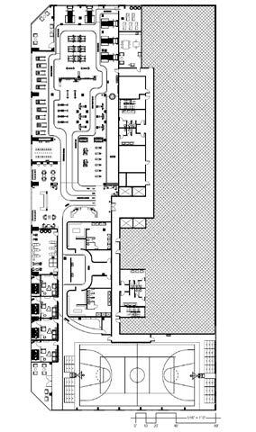
ADVANTAGE FIELDHOUSE

Capstone Project | 18 weeks | Individual

Summer/Fall 2022 | Sports Facility

Green is an emotionally calming color, reflective of nature, and gives a sense of harmony, refreshment and equilibrium . The color of balance and has the power to help people adjust to their environments.

Curved Line – Idea that health is not a straight line, everyone’s path to health and happiness is different

Concept: SYNERGY

Driven by Synergy, “the interaction or cooperation of two or more organizations, or other agents to produce a combined effect greater than the sum of their separate effects,” Advantage Fieldhouse is a new take on the classic sports facility providing access to both mental health therapy and physical fitness training. Giving young people the ability and convenience of exercising both, they have the advantage when facing the challenges of everyday life. Energizing colors fill the walls while relaxing textures occupy the seats of counseling rooms. Ceiling effects offer acoustical comfort and dimension. Physical areas are motivating and energizing while the physiological areas offer comfort and support. Synergy is found in all aspects bettering those who use the space.

INSPIRATION

Houston Font Family is a modern modular sans serif family inspired by American sports graphics. Often used in sports branding, logos, etc.
Blue, the sport associated team, radiates Increases use of blue

the color of the sky, a clear ocean, in associated with a sincere and honest radiates strength and stability. Increases productivity, reason behind the blue running tracks.

SITE LOCATION

ZONING DIAGRAMS

FRONT DESK

The front desk is highlighted by a drop ceiling that reflects the desk itself as the wall behind the highlights the history of the sports in the D.C. area and of Uline Arena itself. Seeing the history provides a sense of connectedness to the space. The drop ceiling along with the wall help to orient the users. Wayfinding can be seen on the floor with the names of close spaces and resemble the lines of a track. The track lines cover the entirety of Advantage floors.

MATERIALS

WAYFINDING

1. Sealed Poured Concrete
2. US Fitness Flooring, Monster
3. Pantone Ultra Violet, Low VOC
Wayfinding First resemble except parti Another in mentally graphics also both handle.

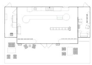
JUICE BAR AND LOUNGE

Instead of sports imagery, a motivational quote fills the wall while purple acts as the joining color between the mental enhancement green and physically motivating blue. Three semiprivate cubbies provide audial comfort to those who desire more privacy. The lounge and juice bar are open to each other as well as some of the weight training area and front desk. This close proximity between the four spaces encourages interaction.

Wayfinding takes on a few different forms throughout Advantage fieldhouse. First seen upon entry are the names of areas or spaces of proximity. These resemble the lines of a running track and cover the entirety of the space except for in the therapy rooms. Not only does this take on the form of the parti but encourages movement while orienting the users.

Another form of wayfinding is the use of blue in physical spaces and green mentally enriching areas. The locker rooms shown below depict simple graphics of man and woman forms to indicate the corresponding space. It has a blending of the colors seen most frequently in the space. In between both forms is an oversized kettle bell with a roll of toilet paper around the handle. After all, the space is for teenagers, and this adds a playful element.

FURNITURE

Furniture chosen is all movable for complete flexibility and customization encouraging users to occupy the space as they wish. Materials are sustainable and easily cleanable for an area of high traffic.

WEIGHT TRAINING

Blue walls serve as a motivating color in physical training. The perforated drop ceiling running over the center mirrors the floor track lines and diffuses light as well as absorbs noise. The mirrors reflect the natural light from curtain wall on the west side. Sport flooring helps to reduce discomfort and absorb shock ensure optimal performance.

Larger than life local pro athletes line the walls inspiring the youth who walk the hall. Wayfinding moves up to the walls outside the locker room with a graphic featuring green and blue joining together. Green felt panels create a wave-like motion that varies depending on angle of view and a cue that you have entered an area of mental enhancement.

MATERIALS

1. Armstrong Ceilings, Open Cell

2. Carolina OFS, Tango Leather

3. Turf Lime Felt, Torrent Wall Tile

4. Interface Grooved Carpet Tile

5. Pantone Turf Green, Low VOC

SOUTH WEST ELEVATION

The location of the therapy rooms provides a sense of connectedness as they must be walked past to access the court. Each therapy room has a lot of flexibility from the movable seating to outdoor terrace access overlooking the NoMa neighborhood of D.C. Two feature walls and the ceiling have dimmable lights to adjust for comfort and likeness, as well as giving dimension and some symmetry. The floor changes from hard to soft carpeting for a warm welcome. Neutral colors and multiple textures help to engage all the senses and provide grounding.

MENTAL THERAPY ROOM

MULTI-SPORT COURT

The court space can easily be converted from basketball to volleyball with movable bleachers and basketball goals as well as access to storage. This promotes inclusion as the court can cater to both sports. Turf acoustic panels continue into some of the gym to help absorb sound along with the half basketballs protruding from the wall. Both natural and artificial light illuminate the space. An oversized ceiling fan helps to maintain thermal comfort and air quality. Being able to see the curved roof and similar curve on the mullions in the windows to the fourth floor, is a continuation of the parti and further demonstrates movement and continuity. SECTION

VIEW FROM 4TH FLOOR - OFFICE SPACE

The tenants above can step away from their work, take a call or have an informal meeting and watch the practices or games taking place below. This ignites energy, encourages youth and is a sense of connection for the community. Expanding into the fourth floor provides proper ceiling height for athlete comfort during competition and training. The interior wall’s windows are symmetrical to the exterior enhancing the original architecture and design.

This section view provides how the parti is incorporated into not only the interior design but the architecture as well. The movement of the arched roof along with the curved top of the curtain wall windows serve as both structural and design elements. It is a continuous flow from the lines on the floor to the panels on wall and concluding on the ceiling.

VIGILANTE COFFEE CO

Sustainable Pop - Up | 10 weeks | Individual Summer 2022 | Shipping Containers

Concept: STREET CULTURE

Street culture inspires a cafe experience made for all that use it. As if walking down the street, multiple textures, and vibrant colors guide the user. Sustainable elements can be found in packaging, produce grown on site, and materiality. Together, this creates an inviting and feel good atmosphere.

The pop-up is composed of three - 41 foot shipping containers connected on the long end and two - 20 foot shipping containers connected on the east and west.

Site: MADISON ST. & N FAIRFAX ST. ALEXANDRIA, VA

INSPIRATION

BRAND

A Hyattsville, MD based coffee shop with the mission of “Uplifting others, one cup of coffee at a time & pursue happiness over the almighty dollar.”

FLOOR PLAN - NTS

FURNITURE PLAN - NTS

Concrete Flooring

Plywood Flooring

MATERIALS

FRONT ENTRANCE

The exterior of the cafe was left in its’ natural state with metal exterior furniture and color palette are reflective of the interior and suggesting an inside out feel. All fresh vegetables and fruits cafe are seen by all who enter in the gardens lining the crosswalk. viewing this, customers can feel connected with their community.

Visible from the front entry is exterior covers the ceiling and flooring covers the entirety saving

siding. The welcoming used in the crosswalk. By community.

MAIN ENTRY

is the beautiful scenery of the back patio. Perforated metal from the and lines the pick up area of the cafe counter. The natural bamboo saving on materials and highlighting sustainability.

Ledalite by Signify Eyeline Suspended Light
Firerock Steel W420 Historical Fixed Window

SECOND ENTRY

The secondary entrance opens into a more private, quiet area for studying or catching up on work. Three of the four walls are covered with large windows both for lighting and a chance to gaze to the outside. A custom concrete bar allows for high top seating and multiple other lounging options providing flexibility and fun.

WEST ELEVATION - GRAFFITI WALL
VIEW BEHIND THE COUNTER

MATERIALS

Materiality plays an important role in the sustainability aspect of this design. The marine grade bamboo flooring, orange quartz counter top and cement block base for the cafe counter top. All materials have natural textures and colors reflective of the outside bringing it in.

GUIDE DOGS FOR THE BLIND

+ THE ENGINE

IS RED

Collaborative Office | 9 weeks | Individual

Fall 2021 | Non Profit + Ad Agency

Concept: COLLABORATION

The Engine is Red Advertising Agency and Guide Dogs for the Blind both strive to make the lives of their clients easier and provide them with the best service. This office space showcases a fresh lively workspace allowing for and promoting collaborative work. With the focus on collaboration and ease of work, the space utilizes all available natural light. There is a playful modern energy with fun, eclectic pieces like statement wallpaper throughout. The office for Guide Dogs for the Blind and The Engine is Red combine comfort and function to provide a space of desire to work in.

Site: 1000 N GLEBE RD. ARLINGTON, VA, FLOOR 7 & 8

Guide Dogs for the Blind is one organization, with one set of values, operating in multiple locations. They are aligned around a common vision and mission and hold themselves and each other responsible for operating by the following values and behaviors. They are more than just a dogschool. Guide Dogs for the Blind uses practices to create life-changing partnerships allowing everyone to move through the world safely and confidently.

The Engine is Red began with two people in a garage planning parties, fundraisers and conferences. The company has no debt, investors or owners. They are constantly looking for new relationships with clients to make for long term. The use of technology allows them to reach clients of all kinds. No roadblocks, no fixed contracts, just deep experience with an independent spirit.

FOR THE ENGINE IS RED - 7TH FLOOR

THE ENGINE IS RED FLOOR PLAN

EXECUTIVE LOUNGE & CONFERENCE

Adding an executive lounge to the open area outside the conference rooms and nestled near the executive offices allows for informal meetings and adds to the design of collaboration.

LOBBY
MANAGER OFFICES
OPEN OFFICES

FLOOR PLAN

COLLABORATIVE STAIRCASE

A custom staircase joining the non - profit, Guide Dogs for the Blind and the advertising agency, The Engine is Red in the center of the offices. The staircase serves as more than a way to walk between the two but a spot to sit, take phone calls or gather. The vibrant blue stairs serve as a wayfinding element as they can be seen across the whole open office. The living wall and curtain wall of windows allow for an escape to the outside not so easily achieved being on the 7th and 8th floors.

BRAINSTORM/COLLABORATION SPACE

RECEPTION

CONFERENCE ROOM

LOOKING FOR MORE?

Turn static files into dynamic content formats.

Create a flipbook
Issuu converts static files into: digital portfolios, online yearbooks, online catalogs, digital photo albums and more. Sign up and create your flipbook.
BA/MA Portfolio by Kaitlyn Doyle - Issuu