Julia Peterson Architecture Portfolio

Page 47

JULIA PETERSON PORTFOLIO

2

JULIA PETERSON

CONTACT

Phone: 913-231-0518

Email: 11julia.peterson@gmail.com

EDUCATION

University of Kansas

Master of Architecture

Certificate in Historic Preservation

Expected May 2023

SKILLS

Sketchup

Revit

Autocad

Rhino

Photoshop

EXPERIENCE

BRR Architecture

Architectural Intern

Illustrator InDesign V-Ray Lumion Enscape

AWARDS/ INVOLVEMENT

AIAS 2019

Third Year Portfolio Finalist 2020

KU/M.Arch Mentor 2021

Fourth Year Portfolio Finalist 2021

Honor Roll Fall 2019 & Spring 2022

Study Abroad in Asia Winter Break

2022-23

Overland Park, KS

May 2022 - Current

- coordinated hospitality projects with clients and consultants

- created document sets for hospitality and mixed-use projects

- generated 3d models for developing prototypes

- worked closely with QC and code specialists during documentation

PKP Residential Design

Architectural Intern

- created custom home plans for local clients

Kansas City, KS

May 2021 - May 2022

- produced renderings and graphics for client meetings

- conducted site visits for addition and remodel builds

- estimated bids for single-family home projects

Lansing Lumber

- in charge of front of house inventory

May 2019 - May 2021

Lansing, KS Sales Associate

- coordinated construction orders for local contractors and builders

- recommended products for small home projects

- ordered specialty products from national suppliers

The Oread Hotel

- informed guests about menu specials

- took food and drink orders

- recommended food and drink pairings

October 2017 - May 2019

Lawrence, KS Server

3
4
The Flex 6-17 Crossroads Music Hub 18-33 KCK Community Center 34-45 TABLE OF The Link 45-63 CONTENTS 5

THE FLEX

Crossroads Arts District, Kansas City, MO

Flexible music + sports venue for Midsized events | 200,000 sqft Professor Eddy Tavio

Partnered with Donovan Brook

6 Julia
The Flex
Peterson

Welcome to The Flex, the newest event venue in Crossroads, Kansas City! This mid-size, flexible space is perfect for a variety of events, from concerts to sporting events and everything in between. Located in the heart of Crossroads, the venue is easily accessible and surrounded by some of the city’s best restaurants, bars, and entertainment options. Lush trees surround the space, creating a calming atmosphere that is perfect for outdoor events and gatherings. The green space is also designed with accessibility in mind, featuring a ramp that leads up to a stunning rooftop terrace. The terrace offers breathtaking views of the surrounding area and is the perfect spot for guests to relax and enjoy the outdoors. The Flex also offers a corner club adjacent

to other nightlife venues that can host djs and parties in addition to any main events happening. Upon entering, visitors are greeted with a spacious and inviting foyer. The high ceilings and open floor plan create a sense of grandeur and openness, while the minimalist decor allows for easy customization to fit any event’s aesthetic. Inside, you’ll find a spacious, modern space that can be customized to meet any specific need. With moveable walls and a multitude of seating arrangements, our venue is both innovative and functional. The new mid-size, flexible event venue in Crossroads, Kansas City offers a perfect blend of functionality, versatility, and architectural beauty. Whether it’s a small gathering or a larger event, The Flex has the flexibility to accommodate your needs.

7 The Flex

CONCEPT

The overall goal of The Flex is to optimize building programming and community engagement by catering to a wider audience and accommodating more events for the public. This is made possible through designing moveable seating bowl mezzanines on hanging track systems and retractable seating configurations. The venue can host up to 5,000 people for the larger events, such as concerts and sporting events and will host a multitude of smaller events, like galleries, weddings, and other banquet events. The graphics on the right show 9 seating arrangements

for possible events that can be hosted. The stage can be placed in two locations, one that provides a farther viewing span for larger events and another that gives a closer view to the stage for more intimate events. When laying out the site, the venue space was placed closer to a less trafficked road to provide back of house entrances and to give more room for public amenities on the 3 other sides of the site. A large outdoor space is provided to bring the public into the site and to lead them up the ramp to the outdoor terrace that gives views to the Kansas City skyline.

Interior render of a concert 1. Place flexible event space on site. Moveable walls Retractable seating 2. Activate street level with public amenities. 3. Connect to rooftop terrace with views of the city.
8 Julia Peterson The Flex
Concert seating Orchestra seating Theater seating Basketball seating Volleyball seating UFC seating Banquet seating Experimental media seating Gallery Interior render of a basketball game
9 The Flex
Conceptual image of gallery
10 Julia Peterson The Flex

VIEWS OF THE DOWNTOWN SKYLINE

A large ramp that can be converted into an outdoor event space connects the green space to the rooftop terrace. The terrace offers breathtaking views of the downtown skyline and is the perfect spot for guests to relax and enjoy the outdoors. The rooftop terrace can also be used for events, such as cocktail hours and receptions, adding an extra layer of versatility to the venue.

INTERACTION WITH NIGHTLIFE

The corner nightclub is located at the first corner of Crossroads, surrounded by other popular restaurants and bars. Inside, guests will find a sleek and modern space with a spacious dance floor, premium sound system, and dj stages. The nightclub’s prime location means that patrons can easily hop from one bar or restaurant to the next, enjoying the vibrant energy of the neighborhood.

N
11 The Flex

FLOOR PLAN - EVENT SPACE

SECOND FLOOR PLAN - NIGHTCLUB

EVENT SPACE RESTROOMS RESTROOMS MECHANICAL LOADING CREW RESTROOMS CREW LOUNGE GARAGE BACKSTAGE NIGHTCLUB RESTROOMS RESTROOMS MECHANICAL STORAGE DRESSING ROOM ARTIST SUITE ARTIST SUITE DRSNG. RMS KITCHEN STORAGE KITCHEN DRESSING ROOM DRESSING ROOM DRESSING ROOM BACKSTAGE/ADDITIONAL SEATING SEATING OUTDOOR SEATING NIGHTCLUB SEATING SEATING
4. Nightclub 5.
6. Garage 7.
8.
9.
10.
FIRST
1. Lobby 2. Mechanical 3. Event Space
Backstage
Loading
Crew Lounge
Offices
Restrooms
7. Nightclub 8.
9.
12 Julia Peterson The Flex
1. Seating 2. Backstage 3. Kitchen 4. Dressing Room 5. Artist Suite 6. Storage
Outdoor Seating
Restrooms

THIRD FLOOR PLAN - TERRACE

FOURTH FLOOR PLAN - SEATING

RESTROOMS SEATING SEATING SEATING BACKSTAGE/ADDITIONAL SEATING NIGHTCLUB OUTDOOR SEATING RESTROOMS SEATING SEATING SEATING BACKSTAGE/ADDITIONAL SEATING
1. Seating 2. Backstage 3. Nightclub 4. Outdoor Seating 5. Restrooms
N 13 The Flex
1. Seating 2. Backstage 3. Restrooms

DESIGN

The Flex boasts a striking architectural design that combines a reinforced concrete panel facade with a sturdy steel structure. The building’s exterior features a combination of smooth and textured concrete panels, creating a dynamic visual effect that is both modern and industrial, fitting into the Crossroads well. The use of concrete panels also serves a practical purpose, providing additional durability and strength to the building’s facade. The use of steel adds to the industrial and modern feel of the interior spaces as well. The steel structure is left exposed, adding to the industrial aesthetic of the space and showcasing the unique mechanics that provide for the moveable mezzanines. The reinforced concrete panel facade

and steel structure provide not only an impressive visual impact, but also serve as key components of the building’s sustainability. The materials used in the construction of the building are environmentally friendly, and the reinforced concrete panels provide excellent insulation and energy efficiency. In addition to its striking architectural design, the event space building is also designed with accessibility in mind. The building includes elevators for easy access to the mezzanine levels, with egress stair towers on all four corners of the seating bowl. Overall, the combination of reinforced concrete panels and steel structure create a statement in the Crossroads arts district with this new, innovative event space.

Egress diagram HVAC diagram Program Diagram Structure diagram 14 Julia Peterson The Flex
East Elevation South Elevation West Elevation North Elevation 15 The Flex
16 Julia Peterson The Flex
17 The Flex

CROSSROADS MUSIC HUB

Crossroads Arts District, Kansas City, MO

Mixed-Use Nightlife District | 500,000 sqft

Professor Eddy Tavio
18 Julia Peterson Crossroads Music Hub
Partnered with Donovan Brook

Located in the heart of Crossroads, Kansas City, this brand new mixed-use apartment building and hotel is the perfect place to call home for those looking to be near the city’s vibrant nightlife and concert venues. With its modern design and luxurious amenities, this building offers residents the best of urban living with full access to the adjacent concert venue.As you approach the building, you are greeted by a sleek and bold façade, with large windows that offer stunning views of the city skyline. The lobby is equally impressive, with its high ceilings and stylish furnishings. The apartments and hotel units are spacious and bright, with open-plan living areas and floor-to-ceiling windows that flood

the space with natural light. Residents and hotel guests can enjoy a wide range of amenities. The rooftop terrace offers breathtaking views of the city and the guitar-shaped resort style pool is the perfect place to unwind with a drink after a long day. The clubrooms offer terrace views of the concert venue that can be rented out by the residents or guests. In conclusion, this brand new building in the Crossroads offers residents and guests the perfect blend of luxury and fun. With its modern design, spacious apartments, and unbeatable location, it’s the perfect place to call home for those looking to be near the city’s vibrant nightlife and concert venues.

19 Crossroads Music Hub

CONCEPT

The architectural concept for this mixed-use urban building is centered around angled towers and courtyard spaces and ground-level nightlife, offering residents unparalleled views of the city and luxurious amenities so they never have to leave their apartment. The design creates a unique and lively living experience, setting it apart from traditional apartment buildings. The building features a series of angled towers that are positioned to maximize views and allow for natural light to flow into each unit, giving unique views on every side. The towers are also designed to create a sense of dynamism and movement, giving the building a distinctive appearance on the city skyline. The concert facing side is made up of hotel units, giving visitors and tourists of the city an experience that

you can’t get anywhere else. The colorful facade takes inspiration from the sunset over a summer concert, and gives off a fun, eclectic vibe, matching what Crossroads arts district stands for. 12 different panel designs are combined to create the unique, colorful, metal panel facade. The interior spaces are designed to reflect the building’s vibrant exterior. The street-level bar spaces use color to portray different genres of music as you can see in the renders above. Overall, this city apartment building with angled towers and courtyard spaces is designed to provide residents with a unique and fun living experience. With its panoramic views, luxurious amenities, and unique design, this building is truly a one-of-a-kind living experience.

Interior render of pop music bar Interior render of rap music bar East Elevation 20 Julia Peterson Crossroads Music Hub 1. Add street density with nightlife on both sides of the street. 3. Angle towers for sunlighting and views towards existing concert venue and downtown. 2. Extrude residential towers at surrounding city scale. 4. Final Composite Interior render of a rock music bar
21 Crossroads Music
Interior render of country music bar
Hub

18TH STREET CORRIDOR MASTER PLAN

Crossroads Music Hub is part of the proposed 18th Street Corridor Master Plan in Kansas City, MO. This Master Plan proposal aims to connect two arts driven districts in Kansas City: Crossroads Arts District and 18th and Vine Jazz District. Crossroads Arts District is known for First Fridays, where thousands of locals and visitors fill the district on the first Friday of the month to visit art organizations, galleries, studios, and other businesses that have opened their doors to showcase their best work for this amazing event. The 18th and Vine Jazz District is known for jazz clubs, cultural museums, and barbecue restaurants that attract tourists from all over the world. Along this 1.3 mile long stretch between the two areas are currently tons of vacant lots, underutilized spaces, and lots room for development. We propose infilling the strip to connect the two districts so First Fridays can be every Friday.

Total SQFT

MARKET
BATHHOUSE GALLERY
CROSSROADS MUSIC HUB KAUFFMAN CENTER DOWNTOWN
Young Transitional Cross Elderly 60% 8% 28.5% 3.5% PROPOSED HOUSING
22 Julia Peterson
Music
1,033,950
Crossroads
Hub

Young Professional

Elderly

Cross Generational Families

Transitional

HEALTHCARE DAYCARE MUSIC STUDIO SOBER BAR FOOD HALL COWORK SPACE
23 Crossroads Music Hub

The 18th Street Master plan proposal is a 1.3 mile long pedestrian only corridor, introducing the first EastWest streetcar to Kansas City.

24 Julia Peterson Crossroads Music Hub E. STREETCAR AND STREETCAR STOP D. STREETCAR CROSSING C. CROSSROADS MUSIC HUB B. BIKE LANE AND PEDESTRIAN PATH
A A B B C C D D E E 25
A. BIOSWALES
Crossroads Music Hub

AERIAL VIEW Concert at Grinders

26
Julia Peterson Crossroads Music Hub
27
Crossroads Music Hub

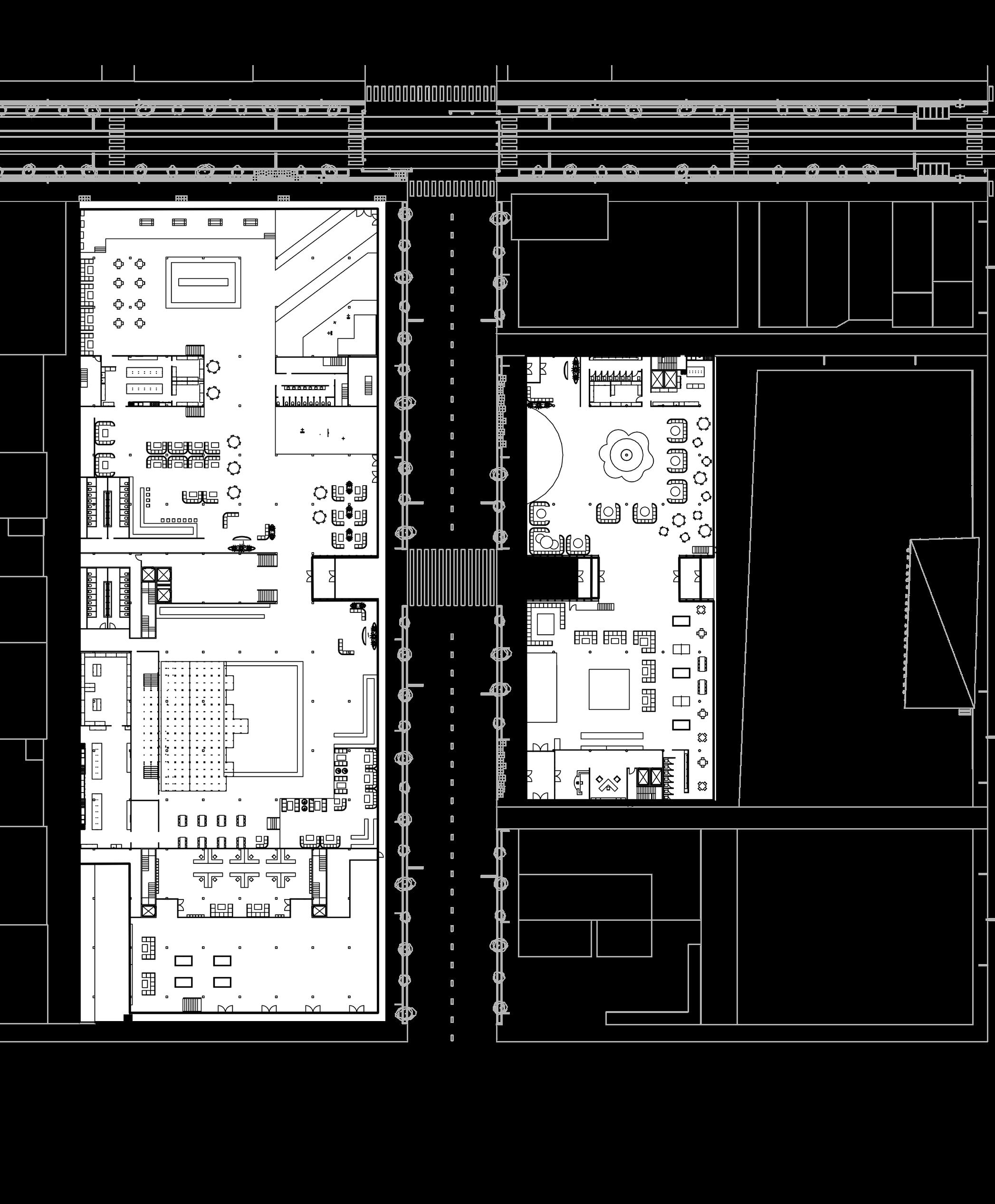
LEVEL 2 - MIXED-USE

LEVEL

MIXED-USE Country Bar Stage VIP Lounge Bar Dance Floor Game Area Outdoor Seating Pop Bar Kitchen Stage Bar Lounge Seating Outdoor Seating Storage Rock Bar Stage Bar Seating Kitchen Storage Jazz Bar Stage Bar Lounge Seating Seating Lobby Offices Restrooms Rap Bar Stage Dance Floor VIP Seating Bar
1 -
Concert Viewing Deck Country Bar Stage Lounge Seating Outdoor Seating Pop Bar Lounge Seating Outdoor Seating Rock Bar VIP Seating Lounge Seating Outdoor Seating Jazz Bar Bar Lounge Seating Rap Bar Bar Outdoor Seating Lounge Seating Restrooms 28 Julia Peterson
Music Hub
Crossroads

LEVEL 3 -

AMENITIES Tower Lobbies Computer Room Movie Theater Conference Room Rec. Room Gym Pool Deck Pool Pool Bar Outdoor Kitchen Outdoor Seating Bar Game Room Private Viewing Deck Restrooms 1 Bedroom Units 2 Bedroom Units LEVEL 5 - RESIDENTIAL 1 Bedroom Units 2 Bedroom Units 29 Crossroads Music Hub

FIRST FLOOR PLAN - MIXED-USE

N
1. Stage 2. VIP Lounge 3. Bar 4. Dance Floor 5. Game Area 6. Outdoor Seating 7. Storage
1 1 1 1 1 30 Julia Peterson Crossroads Music Hub
8. Lobby 9. Offices 10. Restrooms
N
FIFTH FLOOR PLAN - RESIDENTIAL
1. 1 Bedroom Units 2. 2 Bedroom Units
1/2 3 31 Crossroads Music Hub
3. Short Term Rental Spaces
First
32
Crossroads Music Hub
STREET VIEW
Fridays
Julia Peterson
33
Crossroads Music Hub

KCK COMMUNITY CENTER

Cultural Community Center | 25,000 sq ft

Downtown | Kansas City, KS

Professor Thom Allen

Spring 2020

KCK
34 Julia Peterson
Community Center
35 KCK Community Center
36 Julia
Peterson KCK Community Center

Preserve views of murals

Recess outdoor spaces and create pathways

Pull mural to adjacent street
37 KCK Community Center

Located in downtown Kansas City, KS on the avenue of murals, this community center aims to be the home of storytelling in KCK that allows artists of the city to create stories that contribute to the culture and history of the city. There are two murals on the site that give context into the cultural backgrounds of the area. The first mural, “Facing the Past, Looking to the Future: a Kansas Hmong Storycloth”, tells the story of the Hmong people that travelled from the United States from Vietnam after the Vietnam War creating a large population of about 1,500

people in the area. The second mural, “Kansas Printer”, shows a printer at handpress, honoring the history of the building it’s on that housed the community’s newspaper for 80 years in the heart of downtown. The design frames the main mural on the site, “Facing the Past, Looking to the Future: A Kansas Hmong Storycloth”, while peeling back and providing a view to the second mural, giving a glimpse into the past of the cultures and history of Kansas City, Kansas and becoming a place to create new stories to contribute to the community.

2 3 4 7 9 11 11 11 11 11 11 13 15 15
38 Julia Peterson KCK Community Center
1 2 6 8 9 10 14 13 2
1. Gym 2. Storage 3. Parking 4. Cafe 5. Staff Rooms 6. Daycare 7. Auditorium 8. Gallery 9. Lobby 10. Open Offices 11. Closed Offices 12. Classrooms 13. Staff Lounge 14. Conference Room
KEY 39 KCK Community Center
15. Restrooms
Lobby Gym 40 Julia Peterson KCK Community Center
LEVEL 1
1. Gym 2.
Storage LEVEL 2
3. Parking
4. Cafe
5. Staff Rooms
6.
Daycare LEVEL 3
7. Auditorium 8. Gallery
9. Lobby LEVEL 4 10. Open Offices 11. Closed Offices 12. Classrooms 13. Staff Lounge 14. Conference Room
1 2 3 4 5 5 6 6 7 8 9 9 10 10 11 12 12 13 14 13 15 15 41 KCK Community Center
15. Restrooms
N
SECOND FLOOR PLAN - RECREATIONAL 1. Parking 2. Cafe 3. Daycare 4. Gym
1 2 3 4 5 42 Julia Peterson KCK Community Center
5. Staff Rooms
N
THIRD FLOOR PLAN - ARTS 1. Auditorium 2.Gallery 3. Lobby 4. Gift Shop
1 2 3 3 4 5 43 KCK Community Center
5. Patio
EAST ELEVATION
44 Julia Peterson KCK Community Center
45 KCK Community Center
46 Julia Peterson The Link

THE LINK

Mixed-Use Residential High-Rise | 1,000,000 sq ft Berkley Riverfront, Kansas City, MO Professor Eddy Tavio | TRANSFORM.KC

In collaboration with Donovan Brook Spring 2020

47 The Link
48 Julia Peterson The Link

BERKLEY RIVERFRONT MASTER PLAN

The Link is part of the proposed Berkley Riverfront Master Plan in Kansas City, MO. The existing condition of the Berkley Riverfront Park is over 50 acres of underutilized space with some new residential developments, occasionally being used for special events, like Fourth of July Fireworks ceremonies and other outdoor events. With the amount of open acreage and its proximity to downtown and the river, this becomes a prime location to introduce a world-class destination to Kansas City that attracts tourists from all over the world. The Berkley Riverfront Master Plan proposes a complete redevelopment of the existing park area, adding unique recreational activities that can only be seen in this master plan, an education hub, a high-tech event center, a boutique hotel, and over 2 million square feet of mixed-used housing with shopping and entertainment.

EXISTING CONDITIONS N 49 The Link

Located in the freshly developed world-class destination Riverport in Kansas City, Missouri, The Link provides vertical neighborhoods with urban connection that flows throughout the site. The landing level, connecting throughout the Riverport Master Plan, placed above the parking garage, (22’ above ground-level) bridges the Columbus Park residential area and the River Market community into the Urban development of Berkley Riverfront. Encouraging pedestrian foot traffic, the landing creates a mergence of residential and city life. Obtaining this harmonious balance of the residential neighborhoods within an urban setting serves as the design basis for which we produced

our mixed-use high rise. The landing entrance enters into a densely populated courtyard providing the urban feel of the Berkeley Riverfront master plan as well as providing luscious greenery to counterbalance the industrialized feeling of an urban setting, mirroring that of residential parks. The terraces further this balance of the natural and built environment with vertical parks, allowing for a more community oriented living spaces, with extended balconies. The programming layout aims to achieve optimal function and connection of living space, work environment and commercial area. The courtyard serves as a base layer of connection in which one can access all features of the design, similar to the

50 Julia Peterson The Link

connect to columbus park residential neighborhood

extrude vertical neighborhoods

add density/ terraces

51 The Link

ground floor, as well as having internal building connections throughout each floor, embodying the concept of connectability within an urban setting. Building upon the emotional feeling of a neighborhood, the room types vary, consisting of various large family setting rooms, as well as adhering to the city necessity of independent single and double bedroom spaces.

52 Julia Peterson The Link
LEVEL 8 LEVEL 5 LEVEL 4 53 The Link
FIRST FLOOR PLAN - COMMERCIAL 1. Parking 2. Cafe 3. Restaurant 4. Office 5. Residential Lobby
3 4 54 Julia Peterson The Link
6. Shops
N 1 2 5 2 6 55 The Link
FOURTH FLOOR PLAN - RESIDENTIAL/OFFICE 1.Office 2. Amenities 3. Units 4. Gym 5. Pool Deck
1 3 1 3 56 Julia Peterson The Link
6. Pool
2 4 5 6 3 3 3 N 57 The Link
NORTH
58 Julia Peterson The Link
ELEVATION
59 The Link
60 Julia Peterson The Link
WEST ELEVATION
61 The Link
62 Julia Peterson The Link
63 The Link
11julia.peterson@gmail.com juliapeterson@ku.edu 913-231-0518 https://www.linkedin.com/in/juliaepeterson/ https://issuu.com/juliaepeterson JULIA PETERSON

Turn static files into dynamic content formats.

Create a flipbook
Issuu converts static files into: digital portfolios, online yearbooks, online catalogs, digital photo albums and more. Sign up and create your flipbook.
Julia Peterson Architecture Portfolio by Julia Peterson - Issuu