Jialu Huang | Portfolio(2020) II - Bachelor's Work Collection

Page 2

JIALU HUANG

Tel: +86 187 2110 1376

Email: jialu.huang@hotmail.com

1
2020 Portfolio
Fall
Jialu Huang

JIALU HUANG

Tel: +86 18721101376

Email: JIALU.HUANG@HOTMAIL.COM

EDUCATION

09/2018 - 07/2020

09/2015 - 07/2017

09/2013 - 06/2015

Delft University of Technology // Delft, Netherlands

MSc Architecture, Urbanism and Building Sciences - Track: Architecture

University of Liverpool // Liverpool, UK

BA (Hons) Architecture (RIBA Part 1)/ First-Class Honours

Xi’an-Jiaotong & Liverpool University // Suzhou, China

BEng Architecture (RIBA Part 1) / First-Class Honours

PROFESSIONAL EXPERIENCE

07/2019 - 08/2019

Slothwork architects // Shanghai, China

Architectural Intern

Worked on a Zhujiajiao factory renovation project, designed and tested the hanging staircase’s material, Development Phase & Construction Phase Joined a private house design on Jiaozhou Road, Shanghai. Discussed with the client and determined the design plan and constructed.

01/2015 - 03/2015

China Aviation Planning and Design Institute (Group) Co., LTD. // Beijing, China

08/2017 - 08/2018

KENGO KUMA AND ASSOCIATES // Shanghai, China

Architectural Intern

During my internships at KKAA, I participated in four projects of different scales. I worked in close collaboration with the main designers and I came up with some creative ideas within the project progress. Join with 4 projects:

-Guangzhou Pearl River Dijing B+C4 Parcel Project, Masterplan/Concept Design (Development Phase)

-Yixing Yangxian Lake Project, Concept Design/ Schematic Design/Deep Development/Interior Design

-Multifunction/Exhibition Facility in Zhouzhuang, Concept Design

-Cultural-Commercial Project in Zhujiajiao, Concept Design/Schematic Design

11/2013 - 06/2015

AWARDS

11/2014

05/2014

Intern AmyHouse // Suzhou, China

Worked for subordinate Pharmaceutical Engineering Institute. Deeply involved in the design of an office building regarding early sketch scheme and model development.

Part-time Graphic Designer

Designed a variety of graphic pattern for dresses, accessories and DIY products independently sold in AmyHouse.

National Encouragement scholarship // Top 5% Architecture (5/191)

Meritorious Winner // XJTLU 6th Round Innovation Entrepreneurship Competition

Worked as web designing and graphic designing in the start-up project Yirenty.com. Won high marks from the judges of the Competition.

07/2016 - 09/2016

Anhui Landscape Urban Design Company LTD. // Tongling, China

Architectural Intern

Practiced in the whole project of a residential estate (second stage of Longhu estate) including design planning, architectural standard drawings and the discussion sessions with clients.

2013 - 2014

ACTIVITIES

'Outstanding Student' in Painting class // XJTLU 16/05/2015

Ideasforward 24h Competition (24rd edition) // Shanghai, China

24rd edition--Humanity/The “growing wall” proposes the habitants to live inside hallowed wall for physical and psychological security

FLL (FIRST LEGO League) Robot Tournament China Final // Suzhou, China

Outstanding Volunteer

International Vertically Integrated Workshop: ‘High Mobility City’ // Suzhou, China

Completed 'High Mobility City' project and presented models, drawings, posters and movies with guest students and professors from University of Applied Sciences in Wiesbaden, Germany in 4 days.

Summer Social Practice Project// Anhui, China

Conducted Research on Young People's Attitude towards Small Dwelling-size Apartment. Took charge of the designing of research questionnaire, making of interview videos and translation of research papers.

TECHNICAL SKILLS

Autodesk

AutoCAD

Microsoft Office

Adobe Creative Suite Photoshop, Illustrator, Indesign

3D modeling & Rendering Rhino, SketchUp, Vary

2 3
08/2014
24/05/2018 03/2015 06/2014 -

Jialu Huang is graduated in MSc Architecture, Urbanism and Building Science (track Architecture) from the Delft University of Technology (TU Delft). She got a 1st class honors degree in BA Architecture from the University of Liverpool, as well as a BEng Architecture from Xi'an Jiaotong-Liverpool University.

Jialu is good at digital visualization, model making. Being industrious, reliable, and meticulous, she also has excellent organizational and teamwork skills. Ad a freshly graduated architecture student, she is seeking a position as a Trainee Architect.

Belgium Resident renovation, Den Haag, NL

Coffee house, Den Haag, NL

Specific Activity Neighboorhood Center, Delph, UK

Garden House, Liverpool, UK

Shanghai, China

-Zhujiajiao Factory Renovation

-Priviate house Renovation

Shanghai, China

-Guangzhou Pearl River Dijing B+C4 Parcel Project

-Yixing Yangxian Lake Project

-Cultural-Commercial Project in Zhujiajiao

6 7 POLITICAL LANDSCAPE TIMBER WAFFLE GRANDE BRUSSELS EXTENSION COFFEE HOUSE Biography 04 05 06 07 01 FOOD COORPERATIVE “VILLAGE” 02 EXTEND TO THE GREEN Kengo Kuma & Associates Slothwork Architects 03 A C A D E M I C P R A C T I C E
Hall,
GM Mayor City Hall, Manchester,UK A canopy design, Den Haag, NL City
Brussels,
ACADEMIC II Bachelor

This project is to design a City “Power House” in Manchester. This building will be home of the new Mayor, providing private spaces for formal meetings of the Greater Manchester Combined Authority and offering open spaces for broad participation in politics. The space of political congregation is not only an expression of a political culture, it also uses architecture to shape this culture and forms an architecture language for people to understand. Citizens are essential factors of political decision-making.

In detail, Co-city hall is built up for creating a place where citizens can communicate with each other and comment on city events and future development plans by writing bee bulbs. Public comments can be effectively conveyed to political decision-makers in this way. By functional zones like exhibition area, debating camber and chatting place, citizens can read about the history of Great Manchester, and exchange their political ideas.

Individual project-ARCH352 Design

Semester 2, Year 3

Tutor: Paul Bower

Location: near piccadilly station, Manchester, UK

Theme: Co-city hall for Great Manchester

POLITICAL LANDSCAPE

GM Mayor City Hall in Manchester

05

The idea is 'public landscape', as political place should not be a closed and inaccessible space for the public. As a final-year student, I read the site context and tried to make efforts to transfer it into building readability.

-POWERHOUSE-------Active northThe project is design a new co-city hall in GREAT MANCHESTER--for GM mayor and 10 Local authurities.

-Concept-

The idea of ‘Political landscape’ is based on the consensus that political place should not be a closed and inaccessible space. Politics activities need to be viewed and discussed in the landscape when people are moving through it. The idea of city hall shows democracy and transparency. At the same time, the serious atmosphere is still kept.

-Programme & Facade Testing-

1.Keep the historical pedestrian street by adding a new platform to connect platform and street level.

2.Transparentize the debating chamber. Citizens have the right to supervise or protest the decisions generated.

3.Create sense of ceremony. As a serious political place, the building separates office space and open space for citizens with a clear vertical gap. Corten steel is used in the façade which balances the public area and private working area. Streamline façade attracts and welcomes people to walk through the building.

-Political Influence and Paul‘s Journey-

City hall is a typical political landscape that attracts not only the citizens, but also visitors from all over the world. At the same time, it acts as a center of influence for the boroughs nearby. However, this kind of political landscapes are often blocking the tourists away with its high concrete walls and boring facades. The idea is to open the political landscape without affecting its needed functions.

E n t r a n c e D e b a t i n g C h a m b e r O f f i c e A r e a P l a t f o r m 3 D E x h i b i t i o n S p a c e F i r e B a l l o o n E x p e r i e n c e

All ideas serve for keeping the historical street--Wyre Street under the bridge. The ground floor embraces all citizens with open spaces, rather than establishing blocks by concrete walls. The functional zones like exhibition zone and assembly zone alongside the street sparkle the active communication and abundant spiritual life of citizens.

Plan. -Street level- 1.Reception+Entrey Hall 2.Public Meeting Area 3.Market 4.City Model Exhibition+Vertical Gallery 5.Canteen
N 1 2 3 4 5 6 6
6.Storage Room
Entrance. Write down your advice for better Great Manchester and light it up when it’s adopted.
Platform Level. The platform level is connected to platform 13&14 of the Piccadilly Station. People could enjoy the green welcome from the platform level when stepping off the train and walking towards the street. Besides, the extension of the platform and newlyopened exits are also set up to disperse the busy flow of crowds. Platform Garden. 7.Meeting Room 8.Debating Chamber 9.Office Area
N
10. Database searching Room Plan. -Office Level + 9 m-
7 10 8 9 9
Above the platform level, the office space is separated to form an independent “L” shape. Officers can view the activities of debating chamber. Also for those who wish to chat with MPs formally, they can have more private chats in the meeting room. Debating Chamber

Welcome to food cooperative village! You can meet friends in this lovely village. Pick up your cooking skills together with others! You can make delicious food by yourself. Stop being a phubber, come to chat and make your own meal!

Individual project-ARCH302 Design Semester 1, Year 3

Tutor: Emma Curtin

Location: Delph, Great Manchester, UK

Theme: Neighbourhood Centre

06
COORPERATIVE "VILLAGE" IN DELPH
FOOD

building utilizes the slope of the site to form a part of second floor. Thick walls are used in the design because of the utilization and its multifunction in residents’ houses in Delph.

Market -- a communication place is set up under an impressive and memorable wood structure entrance, and can be seen once people step into the foyer. Teaching demonstration on cooking will be planned, and buffet will be served regularly for people.

1.Farm 2.Market 3.Bar 4.Kitchen 5.Dining Hall 6.Rest Room 7.Performing Room 8.Outdoor area N +0m +0m -0.4m -1.0m -1.6m -2.2m -2.5m
Plan. -First Floor-
The Entrance. Houses and plazas work as the bearers of daily activities. The whole building has horizontal circulation which focuses on space division for different activities. Explode View. Kitchen. Plan. -Dinning area- Dinning hall.
Journey through the 'food village'

<Floor>

-Timber floor (re-use shurttering, 75mm wide,20mm deep)

-Mortar 30mm

-Raised Floor system. 20mm thick

-50mm insulation

-380mm concrete ground slab

-200mm insulation

-DPC

-Gravel infill (based on the depth of the water channel)

Detail.

<Wall>

-Outer concrete 150mm (Aircrete) with pigment

-DPM

-Polysyrene Insulation 50mm

-Inner Load bearing concrete 250mm. White cement mix with pigment

<Roof>

-6mm Tiles

-Concrete mixed purple pigment

-Waterproofing layer

-50mm rigid insulation

-In-situ concrete

<Outside pavement>

-Timber panel

-Concrete support

<Window>

-Fixed glazing with 3mm thick aluminium lining, DPC, concrete cast sill

07

Extend to the green

A Live Life in Garden House

Individual project-ARCH252 Design

Semester 2, Year 2

Tutor: William Murphy

Location: Wavertree, Liverpool, UK

Theme: Residential area + seating area

The Liverpool Blue Coats School is a prestigious school that dates back to 1708. It locates on Church Road in Wavertree, a suburban area of the city. It is proposed that the school will sell off a part of Wavertree Green for the erection of at least 16no residential units and establish some sports facilities. The idea is to communicate surroundings using context—houses with gardens, creating a harmony atmosphere.

108 109 PRACTICE

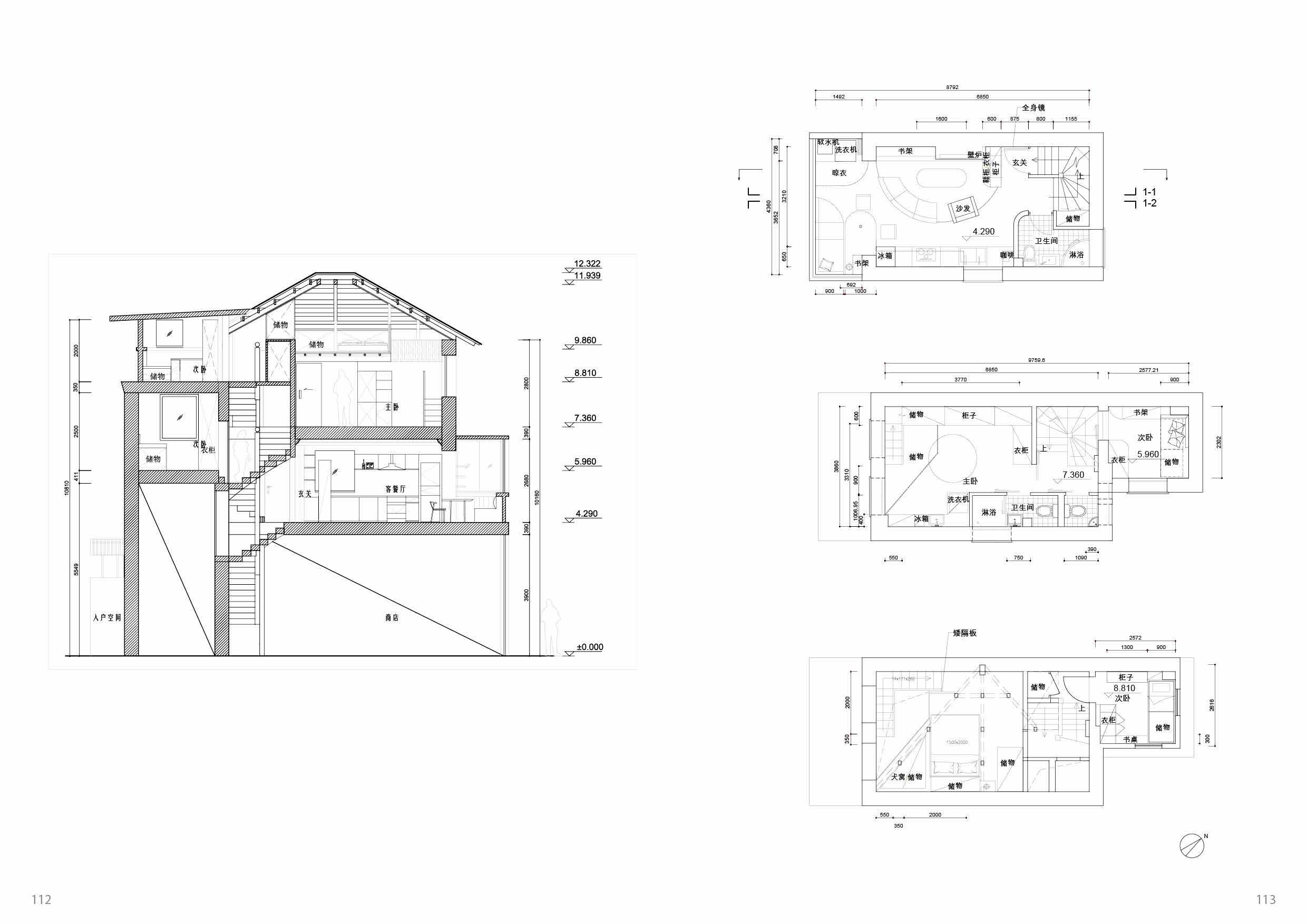
Zhujiajiao Factory Renovation

Location: Zhujiajiao, China

Slothworks Architects

Time: 2018.10 ~ Present

Site: Zhujiajiao, Shaghai

Area: 17000 sqm

Worked on a Zhujiajiao factory renovation project, designed and tested the hanging staircase’s material.

Location: Shanghai, China

Slothworks Architects

Time: 2019.08 ~ 2020.03

Joined a private house design on Jiaozhou Road, Shanghai. Discussed with the client and determined the design plan and constructed. Plan.

Site: Jiaozhou Road, Shaghai

Area: 117 sqm

-Living Room

-Bedroom

-Attic area

Private House Renovation

Plan.

During my internships at KKAA, I participated in four projects of different scales. I worked in close collaboration with the main designers and I came up with some creative ideas within the project progress. This project is located in Zhujiaojiao, a historical town in Shanghai, China.

Atrium. The idea is using an active atrium to guide people to the other end of the site, with beautiful scenery all along the journey.

This is a project near the Guangzhou Tower--the landmark in Guangzhou, China. The project is a commercial complex served for the residents and visitors. The shape is designed based on the skyline of Guangzhou. The green area surrounding the building and on the roof garden dye the wooden facades with gradient ramp.

Bridge.

Diagram. A pedestrian bridge connects the Dijing B Area, the Guangzhou Tower and the Haixinsha Island across the river. The bridge will strengthen the connection of the surrounding cultural facilities and improve the vitality of public spaces. The project is located in the natural tea plantation scenery of Yixing. The project site is based on the circulation how people take their journeys in the resort. Five different functional facilities—the reception, commercial street, museum, tea factory and hotels are planned through the whole journey. Plan. The museum is surrounded by hills and Yangxian lake, and the open atrium allow direct view of the Mouse Hill across the river. The exhibition area and ancillary facilities are embedded according to the terrain. Museum.
122 123 End. Fall 2020 Portfolio JIALU HUANG
Tel: +86 187 2110 1376
Email: jialu.huang@hotmail.com

Turn static files into dynamic content formats.

Create a flipbook
Issuu converts static files into: digital portfolios, online yearbooks, online catalogs, digital photo albums and more. Sign up and create your flipbook.
Jialu Huang | Portfolio(2020) II - Bachelor's Work Collection by Jialu Huang - Issuu