Zwanenveld 7414, Nijmegen

Page 1


HuizenHendriks van

Zwanenveld 7414 , 6538 TM Nijmegen

Goede bereikbaarheid

Energielabel A

Kindvriendelijke buurt

Serre en overkapping

Kenmerken

Soort eengezinswoning

Type tussenwoning

Kamers 5

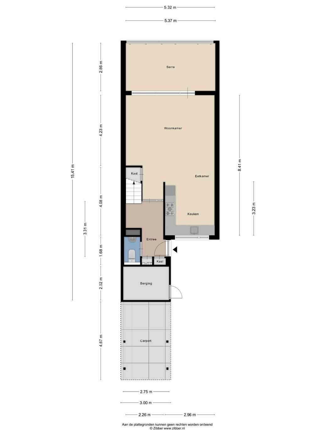
Woonoppervlakte 117 m²

Perceeloppervlakte 176 m²

Inhoud 433 m³

Bouwjaar 1975

Tuin achtertuin, voortuin

Garage carport, parkeerplaats

Verwarming c.v.-ketel

Isolatie dakisolatie, muurisolatie, hr-glas

Energielabel A

De in deze brochure getoonde informatie wordt door Hendriks makelaardij met zorg samengesteld, doch voor de juistheid en volledigheid daarvan kan niet worden ingestaan en kunnen hieraan geen rechten worden ontleend. Spel- en typefouten voorbehouden. De plattegronden zijn geproduceerd voor promotionele doeleinden en ter indicatie. Er kunnen geen rechten aan worden ontleend. Maten zijn niet eigenhandig opgemeten. Indien er twijfel bestaat over de accuratie van de gegevens aangaande deze brochure, is de geïnteresseerde zelf verantwoordelijk voor het nameten van deze gegevens. Voor meer informatie wordt u doorverwezen naar www.hendriks.nl

Verkoper vertelt

Mooi groot huis met carport, schuurtje en serre. Het huis is gevestigd in een doodlopende straat met veel parkeergelegenheid en het is er altijd heel rustig. De woning is 5 minuten lopen naar het grote winkelcentrum Dukenburg. De snelweg is relatief dichtbij zodat je snel bij familie en vrienden op bezoek kunt. Er zijn leuke bospaden een paar minuten lopen die leiden weer naar het water waar je ook nog eens lekker kunt zitten. Er zijn ook veel speeltuinen dichtbij zodat kinderen lekker kunnen spelen.

Aangenaam licht

aangenaam licht

praktische indeling

Als je de woonkamer binnenkomt vanuit de entree ben je meteen voorzien van een fijne hoeveelheid binnenvallend daglicht; iets waar je dan ook absoluut niet zonder kunt in jouw nieuwe woning. Verder zijn de wanden afgewerkt in een lichte kleurstelling en dit in combinatie met de laminaatvloer profiteer je van een goede basis waarin je met verschillende interieurstijlen prima uit de voeten kunt.

Open keuken

open keuken

wat maak jij klaar

Aan de voorzijde is de recent geplaatste keuken gesitueerd (2018). Het geheel is geplaatst in een praktische L-opstelling en voorzien van de nodige werk- en opbergruimte. Uiteraard beschik je over diverse apparatuur, te noemen een vaatwasser, gasfornuis, afzuigkap met koolstoffilter en een koelkast.

Het fijne van de open verbinding met de woonkamer is dat je voortaan geen enkel gesprek meer hoeft te missen terwijl jij aan het koken bent.

Vier slaapkamers

vier slaapkamers

hoe deel jij ze in?

Eerste verdieping

Met drie ruime slaapkamers is er plek voor iedereen. De moderne badkamer maakt het plaatje compleet. Of je nu een snelle douche neemt in de ochtend of ’s avonds in alle rust onder de regendouche stapt, elke dag keer is dit weer een verwenmoment.

Tweede verdieping

Op de zolderverdieping vind je nog een ruime vierde kamer en daar is tevens de cv-ketel gesitueerd in een aparte technische ruimte.

strak aangelegd Strak
onderhoudsvriendelijk

De beglaasde schuifpui brengt je vanuit de woonkamer naar de achtertuin op het oosten. De tuin is bestraat met nieuwe tegels en een overkapping / serre met geïsoleerde damwandpanelen waardoor je hier vrijwel het hele jaar door geniet. Verder is er achter in de tuin nog een overkapping met jacuzzi met stereo-installatie die achter blijft.

Met deze tuin kun je écht alle kanten op. En doordat hij onderhoudsarm is, besteed je meer tijd aan relaxen in plaats van werken.

Nijmegen

De vestingstad Nijmegen, schitterend gelegen aan de rivier de Waal, ligt tussen heuvels en bossen. In de stad zijn nog veel kenmerken van de Romeinse tijd terug te vinden, zoals Romeinse thermen en tempels. Aan het eind van de 19e eeuw ontwikkelde Nijmegen zich als een prachtige woonstad. De brede singels en statige huizen van de St.-Annastraat, de Van Schaeck Mathonsingel en de Oranjesingel stralen nog steeds de schoonheid en de grandeur uit van de 19e eeuw.

Het centrum van Nijmegen heeft recentelijk een nieuw, aantrekkelijker gezicht gekregen. Met een uitnodigende openbare ruimte, gezellige winkelstraten, veel groen en een gevarieerd cultureel aanbod.

heerlijk wonen in Nijmegen
noorden kadastrale kaart

HEERHUGOWAARD

ALKMAAR LANDSMEER HOORN

Lokaal makelaarschap

Wij geloven sterk in lokaal makelaarschap. Kennis van de buurt, de omgeving en de daarbij behorende ontwikkeling van de huizenprijzen zijn onmisbaar om voor jou het maximale resultaat te boeken.

Met Hendriks Makelaardij kies je voor:

• makelaars die al jarenlang verbonden zijn met de regio

• kennis van de lokale woningmarkt

• een verkoopplan afgestemd op jouw woning

• maximale exposure van je huis

• bezichtigingen ook in het weekend

• netwerk met honderden woningzoekers

Verkoop je je huis met Hendriks dan ben je met de eigen app 24/7 op de hoogte van het verkoopproces.

Bezichtigingsverzoeken bereiken je direct en beantwoord je snel en discreet op het moment dat het jou uitkomt.

Ook je huis verkopen? Onze makelaars komen graag en vrijblijvend bij je langs. We maken dan direct een gratis waardebepaling. Hendriks Makelaardij werkt op basis van no cure no pay. En betalen doe je pas bij verkoop.

Sint Canisiussingel 27 024 - 381 82 50 nijmegen@hendriks.nl www.hendriks.nl

PURMEREND ZAANDAM

(2x)

A’DAM WEST

HOOFDDORP HAARLEM

LEIDEN

MONNICKENDAM

A’DAM NOORD

AMSTERDAM

AMSTELVEEN

VLEUTEN DE MEERN

ALMERE

BUSSUM

HILVERSUM

UTRECHT MAARSSEN

AMERSFOORT

(2x) (2x)

NIEUWEGEIN WIJK BIJ DUURSTEDE

MEPPEL

ZWOLLE

APELDOORN

ARNHEM

(2x)

NIJMEGEN

‘S-HERTOGENBOSCH

BREDA

TILBURG

EINDHOVEN

WEERT

ROERMOND

Turn static files into dynamic content formats.

Create a flipbook
Issuu converts static files into: digital portfolios, online yearbooks, online catalogs, digital photo albums and more. Sign up and create your flipbook.
Zwanenveld 7414, Nijmegen by Hendriks Makelaardij - meer makelaar - - Issuu