Skip to main content
Advertisement
The "Heavy Equipment Manual" user's logo

Heavy Equipment Manual

california, United States

https://www.heavy-equipmentmanual.com

We Offer The Best Manuals Online ! Factory | Service manual | Repair Manual | Workshop Manual | Parts Manual | Parts illustration Manual | Parts Catalog Manual | Operator Manual | Operation and Maintenance Manual | wiring manual | Electrical diagram Manual

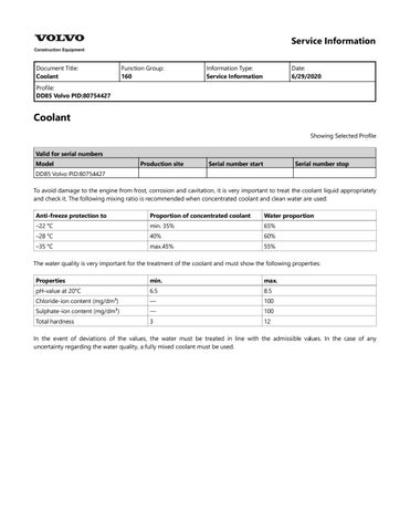
Publications