SAINT-EUSTACHE
PROPERTY



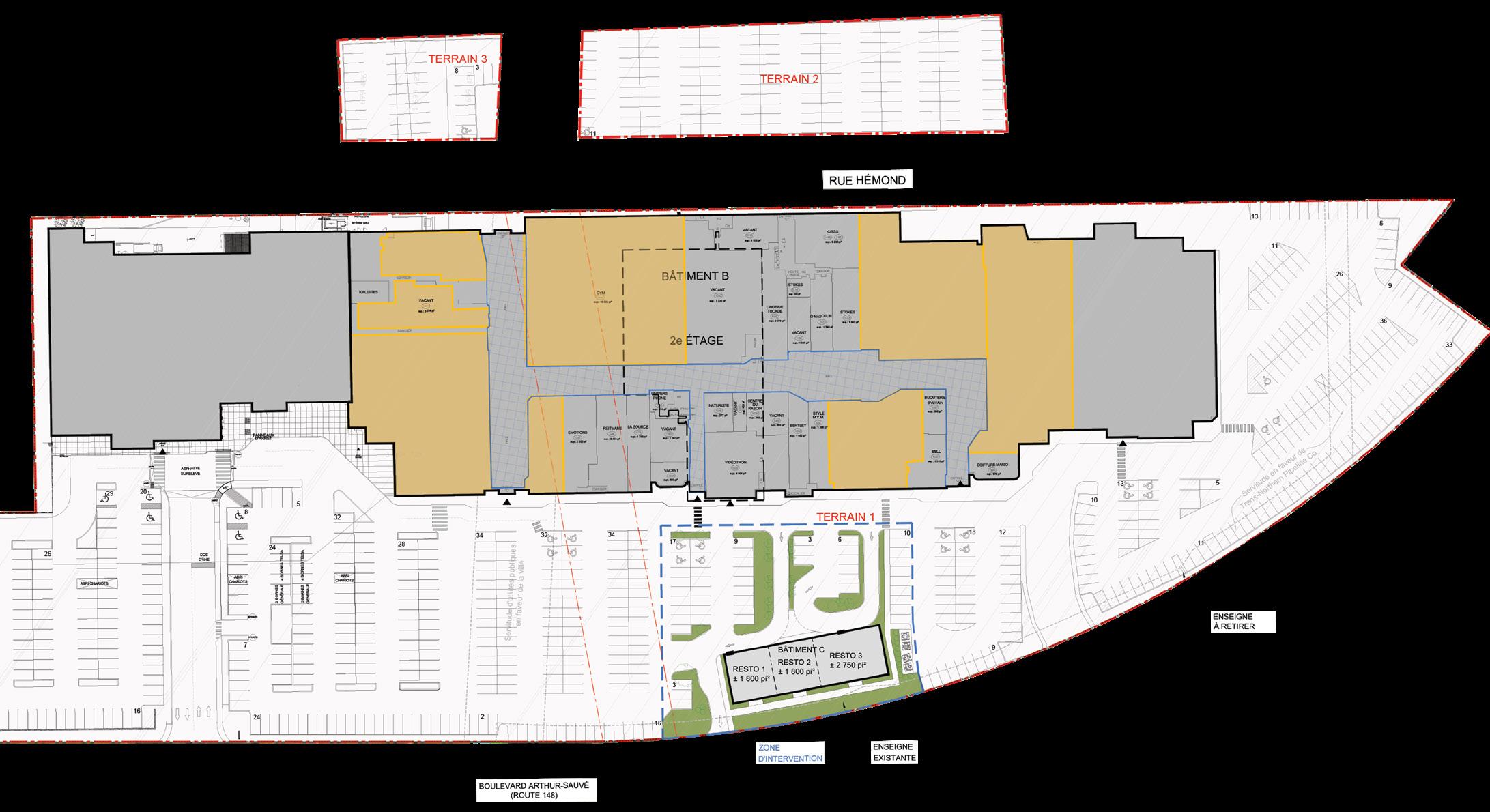
367, ARTHUR-SAUVÉ BLVD, SAINT-EUSTACHE, J7P 2B1, QUEBEC Place Saint-Eustache is easily accessible by Highway 640. Located at 367 Arthur-Sauvé Boulevard, Place St-Eustache was the first shopping center to cover the Lower Laurentians region. It benefits from an excellent visibility and hosts around sixty businesses. A major refreshing is in progress.
SAINT-EUSTACHE
42,2 Average Age 67 595 $ Average Household Income 28 % Household with average income > $100,000 44 008 Population
MONTRÉAL (RIVE-NORD)
40,0 Average Age 85 717 $ Average Household Income 32 % Household with average income > $100,000 715 557 Population