Multiply — Adams Mill Expansion

Page 1


FG family.

I’ve heard it said that the average, effective life of a church is 25-30 years. In September 2024, Fellowship Greenville will enter our 78th year of ministry! Think of it—we stand on the shoulders of those who served faithfully and witnessed God’s great grace upon this church for almost seven decades. We believe God has an even greater plan for the good works He’s prepared for us in the future—a future that begins here and now.

Over the past year, “great grace has been upon us all” (Acts 4:33) as we have seen nearly a thousand more people find a church home here. That means every area of ministry has also experienced this growth! And the most encouraging thing is that we’ve been able to care for and disciple the people God keeps bringing through our doors, helping them grow in their faith and desire to pursue life and mission with Jesus. However, we have grown to the point that we are just about out of space.

We don’t believe that God is leading us to do ministry differently, but we do feel that He is calling us to do it more effectively so that we might impact even more people in the Upstate and beyond. The Adams Mill Expansion is about is about multiplying our community to reach our community to impact our world. As you will see, this plan will require more from us than anything else we’ve done before—in resources, time, and energy. In our studies in the book of Acts, we’ve learned that the first community of believers was radically generous with their possessions as a result of the great grace God had poured out on them. Generosity was the quality of their community that demonstrated and proved the reality that the gospel does change lives.

I’m praying that you will join us on this journey of faith. I’m praying that you will be “wowed” by the great grace you have personally received and that you see in the changed lives of others in our church. I’m praying that in response to His grace, we will make much of God through our generosity so that this vision will turn into a reality. Will you pray to that end with me?

Grace

putting Jesus on display

LARRY SPRINGGATE —— Attendee at Fellowship Greenville

“When I was in my early 20’s, I had a lot of questions about giving to the local church, so I asked my grandfather who was one of my spiritual heroes. He shared about an experience he had during a major capital campaign when the church leaders were praying together, much like what is happening right now at Fellowship Greenville, and during their prayer meeting, the Holy Spirit touched “Papa’s” heart in a powerful way.

You could see while telling his story that he was deeply affected by the encounter. Bottom line—he learned about sacrificial giving directly from the giver of all things, and that affected me deeply! I recently found out that Papa discovered a super creative way to set aside money for that particular capital campaign. He added a “Holy Ghost” salary to his business payroll to meet his commitment.

Several years ago, Fellowship Greenville held a campaign for Auditiorium 2 and the Kids/Students building. So, my wife, Tammy and I, began praying about what we

could contribute. We knew what we could handle over a three year period but it just didn’t settle well with us. It all seemed too cut and dry, so we prayed some more. We both arrived at the same increased dollar amount. The Lord was faithful and somehow we met that commitment during the campaign. We did without some things for a while and found unique ways to save money for giving but we were absolutely changed, and God was and continues to be glorified on this church campus and in those new buildings!”

JUSTIN MOLL ——

“I grew up in a poor area of California in the Bay Area, and we didn’t have much. My Dad sold equipment to car mechanics all over Richmond, Oakland, and San Francisco, and we lived a simple life. Our car was a 12-year-old rusty station wagon, and our house carpet was the same color and even older.

But every Sunday, at the start of each church service, regardless of our financial situation that week, I saw my Dad take out his checkbook, write a number and he’d drop it in the offering plate, and then worship with his hands lifted high. One of his favorite songs was Jehovah-Jireh, ‘My Provider; his grace is sufficient for me.’ [yes, it was the 80s] Well, that was my Dad, every Sunday that I can remember. Today, my family and I are fortunate in that all our needs and more are met. I started Parkside Pediatrics in 2006, and with the success that followed,

my Dad’s worshipful, open-hand, sacrificial giving to Jehovah-Jireh, his provider, has always stuck with me. My wife, three kids, and I have been blessed by a wonderful church family here at Fellowship Greenville, where we have worshiped for over 19 years. And each time we’ve joined God where He’s working, the spiritual growth we’ve experienced as a family has been so special it’s hard to put into words. Now, I wish I could tell you that it has come naturally and been super easy each time—open hands, just like my Dad. But it hasn’t been.

The truth is, we all know we’re not in control. And the ultimate irony is that the more I try to control money, the more it controls me. And when I go from those open hands to fear-triggered, closed fists—it’s actually much more anxietyprovoking and emotionally stressful. However, with open hands, I’ve experienced some of my greatest spiritual growth and freedom from

stress over money. It has been through times like these of wrestling with my heart and getting my hands open that have been the sweetest and most joy-filled ever.

On a side note, I don’t know what it is with my amazing wife, but her hands are always open. And the way we decide what to give is the two of us pray separately for a few days, and then, we each come back to the table with a number.

Not a ‘can we afford to do’ number, but ‘what would truly be sacrificial worship?’ And the fun thing is, our numbers are usually pretty close–ok, hers is almost always higher–but it’s close and it’s fun to see how God works in our hearts.

God has truly been my ‘Jehovah-Jireh,’ and just as He has provided for so many of you, He has always been my provider, too, and why would I not respond in the same way?”

our story of growth

A group of 60 adults and children begin meeting at a property on Augusta Road, under the name Southside Baptist Church.

Walt Handford becomes pastor.

The church outgrows the Augusta Road property and move to the Woodruff Road location.

Church attendance grows from 250 to 1100 in five years. A larger auditorium is built to create more space.

Charlie Boyd becomes the new teaching pastor, following Walt Handford’s retirement.

The church’s name is changed to Southside Fellowship, to remove potential obstacles the word “Baptist” might be to reaching the community for Christ.

With more growth, the church’s name is changed to Fellowship Greenville, to remove any confusion about who and where we are, as well as to plant us firmly as a church that cares about our city.

Jason Malone becomes the Vision & Spiritual Formation Pastor while also leading the Upstate Church Collective.

2023

Average Sunday attendance grows to 3,000 adults, kids, and students. New families and membership classes are experiencing record attendance.

Move from Woodruff Rd location to Highway 14 property near Pelham Rd.

Due to significant growth, a capital campaign commenced and a secondary auditorium was built along with a Student Ministry building.

As you know, Greenville isn’t considered to be a small town anymore. People are moving here in masses from all parts of the United States and even from other countries. And this community growth is reflected in the growth we are seeing at Fellowship Greenville.

The population within a 5-mile radius of our church is continuing to increase and we still have people in our community who don’t attend church.

During the eight years before the COVID-19 pandemic, we averaged 2.25% growth in worship attendance each year. When the pandemic hit, we moved everything online until we could begin meeting again in June of 2020. It took two years to get our numbers back but our growth rate this year compared to last year is 24.5%!

WORSHIP

Since our most recent expansion in 2016, nearly 900 more people now attend our Sunday worship services.

SERVING

We currently have over 1,500 people who actively serve inside and outside the walls of our church.

This includes those serving in our community, our kids and students, leading on the worship and tech team, in the parking lot and cafe, as ushers and Stephen Ministers, and for those first impressions at Next Steps and Guest Services.

BAPTISM

From January 2023 through January 2024, 151 children, teens, and adults shared their stories of grace publicly through baptism.

EQUIPPING

Men, Women, Co-ed groups, Young Adults, and Senior Adults are participating in gospelcentered equipping classes and Bible studies.

CARE

Hundreds of people receive practical support through Stephen Ministry, DivorceCare, GriefShare, and other care ministries.

This semester, over 100 people are participating in our 16-week recovery program, re:generation, with 56 couples looking to strengthen their marriage through re|engage.

COMMUNITY GROUPS

We currently have over 1,747 families enjoying fellowship in community groups and other small group ministries.

LOCAL | GLOBAL PARTNERS

We are supporting 26 missionary families and are partnering with 33 well-established ministries to advance the gospel globally.

MISSION TRIPS

Last year, nearly 100 people went on short-term mission trips in the US and beyond to engage the world in mission.

CHURCH PARTNERSHIP

We have supported Southbridge Fellowship, Fellowship Asheville, and Summit Church through onetime or ongoing giving.

CHURCH PLANTING

In partnership with the Upstate Church Collective, Redemption Life Fellowship launched its first service on September 17, 2023.

KIDS

Nearly 600 children are involved in FG Kids programming on Sundays, including areas for nursery and preschool, children with special needs, elementary aged kids, and preteen students with curriculum designed for Grades 4-5.

STUDENTS

We have about 400 middle and high school students taking part in regular student ministry activities. Many of which are involved in small groups.

Our annual Labor Day Weekend retreat, EPIC, brought in over 100 volunteers to serve over 400 students at Woodlands Camp in Cleveland, GA. Of those in attendance, 38 students made first-time faith decisions!

the opportunity

We have a priceless opportunity to impact multiple generations as we reintroduce people of all ages to Jesus and the life He offers. As we prayed about the kind of space that would best serve our growing church body, we considered the needs of all ages—children, teens, singles, married couples, growing families, and empty nesters alike. We want to serve the needs of everyone in our community.

We want to expand our campus and our ministry to help us better care for and disciple the growing number of people God is bringing here.

multiply a COMMUNITY to reach a COMMUNITY

Our desire is to step into greater opportunities to serve throughout the growing Upstate with no expectation of return.

the plan

We believe that this building plan will allow us to do more of what we are already doing, for more people, more effectively.

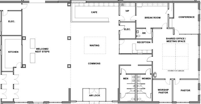
AUDITORIUM

Information about the auditorium and how many it seats

THE COMMONS

information about the commons

MIDDLE SCHOOL

This space will house middle school.

ELEMENTARY

This space will serve elementary.

PRESCHOOL | NURSERY

This area will serve preschool and nursery.

our response

In response to the great grace God has poured out upon us, we want to make much of Him through our radical generosity.

PRAY

We’re serious about saturating everything we do in prayer. So we’re asking you to partner with us in prayer as we take the next steps toward what God is calling us to do as individuals and a church family. Ask God how He wants you to be involved. Pray that He would make His vision for us a reality.

Lord, what would you have me give to partner with you in this plan?

ENCOURAGE

We’re asking you to help us cast the vision and inspire others to respond with open minds, willing hearts, and generosity. Encourage them to jump on board and be a part of what God is doing in the life of our church.

How can I inspire others to take hold of this vision?

GIVE

We’re asking you to generously and sacrificially support Adams Mill over and above your tithes and offerings to Fellowship Greenville in a three-year faith pledge.

What would be a sacrifice for me?

“And with great power the apostles were giving their testimony to the resurrection of the Lord Jesus, and great grace was upon them all.”

Acts 4:33

the how

The total cost of Adams Mill is $18.3M. In order for this vision to become a reality, we will need to receive a total of $15.7M in three-year faith pledges. But how is this even possible? We will do it together! We want everyone to be a part of this defining moment in our church’s history no matter how big or small your gift is. The model below shows the possible path that will take us to $15.7M.

not equal GIFTS

but equal SACRIFICE

Because we all have unique giving capabilities, we cannot simply divide the total needed by the number of families in our church. God calls us to give generously and sacrificially in proportion to what He’s given us, and that’s going to be different for each of us! For some, a 3-year pledge may mean a sacrifice of $360 per year. For others, $3,600 per year would be a generous pledge for their family. Yet others may be able to respond to God’s grace through a gift of $30,000 per year or more. On the following pages, we’ve provided some creative ideas to help you prayerfully consider what God might want to do through you as you approach your giving commitment. Our goal is 100% participation. Everybody’s part matters.

how we can get there

THINGS I CAN DECREASE

Cut back on coffee drinks / Go out to eat less / Adjust or cancel my cable package / Adjust my internet package / Adjust my cell phone contract

WAYS I CAN DO MORE

Get another quote on insurance rates / Comparison shop / Do my own cleaning, yard work, or repairs / Sell my boat, motorcycle, ATV, etc. / Pay off a bill, then keep giving that amount to Adams Mill.

THINGS I CAN DELAY

Wait on a remodeling project / Take one less vacation over the next three years / Put off buying a new car

THINGS I CAN DONATE

Annual or quarterly bonus / Tax rebate / Stock and bonds / Rental home / Property / Savings

Think about these two questions as you approach your giving commitment.

WHAT IS GOD LEADING ME TO DO?

Ask God, “What do You want to do through me?”

We believe that through prayer and discernment, God will reveal what each of us should do.

WHAT CAN I ADJUST?

We encourage you to make a budget and examine where you can adjust, eliminate, or delay expenses to make room for giving to Adams Mill.

WHAT I WILL GIVE OUT OF MY REGULAR INCOME/ASSETS

WHAT I CAN ADD TO THAT BY GETTING SACRIFICIALLY CREATIVE

Things I will decrease

Things I can delay

Things I can donate

Things I can do more

x 36 months x 36 months x 36 months x 36 months x 36 months x 36 months x 36 months x 36 months x 36 months x 36 months x 36 months x 36 months

when and how to give

Commitment Sunday is on _____! On this day, we will be asking individuals and families to turn in commitment cards that represent their three-year faith pledges. We don’t look at this as a binding contract, but a declaration of your intentions that will help us plan and secure funding for Adams Mill.

After you have made your faith pledge, you may begin giving on celebration Sunday, _____. Remember, this is above and beyond your usual giving. You can give in the following ways:

REGULAR OFFERING ENVELOPES

You can use regular Fellowship Greenville offering envelopes to give to Adams Mill. If you already receive FG offering envelopes in the mail each month, simply include your gift to Adams Mill. Be sure to designate the amount on the front of the envelope in the box labeled “Building.” FG offering envelopes are also available at the Information Center in the Commons.

ONLINE

You can give online through our website. Go to fellowshipgreenville.org and click on the Give/Serve tab to get started. You’ll have the opportunity to give a one-time gift or set up recurring giving if that’s your preference. However you choose to give online, be sure to designate your gift to the Capital Campaign DATES ??

STOCKS, BONDS, PROPERTY & GIFTS IN KIND

Contact Executive Pastor Rob Marks rmarks@fellowshipgreenville.org

What 's your response to GOD'S GRACE?

common questions

1. Is Fellowship Greenville expanding to become a “campus” style church or a “multi-site” church like so many other churches?

No, not exactly. When you think about it, we’re already a “multisite” church since we do not all meet in one single, auditorium. Expanding to Adams Mill is the way we believe we can keep a smaller church environment while creating space for growth. Also, part of the reason Jason Malone is here is to multiply ministry, especially through the Upstate Church Collective (UCC).

2. Will the new location operate independently from us?

In the beginning, Adams Mill will be a Sunday morning venue only— worship, Kids, and Middle School.

All the other areas will continue to operate at our current address. Initially, we’ll staff Adams Mill with our staff and volunteers to mirror what happens at our current address. At some point, when the Adams Mill congregation grows to include new people, it’ll more than likely become a part of a family of churches connected to UCC. Our desire and commitment is to export our Fellowship “DNA” to other locations so more people can enjoy and benefit what you enjoy and benefit from here.

3. Why are we pursuing property that’s just 6 miles down the road? Why not in some other area of Greenville?

The 5-mile radius around our church continues to be among the fastest-growing areas of the state. From 2000 to 2015, this area has grown by 59%, and in the last eight years, the growth is at 9%.

Currently over 1,100 people drive past Adams Mill to attend at our

current location. By going just 6 miles down the road, our ask will be that 400-500 people from our congregation attend at Adams Mill, giving it the opportunity to grow to a two-service format, which creates more space for people to attend here.

Adding to the 5-mile footprint we have here with an overlapping 5-mile footprint 6 miles down the road, increases our sphere of community impact to over 11 miles! We see this as a way to advance the Gospel and to reach more people.

4. Will there be live speakers at Adams Mill or will it be a video venue only?

Adams Mill will have the same live speaker rotation that we have here combined with video on some Sundays in the same way we operate here. And, other pastors will be rotating in and out of the Adams Mill location so new people can get to know them as well.

5. Will we have to commit to one location and stay there or can we “float” from one location to the other like the can from Auditorium One to Auditorium Two?

There’s no hard and fast rule. But our hope would be that you would eventually get involved in serving in one place or another and find community in that way as well. As to community group involvement, if you choose to attend Adams Mill you can continue in your current community group. Community groups will not be unique to a specific location.

6. Is this the best time to do this?

We understand some may be thinking that with the current condition of our nation’s economy and the state of things in our world, this may not be the most opportune time to undertake this proposal. This is not a decision

that the church leadership has come to quickly or lightly. It has taken years to arrive at this proposal and the cost and risk by faith has been carefully weighed. Ultimately, we believe this is the best time to do this, because we believe this is where God is leading us now.

7. How will we pay for all this?

Financing will be combined with a capital campaign in which we will ask the church to make a three-year year financial commitment over and above our current offerings to the ministry of this church. The bank will loan us money against the pledges of our capital campaign—similar to what we’ve done for the past two campaigns. God has enabled us to do effective, fruitful ministry in this way. Also, at some point, we may look into selling a piece of the property that could help reduce the debt load.

8. Why are we trying to raise millions of dollars to build here when the need is so great in other parts of the world?

It’s a fair question. Think about it this way. How would the Church be able to raise large amounts of money to resource worldwide missions? How would you equip people to serve in all those places and support ministry in all those places? How would you raise up the next generation of Christ-followers to serve in underresourced areas?

Some Christian leaders say it’s shameful for Christians to be sitting in $20 million dollar buildings (like ours). But again, our response is: How would you be able to mobilize large numbers of Christ-followers to be deeply involved in the mission of Jesus if it were not for churches like ours?

Scan the QR code above, visit fellowshipgreenvill.org/ newpledge to make your pledge online, or mail a pledge to: Fellowship Greenville 3161 SC-14, Greenville, SC 29615

Turn static files into dynamic content formats.

Create a flipbook
Issuu converts static files into: digital portfolios, online yearbooks, online catalogs, digital photo albums and more. Sign up and create your flipbook.
Multiply — Adams Mill Expansion by fellowshipgreenville - Issuu