Duda|Paine Architects Wellness Portfolio

Page 1


Founded in 1997 by Turan Duda, FAIA and Jeffrey Paine, FAIA, Duda|Paine Architects is known for designing innovative academic and wellness facilities, corporate headquarters, and research facilities that correspond to their surrounding context. Our design studio is in the warehouse district of Durham, North Carolina, while our work appears in cities across the southeast US, Mexico, China, and Japan. Our vision is to transcend the social, cultural, and economic forces of today that can dilute the uniqueness of place. Our studio is diverse and cross-generational, which allows us to draw on our experience while embracing new and energetic ideas. This combination combines traditional design methods, including physical models and sketching, with digital explorations and 3D modeling to bring our clients’ ideas, and the uniqueness of their campuses and communities, to life. We design contextually sensitive spaces that emerge from partnerships with our clients and are fostered within our dynamic open studio.

We pay close attention to the client’s program, from the spatial needs and goals, to restrictions and budget. But we also read between the lines and look for the poetic essence of that program. We know that this is why we, as design architects, have been chosen. We take the responsibility seriously.”

PHILOSOPHY & PROCESS

At Duda|Paine Architects, we recognize that human wellbeing and the built environment are intrinsically linked. Each design demonstrates our belief that humanistic, wellness based, contextually astute design can transcend building type and contribute to meaningful places in our built environment.

Inherent in our placemaking process is advocacy for merging architecture and site via the integration of places to reflect, interact, and collaborate; adaptable spaces for gatherings or intimate conversations; cohesive circulation patterns and maximized views to the landscape. Also at the heart of our work is a deep interest in improving the lives of individuals and communities. Our clients appreciate how we embrace and engage in their ethos, both in the delivery of design services and in the character of the spaces we create. Our unique method of working, in which every site and project redefines our process and design response, invites clients to explore how form, material use, public space, and environmental responsibility come together to elevate the inherent potential in every project and building site.

Our portfolio of health, wellness, and fitness centers emerges from a foundation of beliefs that inform our approach to all design projects. We believe the fundamental nature of buildings is to contribute to the wellbeing of users and their communities.

Humanity’s increased ecological awareness along with the COVID-19 pandemic has put interior air quality, the influence of daylight on occupant wellbeing, and access to fresh air and views at the forefront of the conversation around design. We embrace these themes and more to maximize our connection to a site with open views of the surrounding landscape, the use of sustainable materials like reclaimed wood, and flexible spaces for a variety of programs. We want these gathering places to be infused with creativity and empower community members to be lifelong learners by providing choices, flexibility, and serenity.

FIRM PROFILE

SELECTED PROJECTS

Duke Integrative Medicine

Duke Faculty Club

Duke University Student Wellness Center

Sarah P. Duke Garden Gateway

Quiet Room, Duke Cancer Center

The Garden Pavilion at Palisades West

UVA Student Health & Wellness Center

NCSSM Student Wellness & Activities Center

Center for Health & Wellbeing

Walton Family Whole Health & Fitness

DUKE INTEGRATIVE MEDICINE

DURHAM, NORTH CAROLINA

Duke Integrative Medicine unites traditional and alternative medicine in a holistic environment for mind, body and spirit. Nestled in the woodlands of Duke Forest, the welcoming and comforting environment interweaves natural features with the man-made requirements of modern clinical care. Essential to Integrative Medicine’s mission to provide a comprehensive, customized, whole-person approach to health care is the building’s connection to the outdoors and to healing gardens and paths. Building programs include treatment rooms, workshop and meditation spaces, a circular library with a soaring wood framed cathedral ceiling, and a state-ofthe-art café. Bamboo grows to reach clerestory windows in the sun-drenched meditation room.

SIZE 27,000 SF

COMPLETION 2006

AWARDS AIA Healthcare Design Award, Category ‘A’ Winner, 2010

WoodWorks Southeast Design Awards, Institutional Wood Design, 2008

Wood Design & Building, Excellence Award, 2007

The work and vision and commitment of Duda|Paine has allowed Duke Integrative Medicine to instantly convey to the world what the healthcare of the future can and should be. This has become the powerful catalyst for change that we hoped it would be.”

Whole

DUKE FACULTY CLUB

DURHAM, NORTH CAROLINA

Design for movement and athletics emerged from patterns of daily circulation for this unique facility. Paths into within and beyond the building are framed and screened in an interplay of vertical and horizontal wood screening that engage users and invite activity. A clearly articulated spine aligns and orders program spaces that include a fitness center game room snack bar locker rooms and numerous indoor and outdoor recreation and relaxation spaces.

SIZE 11,975 SF

COMPLETION 2014

AWARDS AIA North Carolina, Honor Award, 2017

WoodWorks Design Awards, Regional Excellence, 2017

Durham Golden Leaf Award, Durham City-County Appearance Commission, 2016

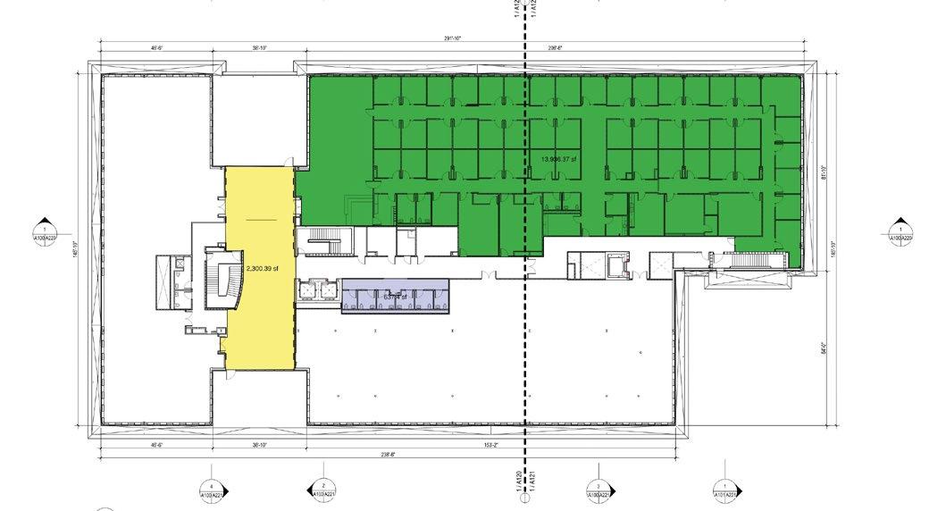
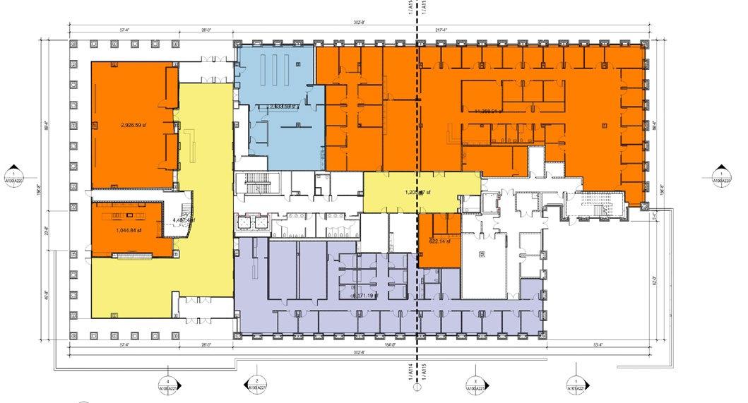
DUKE UNIVERSITY STUDENT WELLNESS CENTER

DURHAM, NORTH CAROLINA

Duke University’s Student Wellness Center presents an innovative and accessible campus facility to promote health and wellbeing for students. The Center’s programs connect through open, multi-level lobby/social spaces. Integrated features, including an interactive wall with updated program information, flexible lifestyle learning spaces and interiors inspired by nature, encourage student use beyond clinical needs. Adaptable room configurations accommodate various health and wellness seminars and fitness studios, where students learn about the many aspects of healthy lifestyles and preventative care.

SIZE

86,500 SF

COMPLETION 2017

SUSTAINABILITY LEED Silver

AWARDS AIA Triangle, Merit Award, 2022

ACUI Facility Design Award, 2021

AIA Healthcare Design Award, 2020

AIA North Carolina, Merit Award, 2018

WoodWorks Wood Design Award, Regional Excellence, 2018

Circulation

Wellness

Clinical

Counseling

Support Space

When we at Duke began this process, we recognized that the design of the Student Wellness Center, and the execution of that design into very successful architecture, would have direct impact on our students, on their lives, their health and the services available to them. The project presented the opportunity to simplify how students pursue health and wellness and encourage a more proactive approach to overall well-being. Our collaboration with Duda|Paine and the resulting building achieves that vision and more. The Student Wellness Center is a destination spot on campus.”

Dean Suzanne J. Wasiolek, Adjunct Faculty, Program in Education Duke University

SARAH P. DUKE GARDEN GATEWAY

DURHAM, NORTH CAROLINA

The Sarah P. Duke Gardens are a cherished part of Duke University’s culture and one of the country’s few large botanical gardens at the heart of an academic campus. The transparent architecture of the new structures reimagines the facility as a gateway to the expansive gardens and the entire university campus. The Garden Gateway buildings expand learning, retail, gallery, administrative and event opportunities to enhance education and community outreach programs for a growing visitor population and roster of celebrations. A preserved view to Duke’s historic chapel, facilitated by the addition’s low-slung roof structures, bridges past with a present.

SIZE 25,800 SF

QUIET ROOM, DUKE CANCER CENTER

DURHAM, NORTH CAROLINA

A self-contained, circular space within Duke’s Comprehensive Cancer Center focuses on engaging the senses of patients, family and staff facing life-changing issues. This single room offers a contemplative, calming oasis that creates a range of sensory experiences to meet each person’s unique emotional and physical needs. Simple references to nature and subtle manipulations of color, light and sound provide a sanctuary amid the institutional activities of the Center. SIZE

THE GARDEN PAVILION AT PALISADES WEST

AUSTIN, TEXAS

The Garden Pavilion was created to provide space for employees to pause from their workday and venture outside. Located between two office buildings on a headquarters campus, the pavilion is part of a landscaped garden placed on top of the complex’s multilevel parking structure.

A layered roof system composed of planes of zinc-coated metal roofing and wooden shade trellises provide protection from the Texas sun. The walls’ rough and smooth texture invite touch, while their varied heights define pathways and shelter users from southern winds. Wooden benches, a stone table and other elements appear as extensions of the walls to promote a variety of activities. An oval walking trail—part of a master plan design for the site’s varied topography—connects the pavilion with other campus buildings and has been embraced as a feature in the company’s wellness program.

UVA STUDENT HEALTH & WELLNESS CENTER

CHARLOTTESVILLE, VIRGINIA

UVA’s Student Health & Wellness Center serves a growing student population while introducing programs to promote wellness and preventative practices. The design encourages a sense of community with flexible areas for social interaction and individual contemplation. Interior finishes, lighting, furnishings and colors result in an environment more like home than traditional clinical spaces. The design meets the highest standards for air and water quality while providing abundant exterior views of nature and the mountains beyond. The location allows students to easily engage with public programs on the building’s ground floor, including the pharmacy, multi-purpose space, teaching kitchen and living room.

SIZE 160,000 SF

COMPLETION 2021

SUSTAINABILITY LEED Silver

FitWel Certified

AWARDS ACUI Facility Design Award, 2023

“We are not just a sick-model center; we are also looking at, ‘What can we do for those students who are well?’”

NCSSM STUDENT WELLNESS & ACTIVITIES CENTER

MORGANTON, NORTH CAROLINA

The new Student Wellness & Activities Center merges fitness, physical health and mental wellness with clinical and athletic programs to serve a growing student population. The structure’s open design signifies the public nature of the Center’s primary spaces. An open, faceted lobby contributes to destigmatizing and demystifying services for mental and emotional health—part of the universal trend to transform student care using individual- and community-based models. Two transparent entry areas pinwheel from the building’s core out to the surrounding campus. Students passing by can glimpse into a variety of recreational, fitness and wellness activities, including fitness, gaming and social gathering. A gymnasium with an elevated walking track doubles as an event space and provides entrances from the upper Academic Street and a running circuit on the lower level.

SIZE 28,600 SF

CENTER FOR HEALTH & WELLBEING

WINTER PARK, FLORIDA

The Center for Health & Wellbeing is the manifestation of Winter Park’s vision to bring the three realms of well-being—fitness, medical care and wellness—into one integrated center for preventative care. This state-of-the-art, landmark building serves as the cornerstone for community health by empowering individuals to achieve vitality and fitness. It houses an innovative combination of programs for fitness, clinical care and wellness, along with health-focused resources and adaptable spaces for learning.

SIZE 78,000 SF

COMPLETION 2019

SUSTAINABILITY LEED Silver

AWARDS AIA Healthcare Design Award, 2022

The Architects Newspaper Best of Design Awards, 2020

Lighting Design + Application, Illumination Award, 2020

Our Foundation believes in the power of collaborations to truly improve health and our future. Every element of this new facility has been designed to create a place to be experienced and to facilitate interactions between Wellness, Fitness and Medicine.”

WALTON FAMILY WHOLE HEALTH & FITNESS

BENTONVILLE, ARKANSAS

Walton Family Whole Health & Fitness in Bentonville, Arkansas, is bringing a new model for health and wellness based on self-care. The facility is designed to empower people to take charge of their physical, mental, and emotional well-being. The facility offers Walmart’s associates and their families fitness options such as three indoor pools, tennis courts, a walking track and spaces for cooking, exercise, yoga and meditation classes. Views, natural light, natural materials, spaces to relax, and access to a community network of walking and biking trails are just a few of the amenities integrated to advance wellness. The project is part of a larger Walmart initiative to establish a creative and inspirational work environment and promote health and well-being for every associate.

SIZE

360,000 SF

COMPLETION 2024

SUSTAINABILITY LEED Platinum Targeted

Our campus project had the opportunity to dial it up a notch on the design side and incorporate more of a whole health and wellness component. It was clear that the Duda|Paine team had a tremendous amount of experience and design excellence with the added elements that went beyond what a traditional fitness center may offer. One of the more impressive characteristics is how they listen to the client, and cleverly incorporate areas of focus or interest into their design ethos.

Duda|Paine’s design process is founded in discovery and begins with achieving a highly nuanced understanding of an institution, the project at hand, and the influences essential for them to thrive. Our practice, led by founders Turan Duda and Jeff Paine, considers all typologies and styles. Our methods of thinking and working are transformative rather than prescriptive and bridge all project types and programs, all scales and levels of complexity. We quickly seek that ‘spark’ of invention and innovation that can define a project, nurture understanding and generate excitement and enthusiasm for stakeholders.

Duda|Paine is renowned for creating new teaching, academic and student life models at the world’s leading institutions. Our high record of repeat clients attests to our ability to shape exceptional academic experiences and contribute to campus life. Duda|Paine brings intelligence and creativity to making architecture that both fosters and inspires the future.

Turn static files into dynamic content formats.

Create a flipbook
Issuu converts static files into: digital portfolios, online yearbooks, online catalogs, digital photo albums and more. Sign up and create your flipbook.