Healthcare Trade Book 2023

Page 15

DEVOTED TO A WORLD OF ART

DESIGN DIRECTION ARTWORK & MATERIAL SELECTION

• takeoff meeting

• Art & accessories form

• mood boards

• project timeline

• budget parameters

• estimated install date

PRINT & FRAME PRODUCTION

• research

• artist imagery

• local photography

• historic photography

• artwork placement on floor plans & elevations

• decide on mediums

• physical samples

• frame selected

PROCESS SHIPPING & INSTALLATION

• signoff on design & quote

• wall mural strike-offs

• process check-ins for custom fabrication

• In-house large format printing

• In-house picture framing

• signoff on design & quote

• wall mural strike-offs

• process check-ins for custom fabrication

• Installation form

DESIGN DIRECTION

Our art consulting team offers a full-service experience, from design concepts to installation. Working together with architects and designers we work alongside your FF&E selections to deliver thematic artwork programs on time and in budget. Our team is highly trained in the fine art & interior design industry.

ENVIRONMENTAL DESIGN

Creative A combines artwork, signage, wall murals and vinyl applications all into a one-stop-shop. With in-house fabrication our team combines design and fabrication excellence.

ARTWORK SELECTION

CONCEPT DEVELOPMENT

We curate an art selection that tells a story or sets a mood throughout the environment for the most impactful & dynamic final product.

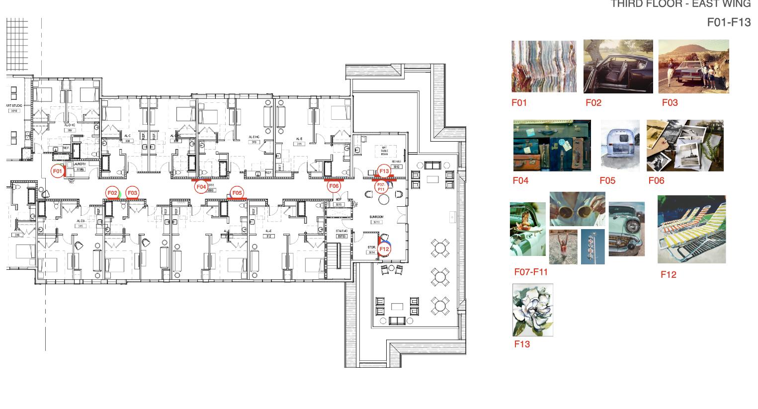
Theme: Vacation Memories

ARTWORK PLACEMENT

Creative A works with your floor plans and FF&E selections to place artwork. We work in conjunction with your furniture sizes and heights to ensure the right piece of artwork is being specified.

Florals, landscapes, still life, impressionist paintings and more…

We take the time to source out & support the areas best photographers, allowing us to get local insights.

Commissioning local photographers allows access to the most captivating locations & sights the area has to offer.

HISTORIC RESEARCH & IMAGERY

A flash into the past!

We take time to research the history of the local area to evoke meaningful pieces that bring back years of memories.

HISTORIC IMAGERY RESTORATION

Photo touchups will make photos look new, removing all grain. From local libraries to our own research done in house on public domain sites. We believe history should always be preserved and displayed.

BEFORE AFTER

A historic image is only as good as its title! We take The time to title imagery on the artwork, in a keyhole opening on a mat, or on a plaque in order to tell the story of the art.

GRAPHIC DESIGN ARTWORK

Our in-house designers create custom image & text-based multi-medium graphics that suite your needs and brand

GRAPHIC DESIGN WALL MURALS

Our in-house designers create full scale custom graphics, from floor to ceiling, soffits, and more

Artwork that is made for your space. Grid walls are a great

• Showcase a small story to tell

• Fills the space

• Adds dimension and diversity in the artwork throughout a community

MATERIAL SELECTION

Custom art & framing is one avenue of many to transform your space into a living, breathing, representation of what you want it to be.

Custom art & framing is one avenue of many to transform your space into a living, breathing, representation of what you want it to be.

ART ON CANVAS

• Canvas Gallery Wrap with Floater Frame

• Canvas Gallery Wrap

• Canvas Mount with Frame

• Gel Embellishment

ART ON PAPER

Non-Glare Acrylic

ART ON PAPER WITH MATBOARD

Clear Glass

ART ON WHITE METAL GLOSS FINISH

DIRECT PRINT TO WOOD

BEFORE AFTER

Often client’s have existing artwork and history they would like to reuse and bring new life for. Our team works to restore and reframe your existing art to create new beauty!

Create the space you imagine with floor to ceiling experiences. Wall murals can make a room more immersive as well as be interactive with employees and guests.

WALL VINYL INSPIRATIONAL WORDS
WALL VINYL CUSTOM PHILIDELPHIA SKYLINE

WINDOW VINYL

Window vinyl can be designed in many shapes, forms and colors. From branding visuals to code distraction markings, we create what is best for your space

We work with your space and its finishes to create signage that is cohesive & on brand

FLAT CUT METAL

We bring nature indoors through text based greenery and full-scale green walls. Options for Faux or real plants

Creative A takes a deep dive into your company identity to create one-of-a-kind art pieces that represent you

PRINT & FRAME PRODUCTION

FABRICATION EXCELLENCE

With in-house print and frame production

We have the ability to oversea the fabrication process to ensure the highest quality product

IN-HOUSE STUDIO ARTISTS

We strive to work with the best artists, designers, and craftspeople, because art making is a grand collaboration.

LARGE-FORMAT

FINE ART PRINTING

Paper, canvas, vinyl, wall murals, fabric printing & more

With updated equipment our saws are able to produce the highest quality cuts and joins for a durable long lasting product

ARTWORK SIDEMARKING

We mark each piece Arriving to the project site with 3 labels for easy identifying and placement

CUSTOM FABRICATION STUDIO

CUSTOM FABRICATION

Creative A takes a deep dive into your company identity to create one-of-a-kind art pieces that represent you

CUSTOM DYED & TIED KNOTS

3D CUSTOM MOSAIC

CUSTOM COLOR MATCHING

Creative A works with your FF&E color & finish selections to ensure we are on brand for custom elements

NATIONWIDE CRATING, SHIPPING & INSTALLATION

A Woman-Owned Business

Disclaimer: This presentation and its contents is copyright of Creative A LLC 2022-2023 All rights reserved. Any distribution or reproduction of part or all of the contents of this presentation in any form is prohibited. You may not, except with our express written permission, distribute or commercial exploit the content, design, artists, or photography displayed in this presentation. If you wish to purchase the designs within this presentation, Creative A will bill you for the value of the product. Legal action will be taken to whom does not purchase the design, but produces it elsewhere.

Turn static files into dynamic content formats.

Create a flipbook
Issuu converts static files into: digital portfolios, online yearbooks, online catalogs, digital photo albums and more. Sign up and create your flipbook.