
1 minute read
DD SP SD FIN CD BID CC Design Development
DD drawings build upon the SD by illustrating locations and elevations of millwork / casework, door sizes and types, door hardware, electronic equipment locations, electrical / power outlet locations / heights, and data outlet locations / heights.
Catalyst and the Architect will lead you through a discussion of the workflow, use of each room, and evaluate both the staff and patient experience. This process allows you to maximize the effectiveness of each room.
Advertisement



Example: Electrical Outlet Locations
Example: Door Size, Hardware, & Locations
Typical process will consist of 2 to 3 meetings within 4 to 5 weeks.
Action Items
Catalyst schedules DD meetings to solidify millwork / casework elevations, door size, types and hardware, equipment, electrical and data outlet locations.
Catalyst releases the Architect to proceed to next phase of design upon finalization of DD.














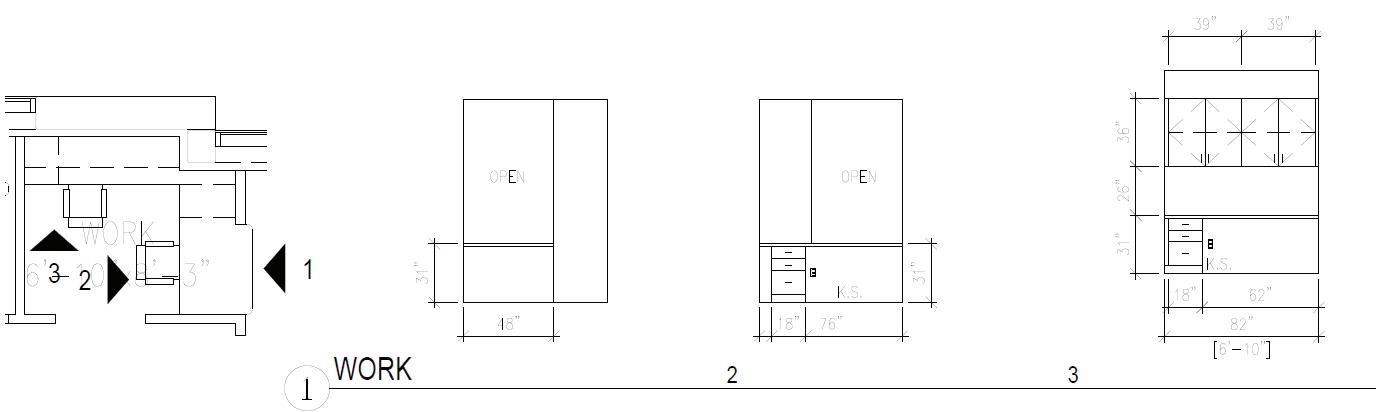
Example: Millwork / Casework Elevations

Finish Selections
Concurrent with DD, Catalyst will commence the review and evaluation of the finish selections for the practice space.













Catalyst worked with a professional interior designer to assemble finish options for walls, millwork / casework, and flooring. Three neutral-modern color palette schemes are assembled for immediate consideration: Land, Forest, & Sky. Each color palette offers multiple selections within its scheme. All materials are of high-quality, derived from reputable manufacturers, commercial grade, and will stand up to the rigorous requirements of healthcare.
Catalyst works with each practice to customize the finishes by room / use. All the information is summarized in a Finish Schedule and included within the Construction Documents (CD).
Typical process take place concurrent with the DD timeline and consists of 2 to 3 meetings within 4 to 5 weeks.


Action Items
Catalyst conducts a Finish Review meeting and Finish Selection Meeting.
Catalyst completes the Finish Schedule, review with each practice, and provides to Architect to incorporate into the CD.








The illustration above is an example of a completed Finish Schedule. Catalyst will obtain the associated information, complete and review the information with you to confirm your selections.







