Tenant Suite Design & Construction Guide

Page 5

Tenant Suite Design & Construction Guide Process To Design, Develop, & Construct A New Practice Location

CONGRATULATIONS

WELCOME AND ON YOUR NEW PRACTICE LOCATION

The Catalyst Development, Leasing, & Construction Team (Catalyst) is honored to be your partner throughout the design, development, and construction of your new practice space.

On your behalf, Catalyst coordinates and oversees all design, development, and construction activities required to take your space from a concept to a completed suite.

The purpose of this guide is to offer a summary of the overall process and set the precedence of the actions required to deliver your new practice space on time.

Each section provides a concise description of the phases involved, noted timelines to complete, and action items necessary to advance to the next development stage. The example drawings, diagrams, and documents help illustrate the items reviewed during each phase of the process.

Please feel free to contact your Catalyst Representative with any questions you have regarding the guide or at any time throughout the design, development, and construction process.

Sincerely,

2 Catalyst Healthcare Real Estate: Tenant Suite Design & Construction Guide

Overview

The overall development schedule must be adhered to in order to ensure the most cost-effective, timely, and efficient transition into your new practice space.

Tenants that deviate from the timelines risk increased construction costs, delay in the delivery, and the occupancy of the space.

Time is of the essence. Your concerted efforts are required to successfully deliver your practice space on time and on budget.

Step 1

Space Program

Page 4 - 5

Step 2

Schematic Design

Page 6 - 7

Step 3

Development Design

Page 8 - 9

Step 4

Finish Selections

Page 10 - 17

Step 5

Construction Drawings

Page 18 - 19

Step 6

Bidding & Pricing

Page 20 - 21

Step 7

Construction Commences

Page 22 - 23

Checklist

List of Action Items

Page 24 - 25

Contact Info

Catalyst Teams Information

Page 26 - 27

SD DD FIN CD BID CC LIST
INFO 7 - 8 Weeks 1 - 2 Weeks 4 - 5 Weeks 4 - 5 Weeks Concurrent with DD 4 - 5 Weeks 6 - 8 Months
SP
3 www.catalysthre.com/tenant-design-construct-guide

Space Program

The initial step to creating customized practice space involves Catalyst conducting a space evaluation. The evaluation consists of a series of questions meant to help Catalyst and the Architect gain an understanding of your current/desired workflow and future needs.

The answers provided are used to create a space program which the Architect uses as a guide to develop the initial Schematic Design drawings. Catalyst uses knowledge acquired through many years of healthcare design, development, and construction experience, to ensure the space program reflects your objectives.

Typical process will consist of 1 to 2 meetings within 1 to 2 weeks.

ACTION ITEMS

Catalyst conducts interview to obtain details regarding practice space and flow requirements.

Catalyst creates Space Program, vets with you, provides to the Architect for reference.

SD DD FIN CD BID CC
SP
4
Catalyst Healthcare Real Estate: Tenant Suite Design & Construction Guide

Example Space Program

Waiting 1 4 25 100 Would like 4 chairs Reception / Business Area 1 1 80 80 Work Area; Adjacent CI/O - where the OM sits Check-In 1 1 60 60 Located at reception (1 person does CI/O) Check-Out 1 0 60 - Located at reception Business Offices 1 1 100 100 1 very small private office Billing Offices 0 0 80General Storage 1 0 100IT Closet / General Strorage 1 1 50 50 Staff Toilet 0 0 100Staff Lounge 1 1 200Summary 390 Circulation Factor (1.30) 117 Circulation / wall thickness Subtotal 507 Rooms Units SF Net SF Comments Admin / Support Nurse Station(s) 0 0 60Physician Dictation Area 0 0 45Lab 0 0 120Triage Area 0 0 80Treatment Room 2 2 120 240 2 standard exams Treatment Room 0 0 150Therapy Room 0 0 90Toilet 0 0 55Med Room 0 0 35Bio-Hazard Room 0 0 35Soiled Room 0 0 35Janitorial Closet 0 0 20Physician Office 0 0 100Clinical Area Summary 240 Circulation Factor (1.30) 72 Circulation / wall thickness Subtotal 312 Estimated Totals Admin / Support 507 Clinical Area 312 Estimated Usable Square Feet (USF) 819 Estimated Rentable Square Feet (RSF) 942
5 www.catalysthre.com/tenant-design-construct-guide

Schematic Design

The Architect will use the space program information to produce an aerial view, known as a Schematic Design (SD) of your practice space. Once the SD is produced, Catalyst will coordinate a meeting with you and the Architect to discuss the layout. Every element of the Schematic Design drawings will be reviewed to ensure the potential placement of walls, doors, cabinets, sinks, and equipment provide the best possible flow in the most efficient way possible.

The Architect will use your feedback to update the SD. One to two drawing versions and meetings will take place to modify the SD according to your feedback to meet your needs and objectives.

The Architect will use the updated SD to electronically measure the rentable square footage (RSF) of the practice space. Catalyst will then inform you of the updated RSF. Once the SD is finalized, Catalyst will release the Architect to proceed to the next phase, Design Development (DD). At this time, the size and layout of the practice space is solidified.

Typical process will consist of 2 to 3 drawings, 2 to 3 meetings, within 4 to 5 weeks.

ACTION ITEMS

Catalyst conducts SD meetings to solidify space design.

Catalyst releases Architect to proceed to the next phase of design upon finalization of the SD.

SD SP DD FIN CD BID CC
6 Catalyst Healthcare Real Estate: Tenant Suite Design & Construction Guide
7 www.catalysthre.com/tenant-design-construct-guide
The illustration above is an example Schematic Drawing (SD) created by the Architect based on the information provided by the Tenant and in the Space Program.

Design Development

DD drawings build upon the SD by illustrating locations and elevations of millwork / casework, door sizes and types, door hardware, electronic equipment locations, electrical / power outlet locations / heights, and data outlet locations / heights.

Catalyst and the Architect will lead you through a discussion of the workflow, use of each room, and evaluate both the staff and patient experience. This process allows you to maximize the effectiveness of each room.

Typical process will consist of 2 to 3 meetings within 4 to 5 weeks.

ACTION ITEMS

Catalyst schedules DD meetings to solidify millwork / casework elevations, door size, types and hardware, equipment, electrical and data outlet locations.

Catalyst releases the Architect to proceed to next phase of design upon finalization of DD.

DD SP SD FIN CD BID CC
8 Catalyst Healthcare Real Estate: Tenant Suite Design & Construction Guide

Example: Data Outlet Locations

Example: Electronic Equipment Locations

LEGEND

DATA OUTLET 18” AFF DATA OUTLET 72” AFF DATA OUTLET 42” AFF DATA OUTLET (FLOOR)

Example: Electrical Outlet Locations

LEGEND

COPY / FAX / PRINT MONITOR TELEVISION PHONE / COMPUTER

Example: Door Size, Hardware, & Locations

DUPLEX GRD 18” AFF

DUPLEX 110V 18” AFF

DUPLEX GRD ABOVE DUPLEX GRD 72” AFF

DBL DUPLEX 18” AFF DUPLEX GRD (FLOOR)

PAD 4’-0” DOOR

3’-0” DOOR

READER 3’-4” POCKET DOOR KEYED ACCESS

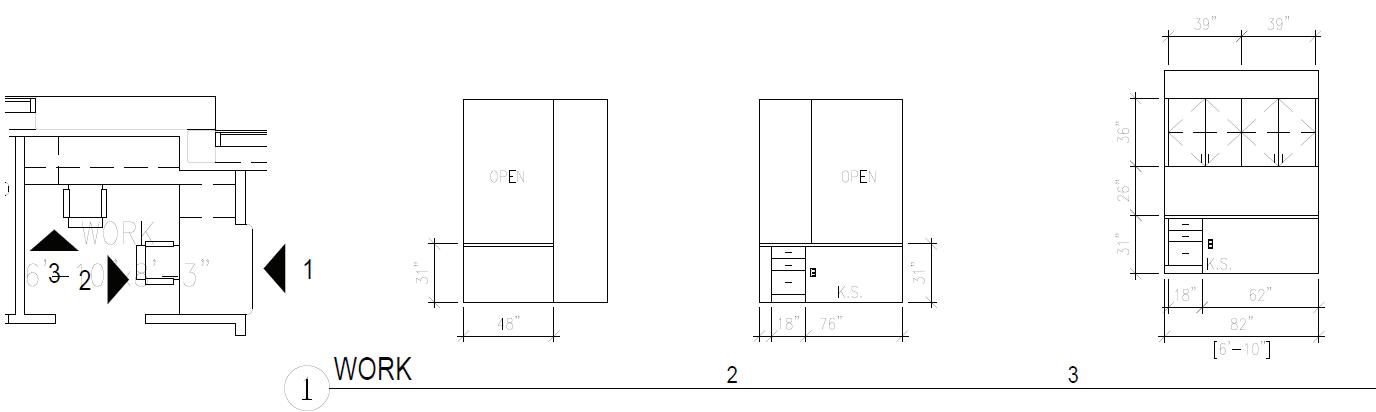
Example: Millwork / Casework Elevations

9
LEGEND
LEGEND
KP CR www.catalysthre.com/tenant-design-construct-guide
KEY
CARD
K

Finish Selections

Concurrent with DD, Catalyst will commence the review and evaluation of the finish selections for the practice space.

Catalyst worked with a professional interior designer to assemble finish options for walls, millwork / casework, and flooring. Three neutral-modern color palette schemes are assembled for immediate consideration: Land, Forest, & Sky. Each color palette offers multiple selections within its scheme. All materials are of high-quality, derived from reputable manufacturers, commercial grade, and will stand up to the rigorous requirements of healthcare.

Catalyst works with each practice to customize the finishes by room / use. All the information is summarized in a Finish Schedule and included within the Construction Documents (CD).

Typical process take place concurrent with the DD timeline and consists of 2 to 3 meetings within 4 to 5 weeks.

ACTION ITEMS

Catalyst conducts a Finish Review meeting and Finish Selection Meeting.

Catalyst completes the Finish Schedule, review with each practice, and provides to Architect to incorporate into the CD.

FIN SP SD DD CD BID CC
10 Catalyst Healthcare Real Estate: Tenant Suite Design & Construction Guide

The illustration above is an example of a completed Finish Schedule. Catalyst will obtain the associated information, complete and review the information with you to confirm your selections.

11
www.catalysthre.com/tenant-design-construct-guide

Land Scheme

Paint Options

Accent Wall Paint: Sherwin Williams, SW7065 Argos

General Wall Paint / Door Frames: Sherwin Williams, SW9165 Gossamer Veil

Accent Wall Paint: Sherwin Williams, SW7031 Mega Greige

FIN SP SD DD CD BID CC
12 Catalyst Healthcare Real Estate: Tenant Suite Design & Construction Guide

Flooring Options

Vinyl Composite Tile (VCT): Armstrong 51901 Taupe

Luxury Vinyl Tile (LVT): Mannington Spacia SS5A6130 Mirus Hemp

Rubber Base: Tarkett, 121 Cement

Millwork / Casework Options

Carpet Tile (CPT): Mannington Raffia 42332 Broom

Sheet Vinyl: Mannington Biospec MD 18384 Flint

Laminate Countertop 1: Wilsonart 5011K-22 Potter’s Clay

Laminate Casework: Formica 8844 Aged Ash

Laminate Countertop 2: Wilsonart 4947-38 Raw Cotton

www.catalysthre.com/tenant-design-construct-guide

13

Forest Scheme

Paint Options

Accent Wall Paint: Sherwin Williams, SW7059 Unusual Gray

General Wall Paint / Door Frames: Sherwin Williams, SW9166

Drift of Mist

Accent Wall Paint: Sherwin Williams, SW7017

Dorian Gray

FIN SP SD DD CD BID CC
14 Catalyst Healthcare Real Estate: Tenant Suite Design & Construction Guide

Flooring Options

Vinyl Composite Tile (VCT): Armstrong 51927 Field Gray

Luxury Vinyl Tile (LVT): Mannington Spacia SS5A3622 Ridge Slate

Rubber Base: Tarkett, 469 Mystify

Millwork / Casework Options

Carpet Tile (CPT): Mannington Husk 43333 Sorrel

Sheet Vinyl: Mannington Biospec MD 18384 Flint

Laminate Countertop 1: Wilsonart

4886-38 Pearl Soapstone

Laminate Casework: Formica 8844 Aged Ash

Laminate Countertop 2: Wilsonart 4947-38 Raw Cotton

www.catalysthre.com/tenant-design-construct-guide

15

Sky Scheme

Paint Options

FIN SP SD DD CD BID CC
African Gray
Accent Wall Paint: Sherwin Williams, SW9162
Repose
Online 16 Catalyst Healthcare Real Estate: Tenant Suite Design & Construction Guide
General Wall Paint / Door Frames: Sherwin Williams, SW7015
Gray Accent Wall Paint: Sherwin Williams, SW7072

Flooring Options

Vinyl Composite Tile (VCT): Armstrong 51904 Sterling

Luxury Vinyl Tile (LVT): Mannington Spacia SS5A6120 Mirus Feather

Rubber Base: Tarkett, 38 Pewter

Millwork / Casework Options

Carpet Tile (CPT): Mannington Husk 12336 Carob

Sheet Vinyl: Mannington Biospec MD 18384 Flint

Laminate Countertop 1: Wilsonart

4991-38 Pressed Linen

Laminate Casework: Formica 8844 Aged Ash

Laminate Countertop 2: Wilsonart 4947-38 Raw Cotton

www.catalysthre.com/tenant-design-construct-guide

17

Construction Documents

The CD is a complete set of architectural drawings combined with engineered drawings.

The culmination of all the information gathered from previous meetings are combined and provided to the engineers. The engineers will produce detailed plans related to mechanical, electrical, plumbing, and, if applicable, structural engineering of the practice space. Final details are also incorporated, such as door hardware and locking mechanisms.

The CD is reviewed with you as a final check to confirm all your requests, objectives, and goals are met. Catalyst provides the finalized CD to the General Contractor (GC) for pricing.

Typical process will consist of 2 to 3 meetings within 7 to 8 weeks.

ACTION ITEMS

Catalyst conducts CD review meetings to confirm mechanical, electrical, plumbing, & finish selections.

Catalyst provides the CD to GC for pricing. Magnified Section: Door Hardware

CD SP SD DD FIN BID CC
18
Catalyst Healthcare Real Estate: Tenant Suite Design & Construction Guide

CD is the complete set of drawings used to construct the practice space and can be up to 20+ pages. Below is an example page from the CD which explains the details related to the chosen finishes, ceiling grid, dimensions of the suite, and doors.

19 Magnified Section: Door Locations www.catalysthre.com/tenant-design-construct-guide

Bidding & Pricing

Catalyst works on your behalf to alleviate the burden of evaluating costs. Catalyst uses its vast expertise and experience to ensure each practice receives the most affordable pricing available.

The finalized CD is submitted to the GC to obtain detailed pricing and required permit approvals to construct the practice space. The GC provides Catalyst a cost breakdown of the material, labor, and hard and soft construction costs associated with the CD created for your practice space. Catalyst evaluates the pricing information for each line item and works with the GC to reduce costs.

Once Catalyst obtains the best costs, your Catalyst Representative will present the cost in the form of the Lessee Cost Construction Approval (LCCA). Value engineering options may also be presented to help reduce costs even further. In the LCCA, the total Tenant Improvement (TI) costs is subtracted by the TI Allowance (TIA), which is provided by the Lessor. The cost remaining shows the Tenant Improvement Balance (TI Balance), which is the amount the Tenant owes to the Lessor.

Typical process will consist of 1 to 2 meetings within 4 to 5 weeks.

ACTION ITEMS

Catalyst conducts a meeting to review the total improvement costs with you.

Catalyst releases the General Contractor to commence construction.

BID SP SD DD FIN CD CC
20 Catalyst Healthcare Real Estate: Tenant Suite Design & Construction Guide

Example LCCA

The numbers used below are not actual amounts and only demonstrate a complete LCCA.

Lessor: Catalyst Properties Lessee: ABC Healthcare Suite: 1600 Use: Optometry RSF: 921 CD Date: 9/4/2020 LCCA Date: 10/14/2020
Construction
Lessee Cost &
Approval
Hard Construction Costs Amount Amount / RSF General Requirements $4,372 4.75 Concrete -Cabinets & Countertops $7,890 8.57 Roof Flashing $850 0.92 Chaulking $383 0.42 Doors, Frames, Windows $5,646 6.13 Glass and Glazing $2,590 2.81 Drywall / Acoustic Ceiling Tile $18,058 19.61 Lighting $3,444 3.74 Flooring $2,221 2.41 Painting and Sheetrock Finishing $630 0.68 Specialties $1,520 1.65 Fire Sprinkler $4,340 4.71 Plumbing $7,943 8.62 HVAC $12,450 13.52 Electrical & Fire Alarm $15,839 17.20 Permits & Fees $648 0.70 Project Reimbursables $2,158 2.34 Insurance & Bonds $1,554 1.69 Fee $3,897 4.23 Total Hard Construction Costs $96,433 104.70 Architectural Fees $5,501 5.97 Total TI Costs of Lessee Improvements $101,934 110.68 Total TI Costs of Tenant Improvements: $101,934 110.68 Tenant Improvement Allowance (TIA): ($78,285) (85.00) Tenant Improvement Balance (TI Balance): $23,649 25.68 Tenant Improvement Balance (TI Balance) owed by Lessee to Lessor: $23,649
21 www.catalysthre.com/tenant-design-construct-guide

Construction Period

Once the GC is released to commence construction, a detailed construction schedule is provided. Catalyst will conduct periodic walk throughs of the practice space with you to monitor the progression of construction. Catalyst will also coordinate and assist your vendors (technology, phone services, etc.) to ensure they receive access to the practice space as needed.

When construction is nearing completion, Catalyst will introduce you to the Catalyst Property & Asset Management Team. They will assist you with the transition and opening of your new practice space. Catalyst will also schedule a final walk through with you to prepare a punch-list of items that require correcting. These items are minor in nature and will not interfere with obtaining the Certificate of Occupancy (CO) from governing authorities.

Upon receipt of the CO, Catalyst will provide the Commencement Date Certificate which evidences the Lease commencement date, term, total RSF of the Building, the Premises, pro rata share of space, monthly Base Rent, security deposit amount, and other pertinent details specific to your transaction. Typical process will consist of scheduled walkthroughs within 4 to 6 months

ACTION ITEMS

Catalyst conducts walk through visits with you to monitor the progression of the construction. Catalyst obtains vendor information and coordinates access.

Catalyst conducts punch-list walk through.

CC SP SD DD FIN CD
BID
22 Catalyst Healthcare Real Estate: Tenant Suite Design & Construction Guide
Catalyst obtains the Certificate of Occupancy. Catalyst Property & Asset Management Team assists with transitioning and opening your new practice. 23 www.catalysthre.com/tenant-design-construct-guide

ACTION ITEMS

SP - Space Program

Catalyst conducts interview to obtain details regarding practice space and flow requirements.

Catalyst creates Space Program, vets with you, provides to the Architect for reference.

SD - Schematic Design

Catalyst conducts SD meetings to solidify space design.

Catalyst releases Architect to proceed to the next phase of design upon finalization of the SD.

DD - Design Development

Catalyst schedules DD meetings to solidify millwork/casework elevations, door size, types and hardware, equipment, electrical and data outlet locations.

Catalyst releases the Architect to proceed to next phase of design upon finalization of DD.

Catalyst conducts a Finish Review meeting and Finish Selection Meeting.

Catalyst completes the Finish Schedule, review with each practice, and provides to Architect to incorporate into the CD.

CD - Construction Drawings

Catalyst conducts CD review meetings to confirm mechanical, electrical, plumbing, and finish selections.

Catalyst provides the CD to General Contractor for pricing.

24 Catalyst Healthcare Real Estate: Tenant Suite Design & Construction Guide

BID - Bidding & Pricing

Catalyst conducts a meeting to review the total improvement costs with you.

Catalyst releases the General Contractor to commence construction.

CC - Construction Commences

Catalyst conducts walk through visits with you to monitor the progression of the construction.

Catalyst obtains vendor information and coordinates access.

Catalyst conducts punch-list walk through.

Catalyst obtains the Certificate of Occupancy.

Catalyst Property & Asset Management Team assists with transitioning and opening your new practice

25 www.catalysthre.com/tenant-design-construct-guide

Catalyst Development & Leasing Team

Elisha Pacheco

SVP, Development & Leasing (414) 617-1797

epacheco@catalysthre.com

Scan to save contact info >

Brandon McFarren

VP, Development & Leasing (850) 698-6068

bmcfarren@catalysthre.com

Scan to save contact info >

Carmelo Curatola

Leasing Associate (608) 345-4817

ccuratola@catalysthre.com

Scan to save contact info >

26
Catalyst Healthcare Real Estate: Tenant Suite Design & Construction Guide

Stuart Armstrong

SVP, Development & Construction (414) 617-3930

sarmstrong@catalysthre.com

Scan to save contact info >

Doug Doucette

VP, Development & Construction (850) 712-2010

ddoucette@catalysthre.com

Scan to save contact info >

Mike

VP, Development & Construction (262) 378-1999

mthielel@catalysthre.com

Scan to save contact info >

www.catalysthre.com/tenant-design-construct-guide

27
Catalyst Development & Construction
Team
Thiele
28 Catalyst Healthcare Real Estate: Tenant Suite Design & Construction Guide Catherine Ball Assistant Project Manager (708) 308-2262
Scan to save contact info >
Craig Gagnon Senior Project Manager (850) 686-0223 cgagnon@catalysthre.com Scan to save contact info > Nick Congdon VP, Development & Construction (920) 728-3934 ncongdon@catalysthre.com Scan to save contact info >
cball@catalysthre.com
Catalyst Development & Construction Team

Turn static files into dynamic content formats.

Create a flipbook
Issuu converts static files into: digital portfolios, online yearbooks, online catalogs, digital photo albums and more. Sign up and create your flipbook.
Tenant Suite Design & Construction Guide by Stephanie Robinson - Issuu