M端nchenstein/Basel, Switzerland
N
P. 80 Project / P. 309 Images
No. 169 Schaulager
1
3 S1
1
1
4
5
1
0
5
1:700
10
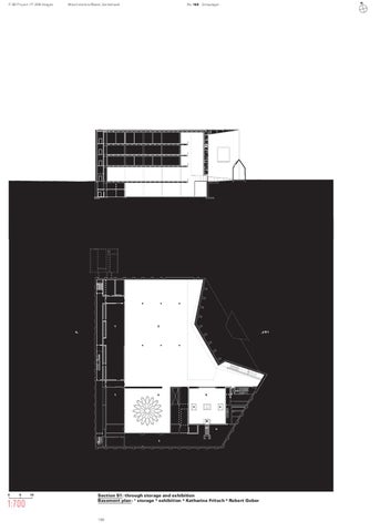
Section S1: through storage and exhibition Basement plan: 1 storage 3 exhibition 4 Katharina Fritsch 5 Robert Gober
188
![]()
M端nchenstein/Basel, Switzerland
N
P. 80 Project / P. 309 Images
No. 169 Schaulager
1
3 S1
1
1
4
5
1
0
5
1:700
10
Section S1: through storage and exhibition Basement plan: 1 storage 3 exhibition 4 Katharina Fritsch 5 Robert Gober
188