

NEW DEVELOPMENT OPPORTUNITY
OCEAN ROAD ESTATE
This 3 acre+/- property is a canvas of mature specimen trees that is capable of yielding a full program. The lot currently boasts a 2,300 SF+/- main residence with 4 bedrooms, 2 full bathrooms, a heated gunite pool, and two accessory structures.




This magnificent lot allows for the development of a large main residence surrounded by an accessory structure, a resort-style pool, and a regulation tennis court. Reimagine this stunning lot to create your dream residence while maintaining the beauty of the parcel’s landscape.

FEATURES & AMENITIES
946 OCEAN ROAD, BRIDGEHAMPTON, NY
CO-EXCLUSIVE | $13,495,000
RAYMOND RENAULT ARCHITECT
CURRENT OVERVIEW
• 3 Acres+/-
• Built in 1984
• 2,300 SF+/-
• 5 Bedrooms in Total
• 4 Full Bathrooms in Total
• Detached 2-Car Garage
• Accessory Structure
• Mature Specimen Trees
• Ample Lawn Space
• Heated Gunite Pool
• Pool Pavilion LOCATION
• South of the Highway
• Premier Ocean Road Address
• 0.64 Miles+/- to Ocean Road Beach
• 2 Miles+/- to Bridgehampton Shopping and Dining
PROPOSED NEW BUILD
• 14,512 SF+/- Main Residence
• 11 Bedrooms
• 11 Full & 3 Half Bathrooms
• Attached 3-Car Garage
• Pool Pavilion Interior:
– Kitchen
– Powder Room
– Pool Storage
• Pool Pavilion Exterior:
– Kitchen
– Lounge & Dining Area
– Fireplace
– Shower
• Heated Gunite Pool
• Detached Spa
• 60’ X 120’ Sunken Tennis Court
• Tennis Pavilion

PLANS IN PLACE
Plans are in place by notable Hamptons architect Raymond Renault for a new development opportunity yielding a 14,512 SF+/- main residence with a finished lower level, a heated gunite pool & spa, attached garage, plus a sunken regulation sized tennis court.






CONCEPTUAL

CONCEPTUAL RENDERING



LOCATION
Situated in a premier location just over half a mile from Ocean Road Beach, and a short distance from shops and restaurants on Bridgehampton’s Main Street, this spectacular residence affords the ability to enjoy all that the Hamptons has to offer.
946 OCEAN ROAD, BRIDGEHAMPTON, NY
FIRST LEVEL
• 6,293 SF+/-
• Living Room
• Study/Lounge
• Primary En-Suite Bedroom:
– Primary Bathroom
– Sitting Room
– Walk-in Closet
– Private Terrace
• Den
• Wet Bar
• Powder Room
• Elevator
• Chef’s Kitchen:
– Center Island
– Dining Area
– Pantry
– Laundry Room


946 OCEAN ROAD, BRIDGEHAMPTON, NY
SECOND LEVEL
• 5,145 SF+/-
• Junior Primary En-Suite Bedroom:
– Junior Primary Bathroom
– Walk-in Closet
– Private Terrace
• 5 En-Suite Bedrooms
• Laundry Room
• Elevator


946 OCEAN ROAD, BRIDGEHAMPTON, NY
LOWER LEVEL
• 3,148 SF+/-
• Recreation Room
• Yoga Room
• Gym
• Powder Room
• 2 En-Suite Bedrooms
• Ample Storage


946 OCEAN ROAD, BRIDGEHAMPTON, NY
GARAGE
• 986 SF+/-
FIRST LEVEL:
• 3-Car Garage
• Powder Room
• Mudroom
SECOND LEVEL:
• 2 En-Suite Bedrooms


946 OCEAN ROAD, BRIDGEHAMPTON, NY
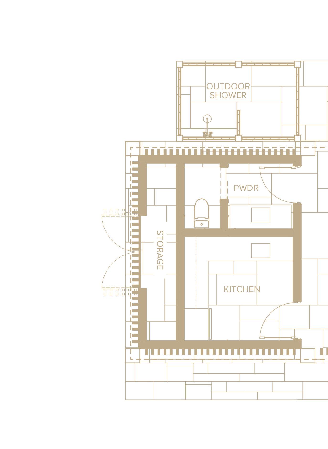
POOL PAVILION
• 949 SF+/INTERIOR:
• Kitchen
• Powder Room
• Pool Storage
EXTERIOR:
• Kitchen: – Lynx Grill – Built-in Storage – 24” Refrigerator – Sink
• Lounge & Dining Area
• Fireplace
• Shower


946 OCEAN ROAD, BRIDGEHAMPTON, NY

SITE PLAN

