GEBIEDSONTWIKKELING AXEL NOORD

Informatieavond 02 / 03 juli 2025





![]()

Informatieavond 02 / 03 juli 2025






BEWONERS
BIJEENKOMST 1
OPHAALSESSIE
Q 1 2025
Q 2 2025
BEWONERS
BIJEENKOMST 2
TERUGKOPPELING Q 2/3 2025 STEDENBOUWKUNDIG PLAN Q 3 2025
BEWONERS
BIJEENKOMST 3
TERUGKOPPELING
Q 3/4 2025
VASTSTELLEN
STEDENB. PLAN & PROCEDURE
OMGEVINGSPLAN
Q 4 2025

Ophalen wensen & ideeën
Wat zijn de zorgen
Wat is er voor u van belang

• Paulus Potterpad doortrekken naar het parkje
• Bestaande groenstructuren zorgvuldig inpassen en verweven in de nieuwe buurt
• Behoud van natuurwaarde
• Privacy waarborgen bestaande woningen
• Openheid/uitzicht zoveel mogelijk behouden
• Traditionele woning in de nieuwe buurt
• Veiligheid bij open water in de wijk
• Minimale overlast van verkeer nieuwbouw woningen
• Wandel en fietsroutes doortrekken


Axel- stadje met 2 gezichten;
• Aan de Kreek en aan de polder
• Zachtgroene overgang stedelijk gebied–kreeklandschap
• Harde overgang naar de polders
• Krekenlopenalsaderen door de polder
• Groene Dijken met karakteristieke groene erven in het polderlandschap

Dijken in de polders: Zaaidijk, Plattedijk, Doorndijk, Eglantiersdijk, Zaamslagdijk, etc.
Tol-Dijk-Vaartnaar Terneuzen/ Vaartwijk
Doorndijk
Historische erven “Nooit Gedacht”, Doorn Hof, Loose’s Hof, Lust Hof
Boomgaard
Historische erf
Erven in de polder
Spoorlijn
Buthkreek
Watertoren
Kerk met de tuin
Axelse Kreek














verscheidenheid kleinschalig dorps en landelijk lintbebouwing groenwonenaan het water tuinstraatjes groene erven










Woonopgave:
• Groen-dorpse uitbreiding van Axel
• Met een woningdichtheid 18-25 won/ha (ca. 340-470 woningen)
• Programma 30 % (sociaal) – 40 % (betaalbaar/middelduur) – 30 % (vrije sector/duur)
• Verschillende doelgroepen (jongeren, starters, senioren, gezinnen)
• Wijk wordt gefaseerd ontwikkeld; ieder stap als afgerond geheel
Groen/recreatie:
• Groene karakter en betekenis als (rustig) uitloopgebied zoveel mogelijk behouden
• Robuust groenstructuur; Ecologie & Biodiversiteit versterken
• Versterken aantrekkingskracht, samenhang en toegankelijkheid openbaar groen
• Veel ruimte voor buitenspelen
Biodiversiteit en klimaat:
• Behouden en waar mogelijk versterken natuurwaarden
• Specifieke kansen voor park/bosranden en stadsnatuur
• Voorbereid op meer droogte en piekbuien: spons
• Klimaat adaptieve nieuwe woonbuurt
• Meer robuuster systeem, samenhang tussen deelgebieden, cascade op alle schaalnivo’s
Mobiliteit:
• STOMP- principe voor mobiliteit; minimaal 2 fiets/voet verbindingen met de bestaande omgeving
• Auto-ontsluiting via Buthstraat, 2 á 3 aansluitpunten
• Nieuwe wijk is bestemming voor de auto, niet als doorgaande route
• Parkeernorm - gemiddeld 1,6 -2,2 pl/won (CROW norm) 1,6
Sociaal:
• Veilige, gezonde, duurzame en aantrekkelijke leefomgeving
• Ruimte voor ontmoeten voor diverse doelgroepen










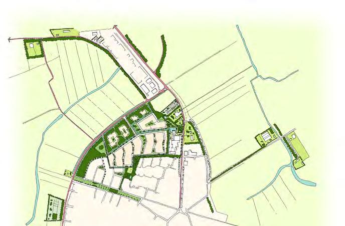
AMBITIE: GROENE & KLIMAAT ADAPTIEVE WIJK





Hoofdstructuur (conceptueel) op basis van:
• Ondergrond (water en bodem sturend)
• Historische patronen
• Verbindingen
• Randen
Buthpolder & groene dijk
PLANGEBIED

• Rand van Axel- robuust groen
• Met woonclusters in parkbos
• Informele aansluiting op bestaande wijk
• Met groene woonstraten
• Doortrekken van bestaande paden
• Bestaande watergang integreren
• Structuur van woonerven aan de Nieuwedijk
• Route naar de Nieuwedijk via Pot
• Verblijfsplek aan het water
• Ontsluiting centraal




• Rand van Axel- representatief met woonbebouwing aan het groen
• Groene kreek als hart van de wijk
• Verbonden met spoorpark en bestaande wijk
• Compacte buurtjes met ontmoetingsplekken
• Structuur van woonerven aan de Nieuwedijk
• Route naar de Nieuwedijk via Pot
• Verblijfsplek aan het water
• Mogelijkheid om eventuele voorzieningen te integreren aan op het eiland
• Ontsluiting via randen




• Rand van Axel- representatief met woonbebouwing aan het groen
• Groene centrale ruimte als hart van de wijk
• Verbonden met spoorpark en bestaande wijk
• Compacte buurtjes met ontmoetingsplekken
• Bestaande watergang integreren
• Structuur van woonerven aan de Nieuwedijk
• Route naar de Nieuwedijk via Pot
• Verblijfsplek aan het water
• Mogelijkheid om eventuele voorzieningen te integreren aan de groen hart
• Ontsluiting via randen



Hoofdstructuur waarin onderdelen elkaar versterken :
• Groen- en waterstructuur (met gebruikswaarde, belevingswaarde en toekomstwaarde);
• Hoofdontsluiting (volgens STOMP principe);
• Woonmilieus (in faseerbare, afgeronde eenheden);
• Hart met reservering voor eventuele toekomstige voorziening.
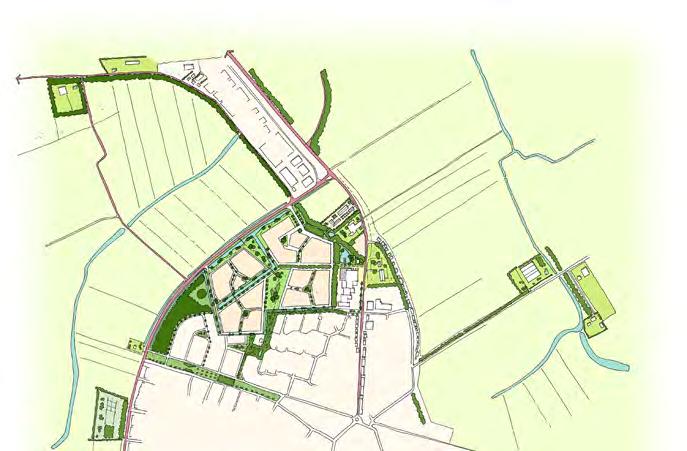
CONCEPT 1
WONEN AAN DE GROENE RAND VAN AXEL

CONCEPT 2

CONCEPT 3
COMPACTE WOONBUURTJES AAN EEN


• Rafelige groene stadsrand
• Robuust groenstructuur:
• Klimaat adaptieve hoofdstructuur met ruimte voor schaduw en waterberging;
• Groene ruimte voor ontmoeten en spelen











Plekken: Boomgaard
Buurtplekjes
Dijkgroen
Routes:
Polderroute
Wijkgaard






Doorndijk

Plattedijk
Recreatieve polderroutes
Korte stad-wijk routes
Paulus Potter pad- recreatieve buurt pad
Wandelroutes tussen de buurten



Twee ontsluitingspunten aan de Buthstraat
Geen doorgaand (sluip)verkeer
Informele ontsluiting van de buurtjes
Woningen bereikbaar met de auto maar de straten autoluw

Groene stadsrand aan de Buthstraat-Buthpolder









Buthgaard – groene hart met een boomgaard







Klimatadaptieve Hoofdstructuur – groene wadi tussen de buurtjes







Groene woonstraten












Randen en overgang naar bestaande omgeving




Aansluiting op bestaand buurt aan het parkje

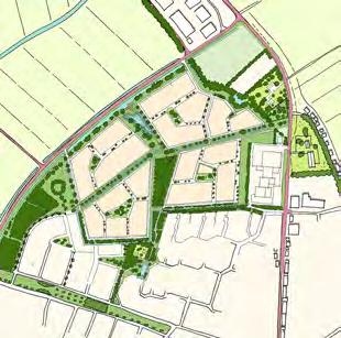
A

Met groene openbare ruimte langs de bestaande sloot en voorkanten nieuwe woningen Van gevel tot gevel


(zuidwest rand) variant A


Overgang/aansluiting op bestaand buurt aan het parkje


Met achtertuinen van nieuwe woningen


zuidwest rand variant B


Overgang/aansluiting op bestaand buurt aan het parkje

Variant C




Van gevel tot gevel ca. 35 m Openbaar gebied ca. 20 m
Paulus Potterpad- groene openbare ruimte met wandelpad



zuidwest rand
variant C
Openbare groen-blauwe zone langs met wandelpad


Aansluiting Paulus Potter pad
variant A
Met achtertuinen aan het groen




Aansluiting Paulus Potter pad
variant B
Met voorkanten bebouwing aan het groen




Aansluiting op erf aan de Nieuwendijk

Van gevel tot gevel ca. 50-55 m





Aansluiting op Pot gebouw

Met een houtwal en achtertuinen van nieuwe woningen




