Skip to main content

Summary portfolio_LINO

Page 1

p o r tf o li o

architecture and urbanism

cover image: textuteS & overlays

MARIA LINO

architect and urban planner majeliagui@gmail.com

ARCHITECT AND URBAN PLANNER FROM PONTIFICIA UNIVERSIDAD CATÓLICA DEL PERÚ INTERESTED IN ARCHITECTURAL DESIGN, SOCIAL HOUSING, GRAPHICS, MANAGEMENT AND CONSTRUCTION, URBAN PLANNING AND SUSTAINABILITY. MY GOAL IS TO ENRICH MY ABILITIES AND KNOWLEDGE CONSTANTLY BEING A PARTICIPANT IN DIFFERENT PERSONAL DEVELOPMENT OPPORTUNITIES TO IMPROVE PEOPLE´S ENVIRONMENT THROUGH DESIGN.

maRIALINO.carrd.co

more info:

ABCD CENTER

LOCATION: ALDO CHAMOCHUMBI SPORT CENTER

(MAGDALENA DEL MAR, LIMA, PERU)

FINAL CAREER PROJECT

TEACHERS: RODOLFO CORTEGANA / PATRICIA LLOSA

AUTHOR: MARIA LINO

DESCRIPTION: The design of a Civic Center is contemplated by the OSCE as a set of buildings for the satisfaction of certain services of the population, in addition the conception of this infrastructure in the country is directed strictly towards the differentiation of its programs by floors having as strict connectors only the corridors, stairs and waiting spaces, relegating the interaction and recreation of the users only to the public space that surrounds it through the green areas. Faced with this question, how could a building aspire to its multifunctionality without losing its “civic” character and functioning as a gear between the city and its territory?

01.
READ MORE:
CURRENT SITUATION Orthophotography PROJECT IN CONTEXT Axonometry
E F F A B G H 1 1 2 2 3 3 6 6 NP ±0 0 - 0NPT - 0N T - 5 N T -1 0 N T -1 0 C D J K 5 5 SITUATION FLOOR PLAN Planimetry SLOPE CONTAINMENT Axonometry
THE INHABITED TRIBUNE Vanished section
1 2 3 4 5 6 6 5 4 3 2 1 TRANSVERSAL A Section TRANSVERSAL B Section
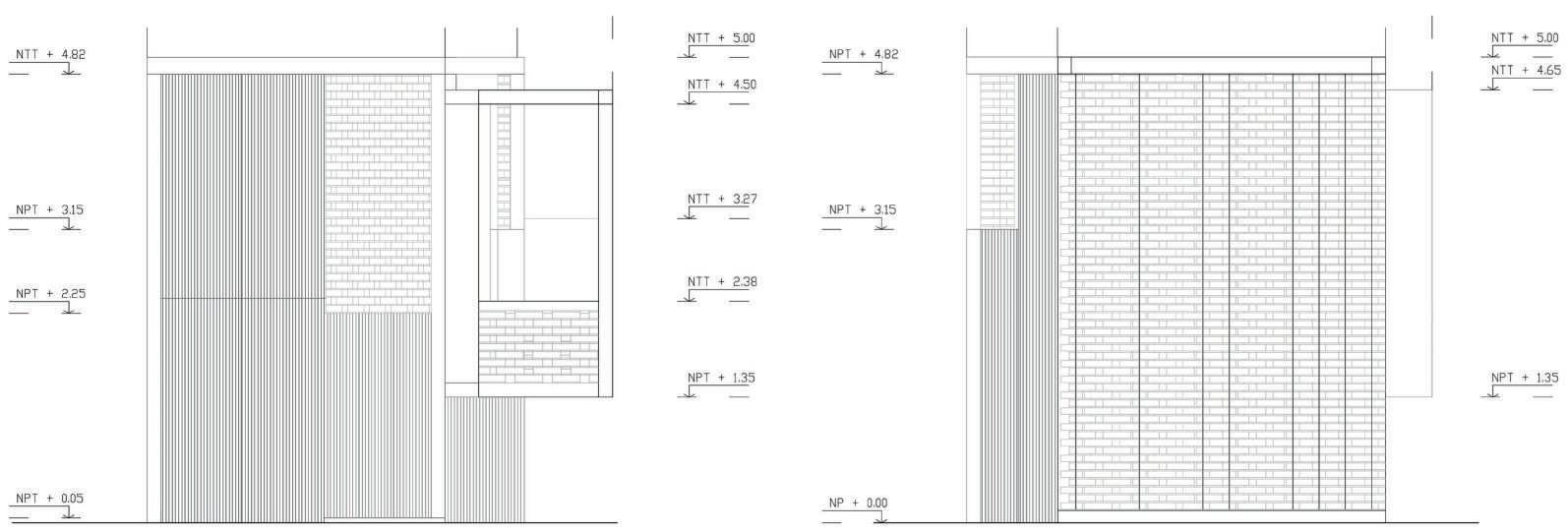
SOUTH Elevation NORTH Elevation
EAST Elevation WEST Elevation
CIRCULATION AND ITS INTERMEDIATES Fragment BEETWEEN THE
AND THE
section
CLIFF
CITY Vanished
WEST GRANDSTAND Exploded drawing EAST GRANDSTAND Exploded drawing
WEST GRANDSTAND Fragment EAST GRANDSTAND Fragment
FROM GRANDSTAND TO GRANDSTAND (WEST-EAST) Piece
SOUTH GRANDSTAND (GREAT GRANDSTAND) Fragment
Piece THE TRIPLE FACADE (PARASOL, PLATE AND RAMP) Piece
FROM THE CLIFF TO THE CITY (SOUTH-NORTH)
FROM THE PUBLIC SQUARE FROM THE AIR View View
FROM THE FIELD-ATRUM View FROM THE AVENUE View
FROM THE INSIDE TO THE OUTSIDE View FROM THE TRIBUNE View

FUNGUS

LOCATION: SOLARIS VALLEY - MARS

COURSE: WORKSHOP 5

TEACHERS:

Peter Seinfeld

Philip Ferrer

AUTHOR: MARIA LINO

DESCRIPTION: Fungus is a project based on Stephen Hawking’s premise “life in the future will be interplanetary”. Based on this and from a deep investigation about materials and 3D printing technology, it is proposed how architecture could join scientific disciplines to make this challenge possible, designing a refuge habitat built with volcanic stone from the planet Mars and that fulfills the necessary requirements for survival such as: radiation protection, sand storms, heat conservation and no angles because of atmospheric pressure.

02.
05
06
07

HABBIT

LOCATION: Hypothetical

COURSE: Workship 5

TEACHERS:

Peter Seinfeld

Philip Ferrer

AUTHORS:

KIARA SAMOCHUALLPA, GONZALO MORALES, KAREN MALDONADO, ROCÍO MENDOZA, EMERSON QUISPE, MAX VIDAL, ANAHY RIMACHI.

DESCRIPTION: Fungus is a project based on Stephen Hawking’s premise “life in the future will be interplanetary”. Based on this and from a deep investigation, it is proposed how architecture could join other scientific disciplines to make this challenge possible, designing a refuge habitat built with the same rocks of the planet Mars and that meets the necessary requirements for survival. such as: radiation protection, sand storms, heat conservation and no angles by atmospheric pressure.

03.
10
18
19
20
21

KAWSAYKUQ

LOCATION: FAU PUCP - LIMA, PERU

COURSE: CONSTRUCTION 2

TEACHERS: LUIS MIGUEL MUÑOZ LI

AUTHORS: MARIA LINO, ANAHY RIMACHI, GONZALO MORALES, MELANIE QUEQUEZANA, LUCERO MONTEAGUDO, KAREN MALDONADO

DESCRIPTION: Kawsaykuq is a name derived from the word “fabric” since it proposes a masonry thread as the basis for the design in which the bricks are of different colors and allow the entry of light with an interesting pattern. In the same way, reinforced concrete is used with a related finish that manages to integrate. This viewpoint offers a unique spatiality from the double-height diagonal entrance, continuing through the half-level floor until reaching the balcony.

04. 58
59
61
62
65
66

SAND HOUSE

LOCATION: HYPOTHETICAL

COURSE: MATERIALS AND FINISHES

DIPLOMA: INTERIOR DESIGN

AUTHORS:

MARIA LINO

MILAGROS CÓNDOR EVELYN FLORES

DESCRIPTION: Three-level house for Sofía Mulanovich with a Boho Chic style, characterized by the use of ceramic for the “coastal” character of the client’s preference, walls in off-white tones and interiors with white cladding that blends with the texture of the nature of the stone, furniture with a thin and simple structure, wood and cold tones. The terrace has a swimming pool facing an environment for meditation.

05.1
SALA-COMEDOR
COCINA

BOHOME

LOCATION: HYPOTHETICAL

COURSE: TRENDS

DIPLOMA: INTERIOR DESIGN

AUTHORS:

MARIA LINO

MILAGROS CÓNDOR

EVELYN FLORES

DESCRIPTION: Two-level house in which the BOHO CHIC trend is applied as the predominant one, through the decoration of wicker objects, wooden elements and warm or neutral tones, as well as the addition of vegetation, and the fineness of the furniture structure. The use of color on the wall and the floor also accompany the purity of gray or white tones.

05.2

Turn static files into dynamic content formats.

Create a flipbook
Summary portfolio_LINO by Maria Lino - Issuu