

THAT’S THE POINT


CONTENTS
FROM PRAGUE WITH LOVE
HOW TO GET TO US?
TOGETHER TOWARDS A COMMON GOAL
HOW DO WE WORK?
WHAT YOU WILL SEE VIRTUAL REALITY WE WORK FOR
REFERENCES
PROJECTS
OREA CONGRESS HOTEL BRNO
IBIS OLD TOWM PRAGUE
OREA PLACE SENO
LA CORTE
CAFE READING ROOM
OFFICE CAMPUS HOPI HOLDING
KANCELÁŘE HEUREKA DANUBE HOUSE
KANCELÁŘE ACKEE

FROM PRAGUE WITH LOVE
Jsme ateliér spojující architekty a designéry z různých zemí. Sídlíme v Praze, evropské metropoli, která nás každý den inspiruje svou atmosférou. Je to úžasné místo pro život a tvorbu zvlášť.
Tvoříme, zde již deset let design, který má sloužit lidem. Vybudovali jsme si dobré jméno a těší nás, že máme důvěru klienrtů jako jsou světové hotelové řetězce ACCOR Hotels, Orbis Hotels, OREA Hotels a Julius Meinl Living.
Naše interiérová tvorba se však neomezuje jen na hotelový segment. Navrhujeme i veřejné prostory jakou jsou restaurace, kavárny, kanceláře, výstavní prostory a nebo rezidenční bydlení.
Our studio is located in one of the most beautiful European cities – a gorgeous place for living and creating. Prague is a city full of inspiration where you can encounter many beautiful people, walk around unforgettable works of architecture, and see a plethora of art and design in one place. Its genius loci will quickly get under your skin.
For a decade, we have been designing for people right here. We are grateful for the clients who put their trust in us, such as ACCOR Hotels, Orbis Hotels, OREA Hotels, and Julius Meinl Living, companies which own a number of hotels both within Prague and outside of it.
However, our interior work is not limited only to the hotel industry. We also design public spaces such as restaurants, cafes, offices, exhibition spaces, as well as residential spaces.

HOW TO GET TO US?
Naše návrhy vznikají v klidné lokalitě Liboce, která byla odedávna vyhledávaným výletním místem, rozkládajícím se ve vilové zástavbě s hojnou zelení mezi oborou Hvězda a údolím Divoké Šárky.
ATELIÉR
ZOAA
U silnice 631/15
161 00 Praha 6
Czech republic
+420 725 376 681
HEADQUARTERS
ZOAA s.r.o.
Hošťálkova 637/71
169 00 Praha 6
Czech republic
+420 722 926 037


TOGETHER TOWARDS THE GOAL
Co je nejdůležitější? Mít spolehlivý, schopný a kreativní tým. Společně totiž dojdeme nejdál. Jsme kolektiv architektů a inženýrů, kteří se těší na spolupráci s Vámi ...
The most important thing? A reliable, capable, and creative team. Together, we will go the distance. We are a collective of architects and civil engineers and we are looking forward to collaborating with you...





Daria
Karina Alemkhanova
Karolína Lokšíková
...OUR TEAM

Jakub Zoula Lenka Zoulová
Marek Kolář
Terézia Široká
Zuzana Stiborková
Vlasova






HOW DO WE WORK ?

Koncept! Hlavním pilířem projektu je dobře zpracovaný koncept. Je to spojení genia loci místa, požadavků investora a funkce.
“Koncept vzniká z pochopení všech aspektů, které se musí nejprve dobře zanalyzovat a až následně může vzniknout kvalitní a funkční návrh interiéru.”
Další fází je zpracování studie, což je zpřesnění a ověření samotného konceptu. Součástí studie je orientační propočet nákladů, který je por klienta klíčový. Studie se stává základem pro vypracování dalšího stupně projektové dokumentace, kterému říkáme prováděcí.
Concept! A good concept is the key to any project. It connects a site’s genius loci, the investor’s demands, and the function.
“A concept is born out of the understanding of all aspects of the projects, which need to be thoroughly analysed to give rise to a good and functional interior design.”
In the next stage of the project, we will conduct a Feasibility Study, to verify the concept and make it more accurate. As part of the study, we will come up with a cost estimate, which is essential for the client. Based on the study, we then process the design documentation, which documents the project and its implementation in detail.


Prováděcí dokumentaci se snažíme mít zpracovanou v potřebném detailu tak, aby dodavatelé byli schopni navrhovaný interiér bezproblémů zrealizovat. Snažíme se neustále zlepšovat a s každým projektem se učíme nové věci, které pak aplikujeme dále. Během několika let na menších i větších projektech jsme si vypracovali šablony a standardy podle kterých postupujeme při dalších projektech. Systém a pořádek je základ každého úspěchu! Veškerou dokumentaci zpracováváme v ArchiCADU 22 a dle požadavků klienta exportujeme do všech potřebných formátů.
We include all the necessary details in our documentation, so that contractors can implement the design without any trouble. We always strive to improve our work and with every project we learn new skills, which we then apply to all our subsequent projects. Over several years and a number of smaller and larger projects, we have developed templates and standards that we now employ in all other projects. Our success is built on order and a good system.
We create all our documentation in ArchiCAD 22 and export it into any format the client needs.




WHAT YOU WILL SEE
Jak odprezentujeme váš interiér je pro nás podstatné. Snažíme se vizualizacím dát náležitou péči a věrohodně odprezentovat prostor s naším návrhem. Vizualizace od nás dostanete ve vysokém rozlišení, takže je můžete bez problémů použít k jakékoliv prezentaci.
How we present your interior is important to us. We invest a lot of time into data visualisation and we try to present our design for the space in as authentic a way as possible. We provide the visualisation in a high-resolution format, so you can easily use it for any presentation.





WHAT WILL IT LOOK LIKE?
























VIRTUAL REALITY ONE STEP AHEAD
Chceme být vždy o krok napřed. Nechte se u nás vtáhnout do virtuálního světa, kde můžete vidět váš budoucí interiér dříve, než bude postaven. VR vám ukážeme za pomocí brýlí OCULUS.
We always want to be one step ahead. Let us take you into a virtual world where you can see your future interior before it is built. We will show you this virtual reality using the OCULUS headset.

ACCOR HOTELS
ORBIS HOTELS
KATEŘINSKÁ HOTEL
OREA HOTELS & RESORTS
JULIUS MEINL LIVING
CIMEX INVEST
ARRIDERE
WE WORK FOR
CBRE
HOPI HOLDING
HEUREKA SHOPPING
ACKEE
PREFECT CANTEEN
VIENNA INSURANCE GROUP
REFERENCES
OFFICES
RESTAURANTS
HOTELS
HOPI
CAMPUS
ACKEE
HEUREKA
ČVUT
KAVÁRNA V ČÍTÁRNĚ
SENSA BISTRO
PERFECT CANTEEN
BBC LIFE
CANTEE/RESTAURANT
4* OREA CONGRESS HOTEL BRNO (VORONĚŽ) - 368 ROOMS + COMMON SPACES FOR 7000 POEOPLE
5* HOTEL MGALLERY CENTURY OLD TOWN PRAGUE - 174 ROOMS + COMMON SPACES
3* HOTEL IBIS OLD TOWN PRAGUE - ROOMS + COMMON SPACES
3* HOTEL IBIS MALÁ STRANA - COMMON SPACES
3* HOTEL IBIS VÁCLAVSKÉ NÁMĚSTÍ - COMMON SPACES
4* HOTEL NOVOTEL VÁCLAVSKÉ NÁMĚSTÍ - COMMON SPACES
4* HOTEL MERCURE OSTRAVA - COMMON SPACES
4* HOTEL BEOGRAD, SERBIA - ROOMS + COMMON SPACES (NOW GETTING STARTED)
APARTMENT HOTEL SENOVÁŽNÁ 8 - APARTMENTS + COMMON SPACES
4* HOTEL ESCALA BUDAPEŠŤ
5* HOTEL MALÝ PIVOVAR BUDWEISER BUDVAR
APARTMÁNOVÉ VILY LIPNO
RD ŘÍČANY
PRIVAT RESIDENCES
RD MIMOŇ
RD ZDEJCINA

OREA CONGRESS HOTEL BRNO
4* OREA CONGRESS HOTEL BRNO, původně interhotel Voroněž se řadí se svými 368 pokoji a velkými kongresovými sály pro 7 000 lidí, mezi největší kongresové hotely v České republice. Byl postaven v 70. letech ve stylu brutalismu. Spojujícím materiálem exteriéru a interiéru se tedy stal beton a ocel. Jako doplňkové materiály byl a použita mosaz, koženka a dřevo.
The 4* OREA CONGRESS HOTEL BRNO, originally called Inerhotel Voroněž, with its 368 rooms and large congress halls for up to 7,000 people, is one of the biggest congress hotels in the Czech Republic. It was built in the 1970s in the Brutalist style. We decided to connect the exterior and interior with materials: mainly steel and concrete. We also added brass, faux leather, and wood.



Spojujícím prvkem exteriéru a interiéru je beton. Platí to i pro typizované pokoje s očištěným původním pohledovým betonem na zdi za postelí a s přiznanými póry a prasklinami. Beton doplňuje dřevodekor na nábytku, mosazné prvky, černé ocelové profily a koženkové polstrování čela postele. Kombinace materiálů vytváří pro hosty příjemnou a útulnou atmosféru.
Concrete forms a connection between the exterior and the interior. This is clearly visible in the standardized rooms, with original bare fair-faced concrete on the wall behind the bed showing visible pores and cracks. The concrete is combined with wooden coated furniture, brass ornamentation, black steel profiles and faux leather upholstered headboard. This material combination creates a pleasant and cosy feel for the guests.



Původní očištěný beton tvoří zeď za postelí, a to včetně autentických pórů a prasklin. Posloužil i jako materiál pro masivní kruhový konferenční stolek ve čtecím koutku, jehož součástí jsou originální svítidla a stylové drátěné křesílko. Brutalistický dojem podtrhuje velkoformátová černobílá fotografie z brněnské kostnice. V jiných pokojích ji nahradily umělecké fotografie Brna.
The wall behind the bed shows original bare concrete, including authentic pores and cracks. The same concrete was also used for the massive round coffee table in the reading nook, which includes original lamps and a stylish wire armchair. The Brutalist feel is complemented by a large format black and white photo from the Brno ossuary, while other rooms have different artistic photos of Brno.


Zařízení kongresové hotelu je podřízeno průměrné délce pobytu hostů, která je 1–2 dny. Úložné prostory jsou jednoduché a vzdušné. Vodorovné prvky v dřevodekoru na vertikálních kovových konstrukcích působí velmi subtilně. Stejné řešení je v předsíni, kde je dostatek místa na vše potřebné.
The congress hotel rooms are furnished for the average stay, which is 1 to 2 days. They have simple, airy storage spaces, with subtle horizontal wood elements on vertical metal constructions. The entrance hall is furnished in a similar way, providing all the necessary storage options.



Matný bílý obklad ve dvou formátech výtečně doplňuje černé svítidlo ve tvaru reflektoru od Le Corbusiera. Zrcadlo v černém rámu koresponduje s řešením úložných prostor v pokojové části. Matné černé vstupní dveře doplňuje orientační podsvícení. Obložení dveří je z boční části podsvíceno a zvýrazňuje bílou reliéfní stěnu z klasické stěrky.
The matt white wall cladding in two formats is beautifully complemented by a Le Corbusier reflector-shaped black lamp, while a black-framed mirror corresponds with the storage spaces in the room. The matt black entrance door combines with ambient lighting: The doorframe is backlit from the sides, accentuating the white relief wall with a classical textured finish.



COMMON AREAS
Návrh a realizaci společných interiérů jedno z největších hotelů v ČR - Orea Congress hotel Brno. Centrem - srdcem celého prostoru jsme navrhli ostrov, který ze vstupního pohledu tvoří recepce volně přecházející přes bar do restaurace. Příjemnou atmosféru dotváří různá světla nejen nová ale i původní.
The realization of the common areas in one of the biggest Czech hotels: Orea Congress hotel Brno. The centre of the large common area is an island, consisting of the reception, facing the entrance, and then the bar and restaurant. Various lights, both new and original, will add to the pleasant ambience..





Rádi prcujeme se světlem. Některá původní svítidla jsme nechali repasovat. Svým unikátním designem tak dotváří atmosféru v barové části společných prostor hotelu a prostoru lobby před recepcí.
We like working with lighting, and we had some of the original lights refurbished so their unique design would add to the atmosphere of the bar area in the hotel common areas and the lobby space in front of the reception.

FOCUSED ON DETAILS
S důrazem na detail. Interiéry společných prostor propojují zaoblené stoly a pulty, vyrobené na míru hotelu. Šatna je oddělena drátěným závěsem. V komerčních interiérech mají nezastupitelnou roli mobilní panely, které umožňují práci s velikostí prostoru. Corianové desky s drobným čtvercovým rastrem jsme rozsvítili ledpásky.
Focused on detail: The common area interior is connected by custom-made rounded tables and counters. A wire curtain separates the dressing room. Mobile panels play an indispensable role in commercial interiors, as they allow for adjusting the size of the space. The Corian desks with a delicate square grid will be lit up with LED strips.




Šatna je oddělena drátěným závěsem. V komerčních interiérech mají nezastupitelnou roli mobilní panely, které umožňují práci s velikostí prostoru. Corianové desky s drobným čtvercovým rastrem jsme rozsvítili ledpásky.
A wire curtain separates the dressing room.


Největší víceúčelové kongresové prostory byly skutečnou výzvou. Nabízejí 10 sálů s vysokou variabilitou. Kongresová hala má kapacitu až 700 osob. Menší konferenční sál pojme 150 účastníků. Těmito vstupními chodbami do nich vcházíte. Monumentální schodiště prošlo velkou proměnou, vyměnili jsme zábradlí a osadili zeleň.
The largest multi-purpose congress space presented a real challenge. They offer 10 highly variable rooms: The congress hall has up to 700 spaces, whereas the smaller conference room can seat 150 participants. The entrance halls have wood decor panelling with light bars. The original monumental staircase underwent a major transformation: we replaced the railing and added greenery.



OREA Congress Hotel Brno I CZECH REPUBLIC



Osvětlení v interiéru hraje zásadní roli. Zajímavým prvkem jsou původní velká stropní svítidla. Světlíkem uprostřed prochází denní světlo, konstrukce a mléčná skla jsme nechali repasovat a posílili světelné zdroje. Rozsvítili jsme copilitovou stěnu a do meziprostoru rozmístili březové větve.
The Interior lighting is essential. The original large ceiling lights remain a prominent feature. The central skylight lets the sunshine in, the constructions and frosted glass have been refurbished, and we boosted the lighting.

IBIS OLD TOWN PRAGUE
Typizovaný neznamená nudný ...
Svěží a minimalistický. Takový byl požadavek klienta (ACCOR a Orbis Hotels), jedné z největších hotelových sítí na světě čítající aktuálně přes 1150 tříhvězdičkových hotelů. Nově navržený design bude uplatněný ve všech nových hotelech v České republice. Hotelové pokoje o velikosti cca 12 m2 jsme primárně naladili do světle béžových a velmi světle šedých tónů s akcentem výrazné modré barvy.
Standardized doesn’t have to mean boring...
Fresh and minimalist. That is what our client (ACCOR and Orbis Hotels), one of the biggest hotel networks in the world with over 1150 three-star hotels, asked for. The new design will be applied in all their new hotels in the Czech Republic. We styled the roughly 12m2 hotel rooms in shades of light beige and very light grey with striking blue accents.



Typizovaný pokoj je jednoduše a funkčně zařízený tak, aby odpovídal standardům tříhvězdičkového hotelu Ibis. Koupelnový box včetně posuvných dveří je obložený designovými panely Bencor v měděné barvě, atmosféru dotváří efektní podsvícení. Neutrální šedé a béžové tóny doplňuje trendy strong blue barva.
The standardized room has simple and functional furnishings, ideal for the standards of a three-star Ibis hotel. The bathroom unit, including the sliding doors, is lined with copper coloured Bencor design panels, with backlighting for the ambience. The neutral shades of grey and beige are complemented by a trendy strong blue colour.
Žlutá barva upoutává pozornost a pomáhá k lepší orientaci ubytovaných. Označuje únikové dveře a tvoří orientační systém na koberci. Dveře do pokojů jsou v neutrální béžové barvě. Čísla pokojů vytvářejí díky umělému osvětlení velmi efektní stíny na zdi.
Yellow tones catch the guests’ attention and help them find their way around the room, marking the emergency exits and indicating directions on the carpet. The room doors come in a neutral beige colour, while the artificial lighting on the room numbers casts quite impressive shadows.



Interiéru dominuje polykarbonátový dutinkový panel BENCORE v měděném odstínu s lesklým efektem. Využití našel jako obklad koupelnové části ze strany pokoje. Unikátním designovým prvkem je ambientní podsvícení panelu v horní i dolní části stěny, které pokoji dodává příjemnou relaxační atmosféru. Jedinečný vzhled obkladu podtrhují přiznané kotvicí prvky.
The most striking part of the interior is no doubt the copper tinted BENCORE polycarbonate panel with a glossy finish, which has been used along the outside bathroom wall. The panel has ambient backlighting on the top and bottom, which gives the room a pleasant and relaxing feel. The unique visual effect of the panel is accentuated by its anchors being clearly visible.

Stylové kovové rámy se síťovou výplní v barvě strong blue vznikly pro tento projekt na míru. Nahrazují šatní skříně a slouží k třeba k pověšení kabátů na ramínkách. Pro zavěšení ostatního oblečení je určena šatní tyč nad psacím stolem. Nechybí ani tradiční hotelová výbava v podobě minibaru a trezoru. Minibar zavěšený na stěně vypadá jako nábytek a v prodloužené konzole nočního stolku našel místo výklopný sejf.
Traditional wardrobes were replaced with stylish metal frames with mesh in strong blue, custom-made for this project. They can be used, for example, to hang coats from. Other clothes can be hung from a hanging closet rod above the desk. The room also includes traditional hotel equipment, such as a minibar and a safebox. The wall-mounted minibar looks like just another piece of the room’s furniture, while a safebox with a fold-away handle is tucked into the extended bedside table console.



Část pokoje, která slouží k odpočinku a ke spánku, působí čistě až puristicky. Nejvýraznějšími prvky jsou zatemňovací závěs a polička pod televizí v barvě strong blue. Pokoj je nasvícený pomocí led pásku ve stropní části se závěsem a náklopným nástěnným svítidlem asymetricky umístěným nad spací částí. Nezbytnými doplňky jsou čtecí lampičky zakomponované do čela postele.
The sleep and relax zone of the room has a clean, almost purist feel. Its most dominant features are a blackout curtain and a strong blue TV shelf. The room is lit with a ceiling LED strip by the curtain and a tiltable wall lamp placed asymmetrically above the sleeping area. Naturally, the area also includes reading lamps, which are hidden in the headboard.


CENTURY OLD TOWN PRAGUE M GALLERY
Luxusní hotel v centru Prahy sídlí v budově bývalé pojišťovny. Kdysi v ní pracoval spisovatel Franz Kafka, jehož osobnost inspirovala celkový design hotelu. Barevné kombinace interiéru jsou výrazné, originální a místy navozují temnější atmosféru. Nádech luxusu jim dodává zlatá barva, kvalitní materiály jako jsou kov a kámen a precizní ruční práce. Tento projekt jsme řešili jako lokální architekti ve spolupráci s pařížskou architektkou Anou Moussinet. Naší úlohou bylo ale respektovat dodavatelské možnosti a reálné potřeby hotelového provozu. Do projektu jsme v nejvyšší možné míře zapojili české autory a dodavatele, ať se jednalo o nábytek nebo třeba velkoformátové fotografie Prahy na hotelových chodbách. Perfektní výsledek je výsledkem našeho pečlivého dozoru nad celou realizací.
The building that now hosts this luxurious hotel in the centre of Prague used to belong to an insurance company, where author Franz Kafka once worked. His personality inspired the general design of the hotel: the interior colour combinations are striking, original, and sometimes rather dark. Gold tones add a luxurious feel, as do high-class materials, such as metals and wood, and excellent craftsmanship. As local architects, we collaborated on this project with Ana Moussinet, a Parisian architect. Our task was to respect the contractors’ possibilities and the real needs of a working hotel. We included Czech designers and contractors as much as we could, for example in furnishing the hotel or in providing the large format photos of Prague, which decorate the hotel’s corridors. Our management of the entire project yielded perfect results.


Barevná paleta neokoukaných zelených odstínů, zlaté na svítidlech a designového koberce působí hned na první pohled luxusně. Černobílé tapety vznikly na míru prostoru. Zrcadla ho o pticky zvětšují a podtrhují jeho atmosféru. Posezení v originálních vysokých křeslech v nice s velkoformátovým oknem je pohodlné a umožňuje v klidu a bezpečí pozorovat dění na ulici.
The colourful palette of untraditional greenish hues, golden on the lights and a designer carpet, is luxury on the first sight. The black-and-white wallpapers have been tailored for the space. The mirrors magnify it optically and underline its atmosphere. Sitting in the original high-chairs in a niche with a large-format window is comfortable and allows you to see the street locomotion in peace and quiet.


Svůj název dostal podle Foglarových Stínadel a hlavolamu ježek v kleci. Temnější atmosféra baru vznikla kombinací tmavých látek, výmalby a podsvíceného baru. Vše navazuje na odkaz spisovatele Franze Kafky a uvedenou českou klasiku. Originální design baru s vyfrézovanými svislými proužky spolu s podsvícením navozuje dojem klece. Barový pult má sokl z pravé, na míru ohýbané a skládané mosazi.
The bar got its name from Foglar‘s The Shades and the “hedgehog-in-the-cage” brain twister. The darker atmosphere of the bar came to life thanks to a combination of dark fabrics, paintings and a backlit bar. Everything mirrors the Franz Kafka message and the fore-mentioned Czech classic literature. The unique design of the bar with the milled vertical strips together with the backlighting creates an impression of a cage. The bar desk has a skirting board made of the genuine, bent and folded, brass.










Už při vstupu do restaurace je vidět skloubení původních prvků a moderního designu. I zde je vše laděno do odstínů zelené, zlaté a černé. Překrásné původní štuky díky správnému nasvícení dodaly prostoru potřebnou dynamiku. Původní zachovalá stropní i nástěnná svítidla doplnily moderní kousky. Výrazným prvkem jsou stoly z pravého mramoru s pasířským lemováním.
You can see a combination of the original elements and the modern design right at the entrance. Everything is designed into the shades of green, gold and black. A beautiful original stucco, thanks to the right lighting, gave the room the necessary dynamics. An originally preserved ceiling and wall lamps were complemented by some modern pieces. The genuine marble tables with a lining trim constitute a very distinctive feature.



Nezaměnitelná barevná kombinace černé, zlaté a dřeva je v hotelových pokojích doplněná o pařížskou modrou. Výrazný kontrast barev tlumí výmalba v šedých odstínech a tapeta, která vznikla na míru projektu v Paříži. Krásné štuky opticky snižují vysoké stropy.
The unmistakable colour combination of black, gold and wood is complemented by the Parisian blue in the hotel rooms. The distinctive contrast of colours is softened by the painting in the gray-shade scale and a wallpaper that was created for the project in Paris. The beautiful stuccos optically lower the high ceilings.




Kafka Suite se nachází ve 2. patře hotelu přesně v místech, kde byla kancelář Franze Kafky. Efekt tmavé výmalby podtrhuje promyšlené nasvícení pokoje. Všudypřítomný luxus je patrný z unikátního čela postele, pečlivě vybraných látek a doplňků. Koupelna je navržena v kontrastu k ložnici tak, aby umožňovala dokonalou relaxaci. Nechybí volně stojící vana, zrcadlo nad umývadly, poloprůhledná příčka a terazzo obklad.
The Kafka Suite is located on the 2nd floor of the hotel exactly where Franz Kafka‘s office was. The effect of dark painting underlines the sophisticated lighting of the room. Omnipresent luxury is evident from a unique bed headboard, carefully selected fabrics and complements. The bathroom is designed in a contrast to the bedroom to allow for perfect relaxation. There is a free-standing bathtub, a mirror above the washbasins, a semi-transparent wall and terrazzo tiling.




V nejvyšším patře pod kupolí hotelu je umístěné dvoupodlažní apartmá. Obytný prostor laděný do jemnějších odstínů se nachází v jeho spodním patře. Dynamiku prostoru dodává stěna s betonovou stěrkou s originálním dekorem v podobě svislých proužků. Zaoblené nábytkové prvky korespondují se zvolenou jemnější barevnou paletou interiéru. Skvělým doplňkem je podsvícení nábytkových rámů po obvodu stěn, nasvícení betonové stěrky a osobitá svítidla.
On the top floor under the hotel dome there is a two-storey suite. The living area is designed with finer shades and it is located on the lower level. The dynamics of the space is brought by a wall with concrete screed and a unique décor in the form of vertical strips. The rounded furniture elements correspond to the selected finer colour palette of the interior. A great addition is the backlight of the furniture frames around the wall perimeters, the lighting of the concrete screed and the individual lights.


Nezaměnitelná barevná kombinace černé, zlaté a dřeva je v hotelových pokojích doplněná o pařížskou modrou. Výrazný kontrast barev tlumí výmalba v šedých odstínech a tapeta, která vznikla na míru projektu v Paříži. Krásné štuky opticky snižují vysoké stropy.
The unmistakable colour combination of black, gold and wood is complemented by the Parisian blue in the hotel rooms. The distinctive contrast of colours is softened by the painting in the gray-shade scale and a wallpaper that was created for the project in Paris. The beautiful stuccos optically lower the high ceilings.


OREA PLACE SENO PRAGUE
Projekt Senovážná zahrnoval rekonstrukci a dispoziční řešení bytových a nebytových prostor v domě z 50. let 19. století v centru Prahy. Koncept řeší zejména odstranění hlavních nedostatků objektu a zachování rázu budovy tak, aby byl maximálně využit její potenciál.
V přízemí se nachází restaurace, obchod a samostatný vstup s recepcí. Bytové prostory jsou ve 2. – 5. NP, jednotlivé bytové jednotky jsou o dispozici 1kk až 3kk, některé jsou mezonetové. Ve vnitrobloku se nachází parter se zelení a vodním prvkem, zasklená terasa a venkovní posezení náležící k restauraci.
Díky použité technologii zakladače, auta zajíždějí pouze do průjezdu, následnou manipulaci potřebnou k zaparkování obstarává už jen samotná technologie zakladače, která auta sama zaparkuje v bývalé hospodářské budově.
The Senovážná project included remodelling and layout solutions for residential and nonresidential spaces in an 1850s house in central Prague. The concept mainly focused on resolving the main shortcomings of the building while maintaining its character in order to help it fulfil its potential.
The ground floor consists of a restaurant, a store, and a separate entrance with a reception. Residential spaces take up the 2nd to 5th floors, with individual units ranging from studios (1kk) to two bedrooms (3kk) and some duplexes. The courtyard contains a parterre with greenery and a water feature and outdoor seating for the restaurant.
We used stacker technology, which means cars only need to go into the driveway, and the technology takes care of the rest of the parking in a former outbuilding


Velkorysé výšky stropů staré zástavby nám dovolily použít tmavou podlahou. „Klasic“ apartmány jsou laděny v jemné barevnosti tón v tónu s romantickým velkoformátovým květinovým detailem. Velkolepý dojem po vstupu do Klasik apartmánů navozuje velkoformátová tapeta. I zde navazujeme na klasickou linku, v tomto případě mosaznými klikami a stínidlem.
The generous ceiling heights in the old building made it possible to use dark floors. The “classic” apartments were designed using soft shade-by-shade colours with large-formate romantic floral details. The large-formate wallpaper at the entrance of the classic apartments aims to impress, and we follow the classical trend using brass door handles and shades.


Prvkem klasických interiérů jsou dekorační štuky, proto jsme použili jejich moderní alternativu stropní a nástěnné lišty.
Užší prostory chodeb jsme zvětšili velkoformátovými zrcadly opět s mosaznými detaily.
Classical interior design often relies on decorative stucco, and we used a modern alternative in the form of wall and ceiling rails.
We used large-format mirrors with brass details to give the narrower corridor spaces a more expansive feel.

Atmosféra ložnice vybízí k relaxaci a spánku. Tlumené odstíny v kombinaci s příjemnými textilními materiály. Vše podtrženo čistě bílým povlečením a mosaznými lesky na detailech nábytku a svítidlech.
The bedroom invites you to relax and sleep with duller colours combined with pleasant textile materials, emphasised by pure white bed linens and brass sheen in furniture and light fixture details.




Pokoj s pracovním koutem je vybavený základním nábytkem pro uložení šatů a komodou. Jeho podlouhlý tvar jsme opticky usměrnili tmavou výmalbou, která prostor zkracuje, zároveň jsme snížili strop netradičně pomocí výrazné tapety navazující na vzor ze vstupní haly.
The room with a workspace is furnished with essential storage spaces and a chest of drawers. Its length was optically managed using darker wall paint, which shortens the space, and we also gave the ceiling a lower feel using an unconventional striking wallpaper visually connected to the entrance hall pattern.
Především na toaletě a v koupelně se potřebujeme cítit dobře, tomu pomáhá čistý design velkoformátového mramorového obkladu v kontrastu s tmavým dřevem nábytku s mosaznými detaily. Mramorovou masu obkladu narušuje nepravidelný tvar zrcadla, který dodává prostoru dynamiku a bourá symetrii.
We need to feel comfortable in the bathroom and toilet, so we equipped these rooms with a clean design of a large-format marble covering contrasting with dark wooden furniture with brass details. The mass of marble is undercut by an irregular mirror, which adds a dynamic feel and disturbs the symmetry of the space.







Druhý typ klasického apartmá s velkým motivem palmových listů působí až exoticky. Prostor obývací části a ložnice spojují dvoje pivotové dveře v celé světlé výšce.
Sjednocujícími prvky jsou materiály - prošívaný samet a mosaz.
The second type of classical apartment includes a large-format palm leaf pattern, which seems almost exotic. The living room and bedroom parts are connected by two pivot doors running from floor to ceiling.
The unifying element of the design is the materialquilted velvet and brass.


Moderní mezonetové apartmá v trendy fresh barvách. Dominantou je barevné ombré žebroví oddělující kuchyň od obývací části.
Zajímavý efekt vytváří světlo ze střešního okna prostupující asymetricky perforovaným zábradlím.
A modern duplex with fresh, trendy colours is dominated by colourful ombré ribbing, which separates the kitchen and the living space.
The light from the ceiling window slanting through an asymmetrically perforated railing creates an exciting effect.




Kvůli úspoře místa jsme zvolili mlynářské schody, které pod sebou ukrývají dostatek úložného prostoru potřebného pro dlouhodobější pobyty.
To save space, we opted for miller stairs, with ample storage space needed for extended stays.





Barevnou kompozici moderních apartmá dotváří akvarelová grafika na míru. V některých apartmá jako obraz, jinde zase jako velkoformátová tapeta přes celou zeď.
V malých apartmá 1kk jsme udrželi vzdušnost prostoru a zároveň navodilii soukromí oddělením ložnice lehkými vzdušnými textiliemi.
Custom watercolour graphic art complements the colour scheme of the modern apartments. In some, it takes the form of an individual image; in others, it covers the wall as large-format wallpaper.
We kept the small studios airy while adding a feel of privacy by separating the sleeping space with flowing textiles.


Oblíbený scandi styl jsme uplatnili jako třetí vizuální ladění. Šedočerná kombinace, neutrální barevná paleta, chrom, černá, akcentované detaily designových svítidel, obrazů nebo struktur textilií.
The third aesthetic is the popular Scandi style with grey-black combinations, a neutral colour palette, chrome, black, and accented details of the design light fixtures, paintings, and textile structures.




Denní světlo v koupelně je velice příjemné. Probourali jsem zeď a vytvořili průsvitné industriální okno z drátoskla v černém rámu.
Obklady v koupelně a v kuchyni mají připomínat hory.
The bathroom is flooded by pleasant daylight through a transparent industrial wire glass window in a black frame placed into the opened wall.










SENSA FINE FOOD BISTRO
Bistro, kde se potkávají chutě z celého světa. Projekt restaurace se zimní zahradou a otevřenou kuchyní byl součástí rekonstrukce celého činžovního domu z počátku minulého století v centru Prahy. Navrhovali jsem místo pro pracovní oběd i neformální posezení po práci.
Hlavními estetickými prvky jsou měděné portály a průchody, které propojují interiér s exteriérem. Celé barevné ladění se drží v teplé zemité škále, která spolu s lesky měděného obložení a zrcadly vytváří příjemnou a zároveň luxusní atmosféru.
Součástí bylo i zpracování posezení ve dvoře. To jsme ozvláštnili kruhovým světelným prvkem s integrovaným mlžítkem, které v letních horkých večerech zpříjemní horké klima.
This bistro is an intersection for all the flavours of the world. The project focusing on the restaurant, its winter garden and open kitchen was part of remodelling an entire early 20th-century apartment house in Prague centre. We tried to design a place that could host both a work lunch and informal after-work meetings.
The main aesthetic elements include copper portals connecting the interior and the exterior. The colour scheme is warm and earthy, with glossy copper cladding, creating a cosy and luxurious atmosphere.
We also worked on the seating in the courtyard, which we decided to spice up with a round light fixture with an integrated mist curtain to cool people down on hot summer evenings.



Výrazným prvkem hlavního prostoru restaurace je originální dekorační 3D stěna inspirovaná terasovitými rýžovými poli odkazující na asijské zaměření bistra. Pocit násobí odrazy v protilehlém celoplošném zrcadlovém obložení.
The main restaurant space is dominated by an original decorative 3D wall inspired by terrace rice paddies, referring to the bistro’s Asian streak. A mirror panelling on the opposite wall multiplies the image.








Čalounění židlí a lavic oživuje interiér o kontrastní a dynamické prvky zelené a černé. Originální jsou měděné průchody mezi jednotlivými místnostmi. V našich interiérech klademe velký důraz uplatnění živé zeleně.
Provoz otevřené kuchyně pak klade nárok na efektivní fungování vzduchotechniky, v prostoru zimní zahrady jsme integrovali rozvody do nosníků prosklené střechy.
The chairs and benches are upholstered in contrasting and dynamic greens and reds. Copper portals between the rooms add an original element. We make sure to incorporate live greenery into our interiors.
The open kitchen places high demands on quality air conditioning. The winter garden fittings are included in the glass roof beams




















CAFÉ READING ROOM
Kavárna v atriu je spojená se studentskou čítárnou. Nabízí několik typů posezení, kde lze číst, studovat, přemýšlet nebo diskutovat u šálku kávy. Zaoblení baru a knihovny vychází z tvaru betonové konstrukce, která se v prostoru několikrát opakuje a byla využitá v novém kontextu. Dvojice betonových solitérů nyní slouží jako kavárenský bar a knihovna. V kavárně pro studenty stavebních oborů se nabízelo využití materiálů a prvků, se kterými se setkávají při studiu.
The café in the atrium is connected to the student reading room. It offers several types of seating areas where you can read, study, think or discuss a topic with a cup of coffee. The rounding of a bar and a library is based on the shape of a concrete structure, which is repeated several times in the space and used in a new context. A pair of concrete solitaires serves now as the café bar and the library. The use of materials and elements, that students of the engineering industry encounter during their study, was a natural choice in this café.




Středobodem kavárny je prostorná zelená pohovka, která láká k posezení i k relaxaci. Knihovna za ní se průběžně zaplňuje knihami a skripty z různých oborů a rozšiřuje obzory studentů. Variabilitu prostoru zajišťují odolné, stohovatelné a snadno přemístitelné židle a taburety. Dojem domácké útulnosti navozuje koberec u sedačky a kožešiny na drátěných křesílcích.
A spacious green sofa, that attracts both to sitting and relaxing, is situated in the center of the café. The library behind it is continuously filled with books and textbooks from various disciplines, extending students‘ horizons. The stackable, durable and easy to move chairs and stools provide the variability of the space. A carpet at the sofa and fur on the wire chairs create the sense of homely coziness.



Původní zaoblená konstrukce je obnažená až na beton. Nově skrývá bar a knihovnu. Místo za barem slouží jako odpočinková zóna se zavěšenými houpacími křesly. Na druhé straně je za knihovnou situovaná pracovní a kreativní zóna. Na stěnách jsou upevněné velké role skicáku, aby studenti mohli kdykoliv zaznamenávat své nápady.
The original rounded construction is exposed down to the concrete. Newly, it hides a bar and a library. The place behind the bar serves as a relax zone with suspended rocking chairs. On the other side, behind the library, there is a working and creative zone. The large sketch roles are attached to the walls to allow students to record their ideas at any time




Zrezivělé kari sítě pod stropem doplňuje originální svítidlo. Je inspirované výztuží betonového trámu, který studenti dobře znají. Rohové výztuže nahradila trubková svítidla. Reálné je také vázání kovových výztuh drátkem. Svítidlo je originálním a vhodně doplňuje industriální ladění celého interiéru.
Rusty kari mesh below the ceiling complements the original light. It is inspired by a concrete beam reinforcement that students know so well. The tube lights replaced the corner reinforcements. The wire binding of the metal stiffeners is reflecting the real structuring too. The light is unique and complements the industrial design of the entire interior suitably.

SPA OREA PLACE SENO PRAGUE
Projekt Senovážná zahrnoval rekonstrukci a dispoziční řešení bytových a nebytových prostor v domě z 50. let 19. století v centru Prahy. Komplexní projekt zahrnoval restauraci, obchod, samostatný vstup s recepcí, bytové prostory včetně welness/spa prostorů v suterénu.
The Senovážná project included remodelling and layout solutions for residential and non-residential spaces in an 1850s house in central Prague. The comprehensive project included a restaurant, a retail store, a separate entrance with a reception, and residential spaces, including an underground wellness/spa space.


OFFICE CAMPUS HOPI HOLDING
Nová centrála HOPI HOLDINGU - CAMPUS představuje v našem pojetí moderní kancelářské prostředí otevřené svým dceřiným firmám, obchodním partnerům a nejvíce svým zaměstnancům. Disponuje relax zónami a možností pobytu zaměstnanců jak v interiéru tak i v exteriéru. Ten jsme proto rozšířili o větší zelené plochy.
Projekt zahrnuje komplatní řešení budov a jejich interiérů včetně obslužných dopravních komunikací v areálu campusu.
Our vision of the new HOPI HOLDING - CAMPUS centre is a modern office space open to the company’s branches, partners, and, most importantly, employees. It includes relaxation zones and lets employees use both the interior and the exterior, which now has more green spaces.
The project included a comprehensive solution for all the buildings and their interiors, including service roads on campus.





Campus - centrála HOPI HOLDINGU zahrnuje celek více různorodých objektů vzájemně propojených spojovacími prvky. Cílem bylo navržení moderního kancelářského prostředí s možností pobytu zaměstnanců nejen v interiéru ale i exteriéru. Řešili jsme nový reprezentativní vstup do centrály společnosti a včetně zelených ploch.
The HOPI HOLDING central campus includes a number of diverse, interconnected buildings, and we aimed to design a modern office space allowing the employees to move between the inside and the outside. We designed a new representative entrance into the company’s main residence, including green spaces





Díky tubusům a posuvným úložným sestavám jsou kanceláře pojaty jako SEMI-OPEN space. Na konci každého kancelářského křídla se nachází 2 samostatné kanceláře tzv. MANAGER OFFICE.
Centrální schodiště slouží zároveň jako úniková cesta. Požadavek na maximální otevření a propojení jednotlivých prostor s sebou nese i nutnost oddělení v případě požáru. Navrhujeme opatření pomocí požárních rolet a magnetických posuvných dveří, které se v případě požáru spustí a únikovou cestu tak oddělí.
Interiér celé budovy je rozdělen do dvou celků, a to tzv. PUBLIC AREA, která může sloužit pro volný pohyb zaměstnanců a návštěvníků HOPI holdingu a KANCELÁŘSKÉ PROSTORY, které slouží k práci pouze zaměstnancům. Zatímco kancelářská část je řešena ve světlých tónech, PUBLIC area využívá barev tmavších. S ohledem na převažující mužské osazenstvo kanceláří interiér pracuje s hrubými materiály - beton, za tepla válcovananý plech, perforovaný plech, hrubá omítka a v interiéru dochází zejména ke hře textur. V některých místech překrýváme válcovaný a perforovaný plech, což vytváří moiré effekt. Barvy využíváme zejména v neutrálních a přírodních tónech a pouze na hlavních výrazových prvcích využíváme firemní zelenou barvu.
Mobile storage sets and columns structure the office space into a SEMI-OPEN space, with two separate MANAGER OFFICES at the end of every office wing.
The central staircase also fills the role of an emergency exit. While the spaces should be as open and interconnected as possible, they must be separable in case of a fire. We designed a firefighting measure using fire protection curtains and magnetic sliding doors that will turn on in case of a fire, separating the emergency exit.
The building interior has been divided into two units – a PUBLIC AREA that HOPI HOLDING employees and visitors can move in freely, and the OFFICE SPACE, used only by the employees. While the office space is designed with a light palette, the public area uses darker colours. Since the employees are mostly men, the interior utilises coarse materials such as concrete, hot-rolled metal sheets, perforated metal, and coarse stucco. The interior focuses on textural interplay, with overlapping rolled and perforated metal creating a moiré effect. We mainly use neutral and natural shades, employing the company’s signature green in the main elements.


Návrh interiéru centrály firmy HOPI holding a.s. reaguje na aktuální vývoj v oblasti navrhování kanceláří. Nastavený trend práce z domova se za poslední dva roky výrazně posunul, a rovněž holding HOPI se dynamicky vyvíjí kupředu, a tak kancelářské prostory musí být připraveny na každou změnu!
V rámci návrhu kanceláří je počítáno s využitím tzv. SMART OFFICE. Jedná se o kanceláře založené na principu sdíleného místa, které jso a umožňují rychlou a snadnou přestavbu. Mezi jednotlivými pracovními místy není pevný předěl, a tak se kanceláře snadno přizpůsobí rozdílnému tempu rozvoje jednotlivých oddělení. Mezi pracovními místy vznikají prostory pro rychlé porady a brainstormingy. Díky tomu jsme schopni minimalizovat počet zasedacích místností.
The interior design for the HOPI HOLDING a.s. central offices reacts to current developments in office design. In the last two years, there have been major shifts in the working-from-home trend, and HOPI is progressing as well, meaning the office space needs to be ready for any change!
The office design works with the SMART OFFICE model of offices using shared spaces, allowing for swift and easy restructuring. There is no clear boundary between individual spots, meaning the offices can easily adapt to different departments’ varied paces of development. Spaces for quick meetings and brainstorming can be generated between workspaces, allowing us to minimise the number of meeting rooms.

V každém kancelářském křídle se nachází středový tubus symbolizující dominantní druh podnikání HOPI holdingu - KAMION. V tomto tubusu se nachází doplňkové kancelářské provozy - callroomy, menší zasedačky, lounge area, šatna, osobní skříňky a zazemí kanceláře s centrální tiskárnou. Díky těmto tubusům a posuvným úložným sestavám jsou kanceláře pojaty jako SEMI-OPEN space.
Every office wing contains a central tube column which represents the dominant business activity of HOPI – the LORRY. This area includes additional operations spaces, such as call rooms, smaller meeting rooms, lounge areas, dressing rooms, personal lockers, and a back office with a central printer. Mobile storage sets and columns structure the office space into a SEMI-OPEN space







KANCELÁŘE HEUREKA DANUBE HOUSE
Moderním a vzdušným kancelářským prostorům firmy HEUREKA vévodí korporátní barvy, oranžová a modrá. Útulnost jim dodaly dřevěné prvky a pečlivě vybrané látky.
Luxusu v Heuréce nefandí, do práce tam chodí i čtyřnozí psí přátelé. Zvítězila hlavně praktičnost.
Základním požadavkem bylo přesunutí pracovních míst do chladnějšího severního křídla, ostatní místnosti jsou situovány na jih.
The HEUREKA modern and airy office space is heavy on the company’s corporate colours - orange and blue, made cosier with wood and hand-picked textiles.
Heureka is no stickler for luxury, with a dog-friendly office emphasising practicality.
The main requirement was moving workspaces into the cooler northern wing while other rooms faced the southern side of the building.

Kanceláře Heureka Danube House I CZECH REPUBLIC



Kanceláře Heureka Danube House I CZECH REPUBLIC
Jóga zóna je součástí relaxačního prostoru. Po snadném přemístění sedacího nábytku nabízí dostatečný prostor pro cvičení. Zvlněný a podsvícený podhled z kelímků působí uklidňujícím dojmem.
The relaxation space includes a yoga zone, with easily movable seating allowing ample space for exercise. The wavy backlit cups add to the calming atmosphere.




V hlavním kancelářském prostoru odděluje pracovní místa od koridoru vestavěná stěna ze svařených jeklů s úložnými boxy a polstrovanými telefonními kukaněmi. Vše v korporátní modré barvě v kombinaci s přírodním dřevem.
Nabízí více možností aktivního i pasivního odpočinku. K akci vybízí stolní fotbálek, závěs pro TRX a masážní křesílko. K posezení zve kruh z podsvícených březových pařezů doplněný sedacími vaky a jednoduše přemístitelnými variabilními křesílky pro hraní Playstation. Punc originality dodává této zóně malba na míru od umělkyně Alice Kucharovič.
The workspaces in the main office area are divided from the corridor by a built-in wall made from welded square tubes with storage boxes and cushioned call booths in blue, complemented by natural wood tones.
The office offers a number of opportunities for active and passive relaxation. The table football, TRX curtain and massage chair offer more action, while a backlit circle of birch stumps with bean bags and easily movable variable armchairs for the PlayStation invite you to sit down and chill. A custom-made painting by artist Alice Kucharovič adds an original feel.


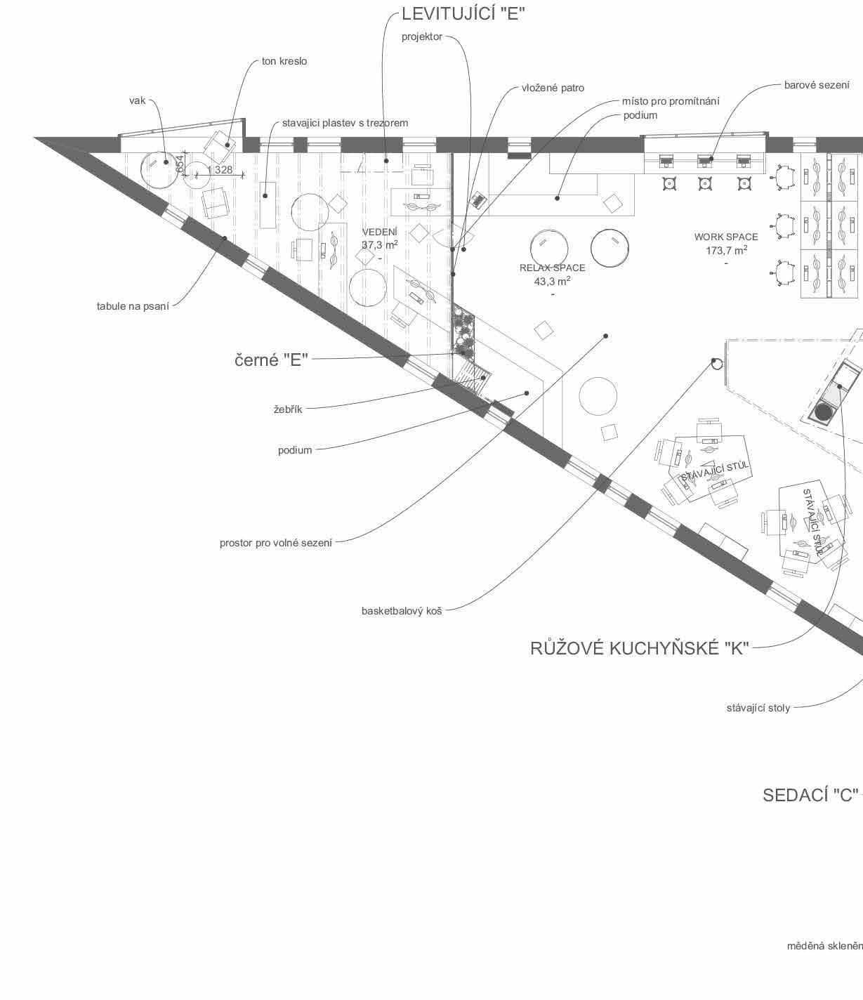
Kanceláře Ackee CZECH REPUBLIC
KANCELÁŘE ACKEE
Zadáním pro naši práci na interiéru bylo vytvořit vzdušný a útulný prostor kanceláří s prvky na míru. Popasovat jsme se museli také s netypickou dispozicí trojúhelníkového tvaru zvedající se do špičky podobně jako příď lodi.
Our interior design task here was to create an airy and cosy office space with custom elements while dealing with the atypical triangular space going up into a point like the bow of a ship.







Hlavním koncepčním prvkem, který prochází celým prostorem, jsou třímetrová písmena. Dohromady dávají název firmy ACKEE. Každé z písmen je originální a funkční. Zdánlivě klidně působí polstrovaný box s tabulí, který je ovšem jako stvořený k brainstormingům.
The main conceptual element uniting the space is three-meter-high letters spelling the company name - AKCEE. Each letter is original and has a function. A cushioned box with a whiteboard might seem relaxing, but it is meant for brainstorming.



Hlavním koncepčním prvkem, který prochází celým prostorem, jsou třímetrová písmena. Dohromady dávají název firmy ACKEE. Každé z písmen je originální a funkční.
Schůdky ve tvaru písmene E do relaxační zóny pod stropem jsou nenápadné, ale maximálně funkční. Víceúčelové překližkové pódium slouží k oddychu nebo třeba pro stand-upy.
Vysoký strop opticky snižuje promyšlený systém závěsných svítidel nad pracovními místy, který je současně dekorativním prvkem.
Růžová a černá barva vytvářejí výrazný a dynamický kontrapunkt samy o sobě i v kombinaci se střízlivým openspace prostorem s pracovními místy. Funkční K slouží jako fotonástěnka a současně skrývá původní nevzhledný sloup.
The main conceptual element uniting the space is three-meter-high letters spelling the company name - AKCEE. Each letter is original and has a function.
E-shaped stairs leading into an attic relaxation zone are inconspicuous but efficient, and the multi-purpose plywood platform can serve for rest or even stand-ups.
The high ceilings are optically made lower by a system of hanging lamps above workspaces which also have a decorative effect.
Pink and black add a strong, dynamic contrast both on their own and when combined with the sober open-space work area. The functional K serves as a photo board while also hiding an original unseemly pillar.-




LA CORTE
Majitelé chtějí ve svém bytě, který zbožňují, zestárnout. Přáli si, aby jeho nový interiér byl originální, použité materiály stárly s nimi a nepůsobily uměle. Požadovaná elegance vznikla kombinací mědi, béžové a ocelově modré barvy. Nestandardně jsme i pracovní desku včetně dřezu nechali vyrobit z mědi, jejíž jedinečná patina se každý rok lehce promění. Klienti byli nadšení a mají radost z každého otisku a šrámu, který na desce zůstane.
The owners want to get old together in their beloved apartment. They wished their new interior to be unique, the materials used should age with them and not look artificial. The required elegance came into existence thanks to a combination of copper, beige and steel blue colour. Unusually, we had the kitchen worktop made, including the sink, out of copperits unique patina changes slightly each year. Clients are excited and happy about every print and scratch that remain on it.


Tady je skvěle vidět, jak se ocelově modrá a béžová barvy s měděnými akcenty prolínají celým interiérem a opticky ho sjednocují. V chodbě jsme na poličce na doplňky a závěsu pro kabáty použili přírodní kůži. Kuchyňskému koutu dominuje měděná pracovní deska, měď jsme použili i na dalších prvcích – podsvícené nice a polici. Nika v samostatném pokoji posloužila jako čtecí koutek s lavicí a policemi na knížky.
You can see right away how steel-blue and beige colours with copper accents intertwine throughout the interior and optically unite it. In the corridor, we used natural leather on the accessories shelf and the coat hanger. The kitchen corner is dominated by a copper worktop, copper was used on other elements too – a backlit niche and a shelf. The niche in a separate room serves as a reading corner with a bench and shelves for books.

Ladili jsme do bílé, béžové a ocelově modré v kombinaci se dřevem a lehkými doteky mědi. Právě tyto barvy procházejí celým prostorem. Poklidné atmosféře dodává temperament originální rozvěšení svítidel nad jídelním stolem a v obývací části. Vestavěný nábytek a sedačka byly navrženy a zhotoveny na míru.
We designed everything into white, beige and steel blue in the combination with wood and light copper touches. These colours go through the entire space. The unique lightening above the dining table and in the living area gives some temperament to the calm atmosphere of the room. The built-in furniture and a sofa were custom-designed and made.





V krásném bytě jsme se vyhráli s mědí, jejíž nasvícení ještě podtrhuje požadovaný efekt. Na míru vyrobený dřez je vlastně plynulým pokračováním pracovní desky. Dohromady to působí příjemným a čistým dojmem, ostatně jako všechny prostory.
We played with copper in this beautiful apartment; the lighting underlines the desired effect. The custom-made sink is a smooth continuation of the worktop. Together it makes a nice and clean impression, like all the rooms after all.



V ložnici pozornost upoutává tapeta zhotovená míru podle pohlednice staré Prahy. Klidová místnost působí čistým a útulným dojmem. Neutrální barvy podtrhuje ocelově modrá, tady pro změnu na závěsech. Sousední koupelnu jsme sladili do stejných barev jako ložnici. Ručníky se netradičně zavěšují na dřevěné kapky.
In the bedroom, attention is drawn to the wallpaper made according to a postcard of Old Prague. The quiet room offers a clean and cozy impression. Neutral colours are underlined by steel blue, here, for a change, on the curtains. We designed the adjoining bathroom in the same colours as the bedroom has. The towels are untraditionally hung on the wooden drops.

BYTY PRO NÁJEMNÍ BYDLENÍ PRAHA
Svým způsobem něčím novým byl pro nás projekt interiérů bytového domu s nájemním bydlením. Jednalo se o variantní řešení vzorového bytu 3kk se zadanými kritérii od investora. Interiér jsme pojali jako příjemné místo, které splňuje nároky modrního životního stylu a zároveň je nadčasové a univerzální. Použili jsem typové kusové nábytky a svítidla, Naopak pro vytěžní co nejvíce místa jsou kuchyň a úložné prostory řešené na míru.
In a way, the interior project of an apartment building with rental housing was something new for us. It was a variant solution of a 3-bedroom model apartment with specified criteria from the investor. We conceived the interior as a pleasant place that meets the demands of a modern lifestyle and is at the same time timeless and universal. I used standard pieces of furniture and light fixtures. On the other hand, the kitchen and storage spaces are custom-made to maximize space.









VILY DVOREČNÁ
Jsou místa, kam se chcete vracet. Lipno k nim patří, chytí vás a nepustí. Neopakovatelné scenérie ukazují krásu v její nejčistější přírodní podobě.
Navržených třináct domů jsme citlivě umístili do šumavské krajiny. V čase se budou společně měnit, přirozeně a šarmantně stárnout. Současně poskytují dokonalý komfort umocněný dechberoucími výhledy do krajiny.
Třípodlažní vily splývají se svažitým terénem. Vstup je společně s wellness v částečně podzemní části; přízemí patří obývací části s jídelnou, kuchyní a dvěma ložnicemi s vlastní koupelnou; v podkroví našly místo 3 ložnice s vlastní koupelnou. Interiéry si váží soukromí a jsou výsledkem do detailu promyšlené práce. Spoluvytvářejí je přiznané konstrukční a technické prvky v čele s centrálním schodištěm, a útulné přírodní materiály v šedobéžových tónech: dřevo, beton, kámen a proutí. V létě navodí dojem bydlení venku a v zimě pocit tepla.
Příjezd je volně přístupný, nabízí nejen prostor k parkování, ale díky lavičce pod stromem i místo pro setkávání se sousedy.
Some places you always want to come back to. Lipno is one of them – it catches hold of you and never lets go. The unique sceneries showcase beauty in its purest form.
The thirteen design houses were sensitively installed into the Šumava landscape. They will change side by side over time, ageing naturally and gracefully. At the same time, they provide perfect comfort underlined by the breathtaking views.
The three-storey villas blend into the hilly landscape. The entrance and the wellness are situated in the partial souterrain, while the ground floor consists of the living room area with a dining nook and kitchen and two en-suite bedrooms. The attic hosts three bedrooms and a bathroom. The interior design emphasises privacy and attention to detail. It focuses on bare construction and technical elements, including a central staircase, combined with cosy natural materials in beige-grey: wood, concrete, stone, and wicker. In the summer, you will feel like you are outdoors, and in the winter, the interior will feel warm.
The entryway is freely accessible, offering not only a parking space but also a community area for meeting your neighbours on a bench under a tree.























