Skip to main content

Portfolio_2023.05

Page 1

YU-CHI CHEN 陳 郁 淇 2 0 2 2 .0 92 0 2 3 0 3 CY C U IN T ERIO R DES I G N
PO RT FO L I O PO RT FO L I O

TEL / 0910378685

MAIL / ng41118@gmail.com

Photoshop、Illustrator 工程製圖// AutoCAD、Sketchup、Enscape、Revit

享受生活,記下各樣的生活型態

觀察並思考,將所見所聞融入設計之中

同理、共情,珍惜與每個人的接觸交流

YU-CHI CHEN / 陳郁淇
/ 中原大學室內設計系三年級 SKILLS / INTEREST / 閱讀、影片欣賞、旅遊
觀察 / 思考 / 創作 / 生活
EDUCATION
影像處理//

CONTENTS

NEWBORN 01 易居 02 03 04 遇 域 映 藍

易居

01
抹去所有不安定元素 怡然自得 找回自己 做回自己 / 無 障 礙 住 宅 設 計

人總會因為許多外在因素而影響自己

的情緒波動 「家」為一放鬆休息的空間

無需顧慮任何外在事物 可以完全地做自己 在最放鬆的時刻

在最純粹的空間 得以卸下包袱

回歸平靜

回歸自我

/ 設計概念
樸 實 曲線設 計 動線單 視覺通 透 / 設計元素

/ 設計圖面

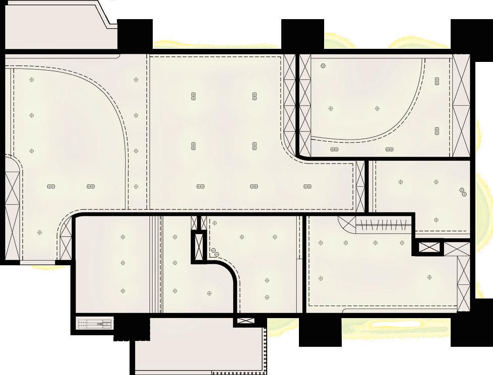
項次 1. 2. 3. 4. 名稱 崁燈 吊燈 雙崁燈 LED燈條 圖例 1.玄關 2.客廳 3.餐廳 4.廚房 5.公用浴廁 6.女兒房 7.主臥房 8.主臥浴廁 9.景觀陽台 10.工作陽台 1. 2. 3. 4. 5. 6. 7. 8. 9. 10. CH: 280 cm CH: 280 cm CH: 280 cm CH: 280 cm CH: 270 cm CH: 270 cm CH: 270 cm CH: 260 cm CH: 260 cm A A’ B B’
平面配置圖
天花燈具配置圖
/
珪藻土塗料 混凝土 木材 玻璃
材質計畫
BB’向剖立面圖 AA’向剖立面圖
隱藏式扶手 - 與造型牆結合 檯面皆為75公分高,方便攙扶及施力 扶手兼具其他功能性
通用設計細節 / 愛.無礙 / 合適的尺度,友善的空間 包容 友善 體諒 讓每個空間的使用者都能沉浸其中
/
/ 空間渲染圖
/ 版 面 設 計
平 面配 置圖 S: 1/ 50 m 天 花燈 具配 置圖 S: 1/ 50 m 項次 名稱 崁燈 吊燈 雙崁 LED 條 圖 1.玄關 .客廳 .餐廳 4.廚房 .公用浴廁 .女兒房 .主臥房 .主臥浴廁 .景觀陽台 .工作陽台 9 抹去所有不安定元 素 怡然自 得 找回自己 做回自 己 人總會因為許多外在因素而影響自己 的情緒波動 「家」為一放鬆休息的空間 無需顧慮任何外在事物 可以完全地做 自己 在最放鬆的時刻 在最純粹的空間 得以卸下包袱 回歸平靜 回歸自我 LIGHTING BB 向剖 立面 圖 S: 1/ 50 c m A A ’向 剖立 面圖 S: 1/ 50 m 隱藏式扶手 與造型牆結合 檯面皆為75公分高,方便 攙扶及施力 扶手兼具其他功能性 使用黃光,讓空間看起來溫暖 使用間接照明 柔和空間線條 分隔空間 動線引導 營造空間的輕盈之感 CH: 280 cm CH: 280 cm CH: 280 cm CH: 270 cm CH: 270 cm CH: 260 cm B’
易 居
02
叛逆而生,逆生,再造。
/ 中 古 車 改 裝 廠 設 計
NEWBORN
在我們的時空,打破原有的modes,衝擊時代,顛覆傳統, 破繭,重組,重新定義,詮釋自己。

/ 背景介紹

MODS

源於1960年代的英國,當時英國時尚文化

受多重文化以及美國搖滾樂影響,隨著時

間演變,慢慢發產成為Mods風格,屬於青

少年次文化。

叛逆 / 突破 / 時尚 / 衝突

MINI Austin

We Are All Different, But Pretty Good Together.

是一款由英國汽車公司生產的小型汽車。是1960 年代英國的其中一個重要象徵,其高效利用空間 的配置概念,為後來的汽車設計工業帶來了深遠 的影響。

精緻 / 突破 / 改裝 / 性格

/ 設計概念

叛逆而生,逆生,再造。

在我們的時空,打破原有的modes,衝擊時代,顛覆傳統,生 活因此變的多彩。

拆散,重組,重新定義,詮釋自己,從前至今,都要抱持著叛 逆的心,這是mods帶給我們的故事。

由幾何量體構築空間,並以集合論中的聯集、交集 、差集等等手法,進行空間規劃,因應重組,再造

的概念。

/ 動 線 設 計 / 主 要 量 體 拆 解
CH:300 CH:34 CH:34 CH:30 CH:275 CH:2 CH:24 CH CH:26 CH:250 CH:24 CH 270 CH:270 CH 270 CH:27 CH:27 CH 47 CH:47 CH 24 / 設 計 圖 面 一樓平面配置圖 一樓天花燈具配置圖 二樓天花燈具配置圖
LE D 條 燈 名 稱 符 號 燈 具 符號 表 編 號 1 2 3 4 5 6 筒 燈 嵌 燈 造 型 吊 燈 長 型 吊 燈 軌道 燈 CH:67 CH 270 CH:270 CH 27 CH:27 CH:27 CH 27 CH:65 CH 70 CH:68 CH:70 CH 68 CH:70 三樓平面配置圖
二樓天花燈具配置圖 A D B B D A’ C C’ AA’向外觀立面圖 BB’向剖立面圖 DD’向剖立面圖 CC’向剖立面圖
二樓平面配置圖 三樓天花燈具配置圖

/ 數位體驗空間 / 利用現今的科技優勢打造體驗區 以「玻璃車」結合操控面板, 使顧客得以使用裝置選擇自己喜歡的配件 為改裝做搭配、參考

/
/ /
/ /
/
零件展售區 收藏區 維修區
/ 空 間 渲 染 圖

“We Are All Different, But Pretty Good Together.”

提供最自然的感官體驗 重現藍染之美

03
/ 藍 染 體 驗 空 間
映 藍 以藍為本

靛 INDIGO

以藍為本

提供最自然的感官體驗

重現藍染之美

/ 藍染特性

天然染布的技法分為縫染、絞染、夾染、蠟染

、紮染等,透過各種方式將部分布料與染料隔 絕,將其餘部分浸染風乾,即完成。

而完成後的染織品在經過太陽曝曬後,被陽光

照射到的部分會逐漸褪回原本的白色。

/ 概念轉化 被隔絕的布料始終留白

被光照的空間回歸原始

因為條件不同而發生改變,因為受光洗禮而回歸 樸質。這是最自然的循環,亦是最根本的因果關 係。

/ 空間量體 / 設計元素 曲線設計 空間分割 量體投射 對稱 漸變

/ 設計圖面

1.入口形象牆 2.商品展售區 3.櫃台 4.感官體驗區 5.布料展示區 6.廁所 7.儲藏室 1. 2. 3. 4. 5. 6. 7. +17 +34 1.商品展售區 2.試衣間 3.廁所 4.工作坊 5.陽台
1. 2. 3. 4. 5.
1F 平面配置圖 2F 平面配置圖
/ MATERIAL 珪藻土塗料 混凝土 木材 金屬 A B B’ A’ 項次 1. 2. 3. 4. 名稱 崁燈 吊燈 雙崁燈 LED燈條 圖例
1F 天花燈具配置圖 2F 天花燈具配置圖 AA’向剖立面圖 BB’向剖立面圖

/ 感官體驗空間

透過大量體切割,為一 樓挑空處。

將然染布料垂下,讓人

可以遊走其間,透過欣 賞、觸碰、嗅聞,實施

五感體驗。

以藍染木頭做為空間形象牆,配以白色logo,體 現藍染的樸實及美,並符合空間意象。

檯面與上方燈具相互對應,在視覺上創造出一個特別 的區域。

不規則的金屬展示台反射藍色地坪,映照出不同的藍 ,增加空間趣味性。

/ 形象牆 / 二樓展售空間
/ 空 間 渲 染 圖
INDIGO ELEMENTS / 將然染布料垂下,讓人 可以遊走其間,透過欣 賞、觸碰、嗅聞,實施 五感體驗。 2. 4. 6. +34 1. / 版 面 設 計

在不同的場域

以不同的形式 遇見 以最合適的角度

03 遇
交匯 / 多 元 大 學 學 生 宿 舍 設 計

/ 設計議題

疫情的源起,是人類的越界,是過度行為的觸底反彈,是大自然的反撲。讓我們不得不反思,人類是

否跨越了界線,超越了應有的尺度?而我們又該保有多少空間,擁有多少張力,才能與各人、事、物

/ 設計概念

不同的場域,以不同的形式、相遇、相會;

不同的空間,保有不同尺度,與人和空間對話; 剛剛好的距離,剛剛好的界線,創造最合適的交織。

、乃至社會及整個大自然和平共處?

環境和生活受到疫情的破壞 審視、反思來自大自然的反撲 疫情後的生活,我們再次相遇

利用挑空創造三樓層間的對話

樓梯挑空,增加垂直互動空間 透過窗口,內外可直接交流

?

/ 設計元素

- 弧形牆面 使動線流暢

一樓平面配置圖

- 圓角設 計 友愛身障者

- 多處窗景 增加空間交流

- 植栽造景 室內外互動,增添綠意

一樓天花燈具配置圖 二樓天花燈具配置圖

/ 平面配置圖 / 天花燈具配置圖
三樓平面配置圖 三樓天花燈具配置圖 二樓平面配置圖 縱向剖立面圖 1.收件區 2.櫃台 3.交誼聽 4.閱讀區 5.殘障廁所 6.公用廁所 7.用餐區 8.廚房 9.洗衣坊 10.寢室 11.衛浴 12.研討室 西向立面圖 南向立面圖 北向立面圖 東向立面圖 / 外觀立面圖
/ 窗 / 用挑空創造樓層間的對話 用不同形式的開窗創造不同距離的交流
/ 入 口 處 & 信 箱
/ 一 樓 交 誼 空 間 / 一 樓 閱 讀 區
一樓主要為交誼空間 設有不同形式的座位區 提供學生相互交流或是接待外賓
/ 一 樓 廚 房 & 餐 廳 / 二 樓 洗 衣 房

Turn static files into dynamic content formats.

Create a flipbook