Skip to main content

110-2作品集

Page 1

10932155陳郁淇 CYCU/InteriorDesign/2022

PORTFOLIO

目錄 LIMI feu 品牌概念店 坪感覺 尋.跡 平時作業 快速設計

LIMI feu 品牌概念店

「在純粹的空間中觸摸到真實在真實的空間中窺探到自我」

CONCEPT

Limi Feu 眾不同的自己。的品牌服飾上,感受布料的觸感及紋理,並在與Limi能夠營造出一個純粹的空間,讓顧客可以在這樣的空間中將感官都放在眼前的服飾簡單而純粹,偶爾會再加上一些其他色彩的點綴,因此希望Feu的碰撞下,發現與

設計元素 神秘感 / 留白 / 藝術 / 對比 / 不對稱 使用Limi Feu 材質/色彩計畫,並將每個產品視為一件藝術品。的設計元素來營造空間,色彩運用上的對比、櫃體上的留白、空間中左右及上下的不對稱黑色塑鋁板木皮板石英石玻璃

平面配置圖 S:1/50 cm 設計圖說

CH : 270 cm CH : 270 cm CH : 270 cm CH : 250 cm 天花燈具配置圖 S:1/50 cm

外觀長向立面圖 S:1/50 cm AA’向剖立面圖 S:1/50 cm BB’向剖立面圖 S:1/50 cm CC’向剖立面圖 S:1/50 cm

坪感覺

坪感覺

在空間中體驗坪林的茶文化、感受當地的體會的是一種人文感受的是一種自然聞的是一種清香品的是一種淡然自然地貌,讓身心與之融合

CONCEPT

坪 林 地 區 茶 園 / 山 地 / 等 高 線 流 線 型 空 間 / 層 次 堆 疊 設計元素 層次 / 流線型 創造出一個流線型且具有層次的空間。坪林地區多為山地地形,且茶園的茶樹皆沿等高線種植,故運用高線的意象轉化為設計概念, 靜謐 / 樸實 / 簡單 放在身處的空間中,並用最輕鬆愜意的心情品嘗茶葉及茶點。將人帶入一個不同於外界的空間,遠離外界喧囂,創造一個簡單樸實的一隅,讓人將感官皆

商業模式.茶飲+茶點.茶具/茶葉 / 茶點販售 材質/色彩計畫間做結合,讓附近的住戶可以購買,並帶回家烹飪。這個空間傳達給顧客。此外,因基地所處位置為住宅區,故選擇販售坪林當地的小農農產品與餐飲空結合所選品牌特色,希望能創造一個能休閒品茶的空間,同時希望能將坪林在地的自然人文特色透過.小農農產品黑色鐵件水泥石英石玻璃

設計圖說 平面配置圖

CH:360 cm CH:340 cm 天花燈具配置圖

AA’向剖立面圖BB’向剖立面圖 CC’向剖立面圖 DD’向剖立面圖

尋.跡

事物因著時光的流動而改變文化順著歷史的演進而更迭發現舊物的新機窺看歷史的痕跡尋覓事物的本質了解過往、探索印記找尋狹縫中的生機

尋.跡

CONCEPT 存完好的部分,仔細觀察期細部特徵,如邊心材顔色、氣味、春秋材、木理及相關特,不易淸楚判斷其樹種別,因此要辨別未經處理的漂流木的樹種必須觀察木頭內側保漂流木因歷經河水以及水中砂石沖刷碰撞,因此木皮表面的紋理等外觀特徵多已消失徵予以判斷,才能辨別正確樹種。

漂流木未經處理的狀態 隱約可見的漂流木的內部構造 木頭外觀的裡外關係 空間中的裡外關係 空間中的空間

設計元素 交錯堆疊 框架 框景利用狹窄的窗縫,框出一個視線範圍,窺看空間中的另一個空間,使用樓層的錯位、天地壁的配合,形成特為突出的量體,唯自成一處的空間。量體與量體的交錯重疊,形成空間之間的互動以及視覺上最值觀的「空間中的空間」

材質/色彩計畫

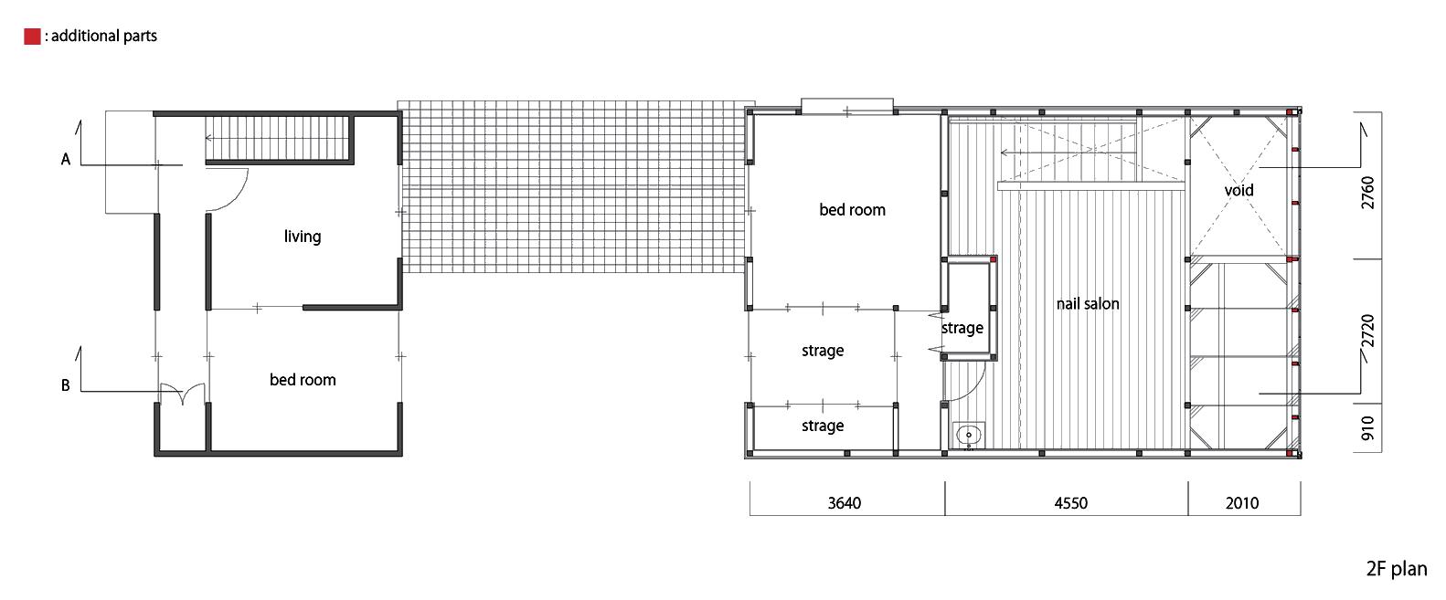
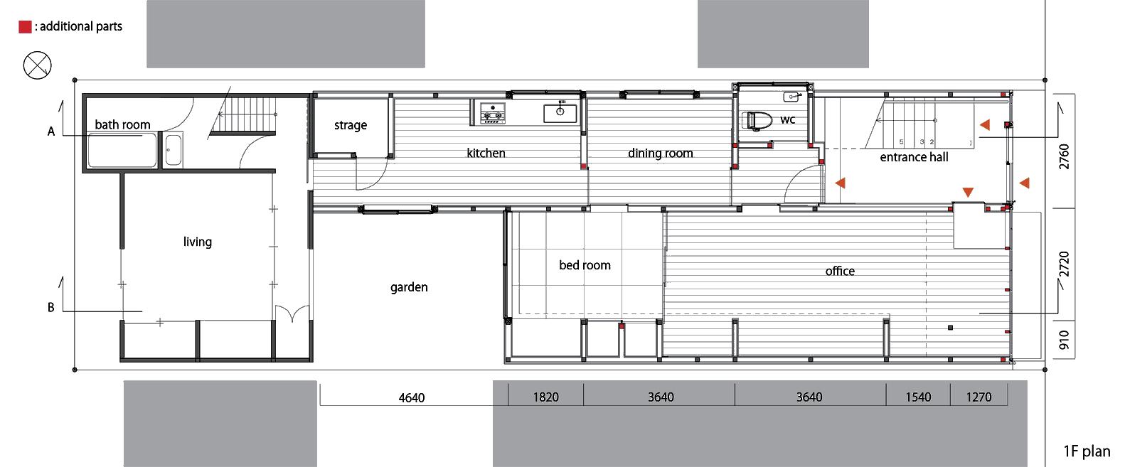
設計圖說 AA' BB' C' C D' D AA' BB' AA' BB' C' C D' D C' C D' D 1F平面配置圖 S:1/100 CM 2F平面配置圖 S:1/100 CM 3F平面配置圖 S:1/100 CM

CH: 300 cmCH: 340 cm CH: 280 cm CH: 260 cm CH: 300 cm CH: 260 cm CH: 280 cm CH: 340 cm CH: 300 cm CH: 300 cm CH: 340 cm CH: 300 cm CH: 280 cm CH: 280 cm CH: 340 cm CH: 340 cm 1F天花燈具配置圖 S:1/100 CM 2F天花燈具配置圖 S:1/100 CM

AA’向剖立面圖BB’向剖立面圖 CC’向剖立面圖DD’向剖立面圖

平時作業

高櫃設計的反差凸顯出展示空間。用讓櫃體看起來較為生動、有趣,再利用色彩商品都有屬於自己的獨立展示空間。弧線的運在完整的塊體上開出不同形狀的開口,讓每個

矮櫃設計不同的服飾配件。趣味性,並利用櫃體不同的高度差展示排的櫃體使用不同的高度,增加櫃體的使用多個長方形塊體有規律地排列,前

櫃主視覺牆上。故設計師從顯微鏡下的表皮組織提取了幾何形體,並將其轉化,運用在專品牌標榜自然、生態、永續,且非常注重產品的品質、紋理及材料運用,規律性的排列,與鞋盒自由搭配,在表達品牌的同時也解決了收納的問題。使用「鞋盒」作為主視覺牆的主要元素,以品牌名稱中的「X」為量體,透過

過切割、推拉,表達品牌服飾的剪裁及層次感。配合品牌形象,以灰階色彩作為量體主色調,經

LIMI Feu 解構等經典服裝元素。適體驗。LIMI,剪裁生動,刪繁就簡,強調著裝舒冷淡的色彩搭配上直線式的簡單線條以黑白做為色彩基調,相對Feu的服裝有不對稱、

Craig Reilly Craig Reilly是倫敦的街頭攝影師。 他最初於 2015 年開始拍攝街道, 通過在倫敦和許多其他歐洲城 市的 街道上拍攝來磨練自己的技巧。 Craig 以清 晰、簡潔和輕鬆的教學 風格,根據需求和技能水 平調整拍 攝工作的節奏,在獨自上街時發展 自己 的風格和方法。

用暗調,再結合建築或者其他既有的結構形向視覺核心,在光影對比的基礎上,著重使在暗部被隱藏,亮部的線條蜿蜒的將目光引條的結構就非常清晰,背景中不必要的內容畫面中的明暗對比強烈,主體突出,這樣線的視線,突出照片的視覺中心。就是通過畫面元素的組合和佈置,引導觀眾視覺引導是攝影構圖的核心概念,最終目的

2013年東京銀座資生堂櫥窗設計。櫥窗用金色鋼絲把各種花瓣串聯形 成一道花的帷幕,選用能代表 春天意象的色彩作為主要展示色調,在 純色的櫥窗背景下遠遠看去像是下起了花瓣雨,意圖營造日 本的自然 為運動品牌文化以及花季風情。NIKE的櫥窗設計。以較為自然的水泥色調為基底, 深色的底面打出一道光,讓人 將視線具焦在品牌 Logo 上,而深 色的底面同時也可以凸顯前方的造型設計。主色調為漸層的 綠色, 使用流線型的量體營造品牌意象,與品牌運動鞋上的線條互相呼 應,營造滑順的感覺。 流線型的線條最終聚焦在櫥窗內的商品上, 影領顧客的視覺

地貌以及茶園意象。以及層次堆疊的純象用茶園內的茶樹街沿等高線種植,形成梯田意以坪林當地的山地以及茶園作為然及人文風情,因所選品牌主要核心精神為發揚坪林地區的自且以茶類為主要販售商品,故概念發想,採為設計元素,使用灰階色彩,營造流線型型淨空間,表達出當地的地形

設計師: Nakajima Koyo 年份: 2018 地點: 室、姐姐的美甲沙龍店,以及居住空間。此案例為住商混合之建築,將閒置住宅改造成辦公、商店和住宅的混合用途建築。內部包含父親的辦公設計坪數:日本魚津市197m²設計概念:案例所在地主要是多雲,經常下雨,因此陽光相當稀少,故將重點放在“光明”上,且融合當地著名的“立山”山脈,其輪廓融入天空,並讓柔和的光線被包裹在建築中。

N 桃基地位置:園市大溪區和平路 98 號 運河頭木展發期時領清 19 6 峰巔業產藝木10980 落沒業產藝木代年O八 造營區社六九九 展發新業產 宮附宗,基公以大溪老街主要街道和平路、中山路以及中央路為主要街道。園綠地地鄰近中正公園,為是眺望大溪橋賞夕陽的熱門據點自然及人文資源豐富。教信仰近廟宇眾多,包含土地公廟以及各氏家廟等,其中基地旁的福仁為當地居民的主要信仰中心。 N 業的歷史興衰,將空間與當地的歷史發展融合。以將大溪的木業作為概念發想,在空間中體現出木結合業主設定,再搭配大溪老街的歷史,我認為可有固定流量的客群。便,但因大溪老街原本就是著名觀光景點,因此會基地位於大溪老街上,雖然附近交通機能不算很方分析評論:直及基日照分析:地位於北回歸線以北,且開窗開門方向面西北西南方,光照充足,且下午時段可能會有陽光射西晒的問題。

設計說明: 從此次設計的核心概念-創造「空 間中的空間」 再轉化,將塊體切 割、分離、錯位,讓樓梯也成 為 一個獨立的空間。 樓梯形式: 直梯 樓梯材料: 鋼構

快速設計

Turn static files into dynamic content formats.

Create a flipbook