DWD|E-PORTFOLIO|SEM4

Page 1

DETAILING AND WORKING DRAWINGS

DONE BY: CHEAH YUEN TZE

TAUGHT BY:

TUTOR: MS. SIN AI & MS. FATIMAH

SEMESTER 4

BARCHELOR OF ARTS (HONS) INTERIOR ARCHITECTURE

WORKING DRAWINGS + SYSTEM INTEGRATION

PRECESENT STUDIES : AGORA BUSINESS

INCUBATOR

WORK FROM HOMW : DOORS & WINDOWS

TABLE OF CONTENT ASSIGNMENT 3 ASSIGNMENT 2 ASSIGNMENT 1

ASSIGNMENT 03

INTRODUCTION

In this assignment, I am required to finish a set of working drawings that connect with the collaborative design module for this project for this assignment. The goal of this project is to be able to develop papers that integrate building services components by working cooperatively in the design process and offering answers to design concerns with appropriate bullding scale interior design concepts.

WORKING DRAWINGS + SYSTEM INTEGRATION

ASSIGNMENT 3: INTEGRATION GRAWING

DETAILING WORKING DRAWING IDS60804

NAME: CHEAH YUEN TZE

TUTOR: MS. SIN AI & MS. FATIMAH

SEMESTER: APRIL - JULY 2023

PROGRAMME: BARCHELOR OF ARTS (HONS) INTERIOR ARCHITECTURE

REVISIONTRACKING

PHASE1 00 DRAWINGLIST SHEETNAME REV DATE DESCRIPTION ISSUE YT_DWD_SOA_02 PHASE2 PHASE3 SCHEDULEOFACCOMODATION SETTINGOUTPLAN FURNITURELAYOUTPLAN REFLECTEDCEILINGPLAN LIGHTINGLOOPINGPLAN FLOORFINISHESPLAN SECTIONPLAN BESPOKELAYOUTPLAN BESPOKESECTION BLOW-UPDETAIL BILLOFQUANTITY SCHEDULEOFFINISHES(SOF) SCHEDULEOFFURNITURE,FIXTUREAND EQUIPMENT 00 02 10/7/2023------ 00 00 01 01 01 00 01 01 01 ISSUEFORCONSTRUCTION ISSUEFORCONSTRUCTION ISSUEFORCONSTRUCTION ISSUEFORCONSTRUCTION ISSUEFORCONSTRUCTION ISSUEFORCONSTRUCTION ISSUEFORCONSTRUCTION ISSUEFORCONSTRUCTION ISSUEFORCONSTRUCTION ISSUEFORCONSTRUCTION ISSUEFORCONSTRUCTION ISSUEFORCONSTRUCTION YT_DWD_FLP_02 YT_DWD_RCP_04 YT_DWD_LLP_05 YT_DWD_FFP_06 YT_DWD_SP_07 YT_DWD_BLP_08 YT_DWD_BS_09 YT_DWD_BD_10 YT_DWD_BOQ_11 YT_DWD_SOF_12 YT_DWD_SOP_01 YT_DWD_FFE_13 00 10/7/2023 10/7/2023 10/7/2023 10/7/2023 10/7/2023 10/7/2023 10/7/2023 10/7/2023 10/7/2023 10/7/2023 10/7/2023 10/7/2023
1.DO-NET NO.OFOCCUPANTSNO.OFROOMSAREAOFONEROOM(m²)TOTALAREASOFROOMS(M²) GROUNDFLOOR 2.ARMBOOST 4.CONNECTIONZONE 8.INFOSTATION 50 50 5.STREAMINGZONE 6.TOGATHER 7.HYPEBAR 3.FUNREX AREAS 1 1 1 1 1 96 103 88 58 53 70 12 0.8 12 25 28 22 11.EMERGENCYEXIT 9.STOREROOM 10.BINROOM 1 5 1 1 1 1 1 PUBLICSPACE SEMIPUBLICAREA SEMIPRIVATEAREA 12 15 14 18 3 1 2 50 50 96 103 88 58 53 70 12 0.8 5
SCHEDULEOFACCOMADATION

SETTINGOUTPLAN-GROUNDFLOORSOP

S1 SCALE1:150

NOTE:

THISDRAWINGANDDESIGNWAS GENERATEDBYACADSOFTWARE SYSTEM.

ALLDRAWINGS,DESIGNSANDPRINTED

SPECIFICATIONSARETHECOPYRIGHTOF KOLABSTUDIOANDARENOTPERMITTED FORUSAGEORREPRODUCTIONWITHOUT PRIORPERMISSION.

ALLWORKSARETOFOLLOWTHEPRINTED

DIMENSIONSWHICHARECONFIRMEDON SITE.ALLDISCREPANCIESSHALLBE REPORTEDTOTHEDESIGNERBEFORE COMMENCEMENTOFWORK.

LEGENDS

SYMBOL DESCRIPTION

CLIENT: ENNQI

ARCHITECT: EQARCHIDESIGNSND.BHD.

INTERIORDESIGNCONSULTANT: WEIBERMACTDESIGN&BUILDSDN.BHD.

DOORLEGENDS-GROUNDFLOOR

2000MM(L)X2100MM(H)DOUBLESWINGSTAINLESSSTEEL WITHTEMPEREDGLASSDOOR

862MM(L)X2100MM(H)SINGLELEAFTIMBERSWINGDOOR WITHSTAINLESSSTEELHANDLE

850MM(L)X2100MM(H)SINGLELEAFTIMBERSWINGDOOR WITHSTAINLESSSTEELHANDLE

1800MM(L)X2100MM(H)DOUBLESWINGSTAINLESSSTEEL WITHTEMPEREDGLASSDOOR

WINDOWLEGENDS-GROUNDFLOOR

SYMBOL QTY DESCRIPTION

2960MM(H)X50MM(THK)ALUMINUMFRAMEFIXEDWINDOW WITHWHITEPAINT W1

DRAWINGTITILE

QUANTITYSURVEYIOR:

PROJECTTITILE: TOPROPOSEFURNITURELAYOUTPLAN (GROUNDFLOORFORENNQI.

SETTINGOUTPLAN-GROUNDFLOOR -

SCALE:1:150

CHECKEDBY:-

DRAWNNO:YT_DWD_SOP_01

DATE:5JUNE2023

DRAWNBY:CHAYANNE

REVNO:01

bin utility storage utility 37000 16000 8000 7199 1801 4000 23350 3600 1750 2250 5120 1630 9000 A D C B F E 1 2 3 4 5 6 7 2000 WHEELCHAIRCYCLEPARKINGPOD DONET RAMP FUNREX ARMBOOST HYPEBAR INFOSTATION STREAMINGZONE CONNECTIONZONE
SYMBOL QTY DESCRIPTION WALKWAY 940 12932 3974 R416 R416 R416 R416 R416 R416 2881 3291 155 4259 2162 1566 2436 3453 4428 5304 1408 1483 1483 5008 1111 1831 659 1267 790 821 2225 906 747 230 D1 2149 1103 4727 785 3171 371 604
TOGATHER
D1 D2 D3 D4 907 1630 1527 1721 621 1512
DEMOLITION PROPOSEDNEWSTRUCTURE
150MM(THK)EXISTINGBRICKWALL
5 8 2 3
D1 D1 D1 D1 D2 D2 D2 D2 D2 D4 D4 D4 D3 D3 D2 1350 604 700 700 700 420 420 10174 922 4482 700 700 700 613 2137 R416 R416 R416 R416 R416 R416 R416 R416 R416 700 700 700 700 1093 1930 2004 1434 2350 2092 700 700 700 700 700 695 D2 2409 768 5682 4257 R990 7681 862 1031 876 1306 2263 1822 3092 3615 1040 1103 1040 1103 1105 771 96m² 50m² 88m² 103m² 70m² 53m² 58m² R416 R416 R416 R416 R416 R416 R416 R416 R416 R416 R416 R416 R416 R416 R416 R416 R416 1744 2569 2277 3394 2813 5085 EXISTINGZONEB
W1
N/A
Jaya, Selangor TEL: 018-3675-9988
Kc.sdn@gmail.com DG DESIGN STUDIO.SDN.BHD DG DESIGN , Jalan PJU 1a/11, Ara Damansara, 47301 Petaling Jaya, Selangor TEL: 018-0106-9946 EMAIL: Dgesign.sdn@gmail.com WEIBERMACT Jalan PJU 14, Ara Damansara, 47301 Petaling Jaya, Selangor TEL: 013-0185-8536 EMAIL: weibermactt@gmail.com pdelight ,Jalan desa 1, taman desa, jalan klang lama 48000,kuala Lumpur. TEL: 013-0185-8536 EMAIL: pdelight @gmail.com KC DESIGN .SDN.BHD WEIBERMACT DESIGN.SDN.BHD PDELIGHT. Q.B COMPANY X X
LOT 15, KC 24, Jalan SS 24/12, Taman Megah, 47301 Petaling
EMAIL:

BUILD-INFURNITURELEGENDS

1300MM(L)X4500MM(H)CUSTOMIZEDALUMINUMROUNDSHAPED ANTISLIPARMMACHINEWITHGLOSSYFINISH

4500MM(L)X5500MM(H)CUSTOMIZEDROUNDSHAPEDALUMINUM FINISHDONATIONMACHINEWITHLAMINATEFINISHTABLETOP

2000MM(L)X3000MM(H)CUSTOMIZEDALUMINUMALLOYCAPACITY TOUCHDIGITALSIGNAGEWITHBAKEDFINISHMETAL

STEELANTISLIPHANDLEBARMACHINEWITHMATTEFINISH

3525MM(L)X600MM(W)X3000MM(H)BUILDINKITCHENCABINETWITH PLYWOODLAMINATEFIN.-EDMIRACRYSTALWHITE/CDF1026VV

LOOSEFURNITURELEGENDS

1268MM(L)X5400MM(H)CUSTOMIZEDRECTANGLESHAPED WHEELCHAIRC/WSTEELLEGINPOLYESTERPOWDERCOATING

862MM(L)X460MM(H)CUSTOMIZEDSTEPUPSTOOLWITHPLYWOOD LAMINATEFIN.

FURNITURELAYOUTPLAN-GROUNDFLOOR

FLP

FL SCALE1:150

NOTE:

THISDRAWINGANDDESIGNWAS GENERATEDBYACADSOFTWARE SYSTEM.

ALLDRAWINGSDESIGNSANDPRINTED

SPECIFICATIONSARETHECOPYRIGHTOF KOLABSTUDIOANDARENOTPERMITTED

FORUSAGEORREPRODUCTIONWITHOUT PRIORPERMISSION.

ALLWORKSARETOFOLLOWTHEPRINTED DIMENSIONSWHICHARECONFIRMEDON SITEALLDISCREPANCIESSHALLBE REPORTEDTOTHEDESIGNERBEFORE COMMENCEMENTOFWORK.

ARCHITECT: EQARCHIDESIGNSNDBHD.

INTERIORDESIGNCONSULTANT: WEIBERMACTDESIGN&BUILDSDN.BHD.

QUANTITYSURVEYIOR:

PROJECTTITILE: TOPROPOSEFURNITURELAYOUTPLAN (GROUNDFLOOR)FORENNQI.

850MM(L)X2100MM(H)SEMIROUNDSHAPEDCHAIRWITHCUSHIONIN ACRYLICBLACKFLOSSFINISH

4 2 3525MM(L)X600MM(W)X3000MM(H)CUSTOMIZEDROUNDSHAPED TABLEWITHPLYWOODLAMINATEFIN.EDMIRACRYSTALWHITE CDF1026VV

FURNITURELAYOUTPLAN-GROUNDFLOOR

DRAWINGTITILE:

SCALE:1:150

CHECKEDBY:MS.FATIMAH

DRAWNNO:YT_DWD_FLP_02

DATE:26JUNE2023

DRAWNBY:CHAYANNE

entrance 37000 16000 8000 7199 1801 4000 23350 3600 1750 2250 5120 1630 9000 A D C B F E 1 2 3 4 5 6 7 2000 WHEELCHAIRCYCLEPARKINGPOD FUNREX INFOSTATION ARMBOOST DO-NET GATHERINGAREA STREAMINGZONE RAMP 600 940 3974 R416 R416 R416 R416 R416 R416 2881 3291 155 4259 2162 1566 2436 3453 4428 5304 1408 1483 1483 5008 1111 1831 659 1267 790 821 2225 4078 906 747 230 2149 1103 4727 785 3171 371 604 907 1630 1527 1721 621 1512 1350 604 700 700 700 420 420 10174 922 4482 700 700 700 613 2137 R416 R416 R416 R416 R416 R416 R416 R416 R416 700 700 700 700 1093 1930 2004 1434 2350 2092 700 700 700 700 700 695 2409 768 5682 4257 R990 7681 862 1031 2280 876 1306 2263 1822 3092 3615 1040 1103 1040 1103 1105 771 TOGATHER HYPEBAR 3525 600 BF1 BF3 BF4 BF2 BF5 BF5 LF1LF1LF1 LF1LF1 LF1 96m² 50m² 50m² 103m² 88m² 70m² 53m² 58m² LF2 LF2 LF2 LF2 LF3 LF3 LF4 LF4
SYMBOL QTY DESCRIPTION BF1 BF2 BF3 BF4 4 1 1 1765MM(L)X750MM(H)CUSTOMIZEDROUNDSHAPEDSTAINLESS
BF5 1 2
QTY DESCRIPTION
LF1 LF2 LF3 LF4
SYMBOL
6 4
STORE ROOM EMERGENCY EXIT BIN 1030 1358 1030 1358 884 884 884 884 942 942 942 942 908 231 R2028 R416 R416 R416 R416 R416 R416 R416 R416 R416 R416 R416 R416 R416 R416 R416 R416 R416 Ø785 Ø785 2245 2246 2225 1811 1811 1811 1811 12m² 0.8m² 5m² 1744 2569 2277 3394 2813 5085
CLIENT
ENNQI
-
LOT 15, KC 24, Jalan SS 24/12, Taman Megah, 47301 Petaling Jaya, Selangor TEL: 018-3675-9988 EMAIL: Kc.sdn@gmail.com DG DESIGN STUDIO.SDN.BHD DG DESIGN Jalan PJU 1a/11, Ara Damansara, 47301 Petaling Jaya, Selangor TEL: 018-0106-9946 EMAIL: Dgesign.sdn@gmail.com WEIBERMACT, Jalan PJU 14, Ara Damansara, 47301 Petaling Jaya, Selangor TEL: 013-0185-8536 EMAIL: weibermactt@gmail.com pdelight ,Jalan desa 1, taman desa, jalan klang lama 48000,kuala Lumpur. TEL: 013-0185-8536 EMAIL: pdelight @gmail.com KC DESIGN .SDN.BHD WEIBERMACT DESIGN.SDN.BHD PDELIGHT. Q.B COMPANY X X
REVNO:00

REFLECTED CEILING PLAN - GROUND FLOOR

37000 8000 7199 1801 4000 23350 3600 1750 2250 5120 1630 9000 A D C B F E 1 2 3 4 5 6 7 NEW. PLASTER CEILING CH 3000 MM NEW. PLASTER CEILING CH 8350 MM EXT. PLASTER CEILING CH 3000 MM EXT. PLASTER CEILING CH 3000 MM 300 700 2399 P 3000 3937 3000 FUNREX 6" 6" 2508 2508 2508 2508 2508 2508 6" 6" 6" 6" 6" STREAMINGZONE DO-NET ARMBOOST CONNECTIONZONE TOGATHER HYPE BAR INFOSTATION 1217 2434 2434 6" 6" 6" 6" 6" NEW AC NEW AC NEW AC 6" 6" 3679 6" 6" 6" 6" 6" 6" 6" 6" 6" 6" 6" 6" 2500 2500 2500 2500 7962 EXT. PLASTER CEILING CH 3000 MM SYMBOLDESCRIPTION LEGENDS - LIGHTING (GROUND FLOOR) 6" P SYMBOLDESCRIPTION LEGENDS - CEILING (GROUND FLOOR) KELUAR KELUAR 6" 6" 6" 6" 6" 6" 6" 6" 2500 3000 3937 KELUAR KELUAR KELUAR SYMBOLDESCRIPTION FIRE LEGENDS - CEILING (GROUND FLOOR) KELUAR SD SD SD SD SD SD SD SD
(GROUND FLOOR)
LEGENDS - CEILING
FLP FL SCALE 1 : 150 INTERIOR DESIGN CONSULTANT: WEIBERMACT DESIGN & BUILD SDN.BHD. ARCHITECT: EQ ARCHI DESIGN SND BHD. CLIENT ENN QI NOTE: QUANTITY SURVEYIOR: THIS DRAWING AND DESIGN WAS GENERATED BY A CAD SOFTWARE SYSTEM. ALL DRAWINGS DESIGNS AND PRINTED SPECIFICATIONS ARE THE COPYRIGHT OF KOLAB STUDIO AND ARE NOT PERMITTED FOR USAGE OR REPRODUCTION WITHOUT PRIOR PERMISSION. ALL WORKS ARE TO FOLLOW THE PRINTED DIMENSIONS WHICH ARE CONFIRMED ON SITE ALL DISCREPANCIES SHALL BE REPORTED TO THE DESIGNER BEFORE COMMENCEMENT OF WORK. PROJECT TITILE: TO PROPOSE FURNITURE LAYOUT PLAN (GROUND FLOOR ) FOR ENN QI. DRAWN NO: YT_DWD_RCP_04 CHECKED BY: MS.FATIMAH SCALE: 1: 150 DRAWING TITILE : DATE: 26 JUNE 2023 DRAWN BY: CHAYANNE REFLECTED CEILING PLAN GROUND FLOORREV NO: 01 LOT 15, KC 24, Jalan SS 24/12, Taman Megah, 47301 Petaling Jaya, Selangor TEL: 018-3675-9988 EMAIL: Kc.sdn@gmail.com DG DESIGN STUDIO.SDN.BHD DG DESIGN Jalan PJU 1a/11, Ara Damansara, 47301 Petaling Jaya, Selangor TEL: 018-0106-9946 EMAIL: Dgesign.sdn@gmail.com WEIBERMACT, Jalan PJU 14, Ara Damansara, 47301 Petaling Jaya, Selangor TEL: 013-0185-8536 EMAIL: weibermactt@gmail.com pdelight ,Jalan desa 1, taman desa, jalan klang lama 48000,kuala Lumpur. TEL: 013-0185-8536 EMAIL: pdelight @gmail.com KC DESIGN .SDN.BHD WEIBERMACT DESIGN.SDN.BHDPDELIGHT. Q.B COMPANY
37000 8000 7199 1801 4000 23350 3600 1750 2250 5120 1630 9000 A D C B F E 1 2 3 4 5 6 7 NEW. PLASTER CEILING CH 3000 MM NEW. PLASTER CEILING CH 8350 MM EXT. PLASTER CEILING CH 3000 MM EXT. PLASTER CEILING CH 3000 MM 300 700 2399 6" 6" 2508 2508 2508 2508 2508 2508 6" 6" 6" 6" 6" 1217 2434 2434 6" 6" 6" 6" 6" 6" 6" 3679 6" 6" 6" 6" 6" 6" 6" 6" 6" 6" 6" 6" 1734 1600 1636 1175 2500 2500 2500 2500 7962 EXT. PLASTER CEILING CH 3000 MM SYMBOLDESCRIPTION LEGENDS - SWITCHES -NEW 4 3 5 AC 6" 6" 6" 6" 6" 6" 6" 6" 2500 2500 2500 2500
LOOP PLAN
LLP FL SCALE 1 : 150 INTERIOR DESIGN CONSULTANT: WEIBERMACT DESIGN & BUILD SDN.BHD. ARCHITECT: EQ ARCHI DESIGN SND BHD. CLIENT ENN QI NOTE: QUANTITY SURVEYIOR: THIS DRAWING AND DESIGN WAS GENERATED BY A CAD SOFTWARE SYSTEM. ALL DRAWINGS DESIGNS AND PRINTED SPECIFICATIONS ARE THE COPYRIGHT OF KOLAB STUDIO AND ARE NOT PERMITTED FOR USAGE OR REPRODUCTION WITHOUT PRIOR PERMISSION. ALL WORKS ARE TO FOLLOW THE PRINTED DIMENSIONS WHICH ARE CONFIRMED ON SITE ALL DISCREPANCIES SHALL BE REPORTED TO THE DESIGNER BEFORE COMMENCEMENT OF WORK. PROJECT TITILE: TO PROPOSE FURNITURE LAYOUT PLAN (GROUND FLOOR ) FOR ENN QI. DRAWN NO: YT_DWD_LLP_05 CHECKED BY:SCALE: 1: 150 DRAWING TITILE : DATE: 11 JUNE 2023 DRAWN BY: CHAYANNE LIGHTING LOOP PLAN - GROUND FLOORREV NO: 00 LOT 15, KC 24, Jalan SS 24/12, Taman Megah, 47301 Petaling Jaya, Selangor TEL: 018-3675-9988 EMAIL: Kc.sdn@gmail.com DG DESIGN STUDIO.SDN.BHD DG DESIGN Jalan PJU 1a/11, Ara Damansara, 47301 Petaling Jaya, Selangor TEL: 018-0106-9946 EMAIL: Dgesign.sdn@gmail.com WEIBERMACT, Jalan PJU 14, Ara Damansara, 47301 Petaling Jaya, Selangor TEL: 013-0185-8536 EMAIL: weibermactt@gmail.com pdelight ,Jalan desa 1, taman desa, jalan klang lama 48000,kuala Lumpur. TEL: 013-0185-8536 EMAIL: pdelight @gmail.com KC DESIGN .SDN.BHD WEIBERMACT DESIGN.SDN.BHD PDELIGHT. Q.B COMPANY SYMBOLDESCRIPTION LEGENDS - LIGHTING (GROUND FLOOR) 6" P X X NEW AC NEW AC NEW AC FUNREX STREAMINGZONE DO-NET ARMBOOST CONNECTIONZONE TOGATHER HYPE BAR INFOSTATION
LIGHTING
- GROUND FLOOR

DOORLEGENDS-GROUNDFLOOR

FLOORFINISHESPLAN

LLP FL SCALE1:150

NOTE:

THISDRAWINGANDDESIGNWAS GENERATEDBYACADSOFTWARE SYSTEM.

ALLDRAWINGSDESIGNSANDPRINTED

SPECIFICATIONSARETHECOPYRIGHTOF KOLABSTUDIOANDARENOTPERMITTED

FORUSAGEORREPRODUCTIONWITHOUT PRIORPERMISSION.

ALLWORKSARETOFOLLOWTHEPRINTED

DIMENSIONSWHICHARECONFIRMEDON SITEALLDISCREPANCIESSHALLBE REPORTEDTOTHEDESIGNERBEFORE COMMENCEMENTOFWORK.

CLIENT ENNQI

ARCHITECT: EQARCHIDESIGNSNDBHD.

INTERIORDESIGNCONSULTANT: WEIBERMACTDESIGN&BUILDSDN.BHD.

LOT 15, KC 24, Jalan SS 24/12, Taman Megah, 47301 Petaling Jaya, Selangor

018-3675-9988

EMAIL: Kc.sdn@gmail.com

QUANTITYSURVEYIOR:

DRAWINGTITILE:

PROJECTTITILE: TOPROPOSEFURNITURELAYOUTPLAN (GROUNDFLOOR)FORENNQI.

FLOORFINISHESPLAN-GROUNDFLOOR -

SCALE:1:150

CHECKEDBY:MS.FATIMAH

DRAWNNO:YT_DWD_FFP_06

DATE:19JUNE2023

DRAWNBY:CHAYANNE

REVNO:00

bin utilityC storageC utility 37000 16000 8000 7199 1801 4000 23350 3600 1750 2250 5120 1630 9000 A D C B F E 1 2 3 4 5 6 7 WHEELCHAIRCYCLEPARKINGPOD DO-NET RAMP FUNREX ARMBOOST HYPEBAR INFOSTATION STREAMINGZONE CONNECTIONZONE WALKWAY 940 12932 3974 R416 807 768 807 807 732 R416 R416 R416 R416 R416 2881 3291 155 4259 2162 1566 2436 3453 4428 5304 1483 1408 1483 1483 5008 1111 1831 659 1267 790 821 2225 4078 906 747 230 2149 1103 4727 785 4142 3171 371 604 TOGATHER 907 1630 1527 1721 621 1512 1350 700 700 700 420 420 10174 922 4482 700 700 700 613 2137 R416 R416 R416 R416 R416 R416 R416 R416 R416 700 700 700 700 1093 1930 2004 1434 2350 2092 700 700 700 700 700 695 615 2239 10711 428 679 420 427 2409 768 5682 4257 862 1031 876 1306 2263 1822 3092 3615 1040 1105 1103 1040 1121 1103 1105 771 96m² 50m² 88m² 103m² 70m² 53m² 58m² 50m² R416 R416 R416 R416 R416 R416 R416 R416 R416 R416 R416 R416 R416 R416 R416 R416 R416 1744 2569 2277 3394 2813 5085 2384 EXISTINGZONEB
SYMBOL AREA DESCRIPTION VINYLFLOORINGINFULLYPIGMENTEDORANGEGLOSSY FINISH CONCRETEFLOORING 100 184 248 31 VINYLFLOORINGINFULLYPIGMENTEDORANGEGLOSSY FINISH 12MMHDFAC1-AC4WHITEWATERPROOFLAMINATE FLOORING
TEL:
DG DESIGN STUDIO.SDN.BHD DG DESIGN Jalan PJU 1a/11, Ara Damansara, 47301 Petaling Jaya, Selangor TEL: 018-0106-9946 EMAIL: Dgesign.sdn@gmail.com WEIBERMACT, Jalan PJU 14, Ara Damansara, 47301 Petaling Jaya, Selangor TEL: 013-0185-8536 EMAIL: weibermactt@gmail.com pdelight ,Jalan desa 1, taman desa, jalan klang lama 48000,kuala Lumpur. TEL: 013-0185-8536 EMAIL: pdelight @gmail.com KC DESIGN .SDN.BHD WEIBERMACT DESIGN.SDN.BHD PDELIGHT. Q.B COMPANY X X

SC SECTION PLAN X-X

Z3 SCALE1:125

NOTE:

THISDRAWINGANDDESIGNWAS GENERATEDBYACADSOFTWARE SYSTEM.

ALLDRAWINGSDESIGNSANDPRINTED

SPECIFICATIONSARETHECOPYRIGHTOF KOLABSTUDIOANDARENOTPERMITTED FORUSAGEORREPRODUCTIONWITHOUT PRIORPERMISSION.

ALLWORKSARETOFOLLOWTHEPRINTED

DIMENSIONSWHICHARECONFIRMEDON SITEALLDISCREPANCIESSHALLBE REPORTEDTOTHEDESIGNERBEFORE COMMENCEMENTOFWORK.

CLIENT ENNQI

ARCHITECT: EQARCHIDESIGNSNDBHD.

INTERIORDESIGNCONSULTANT: WEIBERMACTDESIGN&BUILDSDN.BHD.

QUANTITYSURVEYIOR:

DRAWINGTITILE:

SECTIONPLAN

PROJECTTITILE: TOPROPOSEFURNITURELAYOUTPLAN (BEDROOM)FORENNQI.

SCALE:1:120

CHECKEDBY:-

DRAWNNO:YT_DWD_FLP_01

DATE:26JUNE2023

DRAWNBY:CHAYANNE

REVNO:02

10000 41934 24154 17780 3459 4912 1629 1 2 3 4 A I B FIRSTFLOOR GROUNDFLOOR ARMBOOST DO-NET FUNREX CO-WORKINGPLACE INFOSTATION BF1 BF2 BF3 BF4 D C E F G H
-
LOT 15, KC 24, Jalan SS 24/12, Taman Megah, 47301 Petaling Jaya, Selangor TEL: 018-3675-9988 EMAIL: Kc.sdn@gmail.com DG DESIGN STUDIO.SDN.BHD DG DESIGN Jalan PJU 1a/11, Ara Damansara, 47301 Petaling Jaya, Selangor TEL: 018-0106-9946 EMAIL: Dgesign.sdn@gmail.com WEIBERMACT, Jalan PJU 14, Ara Damansara, 47301 Petaling Jaya, Selangor TEL: 013-0185-8536 EMAIL: weibermactt@gmail.com pdelight ,Jalan desa 1, taman desa, jalan klang lama 48000,kuala Lumpur. TEL: 013-0185-8536 EMAIL: pdelight @gmail.com KC DESIGN .SDN.BHD WEIBERMACT DESIGN.SDN.BHD PDELIGHT. Q.B COMPANY

NOTE:

THISDRAWINGANDDESIGNWAS GENERATEDBYACADSOFTWARE SYSTEM.

ALLDRAWINGSDESIGNSANDPRINTED

SPECIFICATIONSARETHECOPYRIGHTOF KOLABSTUDIOANDARENOTPERMITTED

FORUSAGEORREPRODUCTIONWITHOUT PRIORPERMISSION.

ALLWORKSARETOFOLLOWTHEPRINTED

DIMENSIONSWHICHARECONFIRMEDON

SITEALLDISCREPANCIESSHALLBE REPORTEDTOTHEDESIGNERBEFORE COMMENCEMENTOFWORK.

SCALE1:40

CLIENT ENNQI

ARCHITECT: EQARCHIDESIGNSNDBHD.

INTERIORDESIGNCONSULTANT: WEIBERMACTDESIGN&BUILDSDN.BHD.

50MMQUARTZSTONETABLETOP WITHORANGEGLOSSYFIN

PVCPIPEWITHORANGEGLOSSYFIN

CUSTOMIZEDROUNDOVERHEADHANGINGBANNER 1664MM(L)X482MM(H)HIGHTQUALITYLEDLIGHT LETTERLOGOSIGN FESTOSTRAIGHTTHREADEDADAPTOR/G1/4MALETO PUSHIN6MM-186296

KC DESIGN .SDN.BHD

LOT 15, KC 24, Jalan SS 24/12, Taman Megah, 47301 Petaling Jaya, Selangor TEL: 018-3675-9988

EMAIL: Kc.sdn@gmail.com

DG DESIGN STUDIO.SDN.BHD

DG DESIGN Jalan PJU 1a/11, Ara Damansara, 47301 Petaling Jaya, Selangor TEL: 018-0106-9946

EMAIL: Dgesign.sdn@gmail.com

DRAWINGTITILE:

QUANTITYSURVEYIOR:

WEIBERMACT DESIGN.SDN.BHD PDELIGHT. Q.B COMPANY

WEIBERMACT, Jalan PJU 14, Ara Damansara, 47301 Petaling Jaya, Selangor TEL: 013-0185-8536

EMAIL: weibermactt@gmail.com

pdelight ,Jalan desa 1, taman desa, jalan klang lama 48000,kuala Lumpur. TEL: 013-0185-8536

EMAIL: pdelight @gmail.com

PROJECTTITILE: TOPROPOSEFURNITURELAYOUTPLAN (BEDROOM)FORENNQI.

DO-NETLAYOUTPLAN -

SCALE:1:30

CHECKEDBY:-

DRAWNNO:YT_DWD_DLP_08

DATE:26JUNE2023

DRAWNBY:CHAYANNE

REVNO:02

4529 7418 5863 1957 931 4529 1092 241
FP MB
DO-NETLAYOUTPLAN

SP DO-NET SECTION

DN SCALE1:50

NOTE:

THISDRAWINGANDDESIGNWAS GENERATEDBYACADSOFTWARE SYSTEM.

ALLDRAWINGSDESIGNSANDPRINTED

SPECIFICATIONSARETHECOPYRIGHTOF KOLABSTUDIOANDARENOTPERMITTED

FORUSAGEORREPRODUCTIONWITHOUT PRIORPERMISSION.

ALLWORKSARETOFOLLOWTHEPRINTED

DIMENSIONSWHICHARECONFIRMEDON

SITEALLDISCREPANCIESSHALLBE REPORTEDTOTHEDESIGNERBEFORE COMMENCEMENTOFWORK.

FESTOSTRAIGHTTHREADEDADAPTOR/G1/4MALETOPUSHIN 6MM-186296

ARCHITECT: EQARCHIDESIGNSNDBHD. CLIENT ENNQI

INTERIORDESIGNCONSULTANT: WEIBERMACTDESIGN&BUILDSDN.BHD.

140MMUPVCBRIGHTGLOSSYORANGEPIPE

8MM(THK)POLYCARBONATETUBESTRUCTUREINTRANSPARENT GLASSMEDIUMGREENCLASSIC

1664MM(L)X482MM(H)HIGHTQUALITYLEDLIGHTLETTERLOGO SIGN

BESPOKEDETAIL

570MM(H)X170MM(L)AIRFLOWDETECTORCOVERINBRIGHT GREENALUMINIUMWITHTRANSPARENTGLASS

50MM(THK)X2700MM(L)QUARTZSTONETABLETOPWITHGLOSSY ORANGEFINISH

METALSTRUCTUREINGLOSSYMETALLICDARKBLUEFINISH -SMOOTHGLOSSY/RAL5019CAPRIBLUE

DRAWINGTITILE:

QUANTITYSURVEYIOR:

PROJECTTITILE: TOPROPOSEFURNITURELAYOUTPLAN (BEDROOM)FORENNQI.

DO-NETSECTIONPLAN -

SCALE:1:50

CHECKEDBY:-

DRAWNNO:YT_DWD_BSP_09

DATE:26JUNE2023

DRAWNBY:CHAYANNE

REVNO:02

8654 5129 2064 441 411 1151 1063 750 576 1394 1550 3455 929
750 260 266 1964 2700 387 1015 1664 370 1443 362 2754 2922 150 1736 570 GROUNDFLOORLEVEL FIRSTFLOORLEVEL
LOT 15, KC 24, Jalan SS 24/12, Taman Megah,
Petaling
TEL:
Kc.sdn@gmail.com
DESIGN STUDIO.SDN.BHD DG DESIGN Jalan PJU 1a/11, Ara Damansara, 47301 Petaling Jaya, Selangor TEL:
EMAIL: Dgesign.sdn@gmail.com
EMAIL:
pdelight
EMAIL:
KC DESIGN .SDN.BHD WEIBERMACT
PDELIGHT.
47301
Jaya, Selangor
018-3675-9988 EMAIL:
DG
018-0106-9946
WEIBERMACT, Jalan PJU 14, Ara Damansara, 47301 Petaling Jaya, Selangor TEL: 013-0185-8536
weibermactt@gmail.com
,Jalan desa 1, taman desa, jalan klang lama 48000,kuala Lumpur. TEL: 013-0185-8536
pdelight @gmail.com
DESIGN.SDN.BHD
Q.B COMPANY

BD

DO-NETLAYOUTPLAN

D1 SCALE1:15

NOTE:

THISDRAWINGANDDESIGNWAS GENERATEDBYACADSOFTWARE SYSTEM.

ALLDRAWINGSDESIGNSANDPRINTED

SPECIFICATIONSARETHECOPYRIGHTOF KOLABSTUDIOANDARENOTPERMITTED

FORUSAGEORREPRODUCTIONWITHOUT PRIORPERMISSION.

ALLWORKSARETOFOLLOWTHEPRINTED

DIMENSIONSWHICHARECONFIRMEDON

SITEALLDISCREPANCIESSHALLBE REPORTEDTOTHEDESIGNERBEFORE COMMENCEMENTOFWORK.

100MMROUNDSTAINLESS STEELSUPORTFRAMEC/W

EPOXYCOATINGFINISHES

80MM(L)FLATHEADSCREW

8MM(THK)POLYCARBONATETUBE STRUCTUREINTRANSPARENT

GLASSMEDIUMGREENCLASSIC

140MMUPVCBRIGHTGLOSSY ORANGEPIPE

59MM(THK)X2700MM(L)QUARTZSTONE TABLETOPWITHGLOSSYORANGE

FINISH

ARCHITECT: EQARCHIDESIGNSNDBHD. CLIENT

INTERIORDESIGNCONSULTANT: WEIBERMACTDESIGN&BUILDSDN.BHD.

20MMPLYWOODLAMINATED FINISHSKIRTING

DRAWINGTITILE:

QUANTITYSURVEYIOR:

PROJECTTITILE: TOPROPOSEFURNITURELAYOUTPLAN (BEDROOM)FORENNQI.

BESPOKEDETAIL -

SCALE:1:15

CHECKEDBY:MS.FATIMAH

DATE:3JULY2023

DRAWNBY:CHAYANNE

REVNO:00 LOT 15, KC 24, Jalan SS 24/12, Taman Megah, 47301

DRAWNNO:YT_DWD_BD_10

568
50 30 100 571 80 2411
ENNQI
Petaling Jaya, Selangor TEL: 018-3675-9988
Kc.sdn@gmail.com DG DESIGN STUDIO.SDN.BHD DG DESIGN Jalan PJU 1a/11, Ara Damansara, 47301 Petaling Jaya, Selangor TEL: 018-0106-9946 EMAIL: Dgesign.sdn@gmail.com WEIBERMACT, Jalan PJU 14, Ara Damansara, 47301 Petaling Jaya, Selangor TEL: 013-0185-8536 EMAIL: weibermactt@gmail.com pdelight ,Jalan desa 1, taman desa, jalan klang lama 48000,kuala Lumpur. TEL: 013-0185-8536 EMAIL: pdelight @gmail.com KC DESIGN .SDN.BHD WEIBERMACT DESIGN.SDN.BHD PDELIGHT. Q.B COMPANY
EMAIL:

pdelight ,Jalan desa 1, taman desa, jalan klang lama 48000,kuala Lumpur.

013-0185-8536

pdelight @gmail.com

TEL:03-53459889

QUOTATION

DATE: 3 JULY 2023

QOUTATION:

CUSTOMER ID: 20030

pdelight ,Jalan desa 1, taman desa, jalan klang lama 48000,kuala Lumpur.

013-0185-8536

pdelight @gmail.com

RENOVATION WORK FOR WEIBERMACT DESIGN

GROUND FLOOR (DO-NET)

TO SUPPLY MATERIAL OF 100MM (THK) PROPOSED PLASTER SLAB PARTITION@STREAMINGZONE

DATE: 3 JULY 2023

QOUTATION:

CUSTOMER ID: 20030

TO SUPPLY MATERIAL OF 1L INTERIOR NIPPON PAINT ODOUR-LESS ANTIMOULDCEILINGGREY@DO-NET

TO SUPPLY AND INSTALL 3000MM (H) GYSUM BAORD SUSPENDED CEILING INWHITEPAINTFINISH

ApproxArea 203SQM

TOSUPPLYVINYLFLOORINGINBRIGHTORANGECOLOURGLOSSYFINISH@ DO-NET

ApproxArea 50SQM

TO SUPPLY VINYL FLOORING IN BRIGHT GREEN COLOUR GLOSSY FINISH @ DO-NET

ApproxArea 50SQM

TO SUPPLY AND INSTALL OF 1000MM THK LED STRIP RECESSED LIGHT @ DO-NET

ApproxArea 20.50SQM

To supply AND INSTALL 450(W) X 1000MM(H) HALF EGG PENDENT LIGHT C/WGLOSSYALUMINIUMWHITEFINISH

ApproxArea 1000MM(H)X450MM(W)

To supply AND INSTALL OF 750MM(H) CUSTOMIZED @DO-NET QUARTZSTONETABLETOPANDFIBERGLASSSTRUCTURE

TO SUPPLY MATERIAL WHITE LAMINATED PVC POCKET DOOR @ FUN REX AREA APPROXLENGTH 2100MM(H)X900MM(W)X50MM(THK).

To supply material of 1L INTERIOR NIPPON PAINT GLOSS FINISH (CODE : GREEN)MODELDISPLAYAREA

ApproxArea

ACKNOWLEDGE & AGREED BY:

ISSUE BY:

WEIBERMACT DESIGN DIRECTOR

SIGNATURE WITH I.C. NUMBER

NO DESCRIPTION 2. PAINTING WORK 1. DRYWALL PARTITION WORK WALL P01 6.00 1 1 1 1 1 1 3 1 1 1.50 SQM L L SQM ROLL ROLL M M NOS NOS SQM 60.80 150.00 20.00 1500 1500 15.00 250.00 4500.00 450.00 1050.00 60.80 150.00 4060.00 1500.00 1500.00 307.75 750.00 4500.00 450.00 1575.00 40.00 240.00 W01 C01 CP1 FF1 FF3 L1 PL BF2 D1 M1 CEILING 3. CEILING WORK 4. TILING WORK 5. TILING WORK 6. LIGHTING WORK 7. LIGHTING
8. FURNITURE 9. DOOR
10. METAL
WORK
WORK
WORK
ApproxArea TOSUPPLYMATERIALOF1LINTERIORNIPPONPAINTGLOSSFINISH(CODE: LIGHTGREY)STREAMINGZONEAREA ApproxArea 88SQM
ApproxArea
50SQM
QTY UNIT RATE (RM) TOTAL (RM)
QUOTATION

LED STRIP RECESSED LIGHT ON 3000K WARM WHITE DARK BLUE CEILING PAINT INGLOSSYFINISH

LIGHTGREYWALLPAINTIN MATTEFINISH

25MM THK FLUTED PANEL INBLACKMATTEFINISH

VINYLFLOORINGINBRIGHT ORANGE COLOUR GLOSSY FINISH

CONCRETE FLOORING COATED WITH EPOXY PAINT FINISH

WHITE CEILING PAINT IN MATTEFINISH

20W LED HANGING PENDENT LIGHT C/W GLOSSY ALUMINIUM WHITEFINISH

BRIGHTGREENWALL PAINTINGLOSSYFINISH

WHITE WALL PAINT IN MATTE FINISH

50MM (THK) X 2700MM (L) QUARTZSTONE TABLETOPWITHGLOSSYORANGEFINISH WITH 8MM (THK) POLYCARBONATE TUBE STRUCTURE IN TRANSPARENT GLASS MEDIUMGREENCLASSIC

VINYL FLOORING IN BRIGHT GREEN COLOURGLOSSYFINISH

DO-NET PN LEGEND L CODE DESCRIPTION LIGHT FIXTURE CEILING PAINT WALL PAINT PANELLING PENDENT LIGHT BUIL-IN FURNITURE CEILING PANEL FLOOR FINISHES FF CP PL BF CODE DECSRIPTION C W PN
FF1
C01
C02
PL L1
FF2 FF3 BF2
W01
W02 W03

SCHEDULE OF FINISHES OF WEIBERMARCHT DESIGN GROUP

MINISTRY OF EDUCATION AND ENVIRONMENT

GROUND FLOOR

1.1

IMAGE AREA (SQM) LOCATION

DESCRIPTION

2600MM(L) X 2000MM (W) X 2MM(THK) ROLL VINYL FLOORING IN WOODLAND GREEN FINISH CODE 9941

SUPPLIER

FORBO FLOORING SYSTEM

190 MIDDLE RD, 19-05 FORTUNE CENTRE ,SINGAPORE 188979

FORBO FLOORING SYSTEM

1.1 CEILINGFINISHES

CONCRETE FLOORING COATED WITH EPOXY PAINT FINISH

190 MIDDLE RD, 19-05 FORTUNE CENTRE ,SINGAPORE 188979

FORBO FLOORING SYSTEM

2600MM(L) X 2000MM (W) X 2MM(THK) ROLL VINYL FLOORING IN BRIGHT ORANGE FINISH CODE 9983

190 MIDDLE RD, 19-05 FORTUNE CENTRE ,SINGAPORE 188979

NIPPON PAINT

INTERIOR NIPPON PAINT GREY COTTON CODE:1983

CHAIGUANHARDWARETRADINGSDNBHD 31,JALANPUTRAPERDANA5D/1,TAMAN PUTRAPERDANA,47000 PUCHONG,SELANGOR.

NIPPON PAINT

INTERIOR NIPPON PAINT BRILLIANT WHITE CODE:1001

CHAIGUANHARDWARETRADINGSDNBHD 31,JALANPUTRAPERDANA5D/1,TAMAN PUTRAPERDANA,47000 PUCHONG,SELANGOR.

NIPPON PAINT

INTERIOR NIPPON PAINT BRILLIANT WHITE CODE:1001

CHAIGUANHARDWARETRADINGSDNBHD 31,JALANPUTRAPERDANA5D/1,TAMAN PUTRAPERDANA,47000 PUCHONG,SELANGOR.

NIPPON PAINT

INTERIOR NIPPON PAINT DARK BLUE CODE:3040

CHAIGUANHARDWARETRADINGSDNBHD 31,JALANPUTRAPERDANA5D/1,TAMAN PUTRAPERDANA,47000 PUCHONG,SELANGOR.

CODE FF1 27 10 53 50 60 75 27 70 10 15 50 53 40 25 17 22 10 40 25 17 22 10 33 28 40 25 17 22 10 33 28 10 20 15
BOOST INFO TSATION LIFT AREA WALK WAY FUN REX TO-GATHER
BOOST WALK WAY HYPE BAR
FUN REX STREAMING ZONE
ARM
ARM
DO-NET
REX
ZONE
WAY LIFT AREA DO-NET
WALKWAY LIFTAREA
DO-NET FUN
STREAMING
WALK
FUNREX STREAMINGZONE
TO-GATHER INFO-STATION
REX STREAMING ZONE
DO-NET FUN
DO-NET FUNREX STREAMINGZONE WALKWAY LIFTAREA TO-GATHER INFO-STATION
FF2 FF3 W01 W02 C01 C02
FLOOR FINISHES
1.1 WALL FINISHES

SCHEDULE OF FURNITURE, FIXTURES ND EQUIPMENT OF WEIBERMARCHT DESIGN GROUP MINISTRY OF EDUCATION AND ENVIRONMENT

OPAL 3 GLASS BALL RECTANGULAR PENDANT LIGHT | URBAN SERIES - WHITE

MOUNT LIGHTING LTD

NO.58,60,62&62A,JALANJALIL1 THEEARTHBUKITJALIL,LEBUHRAYA PUCHONG-SGBESI,BUKITJALIL, 57000KUALALUMPUR

ESL LIGHTING (M) SDN BHD

19,19-1,19-2,JALANPDR6,KAWASAN PERNIAGAANDESARIA,43300 BALAKONG,SERIKEMBANGAN, SELANGOR,MALAYSIA.

TONG GING LIGHTING ATELIERS

NO2,JALANSS21/1,DAMANSARAUTAMA, PJ.

TIMELESS DESIGN SDN BHD

NICOLO CORNER FLOOR LAMP

TIMELESSDESIGNSDN.BHD.54,JALAN PUTRA,50350KUALALUMPUR,MALAYSIA.

MEDIA MALAYSIA SDN BHD

1.5HP R32 INVERTER CEILING CASSETTE

27-2,JALAN1/116B,KUCHAI ENTREPRENEUR'SPARKOFFJALANKUCHAI LAMA,KUALALUMPUR,58200,KUALA LUMPUR,WPKUALALUMPUR

DAIKIN MALAYSIA SDN BHD

DAIKIN 1HP/ 1.5HP/ 2HP/ 2.5HP R32 INVERTER WALL MOUNT AIR CONDITIONER FTKF SERIES (R32)

PERSIARANBUKITRAHMANPUTRA3, TAMANPERINDUSTRIANBUKITRAHMAN PUTRA, 47000SUNGAIBULOH,SELANGOR, MALAYSIA.

GROUND FLOOR CODE L01 MLER600 12.5W - LUMEN 104 , 4000K WHITE /600MMSIZE MESALEDLINEARPENDANTLIGHTT84FT2FTLED TUBE 150.00 25.00 575.00 2700.00 1590.00 360.00 PL01 PL02 FL01 AC01 AC02 FIXTURE ITEMS QTY LOCATION SPECIFICATION SUPPLIER PRICE/UNIT (RM) DO-NET FUN REX STREAMING ZONE WALK WAY LIFT AREA TO-GATHER INFO-STATION 1 1 1 3 2 2 1 6 1 1 1 4 1 1 1 1 1 1 1 1 STRIKE IT AREA DO-NET FUN REX STREAMING ZONE INFO STATION DO-NET FUN REX STREAMING ZONE WALK WAY LIFT AREA TO-GATHER INFO-STATION HYPE BAR

REFLECTION

A) UBBL USAGE

My proposed level's interior spaces are in accordance with the UBBL 1984. By-Laws 172 (emergency exit signs) and 228 (sprinkler valves) of the UBBL govern fire safety requirements. In the office space, By-Law 257 (fire alarms) and By-Law 239 (Voice communication system) have been implemented. Furthermore, my designed level conformed with By-Law 59 (natural lighting and ventilation), which is found in Part Ill of the UBBL. It mandated that any room designed, adapted, or utilized for business have natural lighting and ventilation.

B) MATERIAL SELECTION AND APPLICATION

The materials employed in the area are concrete, brick, metal, copper, aluminum. These are the materials that embody the concept of industrial-style interior design. Concrete appearance are commonly utilized for the office platform and flooring.

C) SUSTAINABILITY - GREEN DESIGN & EFFICIENCY

Greenery plants are very important to have in the office since they provide a nice ambiance and add a harmonious vibe to the working. Interior plants give a natural and lovely touch to a client's interior while also benefiting employees' overall well-being. Our cities and workplaces are usually designed in a way that isolates us from nature, according to my research. Plants used into the design of our offices may increase pleasure, creativity, and productivity. It also refreshes the office's air conditioning and helps to create a more sustainable office environment.

ASSIGNMENT 02

INTRODUCTION

In this project, I am expected to conduct research on existing precedent studies relevant to office and design/coworking space, recognize the layout, and extract the Schedule of Accommodation (SOA) and FF&E) from the precedent study. I also introduce students to the UBBL and/or fire rules, which must be taken into account when planning the area. This project's goal is to comprehend layout design with respect to UBBL and /Or Fire regulations. I will develop a set of as-built drawings based on the chosen precedent study, which will include a plan, internal elevation, section, SOA FF&E, and an analysis of UBBL and material application.

PRECEDENT STUDIES : AGORA BUSINESS INCUBATOR

THE COVEN CO-WORKING SPACE FOR WOMEN

Saint Paul, United States

PROJECT BY STUDIO BV

MINNEAPOLIS, UNITED STATES

FIRST FLOOR LAYOUT PLAN

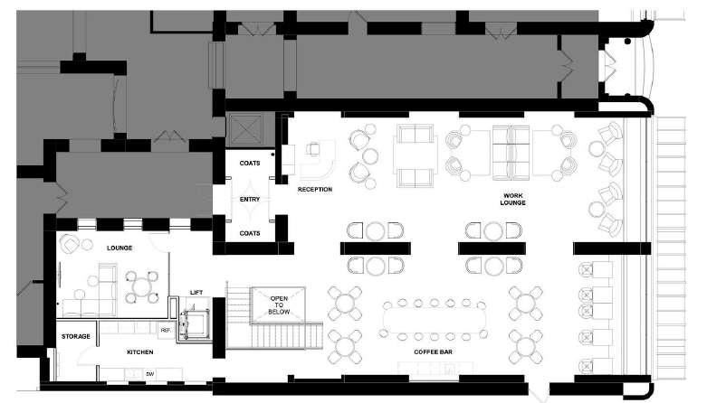
The Coven is a co-working space for women and those who identify as non-binary. The goal for the design of their flagship location in St. Paul, Minnesota was to transform a dark, historic space into a bright and warm space that encourages women ’ s empowerment and sets a strong foundation for the future. The goal of the design was to empower those that inhabit the space and create a sense of community and equity. The reception and open lounge take advantage of the high ceilings, natural light, and rich architectural character. The design team restored the historic details in the space and added unique custom features to match that level of detail.

SECOND FLOOR LAYOUT PLAN MATERIAL

The Coven is a space designed to create a cozy and inspiring environment for its members and guests The custom check-in desk, floor mosaic, decorative lighting and furniture all contribute to making the entry memorable and reflective of the individuality of the community. The coffee bar serves as a social hub for collaboration and special events, with the mantra "do the most good" displayed on a custom wall tile application. The entire space is filled with art curated from local female artists, creating a canvas that expresses community and diversity.

SECTION PLAN

BRICK WOOD MOSAIC TILES

CYT_DWD_FLP_01

CYT_DWD_SC_02

CYT_DWD_FLE_03

CYT_DWD_SC_04

CYT_DWD_EC_05

INDIVIDUAL PRECEDENCE STUDIES

GROUND FLOOR FURNITURE LAYOUT SECTION C - C INTERNAL ELEVATION C-C

CYT_DWD_EB_07

CYT_DWD_DD_08

CYT_DWD_SOA_09

BESPOKE PLAN, BLOW UP DETAIL & SECTION

SCHEDULE OF ACCOMODATION

DOOR & WINDOW SCHEDULE

CYT_DWD_FS_11

CYT_DWD_FFE_12

FURNITURE

REVISION TRACKING00 GROUP PRECEDENCE STUDIES DRAWING LIST SHEET NAME REV DATE DESCRIPTION ISSUE -
CYT_DWD_UBBL_13a
BESPOKE ELEVATION
UBBL AND FIRE REQUIREMENT UBBL AND FIRE REQUIREMENT 00 00 02 21/5/2023 21/5/2023 21/5/2023 21/5/2023 21/5/2023 21/5/2023 21/5/2023 21/5/2023 21/5/2023 21/5/2023 21/5/2023 21/5/2023 21/5/2023 21/5/2023 21/5/2023 CYT_DWD_UBBL_13b CYT_DWD_LEG_10------- 00 00 00 01 01 01 01 00 01 01 01 ISSUE FOR CONSTRUCTION ISSUE FOR CONSTRUCTION ISSUE FOR CONSTRUCTION ISSUE FOR CONSTRUCTION ISSUE FOR CONSTRUCTION ISSUE FOR CONSTRUCTION ISSUE FOR CONSTRUCTION ISSUE FOR CONSTRUCTION ISSUE FOR CONSTRUCTION ISSUE FOR CONSTRUCTION ISSUE FOR CONSTRUCTION ISSUE FOR CONSTRUCTION ISSUE FOR CONSTRUCTION ISSUE FOR CONSTRUCTION ISSUE FOR CONSTRUCTION GROUND FLOOR FINISHES LAYOUT GROUND FLOOR LIGHTING & EQUIPMENT PLAN BESPOKE PLAN CYT_DWD_EB_06 21/5/202301 ISSUE FOR CONSTRUCTION
SCHEDULE FIXTURE, FITTINGS & EQUIPMENT SCHEDULE

GROUNDFLOORFURNITURELAYOUTPLANFLP

23

D9 SINGLELEAFLAMINATEDGLASSDOORWITHAALUMINUMHANDLE 2

NOTE: THISDRAWINGISCOPYRIGHTDRAWING.THE AUTHORIZEDUSERISTOCHECKALLDIMENSIONSON SITE.ONLYFIGUREDDIMENSIONSARETOBEWORKED ON.DISCREPANCIESMUSTBEREPORTEDIMMEDIATELY TOPARTNERSHIPBEFOREPROCEEDING NO. DESCRIPTION DATE

YELLOWSYNTHETICLEATHER,STAINLESSSTEELLEGSINCHROMEFINISH

T1 BIRCHTABLETOPWITHNATURALFINISH,WHITEPOWDERCOATEDSTAINLESSSTEELLEGS 1

T2 BIRCHTABLETOPWITHNATURALFINISH,WHITEPOWDERCOATEDSTAINLESSSTEELLEGS 2

T3 BLACKSTAINEDTEMPEREDGLASSTOP,BLACKPOLISHEDMARBLE,BLACKPOWDERCOATEDSTAINLESS STEELFRAMEANDLEGS 2

T4 BLACKCERAMICSTONE,BLACKPOWDERCOATEDSTAINLESSSTEEL 1

T5 CHERRYWOODTABLETOPWITHNATURALFINISH,WHITEPOWDERCOATEDSTAINLESSSTEELLEGS 2

T6 CHERRYWOODTABLETOPWITHNATURALFINISH,WHITEPOWDERCOATEDSTAINLESSSTEELLEGS 2

T7 CHERRYWOODTABLETOPWITHNATURALFINISH,WHITEPOWDERCOATEDSTAINLESSSTEELLEGS 9

T8 TEMPEREDGLASSTABLETOP,BLACKPOWDERCOATEDSTAINLESSSTEELFRAMEANDLEGS 2

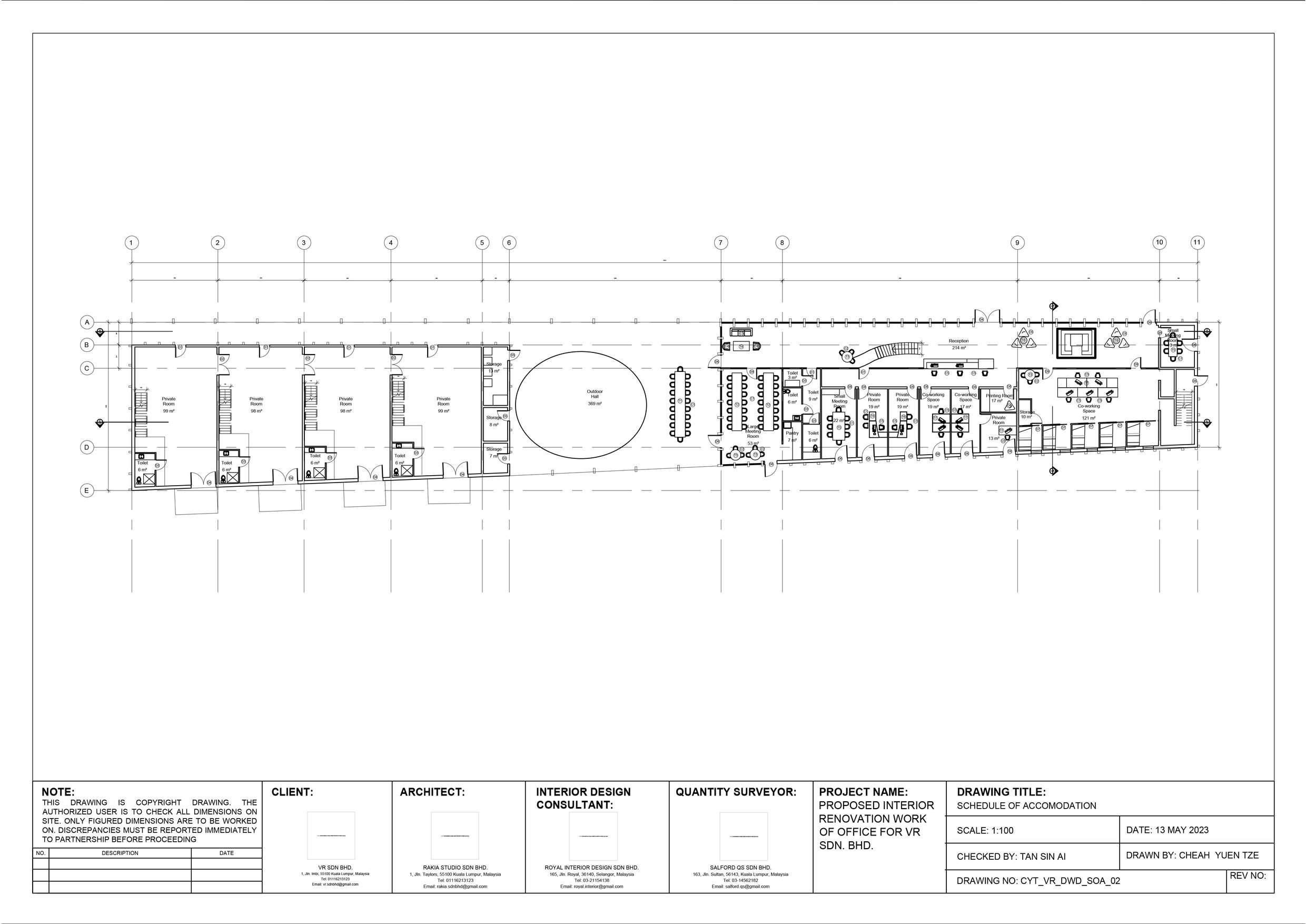
CLIENT: ARCHITECT: INTERIORDESIGN CONSULTANT: QUANTITYSURVEYOR: PROJECTNAME: PROPOSEDINTERIOR RENOVATIONWORK OFOFFICEFORVR SDN.BHD.

DRAWINGTITLE: GROUNDFLOORLAYOUTPLAN

SCALE:1:300

CHECKEDBY:TANSINAI

DRAWING NO: CYT_DWD_FLP_01

DATE:21MAY2023

DRAWN BY: CHEAH YUEN TZE

1 2 3 4 5 6 7 8 9 10 11 A B C D E 102700 16200 12040 8300 8300 8380 8800 2600 20400 5920 22660 13680 3660 1100 2180 2240 1100 SEC SEC 99m² Private Room 98m² Private Room 98m² Private Room 99m² Private Room 6m² Toilet 6m² Toilet 6m² Toilet 6m² Toilet 13m² Storage 8m² Storage 7m² Storage 53m² Large Meeting Room 214m² Reception m² Toilet m² Toilet 9m² Toilet 6m² Toilet 22m² Small Meeting Room 19m² Private Room 19m² Private Room 19m² Co-working Space 17m² Co-working Space 13m² Private Room 121m² Co-working Space 13m² Small Meeting Room 369m² Outdoor Hall m² Pantry T1 C1 C1 T2 T2 T4 T3 T3 T3 T5 C2 C3 C4 C4 C2 C2 C5 C1 C1 T6 C5 T6 C1 T7 C5 T7 C5 C5 C5 T8 C6 T3 C2 T7 C5 C5 C5 T8 C6 T5 C1 T7 C5 17m² PrintingRoom C6 10m² Storage D5 D5 D5 D4 D4 D4 D3 D1 D2 D2 D2 D6 D6 D6 D1 D1 D1 D4 D3 D3 D3 D3 D3 D3 D1 D1 D6 D6 D6 D6 D6 D6 D4 D6 D8 D8 D8 D8 D8 D8 D6 D6 D9 D9 D9 D9 D7 D7 D7 D7 D7 1100 1100 1100 1500 REF.TODETAILDRAWING CYT_DWD_DD 07
01 SCALE1:300 LOOSEFURNITURELEGEND CODE DESC QTY C1 410MM(L)X410MM(W)X810MM(H)POLYPROPYLENEPLASTICSEATSHELLWITHMAPLEWOODLEGSIN NATURALFINISH 64 C2 ORANGESYNTHETICLEATHER,STAINLESSSTEELLEGSINCHROMEFINISH 6 C3 PLYWOODFRAME,POLYESTERWADDING,POWDERCOATEDSTEELLEGS 1 C4 PLYWOODFRAME,POLYESTERWADDING,POWDERCOATEDSTEELLEGS 2 C5 WHITEPOLYPROPYLENEPLASTIC,SYNTHETICRUBBER,POLYURETHANEFOAM,NYLON
15 C6
6
DOORLEGEND CODE DESC QTY D1 HDFMOULDEDDOORWHITEWOODENDOOR 7 D2 DOUBLELEAFGLASSSWINGDOORWITHALUMINUMFRAMEC/WLAMINATEDGLASS 3 D3 SINGLELEAFTOILETDOOR|PVCTOILETDOORWHITECOATED 10 D4 DOUBLELEAFGLASSWITHALUMINUMFRAMEC/WLAMINATEDGLASS 5 D5 SINGLELEAFWHITEWOODDOORWITHVARNISHFINISHES 3 D6 LAMINATEDGLASSDOORWITHALUMINUMFRAMEWFLUOROPOLYMERFINISHES 12 D7 12MMSINGLEPANELCLEARGLASSSLIDINGDOORONEWAY 6 D8 SINGLEPANELPLYWOODDOORWITHVARNISHFINISHES
REVNO: 01 VRSDNBHD. 1,Jln.Imbi,55100KualaLumpur,Malaysia Tel:01116213123 Email:vr.sdnbhd@gmail.com RAKIASTUDIOSDNBHD. 1,Jln.Taylors,55100KualaLumpur,Malaysia Tel:01116213123 Email:rakia.sdnbhd@gmail.com ROYALINTERIORDESIGNSDNBHD. 165,Jln.Royal,36140,Selangor,Malaysia Tel:03-21154138 Email:royal.interior@gmail.com SALFORDQSSDNBHD. 163,Jln.Sultan,56143,KualaLumpur,Malaysia Tel:03-14562182 Email:salford.qs@gmail.com

GROUNDFLOORFINISHESLAYOUTPLANFLP

01 SCALE1:300

NOTE:

THISDRAWINGISCOPYRIGHTDRAWING.THE AUTHORIZEDUSERISTOCHECKALLDIMENSIONSON SITE.ONLYFIGUREDDIMENSIONSARETOBEWORKED ON.DISCREPANCIESMUSTBEREPORTEDIMMEDIATELY TOPARTNERSHIPBEFOREPROCEEDING

FINISHESLEGEND

CODE DESC

IW1 RCWALLW/NIPPONPAINTSUPERMATEXBRILLIANTWHITE145PAINTFINISH

IW2 RCWALLW/Ø15MMPERFORATEDALUMINUMWALLPANELCLADDINGFINISH

IW3 12MMTHKTEMPEREDGLASSPANELWALL

IW4 RCWALLLINEDW/4MMTHKPLYWOODPANELFINISH

IW5 RCWALLW/POLISHEDFINISH

EW1 RCWALLW/8MMTHKDOUGLASFIRFROMLIMOUSINELAMINATEFINISH

EW2 40MM(THK)HEATINSULATINGDOUGLASFIRFROMLIMOUSINEFRAMEMANTLE

PC1 29MMTHKWARMPINEPLYWOODINVARNISHFINISH

PC2 1200MM(L)X600MM(W)X35MMTHKCEMENT-BONDEDCOMPRESSEDWOODFIBERPANELS

PC3 Ø15MMPERFORATEDALUMINUMCEILINGPANELCLADDING

F1 CONCRETEFLOORW/8MMTHKLINOLEUMFINISH

F2 CONCRETEFLOORW/10MMTHKWARMPINEPLYWOODFLOORCLADDING

QUANTITYSURVEYOR: PROJECTNAME: PROPOSEDINTERIOR RENOVATIONWORK OFOFFICEFORVR

DRAWINGTITLE: GROUNDFLOORFINISHESLAYOUTPLAN

SCALE:1:300

CHECKEDBY:TANSINAI

1 2 3 4 5 6 7 8 9 10 11 A B C D E 102700 16200 12040 8300 8300 8380 8800 2600 20400 5920 22660 13680 3660 1100 2180 2240 SEC SEC SEC SEC 1100 1100 1100 1500
99m² Private Room 98m² Private Room 98m² Private Room 99m² Private Room 6m² Toilet 6m² Toilet 6m² Toilet 6m² Toilet 13m² Storage 8m² Storage 7m² Storage 53m² Large Meeting Room 214m² Reception 6m² Toilet 3m² Toilet 9m² Toilet 6m² Toilet 22m² Small Meeting Room 19m² Private Room 19m² Private Room 19m² Co-working Space 17m² Co-working Space 13m² Private Room 121m² Co-working Space 13m² Small Meeting Room 369m² Outdoor Hall 7m² Pantry IW3 IW1 IW1 IW1 IW1 IW1 IW1 IW1 EW1 EW2 IW2 IW3 IW4 IW4 IW4 IW4 IW1 IW1 EW1 EW1 EW1 EW2 F1 F2 F1 F1 F1 F1 IW5 IW5 IW5 IW5 IW5 EW2 EW2 EW2 PC2 PC2 PC2 PC2 PC2 PC2 PC2 PC2 PC2 PC2 PC2 PC3 PC3 PC3 PC1 PC1 PC1 PC3 PC3 PC2 PC2 PC2
NO. DESCRIPTION DATE CLIENT: ARCHITECT: INTERIORDESIGN CONSULTANT:
SDN.BHD.
DRAWING NO: CYT
_DWD_FFP_02
CHEAH YUEN TZE REV NO: 00 VRSDNBHD. 1,Jln.Imbi,55100KualaLumpur,Malaysia Tel:01116213123 Email:vr.sdnbhd@gmail.com RAKIASTUDIOSDNBHD. 1,Jln.Taylors,55100KualaLumpur,Malaysia Tel:01116213123 Email:rakia.sdnbhd@gmail.com ROYALINTERIORDESIGNSDNBHD. 165,Jln.Royal,36140,Selangor,Malaysia Tel:03-21154138 Email:royal.interior@gmail.com SALFORDQSSDNBHD. 163,Jln.Sultan,56143,KualaLumpur,Malaysia Tel:03-14562182 Email:salford.qs@gmail.com
DATE:21MAY2023 DRAWN BY:

CEILINGLIGHTPLAN-GROUNDFLOOR SCALE:1:300 CLP

INTERIORDESIGNCONSULTANT:QUANTITYSURVEYOR: PROJECTNAME:

PROPOSEDINTERIORRENOVATION WORKOFOFFICEFORVRSDN.BHD.

NOTE: NO.DESCRIPTION DATE DRAWINGTITLE:
DATE: SCALE: CHECKEDBY: DRAWNBY: 1:300 MS.TANSINAI 21/05/2023 CHEAH YUEN TZE REV.NO.: DRAWING NUMBER: CYTDWD_FLP_03 00
CLIENT: ARCHITECT:
CEILINGLAYOUTPLAN-GROUNDFLOOR
VRSDNBHD. 1,Jln.Imbi,55100KualaLumpur,Malaysia Tel:01116213123 Email:vr.sdnbhd@gmail.com RAKIASTUDIOSDNBHD. 1,Jln.Taylors,55100KualaLumpur,Malaysia Tel:01116213123 Email:rakia.sdnbhd@gmail.com ROYALINTERIORDESIGNSDNBHD. 165,Jln.Royal,36140,Selangor,Malaysia Tel:03-21154138 Email:royal.interior@gmail.com SALFORDQSSDNBHD. 163,Jln.Sultan,56143,KualaLumpur,Malaysia Tel:03-14562182 Email:salford.qs@gmail.com
CH=9735 1 2 3 4 5 6 7 8 9 10 11 A B C D E 102700 16200 12040 8300 8300 8380 8800 2600 20400 5920 22660 13680 3660 2180 2240 99m² Private Room 98m² Private Room 98m² Private Room 99m² Private Room 6m² Toilet 6m² Toilet 6m² Toilet 6m² Toilet 13m² Storage 8m² Storage 7m² Storage 53m² Large Meeting Room 214m² Reception 6m² Toilet 3m² Toilet 9m² Toilet 6m² Toilet 22m² Small Meeting Room 19m² Private Room 19m² Private Room 19m² Co-working Space 17m² Co-working Space 13m² Private Room 121m² Co-working Space 13m² Small Meeting Room 369m² Outdoor Hall 7m² Pantry 17m² PrintingRoom 10m² Storage D4 1500 CH=2970 CH=2970 CH=2970 CH=2970 CH=2970 LIGHTING/ELECTRICLEGEND NAME SYMBOL DOWNLIGHT WALLLIGHT FLUORESCENTLIGHT PENDANTLIGHT SINGLEGANG SWITCH SINGLEGANG SWITCH TRIPPLEGANG SWITCH DOUBLESOCKET TWOWAYDOUBLE GANGSWITCH
GR

1000MMx2150MMSINGLELEAFLAMINATED GLASSDOORWITHALUMINUMHANDLE

1747MM(W)2970MM(H)CUSTOMIZEFABRIC ACOUSTICPANELWITHREDCOLOUR FINISHES.

NOTE:

THISDRAWINGISCOPYRIGHTDRAWING.THE AUTHORIZEDUSERISTOCHECKALLDIMENSIONSON SITE.ONLYFIGUREDDIMENSIONSARETOBEWORKED ON.DISCREPANCIESMUSTBEREPORTEDIMMEDIATELY TOPARTNERSHIPBEFOREPROCEEDING

QUANTITYSURVEYOR: PROJECTNAME: PROPOSEDINTERIOR

RENOVATIONWORK OFOFFICEFORVR SDN.BHD.

COLOUREDUPHOLSTERYSEATINGCUSION

DRAWINGTITLE: SECTIONC-C

SCALE:1:60

CHECKEDBY:TANSINAI

DRAWINGNO:CYT_DWD_SC_04

DATE: 21 MAY 2023

DRAWNBY:CHEAHYUENTZE REVNO:

31952970 2970 150 75 SECTIONC-CSC SCALE 1:60 EXT.CEILING.CH2970MM EXT.CEILING.CH2970MM 3270 150 1765 750 750 GROUNDFLOOR SECONDFLOOR FIRSTFLOOR 3270 150 150 2970 150 12711 4400 1765 95 100 5978 323 9735 1000 770 450 750 T7 C5 C5 TABLETOPPLYWOODLAMINATEWITHSEL
T9 C5 C7 D2 C1 T10
FIN.C/WABSEDGING -MIECO/1001/WHITE
DOUBLELEAFGLASSSWING DOORWITHALUMINUMFRAMEC/W LAMINATEDGLASS 800MM(L)X814MM(W)X60MM(THK)ORANGE
A B C D E D9
1 2 3 4 150 2970 150 150 C10
NO. DESCRIPTION DATE CLIENT: ARCHITECT: INTERIORDESIGN CONSULTANT:
VRSDNBHD. 1,Jln.Imbi,55100KualaLumpur,Malaysia Tel:01116213123 Email:vr.sdnbhd@gmail.com RAKIASTUDIOSDNBHD. 1,Jln.Taylors,55100KualaLumpur,Malaysia Tel:01116213123 Email:rakia.sdnbhd@gmail.com ROYALINTERIORDESIGNSDNBHD. 165,Jln.Royal,36140,Selangor,Malaysia Tel:03-21154138 Email:royal.interior@gmail.com SALFORDQSSDNBHD. 163,Jln.Sultan,56143,KualaLumpur,Malaysia Tel:03-14562182 Email:salford.qs@gmail.com 02

NOTE: THISDRAWINGISCOPYRIGHTDRAWING.THE AUTHORIZEDUSERISTOCHECKALLDIMENSIONSON SITE.ONLYFIGUREDDIMENSIONSARETOBEWORKED ON.DISCREPANCIESMUSTBEREPORTEDIMMEDIATELY TOPARTNERSHIPBEFOREPROCEEDING

CONSULTANT: QUANTITYSURVEYOR: PROJECTNAME: PROPOSEDINTERIOR RENOVATIONWORK OFOFFICEFORVR SDN.BHD.

1000MMx2150MMSINGLELEAFLAMINATED GLASSDOORWITHALUMINUMHANDLE

1747MM(W)X2970MM(H)CUSTOMIZEFABRIC ACOUSTICPANELWITHREDCOLOUR FINISHES.

TABLETOPPLYWOODLAMINATEWITHSEL FIN.C/WABSEDGING -MIECO/1001/WHITE

800MM(L)X814MM(W)X60MM(THK)ORANGE COLOUREDUPHOLSTERYSEATINGCUSION

DRAWINGTITLE: INTERNALELEVATIONC-C

SCALE:1:60

CHECKEDBY:TANSINAI DRAWING

DATE:21MAY2023

DRAWNBY:CHEAHYUENTZE

31952970 2970 150 75 ELEVATIONC-CEC SCALE1:60 EXT.CEILING.CH2970MM EXT.CEILING.CH2970MM 3270 150 750 750 GROUNDFLOOR SECONDFLOOR FIRSTFLOOR 3270 150 150 2970 150 12711 4400 1765 95 100 5978 323 1000 770 450 750 T7 C5 C5
T9 C5 C7 D2 C1 T10
DOUBLELEAFGLASSSWING DOORWITHALUMINUMFRAMEC/W LAMINATEDGLASS
C10 07
D9
NO. DESCRIPTION DATE CLIENT: ARCHITECT:
INTERIORDESIGN
NO: CYT_DWD_EC_05
REVNO: 01 VRSDNBHD. 1,Jln.Imbi,55100KualaLumpur,Malaysia Tel:01116213123 Email:vr.sdnbhd@gmail.com RAKIASTUDIOSDNBHD. 1,Jln.Taylors,55100KualaLumpur,Malaysia Tel:01116213123 Email:rakia.sdnbhd@gmail.com ROYALINTERIORDESIGNSDNBHD. 165,Jln.Royal,36140,Selangor,Malaysia Tel:03-21154138 Email:royal.interior@gmail.com SALFORDQSSDNBHD. 163,Jln.Sultan,56143,KualaLumpur,Malaysia Tel:03-14562182 Email:salford.qs@gmail.com

NOTE: THISDRAWINGISCOPYRIGHTDRAWING.THE AUTHORIZEDUSERISTOCHECKALLDIMENSIONSON SITE.ONLYFIGUREDDIMENSIONSARETOBEWORKED ON.DISCREPANCIESMUSTBEREPORTEDIMMEDIATELY TOPARTNERSHIPBEFOREPROCEEDING

INTERIORDESIGN CONSULTANT:

QUANTITYSURVEYOR: PROJECTNAME: PROPOSEDINTERIOR RENOVATIONWORK OFOFFICEFORVR SDN.BHD.

DRAWINGTITLE: BESPOKEPLAN

SCALE:1:40

CHECKEDBY:TANSINAI

DRAWINGNO:CYT_DWD_BP_06

DATE:21MAY2023

DRAWNBY:CHEAHYUENTZE

CSEC D7 D7 BESPOKEPLAN GF SCALE1:40 2598 2354 A B WORKINGTABLE CHAIR 795 1000
NO. DESCRIPTION DATE CLIENT:
ARCHITECT:
REVNO: 00 VRSDNBHD. 1,Jln.Imbi,55100KualaLumpur,Malaysia Tel:01116213123 Email:vr.sdnbhd@gmail.com RAKIASTUDIOSDNBHD. 1,Jln.Taylors,55100KualaLumpur,Malaysia Tel:01116213123 Email:rakia.sdnbhd@gmail.com ROYALINTERIORDESIGNSDNBHD. 165,Jln.Royal,36140,Selangor,Malaysia Tel:03-21154138 Email:royal.interior@gmail.com SALFORDQSSDNBHD. 163,Jln.Sultan,56143,KualaLumpur,Malaysia Tel:03-14562182 Email:salford.qs@gmail.com

NOTE: THISDRAWINGISCOPYRIGHTDRAWING.THE AUTHORIZEDUSERISTOCHECKALLDIMENSIONSON SITE.ONLYFIGUREDDIMENSIONSARETOBEWORKED ON.DISCREPANCIESMUSTBEREPORTEDIMMEDIATELY TOPARTNERSHIPBEFOREPROCEEDING

EXT.PLASTER.CH:2970MM

2970MM(H)X(1190MM(L)X40MM(THK) CUSTOMIZEFABRICACOUSTICPANEL

LEFTUP75MMGAPFORSLIDINGDOOR

2970MM(H)X150MM(W)PLYWOOD LAMINATEPARTITIONFORSLIDDING DOOR.

1747MM(W)X2970MM(H)CUSTOMIZE FABRICACOUSTICPANELWITHRED COLOURFINISHES.

FORMTODESIGNERREQUIREMENT DESIGN.

1000MM(L)X770MM(H)20MM(THK)WORKING TABLEWITHPLYWOODLAMINATEFIN.

800MM(L)X814MM(W)X60MM(THK)ORANGE COLOUREDUPHOLSTERYCUSIONSEATING

100MMM(H)SKIRTINGINLAMINATEPLYWOODFIN.C/W ABSEDGING.

EXT.PLASTER.CH:2970MM

1747MM(W)X2970MM(H)CUSTOMIZE FABRICACOUSTICPANELWITHRED COLOURFINISHES.

INTERIORDESIGN CONSULTANT: QUANTITYSURVEYOR: PROJECTNAME: PROPOSEDINTERIOR RENOVATIONWORK OFOFFICEFORVR SDN.BHD.

35MM(W)X175MM(H)COATEDBLACK ALUMINIUMFRAMESWINGDOORC/W TEMPEREDGLASS

1000MM(L)X770MM(H)20MM(THK)WORKING TABLEWITHPLYWOODLAMINATEFIN.

800MM(L)X814MM(W)X60MM(THK)ORANGE COLOUREDUPHOLSTERYCUSIONSEATING

100MMM(H)SKIRTINGINLAMINATEPLYWOODFIN.C/W ABSEDGING.

DRAWINGTITLE: BESPOKEELEVATION

SCALE:1:100

CHECKEDBY:TANSINAI

DRAWING NO: CYT_DWD_BE_07

DATE: 21 MAY 2023

DRAWNBY:CHEAHYUENTZE

2970 2354 2654 150 150 FRONTELEVATIONBESPOKEBEB SCALE1:25 SIDEELEVATIONBESPOKEAEB SCALE1:25 2598 1190 1000 408 814 550 450
2970
C8 C8
750
NO. DESCRIPTION DATE CLIENT: ARCHITECT:
REV NO: 01 VRSDNBHD. 1,Jln.Imbi,55100KualaLumpur,Malaysia Tel:01116213123 Email:vr.sdnbhd@gmail.com RAKIASTUDIOSDNBHD. 1,Jln.Taylors,55100KualaLumpur,Malaysia Tel:01116213123 Email:rakia.sdnbhd@gmail.com ROYALINTERIORDESIGNSDNBHD. 165,Jln.Royal,36140,Selangor,Malaysia Tel:03-21154138 Email:royal.interior@gmail.com SALFORDQSSDNBHD. 163,Jln.Sultan,56143,KualaLumpur,Malaysia Tel:03-14562182 Email:salford.qs@gmail.com

LEFTUP75MMGAPFORSLIDINGDOOR TOSLIDEIN.

2970MM(H)X150MM(W)PLYWOOD LAMINATEPARTITIONFORSLIDDING DOOR

1747MM(W)X2970MM(H)CUSTOMIZE FABRICACOUSTICPANELWITHRED COLOURFINISHES.

20MMTHKPLYWOODSTRUCTURE C/WEDL-ERABLE-EWW3050N LAMINATEFIN.

1000MM(L)X770MM(H)20MM(THK)WORKING TABLEWITHPLYWOODLAMINATEFIN.

800MM(L)X814MM(W)X60MM(THK)ORANGE COLOUREDUPHOLSTERYSEATINGCUSION

35MM(W)X175MM(H)COATEDBLACK ALUMINIUMDOORHANDLE.

NOTE: THISDRAWINGISCOPYRIGHTDRAWING.THE AUTHORIZEDUSERISTOCHECKALLDIMENSIONSON SITE.ONLYFIGUREDDIMENSIONSARETOBEWORKED ON.DISCREPANCIESMUSTBEREPORTEDIMMEDIATELY TOPARTNERSHIPBEFOREPROCEEDING

INTERIORDESIGN CONSULTANT:

QUANTITYSURVEYOR: PROJECTNAME: PROPOSEDINTERIOR RENOVATIONWORK OFOFFICEFORVR SDN.BHD.

DRAWINGTITLE: BESPOKEDETAILDRAWING

SCALE:1:100

CHECKEDBY:TANSINAI

120MMTHKHIGHDENSITYFIRMSUPPORT POLYURETHANEFOAMSEATINGCUSHION

800MM(L)X814MM(W)X60MM(THK)ORANGE COLOUREDUPHOLSTERYSEATINGCUSION.

6MM(THK)X35MM(L)SWGSPAXSCREW PPOZIDRIVSTEELZINCPLATED

20MMTHKPLYWOODSTRUCTUREC/WEDLERABLE-EWW3050NLAMINATEFIN.

CSEC D7 D7
2598 2354 A B WORKINGTABLE CHAIR 2354 2970
4 SCALE 1:35 750 1000 770 450 3270 2654
GF BESPOKE 4 PLAN SCALE1: 40
SB SECTION BESPOKE
SKIRTINGINPLYWOODLAMINATEFIN.C/W ABSEDGING. 2970MM(H)X1190MM(L)X40MM(THK) CUSTOMIZEFABRICACOUSTICPANEL
150 150 60 30 6030 40 BLOWUPDETAIL D SCALE 1:5
NO. DESCRIPTION DATE CLIENT:
ARCHITECT:
DRAWING NO: CYT_DWD_DD_08 DATE: 21 MAY 2023
REV NO: 01 VRSDNBHD. 1,Jln.Imbi,55100KualaLumpur,Malaysia Tel:01116213123 Email:vr.sdnbhd@gmail.com RAKIASTUDIOSDNBHD. 1,Jln.Taylors,55100KualaLumpur,Malaysia Tel:01116213123 Email:rakia.sdnbhd@gmail.com ROYALINTERIORDESIGNSDNBHD. 165,Jln.Royal,36140,Selangor,Malaysia Tel:03-21154138 Email:royal.interior@gmail.com SALFORDQSSDNBHD. 163,Jln.Sultan,56143,KualaLumpur,Malaysia Tel:03-14562182 Email:salford.qs@gmail.com
EXT. PLASTER. CH : 2970MM
DRAWNBY:CHEAHYUENTZE
BESPOKE4IMAGE

SCHEDULEOFACCOMADATION

NO.OFOCCUPANTSNO.OFROOMSAREAOFONEROOM(m²)TOTALAREASOFROOMS(M²) 214m² 214m² 1 13m² 13m² 5.CO-WORKINGSPACE2 6.CO-WORKINGSPACE3 7.PRIVATEROOM1

AREAS 1 1 1 1 1 1

3.SMALLMEETINGROOM2 9.PRIVATEROOM3 10.PRIVATEROOM4 14.STORAGE2 15.STORAGE3 17.TOILET2 18.TOILET3

4 47 50 25 80 1 1 2 1 1 1 2 2 FIRSTFLOOR 21.COWORKINGSPACE 22.COWORKINGSPACE 23.COWORKINGSPACE 24.COWORKINGSPACE 25.COWORKINGSPACE 26.COWORKINGSPACE 27.COWORKINGSPACE 28.DIRECTOR'SROOM 29.DIRECTOR'SROOM 30.DIRECTOR'SROOM 31.PRINTINGOPENAREA 32.CORRIDOR 33.EXECUTIVEROOM 34.EXECUTIVEROOM 35.TOILET

2

13m² 17m² 19m² 121m² 13m² 19m² 98m² 99m² 2

2 1 1 1

1 1 1

1 6 1

53m² 369m² 7m² 8m² 13m² 3m² 6m² 9m² 7m²

13m² 17m² 19m² 121m² 13m² 53m² 369m² 7m² 8m² 13m² 3m² 9m² 7m²

38m² 196m² 198m² 12m²

2 4 4 2 2 25 3 20.PRINTINGROOM 1 17m² 17m²

22 7 7 6 6 4 2 2 2

28m² 28m² 22m² 22m² 20m² 18m² 14.7m² 15m²

1 50m² 50m² 1 28m² 1 28m² 1 22m² 1 22m² 2 20m² 6 1 18m² 1 17m² 17m² 1 18m² 18m² 1 20m² 20m² 1 23m² 23m² 2 1 65m² 65m² 30 2 14.7m² 3 2 15m² 3 1 26m² 26m² 3

1.RECEPTION GROUNDFLOOR 2.SMALLMEETINGROOM1 4.CO-WORKINGSPACE1 8.PRIVATEROOM2 11.LARGEMEETINGROOM 12.OUTDOORHALL 13.STORAGE1 16.TOILET1 19.PANTRY

TOTAL

NOTE: THISDRAWINGISCOPYRIGHTDRAWING.THE AUTHORIZEDUSERISTOCHECKALLDIMENSIONSON SITE.ONLYFIGUREDDIMENSIONSARETOBEWORKED ON.DISCREPANCIESMUSTBEREPORTEDIMMEDIATELY TOPARTNERSHIPBEFOREPROCEEDING

1000MMX2150MM2000MMx2150MM1000MMx2150MM 2400MMx2150MM 1000MMx2150MM1000MMX2150MM

MATERIALSHDFMOULDEDDOOR WHITEWOODENDOOR

7 3 10 5 3 12

1000 2150

1000 2150 900 2150

1000 2150

LAMINATEDGLASSDOOR WITHALUMINUMFRAMEW FLUOROPOLYMER FINISHES LOCATIONSMALLMEETINGROOMPRIVATEROOM TOILET ENTRANCE STORAGELARGEMEETINGROOM

1800 2150

900MMx2150MM1000MMx2150MM1000MMx2150MM1800MMX2150MM1750MMX2150MM

CO-WORKINGSPACE PRINTINGROOM, PRIVATEROOM, CO-WORKINGSPACE, EXECUTIVEROOM 2000 2150

1750 2150

SINGLELEAFTOILET DOOR|PVCTOILETDOOR WHITECOATED DOUBLELEAFGLASSWITHALUMINUM FRAMEC/WLAMINATEDGLASS SINGLELEAFWHITEWOOD DOORWITHVARNISH FINISHES DOORLEGEND DOORELEVATION CODE D7 D8 D9 D10 D11 SIZE

WINDOWLEGEND

FRAMELESSDOUBLELEAF

SMALLMEETINGROOM, CO-WORKINGSPACECO-WORKINGSPACECORRIDOR 1000 2150

DESIGNDOORDOUBLE LEAFPLYWOODWITHA VARNISHFINISHES,W ALUMINUMHANDLE 1000 2050

WINDOWELEVATION

1000 860 860 1000

CODE

SIZE

TOTAL

w1 w2

860MMX1000MM860MMX1000MM

39 2

LOCATION SECONDFLOORCO-WORKINGSPACE

DRAWINGTITLE: INTERNALELEVATIONC-C

CHECKEDBY:TANSINAI

DRAWNBY:CHEAHYUENTZE

REVNO: 01 VRSDNBHD. 1,Jln.Imbi,55100KualaLumpur,Malaysia Tel:01116213123 Email:vr.sdnbhd@gmail.com RAKIASTUDIOSDNBHD. 1,Jln.Taylors,55100KualaLumpur,Malaysia Tel:01116213123 Email:rakia.sdnbhd@gmail.com ROYALINTERIORDESIGNSDNBHD. 165,Jln.Royal,36140,Selangor,Malaysia Tel:03-21154138 Email:royal.interior@gmail.com SALFORDQSSDNBHD. 163,Jln.Sultan,56143,KualaLumpur,Malaysia Tel:03-14562182 Email:salford.qs@gmail.com

DOORLEGEND DOORELEVATION CODE D1 D2 D3 D4 D5 D6 SIZE
TOTAL
DOUBLELEAFGLASSSWING DOORWITHALUMINUM FRAMEC/WLAMINATED GLASS
6 23 4 1 1
MATERIALS 12MMSINGLEPANEL CLEARGLASSSLIDING DOORONEWAY LOCATION
SINGLEPANEL PLYWOODDOORWITH VARNISHFINISHES
SINGLELEAF LAMINATEDGLASS DOORWITHA ALUMINUMHANDLE 1000 2150
GLASSDOOR12MMCLEAR TEMPEREDGLASSDOORW HANDLE 2000 2150
MATERIALSTEMPEREDGLASSPANEL WITHWOODENFRAME TEMPEREDGLASSPANEL WITHAWOODENFRAME WITHALUMINUMHANDLE
NO. DESCRIPTION DATE CLIENT: ARCHITECT:
INTERIORDESIGN CONSULTANT: QUANTITYSURVEYOR: PROJECTNAME: PROPOSEDINTERIOR RENOVATIONWORK OFOFFICEFORVR SDN.BHD.
SCALE: -
DRAWING NO: CYT_DWD_D&W 10
DATE:21MAY2023

SCHEDULEOFWALLFINISHES

RCWALLW/NIPPONPAINTSUPER MATEXBRILLIANTWHITE145PAINT FINISH GROUNDFLOOR,FIRSTFLOOR

RCWALLW/Ø15MMPERFORATED ALUMINUMWALLPANELCLADDING FINISH FIRSTFLOOR

NIPPONPAINT

3 GLASSPANELWALL

12MMTHKTEMPEREDGLASS PANELWALL GROUNDFLOOR

LARGEMEETINGROOM,EXTERIOR WALL OFFICEPROOFFICEFURNITURE MALAYSIA 4

WOODPANELFINISH

6 WOODLAMINATEFINISH

GROUNDFLOOR,FIRSTFLOOR

COLUMN

PANELS GROUNDFLOOR,FIRSTFLOOR PRIVATE

ROOM, EXECUTIVE ROOM, DIRECTOR ROOM, CO-WORKING SPACE

Ø15MMPERFORATEDALUMINUM CEILINGPANELCLADDING

GROUNDFLOOR,FIRSTFLOOR LOUNGEAREAINRECEPTION,

NOCODE IMAGE NAME SPECIFICATION LEVEL LOCATION SUPPLIER 11 LINOLEUMFLOOR CONCRETEFLOORW/8MMTHK LINOLEUMFINISH GROUNDFLOOR,FIRSTFLOOR ALLINTERIORSPACES 12 PLYWOODFLOORPANEL CONCRETEFLOORW/10MMTHK WARMPINEPLYWOODFLOOR CLADDING GROUNDFLOOR OUTDOORHALL FRIGOLINEGROUP F1 F2

NOCODE IMAGE NAME SPECIFICATION LEVEL LOCATION SUPPLIER
1 WHITEPAINTFINISH
LOBBY, PRIVATE OFFICE, EXECUTIVE ROOM, CO-WORKING SPACE, PRINTING ROOM, CORRIDOR 2 ALUMINUMCLADDINGFINISH
SMALL MEETING ROOM, LARGE CO-WORKING SPACE SPACEPRODUCTSDNBHD
RCWALLLINEDW/4MMTHK PLYWOODPANELFINISH GROUNDFLOOR CO-WORKINGSPACE MAZECONCEPTTECHNOLOGY WOOD 5 EXPOSEDCONCRETEWALLRCWALLW/POLISHEDFINISH GROUNDFLOOR PRIVATEROOM
EXTERIORWALLSTRUCTURE
7 FACADEFINISH
RCWALLW/8MMTHKDOUGLAS FIRFROMLIMOUSINELAMINATE FINISH GROUNDFLOOR,FIRSTFLOOR
EXTERIORWALL
IW1 IW2 IW3 IW4 EW1 EW2
40MM(THK)HEATINSULATING DOUGLASFIRFROMLIMOUSINE FRAMEMANTLE
FRANKEN-SCHOTER
NOCODE IMAGE NAME SPECIFICATION LEVEL LOCATION SUPPLIER 8 CEILINGCLADDING 29MMTHKWARMPINEPLYWOOD INVARNISHFINISH GROUNDFLOOR,FIRSTFLOOR RECEPTION,LARGEMEETING ROOM,SMALLMEETINGROOM, CORRIDOR KEBONY 9 CEILINGPANEL
SCHEDULEOFCEILINGFINISHES
10 CEILINGPANEL
SPACEPRODUCTSDNBHD PC1 PC2 PC3 IW5
1200MM(L)X600MM(W)X35MM THKCEMENT-BONDED COMPRESSEDWOODFIBER
LARGECO-WORKINGSPACE
SCHEDULEOFFLOORFINISHES

1 DOWNLIGHT

SCHEDULEOFLIGHTING

DOWNLIGHT8"18WSURFACERD WWFSLWARMWHITE8"ROUND, SKU:1062887

GROUNDFLOOR(TOILET, PANTRY,STORAGE,OPENAREA, MEETINGROOMS,PRIVATE ROOMS,CO-WORKINGSPACE, PRINTINGROOM)

DOWNLIGHT8"18WSURFACERD WWFSLWARMWHITE8"ROUND, SKU:1062887

WALLLIIGHTSTEEL&ALUMINUM W/WALLPLATE&HARDWIRED ACCENT.WARMWHITELED LIGHTW/495LUMENS.Overall:6"w x4"dx22"h. Shade:1.1"diam.x22"l. Wallplate:6"diam.x1.5"h.

OSRAMT5LEDSETLEDVALUE7W2Feet4000KT5LEDSetFitting

FIRSTFLOOR(TOILET,OPEN AREA/CORRIDOR,MEETING ROOMS,DIRECTOR'SROOMS, CO-WORKINGSPACE,PRINTING ROOM)

HomeProSummitUSJ LotG65BGroundFloor,TheSummit SubangUSJ,PersiaranKewajipan USJ1.,SubangJaya,Selangor 47600

1 E1 CONVECTIONHEATER

EGLOCHANDELIERCORETTO 94743STEEL(SKU:1049197)

SHADECOLOR:Black BODYFINISH:White WATTAGE:60W DIMMERStandard120V DIMENSIONS9.75"Wx6"H BULBNOTINCLUDED

SCHEDULEOFEQUIPMENT

XIAOMIMIJIAELECTRIC CONVESTIONHEATER TEMPERATURECONTROL COMESWITH2200W,230V,50Hz. ADJUSTABLETIMER,ANDWIFI CONNECTIVITYOF2.4GHzWi-Fi.

SIZE:780×216×526mm

FIRSTFLOOR(TOILET,OPEN AREA/CORRIDOR,MEETING ROOMS,DIRECTOR'SROOMS, CO-WORKINGSPACE,PRINTING ROOM)

GROUNDFLOOR(TOILET, PANTRY,STORAGE,OPENAREA, MEETINGROOMS,PRIVATE ROOMS,CO-WORKINGSPACE, PRINTINGROOM)

550.00

18

XIAOMIDISTRIBUTIONCENTRE MALAYSIA,1800180112 service.my@support.mi.com

2 E2 FOUR-WAYCEILINGCASSETTE

FOUR-WAYCEILINGCASSETTE Capacities:12,000to42,000BTU/H Sound:aslowas27dB(A)

SEER:upto27.0

HSPF:upto12.8

COP:upto4.94

FIRSTFLOOR(TOILET,OPEN AREA/CORRIDOR,MEETING ROOMS,DIRECTOR'SROOMS, CO-WORKINGSPACE,PRINTING ROOM)

GROUNDFLOOR(TOILET, PANTRY,STORAGE,OPENAREA, MEETINGROOMS,PRIVATE ROOMS,CO-WORKINGSPACE, PRINTINGROOM)

3570.00

36

MITSUBISHIELECTRONS

CustomerCare:1-800-433-4822

customercare@hvac.mea.com

FirexSmokeDetector,Hardwired with9-VoltBatteryBackup&Front LoadBatteryDoor,Adapters Included,SmokeAlarm

FIRSTFLOOR(TOILET,OPEN AREA/CORRIDOR,MEETING ROOMS,DIRECTOR'SROOMS, CO-WORKINGSPACE,PRINTING ROOM,CORRIDOR)

GROUNDFLOOR(TOILET, PANTRY,STORAGE,OPENAREA, MEETINGROOMS,PRIVATE ROOMS,CO-WORKINGSPACE, PRINTINGROOM,CORRIDOR)

HomeProSummitUSJ LotG65BGroundFloor,TheSummit SubangUSJ,PersiaranKewajipan USJ1.,SubangJaya,Selangor 47600

# CODE NAME VISUALS SPECIFICATION LOCATION PRICE(MYR) QTY(NOS) SUPPLIER
3 E3 SMOKEALARMDETACTOR
90.50 63
# SYMBOL NAME VISUALS SPECIFICATION LOCATION PRICE(MYR) QTY(NOS) SUPPLIER
34.90 212
DOWNLIGHT
HomeProSummitUSJ LotG65BGroundFloor,TheSummit SubangUSJ,PersiaranKewajipan USJ1.,SubangJaya,Selangor 47600 2
34.90 300
3 WALLLIGHT
STAIRCASEAREA 600.00 8
47600 4 FLUORESCENTLIGHT
HomeProSummitUSJ LotG65BGroundFloor,TheSummit SubangUSJ,PersiaranKewajipan USJ1.,SubangJaya,Selangor
Lamp 2Ft GROUNDFLOORCORRIDOR& PRIVATEROOMS FIRSTFLOOR:CORRIDOR 50.90 87 HomeProSummitUSJ
SubangUSJ,PersiaranKewajipan USJ1.,SubangJaya,Selangor
5 PENDANTLIGHT
LotG65BGroundFloor,TheSummit
47600
CEILINGAROUNDTHE ENTRANCELOBBY 212.00 15 HomeProSummitUSJ
1
LotG65BGroundFloor,TheSummit SubangUSJ,PersiaranKewajipan USJ1.,SubangJaya,Selangor 47600

SCHEDULE OF FURNITURE

410MM (L) X 410MM (W) X 810MM (H) POLYPROPYLENE PLASTIC SEAT SHELL WITH MAPLE WOOD LEGS IN NATURAL FINISH GROUND FLOOR

ORANGE SYNTHETIC LEATHER, STAINLESS STEEL LEGS IN CHROME FINISH GROUND FLOOR, FIRST FLOOR

PLYWOOD FRAME, POLYESTER WADDING, POWDER COATED STEEL LEGS GROUND FLOOR

PLYWOOD FRAME, POLYESTER WADDING, POWDER COATED STEEL LEGS GROUND FLOOR

WHITE POLYPROPYLENE PLASTIC, SYNTHETIC RUBBER, POLYURETHANE FOAM, NYLON GROUND FLOOR, FIRST

YELLOW SYNTHETIC LEATHER, STAINLESS STEEL LEGS IN CHROME FINISH GROUND FLOOR

BLACK POLYPROPYLENE PLASTIC, SYNTHETIC RUBBER, POLYURETHANE FOAM, NYLON, BLACK POWDER COATED STAINLESS STEEL FIRST FLOOR

BLACK POLYPROPYLENE PLASTIC, SYNTHETIC RUBBER, POLYURETHANE FOAM, GRAIN LEATHER FROM CATTLE, BLACK POWDER COATED STAINLESS STEEL FIRST FLOOR

BLACK POLYPROPYLENE PLASTIC, SYNTHETIC RUBBER, POLYURETHANE FOAM, GRAIN LEATHER FROM CATTLE, BLACK POWDER COATED STAINLESS STEEL FIRST FLOOR

NO. CODE IMAGE SPECIFICATIONS LOCATION UNIT PRICE (RM) QUANTITY SUPPLIER 1 C1
325 64 ARCHIEXPO BY VIRTUAUALEXPO GROUP 2 C2
1300 9 LUXURY LOUNGE ATL 3 C3
3000 1 ARCHIEXPO BY VIRTUAUALEXPO
4 C4
GROUP
2000 2 ARCHIEXPO BY VIRTUAUALEXPO GROUP 5 C5
FLOOR 999 65 IKEA 6 C6
2000 6 HERMAN MILLER 7 C7
658 11 HERMAN MILLER 8 C8
999 8 IKEA 9 C9
499 4 IKEA

SCHEDULE OF FURNITURE

NO. CODE IMAGE SPECIFICATIONS LOCATION UNIT PRICE (RM) QUANTITY SUPPLIER 10 T1 BIRCH TABLE TOP WITH NATURAL FINISH, WHITE POWDER COATED STAINLESS STEEL LEGS GROUND FLOOR 4899 1 OFFICE FURNITURES MALAYSIA 11 T2 BIRCH TABLE TOP WITH NATURAL FINISH, WHITE POWDER COATED STAINLESS STEEL LEGS GROUND FLOOR 1719 2 OFFICE FURNITURES MALAYSIA 12 T3 BLACK STAINED TEMPERED GLASS TOP, BLACK POLISHED MARBLE, BLACK POWDER COATED STAINLESS STEEL FRAME AND LEGS GROUND FLOOR, FIRST FLOOR 699 3 IKEA 13 T4 BLACK CERAMIC STONE,BLACK POWDER COATED STAINLESS STEEL GROUND FLOOR 3326 1 DESIGN DISTRICT 14 T5 CHERRY WOOD TABLE TOP WITH NATURAL FINISH, WHITE POWDER COATED STAINLESS STEEL LEGS GROUND FLOOR 619 2 OFFICE FURNITURES MALAYSIA 15 T6 CHERRY WOOD TABLE TOP WITH NATURAL FINISH, WHITE POWDER COATED STAINLESS STEEL LEGS GROUND FLOOR 671 2 OFFICE FURNITURES MALAYSIA 16 T7 CHERRY WOOD TABLE TOP WITH NATURAL FINISH, WHITE POWDER COATED STAINLESS STEEL LEGS GROUND FLOOR, FIRST FLOOR 479 17 OFFICE FURNITURES MALAYSIA 17 T8 TEMPERED GLASS TABLE TOP, BLACK POWDER COATED STAINLESS STEEL FRAME AND LEGS GROUND FLOOR 199 2 IKEA 18 T9 PARTICLEBOARD, MELAMINE FOIL,WHITE POWDER COATED STAINLESS STEEL FIRST FLOOR 2199 13 IKEA 19 T10 MDF WOOD WITH CHERRY VENEER FIRST FLOOR 4899 1 OFFICE FURNITURES MALAYSIA 20 T11 OAK WOOD IN NATURAL FINISH, BLACK POWDER COATED STAINLESS STEEL FIRST FLOOR 2000 1 HOUZZ

NOTE: THISDRAWINGISCOPYRIGHTDRAWING.THE AUTHORIZEDUSERISTOCHECKALLDIMENSIONSON SITE.ONLYFIGUREDDIMENSIONSARETOBEWORKED ON.DISCREPANCIESMUSTBEREPORTEDIMMEDIATELY TOPARTNERSHIPBEFOREPROCEEDING

184.FLOOR HEIGHT Applied UBBL requirement.

Floor height here are 2970mm

(1)In building other than those specified in the preceding provisions of by-laws 44 and 45 the height of rooms on the ground floor shall not be less than 3 metres and on any floor above the ground floor shall not be less than 2.75 metres.

184.SEATING Applied UBBL requirement.

Seating in AGORA Business Incubator has complied with the requirements. The spacing of rows of seats from back were 900 mm in the space and was able to meet the terms as stated due to its voluminous space of 989m^2.

MEASUREMENT OF TRAVEL DISTANCE TO EXITS. Applied UBBL requirement.

UBBL By Laws - section 165

(1)Initial travel distance before a point where an alternative path becomes available .

(2)2)Stipulates that travel distance must be measured along the path of trav

(3)Where an actual path of travel cannot be determined, the direct distance can be measured as a straight line direct to the exit. Permitted travel distance is then reduced to 2/3.

ARCHITECT: INTERIORDESIGN CONSULTANT: QUANTITYSURVEYOR: PROJECTNAME: PROPOSEDINTERIOR RENOVATIONWORK OFOFFICEFORVR SDN.BHD.

DRAWING TITLE:

DRAWNBY:CHEAHYUENTZE

1 2 3 4 5 6 7 8 9 10 11 A B C D E B 99m² Private Room 98m² Private Room 98m² Private Room 99m² Private Room 6m² Toilet 6m² Toilet 6m² Toilet 6m² Toilet 13m² Storage 8m² Storage 7m² Storage 53m² Large Meeting Room 214m² Reception 6m² Toilet 3m² Toilet 9m² Toilet 6m² Toilet 22m² Small Meeting Room 19m² Private Room 19m² Private Room 19m² Co-working Space 17m² Co-working Space 13m² Private Room 121m² Co-working Space 13m² Small Meeting Room 369m² Outdoor Hall 7m² Pantry T1 C1 C1 T2 T2 T4 T3 T3 T3 T5 C2 C3 C4 C4 C2 C2 C5 C1 C1 T6 C5 T6 C1 T7 C5 T7 C5 C5 C5 T8 C6 T3 C2 T7 C5 C5 C5 T8 C6 T5 C1 T7 C5 17m² PrintingRoom C6 10m² Storage D5 D5 D5 D4 D4 D4 D3 D1 D2 D2 D2 D6 D6 D6 D1 D1 D1 D4 D3 D3 D3 D3 D3 D3 D1 D1 D6 D6 D6 D6 D6 D6 D4 D6 D8 D8 D8 D8 D8 D8 D6 D6 D9 D9 D9 D9 D7 D7 D7 D7 D7
NO. DESCRIPTION DATE CLIENT:
UBBL 01
UBBL_1
A
SCALE:CHECKEDBY:TANSINAI DRAWING NO: CYT_DWD_
3
DATE: 21 MAY 2023
REVNO: VRSDNBHD. 1,Jln.Imbi,55100KualaLumpur,Malaysia Tel:01116213123 Email:vr.sdnbhd@gmail.com RAKIASTUDIOSDNBHD. 1,Jln.Taylors,55100KualaLumpur,Malaysia Tel:01116213123 Email:rakia.sdnbhd@gmail.com ROYALINTERIORDESIGNSDNBHD. 165,Jln.Royal,36140,Selangor,Malaysia Tel:03-21154138 Email:royal.interior@gmail.com SALFORDQSSDNBHD. 163,Jln.Sultan,56143,KualaLumpur,Malaysia Tel:03-14562182 Email:salford.qs@gmail.com

(1)Fire alarms shall be provided in accordance with the Tenth Schedule to these By- Laws.

(2)All premises and buildings with gross floor area excluding car park and storage areas exceeding 9290 sq metres or exceeding 30.5 metres in height shall be provided with a two-stage alarm system with evacuation ( continuous signal) to be given immediately in the affected section of the premises while an alert ( intermittent signal ) be given in adjoining section.

sch exits shall be marked readily visible signs and shall not be obscured by decorations, furnishings or other equipment.

(2) A sign reading "KELUAR" with an arrow indicating direction shall be placed in every location where direction of travel to reach the nearest exit immediately apparent.

DRAWING NO: CYT_DWD_UBBL13B

REFLECTION

This assignment consists of both group and individual tasks. Furthermore, the primary learning outcome of the assignment is the study of UBBL and building fire safety. As a member of my group, I believe that teamwork is crucial, and happily, we have solved many challenges together and completed the group tasking successfully.I encountered a few difficulties with the different assignments, particularly the UBBL. I went to look up the UBBL regulations and identify which ones applicable to the buildings. The challenge lies in remembering by law details and identifying missing fire safety requirements. UBBL is essential for interior design and knowledge, but designers must continue to accumulate experience and understand its practical applications.

ASSIGNMENT 01

INTRODUCTION

This assignment involves selecting a working space within a complex with openings, measuring its dimensions, and converting them into 2D drawings. The goal is to capture detailing like opening widths, frames, framing profiles, construction, materials, and finishes. The project aims to transform the drawing convention into detailed 2D drawings, ensuring accurate representation of the space's layout and functionality.

WORK FROM HOME : DOORS & WINDOWS

ASSIGNMENT 1: WORK FROM HOME + DOORS / WINDOWS

DETAILING WORKING DRAWING IDS60804

NAME: CHEAH YUEN TZE

TUTOR: MS. SIN AI & MS. FATIMAH

SEMESTER: APRIL - JULY 2023

PROGRAMME: BARCHELOR OF ARTS (HONS) INTERIOR ARCHITECTURE

LEGENDS

2080MM(W)X1650MM(L)QUEENSIZEBED

450MM(W)X450MM(H)LOOSESIDETABLEWITH PLYWOODLAMINATEFIN. -EDMIRA/CLEANWHITE/JBQ7112N

570MM(L)X550MM(W)X1040MM(H) LOOSEBLACKLEATHERSTUDYCHAIR

1510MM(L)X600MM(W)X760MM(H)LOOSEDESK BANQUETTABLEWITH25MMEPOXYLEGLIGHT GREY16MMMELAMINETOP

1844MM(L)X690MM(W)X2350MM(H)BUILDIN WARDROBEWITHPLYWOODLAMINATEFIN.EDMIRACRYSTALWHITE/CDF1026VV

738MM(L)X513MM(W)X620MM(H)BUILDIN DRESSERWITHPLYWOODLAMINATEFIN. EDMIRA/CRYSTALWHITECDF1026VV

1774MM(W)X2651MM(H)ALUMINIUM CASEMENTWINDOWWITH6MMTHK TEMPEREDGLASS

600MMX600MMBEIGEPORCELAINTILE WITHGLOSSYFINISHED.

BEDROOMFURNITURELAYOUTPLAN

SCALE1:30

DRAWINGTITILE:

NOTE:

ALLDRAWINGSDESIGNSANDPRINTED

SPECIFICATIONSARETHECOPYRIGHTOF KOLABSTUDIOANDARENOTPERMITTED FORUSAGEORREPRODUCTIONWITHOUT PRIORPERMISSION.

ALLWORKSARETOFOLLOWTHEPRINTED DIMENSIONSWHICHARECONFIRMEDON SITEALLDISCREPANCIESSHALLBE REPORTEDTOTHEDESIGNERBEFORE COMMENCEMENTOFWORK.

ARCHITECT: EQARCHIDESIGNSNDBHD.

QUANTITYSURVEYIOR: THISDRAWINGANDDESIGNWAS GENERATEDBYACADSOFTWARE SYSTEM.

DG DESIGN Jalan PJU 1a/11, Ara Damansara, 47301 Petaling Jaya, Selangor TEL: 018-0106-9946 EMAIL: Dgesign.sdn@gmail.com

INTERIORDESIGNCONSULTANT: WEIBERMACTDESIGN&BUILDSDN.BHD.

PROJECTTITILE: TOPROPOSEFURNITURELAYOUTPLAN (BEDROOM)FORENNQI.

DATE:17APRIL2023

SCALE:1:30

CHECKEDBY:-

WEIBERMACT, Jalan PJU 14, Ara Damansara, 47301 Petaling Jaya, Selangor TEL: 013-0185-8536 EMAIL: weibermactt@gmail.com

pdelight ,Jalan desa 1, taman desa, jalan klang lama 48000,kuala Lumpur. TEL: 013-0185-8536 EMAIL: pdelight @gmail.com

DRAWNNO:YT_DWD_FLP_01

FURNITURELAYOUTPLAN(BEDROOM) KC DESIGN .SDN.BHD DG DESIGN STUDIO.SDN.BHD WEIBERMACT DESIGN.SDN.BHD PDELIGHT. Q.B COMPANY LOT 15, KC 24, Jalan SS 24/12, Taman Megah, 47301 Petaling Jaya, Selangor TEL: 018-3675-9988 EMAIL: Kc.sdn@gmail.com

3845 3360 690 738 1844 600 663 LOOSE DESK QUEENSIZE DRESSER F2 F1 LF1 LF3 LF4 LF2 A/W BEDROOM CH:2751MM SYMBOL
DESCRIPTION QTY LF1 LF2 LF3 LF4 F1 F2 A/W
1 1 1 1 1 1 1 1 433 1520 717
D1 900 A
REF.TODETAILDRAWING YT_DWD_BW_03
REF.TODETAILDRAWING
YT_DWD_BD_04
FP MB
CLIENT ENNQI
DRAWNBY:CHAYANNEREVNO:02

NOTE:

THISDRAWINGANDDESIGNWAS GENERATEDBYACADSOFTWARE SYSTEM.

ALLDRAWINGSDESIGNSANDPRINTED

SPECIFICATIONSARETHECOPYRIGHTOF KOLABSTUDIOANDARENOTPERMITTED FORUSAGEORREPRODUCTIONWITHOUT PRIORPERMISSION.

ALLWORKSARETOFOLLOWTHEPRINTED DIMENSIONSWHICHARECONFIRMEDON SITEALLDISCREPANCIESSHALLBE REPORTEDTOTHEDESIGNERBEFORE COMMENCEMENTOFWORK.

BEDROOM LEGEND / SCHEDULE

AREA

WALL FLOOR CEILING DOOR

MATERIAL(W1)RCWALL W/FLOATTEXTUREFIN.COLOUR INWHITEPAINT.

DESCRIPTION

NAME:600MMX600MMBEIGE PORCELAINTILE

MATERIAL:GYPSUMCEILING SPRAYEDINWHITEPAINT

BRAND

FINISHES:SMOOTHFINISHES/ WHISPERINGWHITEOW1001MATERIAL(W2)RCWALL W/FLOATTEXTUREFIN.COLOUR INGREENPAINT

FINISHES:SMOOTHFINISHES/ ARMYGREENAC2118A

BRAND:NIPPONPAINT

SIZE:600MMX600MM X16MM(THK)

FINISHES:GLOSSYSURFACE

BRAND:-

FINISHES:SMOOTHFINISHES BRILLIANTWHITE/NIPPONPAINT 1001

MATERIAL:2050MM(H)x730MM(W) x35MMTHK PLYWOODWBRILLIANTWHITEFIN.

FINISHES:SMOOTHFINISHES/ BRILLIANTWHITE/NIPPONPAINT /1001 NIPPONPAINT

BRAND:NIPPONPAINT

MATERIAL1844MM(L)X690MM(W) X2350MM(H)BUILT-INFULLHEIGHT WARDROBE.

FINISHES:SEL.PLYWOODLAMINATE FIN.ADMIRA/CRYSTALWHITE CDF1026VV

BRAND:ADMIRA

CLIENT ENNQI

ARCHITECT: EQARCHIDESIGNSNDBHD.

INTERIORDESIGNCONSULTANT: WEIBERMACTDESIGN&BUILDSDN.BHD.

QUANTITYSURVEYIOR:

SCHEDULEOFFINISHES

DRAWINGTITILE:

PROJECTTITILE: TOPROPOSEFURNITURELAYOUTPLAN (BEDROOM)FORENNQI.

SCALE:1:N/A

CHECKEDBY:-

DRAWNNO:YT_DWD_F1_SF_02

DATE:17APRIL2023

DRAWNBY:CHAYANNE

1
D
W
, W2 F C
WARDROBE
CODE
BF
REVNO:02 W2 W1 A/W TF1 TF1 BF W1 C D1 KC DESIGN .SDN.BHD DG DESIGN STUDIO.SDN.BHD WEIBERMACT DESIGN.SDN.BHD PDELIGHT. Q.B COMPANY LOT 15, KC 24, Jalan SS 24/12, Taman Megah, 47301 Petaling Jaya, Selangor TEL: 018-3675-9988 EMAIL: Kc.sdn@gmail.com DG DESIGN Jalan PJU 1a/11, Ara Damansara, 47301 Petaling Jaya, Selangor TEL: 018-0106-9946 EMAIL: Dgesign.sdn@gmail.com WEIBERMACT, Jalan PJU 14, Ara Damansara, 47301 Petaling Jaya, Selangor TEL: 013-0185-8536 EMAIL: weibermactt@gmail.com pdelight ,Jalan desa 1, taman desa, jalan klang lama 48000,kuala Lumpur. TEL: 013-0185-8536 EMAIL: pdelight @gmail.com

WHICH ARE CONFIRMED ON SITE ALL DISCREPANCIES SHALL BE REPORTED TO THE DESIGNER BEFORE COMMENCEMENT OF WORK.

DRESSER F2 F1 1844 738 690 513 EXT. PLASTER. CH : 2350MM 2350 A 872 872 50 50 600 600 1000 50 100 1844 DRAWER EXT. PLASTER. CH 2350MM 2350 872 872 50 50 1844 DRAWER OPEN OPEN OPEN OPEN OPEN OPEN OPEN DRAWER DRAWER ENTIREDRAWERC/W SOFTCLOSE&45° FINGERGROOVEHANDLE. GREENHATCHINGAREAINDICATEDTOSKIRTING INPYLWOODLAMINATE FIN.C/WABSEDGING. -ADMIRACRYSTALWHTIE/CDF1026VV GREENHATCHINGAREAINDICATEDTO SKIRTINGINPYLWOODLAMINATE FIN.C/W ABSEDGING. -ADMIRACRYSTALWHTIE/CDF1026VV FIXOPENCOMPARTMENT INTERNALFIXEDSHELVES. 350 350 330 330 330 510 813 1487 50 738 2350MM(H) X1844MM(L)X25MM(THK) TRANSLUCENTGLASSSLIDINGDOOR DRESSERDRAWERINPLYWOOD LAMINATEFIN.C/WABSEDGING,SOFT CLOSE&45°FINGERGROOVEHANDLE. -MIECO/1001/WHITE ELEVATION A C4 SCALE1: 40 INTERNAL ELEVATION B C4 SCALE1: 40 EXT. PLASTER. CH 2350MM 350 50 GREENHATCHINGAREAINDICATEDTOSKIRTING INPYLWOODLAMINATE FIN.C/WABSEDGING. -ADMIRACRYSTALWHTIE/CDF1026VV GREENHATCHINGAREAINDICATEDTO SKIRTINGINPYLWOODLAMINATE FIN.C/W ABSEDGING. -ADMIRACRYSTALWHTIE/CDF1026VV ENTIREDRAWERC/W SOFTCLOSE&45° FINGERGROOVEHANDLE. STEELBALLBEARINGSLIDERAILS WSOFT -CLOSINGRUNNER INTERNALFIXEDSHELVES. FIXOPENCOMPARTMENT 2350MM(H) X1844MM(L)X25MM(THK) TRANSLUCENTGLASSSLIDINGDOOR 2350 350 330 330 330 510 100 SECTION 1-1 C4 SCALE1: 40 1-1 1-1 INTERIOR DESIGN CONSULTANT: WEIBERMACT DESIGN & BUILD SDN.BHD. ARCHITECT: EQ ARCHI DESIGN SND BHD. CLIENT ENN QI NOTE: QUANTITY SURVEYIOR: THIS DRAWING AND DESIGN WAS GENERATED BY A CAD SOFTWARE SYSTEM. ALL DRAWINGS DESIGNS AND PRINTED SPECIFICATIONS ARE THE COPYRIGHT OF KOLAB STUDIO AND ARE NOT PERMITTED FOR USAGE OR REPRODUCTION WITHOUT PRIOR PERMISSION. ALL WORKS ARE TO FOLLOW THE PRINTED DIMENSIONS
PROJECT TITILE: TO PROPOSE FURNITURE LAYOUT PLAN (BEDROOM) FOR ENN QI. DRAWN NO: YT_DWD_F1_BW_03 CHECKED BY:SCALE: 1: 30 DRAWING TITILE : DATE: 17 APRIL 2023 DRAWN BY: CHAYANNE F1 BUILT-IN WARDROBE PLAN, ELEVATION & DETAIL ELEVATIONREV NO: 02 KC DESIGN .SDN.BHD DG DESIGN STUDIO.SDN.BHD WEIBERMACT DESIGN.SDN.BHDPDELIGHT. Q.B COMPANY LOT 15, KC 24, Jalan SS 24/12, Taman Megah, 47301 Petaling Jaya, Selangor TEL: 018-3675-9988 EMAIL: Kc.sdn@gmail.com DG DESIGN Jalan PJU 1a/11, Ara Damansara, 47301 Petaling Jaya, Selangor TEL: 018-0106-9946 EMAIL: Dgesign.sdn@gmail.com WEIBERMACT, Jalan PJU 14, Ara Damansara, 47301 Petaling Jaya, Selangor TEL: 013-0185-8536 EMAIL: weibermactt@gmail.com pdelight ,Jalan desa 1, taman desa, jalan klang lama 48000,kuala Lumpur. TEL: 013-0185-8536 EMAIL: pdelight @gmail.com

TIMBERPACKERTOHANGING EDGETOALLOWCUT OUTFORHINGE 30MMTIMBERPACKERTOLOCKEDGE

JOINERYOFDOORFRAME

50MM THK DOOR

TIMBER PACKER TO HANGING EDGE TO ALLOW CUT OUT FOR HINGE

SMOKE & ACOUSTIC SEAL

30MM TIMBER PACKER TO LOCK EDGE DOOR

2MM INTUMESCENT STANDARD HINGE

DOORHINGED1 SCALE 1:2

DRAWINGTITILE:

DOORSCHEDULEDOORELEVATION&DETAIL

NOTE: QUANTITYSURVEYIOR:

THISDRAWINGANDDESIGNWAS GENERATEDBYACADSOFTWARE SYSTEM.

ALLDRAWINGSDESIGNSANDPRINTED

SPECIFICATIONSARETHECOPYRIGHTOF KOLABSTUDIOANDARENOTPERMITTED FORUSAGEORREPRODUCTIONWITHOUT PRIORPERMISSION.

ALLWORKSARETOFOLLOWTHEPRINTED

DIMENSIONSWHICHARECONFIRMEDON

SITEALLDISCREPANCIESSHALLBE REPORTEDTOTHEDESIGNERBEFORE COMMENCEMENTOFWORK.

INTERIORDESIGNCONSULTANT: WEIBERMACTDESIGN&BUILDSDN.BHD.

PROJECTTITILE: TOPROPOSEFURNITURELAYOUTPLAN (BEDROOM)FORENNQI.

DATE:17APRIL2023

SCALE:ASSHOWN

CHECKEDBY:-

DRAWNBY:CHAYANNE

2100 900 170 847 170 680 1000 40 1000 2100 150 B B DOORNO. SINGLELEAFCORESWINGDOOR DESCRIPTION IRONMONGERY LOCATION TYPE FRAME DOORLEAF HINGES LOCK,BALTS STOP,PULLS 150MMX40MMHARDWOODJAMB 50MMTHK.SOLIDCORETIMBERC/W8PANELS REFERTOSUPPLIER
REFERTOSUPPLIER ENTRANCEOFBEDROOM D1 FLOORLEVEL DOORPLAND1 SCALE 1:40 900 40 150 50
1-POINT&1-DOUBLELOCK
40 920
D1 SCALE 1:2
DG ARCHI DESIGN SND BHD. CLIENT ENNQI
ARCHITECT:
DRAWN NO: YT_DWD_DS_06
REVNO:02 LOT 15, KC 24, Jalan SS 24/12, Taman Megah, 47301 Petaling Jaya, Selangor TEL: 018-3675-9988 EMAIL: Kc.sdn@gmail.com DG DESIGN , Jalan PJU 1a/11, Ara Damansara, 47301 Petaling Jaya, Selangor TEL: 018-0106-9946 EMAIL: Dgesign.sdn@gmail.com WEIBERMACT Jalan PJU 14, Ara Damansara, 47301 Petaling Jaya, Selangor TEL: 013-0185-8536 EMAIL: weibermactt@gmail.com pdelight ,Jalan desa 1, taman desa, jalan klang lama 48000,kuala Lumpur. TEL: 013-0185-8536 EMAIL: pdelight @gmail.com KC DESIGN .SDN.BHD DG DESIGN STUDIO.SDN.BHD WEIBERMACT DESIGN.SDN.BHD PDELIGHT. Q.B COMPANY

REFLECTION

This task provided me with a basic understanding of details and working drawings. It broadens my design knowledge and technical interior detailing skills.

Furthermore, through observing the many varieties of windows and doors in our working space, I improved my understanding of the constituent hardware and joinery portions of the windows and doors. One of the talents I gained from this work was the ability to translate my observations from reality into technical construction drawings. I was able to identify the sorts of materials after conducting extensive research on the materials for this assignment.

Turn static files into dynamic content formats.

Create a flipbook
Issuu converts static files into: digital portfolios, online yearbooks, online catalogs, digital photo albums and more. Sign up and create your flipbook.