EMMA YOUNG
Interior Design Portfolio

The primary focus of the William’s Residence design is to create separate spaces that are visually connected, fostering a sense of unity and coherence in the overall design. This approach not only ensures the spaces are aesthetically pleasing but also highly functional, creating a harmonious environment for all while keeping universal design in mind.
Neutral color scheme
Patterns and textures
Custom glass partition walls
Cased openings
Custom wine cellar
These elements work together to provide a unique, functional personality for the public spaces in the William’s Residence.


Farrow & Ball
Low in odor and VOCS, water-based stain and scuff resistant, washable and wipeable, A+ for indoor air quality
Custom ceramic tile
VOC, Formaldehyde, PVC free, slip resistant, and made from natural ingredients

Reclaimed Oak
Repurposed from local sources, resistant to wear and tear, and stained with natural ingredients


Scale: 1/4”1’0”






Scale: 1/2” - 1’0”

Farrow & Ball
Low in odor and VOCS, water based stain and scuff resistant, washable and wipeable, A+ for indoor air quality


Black Marquina Marble, natural stone, highly heat resistant, ages beautifully overtime
European Oak Greenguard certified, low emitting VOC’s, water resistant


Brownstones significantly shaped the architectural landscape in many cities, especially during the 19th century. Its warm, earthy tones continue to evoke a historical feel of historic charm in urban neighborhoods.
Smith’s Brownstone stands as a testament to the meticulous preservation of historical elements in modern designs. It is a harmonious blend of history and modernity, with a focus on salvaging the original craftsmanship and materials, while also incorporating new modern pieces. This preservation effort serves as a beacon, inspiring us to value and respect our architectural heritage.
Autodesk AutoCAD drawings not to scale Enhanced in Adobe Photoshop Modeled in Sketchup, enhanced in Enscape All drawings to industry scale standard





Viola
providing a statement to the space with a beautifully aging stone
& Ball
Low in odor and VOCS, water based stain and scuff resistant, washable and wipeable, A+ for indoor air quality
Salvaged brick prior to demolition, providing a piece of history to the refurbished home
Salvaged wood prior to demolition, stained with natural ingredients


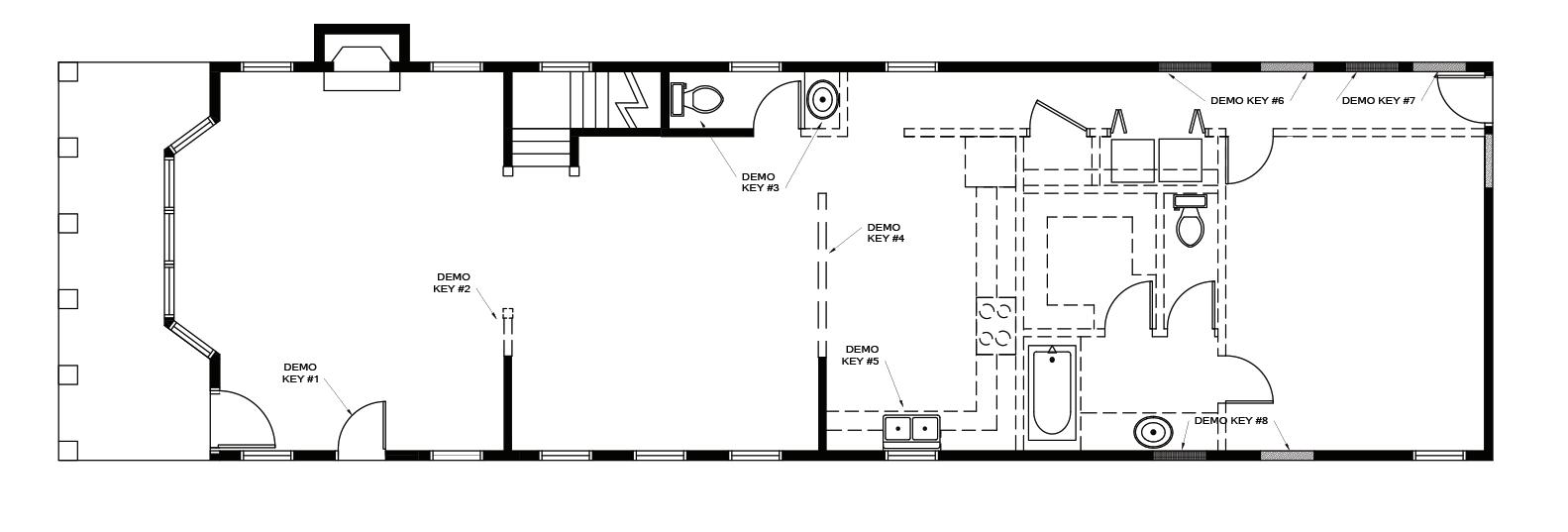
Demolition Plan
Scale: 1/4” - 1’0”

Construction Plan
Scale: 1/4” - 1’0”




Vitality is a health and wellness store serving people of all ages, focusing on millennials and Gen Z. It offers a diverse range of vitamins and supplements for the body, hair, skin, nails, and more. The store is designed to provide an easy and stress-free shopping experience, with clear signage, easy-tofollow paths, and distinctive architectural features. It also offers an interactive experience of customizing your own water bottle. Its purpose is to create a unique and creative environment while encouraging people to drink more water. It also caters to the younger demographic that comes in with their parents and serves as an activity for them.
The store’s overall design is meant to deliver a sense of calmness and tranquility, using soft color tones, biophilia, and natural materials.
Autodesk AutoCAD drawings not to scale




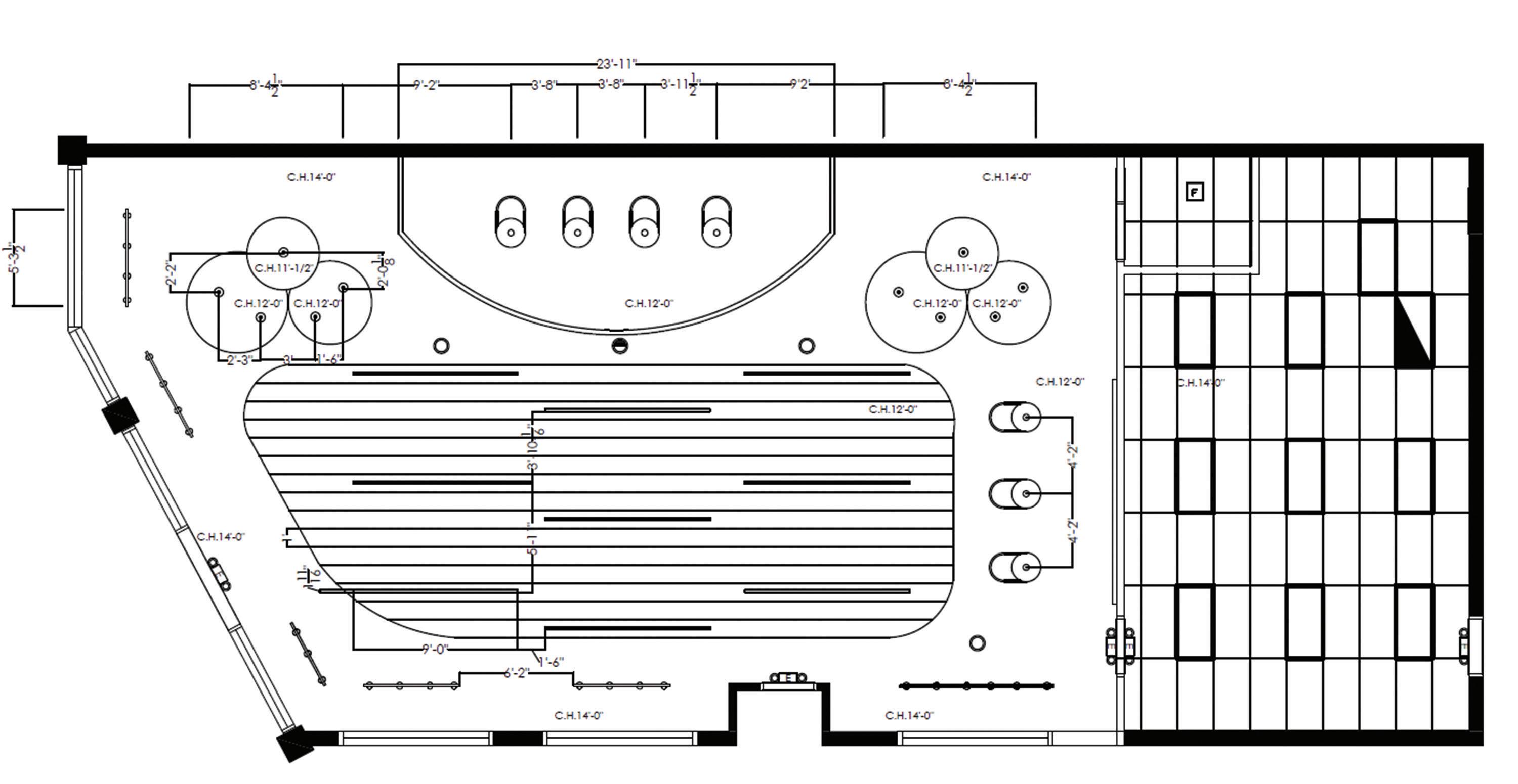
Merchandise Plan
Scale: 1/4” - 1’0”

Reflected Ceiling Plan
Scale: 1/4” - 1’0”

Flooring Material
Scale: 1/4” - 1’0”

B+N Battens made from a non-pvc material providing the feel and look of real wood, class A fire rated, lightweight, easy installation.





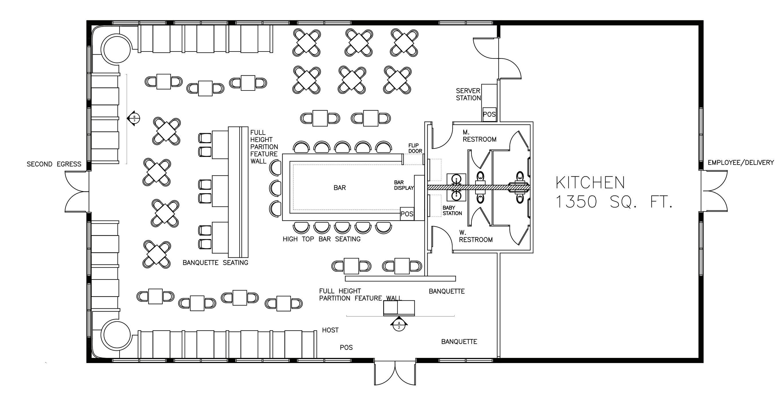
Yushi Sushi is a Japanese sushi and cuisine-style restaurant, mainly targeting millennials and Gen Z, with a maximum seating of 144. The style of the restaurant layout ensures a desirable and privatized experience. Yushi Sushi welcomes all by offering ADA compliance and sustainable solutions. Yushi Sushi offers a private dining experience for all guests by incorporating custom feature partition walls and a tasteful texturized palette. The unique design of Yushi Sushi is also ADA-compliant, with ADAcompliant water fixtures, grab bars, and appropriate turning radius installations. 5% of tables are accessible to wheelchairs and clear circulation patterns. Sustainable considerations include certified Greenguard water fixtures and the use of reclaimed wood.



a natural sustainable material, durable, lightweight, high performance




Table Booth Elevation






DESSERT DRINKS
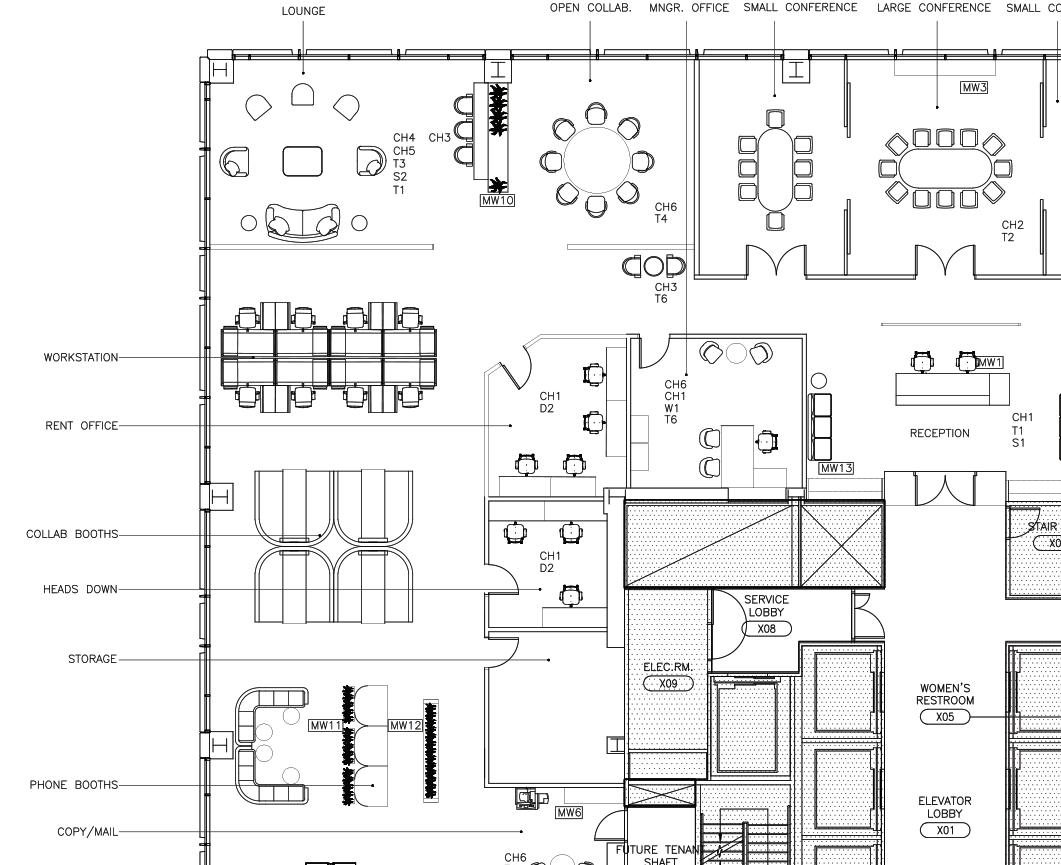
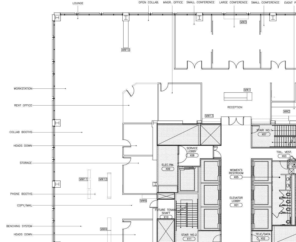
The concept of the Switch Coworking office is to provide a shared space for workers, offering an interchangeable multi-functional environment, including conference rooms, private offices, collaborative spaces, an auditorium, a kitchenette, and a breakroom. The office is sourced by trades, Haworth and Steelcase, to give individuals maximum comfort and flexibility. The space is easily navigated using wayfinding tools through lighting and architectural details. The design also incorporates colors to provide a creative environment that separates areas of work. Switch Coworking caters to all individuals seeking a driven and unique workspace.






Millwork Floor Plan
Scale: 1/4” - 1’0”

Scale: 1/2” - 1’0”



Marquina Marble, natural stone, highly heat resistant, ages beautifully overtime
Low in odor and VOCS, water based stain and scuff resistant, washable and wipeable, A+ for indoor air quality


Wood slats, greenguard certified, low emitting VOC’s, easy to clean Eco-friendly wallpaper, PVC, VOC free, easy to clean, and inhibiting of mold and mildew

Emma Young is a graduate of the College of DuPage with an Associate’s Degree in Interior Design. She is an accomplished creative designer, and this is evident throughout her work. Through her education, studio work, and internships, Emma has obtained strengths in furniture and material selection, space planning, 2D modeling, and photo-realistic 3D models and renderings. She is proficient in Autodesk AutoCAD, Sketchup with Enscape, Adobe Photoshop, and InDesign. Emma prides herself on attention to detail, positivity, and a passion for the interior design industry.



emma.young9@aol.com (309) 826-6858 https://issuu.com/youngemma
