Yiming Yang's Portfolio

Page 1

YIMING YANG PORTFOLIO

NEXTGEN ENERGYEXPO

Location: Calgary, AB

Academic | Group

Teammate: Cindy Cheng

Jan. - April 2023

Advisor: Prof. Sumer Singh

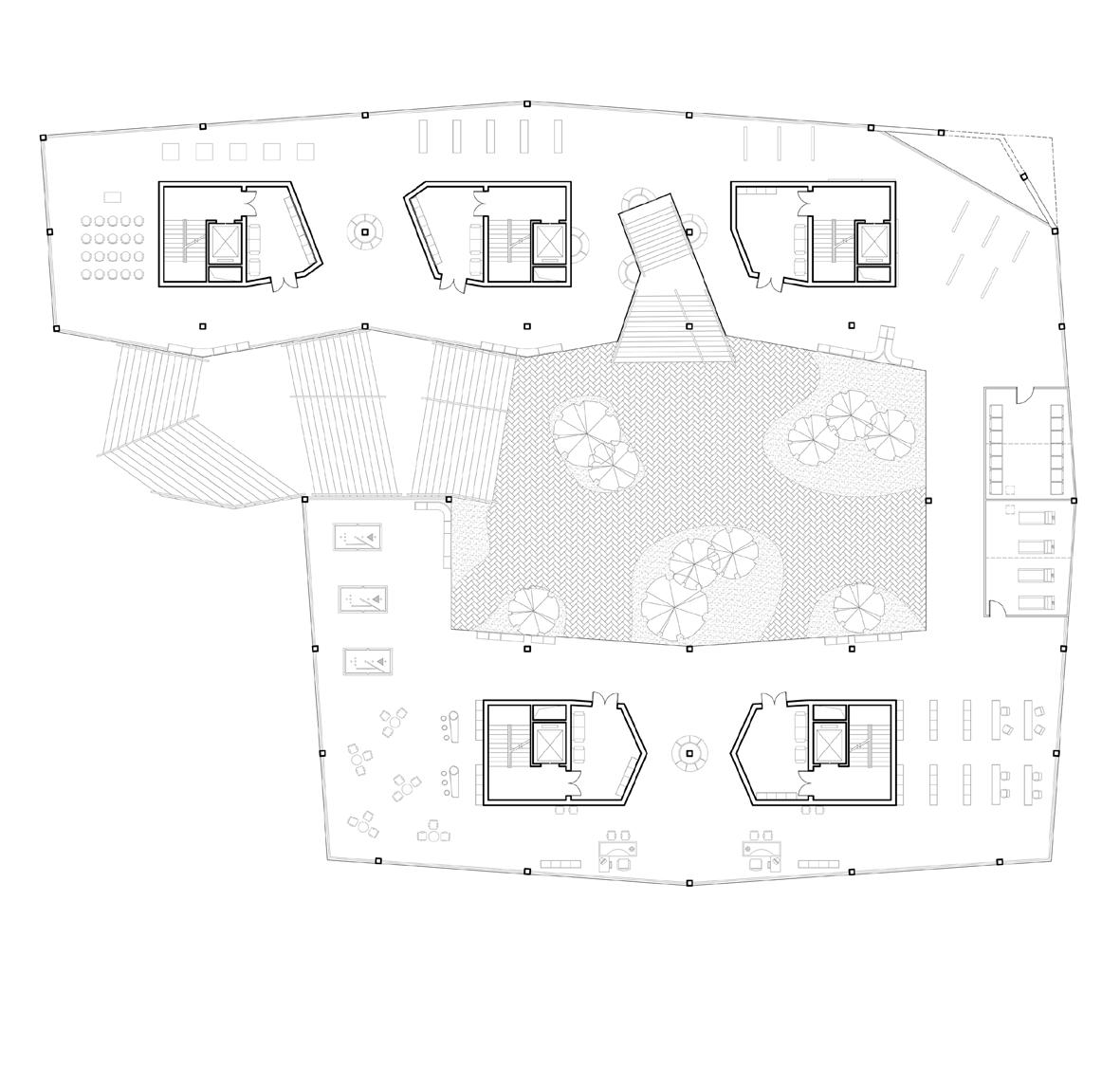
The Cultural Centre of Energy Transition, stands as a beacon of Calgary's past and future. Situated at the nexus of Calgary's past and future, this center is more than just a building; it's a symbol of transformation. Embracing Calgary's rich history in the oil and gas industry, the center stands as a testament to the city's evolution towards renewable energy. Through immersive exhibits and innovative architecture, visitors will embark on a journey from the traditional to the sustainable. Utilizing recycled materials and cutting-edge design techniques, the center sets a new standard for eco-conscious construction. With features like passive cooling, geoexchange heating, and active chilled beams, it's not just a space for learning but a living example of energy efficiency.

Sky Garden
Shadow Impact Programming Site + City Context Vehicular Circulation Pedestrian Circulation Parti Model Alberta Oil Field + Sands Oil Pipes Oil Pipes Leakage Deserted Oil Wells Module Assembly Street Perspective In the Urban Context Sky Theatre Sky Theatre Lobby Entrance Hall 8F Floor Plan Ground Floor Plan

Floor Finishes (Concrete Panel)

Concrete With Metal Decking

Steel Standard Beam

I 240x116

Steel Standard BeamI150x100

Thermafiber Sating mineral wool insulation

Curtain Wall Frame

11t----��� Galvanized Backpan (Air/ Vapor Barrier)

Mineral Wool Insulation Stick pinned to Backpan

Tensile Cable

ETFE Cushion

44.4mm Triple Glazed Panel (Stick Framed Curtain Wall)

DOUBLE FACADE

ETFE Double Facade

DRAWN BY

_
i;o:J:II:���=:
�--:=_-_-_-_-_-_- --++----
KEY PLAN UNIVERSITY TITLE
WALL
STUDIO ELEVATIONS,
NUMBER
ETFE +
PROJECT
PROJECT
NAI-XIN INSTRUCTOR DAVID DATE APRIL Finish Floor Panels 400mm Raised Plenum 200mm Concrete Slab Self-adhered Bituminous Membrane 50mm Rigid Insulation Crushed Rock L'.l L'.l L'.l � INTERIOR <J L.J L'.l L'.l /kJ t 111111111111! 111111 k' !Sis.. !S-!S-!S""" ,,j EXTERIOR L'.l 2" Concrete Faced Insulated Wall Panels �-� ',// L'.l L'.l L'.l <I --��/ ETFE + GLAZED CURTAIN WALL DOUBLE FACADE (ABOVE GRADE) KEY PLAN UNIVERSITY OF CALGARY TITLE ETFE + GLAZED CURTAIN WALL DOUBLE FACADE (ABOVE GRADE) PROJECT ASSIGNMENT4B STUDIO PROJECT DETAILS WITH ELEVATIONS, PLANS, AND RENDERINGS PROJECT NUMBER B2 DRAWN BY NAI-XIN CHENG YIMING YANG INSTRUCTOR DAVID LEONARD DATE APRIL 24TH 2023
Curtain Wall with Deflection Curtain Wall (Above Grade) Section 1 1 2 2 3 3
Underground to Grade Curtain Wall Parapet Rooftop Drainage Unitised Curtain Wall Section 1 2 2 1 a a b b 3 3

P.A.R.C. | PLACE FOR ART, RECREATION, COMMUNITY

Location: Medicine Hat, AB

Academic | Group

Teammates: Shreya Wilson, Carlee Wale

May - Jun. 2022

Advisor: Prof. Alberto de Salvatierra Prof. Dan Hapton

As a typical city in Alberta, Medicine Hat has historically relied on the energy sector for its economic prosperity. Now within this moment of uncertainty and transition, Medicine Hat is seeking an opportunity to revisit the connective fabric of our built environments to identify new paradigms of living and working within our "post-pandemic" reality. In this project, we tackled the re-design of a 1.2km long strip of the downtown Medicine Hat. Our proposal aims to bring a pedestrian focus urban design that incorporates Medicine Hat’s Historical Identity and strong sense of community involvement. This proposal is meant to orchestrate a 24-hour accessible space through a series of compression and release points of pocket plazas and parks to create unique moments of serendipity.

Unfavourable Conditions

Exisiting Favourable Conditions

Unfavourable Conditions vs Existing Buildings

Expanding Favourable

Diverse

Serendipitous Conditions

Room Conditions Emergency

Ephemera Analysis | Edges + Circulations Massing Strategy
+ Service
Vehicle Routes
Riverfront Plaza Market Square Cecil + Root Cellar Courtyard Rotary Amphitheatre Park Connecting Downtown Pocket Parks Plaza/ Ice-skating Rink Skate Park
Axonometric Diagram
N Master Plan A B C D A B C D
Section A-A Section B-B Section C-C Section D-D
Site Model
Market Square Cecil + Root Cellar Courtyard Ice Skating Rink Plaza

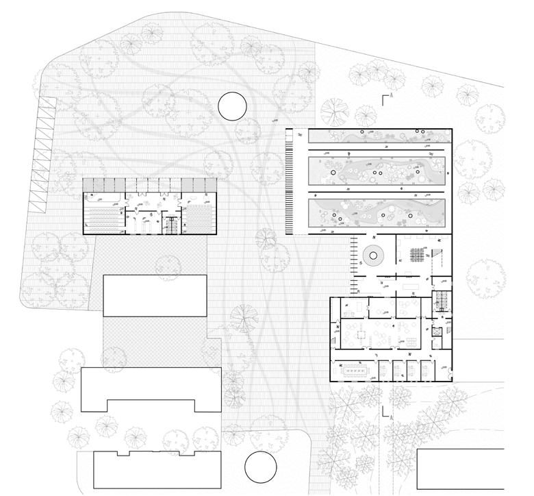
FOOD OASIS

Location: Calgary, AB

Academic | Individual

Sep. - Dec. 2022

Advisor: Prof. Seyi Arole

Like other typical North American cities, there are many city syndromes in DT Calgary that need to be solved in the future, and seems East Village is the exact site. Many cultural resorts have been woven into the context, and it becomes one of the most attractive spots in Calgary. However, the walking and visiting experience of pedestrians are not comfortable due to the isolation of each cultural architecture and the lack of infrastructure. Thus, I formed the premitive idea about my project as a complex of residential area and urban farm.It is a habitat for tourists and new settlers, to address the lack of easy access to accommodation and basic amenities, by providing eating/ living/ shopping which are basic needs for them.

Programme Distribution

Sun + Shading

Solar Optimization

Parti Model
Groundfloor area: max. 1200 SQM Tower floor area: max. 930 SQM Building width: max. 129 M 42 M 171 M Setback: min. 0M Height: min. 9M F.A.R.: max. 7 Massing Strategies
Bylaw + Policy
0 5 10 0 5 10 L7 Floor Plan
Artificial
Landscape
Floor Plan
Natural Landscape Ground
North-South Section
Architecture in the Urban
Massing Model Facade Assembly
West-East Section
Entrance explosion diagram

COLLECTIVE HOUSING

Location: Changsha, Hunan, China

Academic | Individual Mar.-Jun. 2019

Advisor: Mr. Zhimin Yuan

The north side is the city square and the south side is the residential area on the west side. In order to deal with the two different interfaces, and to create a place for young people to communicate, a series of strategies have been developed: raising the street corners on the north side, creating a heavy and solid material sense, playing the role of a landmark in the urban context; the south side of the housing is lowered to connect with the residential buildings; the first floor uses transportation advantages as a commercial space; the community function and foyers are elevated to the second floor, creating a more private place for community activities. The shapes of the two balconies inside and outside, which provide different privacy, are also considered to adapt to different interfaces. There are two or three people sharing a suite, and the differences of the plan provide young people with different choices. Materials of the facade are red bricks, to coordinate the old building in the residential area. And the others are all warm-tone materials.

Master Plan
Strategies Site and Urban Context Site and Urban Context
Architecture Form Design by Physical Models
2/F & 3/F Plan
Different balcony forms with two interfaces inside and outside
Different suite plans provide multiple choices
-
-
Handmade Model Ground Floor Plan 1/F Plan - The "Shared Stage" for the community - Independent foyer - Allow nature to penetrate the inner courtyard Massing Model
North-South Section (community) The "Shared Stage"
View
to Balcony (urban)
East-West Section (community)
from Balcony (community)

Tectonic DetailsMaterials of the facade are red bricks, to coordinate the old building in the residential area. And the others are all warm-tone materials.

Street Perspective

WETLAND MUSEUM

Location: Yiyang, Hunan, China

Academic | Individual Mar.-Jun. 2018

Advisor: Prof. Zhenxi Gong

The project is located next to a hydropower station by the provincial road. In the future, it will be the entrance of Laiyi Lake National Wetland Park. First, the general plan considers the relationship between the new buildings and the existing buildings (the hydropower station buildings on the west side and the villager housings on the east side). So the east facade of the new building is set to a solid and heavy material sense, and the west facade is lighter and more transparent. The design of the architecutural shape is from the sloped roof of the local residence. The suspension pedestrian bridge is used to handle the height difference on the south side, then the exhibition space and work space are naturally distinguished through different floors. The exhibition part starts as small display spaces supported by shear walls, and then is the climax part of the tour route-a simulated wetland that passes through a large space which is supported by a cross beam structure system. Due to the structure, strong direct sunlight becomes diffuse sunlight. At the same time, the grid on the west facade disperses the light, simulating the special environmental atmosphere of the wetland forest.

Site and Urban Context

Site and Urban Context

The project is located next to a hydropower station by the provincial road.

The project is located next to a hydropower station by the provincial road.

In the future, it will be the entrance of Laiyi Lake National Wetland Park.

In the future, it will be the entrance of Laiyi Lake National Wetland Park.

The general plan considers the relationship between the new buildings and the existing buildings

The general plan considers the relationship between the new buildings and the existing buildings

The east facade of the new building is set to a solid and heavy material sense, and the west facade is lighter and more transparent.

The east facade of the new building is set to a solid and heavy material sense, and the west facade is lighter and more transparent.

Place functions into the space according to the series of visiting order and the size of the space.

Place functions into the space according to the series of visiting order and the size of the space.

Select the proper structural systems -- shear walls strucuture and cross beam structure apply to the large span spaces.

Select the proper structural systems -- shear walls strucuture and cross beam structure apply to the large span spaces.

Create Atmosphere by Structures and Form Design

Create Atmosphere by Structures and Form Design

cross beam structure in Nordic Pavillion Vernacular pitched roof

cross beam structure in Nordic Pavillion

Wetland Atmosphere: Fog, Humidity, Tyndall effect

Wetland Atmosphere: Fog, Humidity, Tyndall effect

Ground Floor Plan 1/F Plan
North Elevation
South Elevation
Walking to the Entrance West Elevation (inner) East Elevation (outer)
Site Section
Translation of Wetland Atmosphere through Structures Sustainable Exhibition

STRATA PRINTING PASTE NEXORADE

Location: Calgary, AB

Client: Calgary Downtown Association (CDA)

Teammates: Prof. Alberto de Salvatierra, Tom Brown, Ji Song Sun, Chris Lin, Maneet Singh Duggal, Francisco Labastida, Soumya Shashidharan, Connie Tran

Location: Calgary, AB

Course: ARCH 680

Tutor: Guy Gardner

Teammates: Liam, Ahoo Rezaei, Amina, Arman, Khalil, Carlee Wale, Christian Vargas, Karen Ajala, Megan Taylor, Raj Charaniya, Sunny Bayar

Location: Calgary, AB

Course: ARCH 672

Tutor: Lily Tayefi

Teammates: Carman Harris, Rayhan Muniff, Jordan Bussiere

Turn static files into dynamic content formats.

Create a flipbook
Issuu converts static files into: digital portfolios, online yearbooks, online catalogs, digital photo albums and more. Sign up and create your flipbook.