Skip to main content

Yev Stepanyuk | Waterloo Architecture | Fall 2024 Portfolio

Page 1


HELLO, IT’S NICE MEETING YOU!

I am a third year student at the University of Waterloo’s School of Architecture and I’m currently looking for an 8-month co-op placement.

My true passion lies in community driven design that creates meaningful change in neighborhoods and cities though urban design, and landscape architecture. I am driven by the desire to create meaningful and positive changes within our cities.

My previous experience working as an architectural visualizer, planning, and urban design intern has given me a wellrounded understanding of how to create successful, livable environments, from urban spaces to domestic. However, I have so much more to learn, and I’m excited to continue pursuing these passions in a role that inspires growth and creativity.

CONTACT

(416) 910 - 8429 jstepany@uwaterloo.ca

References Available Upon Request

CURRICULUM VITAE

WORK EXPERIENCE

Architectural Visualizer Copper Bay Homes | 2024

Desinged aesthetically pleasing custom homes according to client needs. Created 3D models using Rhino and Enscape for internal and client review. Collaborated with architects and designers to ensure project goals were met and aligned with client expectations.

Prepared architectural drawings, wall details, and assisted with drawing takeoffs for budgeting purposes.

Created visualizations and renders for current and future developments. Assited in the scheduling of building materials and facade design. Conducted site visits to assess project progress and gather data for design adjustments.

EDUCATION

University of Waterloo Scool of Architecture

Candidate for Graduate with a Bachelor of Architectural Studies

2021-Present Excellent Academic Standing

Innisdale Secondary School

High-school Diploma

2017-2021

Graduated With Honours

AWARDS

President’s Scholarship of Distinction

2021

University of Waterloo

Award of Academic Excellence

2017-2021

Innisdale Secondary School

Digital Media Arts Award

2021

Innisdale Secondary School

Urban Design

Contributed compelling persuade Contributed and modeling Collaborated Conducted materiality Contributed

SKILLS

Exceptional Great

Client Communication Understanding Understanding

VITAE

Design Intern O2 Planning & Design | 2023

Contributed to the creation of project and initiative proposals by producing compelling renderings, graphics, and presentation panels to effectively neighborhood and city committees.

Contributed to concept development of projects by creating building facades modeling landscapes.

Collaborated in the development of concept plans for developments. Conducted comprehensive research to gather relevant information on materiality for prospective projects.

Contributed to the design of company merchandise.

Exceptional Graphic Skills

Written and Verbal Communication

Oriented

Design Capabilities

Making & 3d Modeling

Understanding of Residetial Design

Analysis

Communication and Collaboration

Understanding Zoning Code Compliance

Understanding OBC Compliance

Planning Intern Better Neighbourhoods | 2023

Contributed to the creation of design packages by producing compelling renderings to effectively persuade clients of our design proposals.

Collaborated in the development of planning justification reports to successfully persuade city council members to grant project approvals.

Crafted aesthetically pleasing plans to showcase innovative design concepts. Conducted comprehensive research to gather relevant information for prospective projects.

Documented and consolidated the company’s drafting process, ensuring comprehensive and accessible reference materials for efficient workflow. Oversaw the organization and maintenance of the company’s filing system.

VOLUNTEER EXPERIENCE

Orientation Leader

University of Waterloo | 2022

Planned and coordinated UW’s Architecture School’s orientation program. Provided insight and motivation for struggling students.

Fostered a safe and welcoming environment for students stressed about their future at Waterloo.

Interior Design Kaleidoscope Indoor Playground | 2019

Collaborated in the design of a community indoor playground and children’s event space.

Decorated the space by painting murals on the walls.

Provided my community with an inviting play-space.

510–255 17 Avenue SW

Calgary, AB T2S 2T8

403.228.1336

o2design.com

February 28, 2024

Subject: Reference letter for Yev Stepanyuk

To Whom It May Concern,

I am writing to recommend Yev Stepanyuk as a candidate in the field of urban design. Yev joined our team as an intern as part of the work practicum program from the University of Waterloo, where she is currently pursuing her studies in architecture. Throughout her time with us, Yev displayed outstanding professionalism, dedication, and talent.

Yev consistently met or exceeded expectations. Her contributions to our projects were marked by her attention to detail, creative problem-solving skills, and an eye for design

Yev exhibited a remarkable aptitude for responding to direction. Her ability to take in feedback and implement changes accordingly showcased her commitment to continuous improvement and personal growth. It is evident that she possesses a genuine passion for urban design and architecture, and her dedication to honing her skills was evident.

As Yev continues to pursue her academic and professional endeavors, I have no doubt that she will make positive contributions to the field of urban design. I am confident that her talents, combined with her disposition and work ethic, will pave the way for a bright and successful future in the industry.

I would encourage you to consider Yev Stepanyuk for any opportunities or positions within your organization. She is a highly motivated individual with a lot of potential, and I believe that she would be an asset to any team. If you require any further information or assistance, please do not hesitate to contact me.

Sincerely,

Urban Designer, Senior Associate 587.227.7482

nicholas.dykstra@o2design.com

August 19, 2024

To Whom It May Concern,

I am pleased to provide a reference for Yev Stepanyuk, who served as a Co -op Architectural Visualizer with Copper Bay Homes Ltd. from May 06 to August 23, 2024. During this period, Yev consistently demonstrated a high level of technical skill, professional ism, and dedication to her work.

Yev's primary responsibilities included creating, editing, and rendering 3D models using Rhino and Enscape for both internal and client review. She also played a key role in preparing architectural drawings and plans for proposed projects and assisted with drawing take- offs for budgeting purposes. Yev's technical rendering skills were exceptional, and she consistently worked through complex drawing details with precision.

Throughout her term, Yev performed very strongly. Notably, the designs she prepared during her time with us will be constructed after her term ends, which is a testament to the quality of her work. Yev's strong work ethic was evident in her punctuality, re liability, and ability to work independently with minimal supervision. She was always willing to assist other team members, and her strong communication skills made her a valuable contributor to our projects.

Yev also showed significant growth during her time with us, particularly in her understanding of typical layout spacing for residential drafting. This growth was evident in the level of detail and accuracy in the plans she produced later in her term.

Based on her performance and personal qualities, I am confident that Yev will excel in any role that requires the preparation of detailed drawings. She is punctual, reliable, and willing to take on any task required. I highly recommend Yev for future employment and believe she would be a great asset to any team.

Should you require any further information, please feel free to contact me at brent@copperbayhomes.com

Sincerely,

Copper Bay Homes Ltd. +1 (647) 208-7891

COLLECTIVE ROOTS

CAMBRIDGE COMMONS

RIVER ST SANCTUARY

RAIL TRAIL REST STOP

PROFESSIONAL WORKS

COLLECTIVE ROOTS

April 2024 | 3A Design Studio

Rhino | Enscape | Photoshop | Illustrator

The Collective Roots project represents a shift in urban housing; integrating Indigenous wisdom, sustainable practices, and community empowerment. Three distinct scales of housing density create a more adaptable space that caters to a wide range of user needs. By deviating from conventional architectural norms and embracing innovative approaches to affordable housing, the project contributes to fighting housing alienation while fostering a harmonious, connected, and resilient urban community.

The podium tower typology is a thoughtful approach to urban design, blending functionality with community-oriented spaces. The podium houses commercial spaces and amenities, and it mitigates the impact of the surrounding busy roads by acting as a shield, while still allowing for pedestrian access to the site’s center through perforations, ensuring connectivity with the wider community.

Made in collaboration with Avery Thorne and Matthew Beecroft

Low-Rise Housing Section A

Mid-Rise Housing Section B
High-Rise Housing Section C

Third Floor

Second Floor

First Floor

Communal Spaces (Indoor/Outdoor) Units

Ammenity Spaces

Service Spaces

Commercial Spaces

2-Bed Unit
1-Bed Unit
Sudio Unit

4-Bed Unit

CAMBRIDGE COMMONS

December 2022 | 2A Design Studio

Rhino | Enscape | Photoshop | Illustrator

Cambridge Commons is an intimate infill project in the heart of downtown Cambridge. Designed as a transition home for struggling women, children, and young families, it focuses on the experience of moving through the shifting common spaces within the building, each with varying degrees of privacy, flexibility, and programs. These spaces, inspired by “Khrushchyovkas” (also known as “Commie Blocs”) which are built around generous courtyards with numerous programmed and public amenities, aim to offer the tenant the opportunity to connect to their community, both within the apartment’s walls and beyond.

Located on Dickson Street, the building neighbors the Young Women’s Christian Association headquarters. This nonprofit organization provides accommodation for women and children, as well as daycare services, youth engagement initiatives, public events, and more.

Homeless Shelters

Daycare Services

Cambridge Commons/YWCA

Taking a critical look at the services offered for women and children as well as unhoused persons it is clear to see that the downtown Galt core is severely lacking in resources. After assessing the limited programs offered within the existing services it became clear that working with the neighboring YWCA office and providing space for their services with immediate access to transitional housing was the most practical strategy.

Morphology Strategy

The “Commie Bloc” Courtyard is a vibrant urban oasis that thrives in the heart of a typical Soviet social housing complex, designed to foster a sense of community. The spacious central courtyard features gardens, shaded seating areas, and communal spaces that encourage social interaction. Residents can gather for picnics, playtime, or cultural events, promoting a strong sense of community. The amenities provided include shared gardens and playgrounds, as well as on-site amenities such as convenience stores, grocers, and even healthcare clinics, offering a wide array of services close to home. These conveniences make life more comfortable and connected, promoting a balanced lifestyle, where residents can easily access every day essentials and enjoy a sense of strong community.

Cambridge Commons is designed to emulate the community-centric model of the “Commie Bloc” courtyard by centralizing all living units around three interconnected public and semi-public spaces. These shared spaces serve as vibrant hubs for social interaction, relaxation, and convenience, providing amenities comparable to the “Commie Block”. Residents can gather in the courtyards, play with their children in the parkette, and host a variety of communal events in the public atrium. Additionally, convenient on-site amenities such as a daycare, café, and counseling services are strategically located within these spaces.

“Commie

Bloc” Courtyard Cambridge Commons Courtyard

Green spaces and rooftop garden connect residents to the surrounding ecological milieu.

Daycare program assists women and young families in their transition to a more secure lifestyle

Public counseling services support residents during their transition to a secure lifestyle

Flexible spaces allow the residents opportunities to engage with the Cambridge community

Public Spaces

Common Spaces

Supportive Spaces

Private Spaces

This adaptable studio apartment provides a spacious and open living area, ideal for women and children looking to establish a secure lifestyle within this tight-knit community. With a private balcony and simple design it offers versatility and comfort, allowing residents to tailor the space to their specific needs and preferences.

This two-bedroom unit offers a comfortable living space for young families or women and children seeking a bit more room. It features two cozy bedrooms and a generous and living area with direct views to the buildings public spaces and amenities. The unit is designed for convenience and flexibility, providing a welcoming environment that meets resident’s housing and social needs.

This two bedroom unit comes with an extra flexible living space separated by a room divider, offering versatility for families and individuals. The bedrooms provide privacy, while the open flex space can be customized as an additional bedroom, home office, or play area. With a private balcony and a comfortable living area, this unit caters to various lifestyle preferences.

Flexible Studio Unit
Flexible 2 Bed Unit
Flexible 3 Bed Unit

RIVER ST SANCTUARY

April 2022 | 1B Design Studio Rhino | Enscape | Photoshop | Illustrator

Located in the heart of the Toronto Corktown area, wedged between King St, Queen St, and River St sits a proposed active community hub. Designed to provide people with a peaceful work and study environment, as well as a split bike store and repair shop on the ground and basement floor which can facilitate learning the trade of repair for willing hobbyists.

As it is located on a road island with an intersecting pathway, the building folds around itself to accommodate heavy foot and bicycle traffic. The integrated outdoor seating and height of the structure establishes the River Street Sanctuary’s courtyard as a rest stop, shielded from the commotion of the busy streets and city life surrounding it.

Second Floor Context Plan
First Floor
Basement Floor

Addressing The Path

The existing site that River St Sanctuary sits on is used as a pedestrian and cycling path that connects Corktown to the Don Valley. In order to keep this path and invigorate it, the building wraps itself around the contours of the site, extending up to protect the path from the surrounding roads. This also creates the opportunity for tiered landscaping that provides a rest stop for bikers and pedestrians with immediate access to the bike repair shop and coffee shop housed within the library.

THE RAIL TRAIL REST STOP

April 2022 | 1B Building Construction Rhino | Enscape | Photoshop | Illustrator

The Rail Trail Rest Stop is a steel pedestrian bridge crossing over Kenilworth Access of Hamilton Ontario. Joining the Hamilton escarpment rail trail, the bridge acts as a means of connection and a rest stop for local bikers and hikers.

Fitted with deep-set benches and bike stands,it provides a place for short breaks for those looking to traverse the trails. Its industrial design is reflective of Hamilton’s past, often regarded as the “Steel City.”

Made in collaboration with Matthew Beecroft

AESS3 Category Connection
AESS2 Category Connection

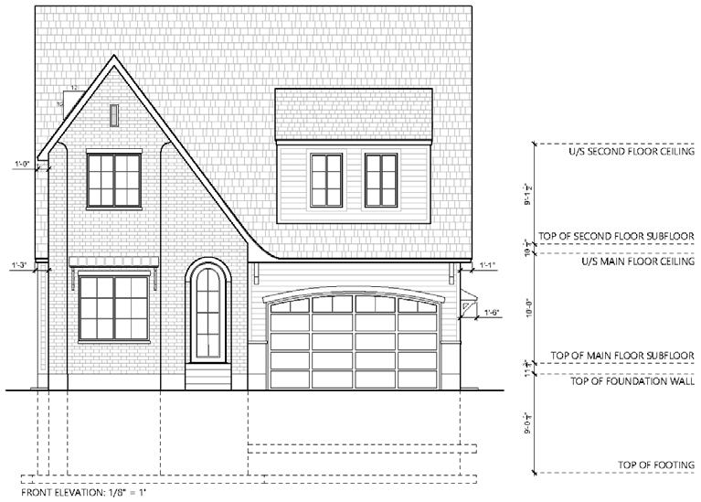
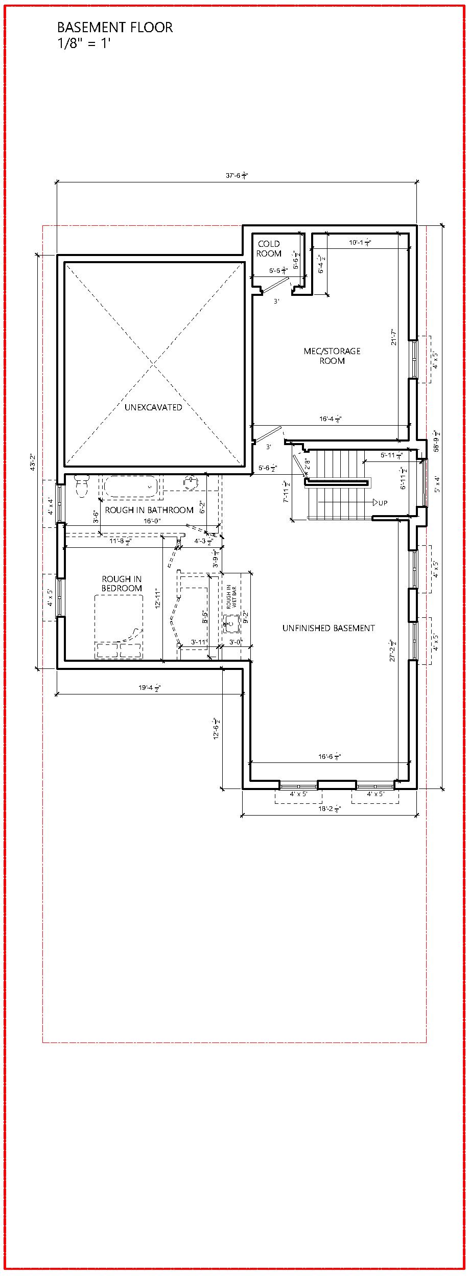
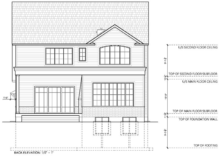
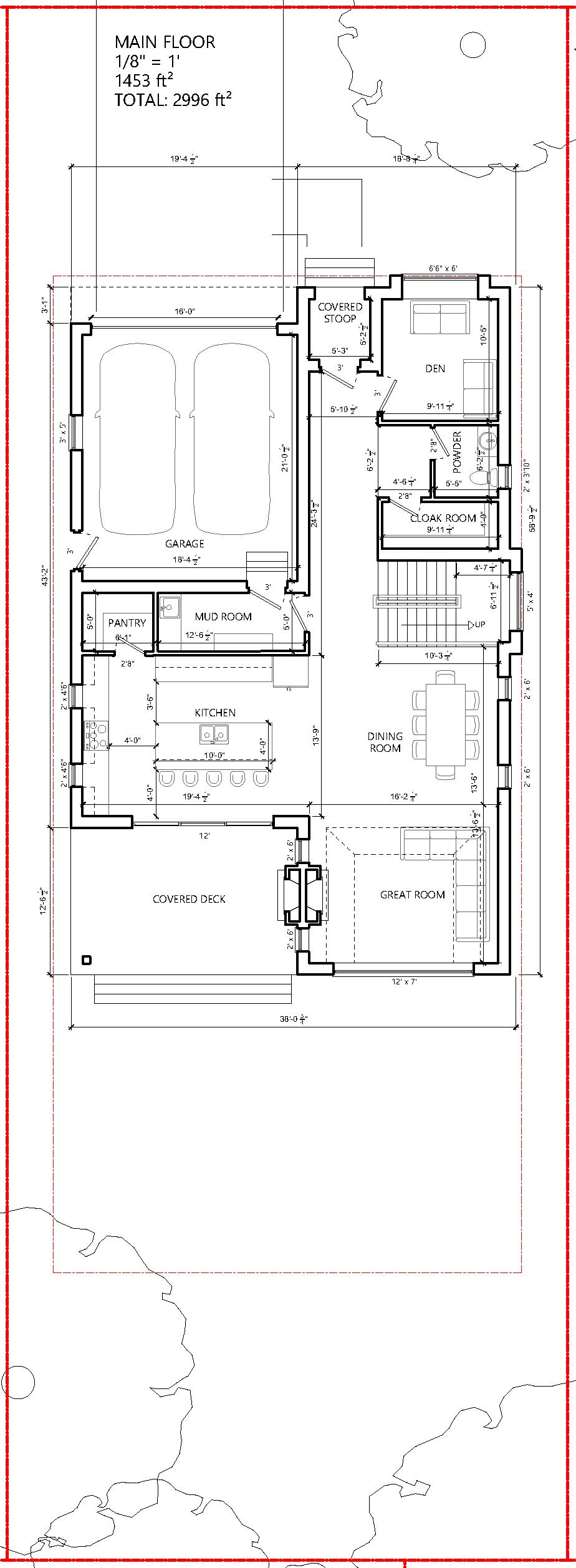
59 DUNBAR

Copper Bay Homes

Rhino | Enscape

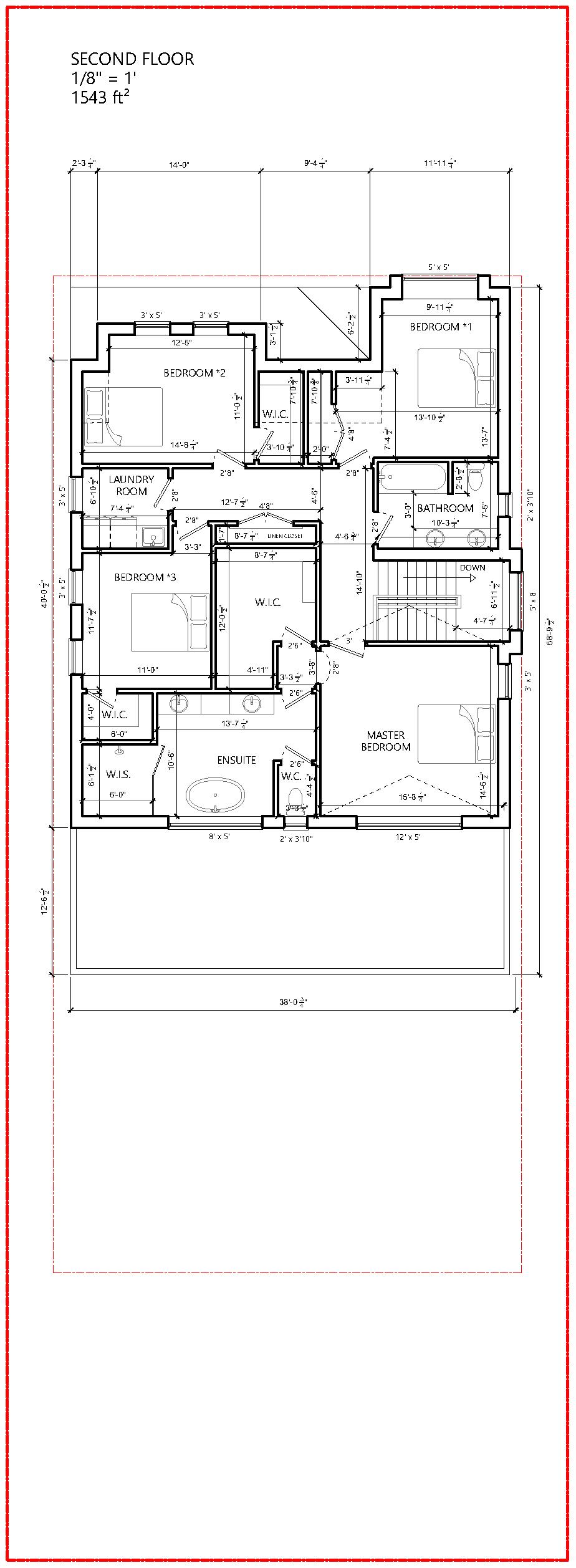
59 Dunbar was initially conceived as a custom home project tailored to specific client needs. However, due to unforeseen circumstances, the clients withdrew at the last minute. Subsequently, I was tasked with transforming the design into a marketable home targeting families, taking full responsibility for the design process. This included rethinking the facade and floor layout to ensure maximum use of floor space while adhering to budget limitations and company practices.

I assumed full design responsibility for 59 Dunbar, producing and revising all necessary documents, including renders, plans, elevations, and technical drawings. Throughout the process, I remained focused on creating a functional yet visually appealing design that would meet market demands while staying within regulatory and budgetary constraints.

MISSION CIVIC CENTRE AND RCMP

O2 Planning & Design

Rhino | Enscape | Photoshop

Mission City is taking strides in the early phases of the Waterfront Revitalization Master Plan, concentrating on enhancing the waterfront area and developing a civic, recreation, arts, and education hub.

Central to this initiative is the concurrent development of two pivotal public buildings: a new Civic Building and an RCMP facility. These renderings were made to illustrate how these buildings could be situated within the civic hub, showcasing synergies and kick starting the implementation of the Waterfront Revitalization Master Plan.

CALGARY PROGRAMING AND ACTIVATION

O2 Planning & Design

Rhino | Illustrator

Calgary’s downtown is undergoing a significant transformation with a growing residential population, repurposing of office towers, and a surge of interest in innovation and creative economies. In alignment with key urban plans, this project aims to enhance the downtown core’s vitality through strategic programming and activations.

Focused on outdoor venues within a core study area, the initiative seeks to expand and enhance programmable spaces, diversify programming types, and streamline processes. These drawings aim to show the range of strategies used to revitalize these core areas, with some specifying differing programs based on the seasons.

BEER LABEL COMPETITION

O2 Planning & Design

Illustrator

In collaboration with a local brewery, this initiative aimed to showcase O2’s most influential projects across the country through creative beer labels. These labels were applied to selected beer flavors and distributed to O2’s clients.

The selection of labels involved a competition among employees, in which I submitted three distinct designs for each beer flavor. “Eau Claire’s Delightfull” emerged as one of the winning designs.

Turn static files into dynamic content formats.

Create a flipbook